Скачать Типовой проект 224-1-702.91 Неполная средняя школа на 9 классов (162 учащихся) со стенами из кирпичаДата актуализации: 01.01.2021
|
| Обозначение: | Типовой проект 224-1-702.91 |
| Обозначение англ: | 224-1-702.91 |
| Статус: | не определен законодательством |
| Название рус.: | Неполная средняя школа на 9 классов (162 учащихся) со стенами из кирпича |
| Дата добавления в базу: | 01.02.2020 |
| Дата актуализации: | 01.01.2021 |
| Дата введения: | 12.02.1992 |
| Дата окончания срока действия: | 30.06.2003 |
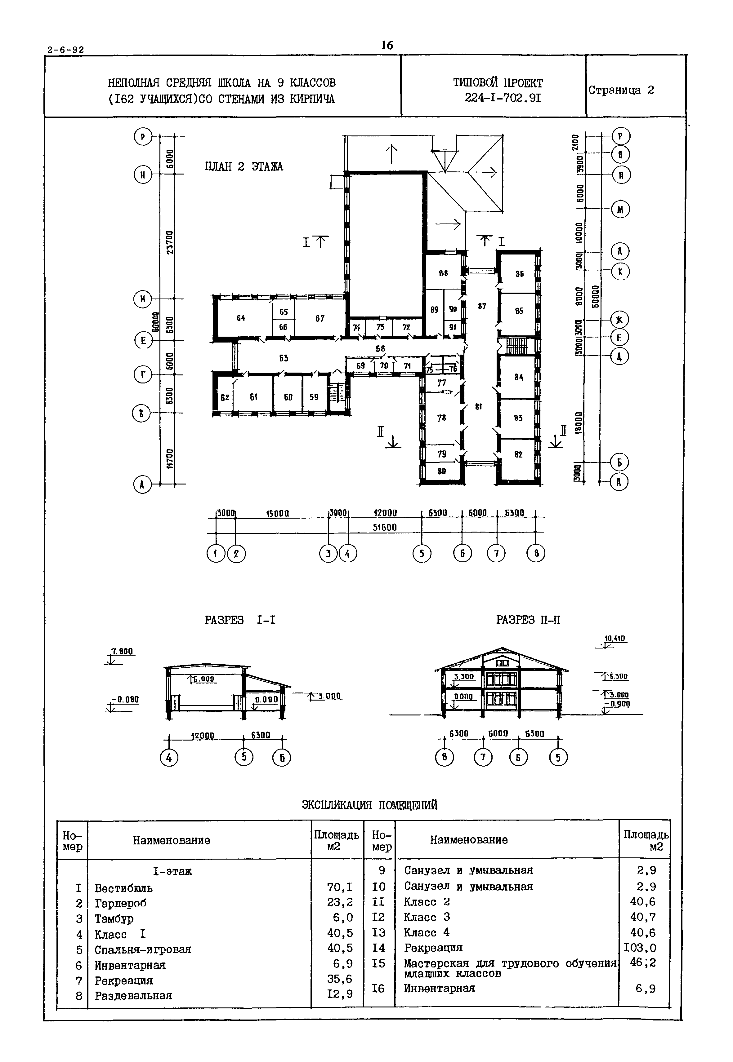
| Область применения: | Здание школы предназначено для строительства в сельской местности и обслуживания 1000-1500 сельских жителей. Здание школы может использоваться как социальный центр села, как для школьников, так и для взрослого населения, учитывающий повышенные требования к трудовому, физическому и эстетическому воспитанию молодежи на периферийных сельских территориях. |





