Скачать ГОСТ 25116-82 Витрины и витражи из алюминиевых сплавов. Типы, конструкции и размерыДата актуализации: 01.01.2021
|
| Обозначение: | ГОСТ 25116-82 |
| Обозначение англ: | GOST 25116-82 |
| Статус: | отменен в рф |
| Название рус.: | Витрины и витражи из алюминиевых сплавов. Типы, конструкции и размеры |
| Название англ.: | Aluminium shop-wind wors. Types, construction and dimensions |
| Дата добавления в базу: | 01.10.2014 |
| Дата актуализации: | 01.01.2021 |
| Дата введения: | 01.01.1984 |
| Дата окончания срока действия: | 01.07.1995 |
| Область применения: | Стандарт распространяется на витрины и витражи из алюминиевых сплавов с одинарным и двойным остеклением, предназначенные для устройства наружных светопрозрачных ограждений общественных зданий. Стандарт не распространяется на витрины и витражи, в которых алюминиевые сплавы не являются основным конструкционным материалом (дерево- и сталеалюминиевые), а также на витрины и витражи из комбинированных профилей, изготовленных из алюминиевых сплавов. |
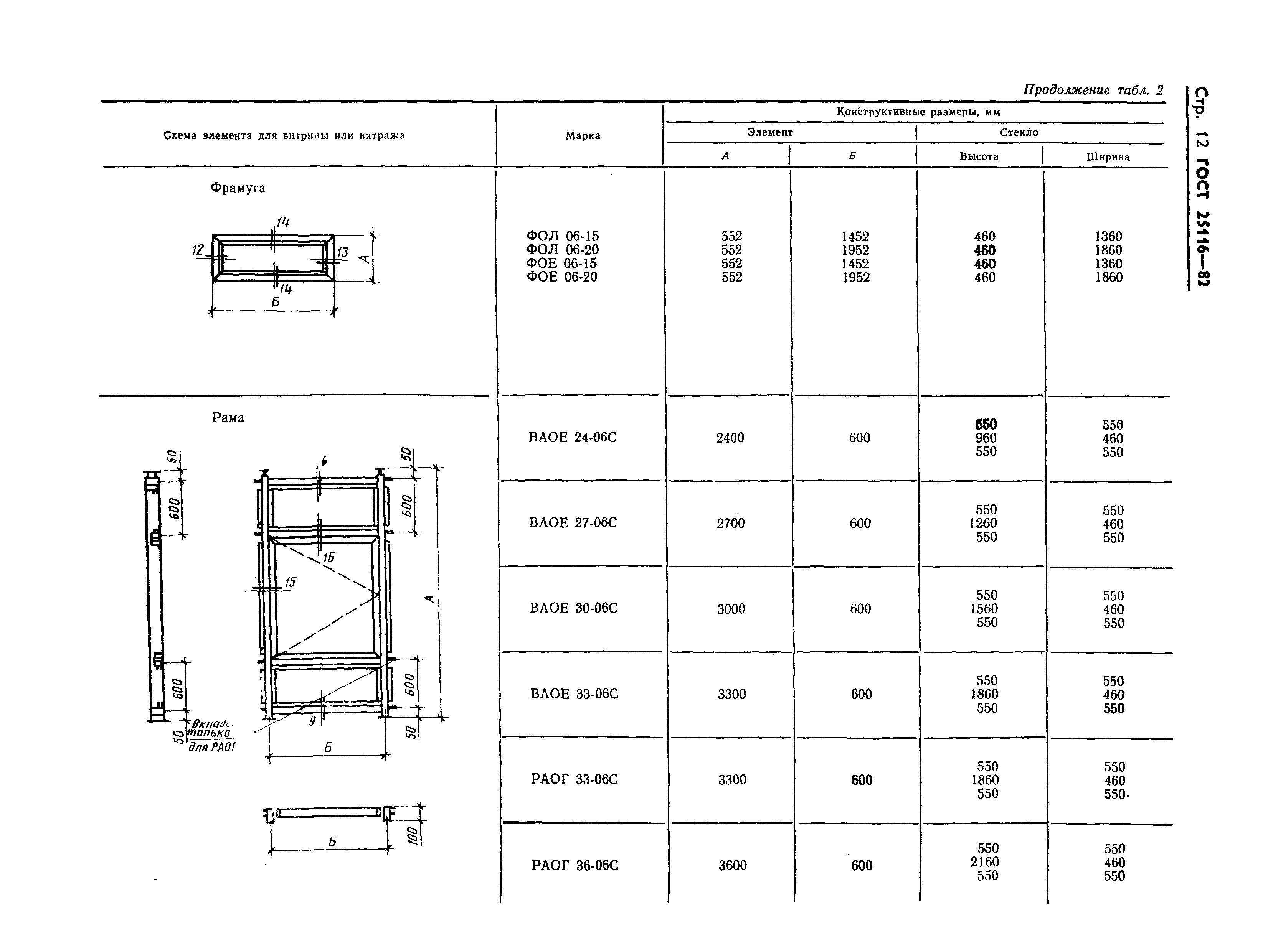
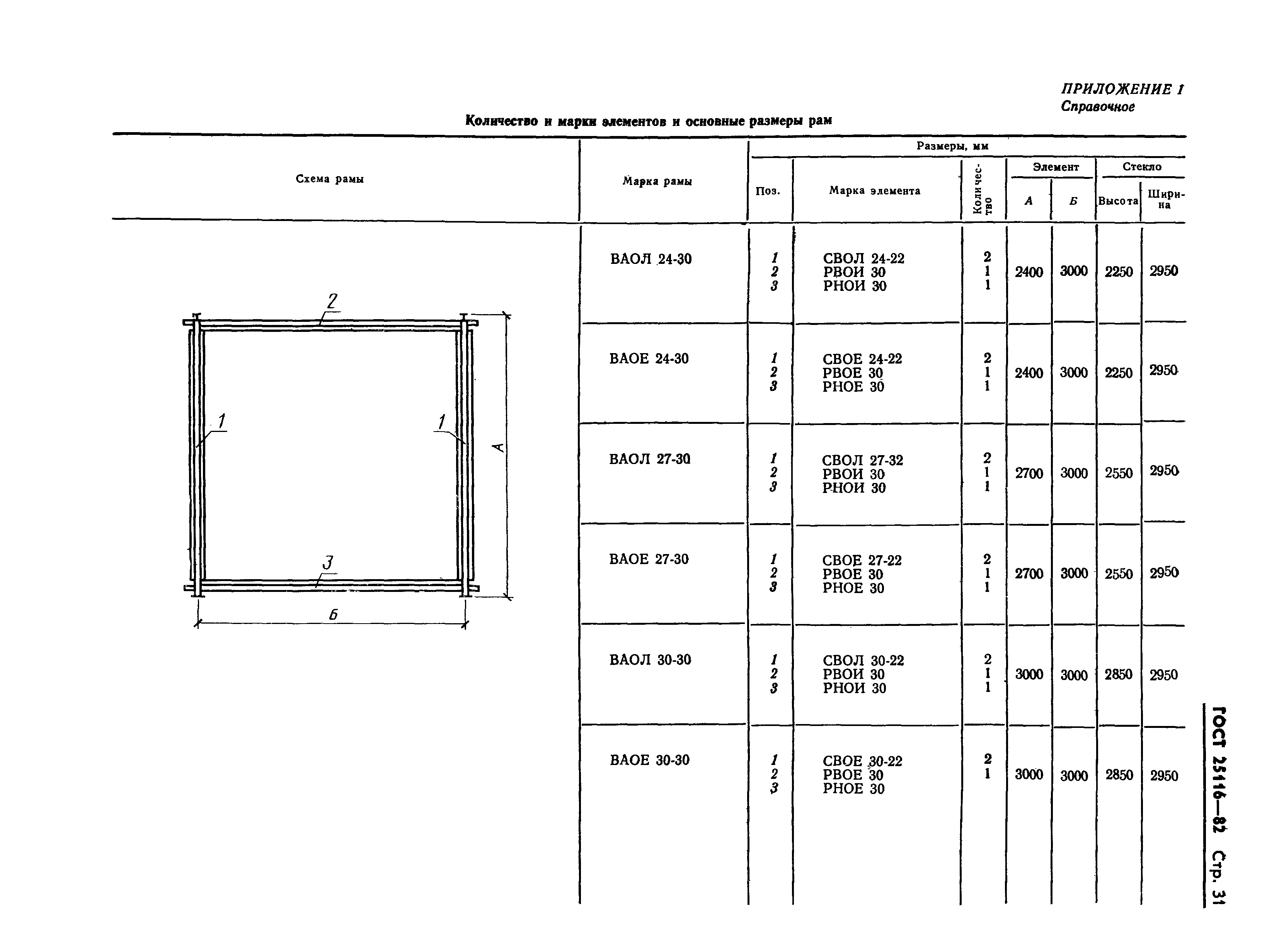
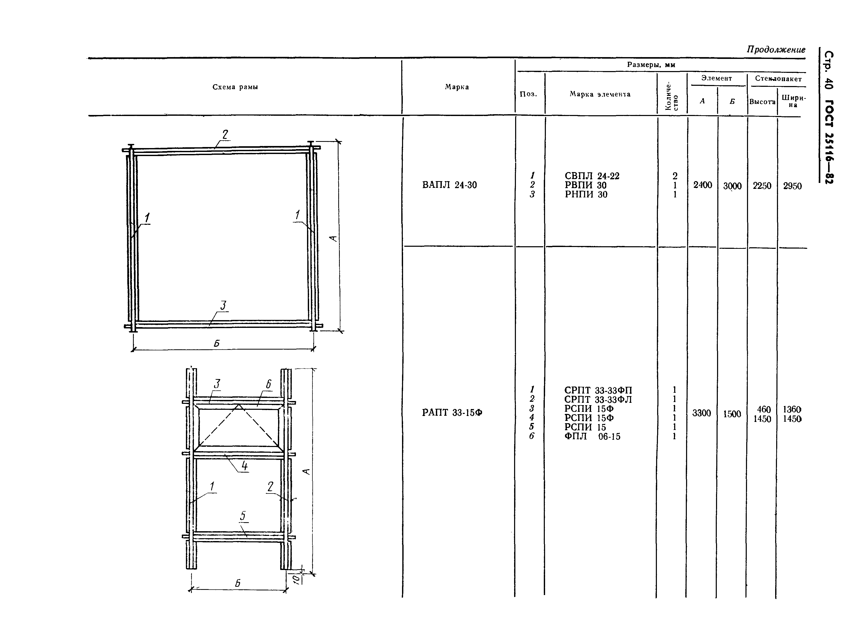
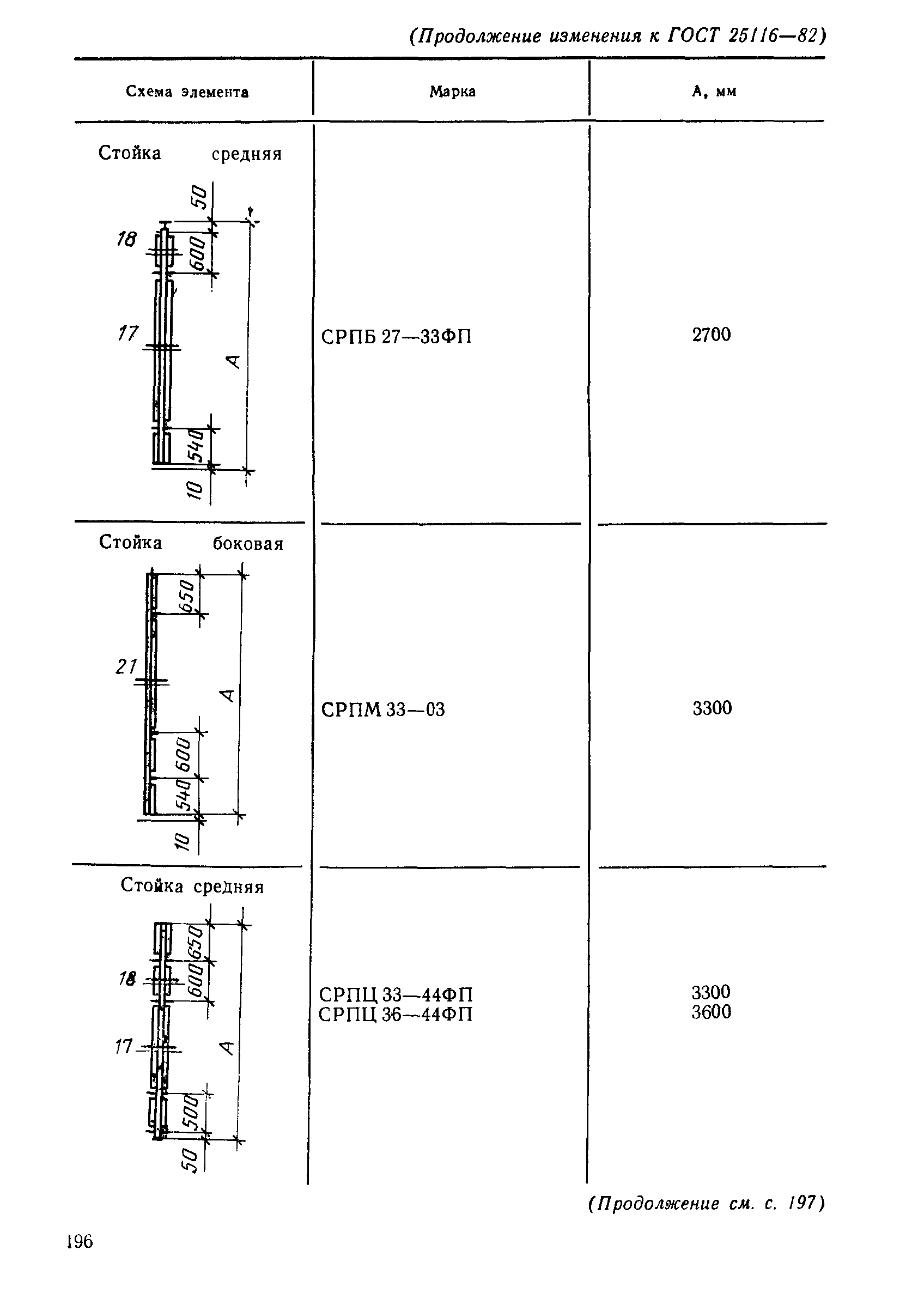
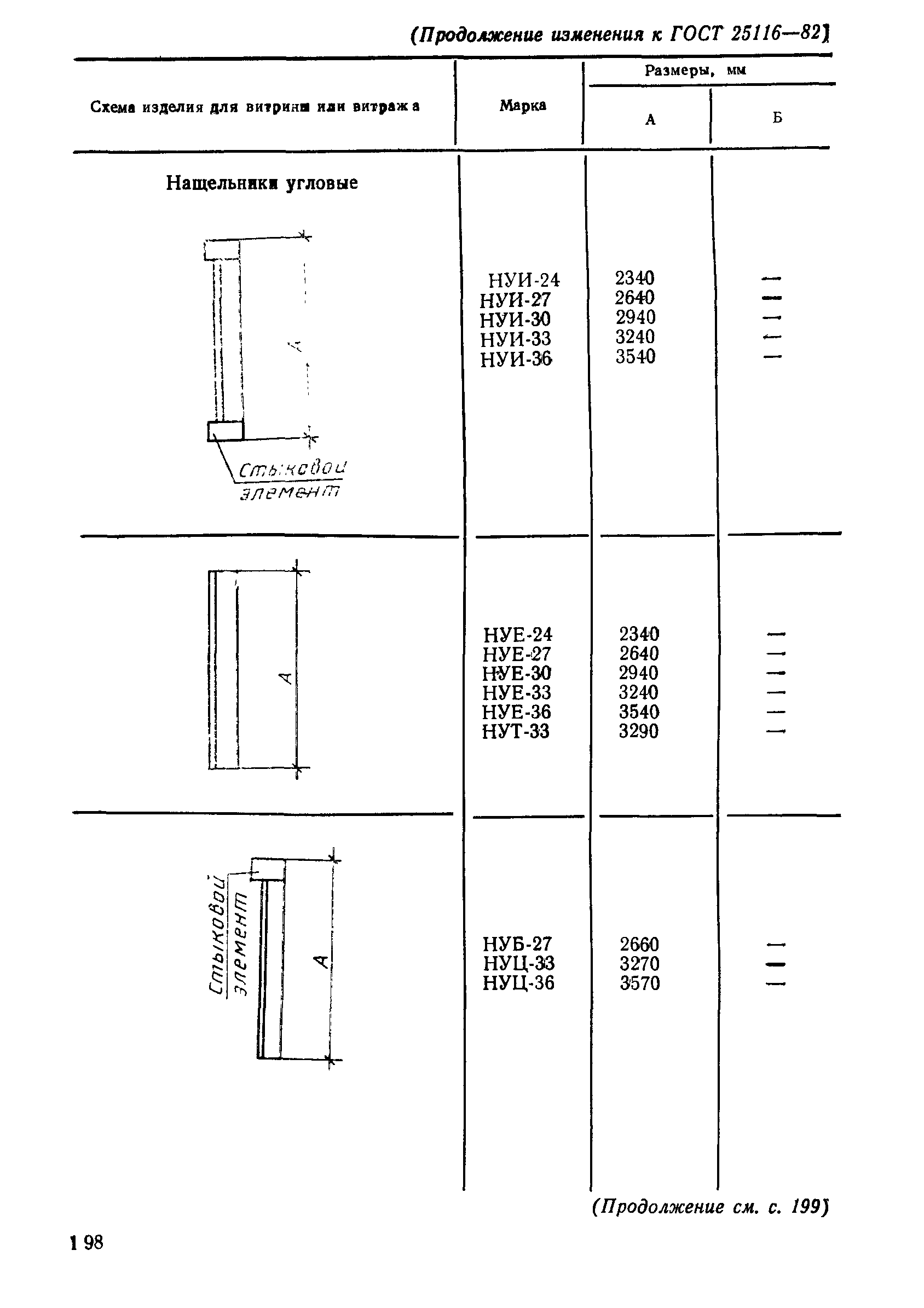
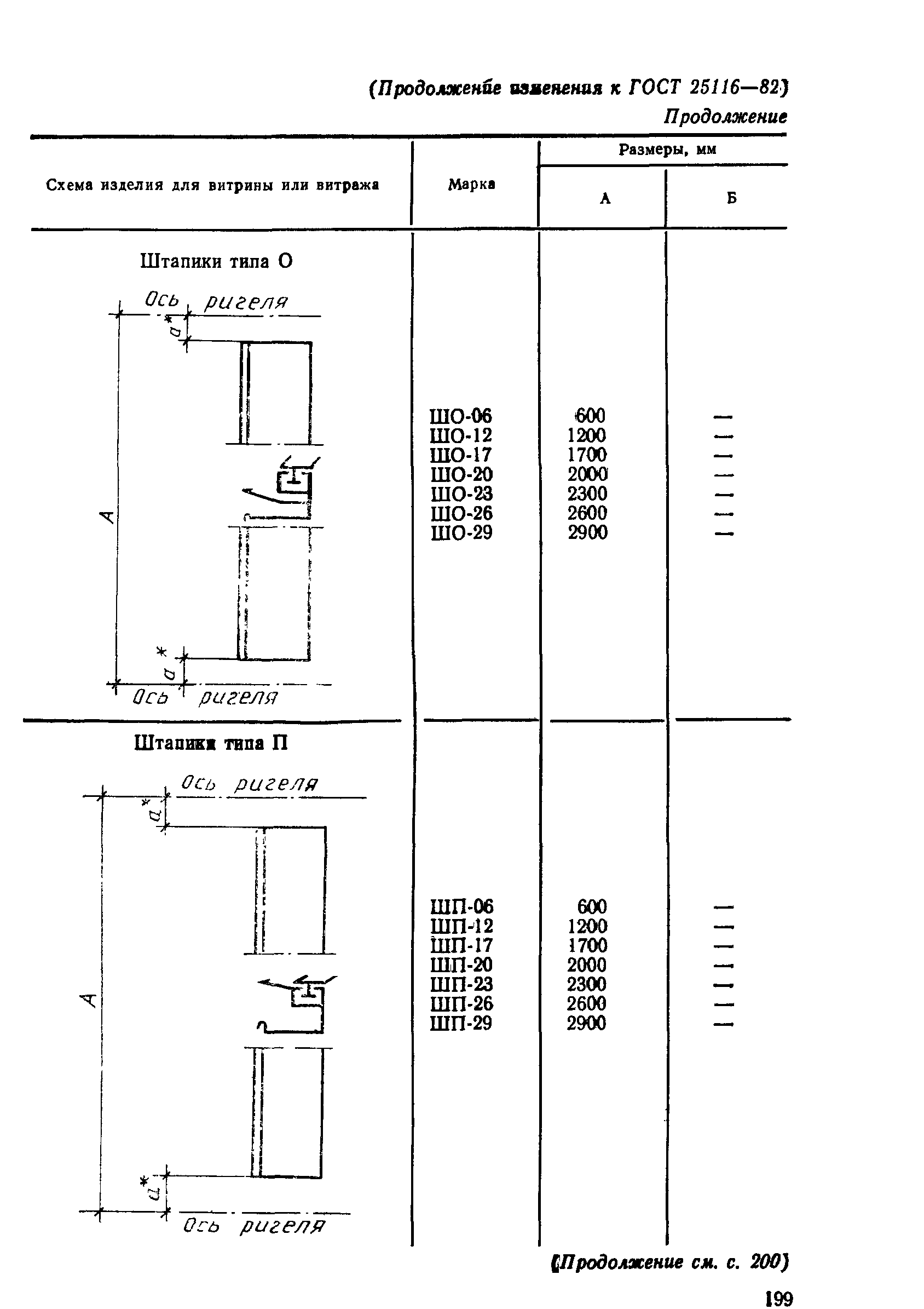
| Оглавление: | 1 Типы, марки элементов витрин и витражей 2 Конструкция и размеры Приложение 1 (справочное) Искл. Изм. № 1 Приложение 2 (справочное) Примеры установки витрин и витражей Приложение 3 (рекомендуемое) Схемы расположения приборов на витринах и витражах |
| Разработан: | Госкомитет по гражданскому строительству и архитектуре при Госстрое СССР Министерство монтажных и специальных строительных работ СССР |
| Утверждён: | 31.12.1981 Государственный комитет СССР по делам строительства (279) |
| Издан: | Издательство стандартов (1982 г. ) |
| Нормативные ссылки: |


































































