Скачать РД 34.27.101 Указания по расчету и проектированию золоуловителя с трубой Вентури типа МВ при модернизации газоочистного оборудования тепловых электростанцийДата актуализации: 01.01.2021
|
| Обозначение: | РД 34.27.101 |
| Обозначение англ: | RD 34.27.101 |
| Статус: | действует |
| Название рус.: | Указания по расчету и проектированию золоуловителя с трубой Вентури типа МВ при модернизации газоочистного оборудования тепловых электростанций |
| Название англ.: | Guidelines for Calculation and Design of Ash Collector with Venturi Tube Type MV for Modernization of Gas Cleaning Equipment of Thermal Power Stations |
| Дата добавления в базу: | 01.09.2013 |
| Дата актуализации: | 01.01.2021 |
| Дата введения: | 10.10.1978 |
| Область применения: | Указания распространяются на расчет и проектирование мокрых золоуловителей с трубами Вентури типа МВ (ранее золоуловителей МВ УО ОРГРЭС) и предназначены для организаций, осуществляющих модернизацию газоочистного оборудования тепловых электростанций. |
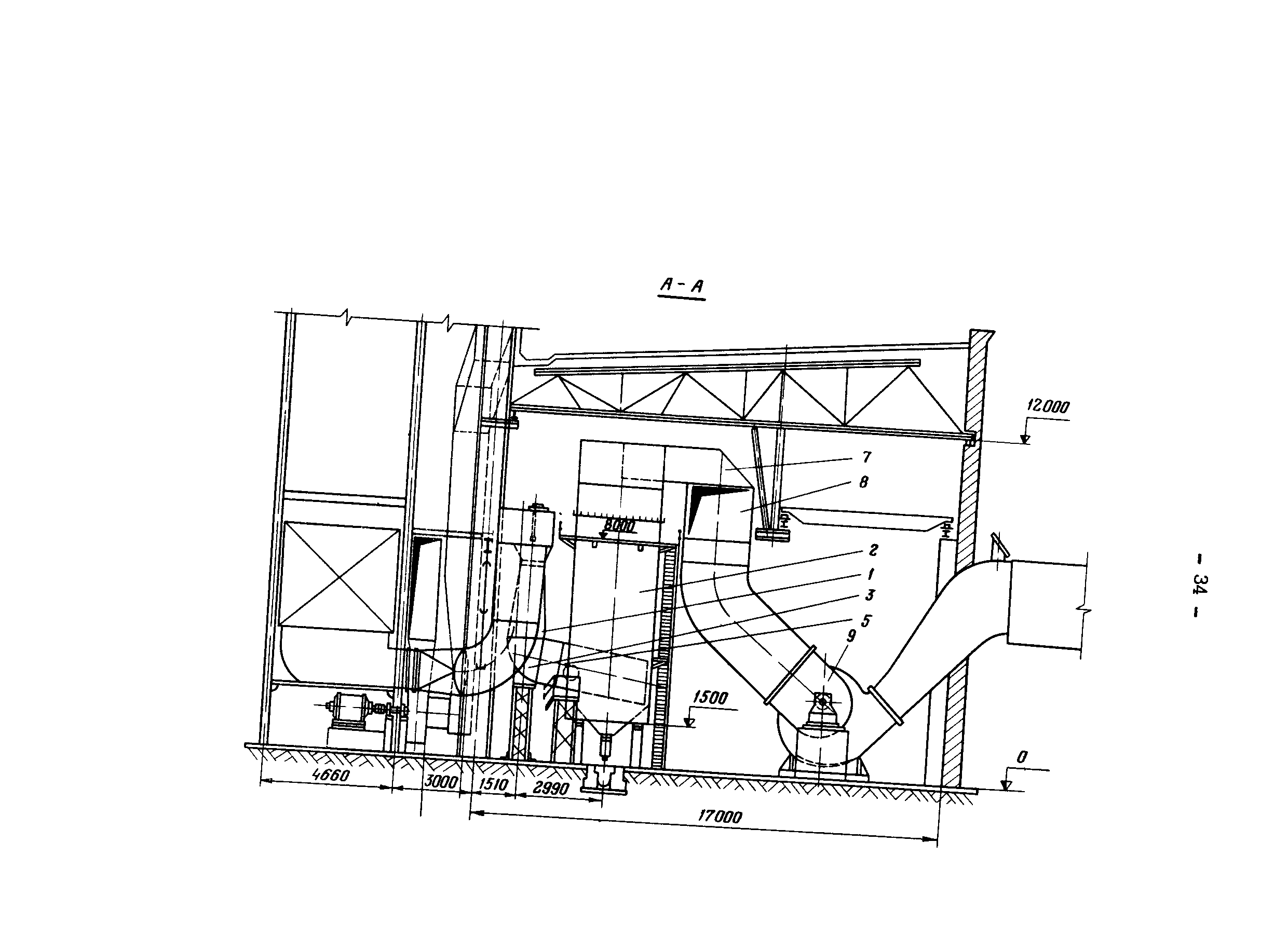
| Оглавление: | Введение 1 Общие положения 2 Краткое описание конструкции 3 Расчет золоуловителя 4 Проектирование золоуловителя Приложение 1 Опросный лист на проектирование золоуловителя типа МВ (форма 1) Приложение 2 Опросный лист для составления сметной документации при проектировании золоуловителя типа МВ (форма 2) |
| Разработан: | ВТИ Уралтехэнерго |
| Утверждён: | 10.10.1978 Минэнерго СССР (USSR Minenergo ) |
| Издан: | СПО Союзтехэнерго (1979 г. ) |
| Нормативные ссылки: |











































