Скачать РД 34.24.302 Инструкция по монтажу скребковых питателей угля и торфаДата актуализации: 01.01.2021
|
| Обозначение: | РД 34.24.302 |
| Обозначение англ: | RD 34.24.302 |
| Статус: | действует |
| Название рус.: | Инструкция по монтажу скребковых питателей угля и торфа |
| Название англ.: | Guidelines for Installation of Coal and Peat Scraper Feeders |
| Дата добавления в базу: | 01.09.2013 |
| Дата актуализации: | 01.01.2021 |
| Дата введения: | 22.07.1963 |
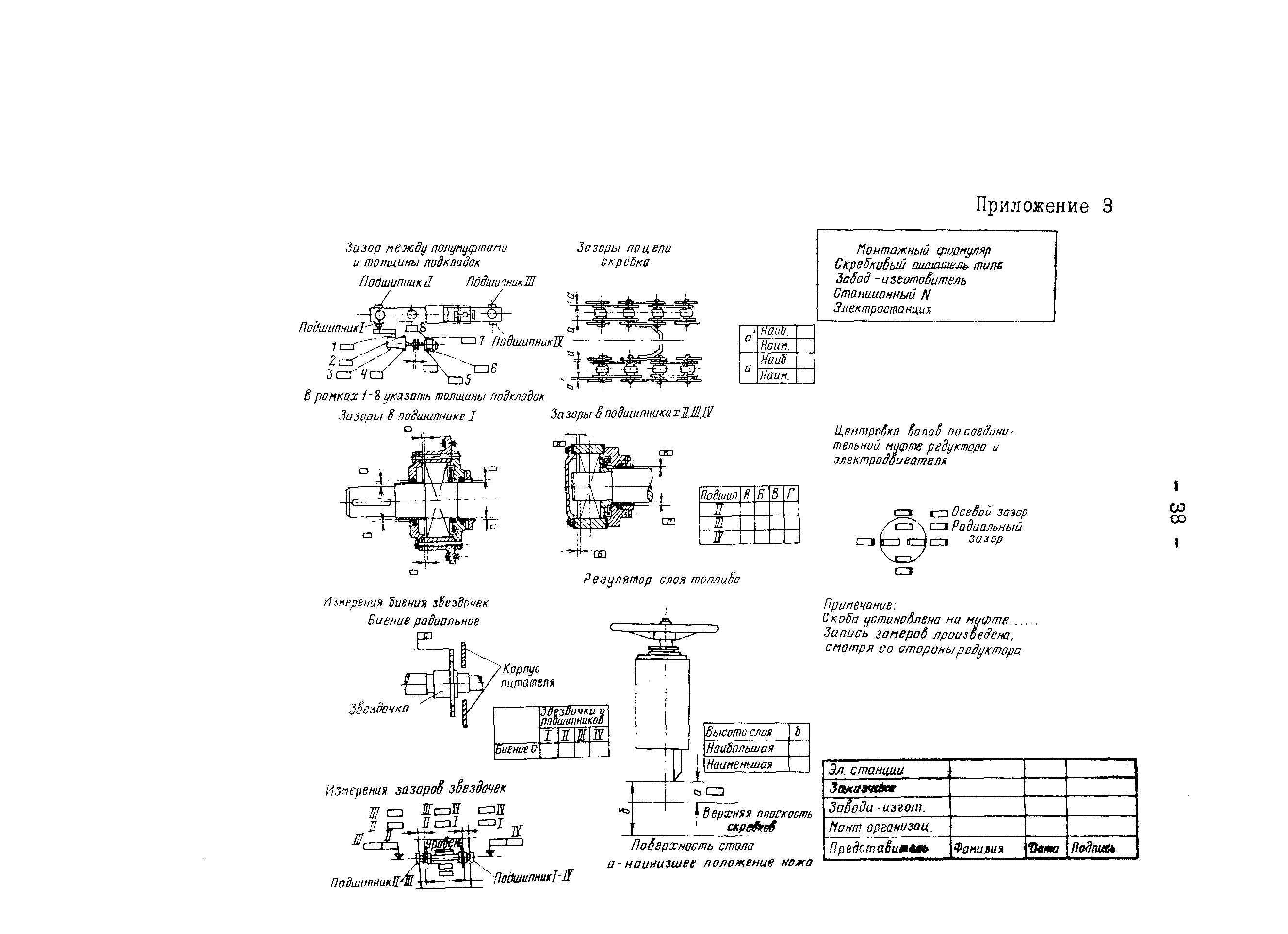
| Оглавление: | I Описание конструкции скребковых питателей II Поставка, приемка и хранение оборудования III Монтаж агрегата IV Сдача и приемка смонтированного оборудования Приложение 1 Перечень подшипников качения Приложение 2 Сводная таблица величин зазоров и допусков при монтаже скребковых питателей угля и торфа Приложение 3 Монтажный формуляр |
| Разработан: | Энергомонтажпроект Оргэнергострой Черновицкий машиностроительный завод |
| Утверждён: | 22.07.1963 Минэнерго СССР (USSR Minenergo ) |
| Принят: | Черновицкий машиностроительный завод |
| Издан: | Оргэнергострой (1964 г. ) |
| Нормативные ссылки: |
|







































