Скачать КО 09.16.02.09-05 Краны козловые, краны-штабелеры, лифты, редукторы, напольный безрельсовый транспортДата актуализации: 01.01.2021
|
| Обозначение: | КО 09.16.02.09-05 |
| Обозначение англ: | KO 09.16.02.09-05 |
| Статус: | действует |
| Название рус.: | Краны козловые, краны-штабелеры, лифты, редукторы, напольный безрельсовый транспорт |
| Дата добавления в базу: | 01.09.2013 |
| Дата актуализации: | 01.01.2021 |
| Дата введения: | 01.01.2005 |
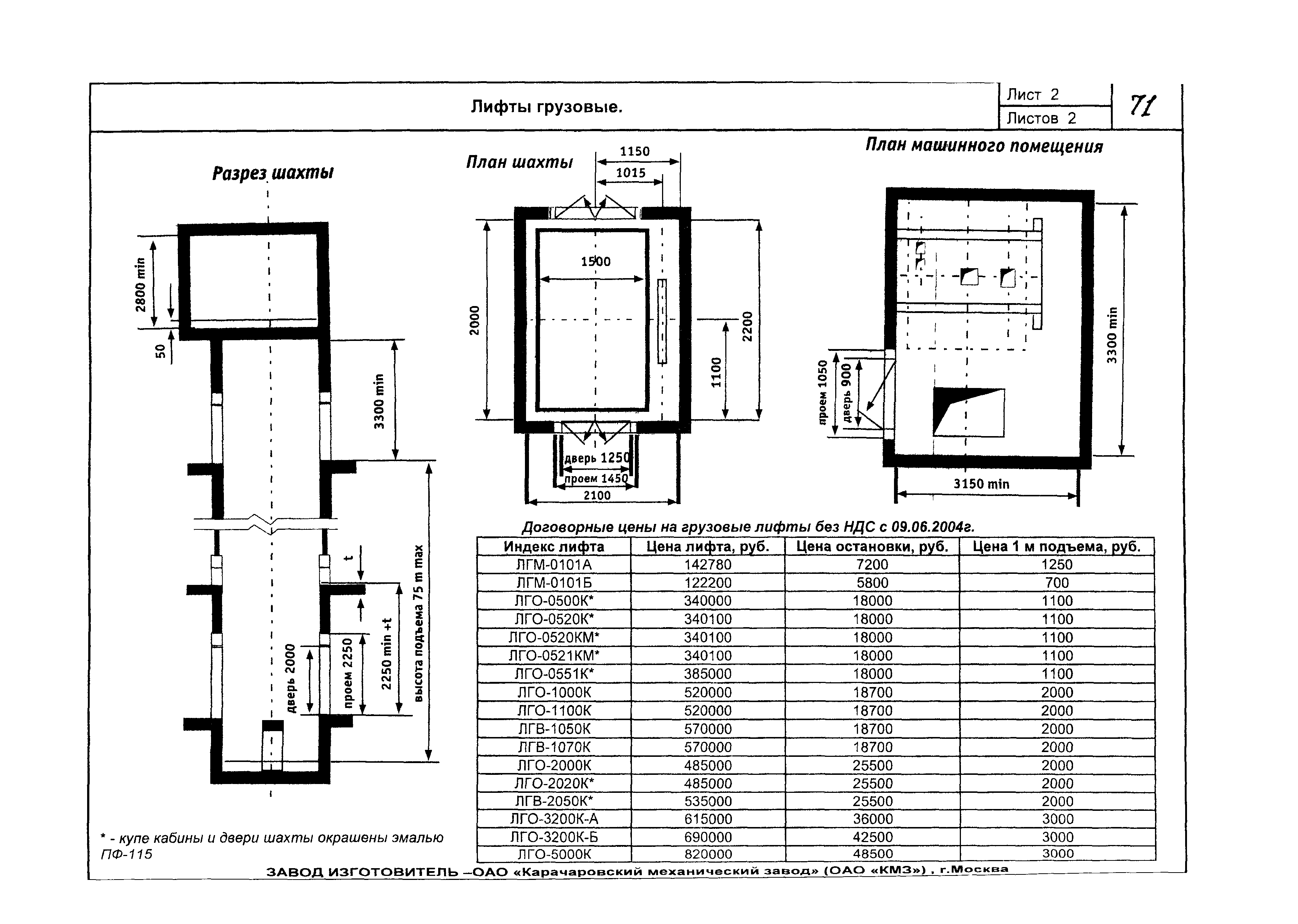
| Оглавление: | 1. Краны полукозловые и козловые 2. Краны козловые магнито-грейферные, специальные и консольные 3. Краны козловые контейнерные 4. Лифты 4.1. Лифты пассажирские 4.2. Лифты больничные 4.3. Лифты малые грузовые и грузовые 5. Редукторы 6. Мотор - редукторы 7. Электропогрузчики 8. Электротележки 9. Тележки ручные 10. Адреса заводов-изготовителей |
| Разработан: | 31 ГПИ специального строительства Минобороны Координационный центр по ценообразованию и сметному нормированию в строительстве |
| Утверждён: | 01.01.2005 31 ГПИ СС Минобороны России |
| Заменяет собой: | |
| Нормативные ссылки: |







































































































































