Скачать Серия 3.501.1-159 Выпуск 1. Ограждения из обычного железобетона. Указания по применению и рабочие чертежиДата актуализации: 01.01.2021
|
| Обозначение: | Серия 3.501.1-159 |
| Обозначение англ: | Series 3.501.1-159 |
| Статус: | не определен законодательством |
| Название рус.: | Выпуск 1. Ограждения из обычного железобетона. Указания по применению и рабочие чертежи |
| Дата добавления в базу: | 01.09.2013 |
| Дата актуализации: | 01.01.2021 |
| Дата введения: | 01.04.1990 |
| Дата окончания срока действия: | 30.06.2003 |
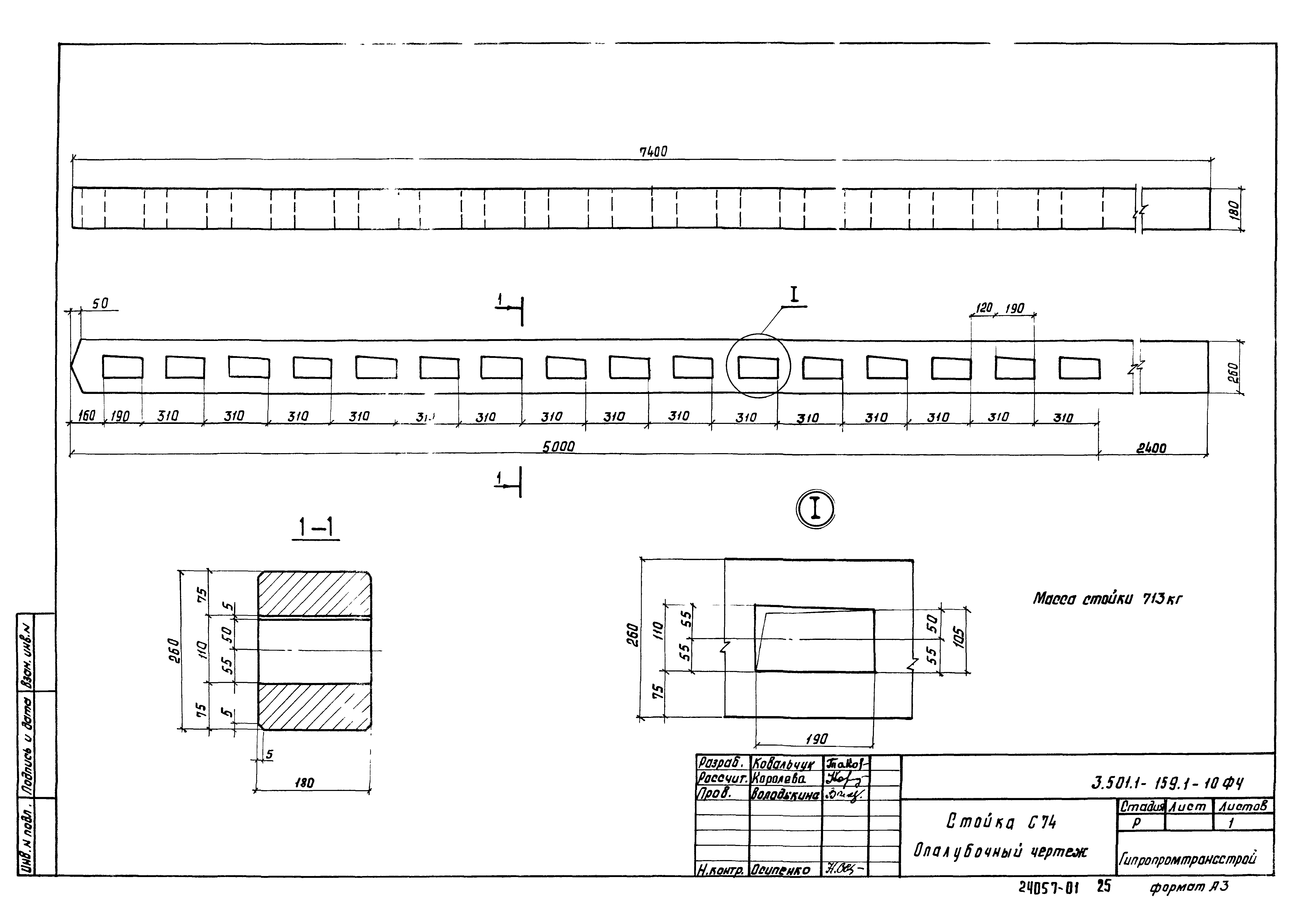
| Оглавление: | 3.501.1-159.1-ТО Техническое описание 3.501.1-159.1-НИ Номенклатура изделий 3.501.1-159.1-1 Схема установки железобетонного путевого ограждения высотой 4,2 м от поверхности земли 3.501.1-159.1-2ФЧ Стойка С58. Опалубочный чертеж 3.501.1-159.1-2 Стойка С58. Армирование 3.501.1-159.1-3 Доска Д30 3.501.1-159.1-4 Сетка С1 3.501.1-159.1-5 Планка 3.501.1-159.1-6 Болт стяжной БС-1 3.501.1-159.1-7 Клин К-1 3.501.1-159.1-8 Схема установки железобетонного полевого ограждения высотой 4,2 м от поверхности земли 3.501.1-159.1-9 Схема установки железобетонного ограждения высотой 5,5 м от поверхности земли 3.501.1-159.1-10ФЧ Стойка С74. Опалубочный чертеж 3.501.1-159.1-10 Стойка С74. Армирование 3.501.1-159.1-11 Схема установки путевого ограждения с деревянным заполнением высотой 4,2 м от поверхности земли 3.501.1-159.1-12 Клин К-2 3.501.1-159.1-13 Клин К-2 3.501.1-159.1-14 Схема установки полевого ограждения с деревянным заполнением высотой 4,2 м от поверхности земли 3.501.1-159.1-15 Схема установки ограждения с деревянным заполнением высотой 5,5 м от поверхности земли 3.501.1-159.1-16 Ведомость расхода стали на элемент, кг |
| Разработан: | Гипропромтрансстрой Главтранспроекта |
| Утверждён: | 25.08.1989 МПС СССР (USSR Ministry of Railroads А2242у) |
| Издан: | ЦИТП Госстроя СССР (CITP, Gosstroy (USSR) 1989 г. ) |
































