Скачать Серия 2.130-1 Выпуск 30. Деревянные перегородки сельских зданий. Рабочие чертежиДата актуализации: 01.01.2021
|
| Обозначение: | Серия 2.130-1 |
| Обозначение англ: | Series 2.130-1 |
| Статус: | справочные материалы, мп, тпр |
| Название рус.: | Выпуск 30. Деревянные перегородки сельских зданий. Рабочие чертежи |
| Дата добавления в базу: | 01.09.2013 |
| Дата актуализации: | 01.01.2021 |
| Дата введения: | 15.04.1989 |
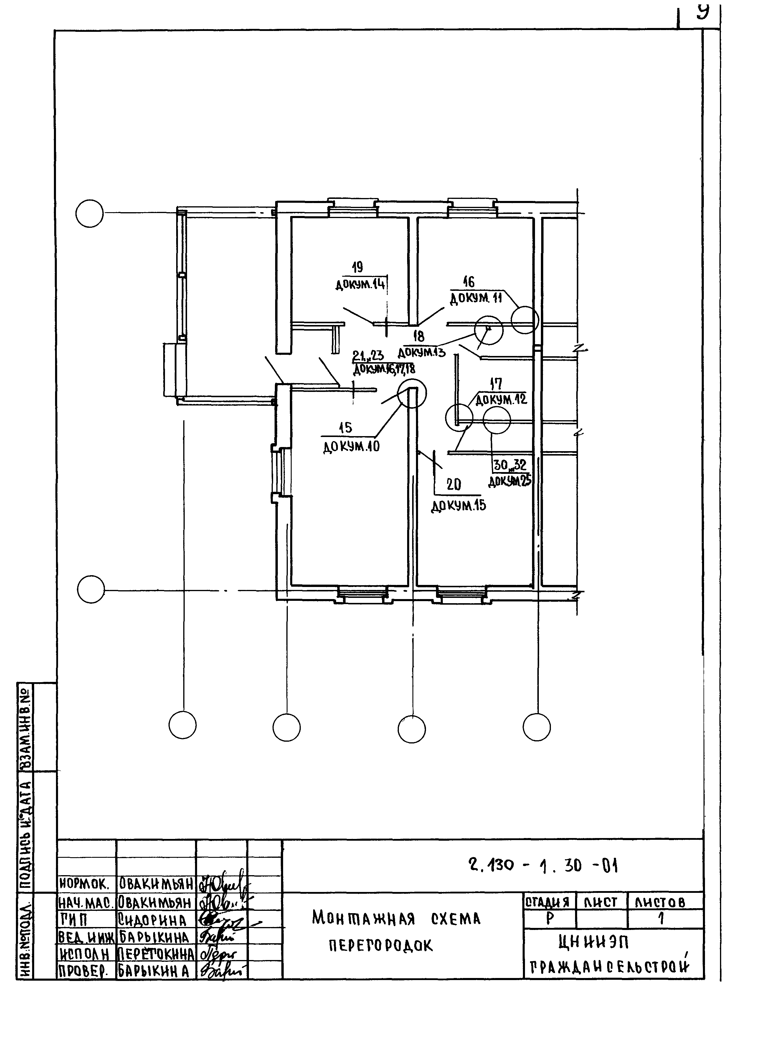
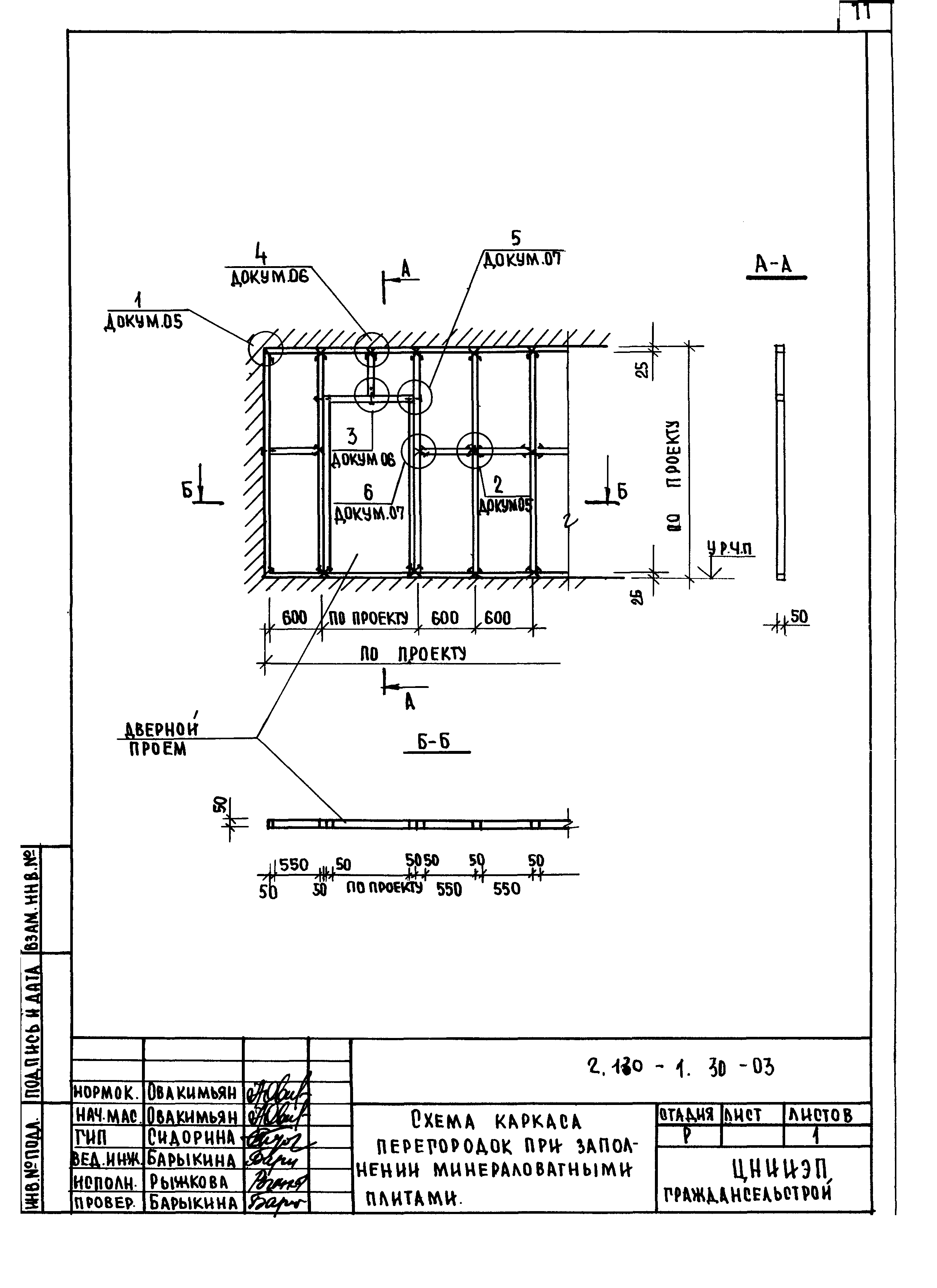
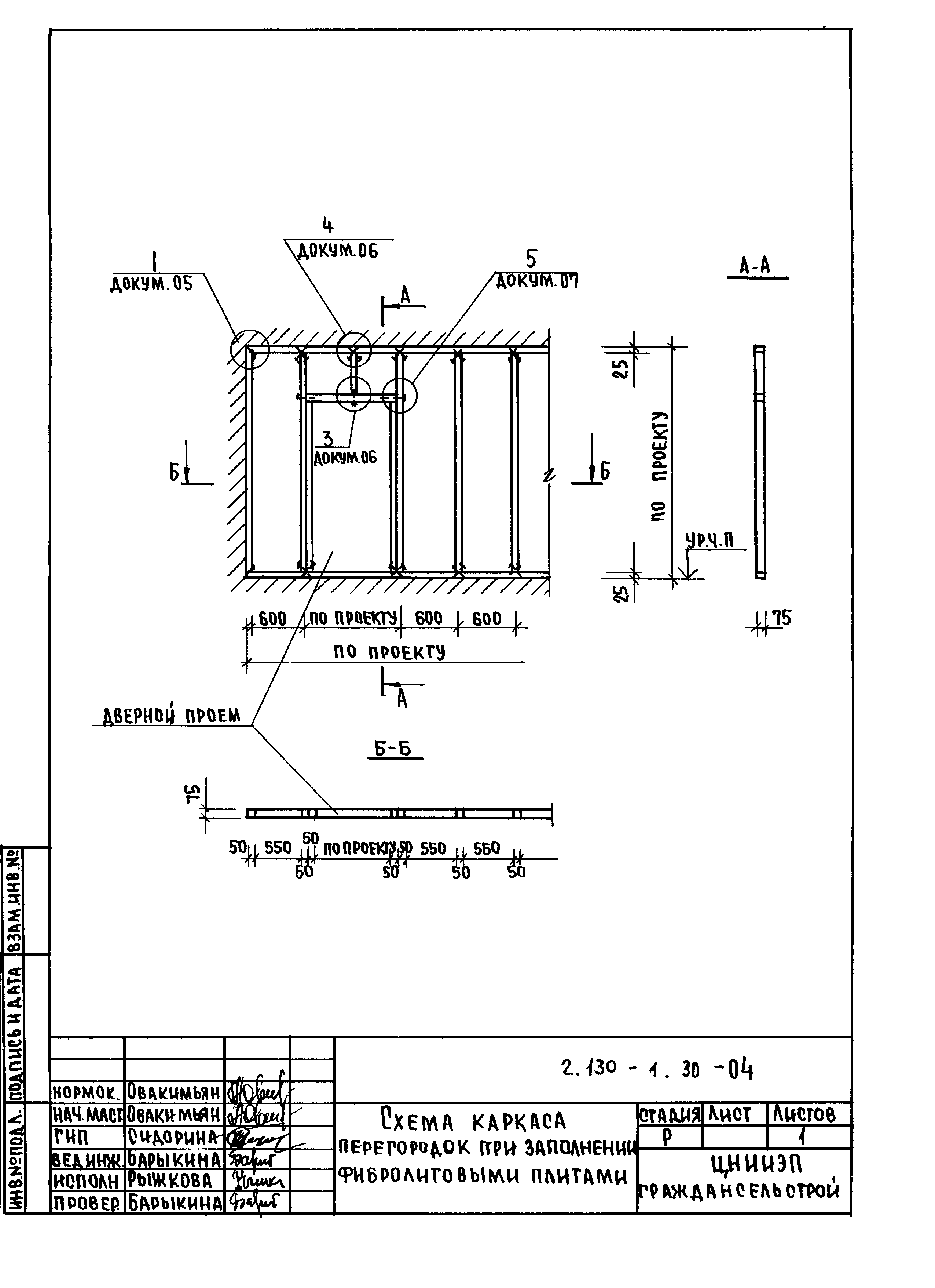
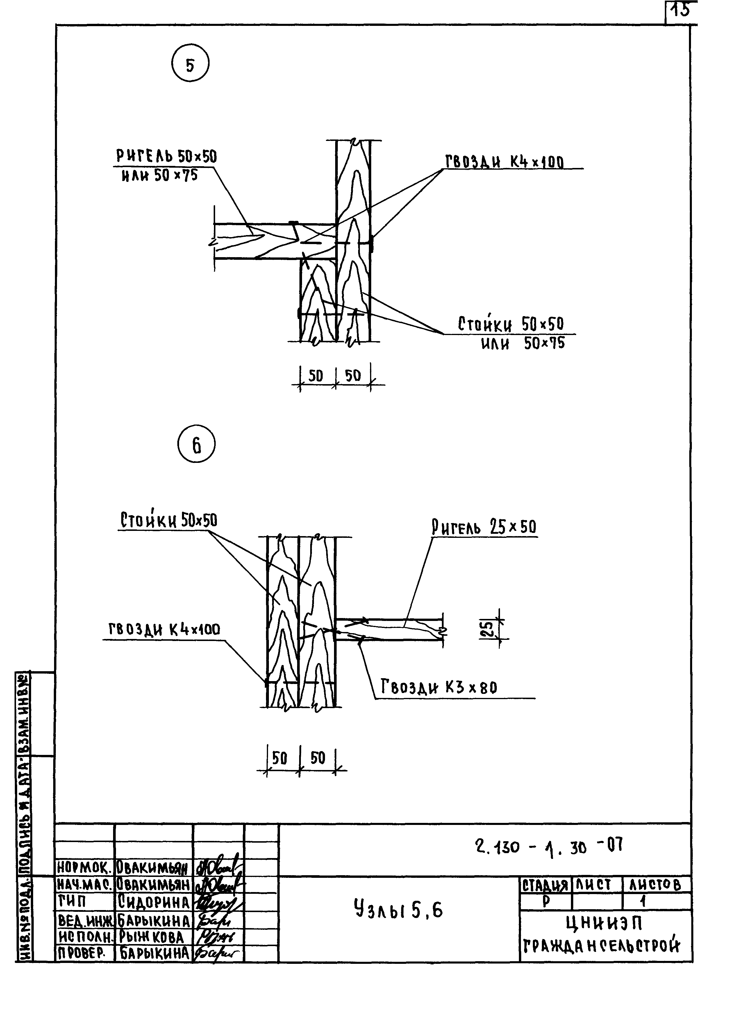
| Оглавление: | 2.130-1.30-00 ПЗ Пояснительная записка 2.130-1.30-01 Монтажная схема перегородок 2.130-1.30-02 Монтажная схема перегородок их фолдинг - элементов 2.130-1.30-03 Схема каркаса перегородок при заполнении минераловатными плитами 2.130-1.30-04 Схема каркаса перегородок при заполнении фибролитовыми плитами 2.130-1.30-05 Узлы 1, 2 2.130-1.30-06 Узлы 3, 4 2.130-1.30-07 Узлы 5, 6 2.130-1.30-08 Узлы 7…. 10 2.130-1.30-09 Узлы 11… 14 2.130-1.30-10 Узел 15 2.130-1.30-11 Узел 16 2.130-1.30-12 Узел 17 2.130-1.30-13 Узел 18 2.130-1.30-14 Узел 19 2.130-1.30-15 Узел 20 2.130-1.30-16 Узел 21 2.130-1.30-17 Узел 22 2.130-1.30-18 Узел 23 2.130-1.30-19 Узел 24 2.130-1.30-20 Узел 25 2.130-1.30-21 Узел 26 2.130-1.30-22 Узел 27 2.130-1.30-23 Узел 28 2.130-1.30-24 Узел 29 2.130-1.30-25 Узел 30… 32 |
| Разработан: | ЦНИИЭП граждансельстрой |
| Утверждён: | 03.04.1989 Госкомархитектура (55) |
| Издан: | ЦИТП Госстроя СССР (CITP, Gosstroy (USSR) 1989 г. ) |
| Заменяет собой: |


































