Скачать Серия 5.904-4 Двери и люки для вентиляционных камер. Рабочие чертежиДата актуализации: 01.01.2021
|
| Обозначение: | Серия 5.904-4 |
| Обозначение англ: | Series 5.904-4 |
| Статус: | не определен законодательством |
| Название рус.: | Двери и люки для вентиляционных камер. Рабочие чертежи |
| Дата добавления в базу: | 01.09.2013 |
| Дата актуализации: | 01.01.2021 |
| Дата введения: | 01.08.1980 |
| Дата окончания срока действия: | 30.06.2003 |
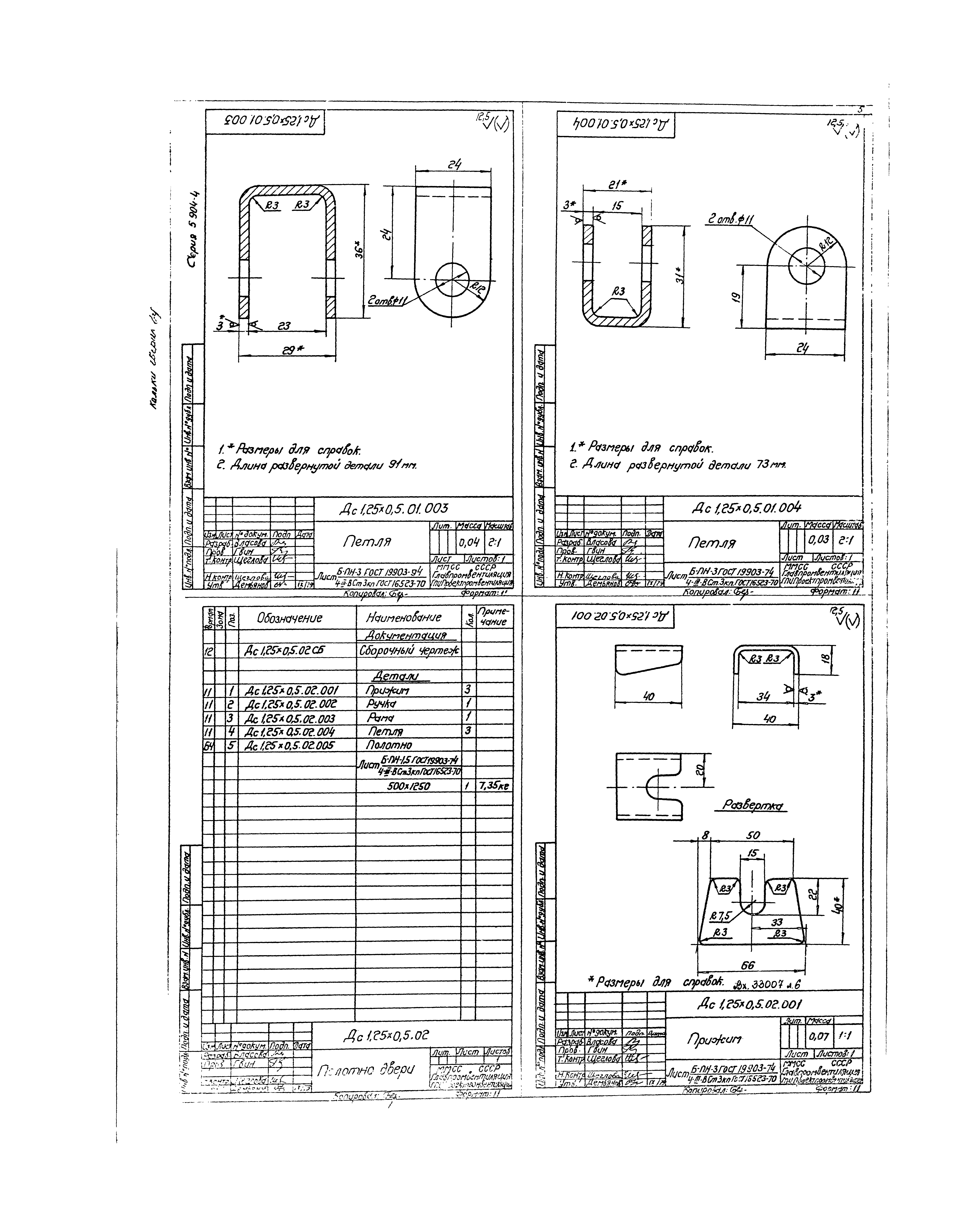
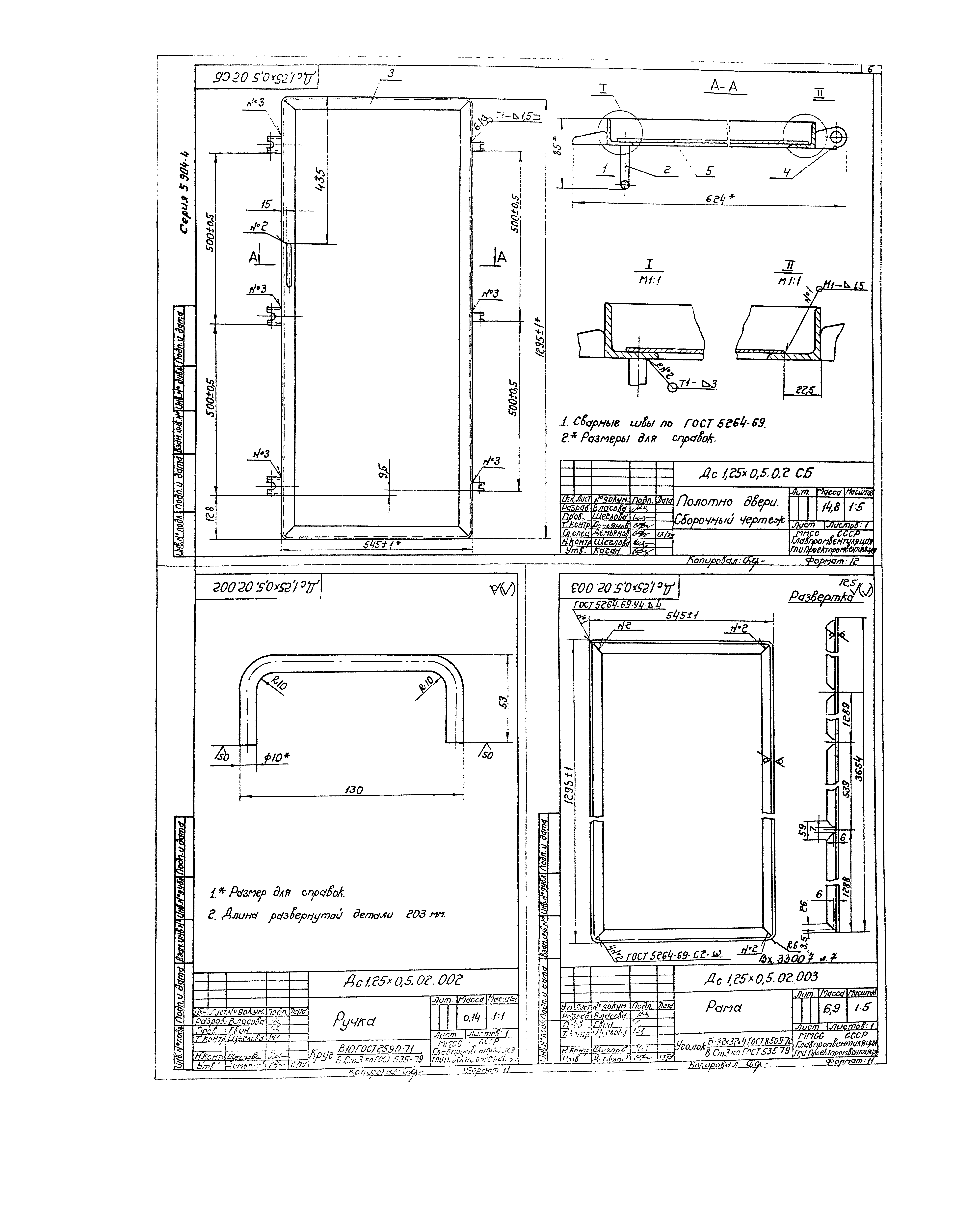
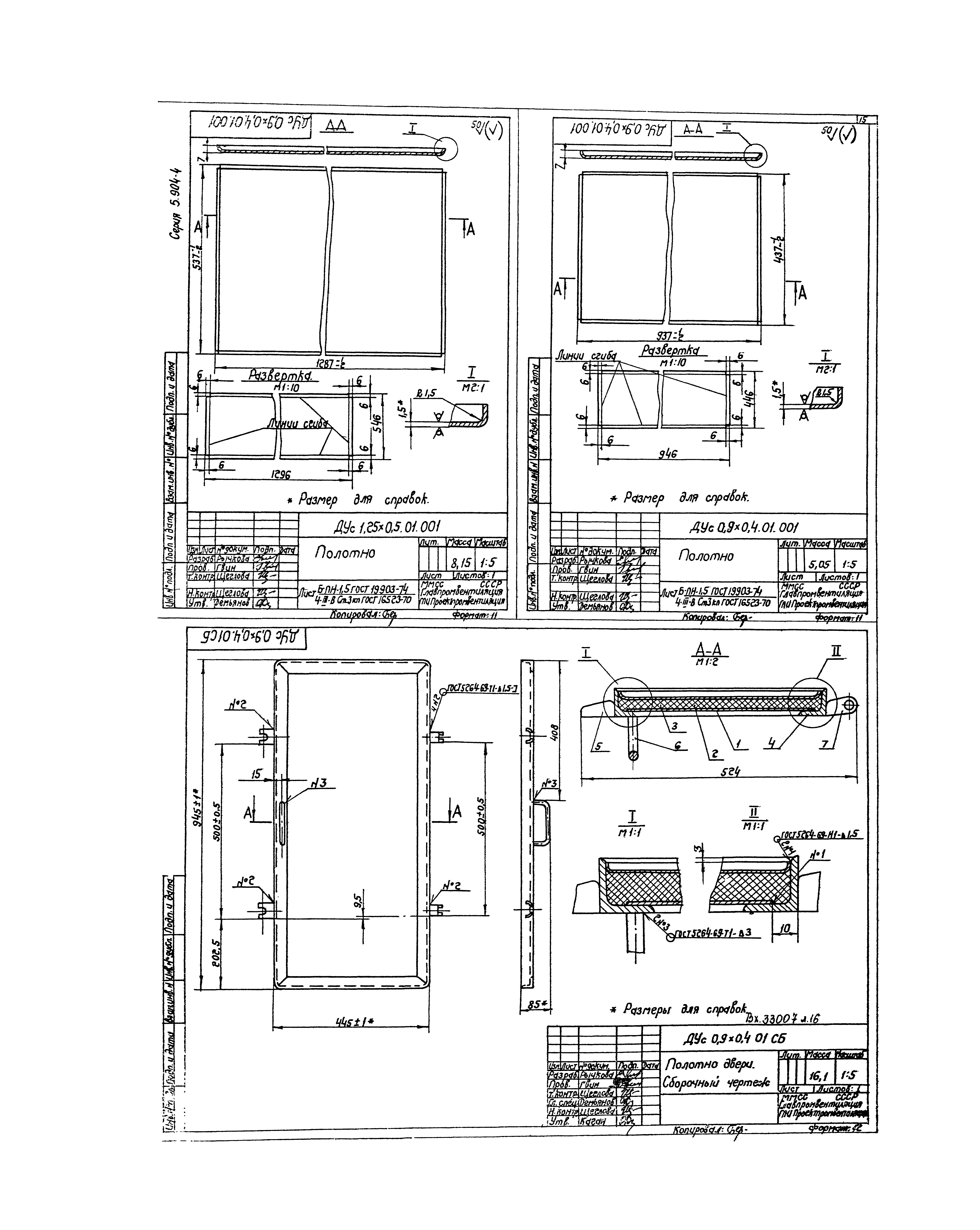
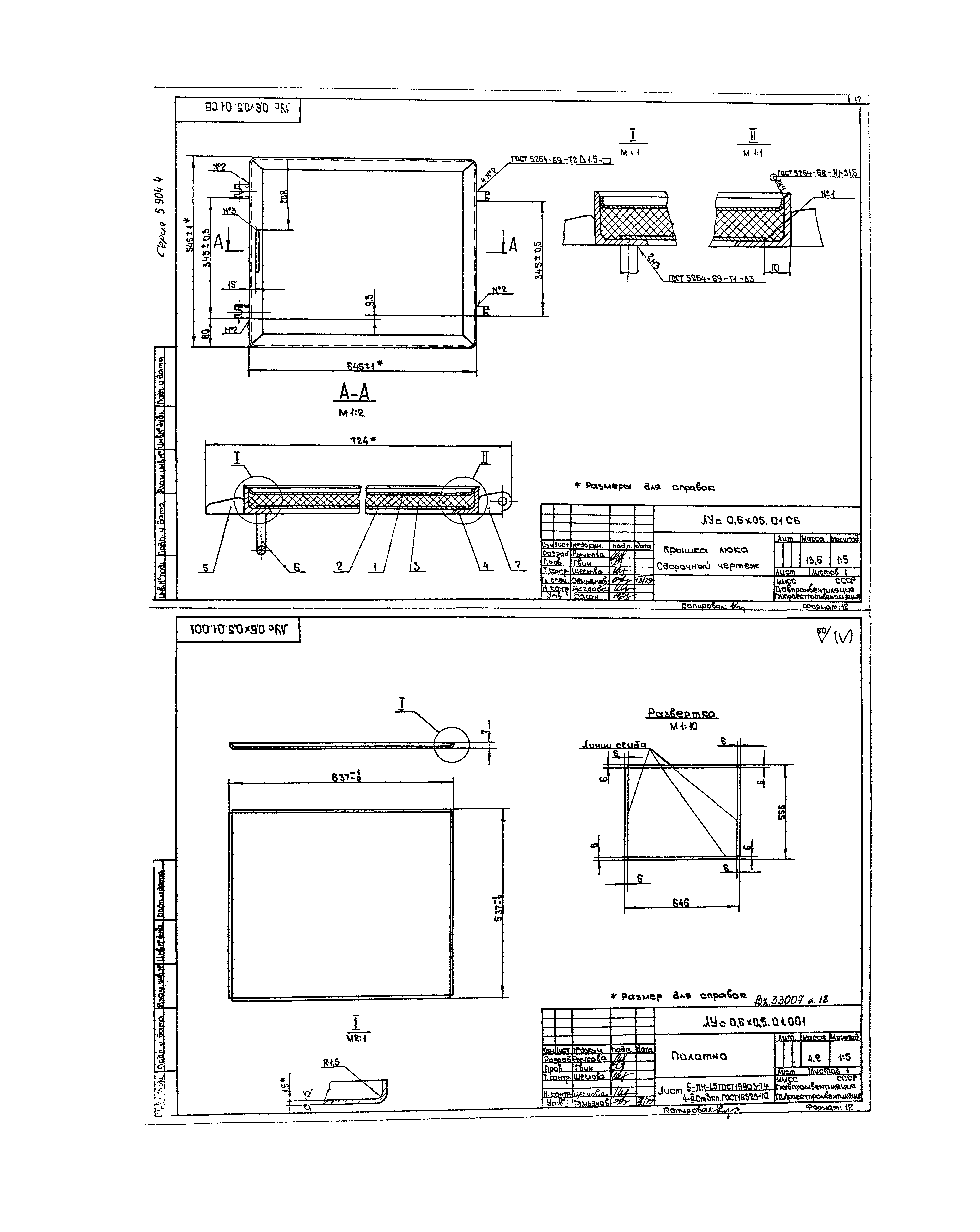
| Оглавление: | Титульный лист Содержание А.00.000Д Технические требования Дс1,25х0,5 Дверь неутепленная. Спецификация Дс1,25х0,5СБ Дверь неутепленная. Сборочный чертеж Дс1,25х0,5.01 Рама. Спецификация Дс1,25х0,5.01СБ Рама. Сборочный чертеж Дс1,25х0,5.001 Связь. Деталь Дс1,25х0,5.002 Швеллер. Деталь Дс1,25х0,5.003 Петля. Деталь Дс1,25х0,5.004 Петля. Деталь Дс1,25х0,5.02 Полотно двери. Спецификация Дс1,25х0,5.02.001 Прижим. Деталь Дс1,25х0,5.02СБ Полотно двери. Сборочный чертеж Дс1,25х0,5.02.002 Ручка. Деталь Дс1,25х0,5.02.003 Рама. Деталь Дс1,25х0,5.02.004 Петля. Деталь Дс1,25х0,5.02.03 Ручка. Спецификация Дс0,9х0,4 Дверь неутепленная. Спецификация Дс0,9х0,4.01 Рама. Спецификация Дс0,9х0,4СБ Дверь неутепленная. Сборочный чертеж Дс0,9х0,4.01СБ Рама. Сборочный чертеж Дс0,9х0,4.02 Полотно двери. Спецификация Дс0,9х0,4.02.001 Рама. Деталь Дс0,9х0,4.02СБ Полотно двери. Сборочный чертеж Лс0,6х0,5 Люк неутепленный. Спецификация Лс0,6х0,5СБ Люк неутепленный. Сборочный чертеж Лс0,6х0,5.01 Рама. Спецификация Лс0,6х0,5.01СБ Рама. Сборочный чертеж Лс0,6х0,5.02 Крышка люка. Спецификация Лс0,6х0,5.02.001 Рама. Деталь Лс0,6х0,5.02СБ Крышка люка. Сборочный чертеж Лс1,25х0,5 Дверь утепленная. Спецификация ДУс1,25х0,5.01 Полотно двери. Спецификация ДУс1,25х0,5СБ Дверь утепленная. Сборочный чертеж ДУс1,25х0,5.01СБ Полотно двери. Сборочный чертеж ДУс0,9х0,4 Дверь утепленная. Спецификация ДУс0,9х0,4.01 Полотно двери. Спецификация ДУс0,9х0,4СБ Дверь утепленная. Сборочный чертеж ДУс1,25х0,5.01.001 Полотно. Деталь ДУс0,9х0,4.01.001Полотно. Деталь ДУс0,9х0,4.01СБ Полотно двери. Сборочный чертеж ЛУс0,6х0,5 Люк утепленный. Спецификация ЛУс0,6х0,5СБ Люк утепленный. Сборочный чертеж ЛУс0,6х0,5.01 Крышка люка. Спецификация ЛУс0,6х0,5.01СБ Крышка люка. Сборочный чертеж ЛУс0,6х0,5.01.001 Полотно. Деталь Дш1,25х0,5 Дверь. Спецификация Дш1,25х0,5СБ Дверь. Сборочный чертеж Дш1,25х0,5.01 Рама. Спецификация Дш1,25х0,5.01СБ Рама. Сборочный чертеж Дш1,25х0,5.01.001 Профиль. Деталь Дш1,25х0,5.01.002 Профиль. Деталь Дш1,25х0,5.01.003 Петля. Деталь Дш1,25х0,5.02 Полотно двери. Спецификация Дш1,25х0,5.02СБ Полотно двери. Сборочный чертеж Дш1,25х0,5.02.001 Корпус. Деталь Дш1,25х0,5.02.002 Прижим. Деталь Дш1,25х0,5.02.003 Петля. Деталь Дш0,9х0,4 Дверь. Спецификация Дш0,9х0,4.01 Рама. Спецификация Дш0,9х0,4СБ Дверь. Сборочный чертеж Дш0,9х0,4.01СБ Рама. Сборочный чертеж Дш0,9х0,4.02 Полотно двери. Спецификация Дш0,9х0,4.02СБ Полотно двери. Сборочный чертеж Дш1,25х0,5.01.004 Уголок подкладной. Деталь Дш0,9х0,4.02.001 Корпус. Деталь |
| Разработан: | ГПИ Проектпромвентиляция |
| Утверждён: | 09.07.1980 Главпромстройпроект Госстроя СССР (36) |
| Заменяет собой: |

























