Скачать Серия 4.904-62 Двери и люки для вентиляционных камер. Рабочие чертежиДата актуализации: 01.01.2021
|
| Обозначение: | Серия 4.904-62 |
| Обозначение англ: | Series 4.904-62 |
| Статус: | действует |
| Название рус.: | Двери и люки для вентиляционных камер. Рабочие чертежи |
| Дата добавления в базу: | 01.09.2013 |
| Дата актуализации: | 01.01.2021 |
| Дата введения: | 01.08.1971 |
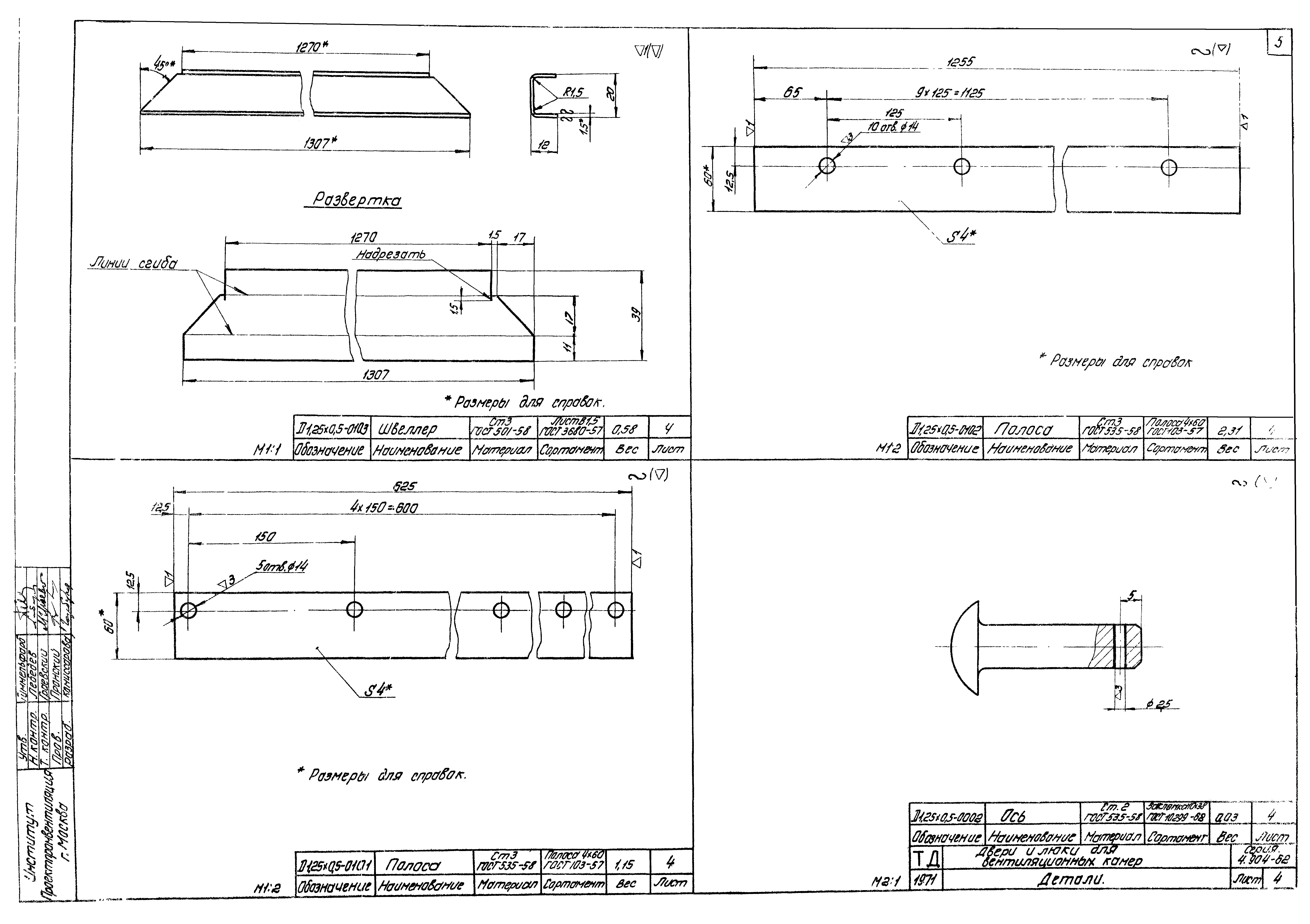
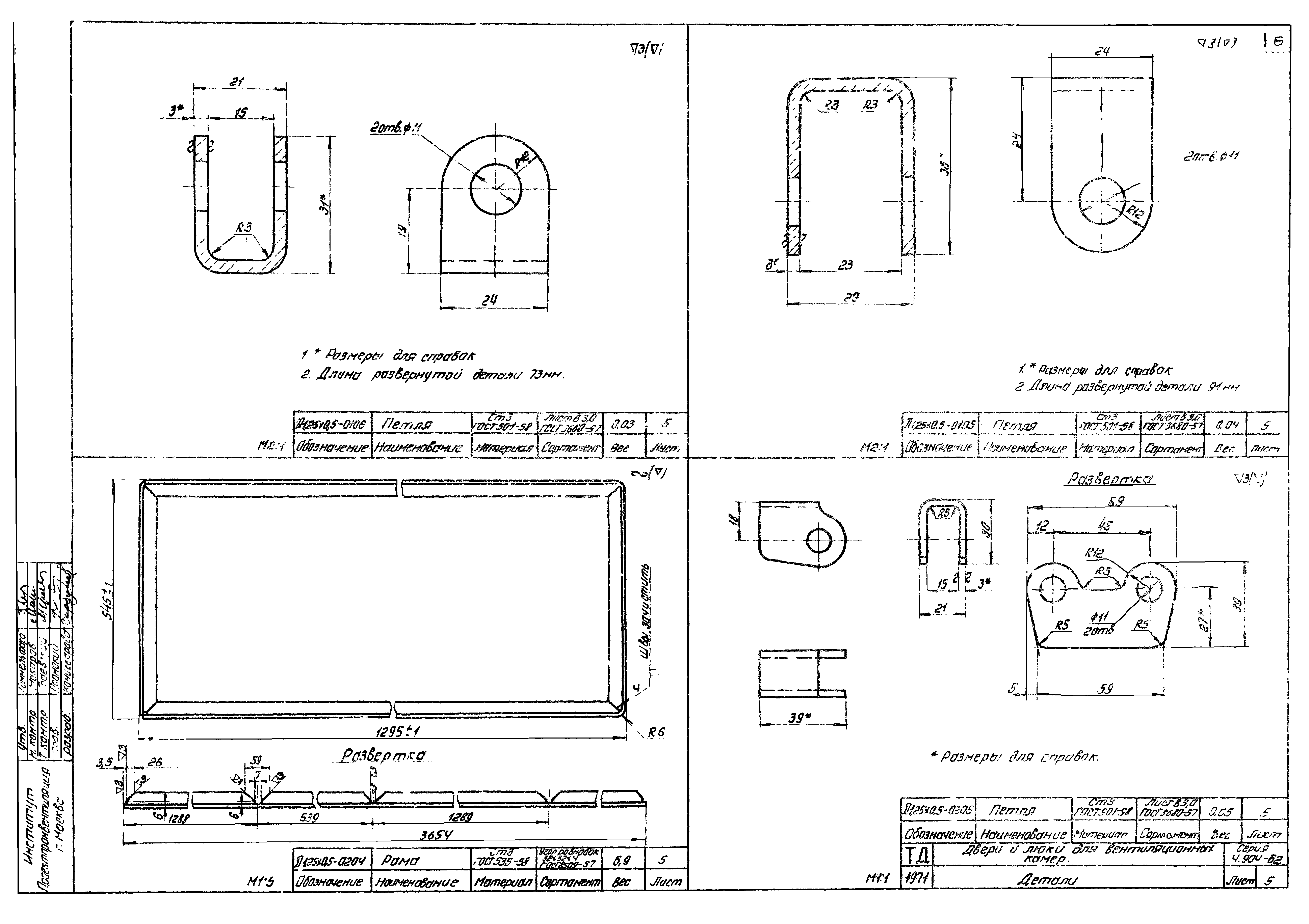
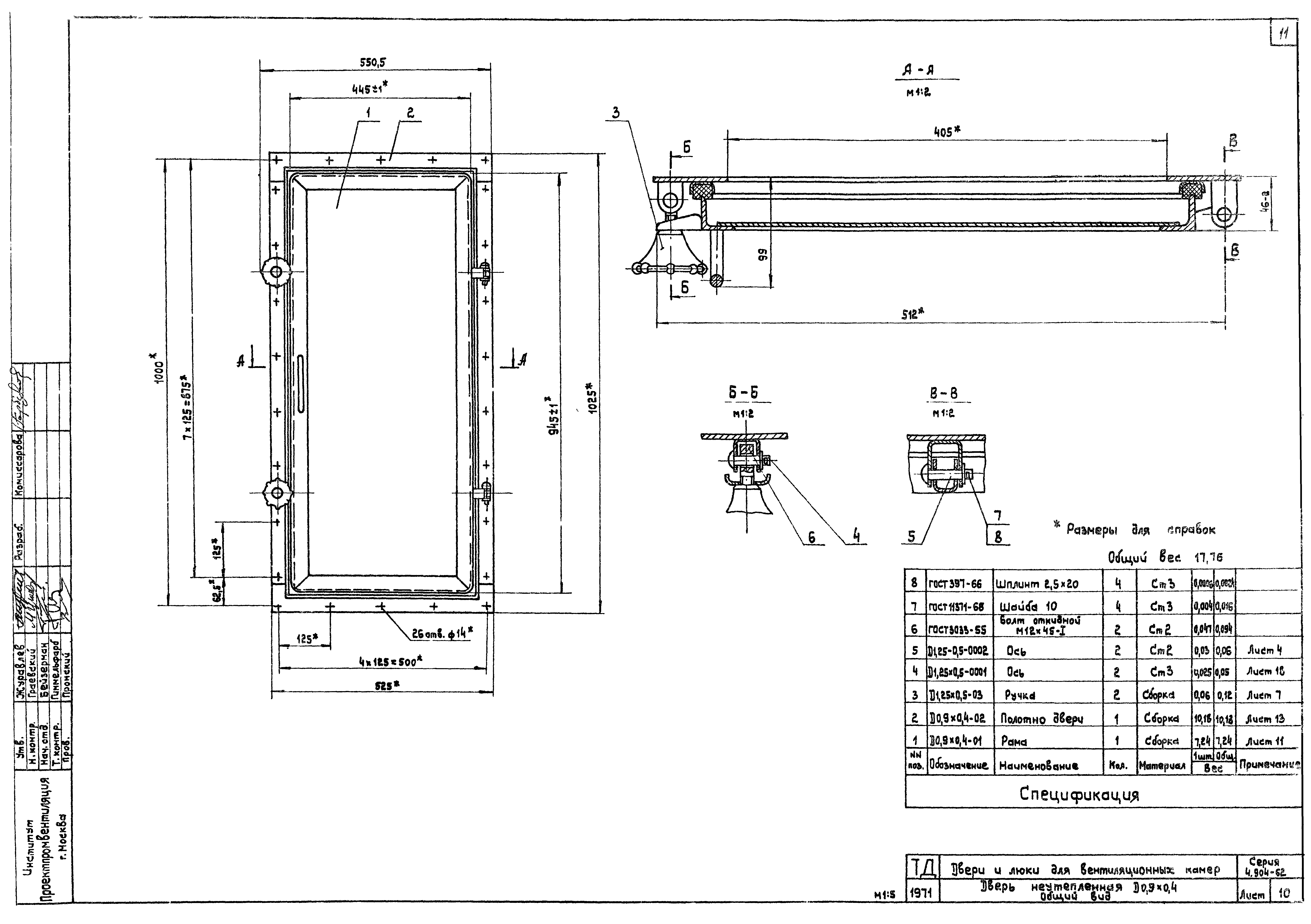
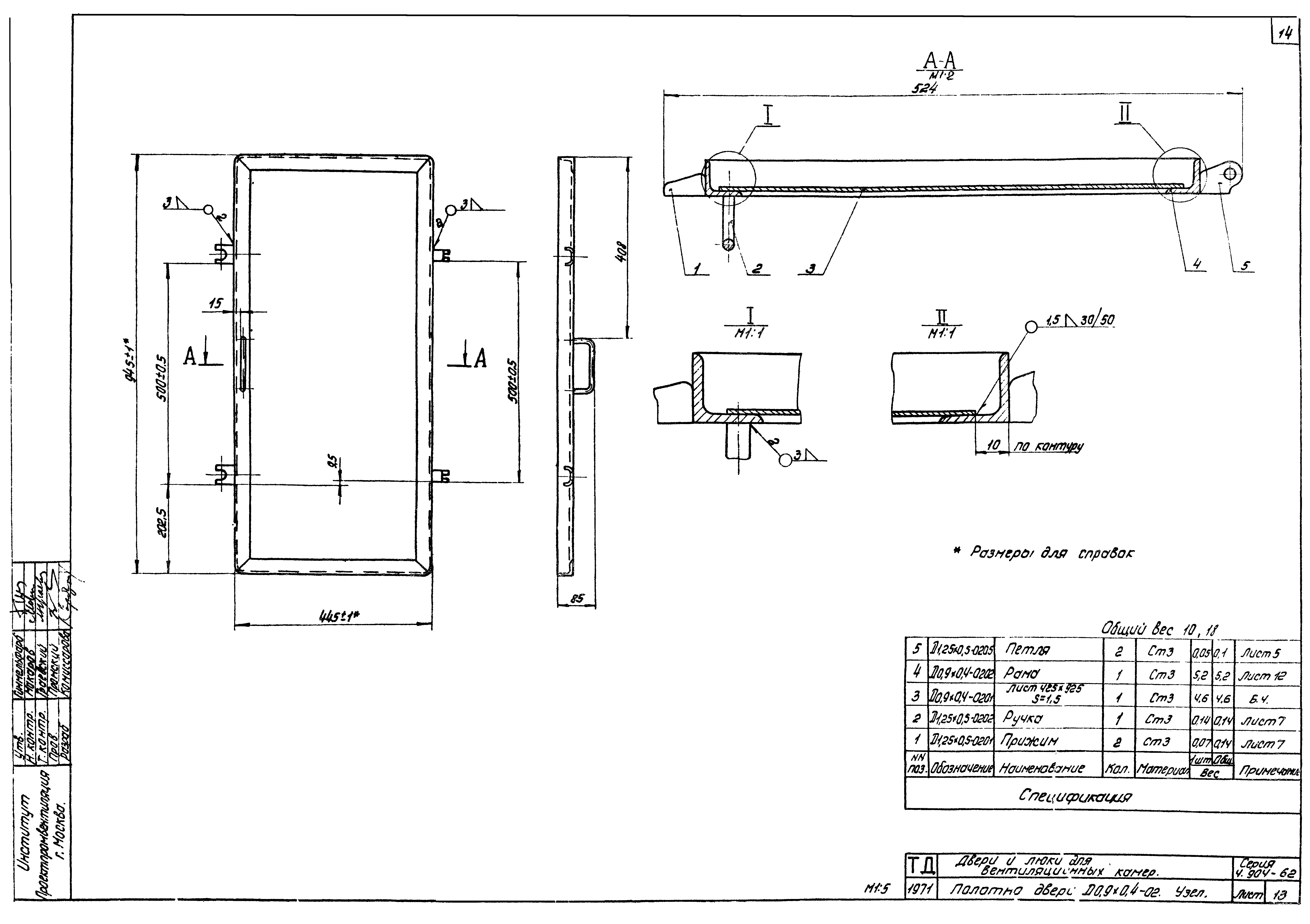
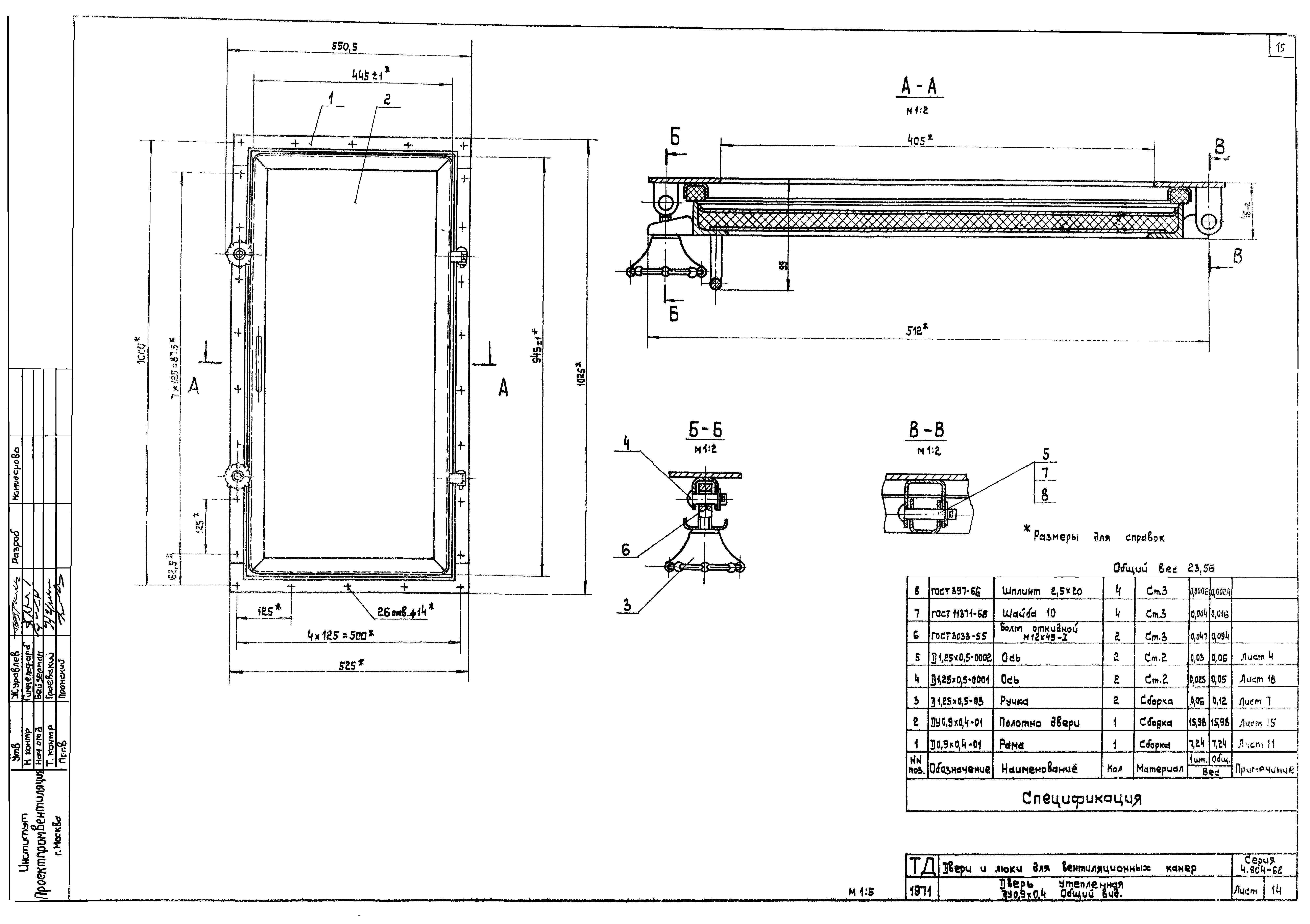
| Оглавление: | Титульный лист Содержание альбома. Пояснительная записка Дверь неутепленная Д1,25х0,5. Общий вид Рама Д1,25х0,5-01. Узел Детали Полотно двери Д1,25х0,5-02. Узел Ручка Д1,25х0,5-03. Узел. Детали Дверь утепленная Д1,25х0,5. Общий вид Полотно двери Д1,25х0,5-01. Узел Дверь неутепленная Д0,9х0,4. Общий вид Рама Д0,9х0,4-01. Узел. Детали Детали Полотно двери Д0,9х0,4-02. Узел Полотно двери ДУ0,9х0,4. Общий вид Полотно двери ДУ0,9х0,4-01. Узел Люк неутепленный Л0,6х0,5. Общий вид Рама Л0,6х0,5-01. Узел. Детали Детали Крышка люка Л0,6х0,5-02. Узел Детали Люк утепленный ЛУ0,6х0,5. Общий вид Крышка люка ЛУ0,6х0,5-02. Узел |
| Утверждён: | 01.08.1971 Госстрой СССР (Государственный комитет Совета Министров СССР по делам строительства) (USSR Gosstroy ) |
| Заменяет собой: |
|























