Скачать Серия 3.503.1-81 Выпуск 1-2. Пролетные строения из цельноперевозимых балок с натяжением на упоры для мостов и путепроводов, расположенных на автомобильных дорогах общего пользования. Участки монолитные. Рабочие чертежиДата актуализации: 01.01.2021
|
| Обозначение: | Серия 3.503.1-81 |
| Обозначение англ: | Series 3.503.1-81 |
| Статус: | действует |
| Название рус.: | Выпуск 1-2. Пролетные строения из цельноперевозимых балок с натяжением на упоры для мостов и путепроводов, расположенных на автомобильных дорогах общего пользования. Участки монолитные. Рабочие чертежи |
| Дата добавления в базу: | 01.09.2013 |
| Дата актуализации: | 01.01.2021 |
| Дата введения: | 01.11.1988 |
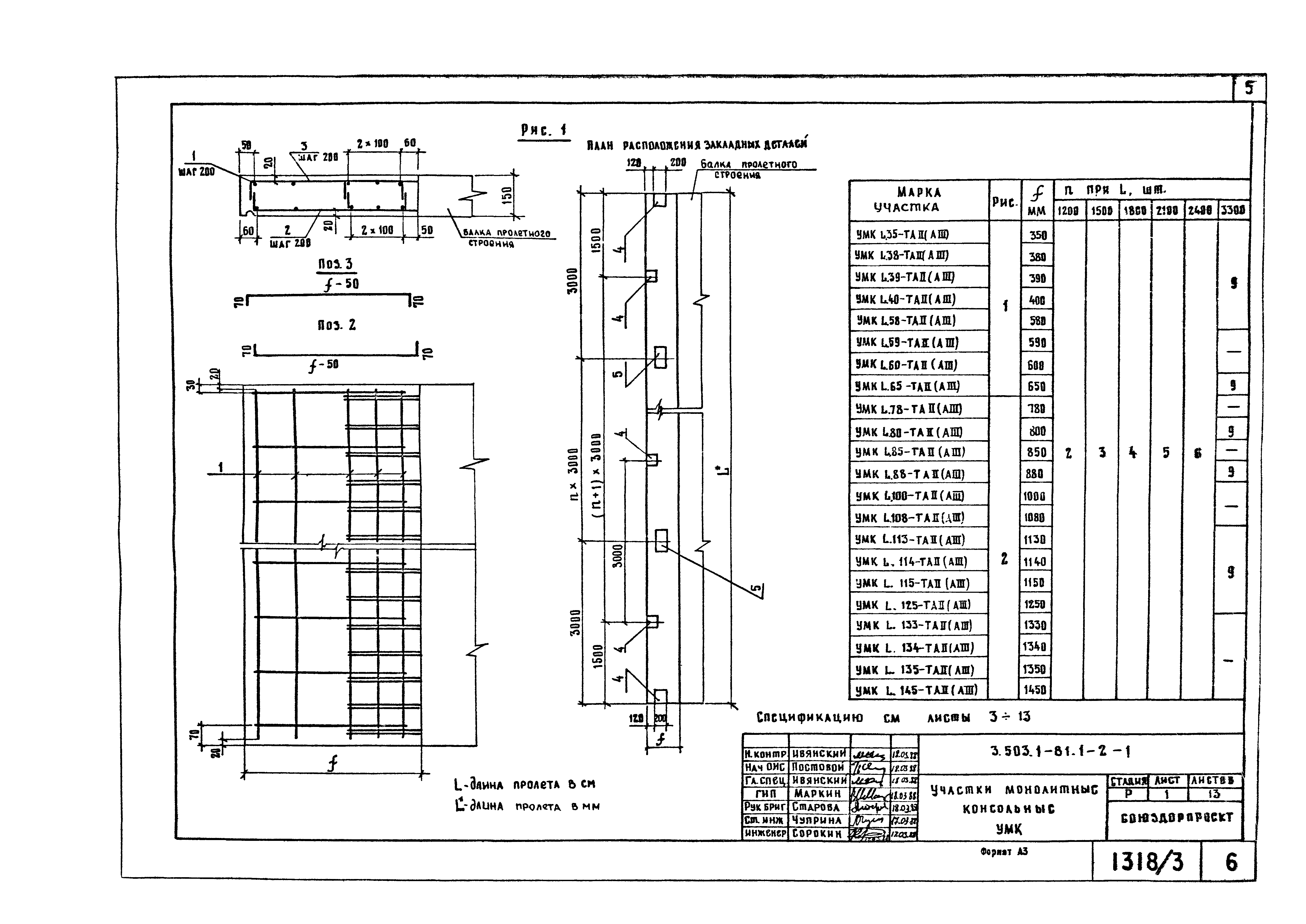
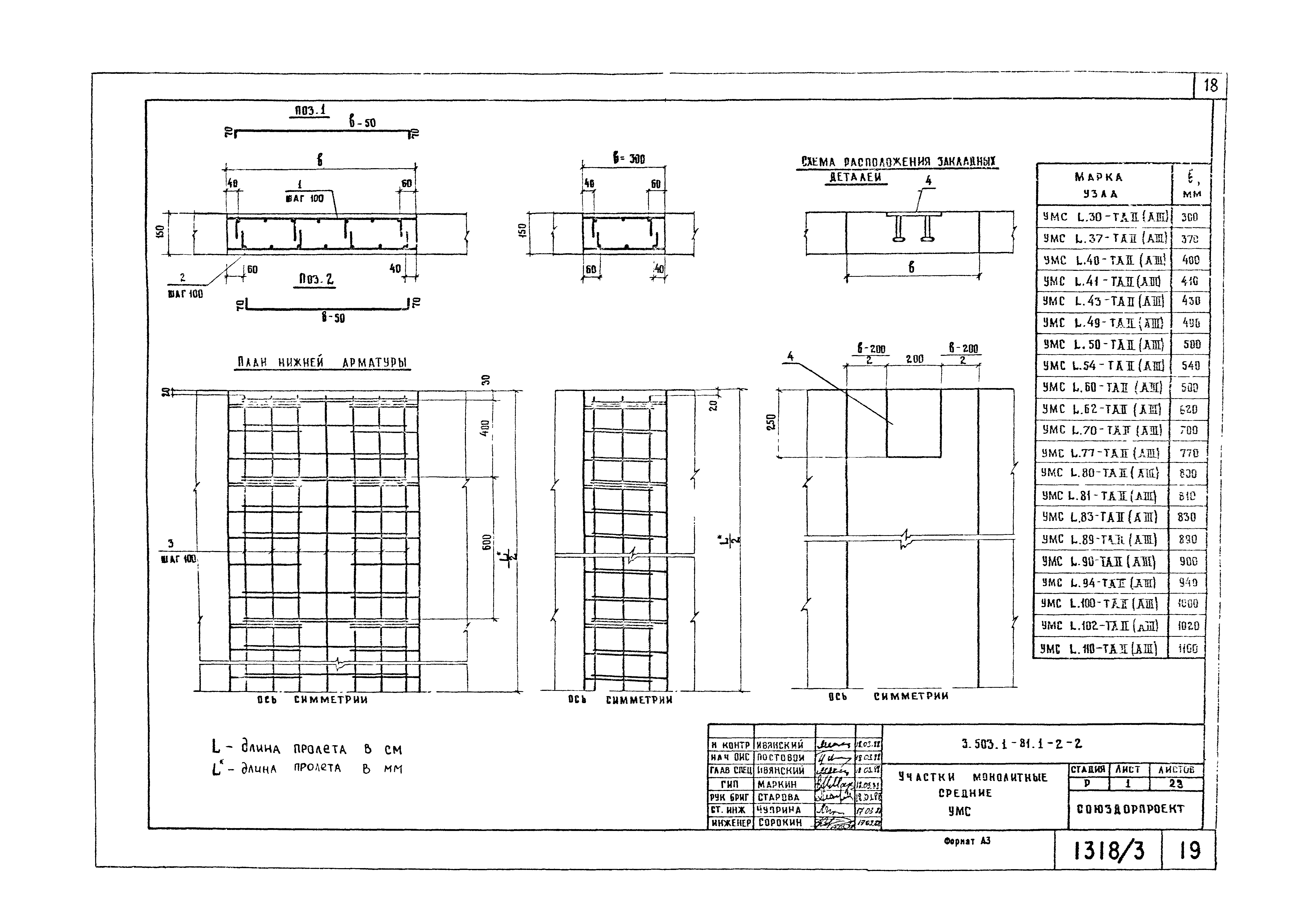
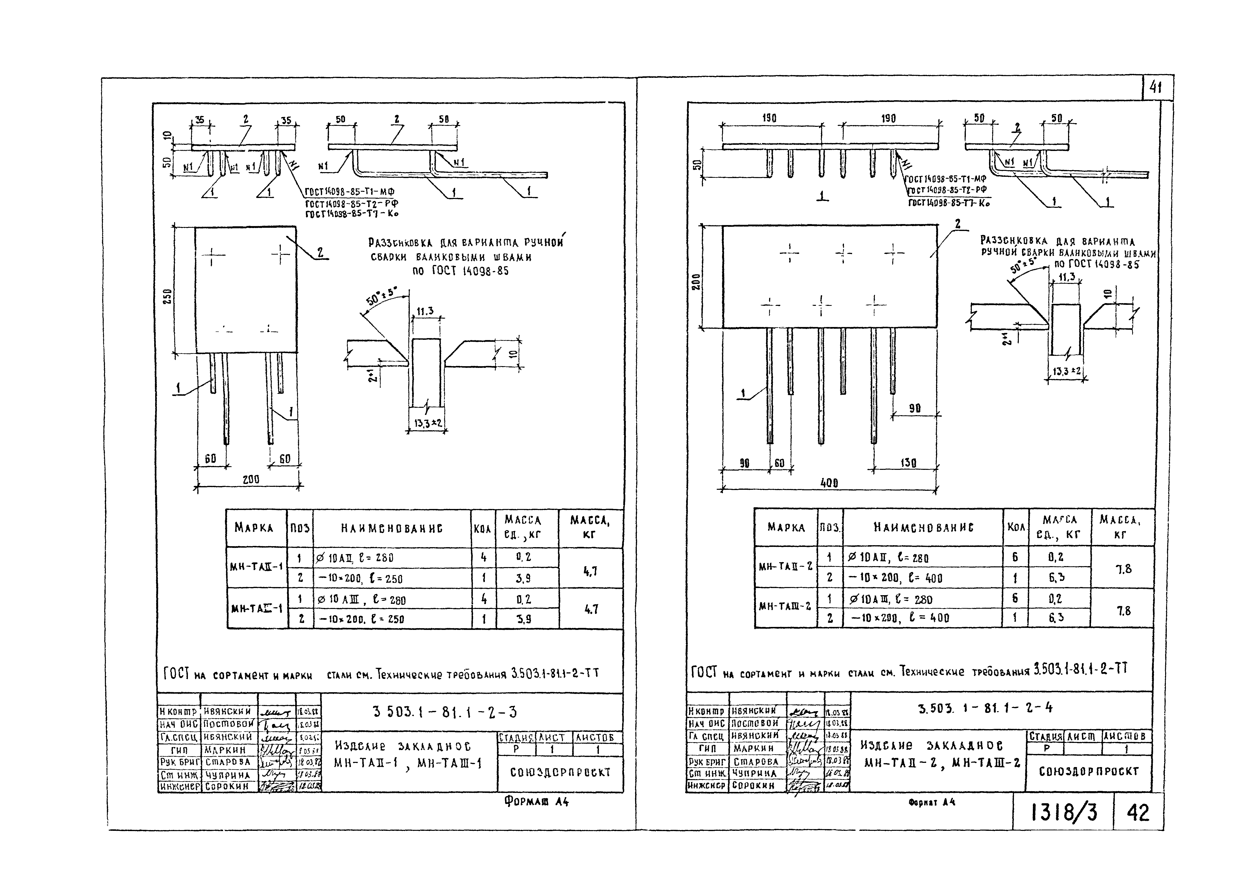
| Оглавление: | 3.503.1-81.1-2-ТТ Технические требования 3.503.1-81.1-2-1 Участки монолитные консольные 3.503.1-81.1-2-2 Участки монолитные средние 3.503.1-81.1-2-3 Изделие закладное МН-Таll-1, МН-Таlll-1 3.503.1-81.1-2-4 Изделие закладное МН-Таll-2, МН-Таlll-2 3.503.1-81.1-2-5 Изделие закладное МН-Таll-3, МН-Таlll-3 3.503.1-81.1-2-6 Изделие закладное МН-Таll-4, МН-Таlll-4 3.503.1-81.1-2-7РС Ведомость расхода стали на участки монолитные консольные 3.503.1-81.1-2-8РС Ведомость расхода стали на участки монолитные средние |
| Разработан: | Союздорпроект Минтрансстроя |
| Утверждён: | 11.05.1988 Минтрансстрой СССР (USSR Mintransstroy АВ-311) |
| Заменяет собой: |



















































