Скачать Серия 3.503-12 Выпуск 15. Проезжая часть, тротуары, водопроводные устройства, перила и ограждения мостов и путепроводов на автомобильных дорогахДата актуализации: 01.01.2021
|
| Обозначение: | Серия 3.503-12 |
| Обозначение англ: | Series 3.503-12 |
| Статус: | заменен |
| Название рус.: | Выпуск 15. Проезжая часть, тротуары, водопроводные устройства, перила и ограждения мостов и путепроводов на автомобильных дорогах |
| Дата добавления в базу: | 01.09.2013 |
| Дата актуализации: | 01.01.2021 |
| Дата введения: | 25.01.1974 |
| Дата окончания срока действия: | 01.10.1988 |
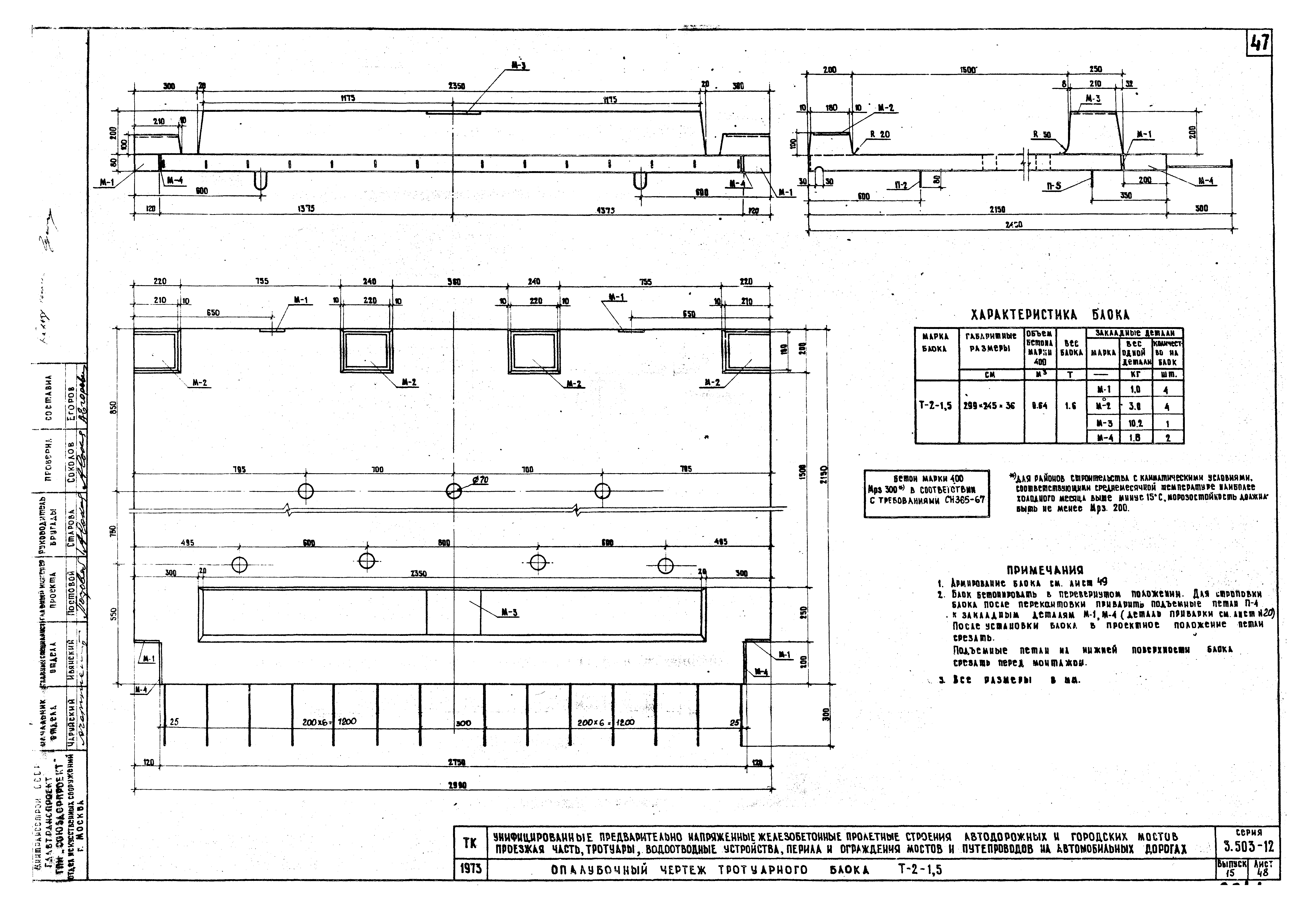
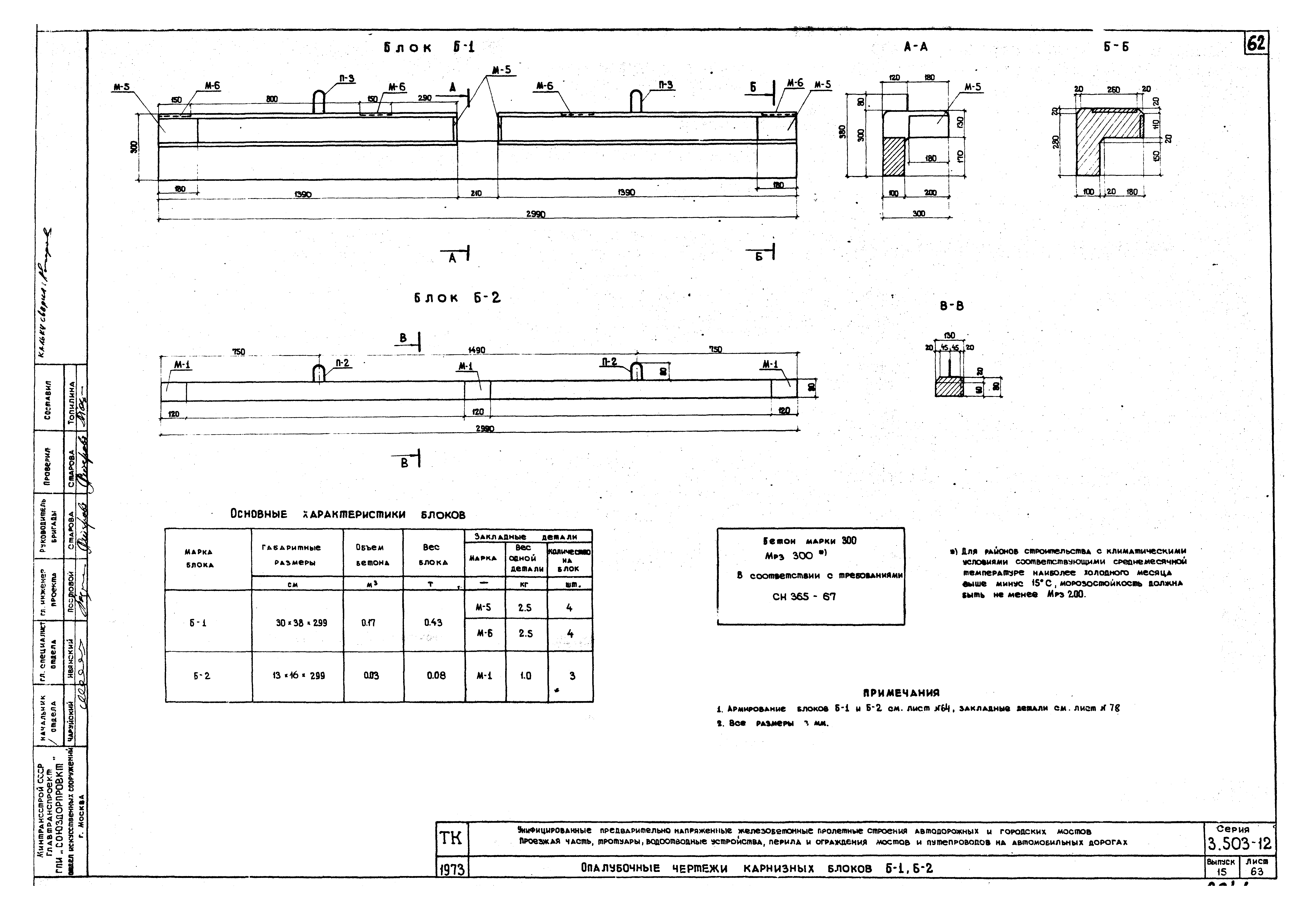
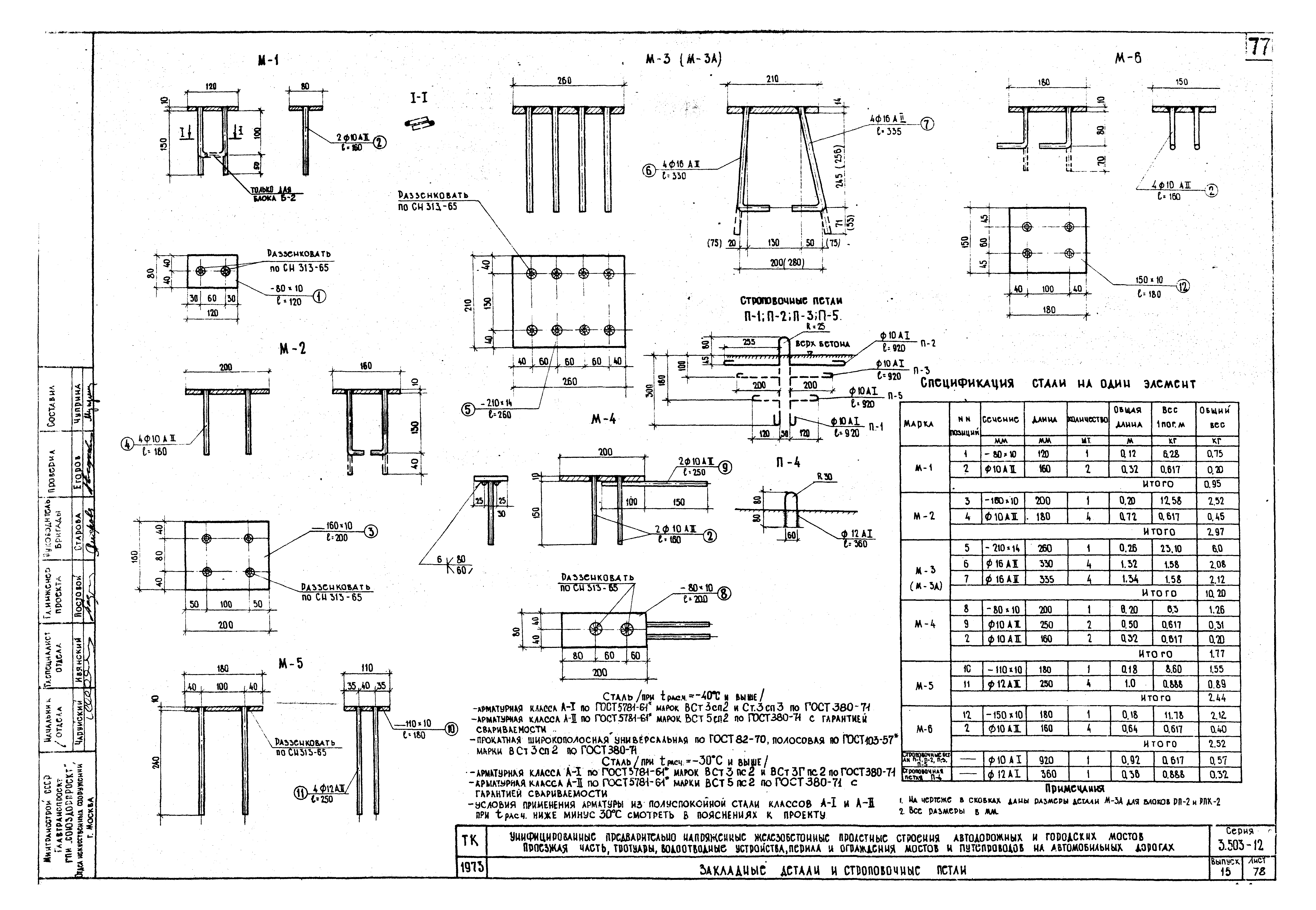
| Оглавление: | Пояснения Мостовое полотно с железобетонным барьерным ограждением Поперечные разрезы ребристых пролетных строений Поперечные разрезы плитных пролетных строений Схемы расположения монтажных блоков для ребристых пролетных строений Схемы расположения монтажных блоков для плитных пролетных строений Перильный барьер Мостовое полотно с металлическим барьерным ограждением на накладных блоках Поперечные разрезы ребристых пролетных строений Поперечные разрезы плитных пролетных строений Схемы расположения монтажных блоков для ребристых пролетных строений Схемы расположения монтажных блоков для плитных пролетных строений Металлическое барьерное ограждение Мостовое полотно с металлическим барьерным ограждением Поперечные разрезы ребристых пролетных строений Схемы расположения монтажных блоков для ребристых пролетных строений Металлическое барьерное ограждение Конструкция одежды мостового полотна с цементобетонным покрытием Конструкция одежды мостового полотна с асфальтобетонным покрытием Детали крепления тротуарных блоков, ограждений и прочее Элементы ограждений Сопряжение тротуарных блоков Вариант отвода воды через трубки Схемы размещения водоотводных трубок поперек моста Водоотводные устройства Сборные железобетонные блоки Арматурные сетки Арматурные каркасы Закладные детали, отдельные стержни, петли Блок перильного ограждения |
| Разработан: | ГПИ Союздорпроект |
| Утверждён: | 15.01.1974 Минтрансстрой СССР (USSR Mintransstroy П-94) |
| Чем заменён: |
















































































