Скачать Серия 3.503.1-81 Выпуск 5-6. Балки пролетного строения длиной 33 м цельноперевозимые с натяжением на упоры. Рабочие чертежиДата актуализации: 01.01.2021
|
| Обозначение: | Серия 3.503.1-81 |
| Обозначение англ: | Series 3.503.1-81 |
| Статус: | не определен законодательством |
| Название рус.: | Выпуск 5-6. Балки пролетного строения длиной 33 м цельноперевозимые с натяжением на упоры. Рабочие чертежи |
| Дата добавления в базу: | 01.09.2013 |
| Дата актуализации: | 01.01.2021 |
| Дата введения: | 01.11.1988 |
| Дата окончания срока действия: | 30.06.2003 |
| Область применения: | Действуют кроме указаний в части изготовления балок для разрезных пролетных строений. |
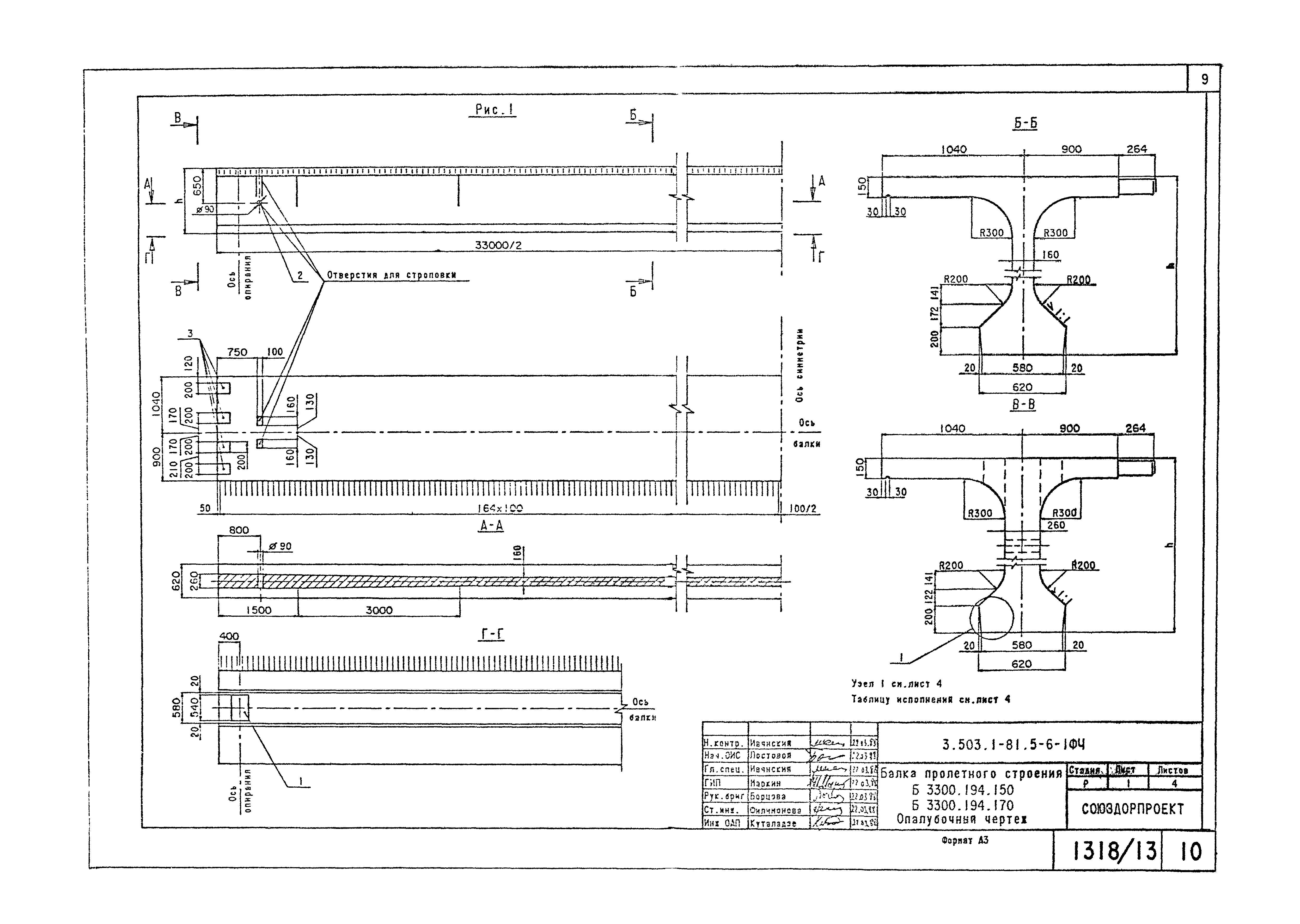
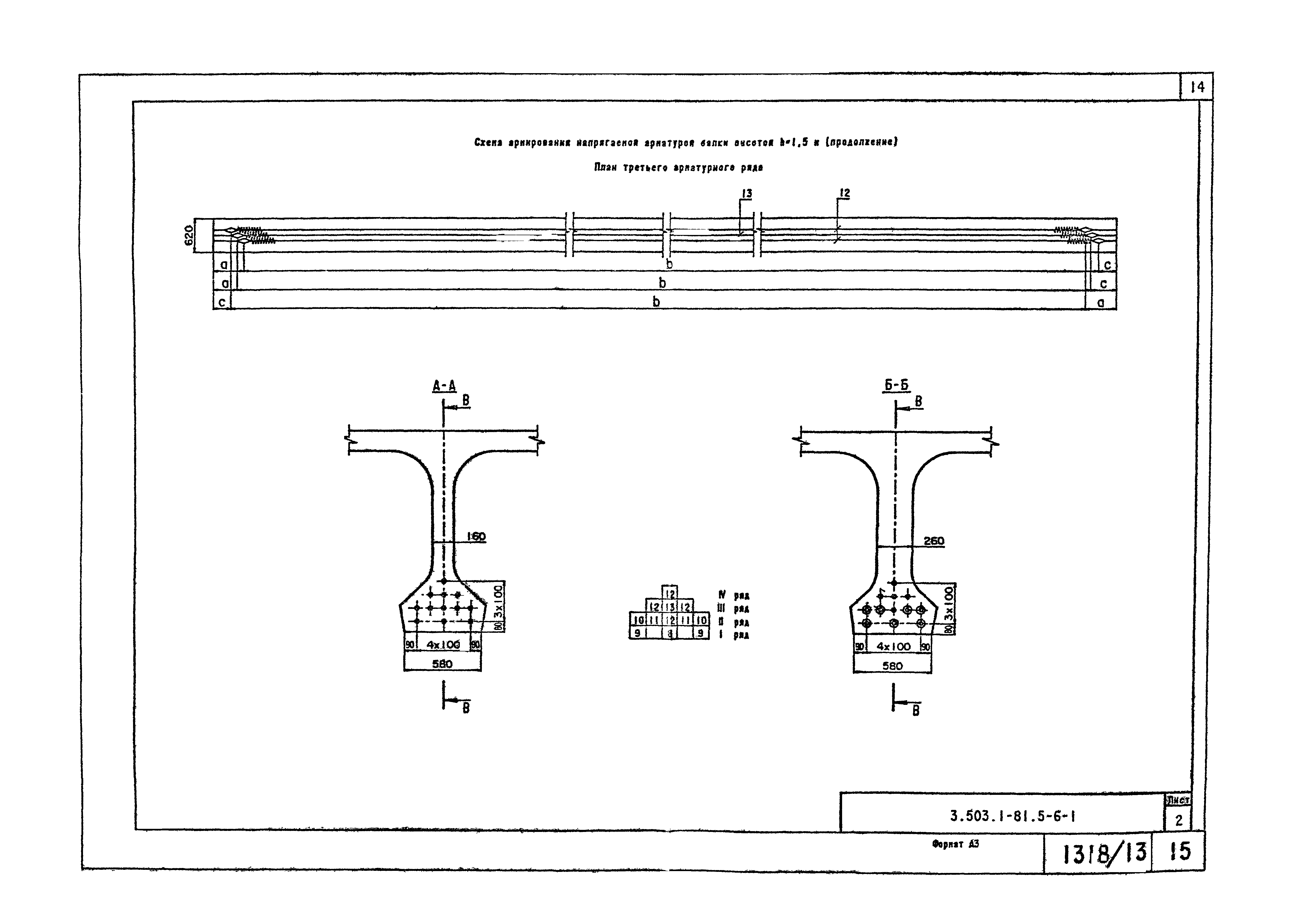
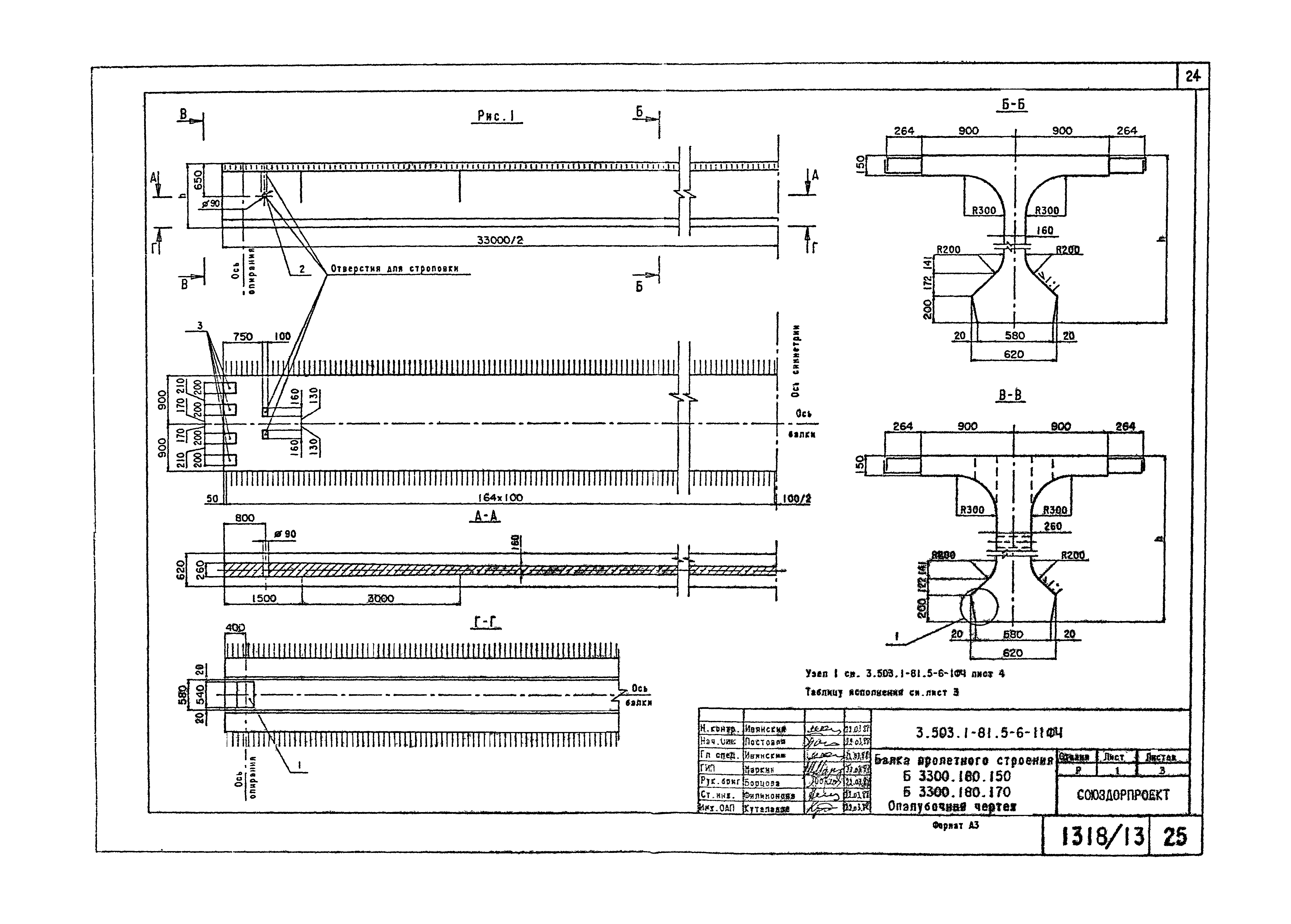
| Оглавление: | 3.503.1-81.5-6-ТТ Технические требования 3.503.1-81.5-6-1ФЧ Балка пролетного строения Б 3300.194.150, Б 3300.194.170. Опалубочный чертеж 3.503.1-81.5-6-1 Балка пролетного строения Б 3300.194.150, Б 3300.194.170 3.503.1-81.5-6-2 Изделие закладное балки Б 3300.194.150, Б 3300.194.170 3.503.1-81.5-6-3 Напрягаемая арматура. Б 3300.180.150, Б 3300.194.150. Пучки из стали класса В-ll 3.503.1-81.5-6-4 Напрягаемая арматура. Б 3300.180.170, Б 3300.194.170. Пучки из стали класса В-ll 3.503.1-81.5-6-5 Плита балки Б 3300.174.150, Б 3300.194.170. Ненапрягаемая арматура класса А-lll 3.503.1-81.5-6-6 Плита балки Б 3300.174.150, Б 3300.194.170. Ненапрягаемая арматура класса А-ll 3.503.1-81.5-6-7 Ребро балки Б 3300.180.150, Б 3300.194.150 Ненапрягаемая арматура класса А-lll 3.503.1-81.5-6-8 Ребро балки Б 3300.180.150, Б 3300.194.150 Ненапрягаемая арматура класса А-ll 3.503.1-81.5-6-9 Ребро балки. Б 3300.180.170, Б 3300.194.170. Ненапрягаемая арматура класса А-lll 3.503.1-81.5-6-10 Ребро балки. Б 3300.180.170, Б 3300.194.170. Ненапрягаемая арматура класса А-ll 3.503.1-81.5-6-11ФЧ Балка пролетного строения Б 3300.180.150, Б 3300.180.170. Опалубочный чертеж 3.503.1-81.5-6-11 Балка пролетного строения Б 3300.180.150, Б 3300.180.170 3.503.1-81.5-6-12Изделие закладное балки Б 3300.180.150, Б 3300.180.170 3.503.1-81.5-6-13 Плита балки Б 3300.180.150, Б 3300.180.170. Ненапрягаемая арматура класса А-lll 3.503.1-81.5-6-14 Плита балки Б 3300.180.150, Б 3300.180.170. Ненапрягаемая арматура класса А-ll 3.503.1-81.5-6-15РС Ведомость расхода стали. Армирование пучками из стали класса В-ll и ненапрягаемой арматурой класса А-lll 3.503.1-81.5-6-16РС Ведомость расхода стали. Армирование пучками из стали класса В-ll и ненапрягаемой арматурой класса А-ll |
| Разработан: | Союздорпроект Минтрансстроя |
| Утверждён: | 11.05.1988 Минтрансстрой СССР (USSR Mintransstroy АВ-311) |
| Заменяет собой: |






























