Скачать Серия 5.904-51 Выпуск 1. Рабочие чертежиДата актуализации: 01.01.2021
|
| Обозначение: | Серия 5.904-51 |
| Обозначение англ: | Series 5.904-51 |
| Статус: | не определен законодательством |
| Название рус.: | Выпуск 1. Рабочие чертежи |
| Дата добавления в базу: | 01.09.2013 |
| Дата актуализации: | 01.01.2021 |
| Дата введения: | 01.09.1989 |
| Дата окончания срока действия: | 30.06.2003 |
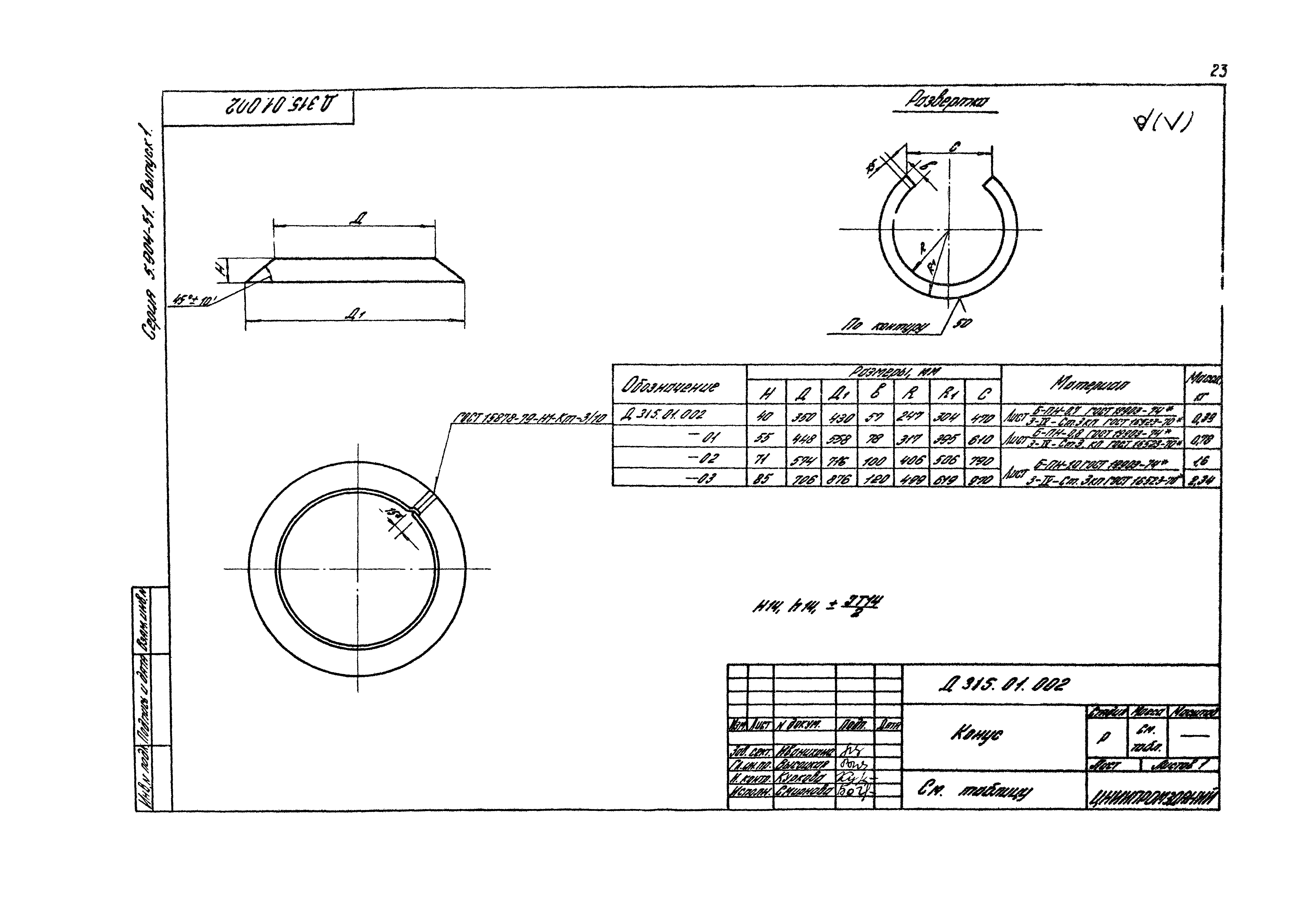
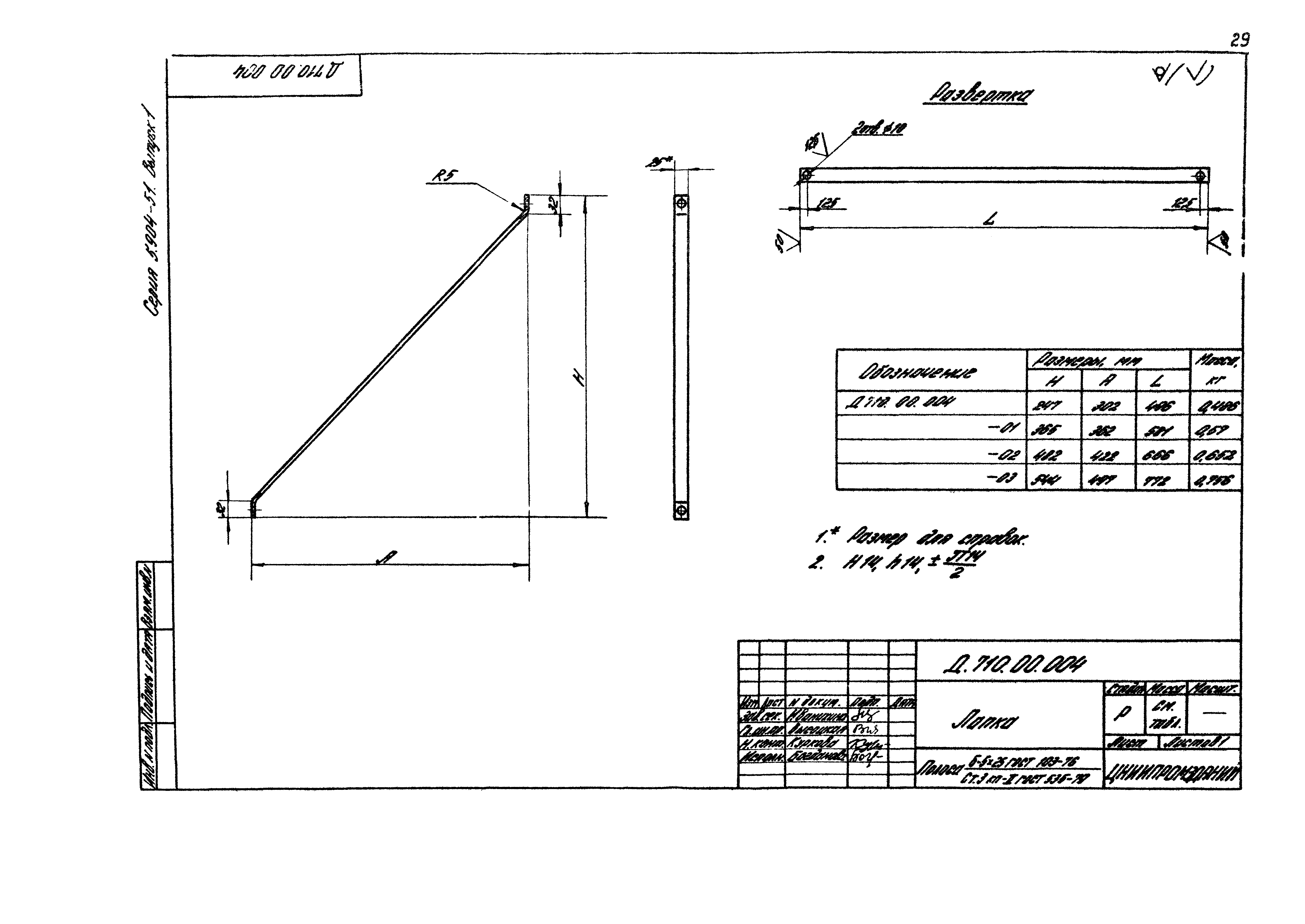
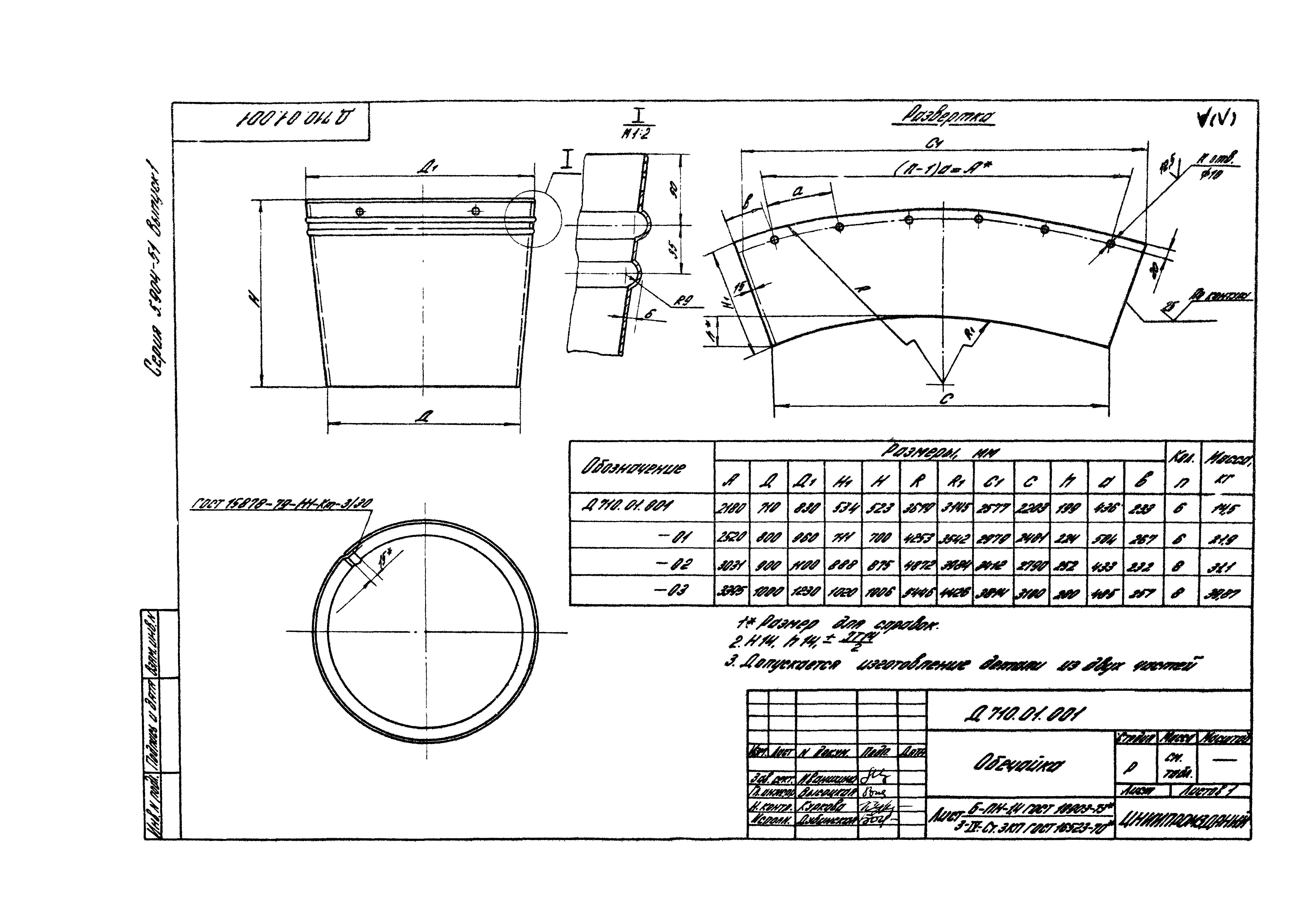
| Оглавление: | Рекомендации по применению 3К.00.000 Зонт круглый. Спецификация. Листы 1,2 3К.00.000 Зонт круглый. Спецификация. Листы 3,4 3К.00.000СБ Зонт круглый. Сборочный чертеж. Лист 1 3К.00.00СБ Зонт круглый. Сборочный чертеж. Лист 2 3К.00.001 Колпак 3К.00.002 Лапка 3П.00.000 Зонт прямоугольный. Спецификация. Листы 1,2 3П.00.000 Зонт прямоугольный. Спецификация. Лист 3 3П.00.001 Лапка 3П.00.000СБ Зонт прямоугольный. Сборочный чертеж. Лист 1 3П.00.00СБ Зонт прямоугольный. Сборочный чертеж. Лист 2 3П.10.000 Колпак. Спецификация 3П.10.000СБ Колпак. Сборочный чертеж 3П.20.000 Колпак. Спецификация 3П.20.000СБ Колпак. Сборочный чертеж Д315.00.000 Дефлекторы №№3…6. Спецификация. Листы 1,2 Д315.00.000СБ Дефлекторы №№3…6. Сборочный чертеж Д315.00.001 Полуцилиндр Д315.00.002 Зонт Д315.00.003 Лапка Д315.01.000 Диффузор. Спецификация Д710.01.000 Диффузор. Спецификация Д315.01.000СБ Диффузор. Сборочный чертеж Д315.01.001 Обечайка Д315.01.002 Конус Д710.00.000 Дефлектор №№7…10. Спецификация. Листы 1,2 Д710.00.000СБ Дефлектор №№7…10. Сборочный чертеж Д710.00.001 Полуцилиндр Д710.00.002 Зонт Д710.00.003 Лапка Д710.00.004 Лапка Д710.01.000СБ Диффузор. Сборочный чертеж Д710.01.001 Обечайка Д710.01.002 Конус СТД.201.00.000 Фланец |
| Разработан: | ЦНИИпромзданий |
| Утверждён: | 26.01.1988 Госстрой СССР (Государственный комитет Совета Министров СССР по делам строительства) (USSR Gosstroy 5) |
| Издан: | ЦИТП Госстроя СССР (CITP, Gosstroy (USSR) 1989 г. ) |
| Заменяет собой: |


































