Скачать Серия 5.905-10 Выпуск 1. Установка газовых приборов и аппаратов. Альбом 1. Монтажные чертежиДата актуализации: 01.01.2021
|
| Обозначение: | Серия 5.905-10 |
| Обозначение англ: | Series 5.905-10 |
| Статус: | не действует |
| Название рус.: | Выпуск 1. Установка газовых приборов и аппаратов. Альбом 1. Монтажные чертежи |
| Дата добавления в базу: | 01.09.2013 |
| Дата актуализации: | 01.01.2021 |
| Дата введения: | 01.04.1985 |
| Дата окончания срока действия: | 01.03.2007 |
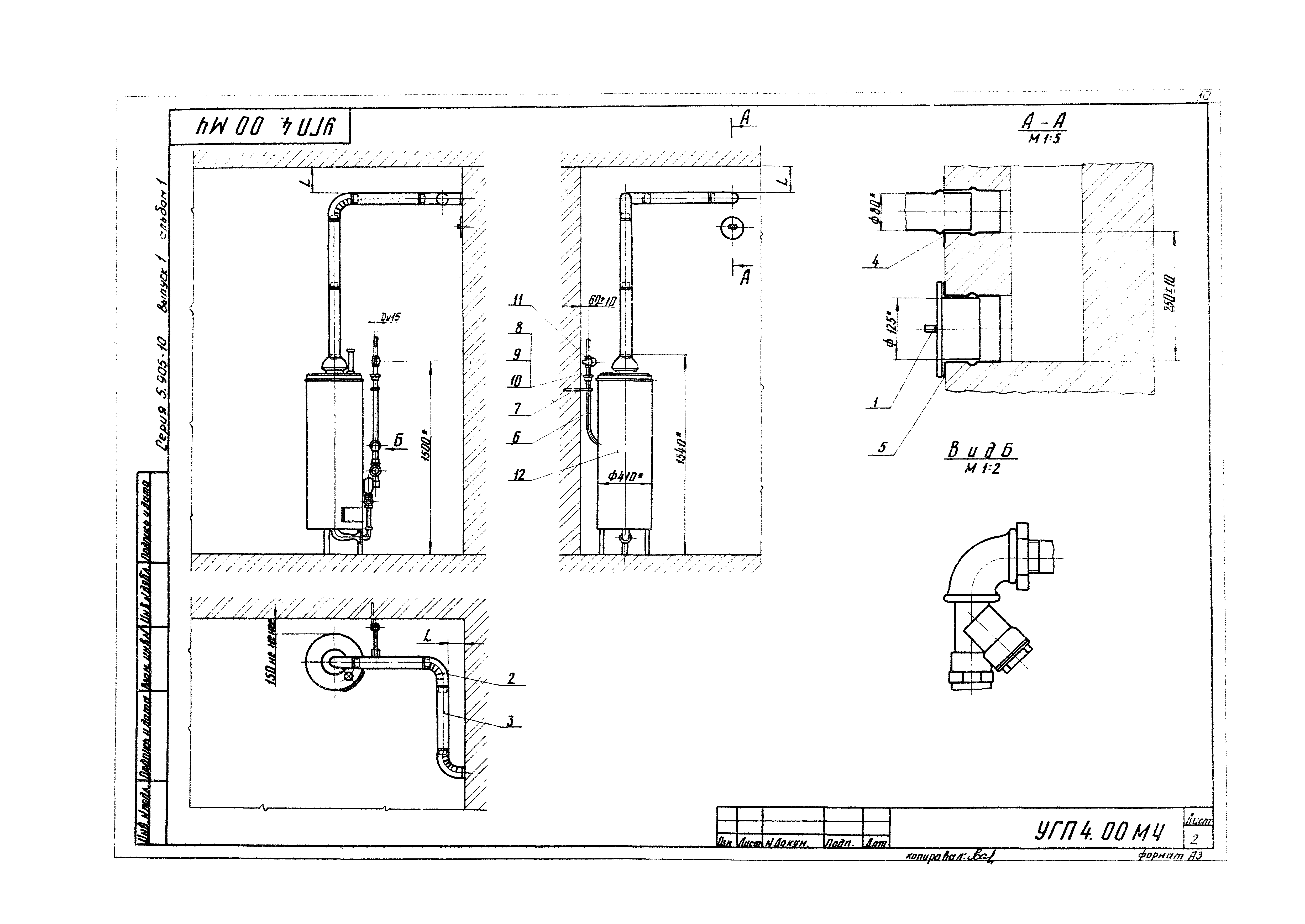
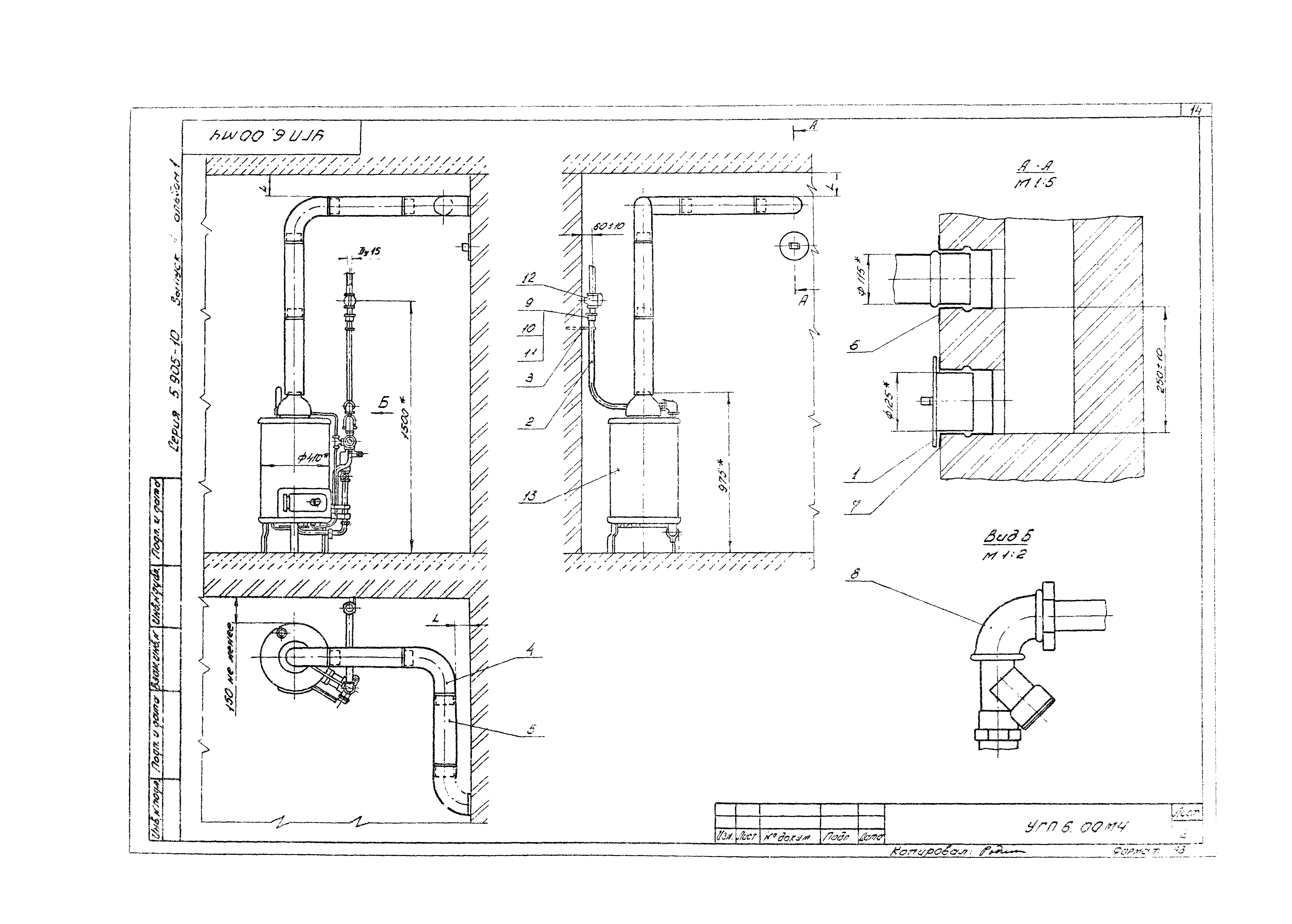
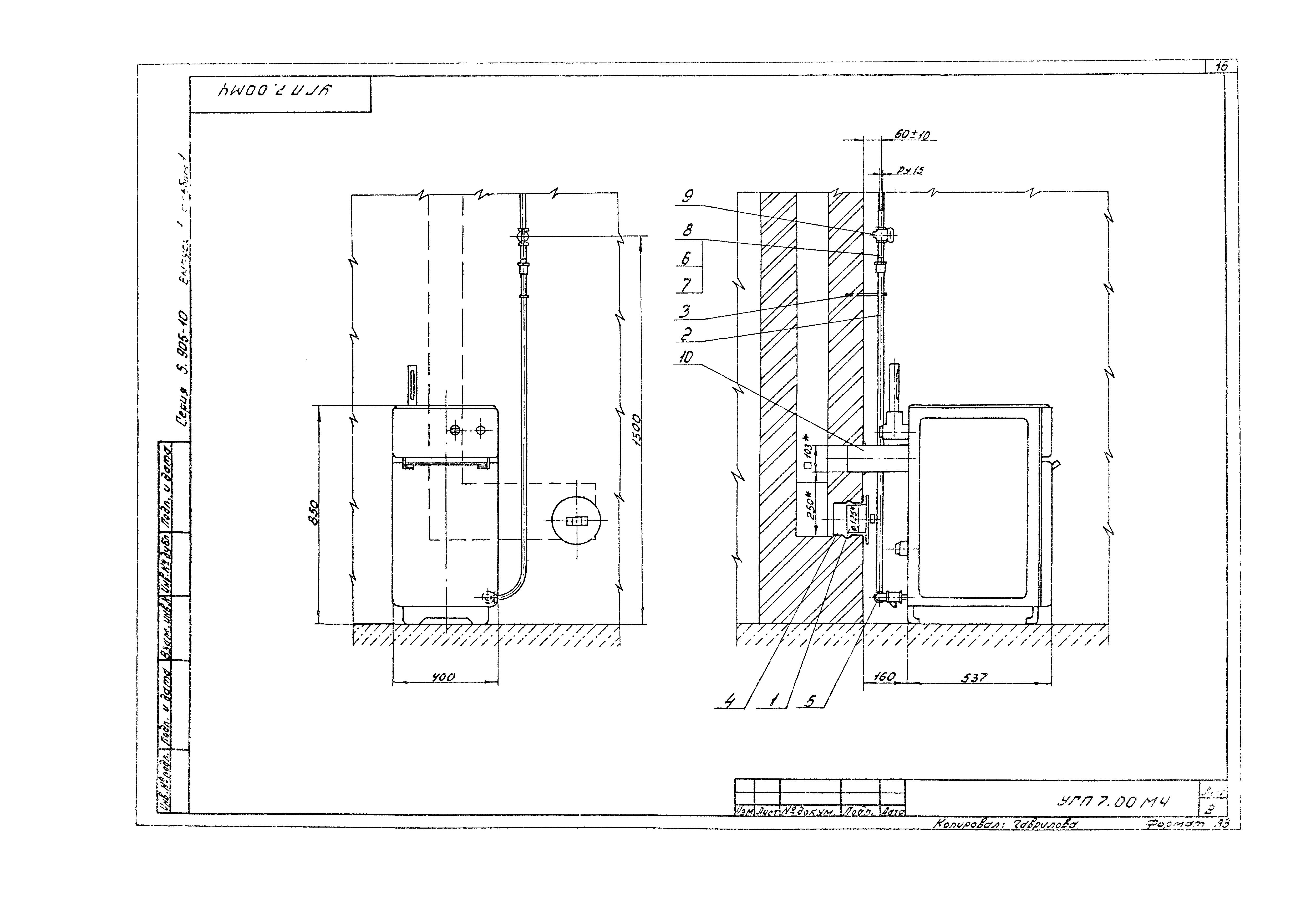
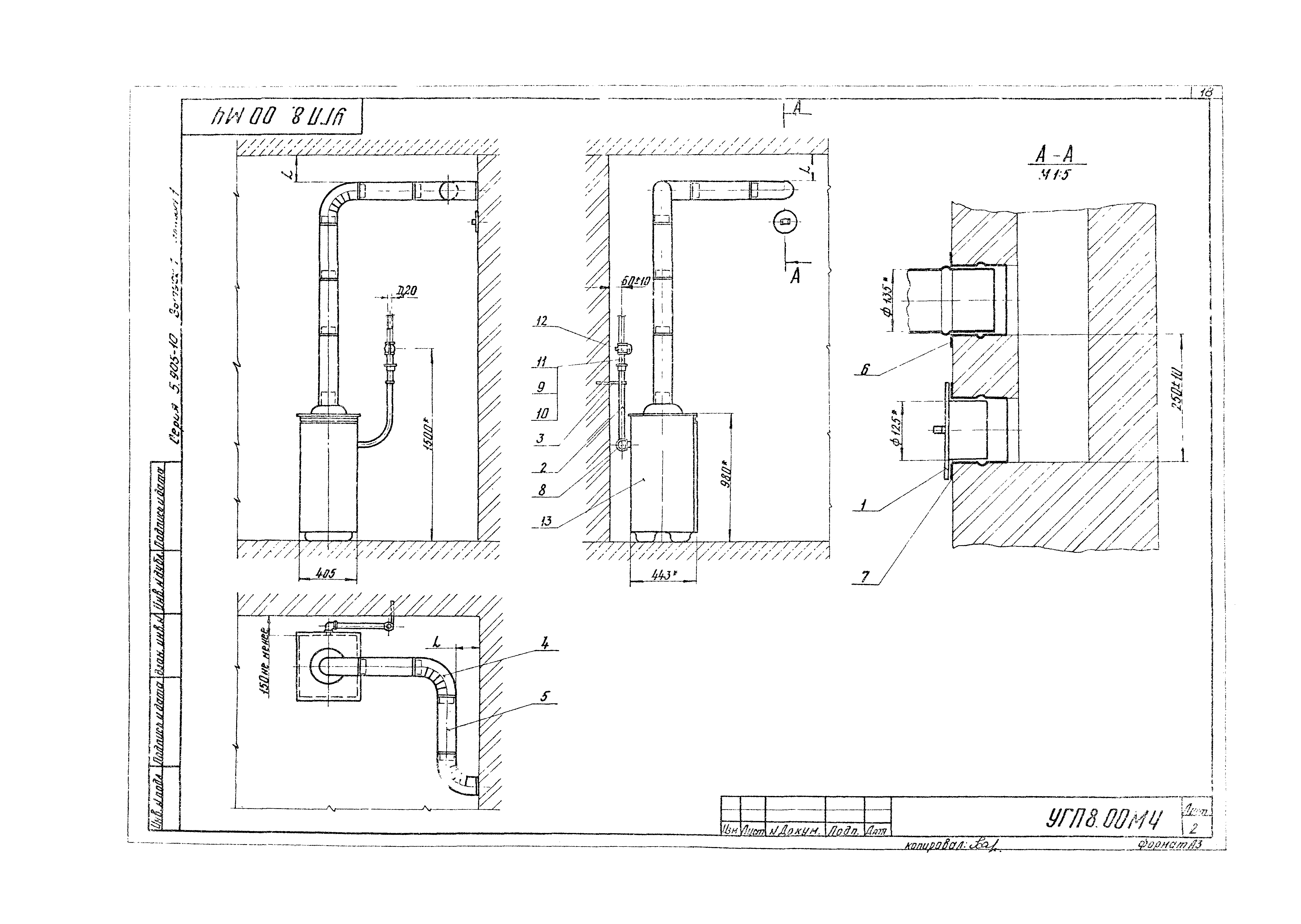
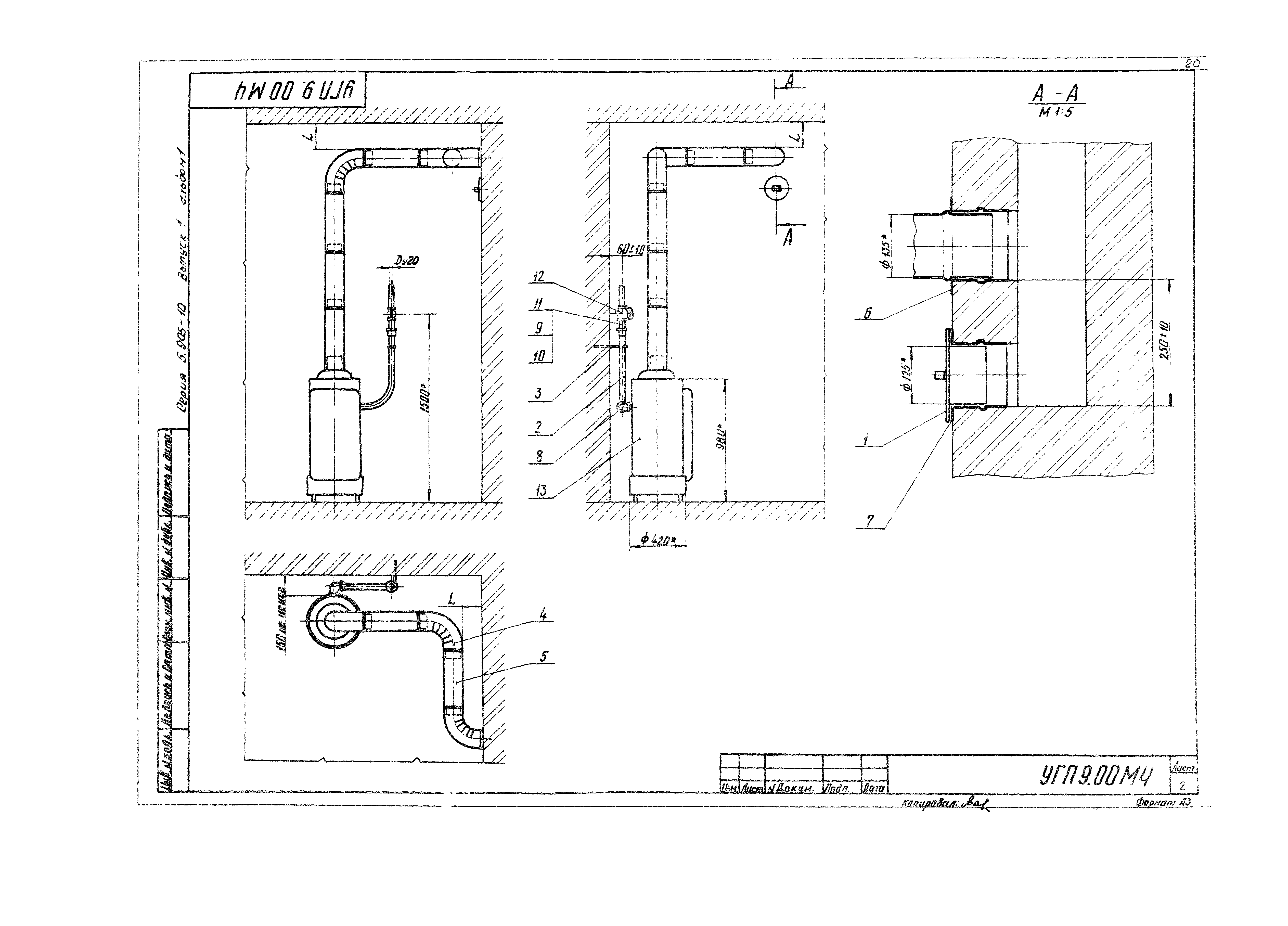
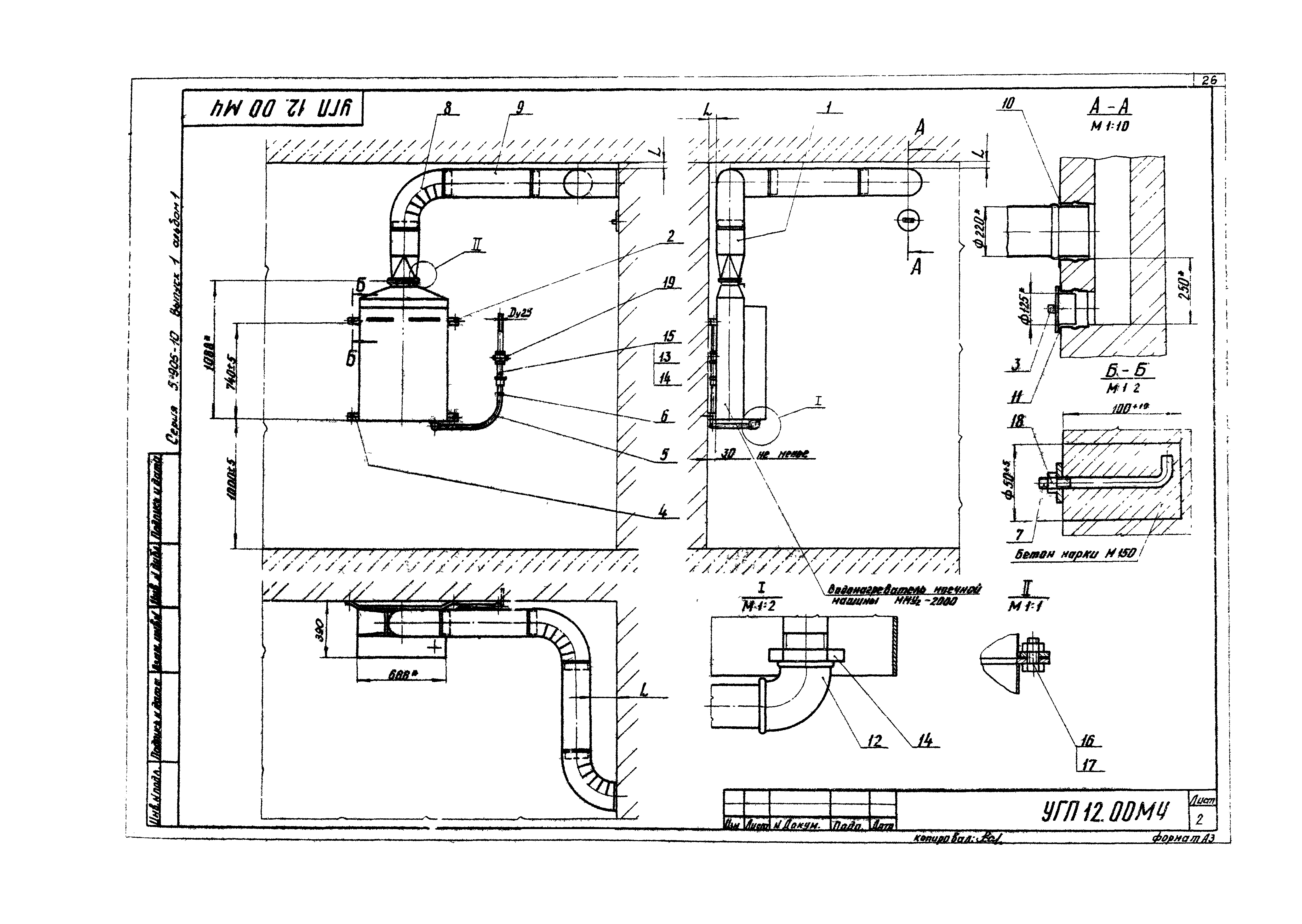
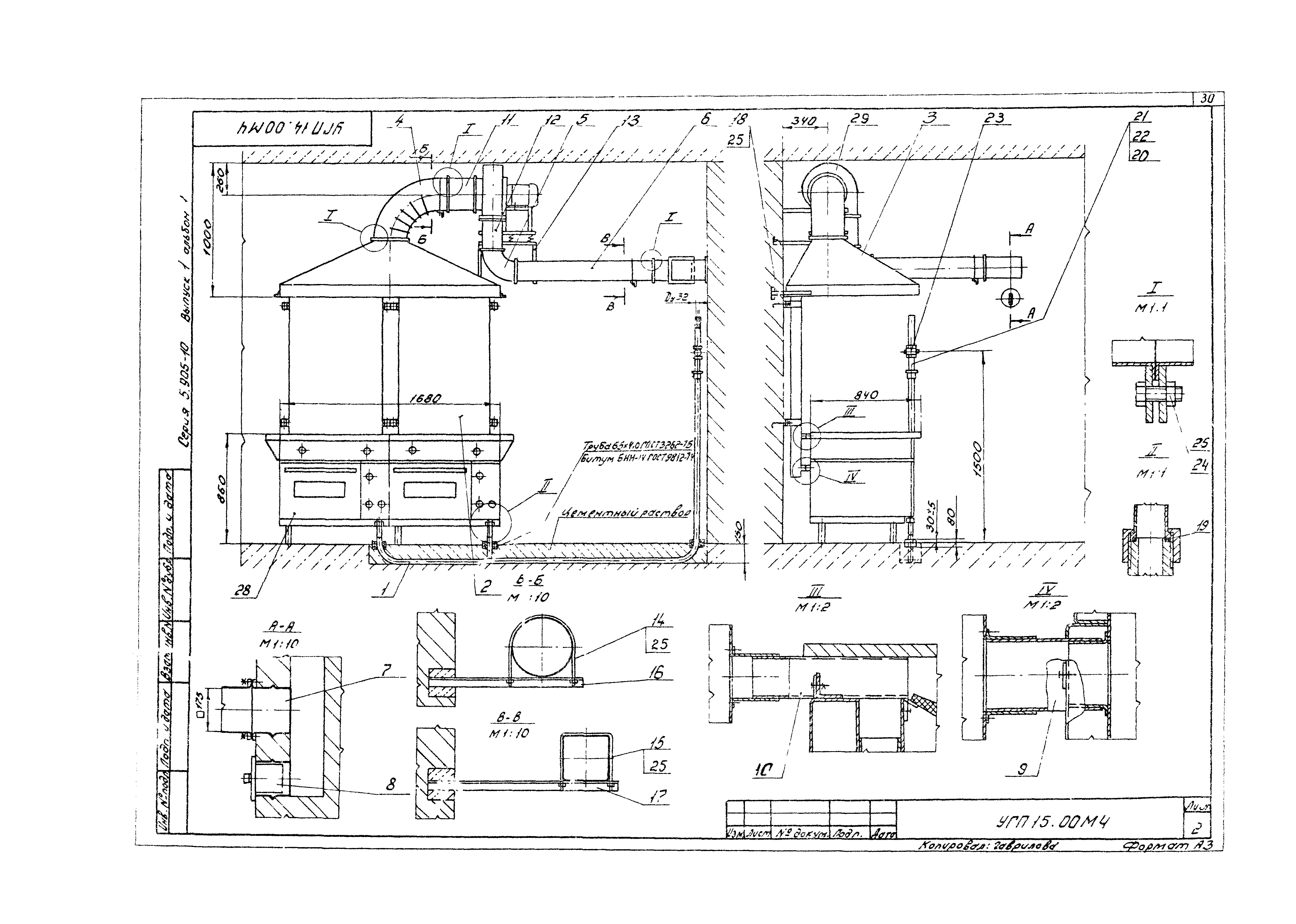
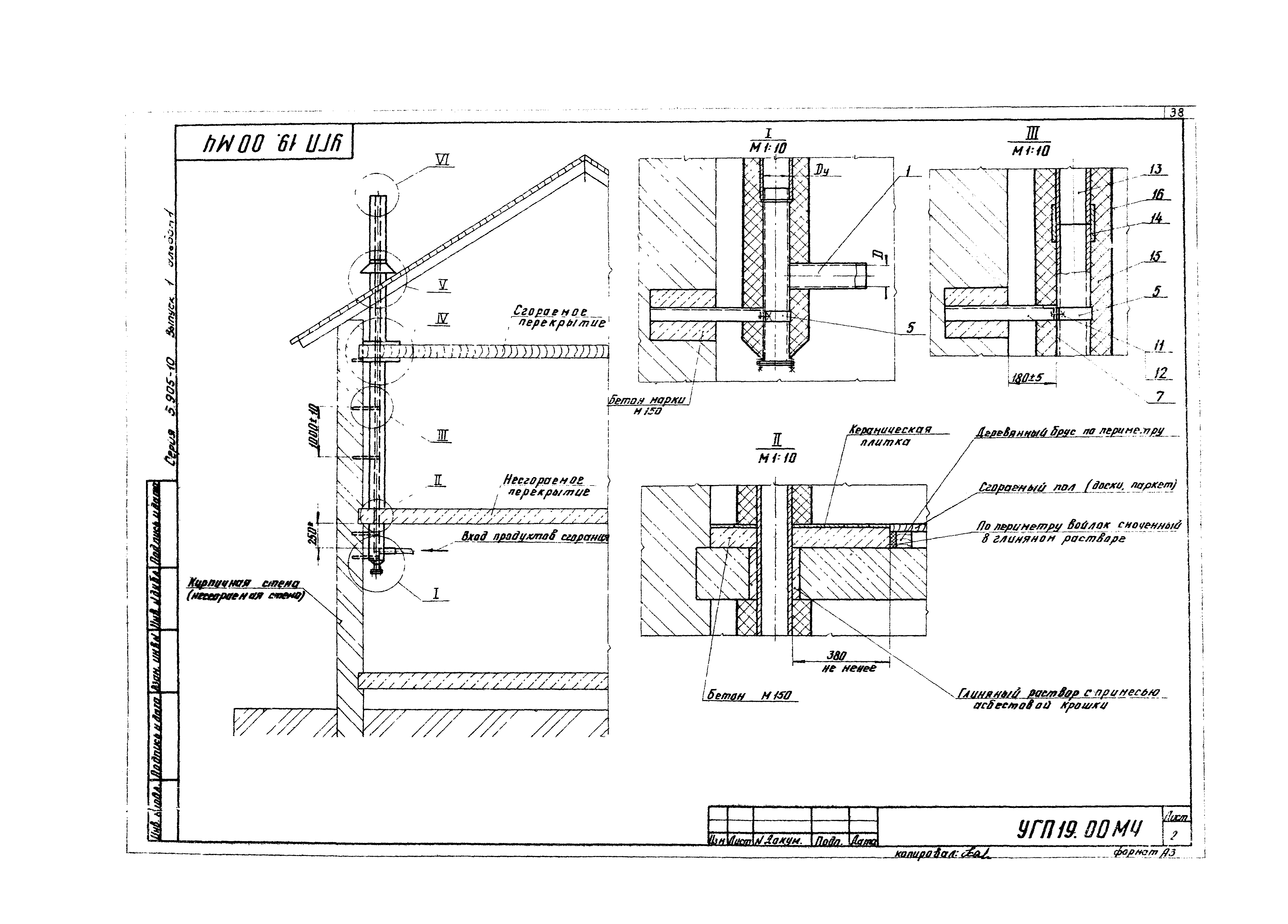
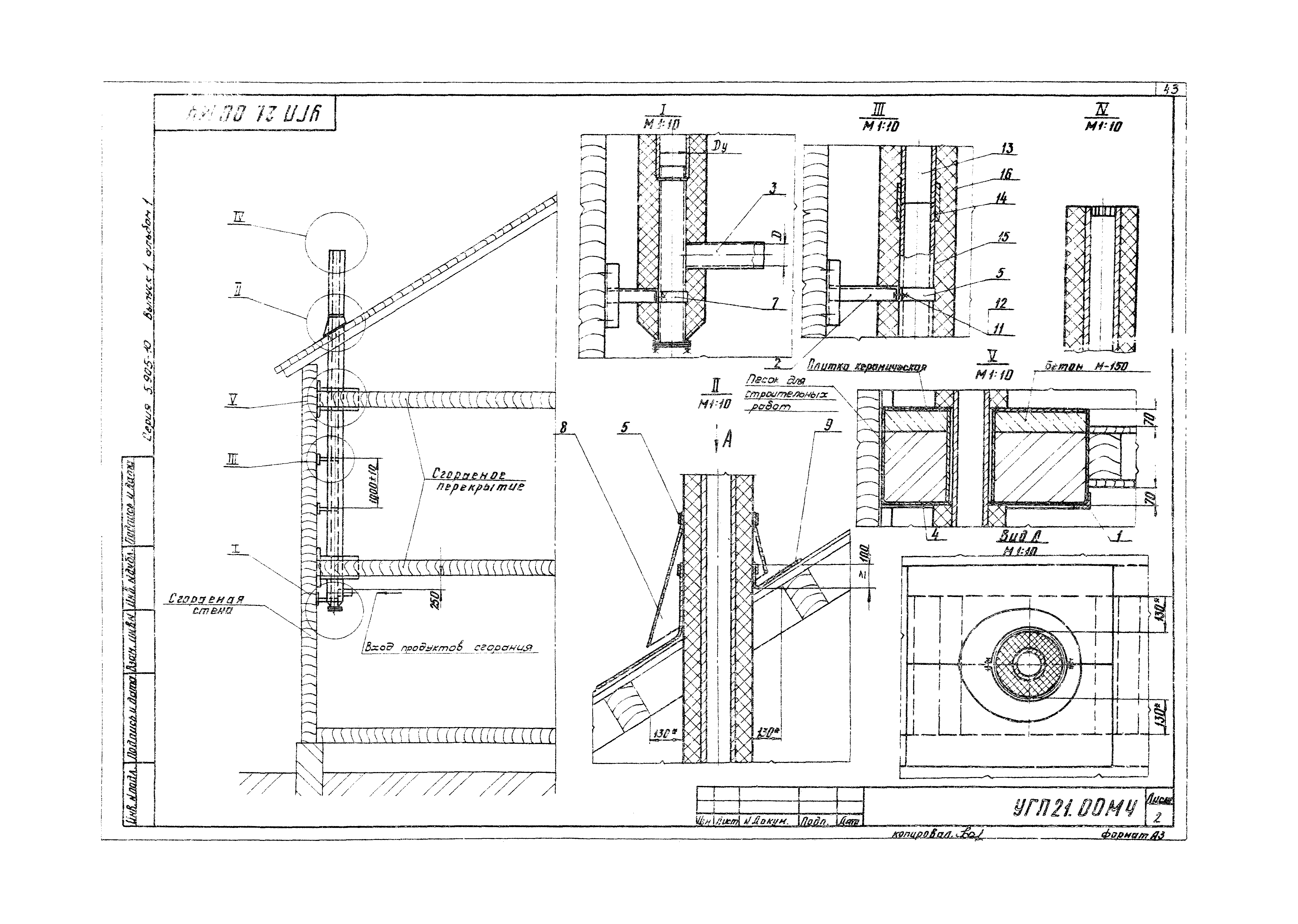
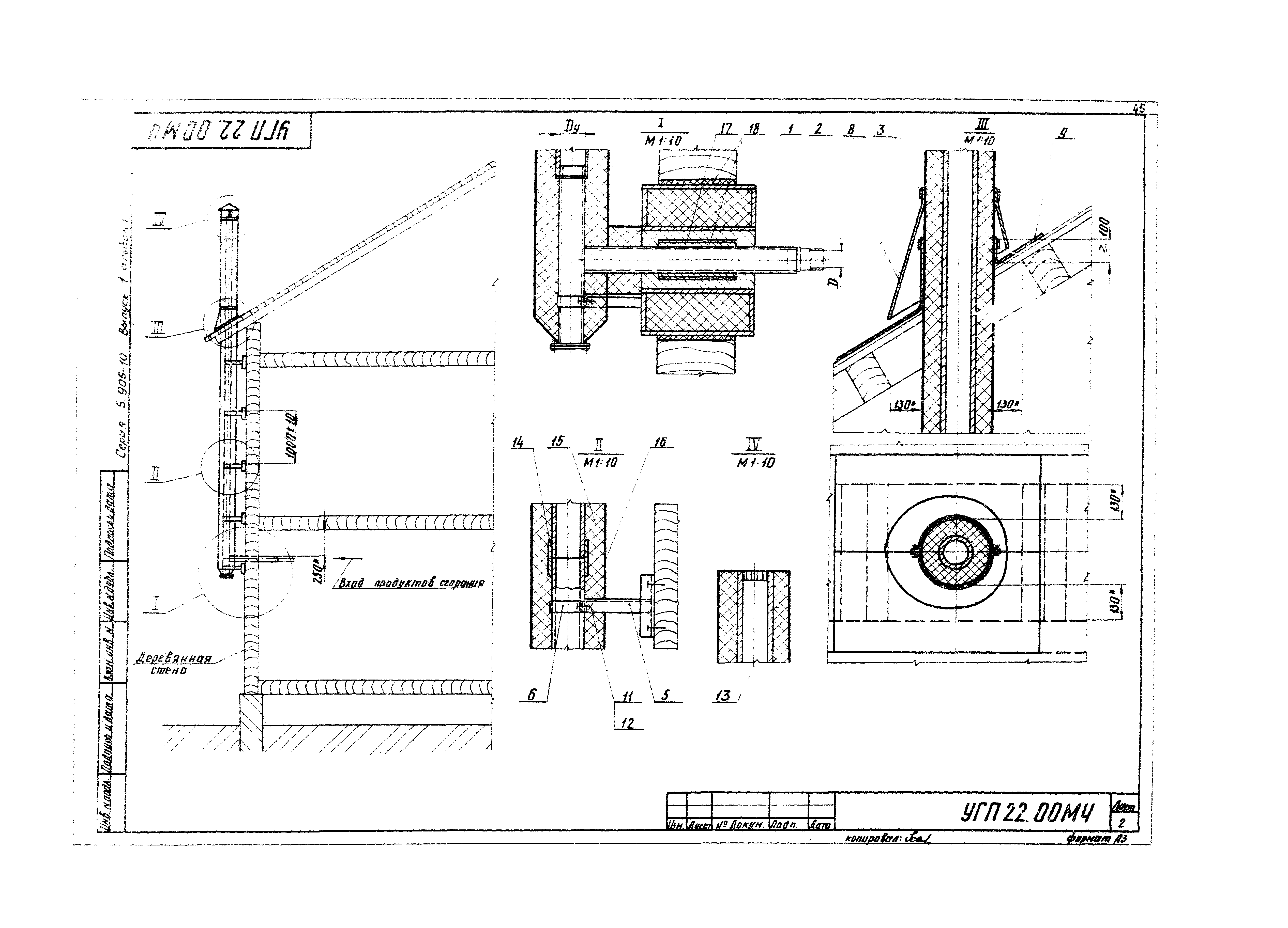
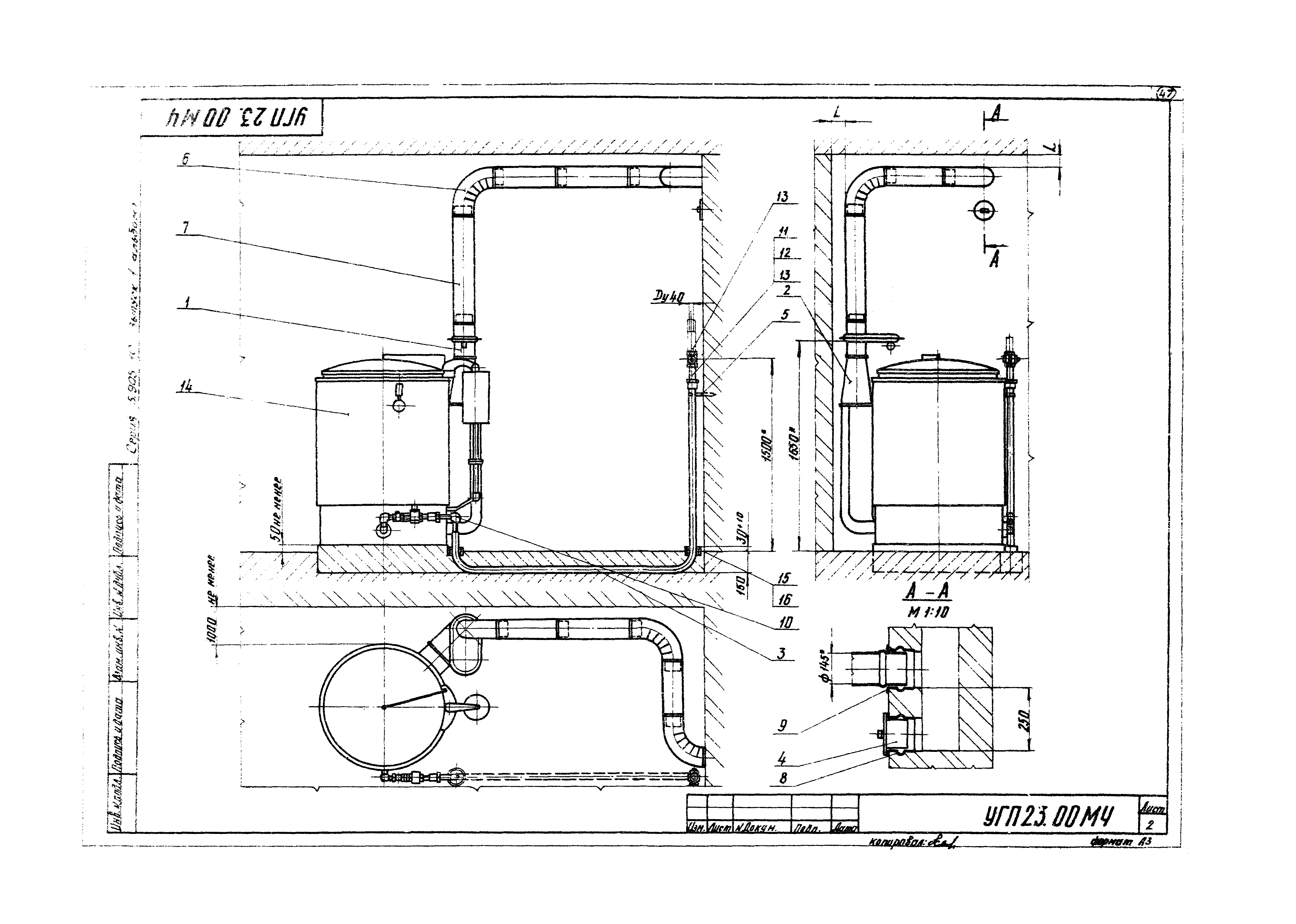
| Оглавление: | Титульный лист Содержание УГП0.00Д Установка газовых приборов и аппаратов в жилых коммунально-бытовых зданиях УГП1.00МЧ Установка плиты газовой бытовой ГОСТ 10798-77 УГП2.00МЧ Установка плиты газовой бытовой ГОСТ 10798-77 с баллоном УГП3.00МЧ Установка плиты газовой бытовой ГОСТ 10798-77 с встроенным баллоном УГП4.00МЧ Установка аппарата АГВ-80 ГОСТ 11032-80 УГП5.00МЧ Установка аппарата АГВ-120 ГОСТ 11032-80 УГП6.00МЧ Установка аппарата АОГВ-11.3-3-У ГОСТ 20219-74 УГП7.00МЧ Установка аппарата АОГВ-11.3-3-У ГОСТ 20219-74 УГП8.00МЧ Установка аппарата АОГВ-17.4-3-У ГОСТ 20219-74 УГП9.00МЧ Установка аппарата АОГВ-23.2-1-У ГОСТ 20219-74 УГП10.00МЧ Установка аппарата водонагревательного ВПГ-18-1-3-П и ВПГ-20-1-3-П ГОСТ 19910-74 УГП11.00МЧ Установка аппарата комбинированного газового бытового с водяным контуром АКГВ-23,2-3-У УГП12.00МЧ Установка водонагревателя моечной машины ММУ2-2000 УГП14.00МЧ Установка газовой плиты ПГСМ-2Ш УГП15.00МЧ Установка 2-х газовых плит ПГСМ-2Ш УГП16.00МЧ Установка 3-х газовых плит ПГСМ-2Ш УГП17.00МЧ Установка 4-х газовых плит ПГСМ-2Ш УГП18.00МЧ Установка устройства для опаливания птицы УОП-1 УГП19.00МЧ Установка дымовой трубы у кирпичной стены внутри здания УГП20.00МЧ Установка дымовой трубы у кирпичной стены снаружи здания УГП21.00МЧ Установка дымовой трубы у деревянной стены внутри здания УГП22.00МЧ Установка дымовой трубы у деревянной стены снаружи здания УГП23.00МЧ Установка котла пищеварного стационарного КПГ-250 |
| Разработан: | Институт Мосгазниипроект Управления топливно-энергетического хозяйства Исполкома Московского городского Совета народных депутатов |
| Утверждён: | 26.12.1984 Главстройпроект Госстроя СССР (52) |
| Издан: | ЦИТП Госстроя СССР (CITP, Gosstroy (USSR) 1985 г. ) |
| Чем заменён: |
















































