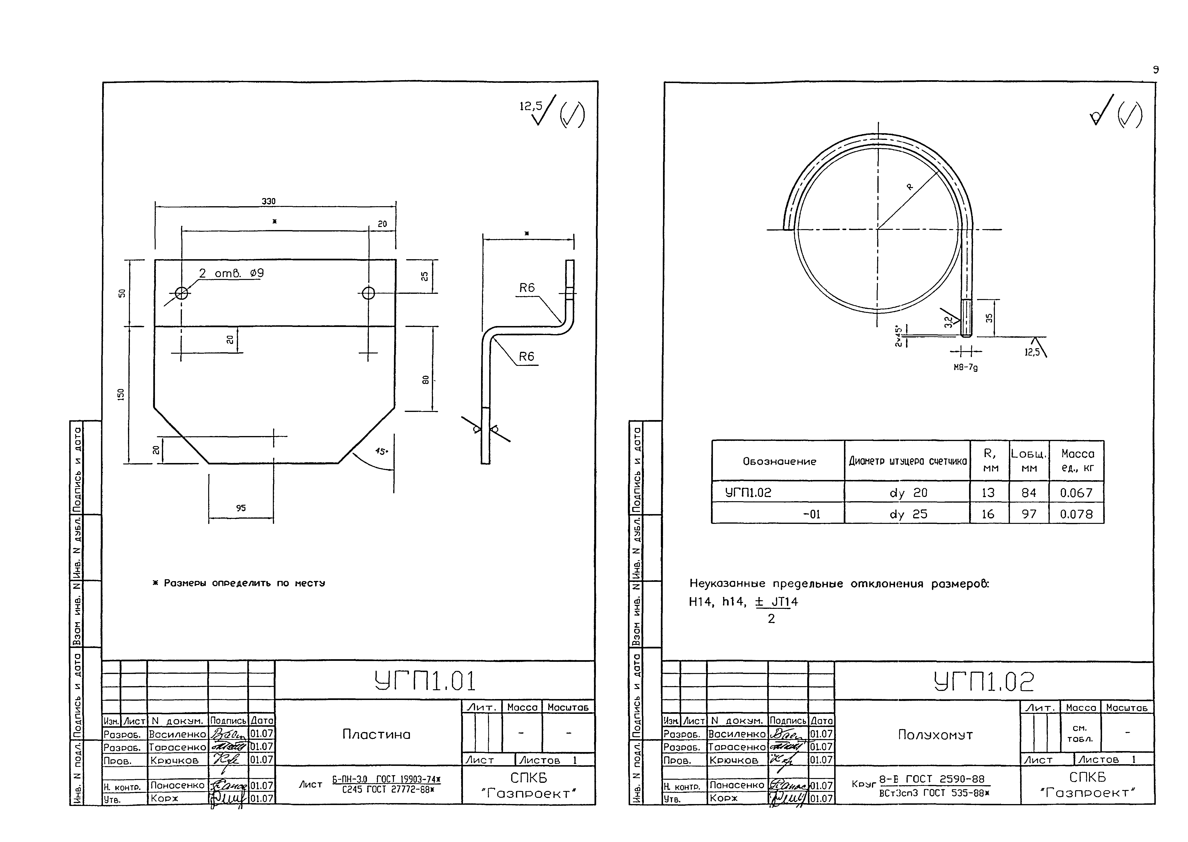
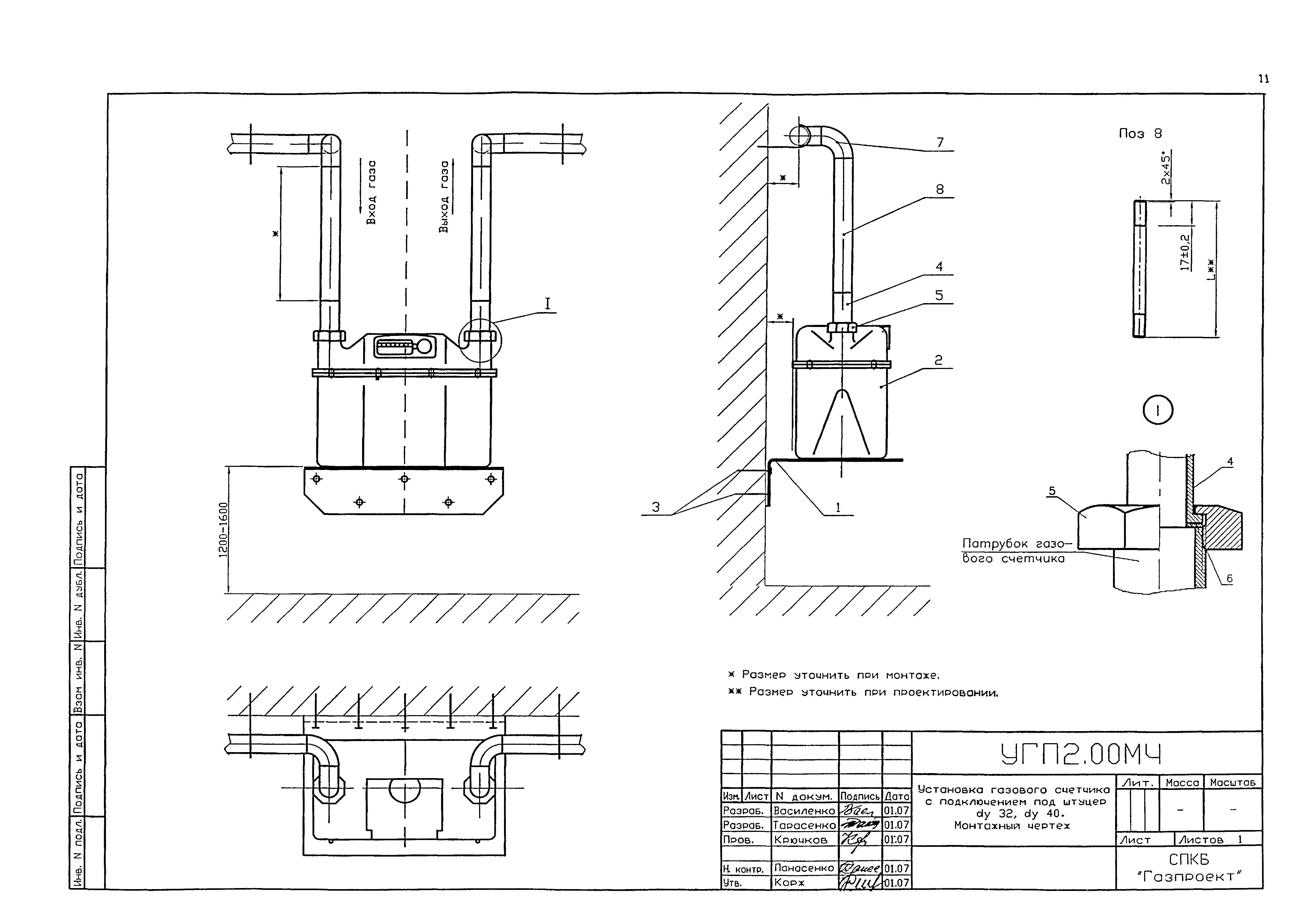
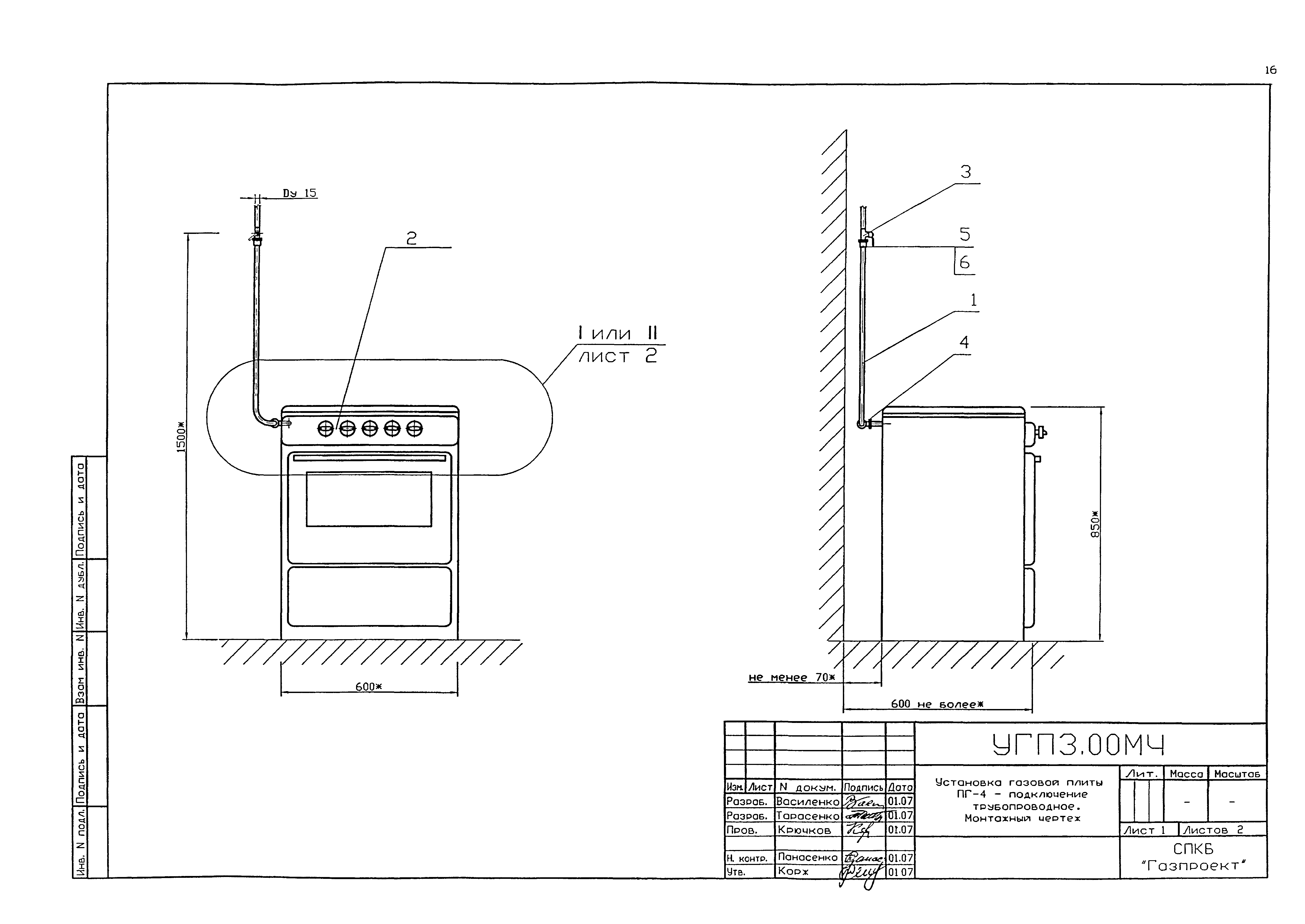
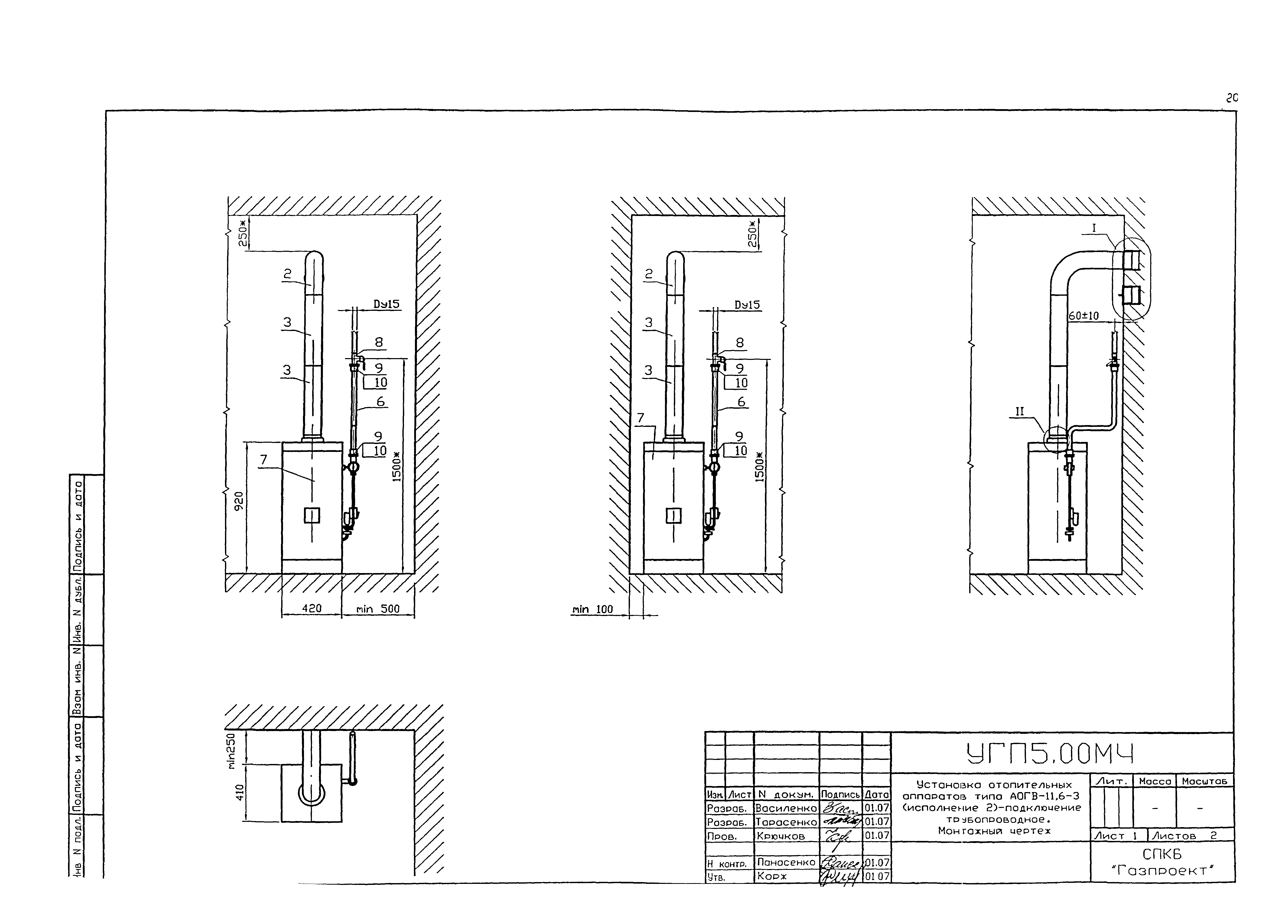
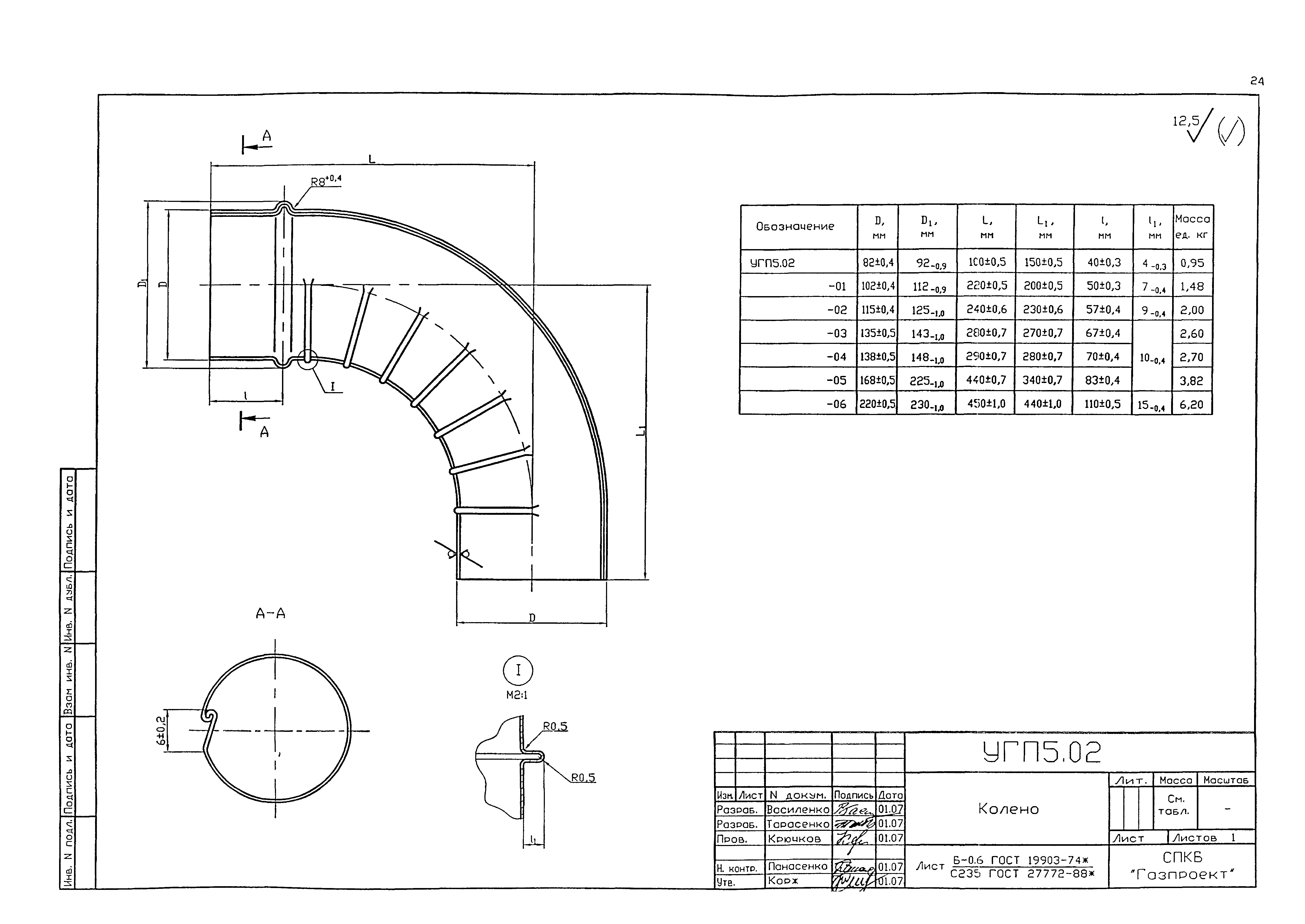
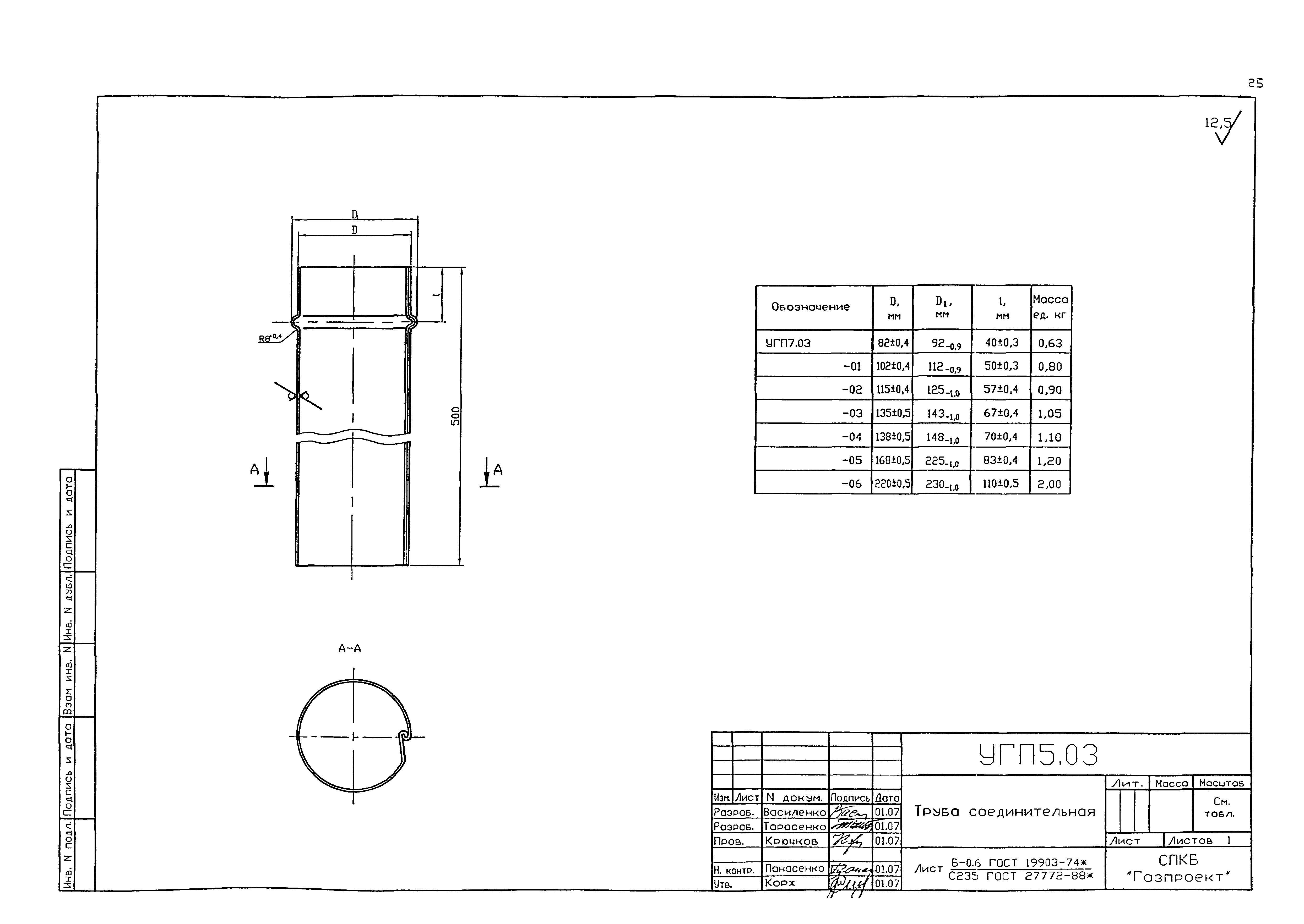
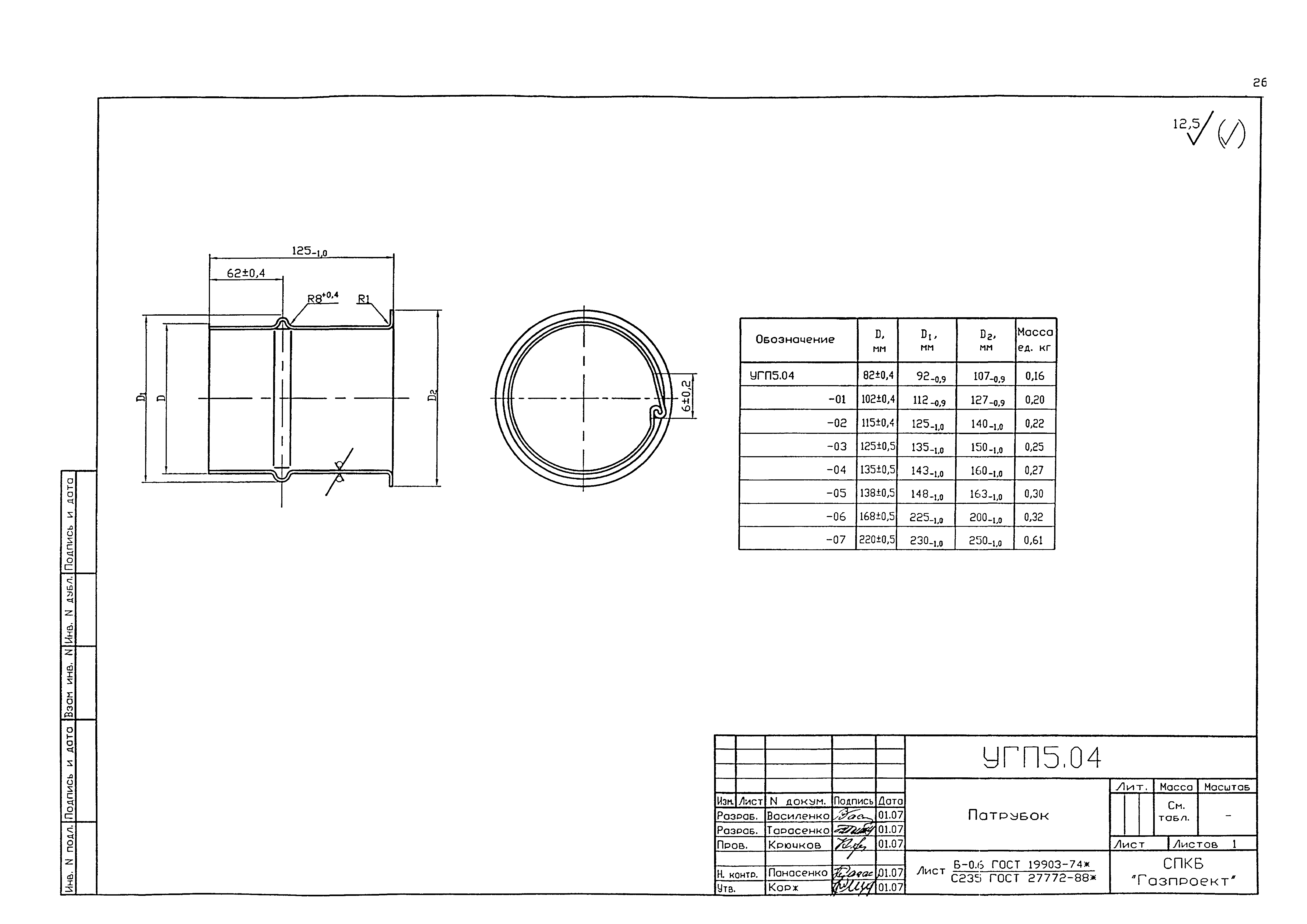
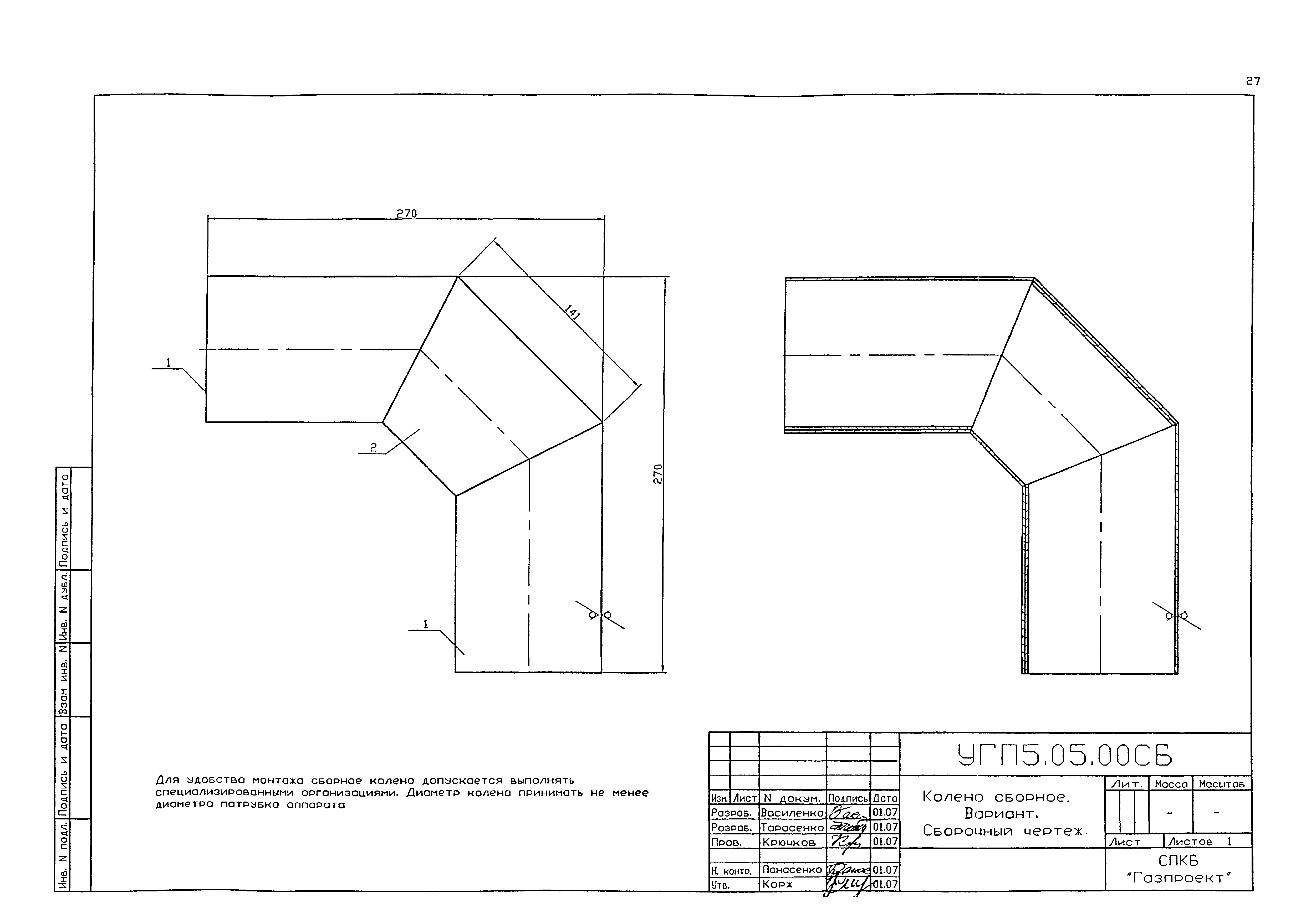
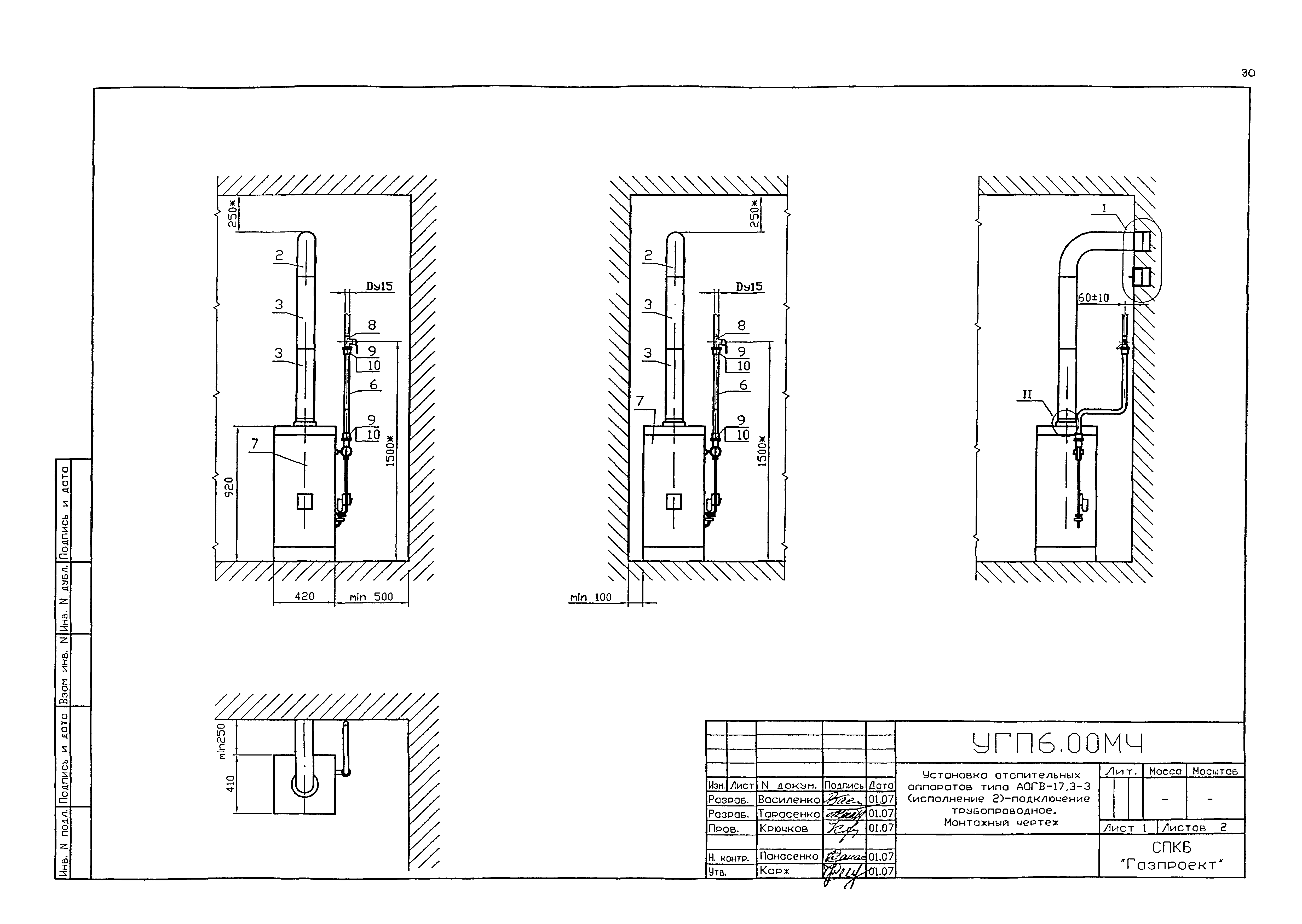
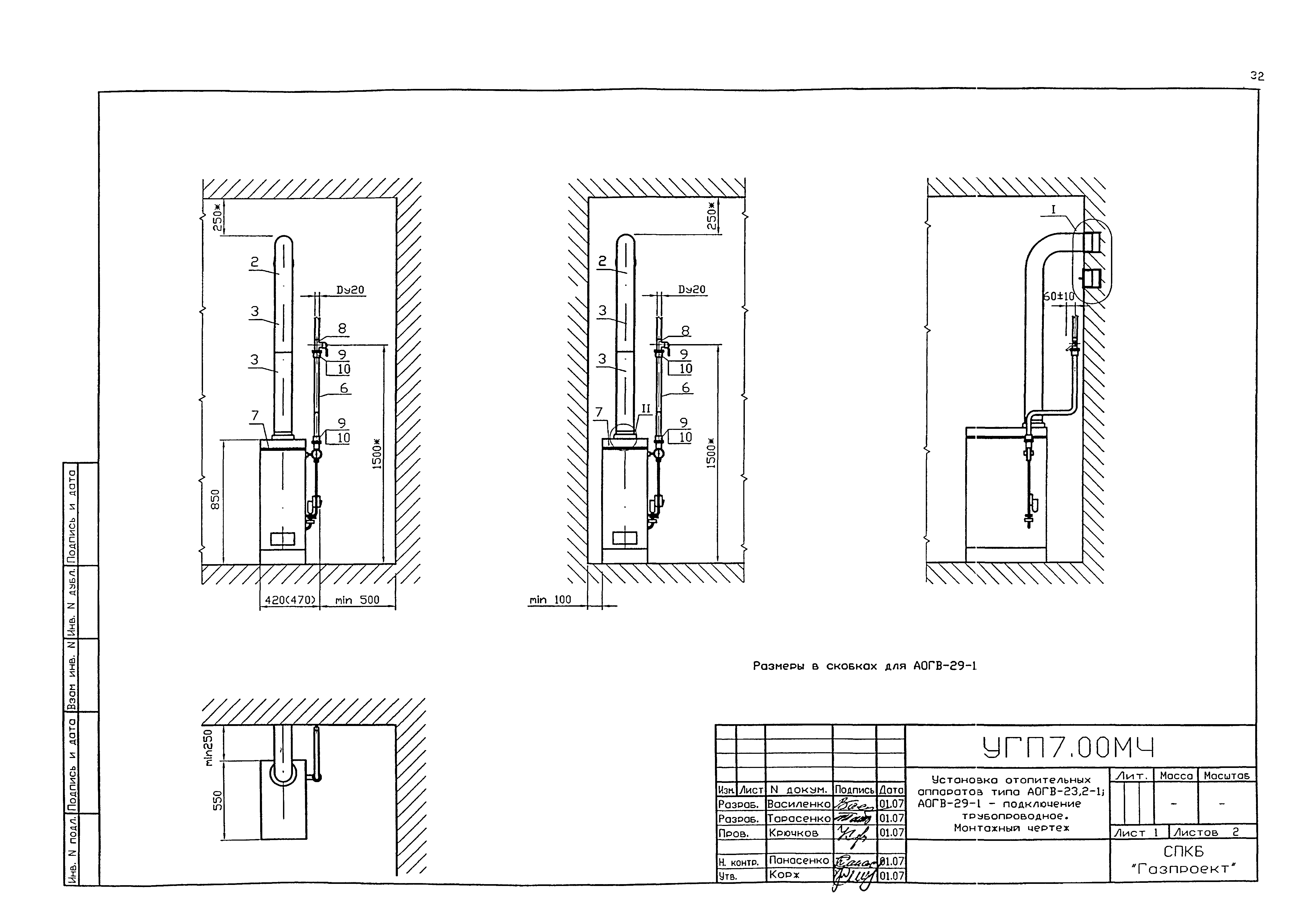
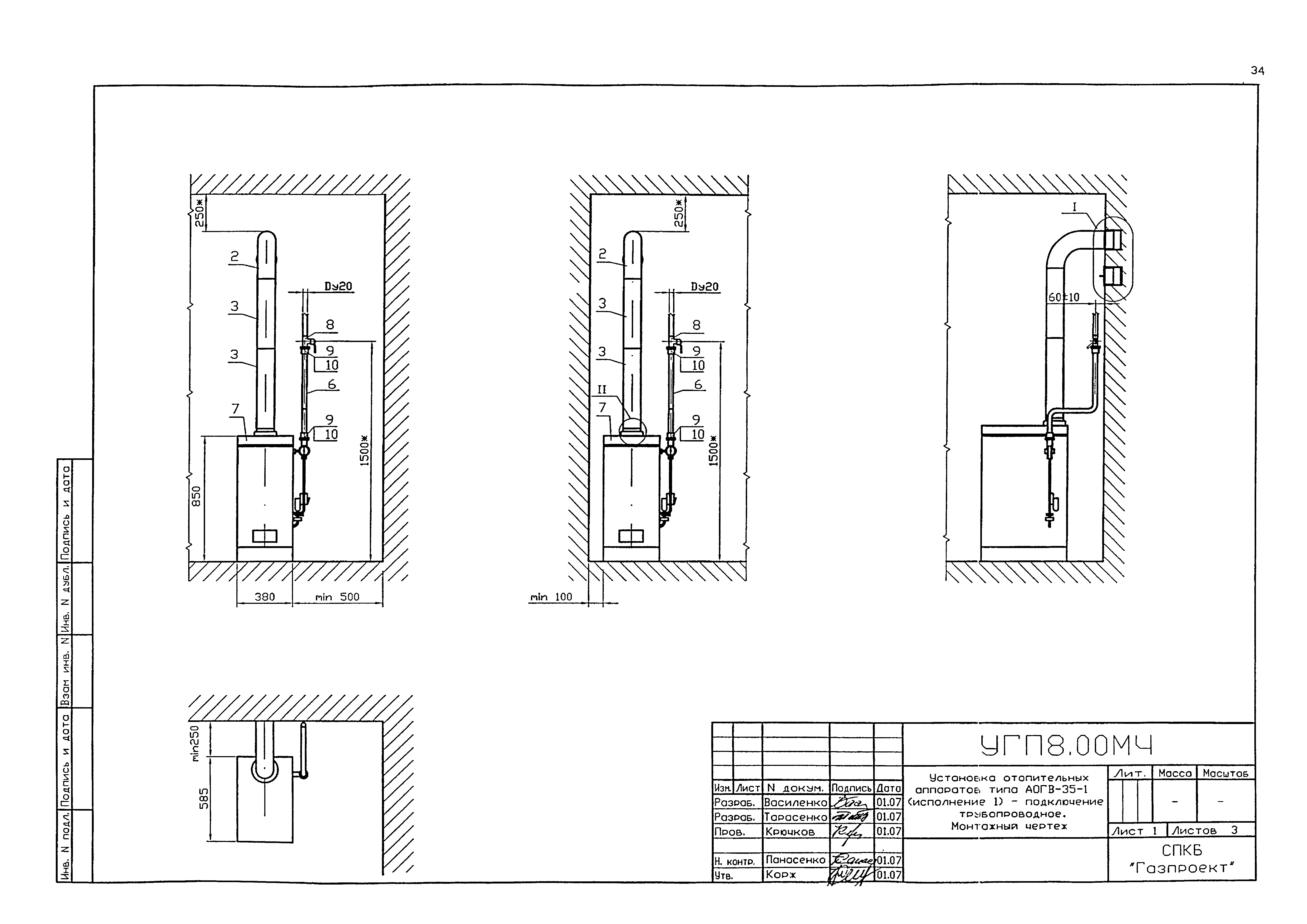
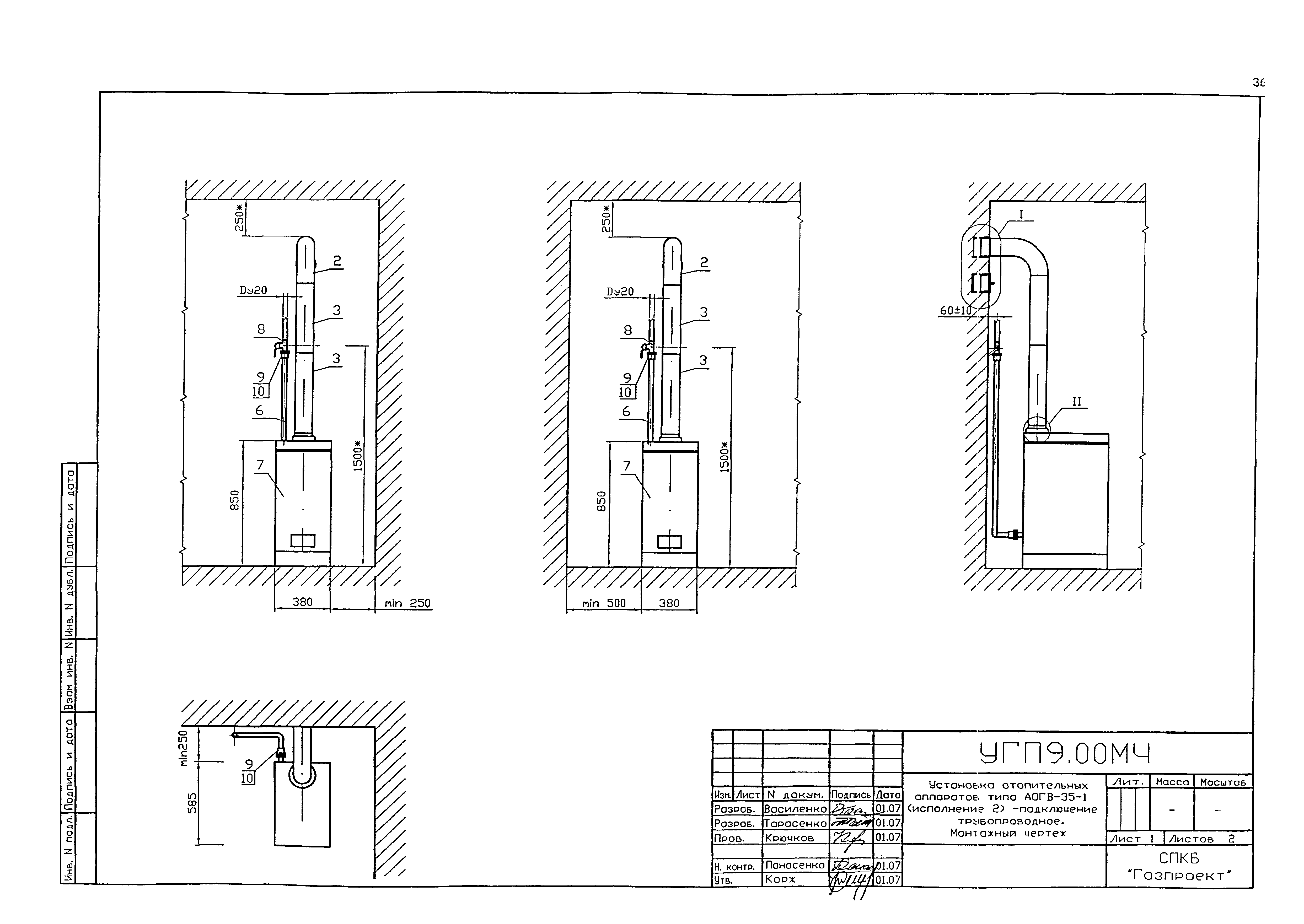
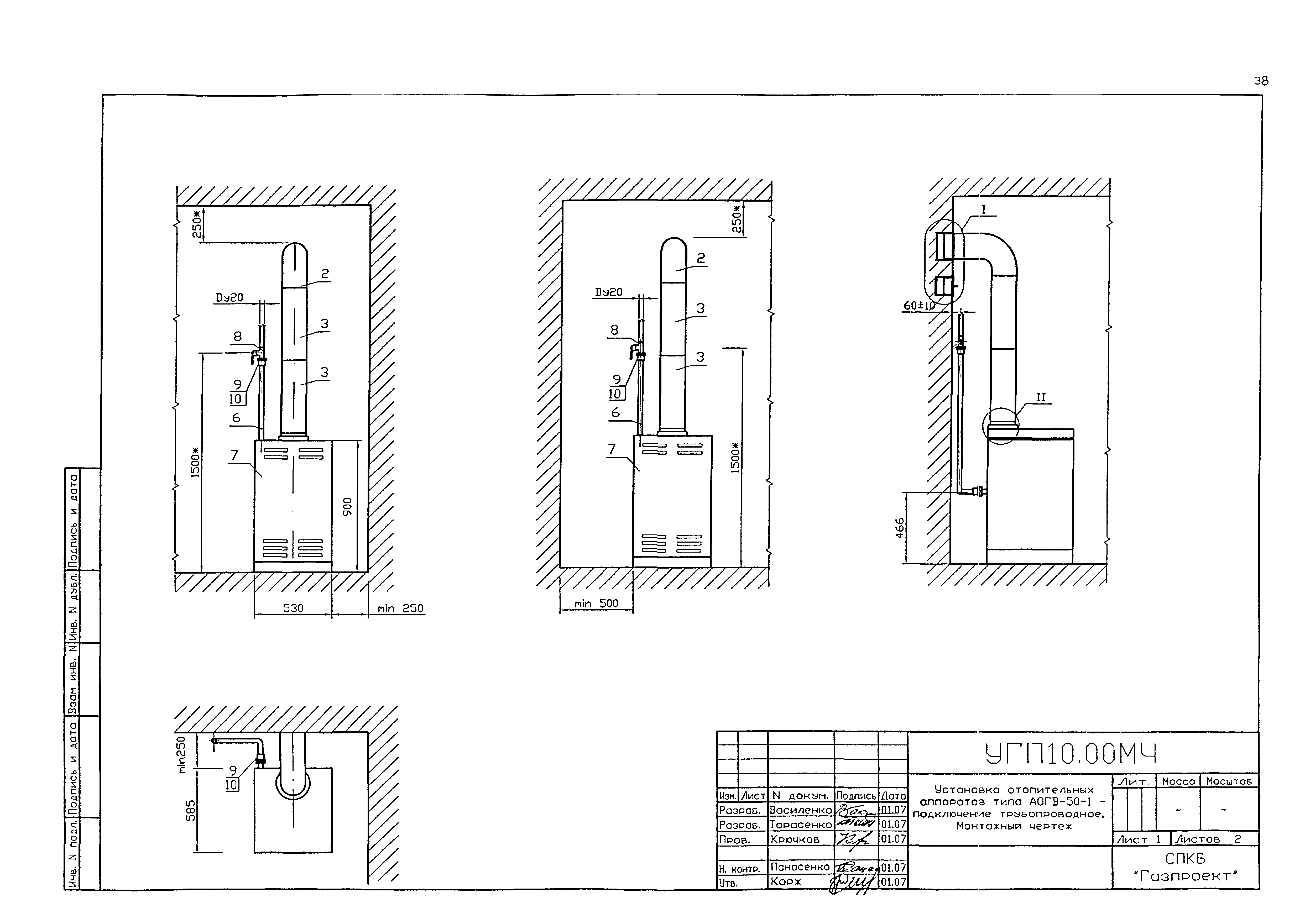
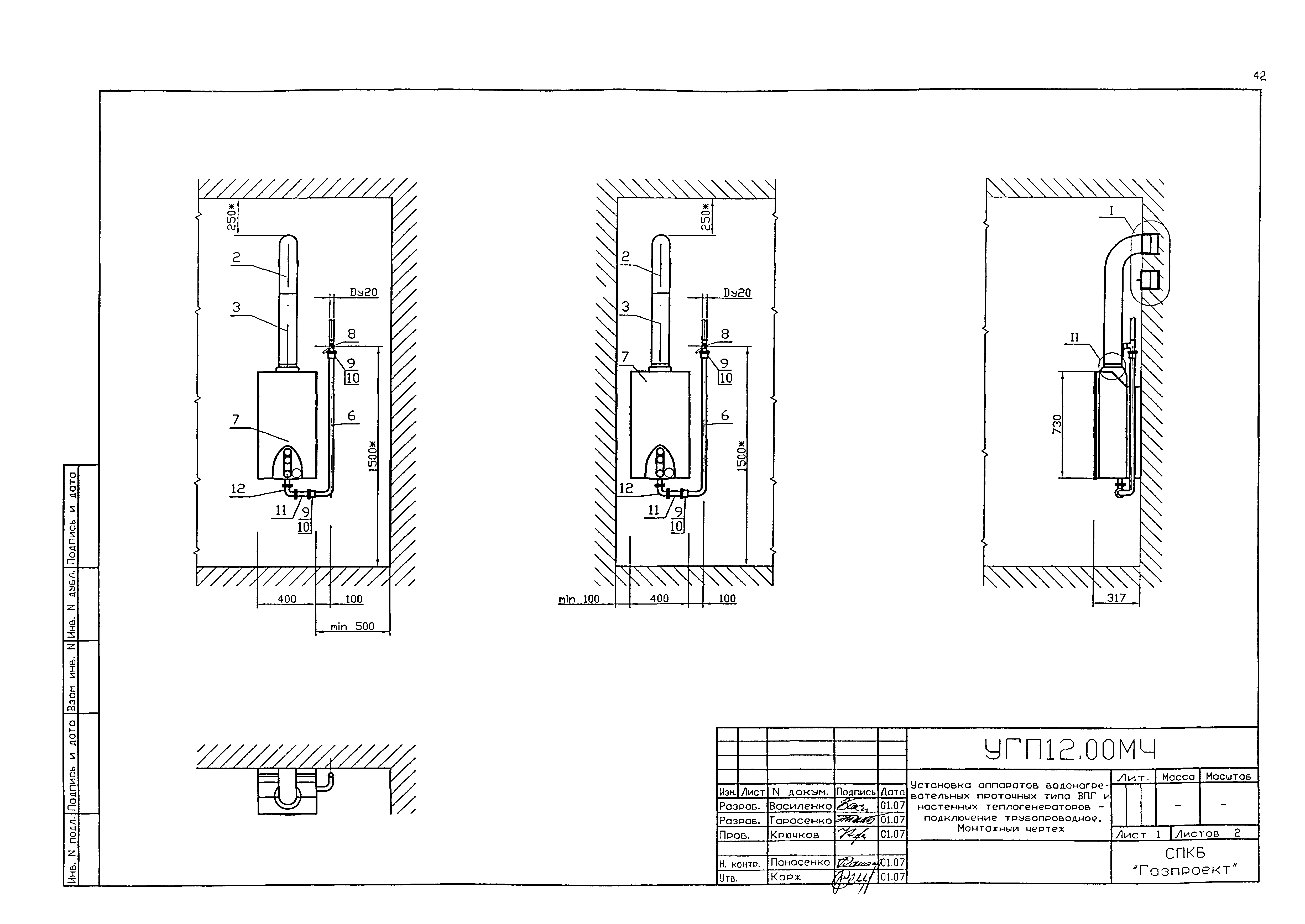
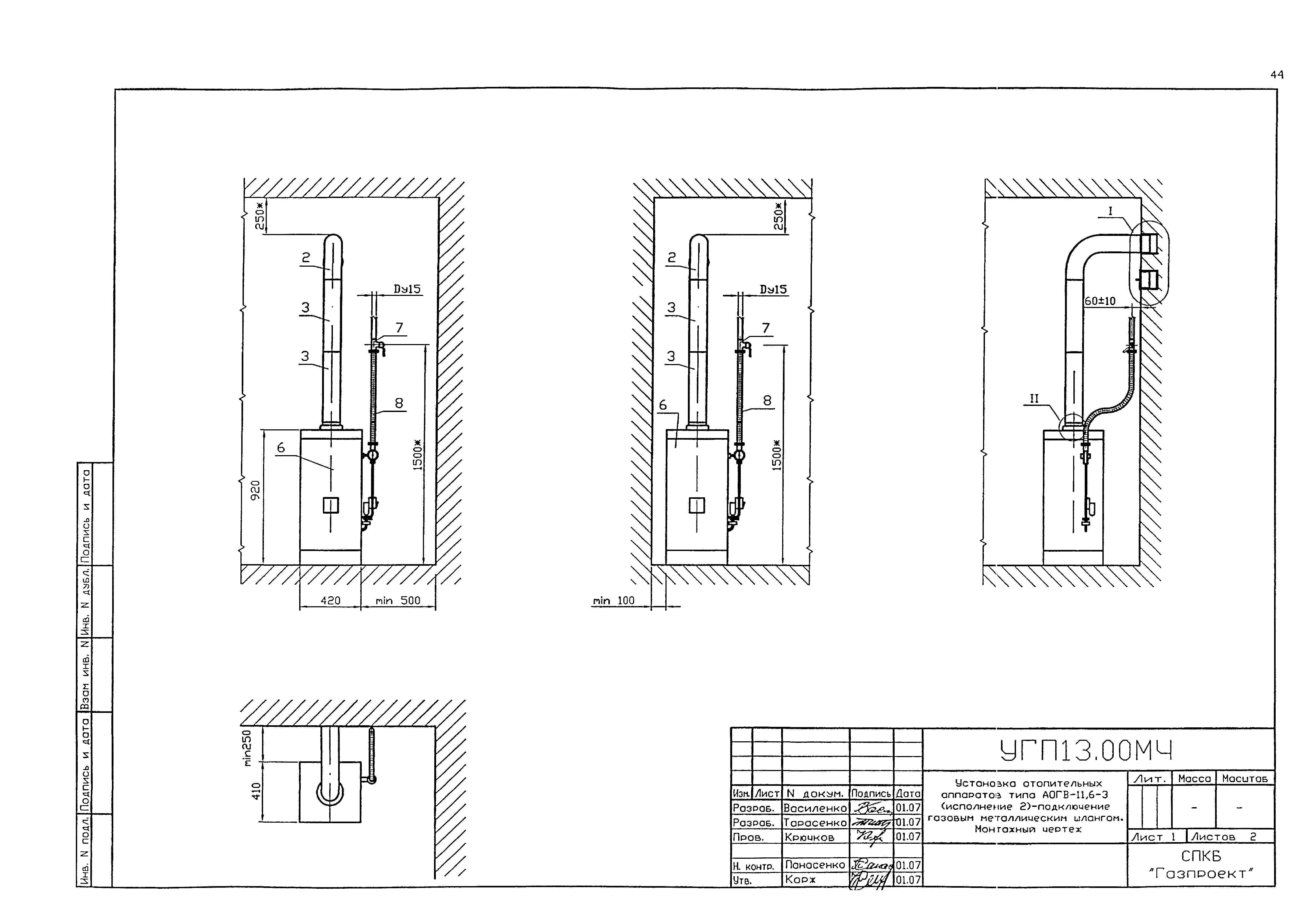
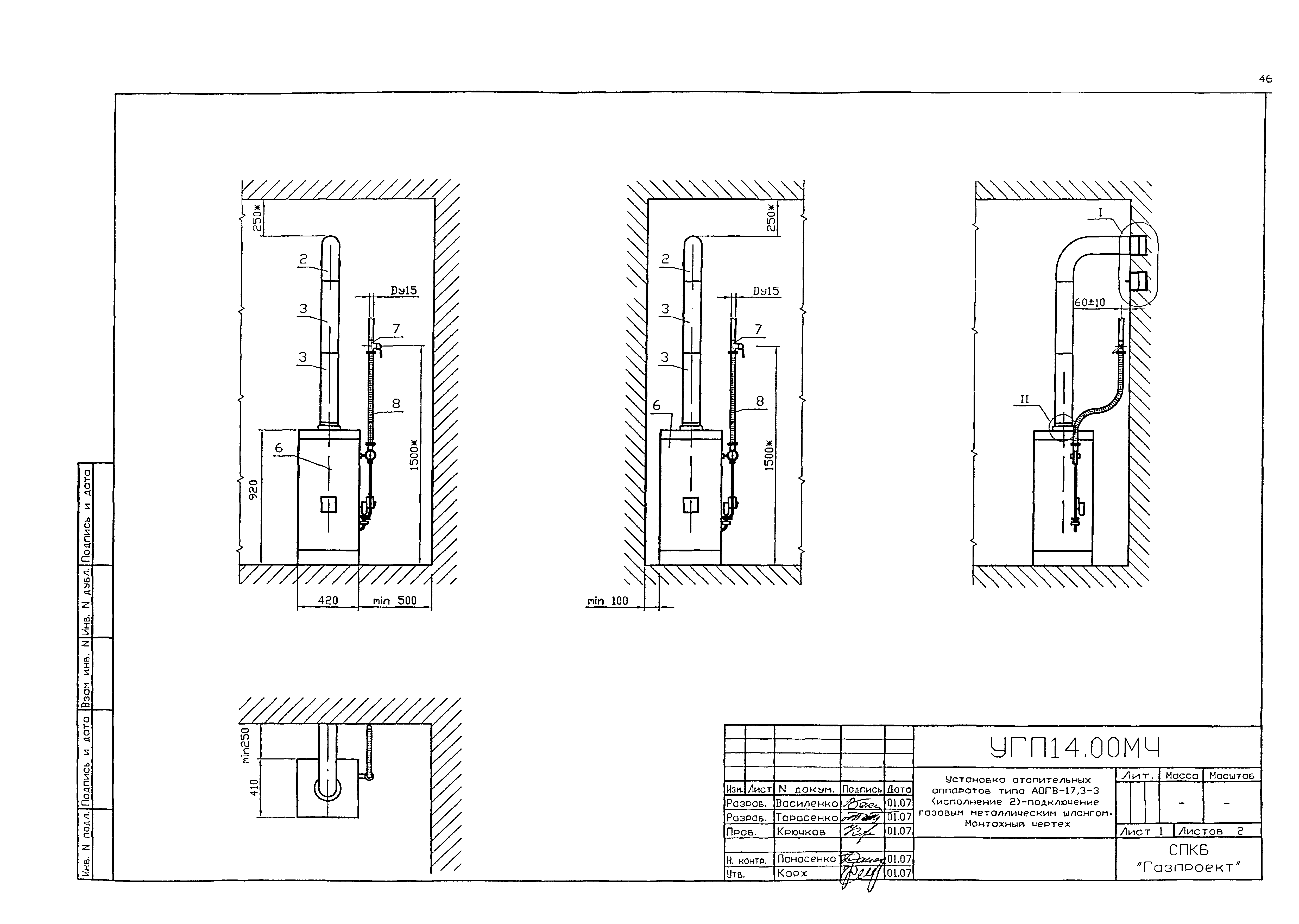
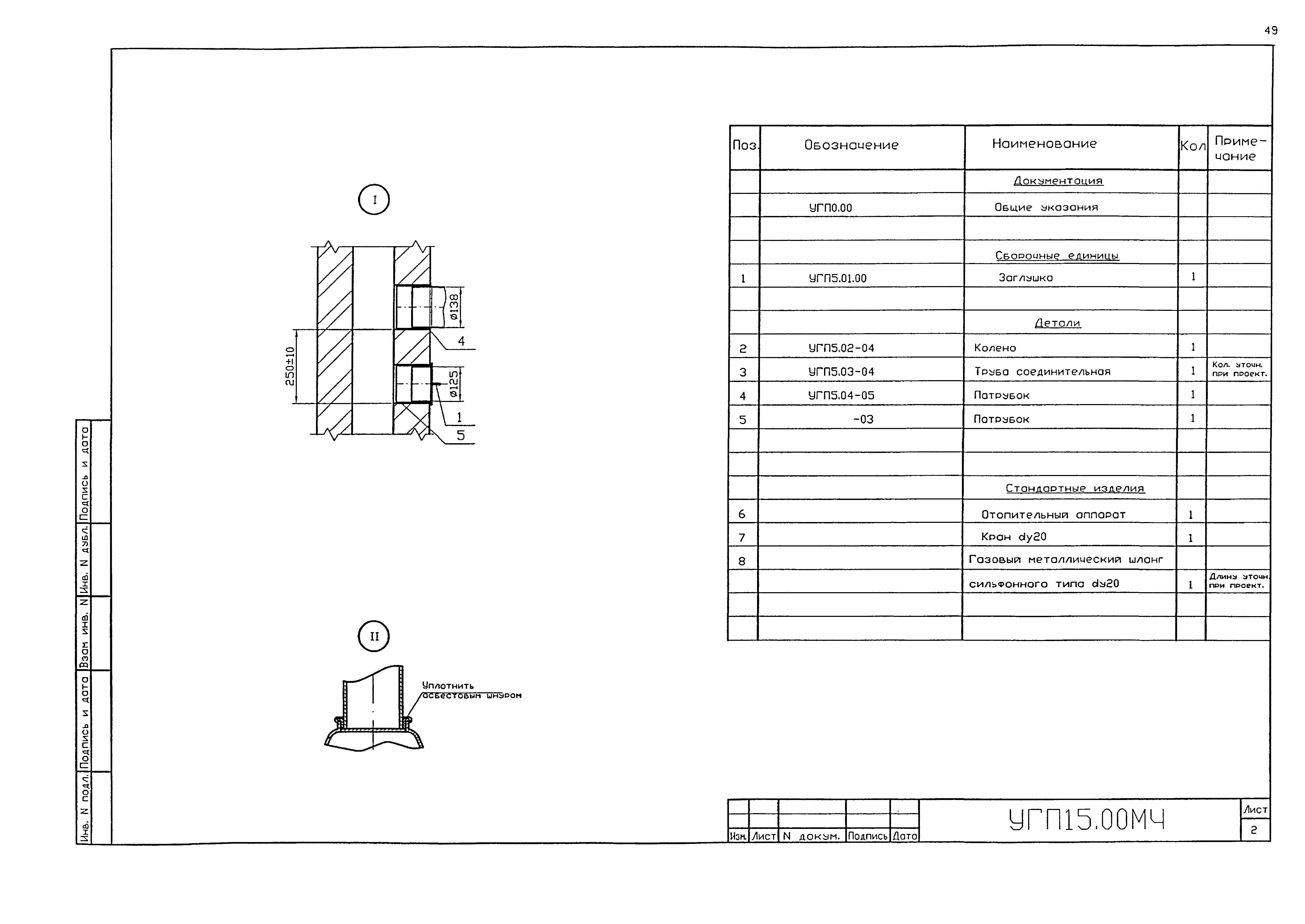
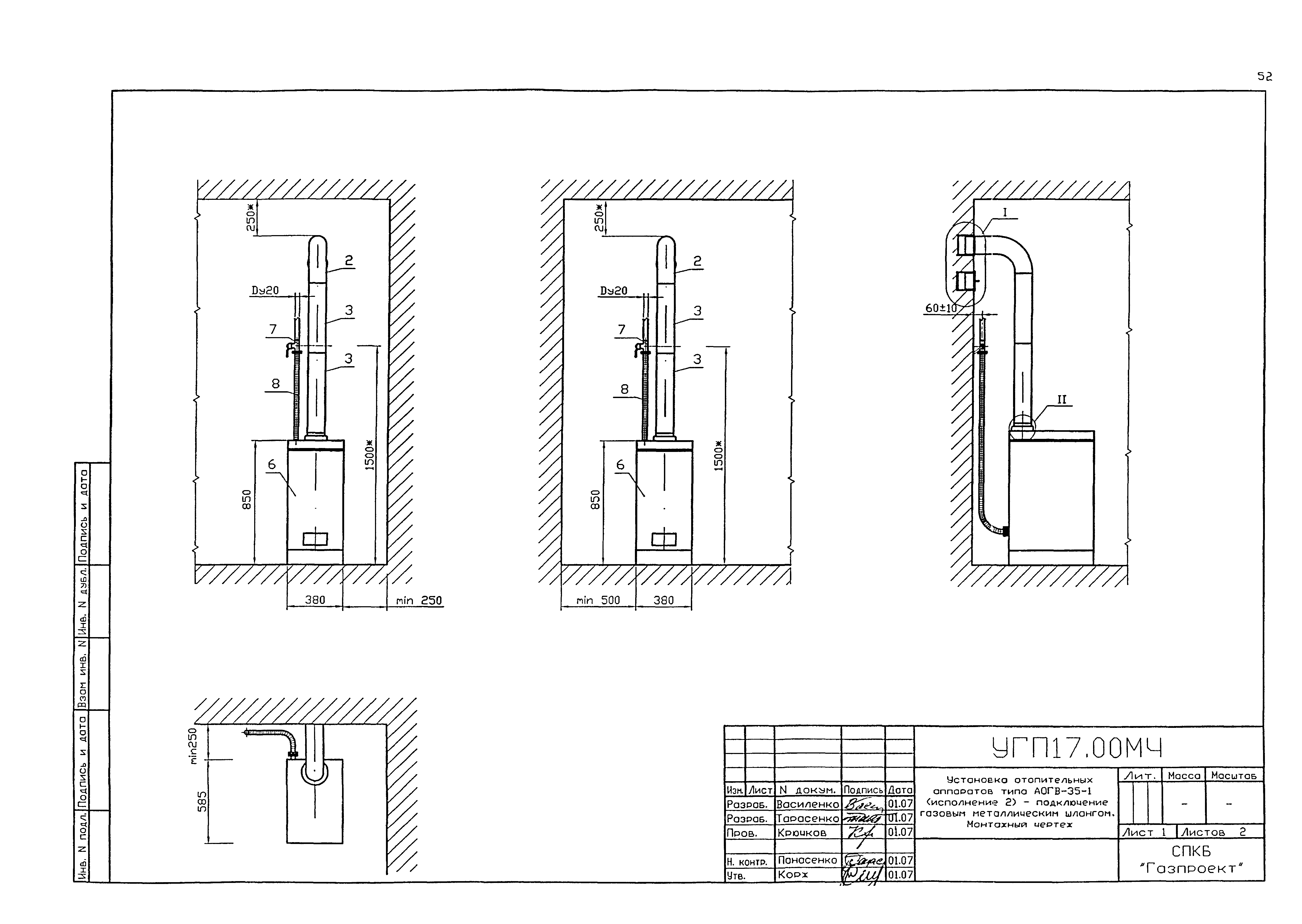
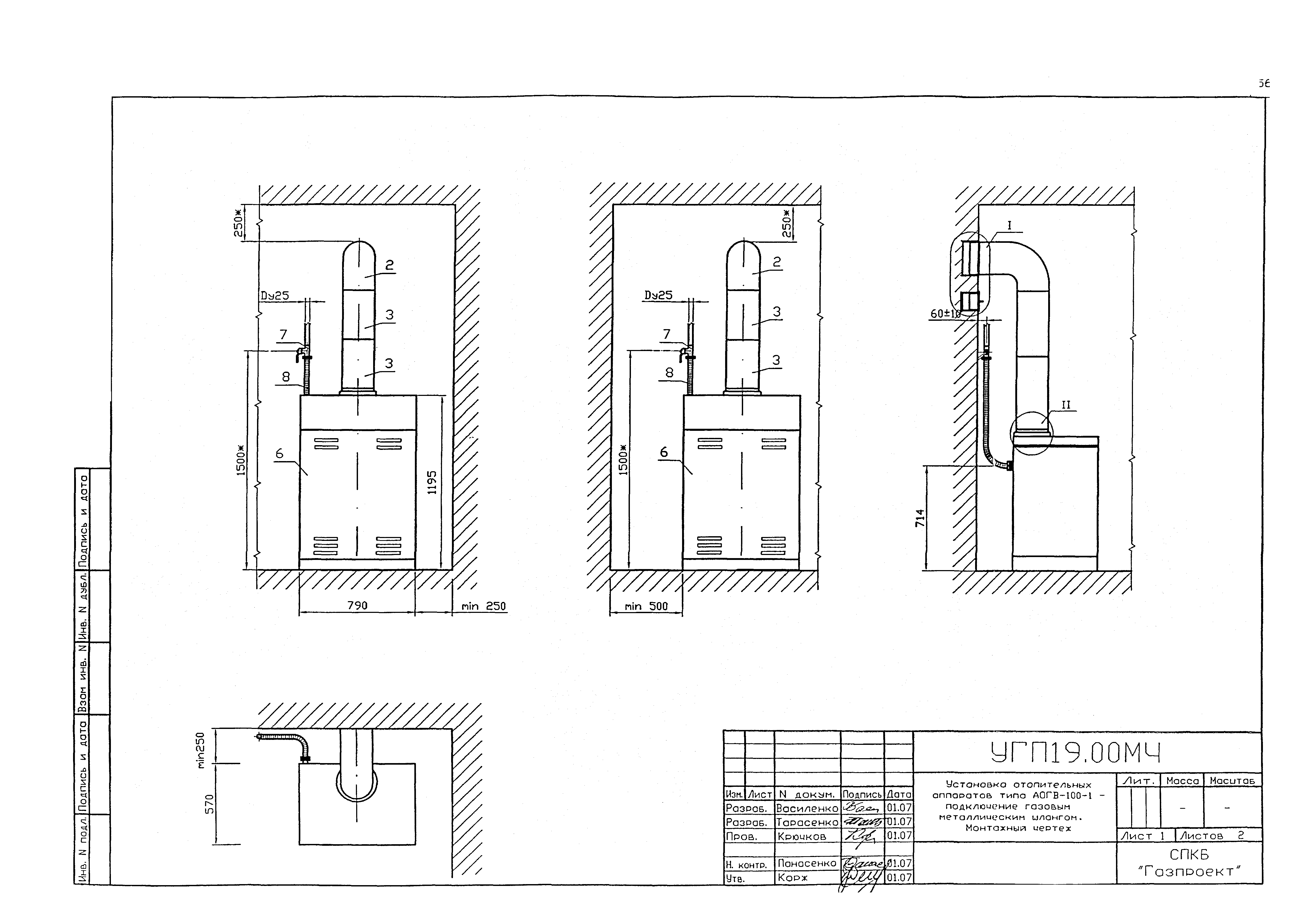
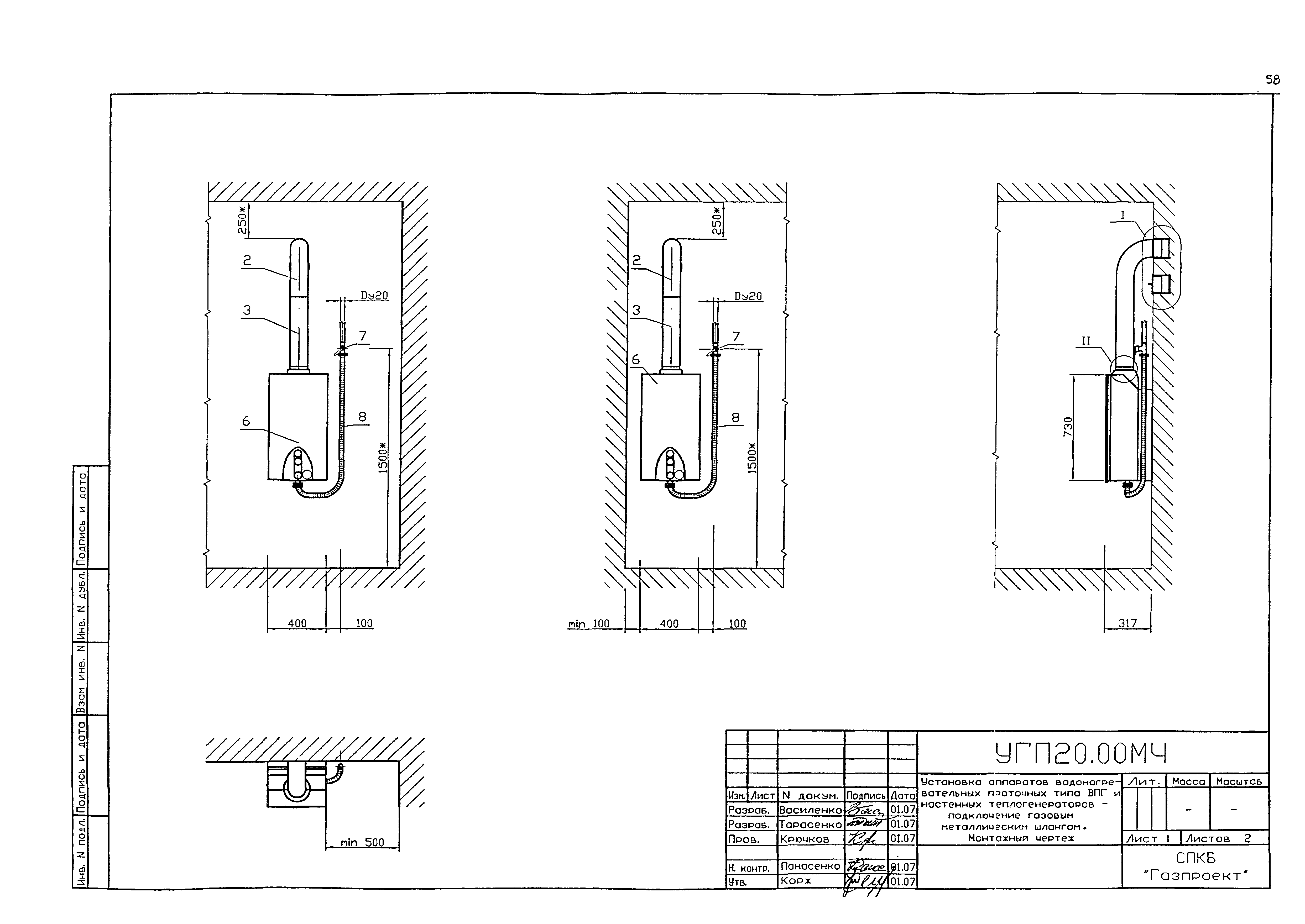
Скачать Серия 5.905-20.07 Выпуск 1. Установка газовых приборов и аппаратов. Рабочие чертежиДата актуализации: 01.01.2021
|
| Обозначение: | Серия 5.905-20.07 |
| Обозначение англ: | Series 5.905-20.07 |
| Статус: | не определен законодательством |
| Название рус.: | Выпуск 1. Установка газовых приборов и аппаратов. Рабочие чертежи |
| Дата добавления в базу: | 01.09.2013 |
| Дата актуализации: | 01.01.2021 |
| Дата введения: | 01.03.2007 |
| Разработан: | ОАО СПКБ Газпроект -БТЦ |
| Утверждён: | 16.02.2007 АО Росгазификация (Rosgazifikatsiya AO 5) |
| Издан: | Информационный бюллетень о нормативной, методической и типовой проектной документации ФГУП ЦПП (2007 г. (5)) |
| Заменяет собой: |






























































