Скачать Серия 5.905-10 Выпуск 1. Установка газовых приборов и аппаратов. Альбом 2. Рабочие чертежиДата актуализации: 01.01.2021
|
| Обозначение: | Серия 5.905-10 |
| Обозначение англ: | Series 5.905-10 |
| Статус: | не действует |
| Название рус.: | Выпуск 1. Установка газовых приборов и аппаратов. Альбом 2. Рабочие чертежи |
| Дата добавления в базу: | 01.09.2013 |
| Дата актуализации: | 01.01.2021 |
| Дата введения: | 01.04.1985 |
| Дата окончания срока действия: | 01.03.2007 |
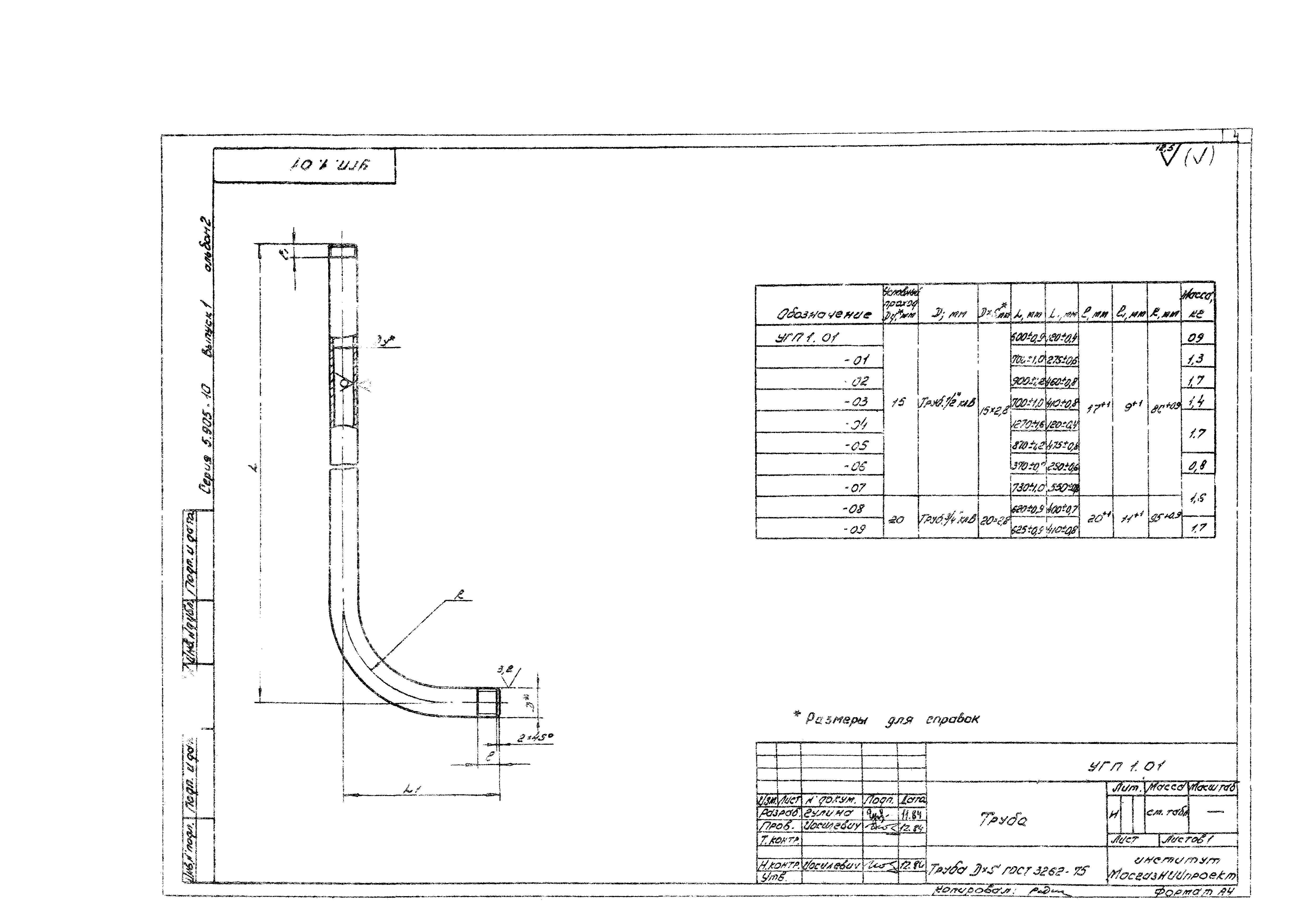
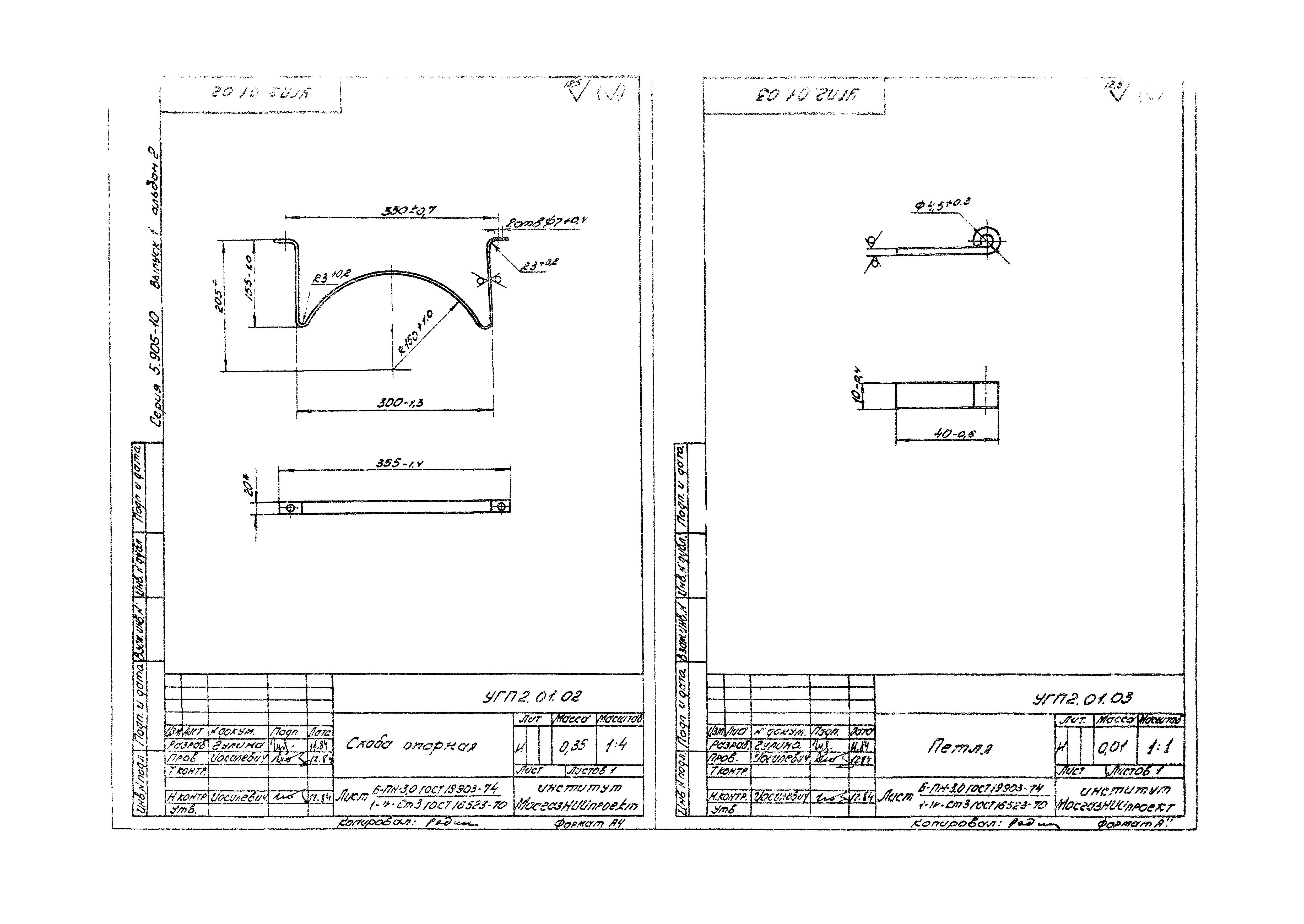
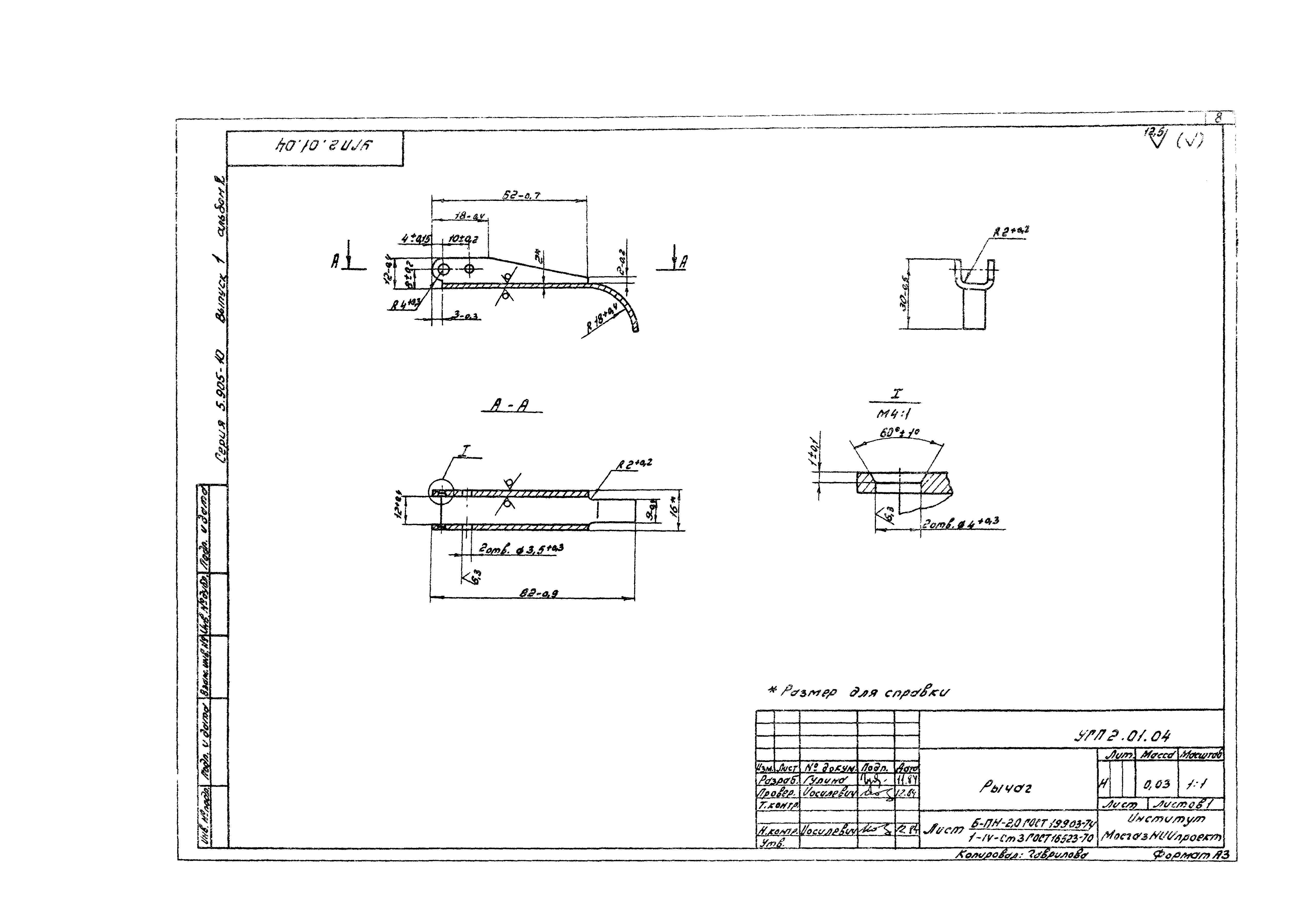
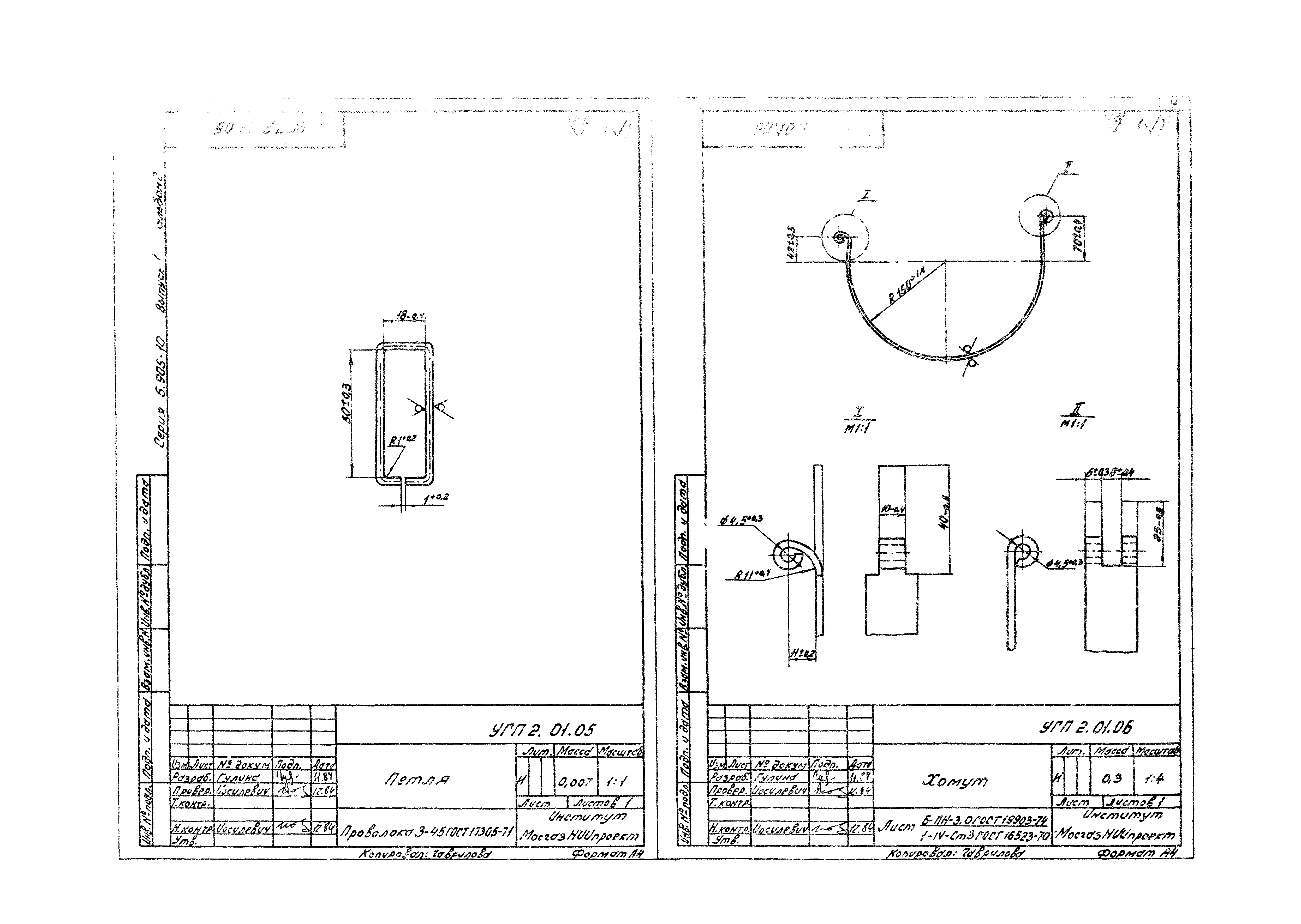
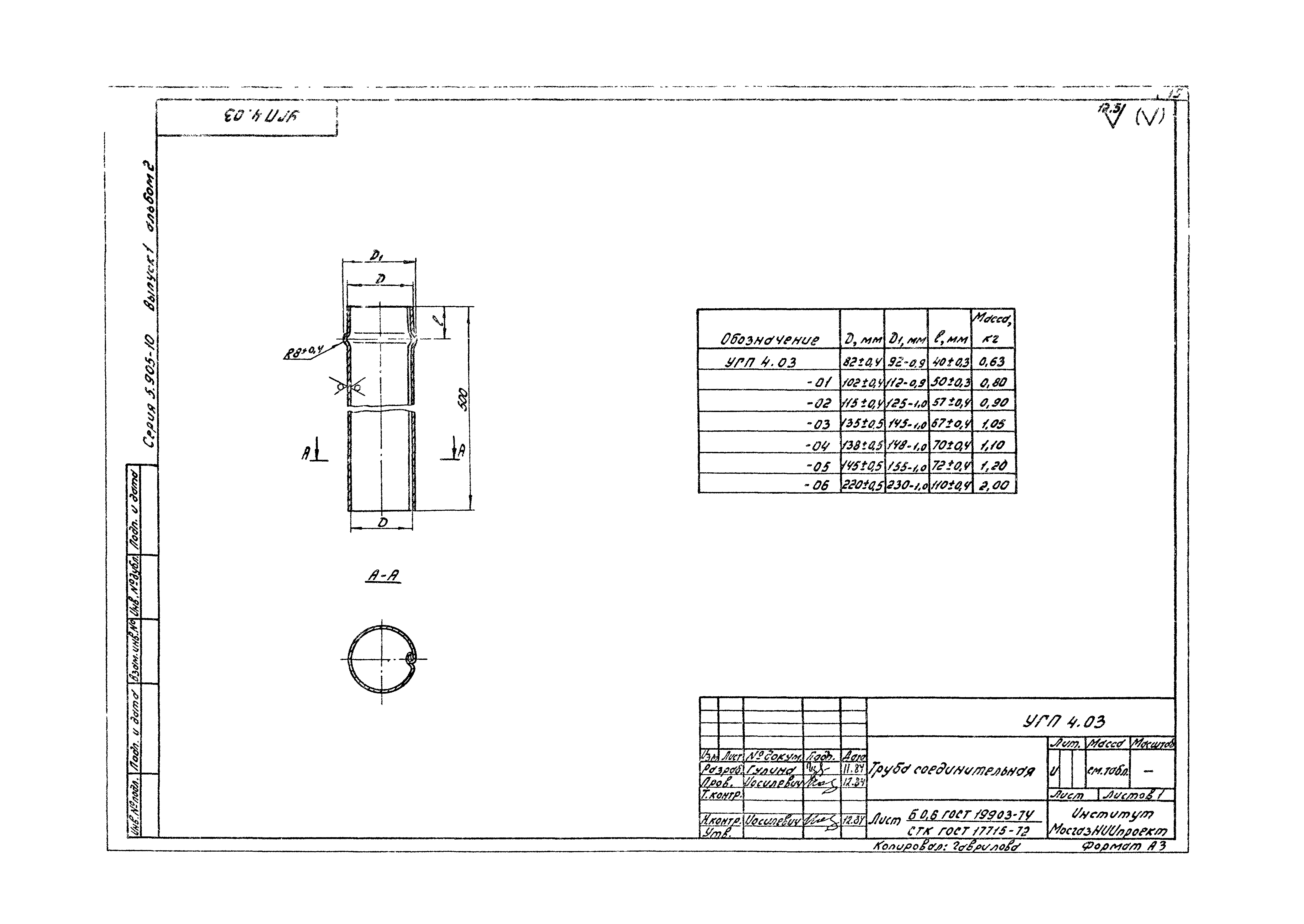
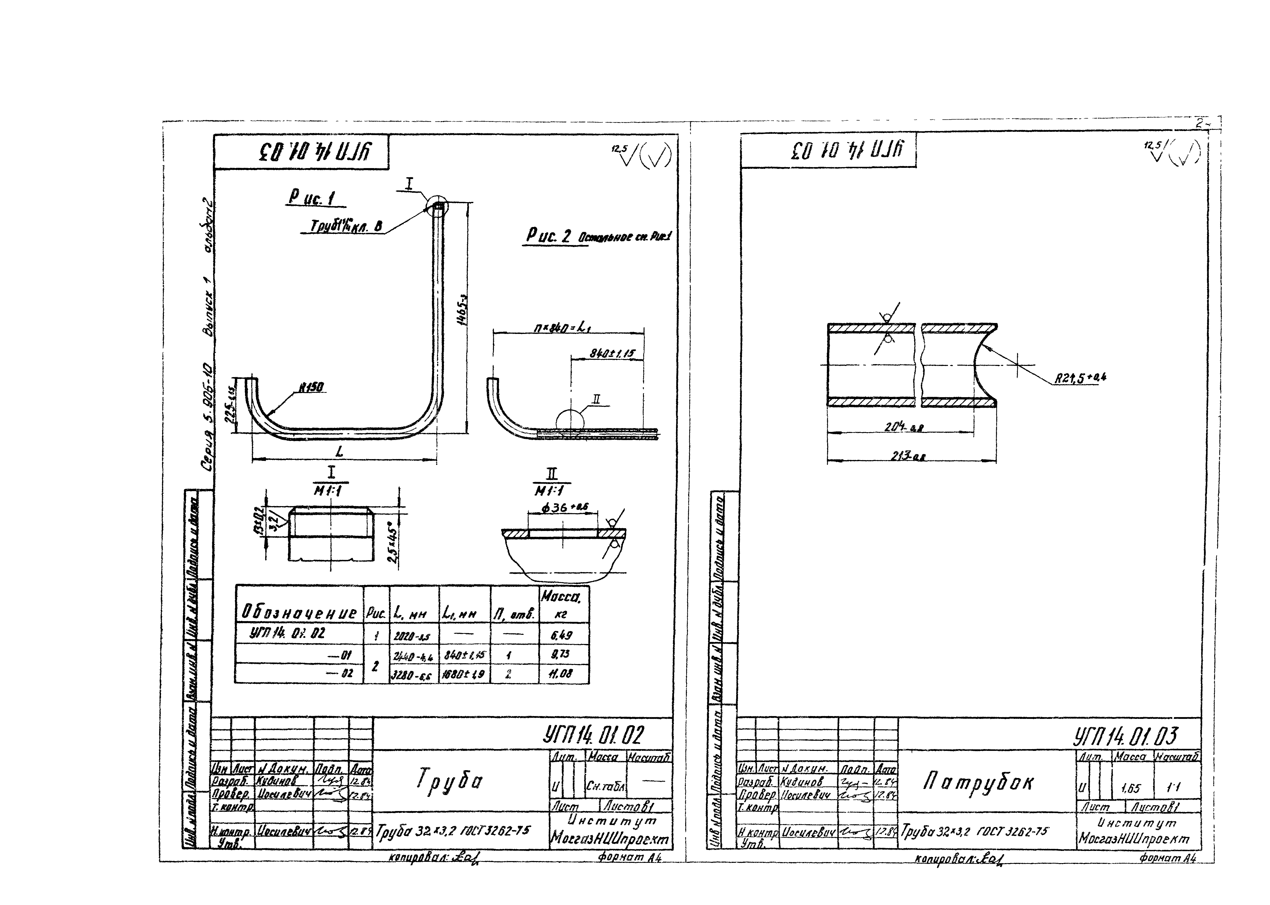
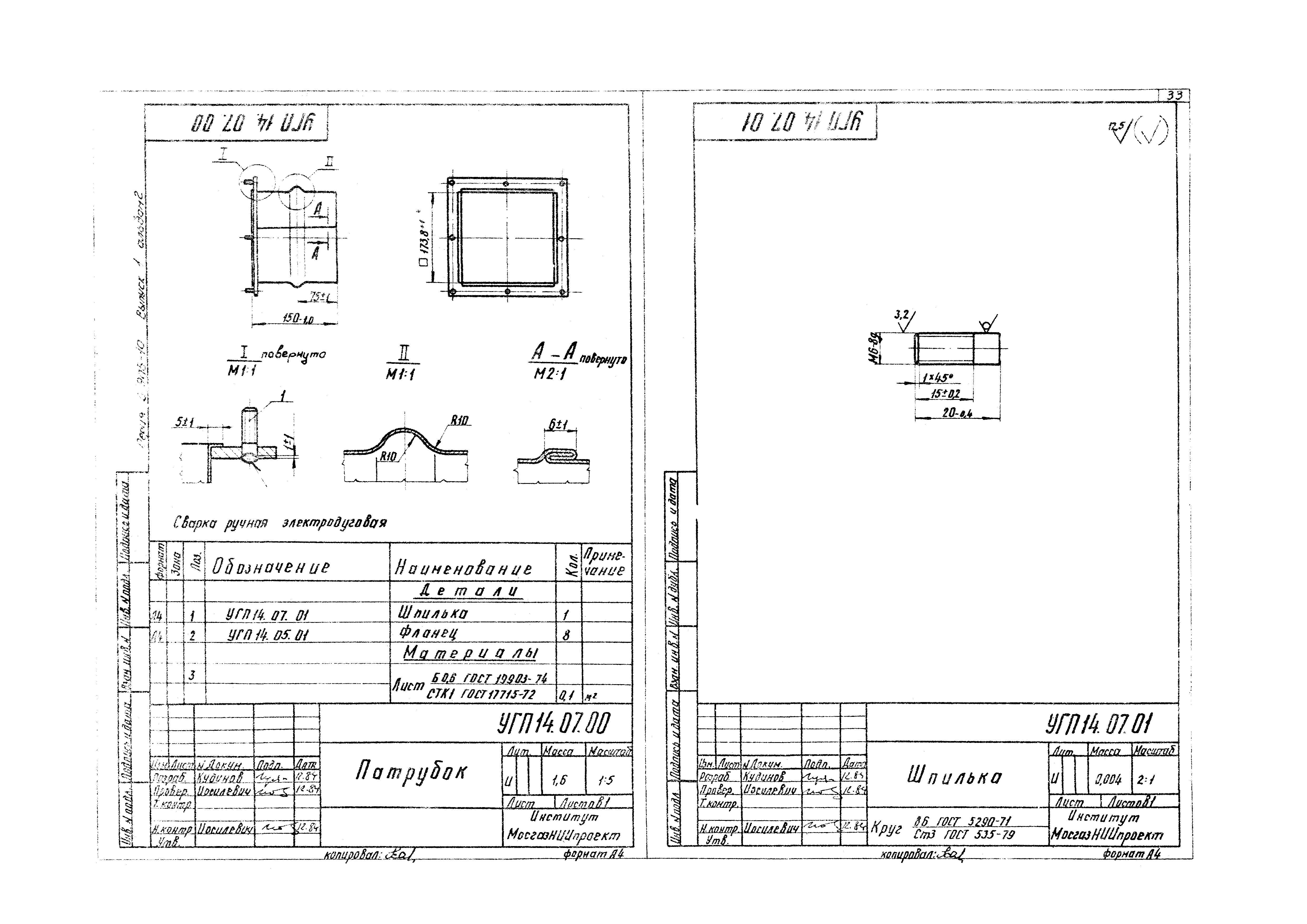
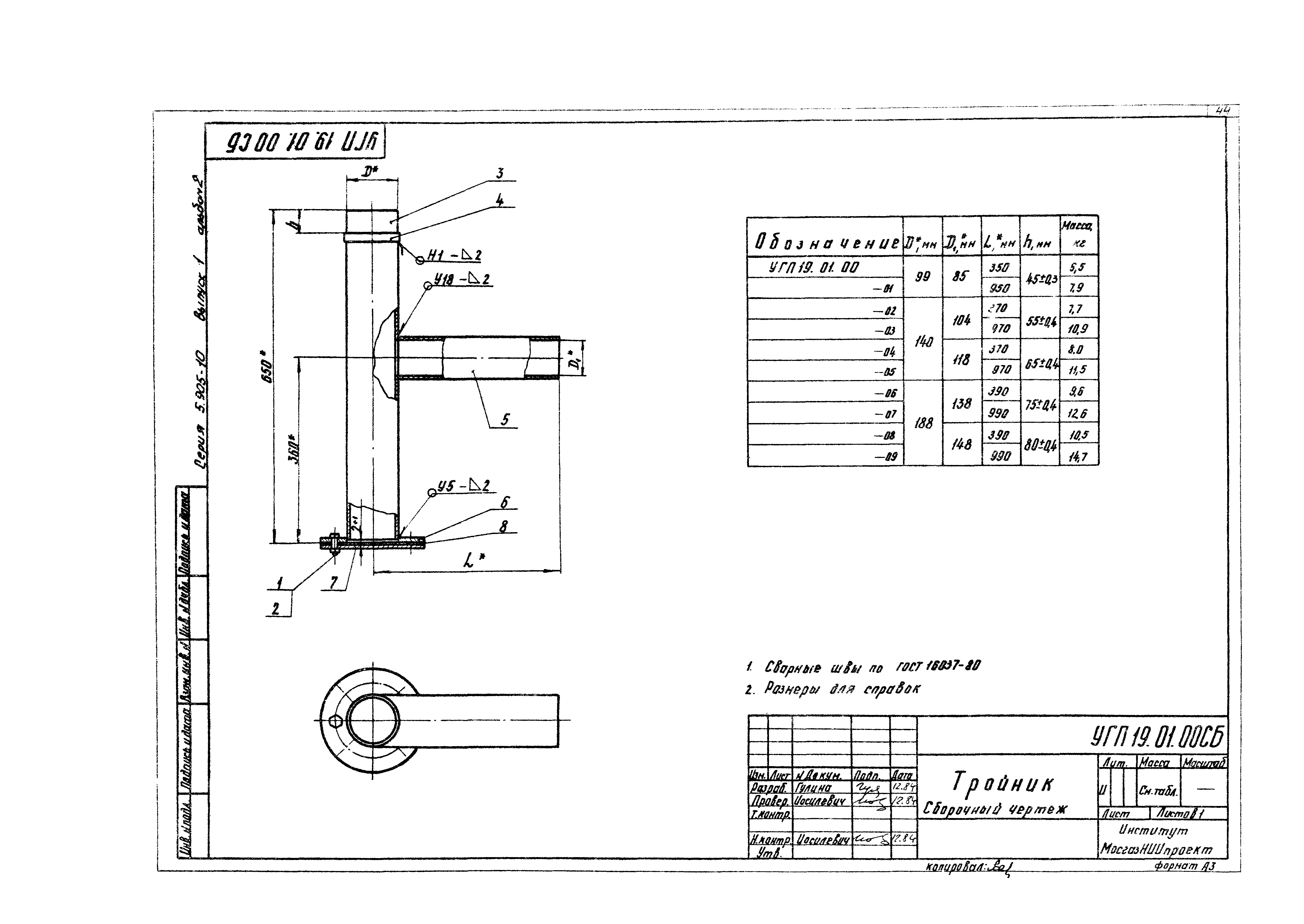
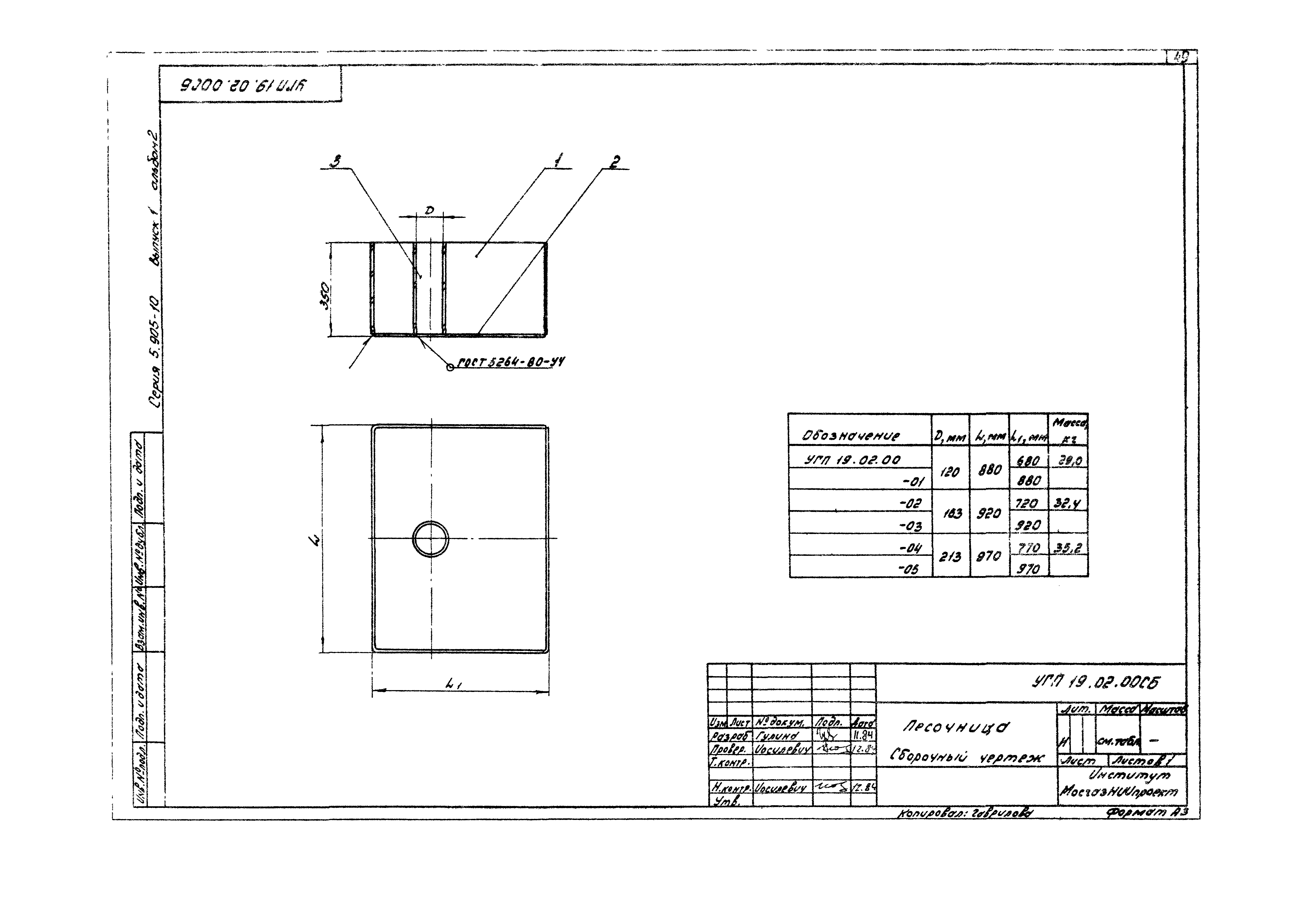
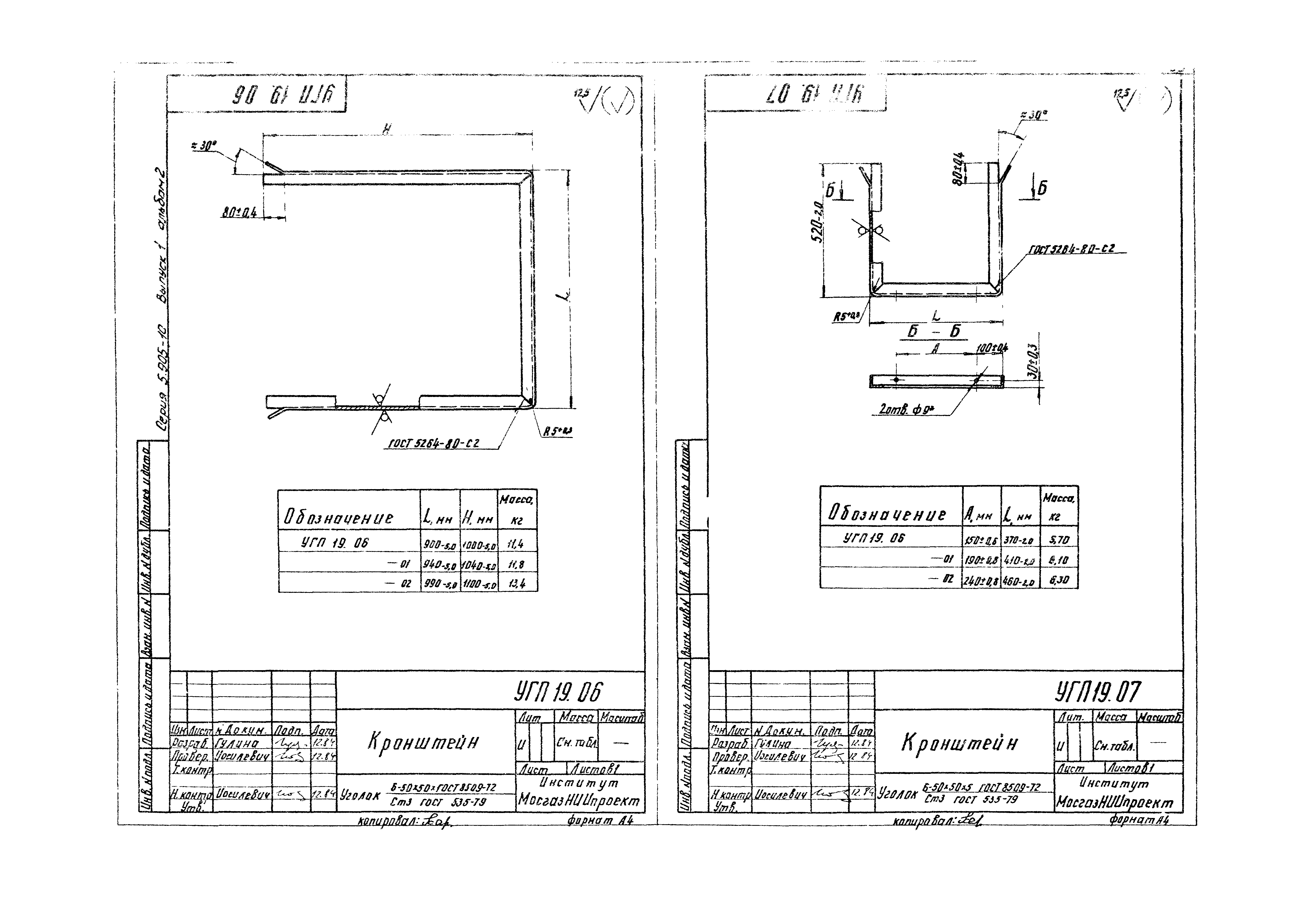
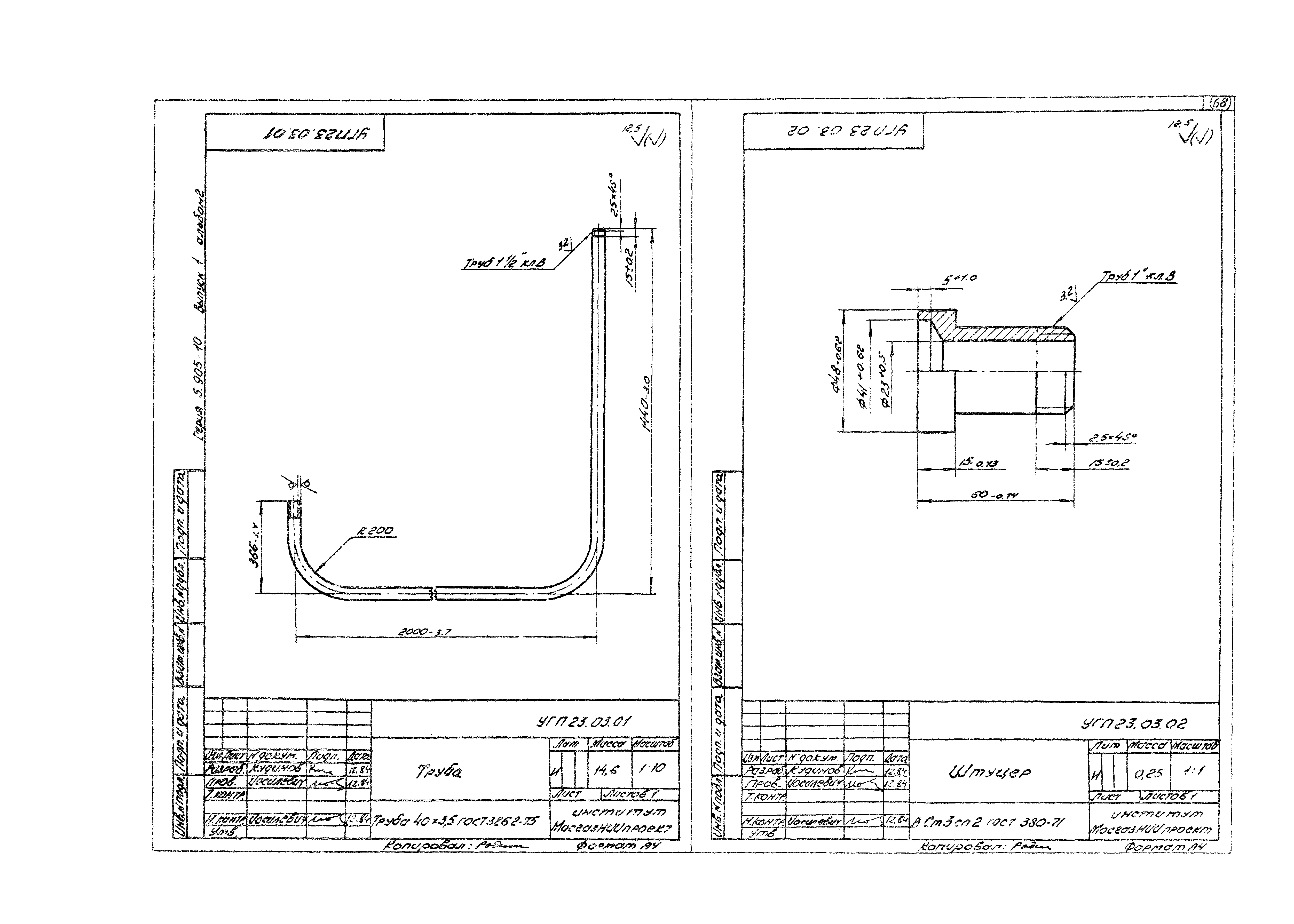
| Оглавление: | Титульный лист Содержание УГП1.01Труба УГП1.02 Труба УГП2.01.00 Хомут для баллона УГП2.01.00СБ Хомут для баллона УГП2.01.01 Крюк УГП2.01.02 Скоба опорная УГП2.01.03 Петля УГП2.01.04 Рычаг УГП2.01.05 Петля УГП2.01.06 Хомут УГП2.02 Хомут УГП2.03 Крючок УГП2.04 Болт анкерный УГП2.05 Ниппель УГП4.01.00 Заглушка УГП4.01.00СБ Заглушка УГП4.01.01 Рукоятка УГП4.01.02 Цилиндр УГП4.02 Колено УГП4.03 Труба соединительная УГП4.04 Патрубок УГП10.01.00 Кронштейн УГП10.01.02 Крючок УГП10.02 Кронштейн УГП12.01.00СБ Кронштейн УГП12.01.01.00 Труба соединительная УГП12.01.00СБ Труба соединительная УГП12.01.01.00 Фланец УГП12.02.00 Кронштейн УГП12.02.01 Крючок УГП12.02.02 Кронштейн УГП14.01.00 Газопровод УГП14.01.01 Штуцер УГП14.01.00СБ Газопровод УГП14.01.02 Труба УГП14.01.03 Патрубок УГП14.02.00 Дымоход УГП14.02.01 Лист передний УГП14.02.00СБ Дымоход УГП14.02.02 Патрубок УГП14.02.03 Патрубок УГП14.03.00 Зонт УГП14.03.01 Фланец УГП14.03.00СБ Зонт УГП14.03.02 Уголок УГП14.04.00 Колено УГП14.04.00СБ Колено УГП14.05.00 Колено УГП14.05.01 Фланец УГП14.06.00 Труба соединительная УГП14.07.00 Патрубок УГП14.07.01 Шпилька УГП14.09.00 Переходник УГП14.09.01 Короб УГП14.02.07 Ушко УГП14.10.00 Переходник УГП14.11 Хомут УГП14.12 Хомут УГП14.13 Уголок УГП14.15 Прокладка УГП17.02.00 Труба соединительная УГП17.02.00СБ Труба соединительная УГП17.03.00 Зонт УГП17.03.02 Ушко УГП17.03.00СБ Зонт УГП17.03.01 Рама УГП19.01.00 Тройник УГП19.01.00СБ Тройник УГП19.01.01 Труба УГП19.01.02 Кольцо УГП19.01.03 Труба УГП19.01.04 Фланец УГП19.01.05 Заглушка УГП19.02.00 Песочница УГП19.02.01 Короб УГП19.02.00СБ Песочница УГП19.02.02 Дно УГП19.02.03 Труба УГП19.03.00 Хомут УГП19.05 Полухомут УГП19.03.00СБ Хомут УГП19.03.01 Полухомут УГП19.06 Кронштейн УГП19.07 Кронштейн УГП19.08 Фартук УГП19.09 Кровля УГП19.01.00 Кронштейн УГП21.01.00СБ Кронштейн УГП21.01.01 Уголок УГП21.01.02 Уголок УГП22.01.00 Изолятор УГП22.01.00СБ Изолятор УГП12.03 Труба УГП23.01.00 Задвижка шиберная УГП23.01.00СБ Задвижка шиберная УГП23.01.01 Патрубок УГП23.01.02 Лист УГП23.01.03 Лист УГП23.01.04 Рукоятка УГП23.01.05 Щека УГП23.02.00 Переход УГП23.02.00СБ Переход УГП23.02.01 Отвод УГП23.02.02 Диффузор УГП23.03.00 Газопровод УГП23.03.00СБ Газопровод УГП23.03.01 Труба УГП23.03.02 Штуцер |
| Разработан: | Институт Мосгазниипроект Управления топливно-энергетического хозяйства Исполкома Московского городского Совета народных депутатов |
| Утверждён: | 26.12.1984 Главстройпроект Госстроя СССР (52) |
| Издан: | ЦИТП Госстроя СССР (CITP, Gosstroy (USSR) 1985 г. ) |
| Чем заменён: |





































































