Скачать Серия 5.905-10 Выпуск 2. Газооборудование хлебопекарных печей. Альбом 1. Монтажные чертежиДата актуализации: 01.01.2021
|
| Обозначение: | Серия 5.905-10 |
| Обозначение англ: | Series 5.905-10 |
| Статус: | не действует |
| Название рус.: | Выпуск 2. Газооборудование хлебопекарных печей. Альбом 1. Монтажные чертежи |
| Дата добавления в базу: | 01.09.2013 |
| Дата актуализации: | 01.01.2021 |
| Дата введения: | 01.04.1985 |
| Дата окончания срока действия: | 01.03.2007 |
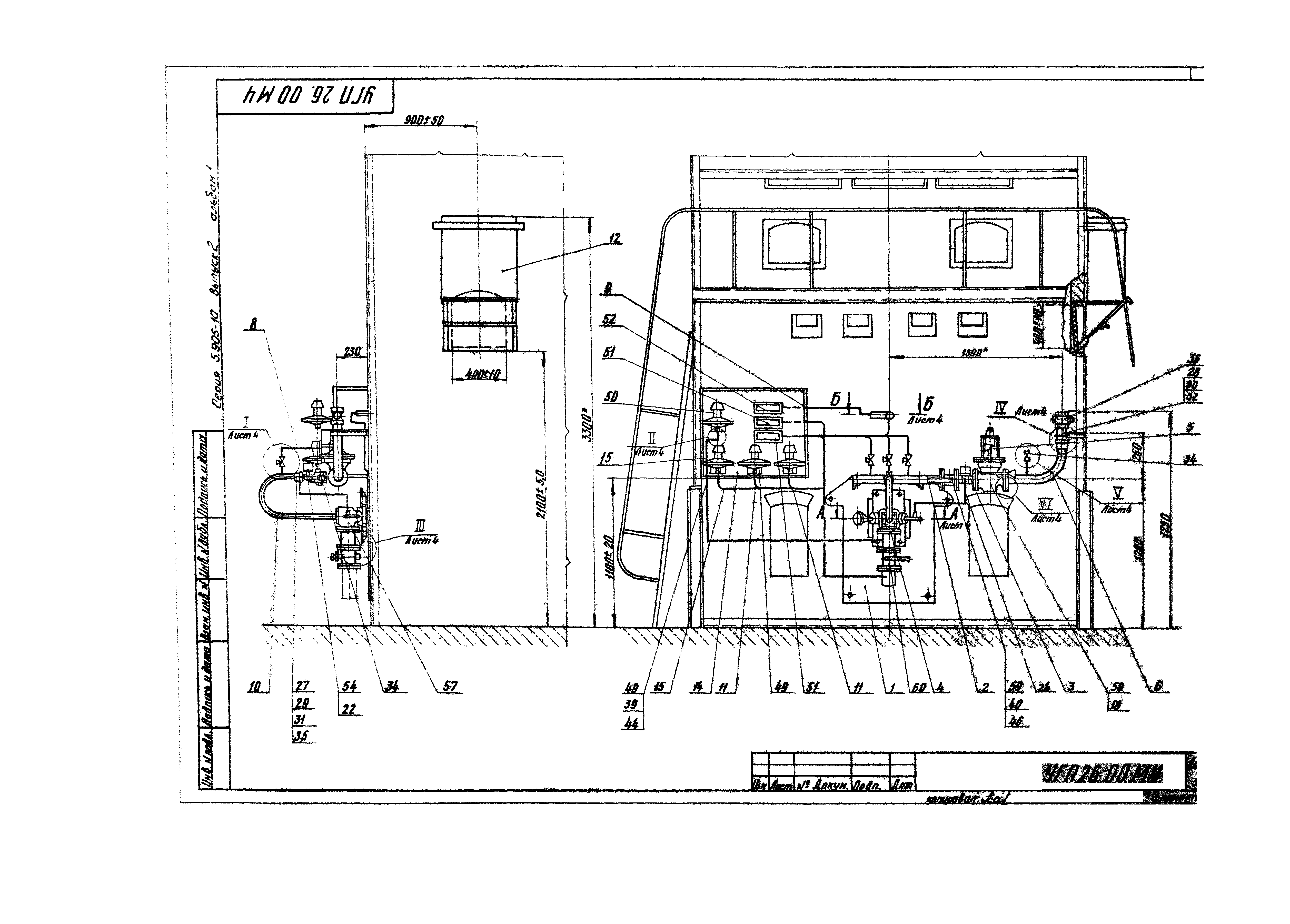
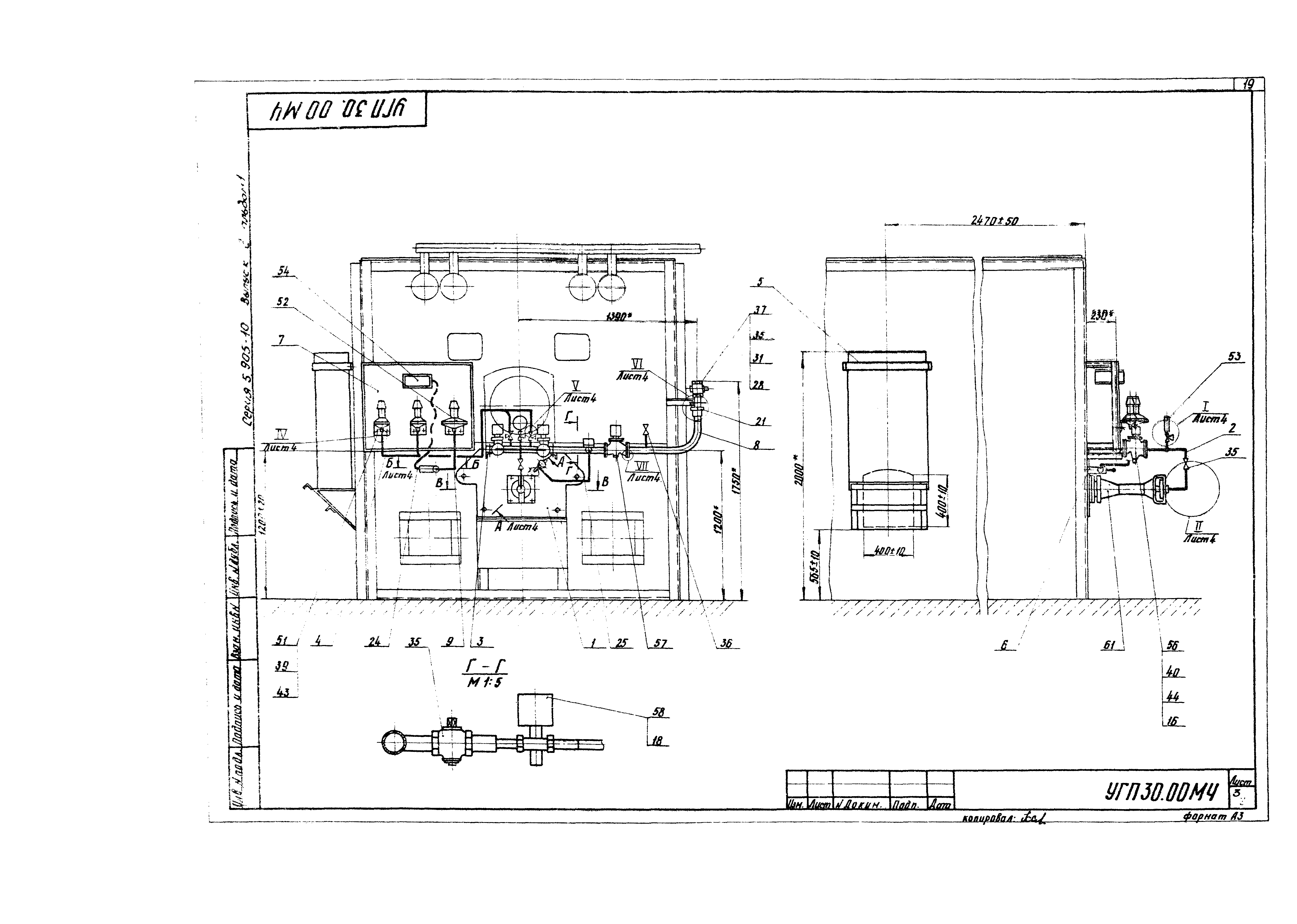
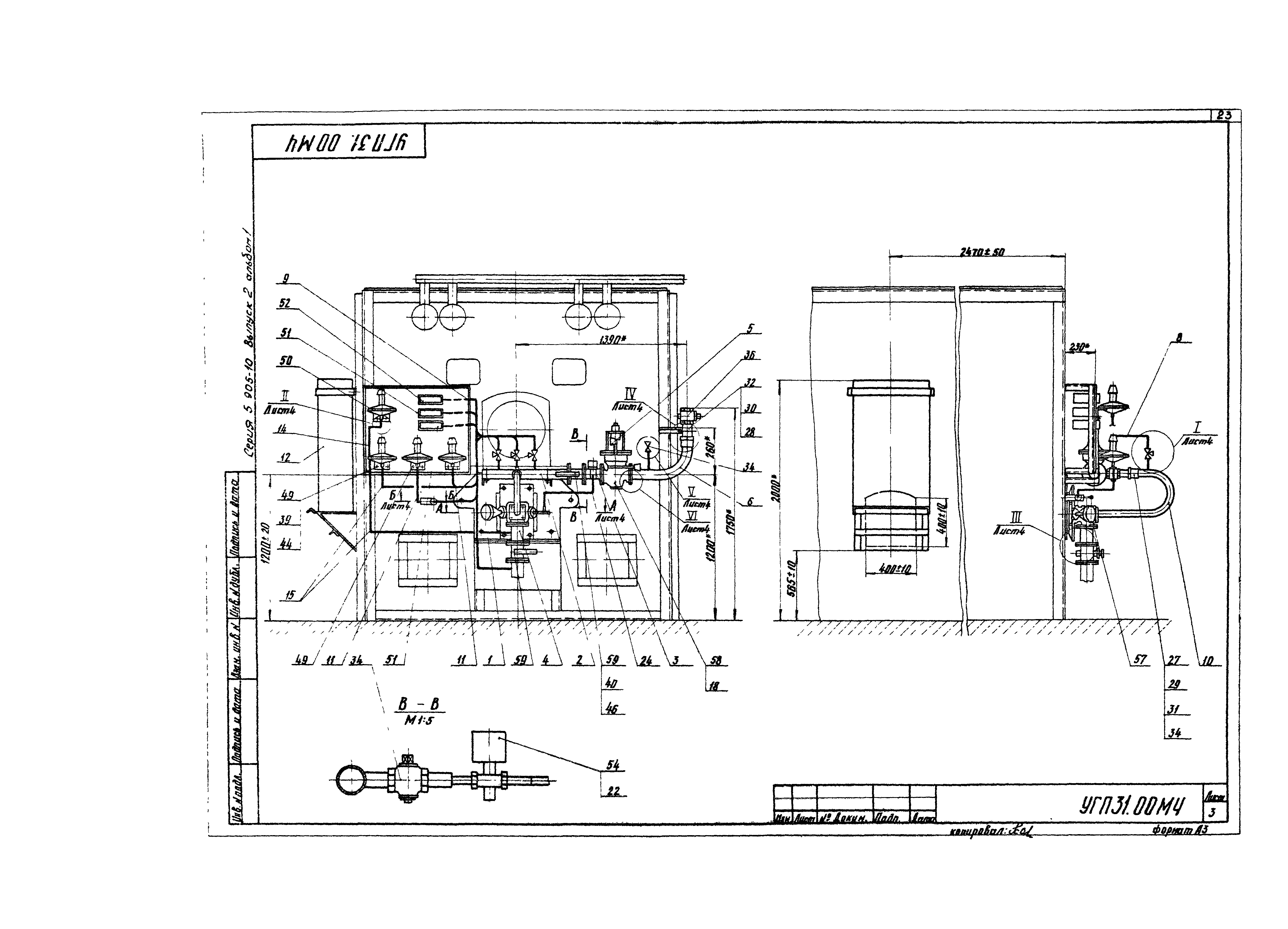
| Оглавление: | Титульный лист Содержание УГП25.00МЧ Газооборудование хлебопекарной печи ХПА-40 с горелками среднего давления УГП26.00МЧ Газооборудование хлебопекарной печи ХПА-40 с горелкой низкого давления УГП27.00 Газооборудование хлебопекарной печи РЗ-ХПУ-25 с горелкой среднего давления УГП27.00МЧ Газооборудование хлебопекарной печи РЗ-ХПУ-25 с горелкой среднего давления УГП28.00 Газооборудование хлебопекарной печи ПХС-25М с горелкой среднего давления УГП28.00МЧ Газооборудование хлебопекарной печи ПХС-25М с горелкой среднего давления УГП29.00 Газооборудование хлебопекарной печи ФТЛ-2-В1 с горелкой среднего давления УГП29.00МЧ Газооборудование хлебопекарной печи ФТЛ-2-В1 с горелкой среднего давления УГП30.00МЧ Газооборудование хлебопекарной печи ФТЛ-20-2М с горелкой среднего давления УГП31.00МЧ Газооборудование хлебопекарной печи ФТЛ-20-2М с горелкой низкого давления |
| Разработан: | Институт Мосгазниипроект Управления топливно-энергетического хозяйства Исполкома Московского городского Совета народных депутатов |
| Утверждён: | 26.12.1984 Главстройпроект Госстроя СССР (52) |
| Издан: | ЦИТП Госстроя СССР (CITP, Gosstroy (USSR) 1985 г. ) |
| Чем заменён: |

























