Скачать Серия 5.905-10 Выпуск 2. Газооборудование хлебопекарных печей. Альбом 2. Рабочие чертежиДата актуализации: 01.01.2021
|
| Обозначение: | Серия 5.905-10 |
| Обозначение англ: | Series 5.905-10 |
| Статус: | не действует |
| Название рус.: | Выпуск 2. Газооборудование хлебопекарных печей. Альбом 2. Рабочие чертежи |
| Дата добавления в базу: | 01.09.2013 |
| Дата актуализации: | 01.01.2021 |
| Дата введения: | 01.04.1985 |
| Дата окончания срока действия: | 01.03.2007 |
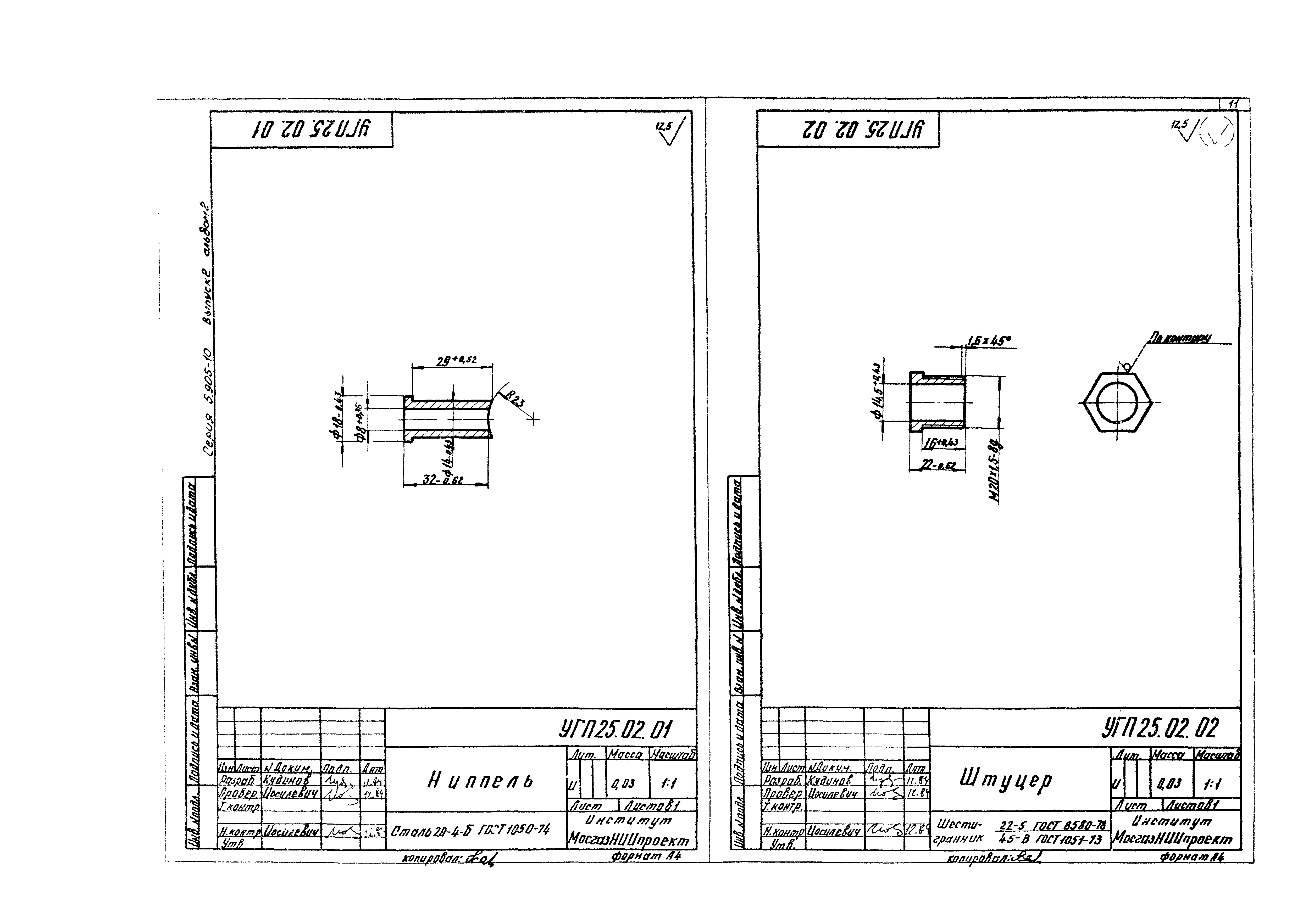
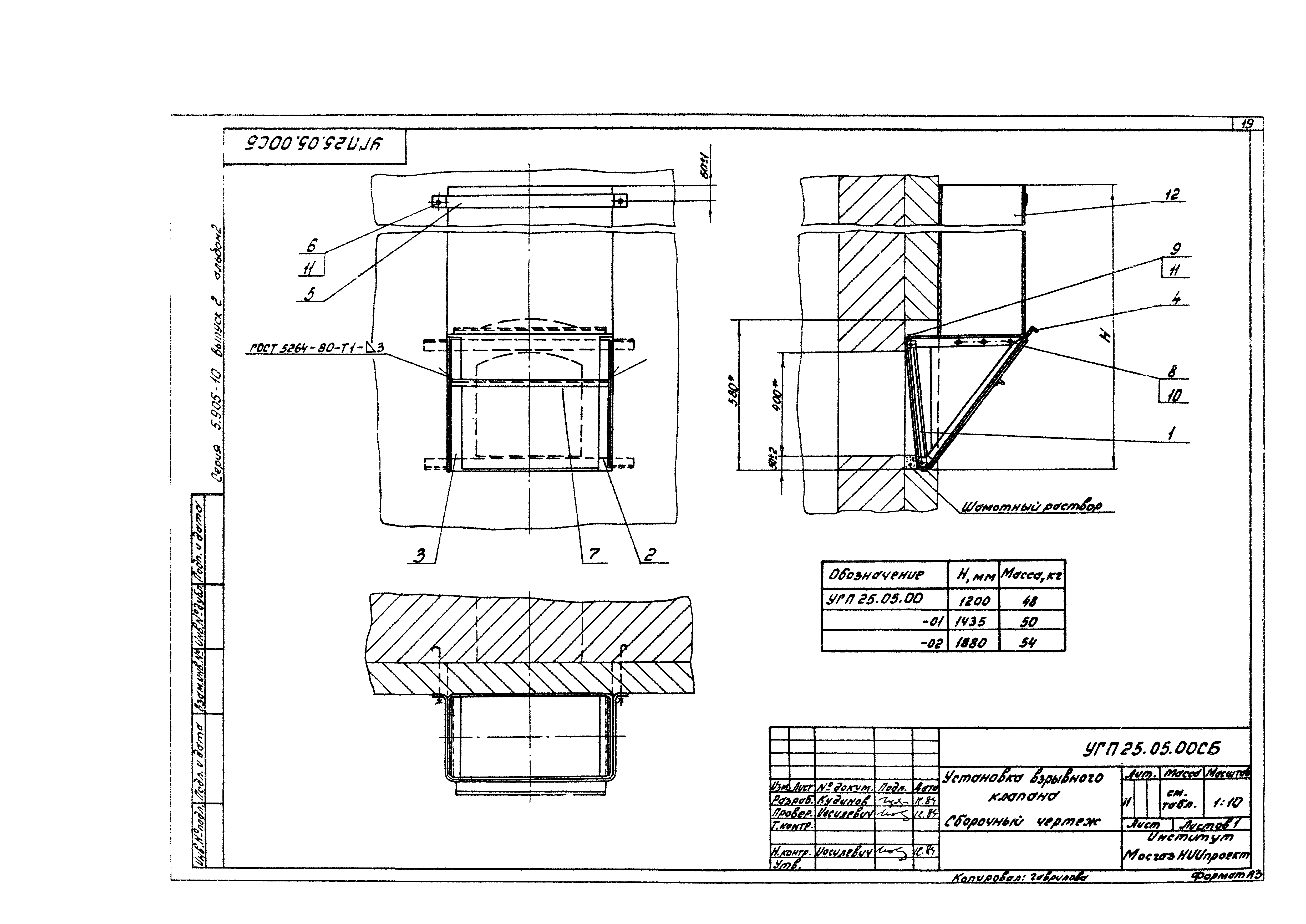
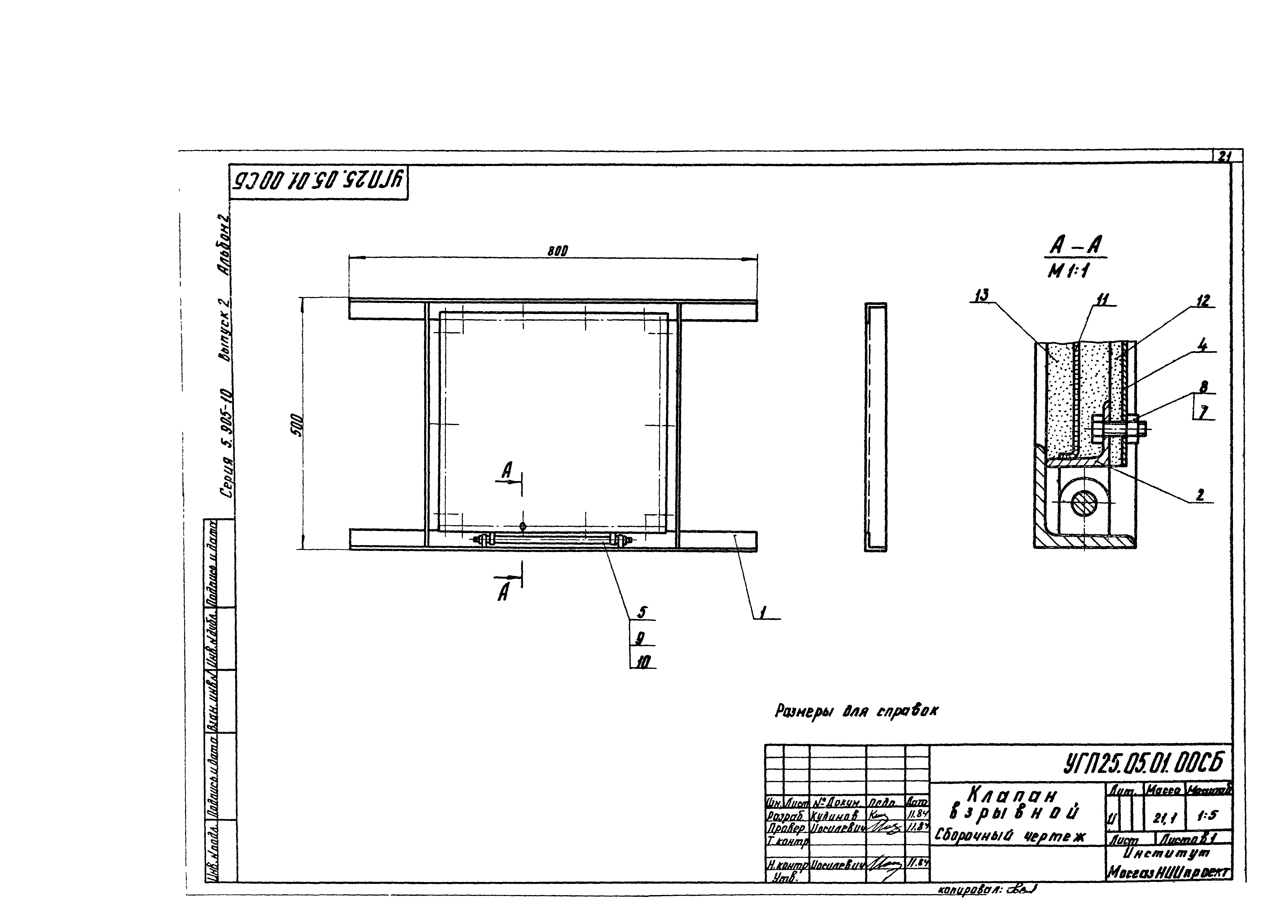
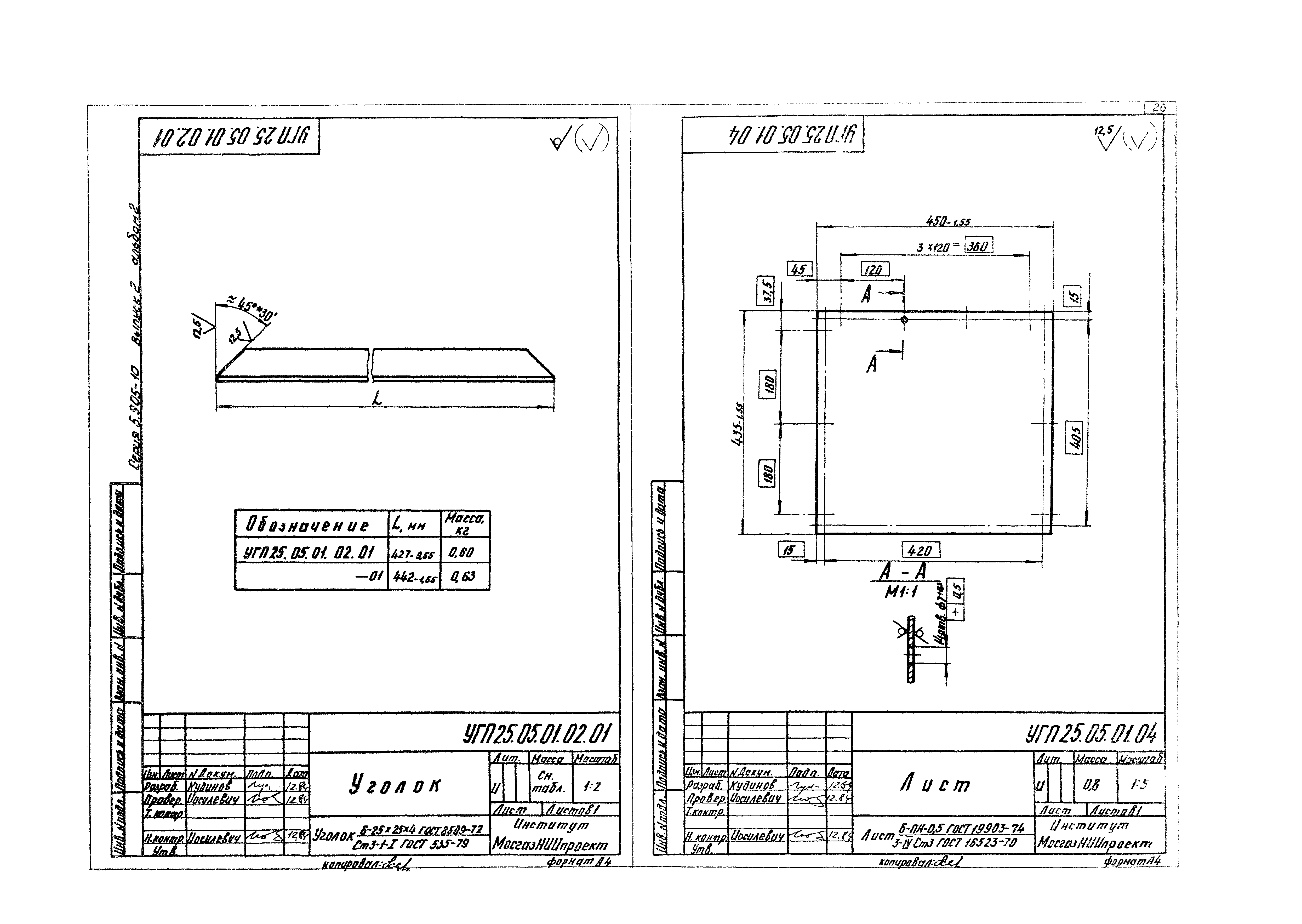
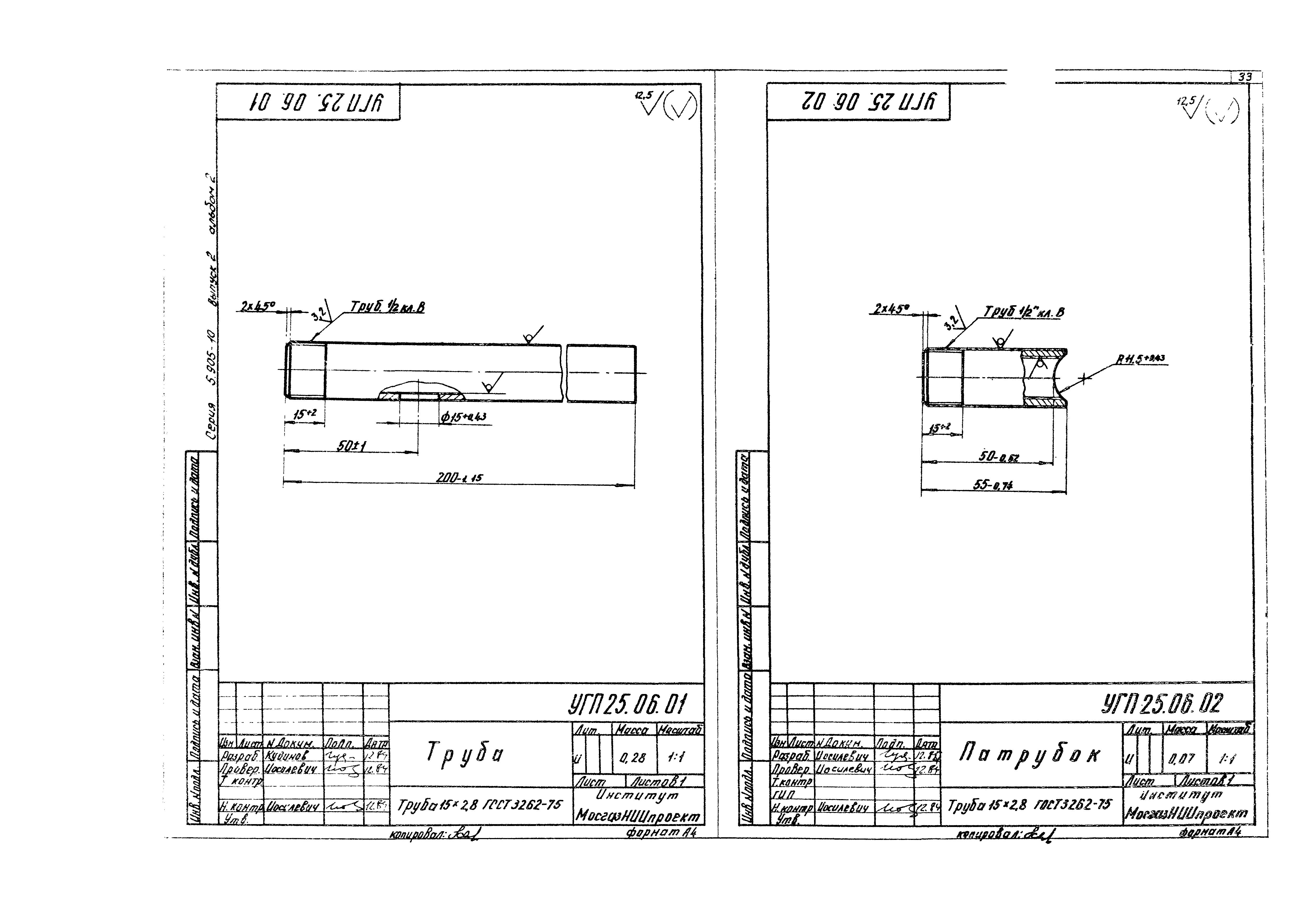
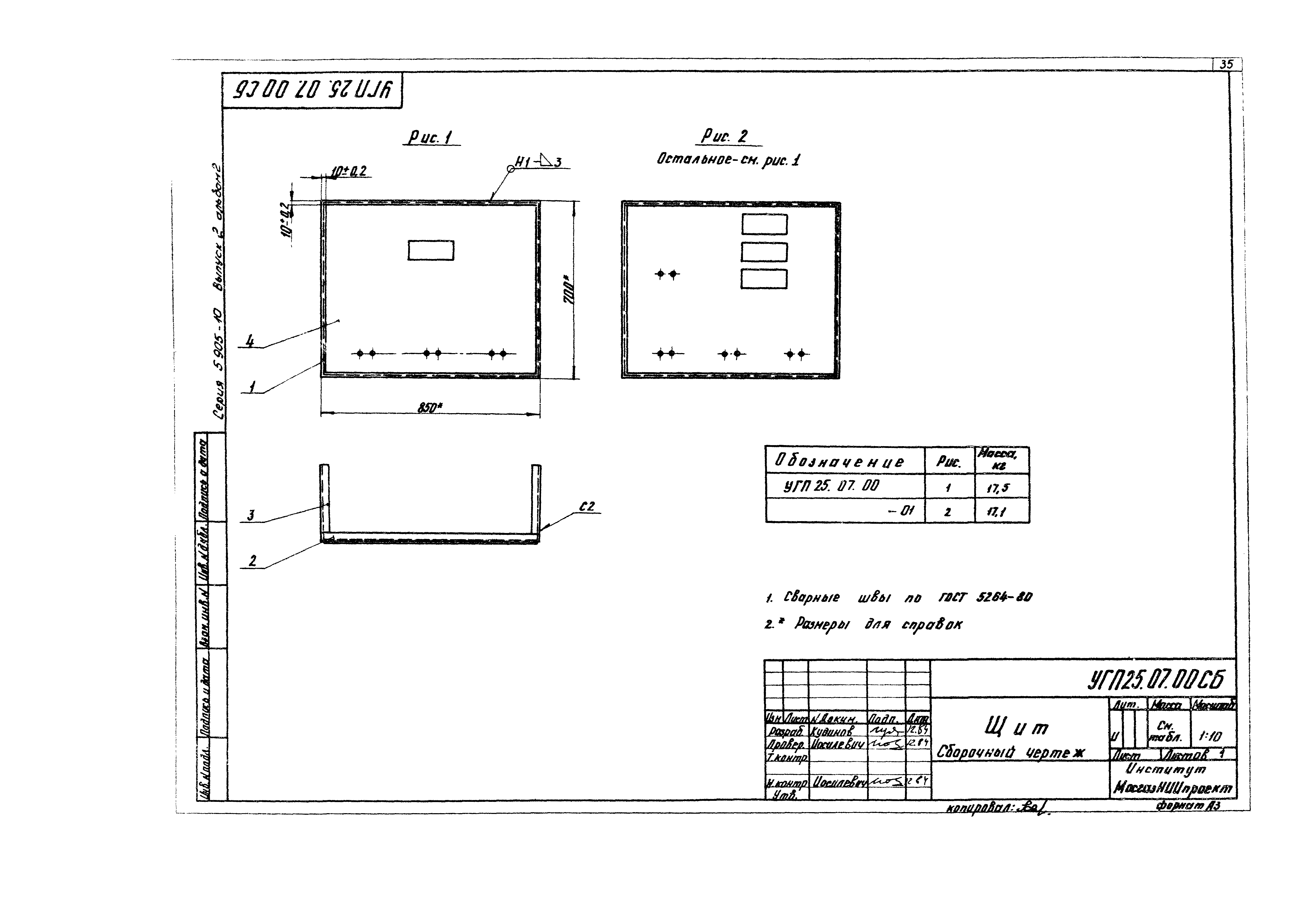
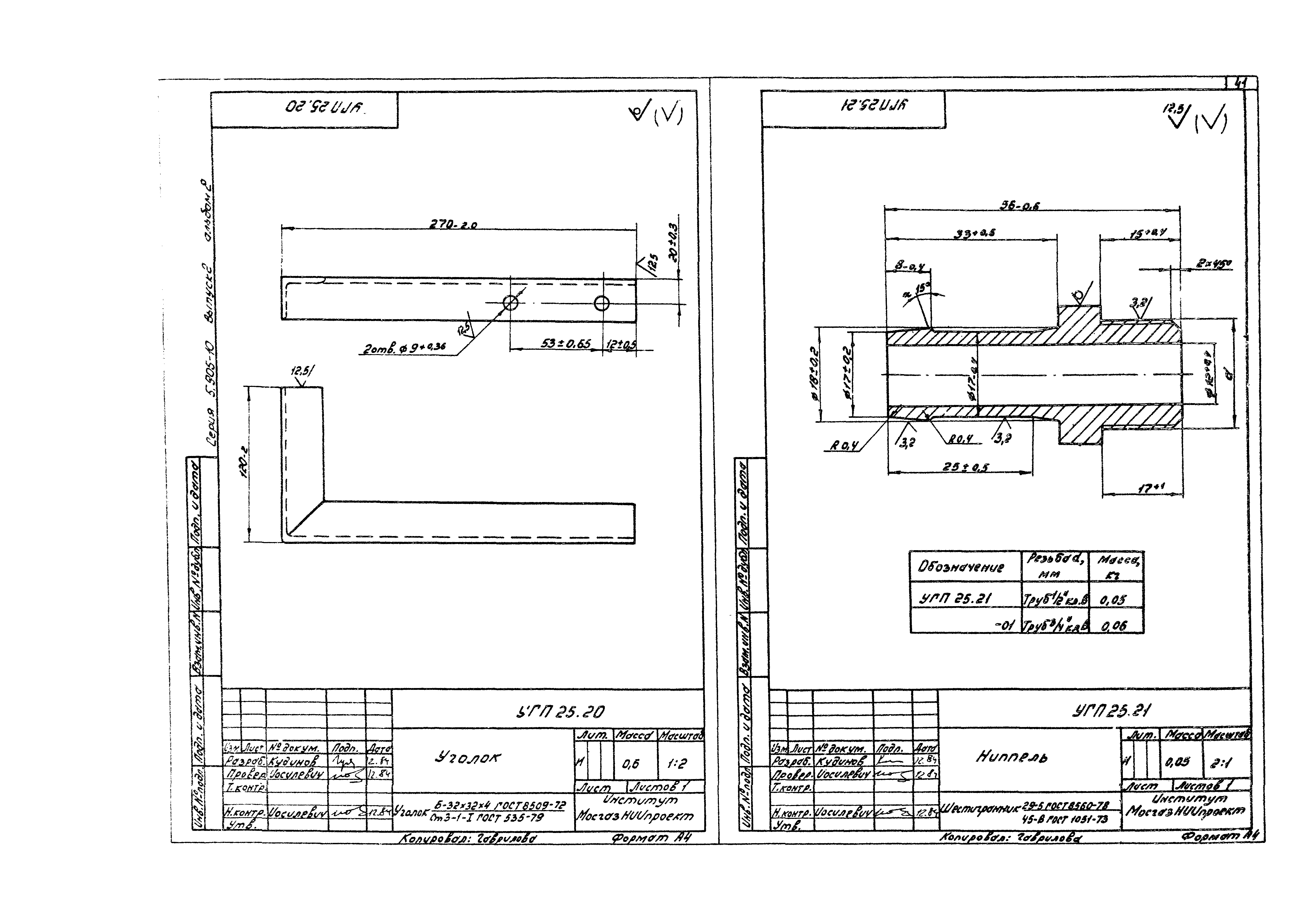
| Оглавление: | Титульный лист Содержание УГП25.01.00 Плита фронтовая УГП25.01.01.00 Глазок УГП25.01.00СБ Плита фронтовая УГП25.01.02 Плита УГП25.01.03 Труба УГП25.01.04 Фланец УГП25.01.05 Палец УГП25.01.06 Уголок УГП25.01.07 Фланец УГП25.02.00 Коллектор УГП25.02.05 Патрубок УГП25.02.00СБ Коллектор УГП25.02.01 Ниппель УГП25.02.02 Штуцер УГП25.02.03 Заглушка УГП25.02.04 Труба УГП25.02.06 Патрубок УГП25.03.00 Коллектор УГП25.03.00СБ Коллектор УГП25.03.01 Труба УГП25.03.02 Отвод УГП25.04.00 Трубка УГП25.04.00СБ Трубка УГП25.04.01 Гайка накидная УГП25.04.02 Ниппель УГП25.04.03 Ниппель УГП25.05.00 Установка взрывного клапана УГП25.05.00СБ Установка взрывного клапана УГП25.05.01.00 Клапан взрывной УГП25.05.01.05 Ось УГП25.05.01.00СБ Клапан взрывной УГП25.05.01.01.00 Седло УГП25.05.01.01.01 Уголок УГП25.05.01.01.00СБ Седло УГП25.05.01.01.02 Угольник УГП25.05.01.01.03 Петля УГП25.05.01.02.00 Рамка УГП25.05.01.02.00СБ Рамка УГП25.05.01.02.01 Уголок УГП25.05.01.04 Лист УГП25.05.02.00 Стойка УГП25.05.02.00СБ Стойка УГП25.05.02.02 Уголок УГП25.05.02.03 Уголок УГП25.05.02.01 Косынка УГП25.05.04 Лист УГП25.05.05 Хомут УГП25.05.08 Болт анкерный УГП25.05.08 Короб УГП25.06.00 Устройство отборное УГП25.06.00СБ Устройство отборное УГП25.06.01 Труба УГП25.06.02 Патрубок УГП25.07.00 Щит УГП25.07.01 Уголок УГП25.07.00СБ Щит УГП25.07.04 Лист УГП25.08.00 Колено УГП08.00СБ Колено УГП25.08.01 Труба УГП25.08.02 Штуцер УГП25.09.00 Трубка УГП25.10.00 Хомут УГП25.10.01 Хомут УГП25.18 Штуцер УГП25.19 Труба УГП25.20 Уголок УГП25.21 Ниппель УГП26.01.00 Фронтовая плита УГП26.01.00СБ Фронтовая плита УГП26.01.01 Плита УГП26.01.02 Уголок УГП26.01.03 Шпилька УГП26.02.00 Коллектор УГП26.02.00СБ Коллектор УГП26.02.01 Труба УГП26.02.02 Патрубок УГП26.02.03 Заглушка УГП26.03.00 Катушка УГП26.03.00СБ Катушка УГП26.03.01 Труба УГП26.03.02 Патрубок УГП26.04.00 Катушка УГП26.04.00СБ Катушка УГП26.05.00 Установка электромагнита ПКН УГП26.05.01 Толкатель УГП26.05.00СБ Установка электромагнита ПКН УГП26.05.02 Кронштейн УГП26.06.00 Колено УГП26.06.00СБ Колено УГП26.07.00 Фланец УГП26.07.00СБ Фланец УГП26.07.01 Фланец УГП26.27.02 Втулка УГП26.08.00 Трубка УГП26.09.00 Трубка УГП26.10.00СБ Отвод УГП26.10.01 Труба УГП26.16 Уголок УГП30.01.00 Плита фронтовая УГП30.01.02 Плита УГП30.01.00СБ Плита фронтовая УГП30.02.00 Коллектор УГП30.02.01 Труба УГП30.02.00СБ Коллектор |
| Разработан: | Институт Мосгазниипроект Управления топливно-энергетического хозяйства Исполкома Московского городского Совета народных депутатов |
| Утверждён: | 26.12.1984 Главстройпроект Госстроя СССР (52) |
| Издан: | ЦИТП Госстроя СССР (CITP, Gosstroy (USSR) 1985 г. ) |
| Чем заменён: |
































































