Скачать Серия 1.494-10 Решетки щелевые регулирующие, тип Р. Рабочие чертежиДата актуализации: 01.01.2021
|
| Обозначение: | Серия 1.494-10 |
| Обозначение англ: | Series 1.494-10 |
| Статус: | не определен законодательством |
| Название рус.: | Решетки щелевые регулирующие, тип "Р". Рабочие чертежи |
| Дата добавления в базу: | 01.09.2013 |
| Дата актуализации: | 01.01.2021 |
| Дата введения: | 15.01.1972 |
| Дата окончания срока действия: | 30.06.2003 |
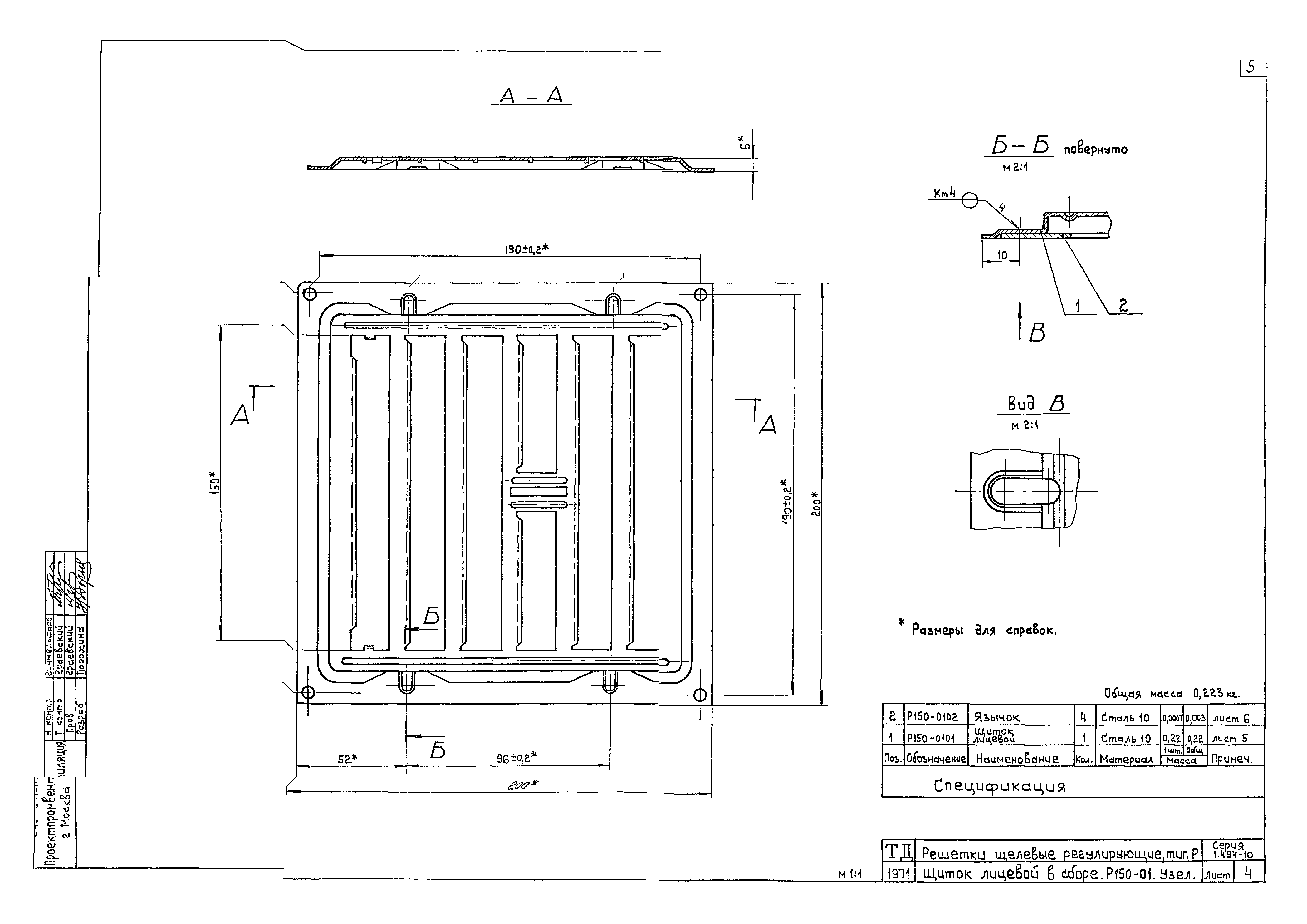
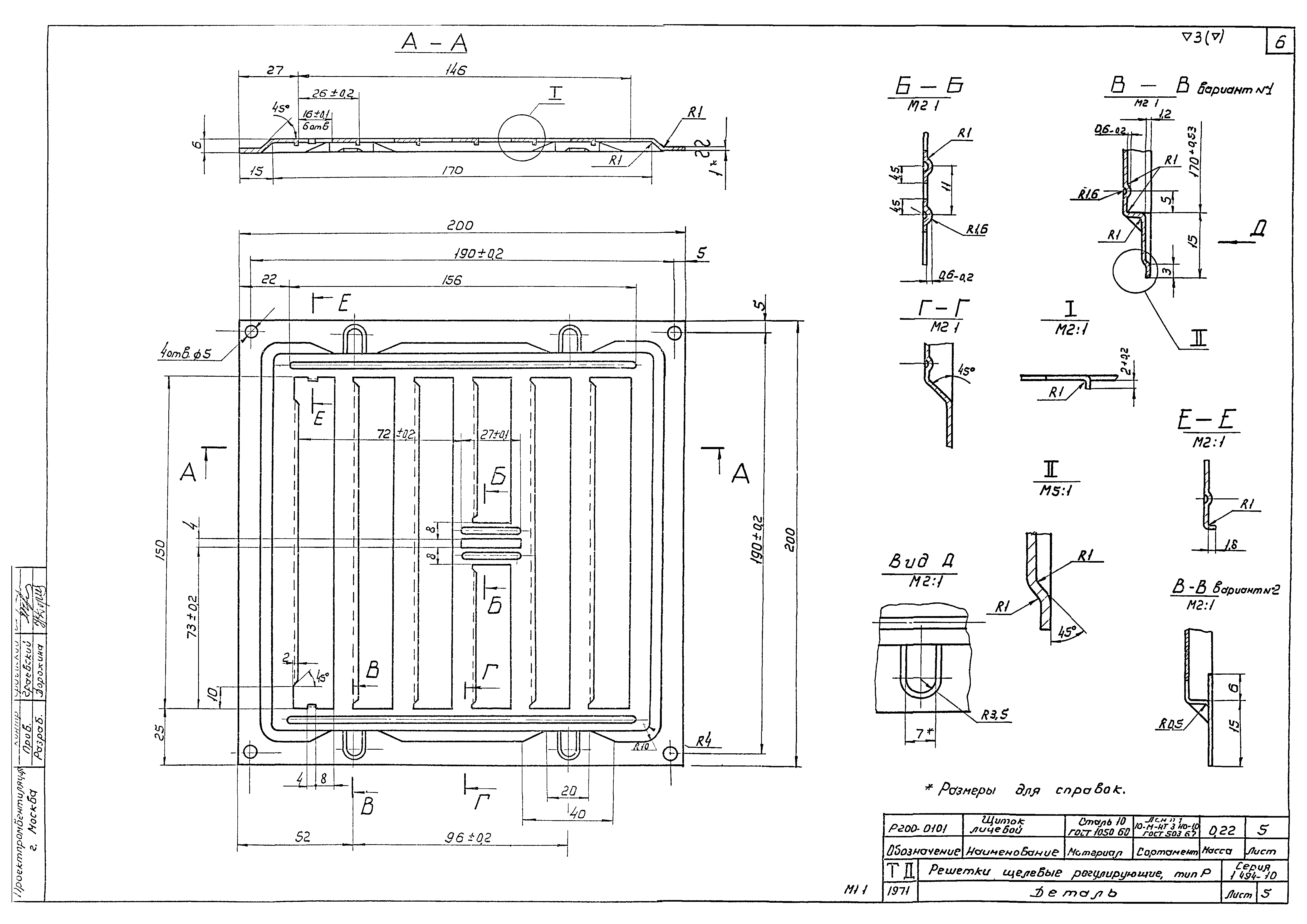
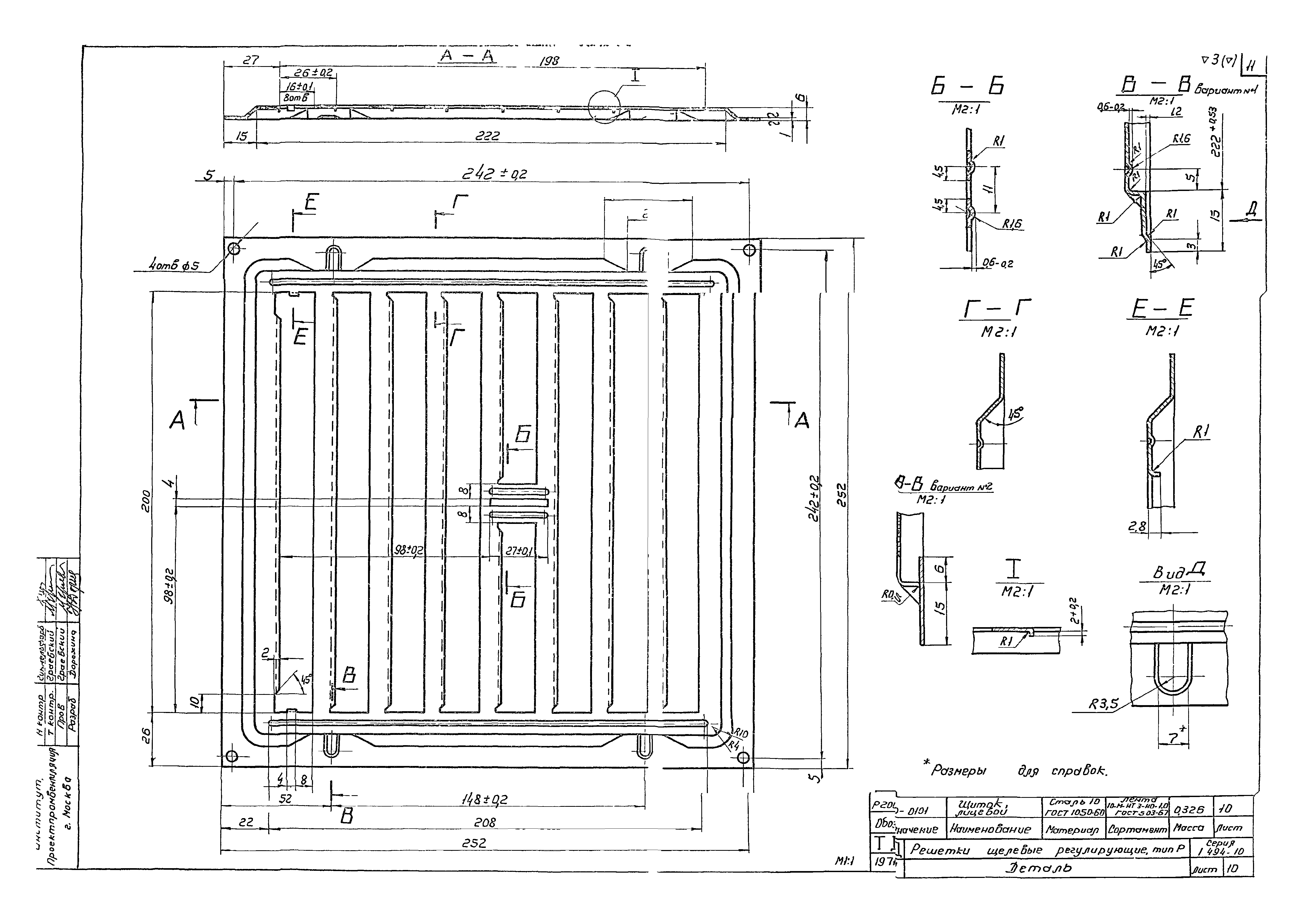
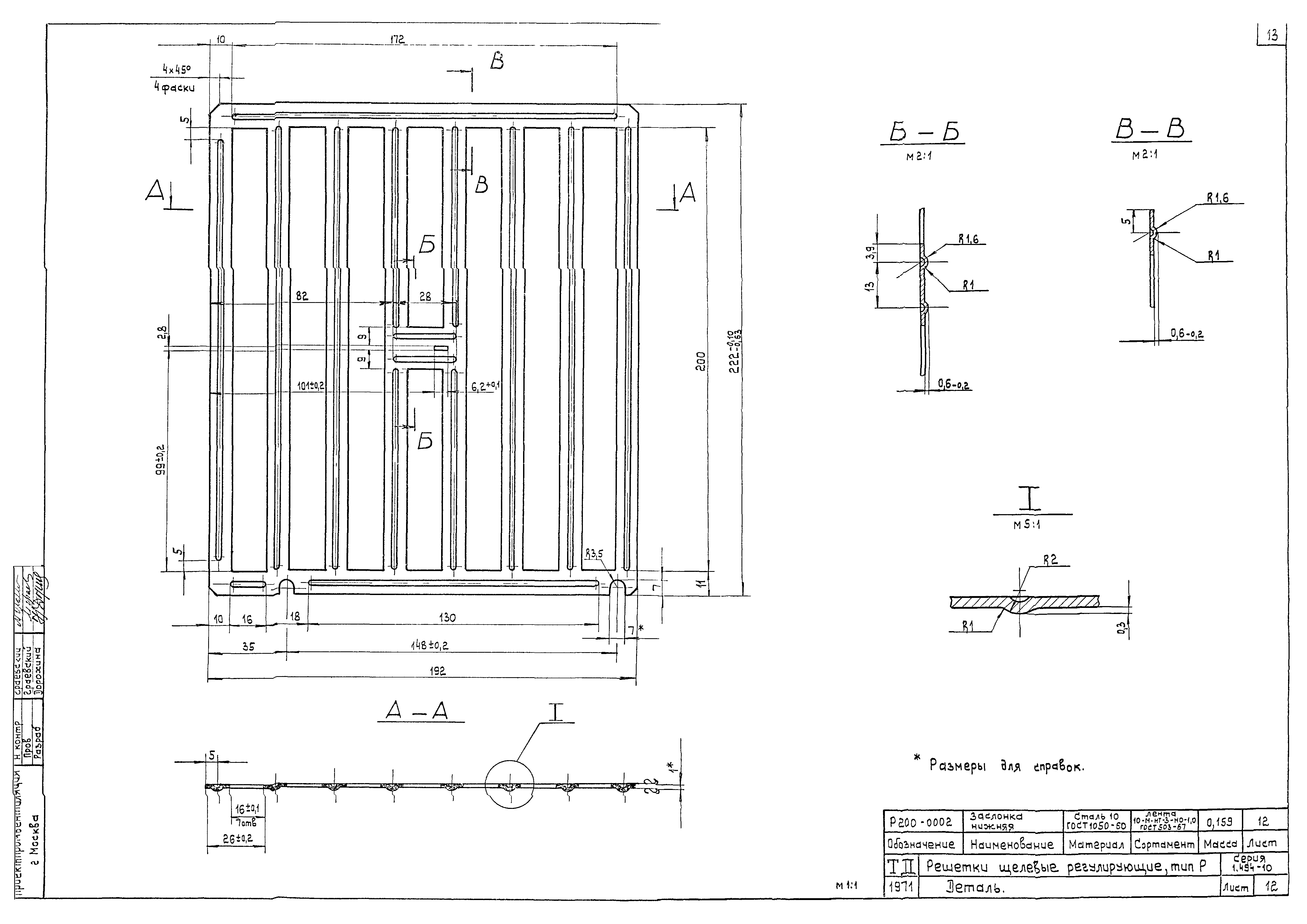
| Область применения: | В альбоме приведены рабочие чертежи щелевых регулирующих вентиляционных решеток четырех типоразмеров: Р150, Р200, Р300 и Р400. |
| Оглавление: | Титульный лист Содержание альбома. Пояснительная записка Схемы соединений решеток Решетка Р150. Общий вид Щиток лицевой в сборе. Р150-01. Узел Деталь Детали Деталь Решетка Р200. Общий вид Щиток лицевой в сборе. Р200-01. Узел Деталь Решетка Р300 и Р400. Общий вид Чертеж дополнительной обработки решеток для компоновки в блоки по схеме IХ Ручка Р150-02. Узел. Деталь |
| Разработан: | Проектпромвентиляция |
| Утверждён: | 12.01.1972 Главпромстройпроект Госстроя СССР (2) |















