Скачать Типовой проект 901-2-162.88 Альбом II. Архитектурно-строительные решения. Конструкции железобетонные. Конструкции металлические. Строительные изделияДата актуализации: 01.01.2021
|
| Обозначение: | Типовой проект 901-2-162.88 |
| Обозначение англ: | 901-2-162.88 |
| Статус: | не определен законодательством |
| Название рус.: | Альбом II. Архитектурно-строительные решения. Конструкции железобетонные. Конструкции металлические. Строительные изделия |
| Дата добавления в базу: | 01.09.2013 |
| Дата актуализации: | 01.01.2021 |
| Дата введения: | 14.04.1988 |
| Дата окончания срока действия: | 30.06.2003 |
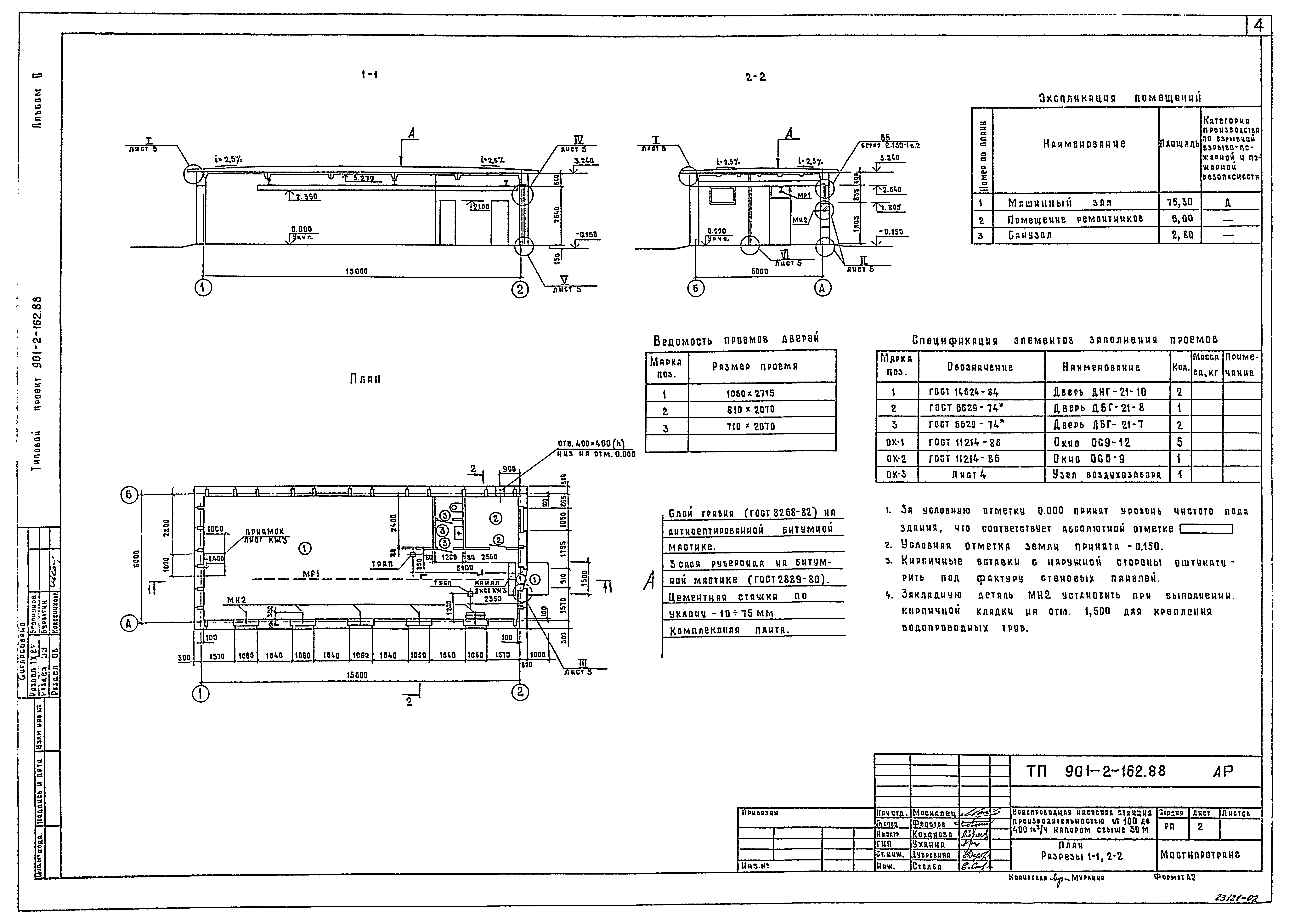
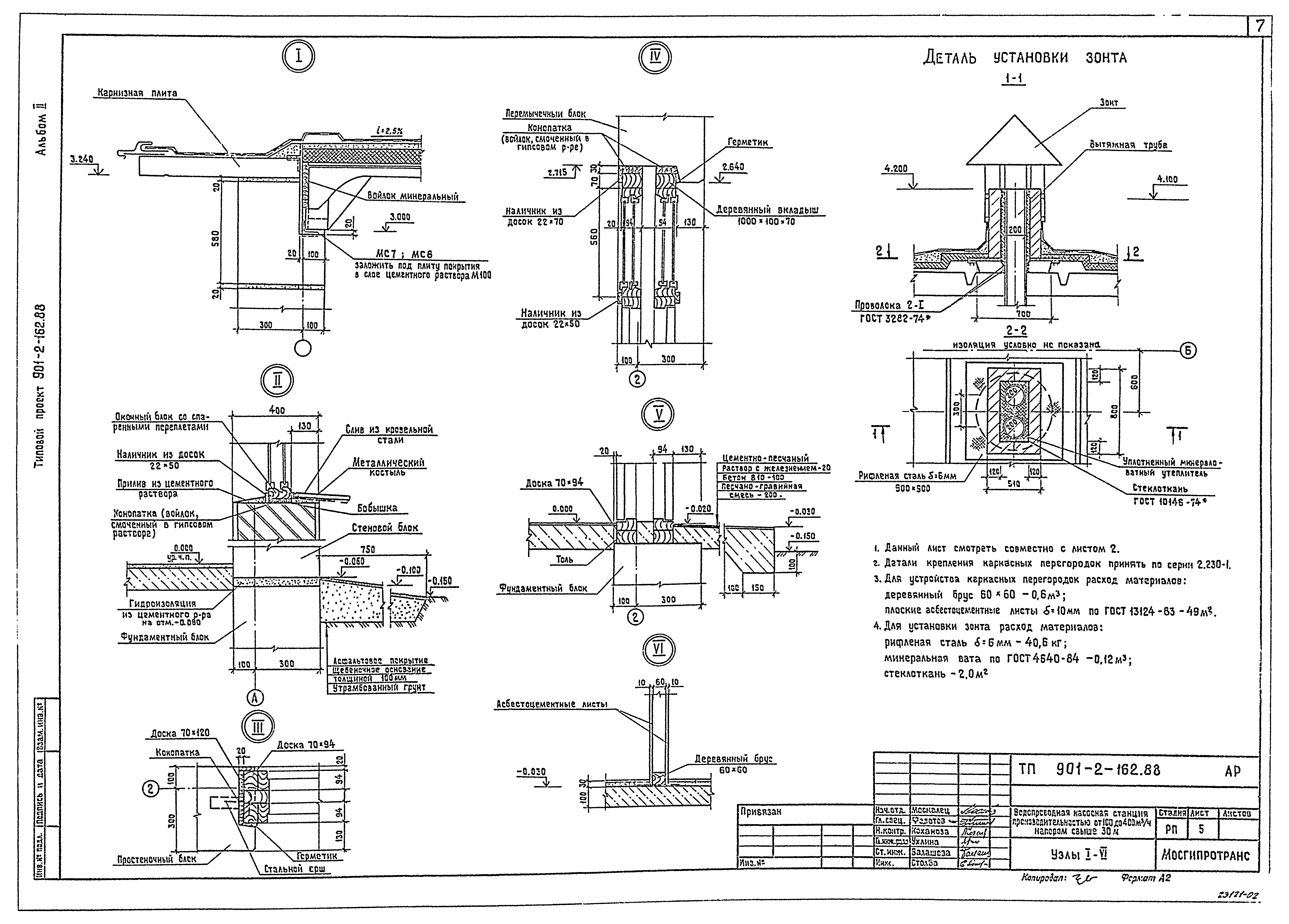
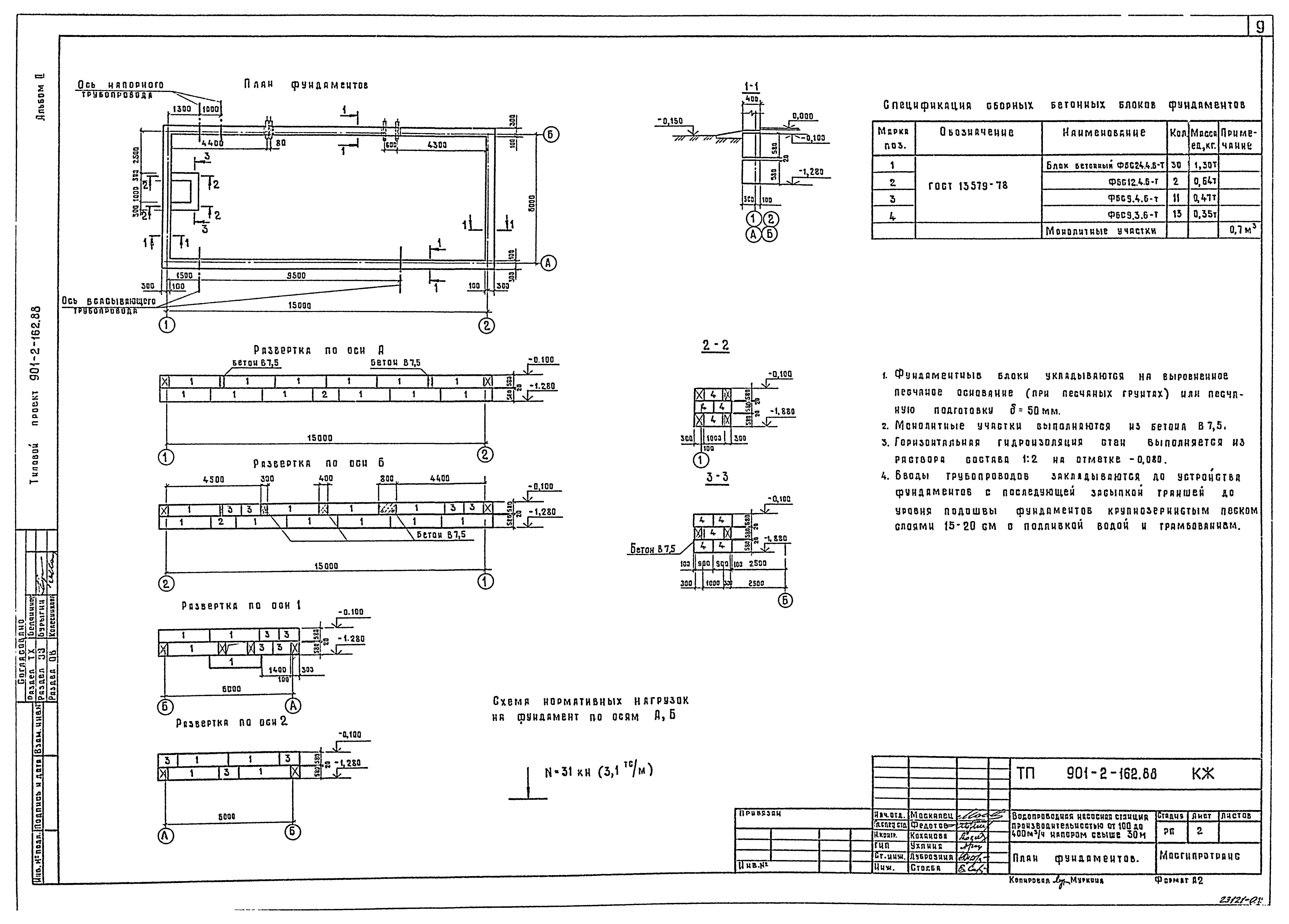
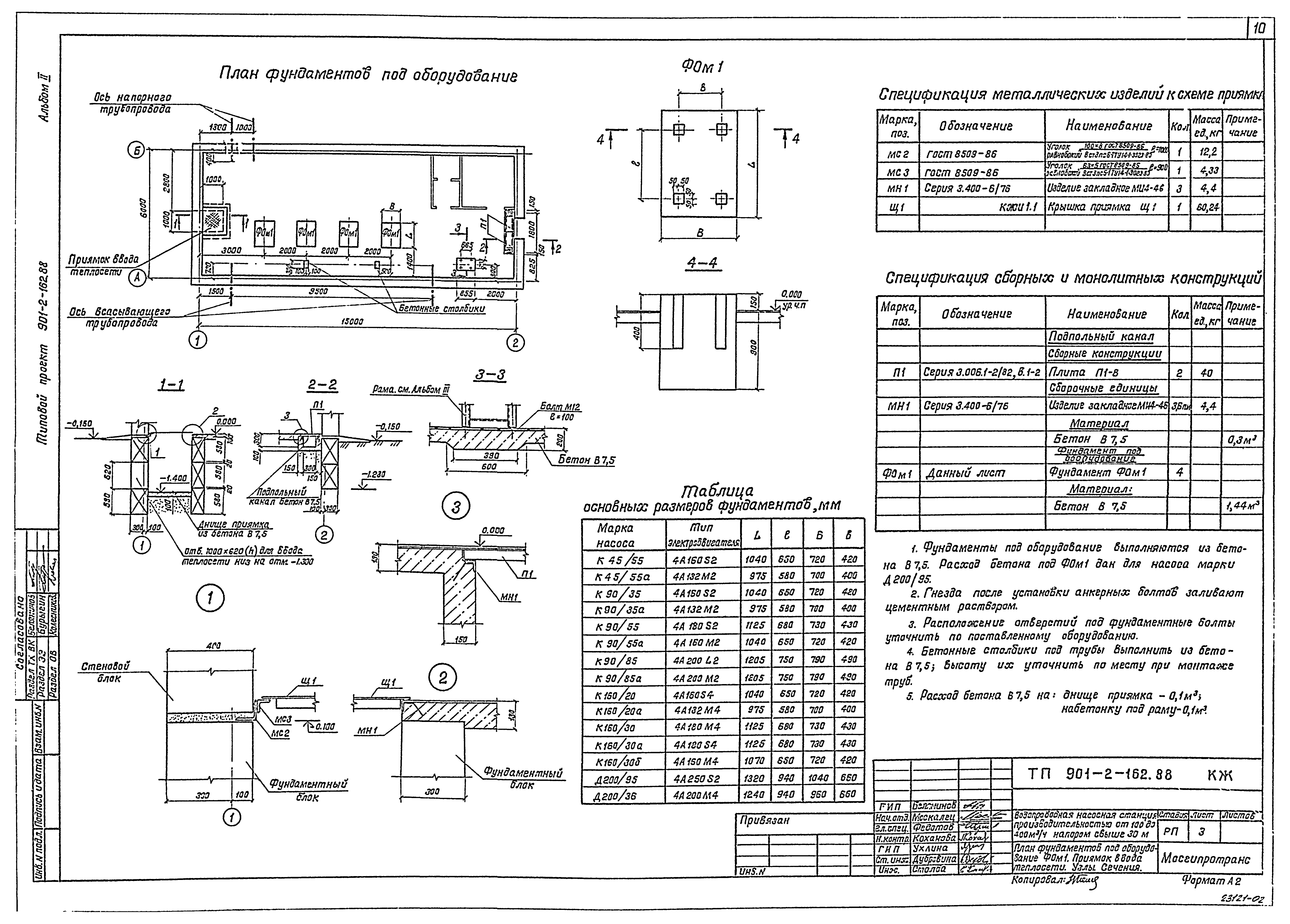
| Оглавление: | Титульный лист Содержание альбома Архитектурно-строительные решения АР-1 Общие данные АР-2 План. Разрезы 1-1; 2-2 АР-3 Фасады АР-4 План полов. План кровли. Фрагмент фасада №1 АР-5 Узлы I-VI Конструкции железобетонные КЖ-1 Общие данные КЖ-2 План фундаментов КЖ-3 План фундаментов по оборудование ФОМ 1. Приямок ввода теплосети. Узлы. Сечения КЖ-4 Раскладка блоков наружных стен. Спецификация КЖ-5 Маркировочный план покрытия. Маркировочная схема закладных элементов. Разрезы Конструкции металлические КМ-1 Общие данные КМ-2 Схема расположения путей тали. Узлы Строительные изделия КЖИ.ТУ Технические условия КЖИ.ОД Опись документов КЖИ.1.1 Крышка приямка Щ-1 КЖИ.1.2 Рама Р1 КЖИ.1.3 Рама Р2 КЖИ.2.1 Изделие соединительное МС4 КЖИ.2.2 Изделие соединительное МС7, МС8 КЖИ.3.1 Изделия закладные МН3, МН4 |
| Разработан: | Проектно-изыскательский институт Мосгипротранс |
| Утверждён: | 14.04.1988 Министерство транспортного строительства СССР (USSR Ministry of Transport Construction МО-259) |

















