Скачать Серия 2.430-21.94 Выпуск 2. Стены охлаждаемых зданий. Узлы. Рабочие чертежиДата актуализации: 01.01.2021
|
| Обозначение: | Серия 2.430-21.94 |
| Обозначение англ: | Series 2.430-21.94 |
| Статус: | не определен законодательством |
| Название рус.: | Выпуск 2. Стены охлаждаемых зданий. Узлы. Рабочие чертежи |
| Дата добавления в базу: | 01.09.2013 |
| Дата актуализации: | 01.01.2021 |
| Дата введения: | 01.05.1994 |
| Дата окончания срока действия: | 30.06.2003 |
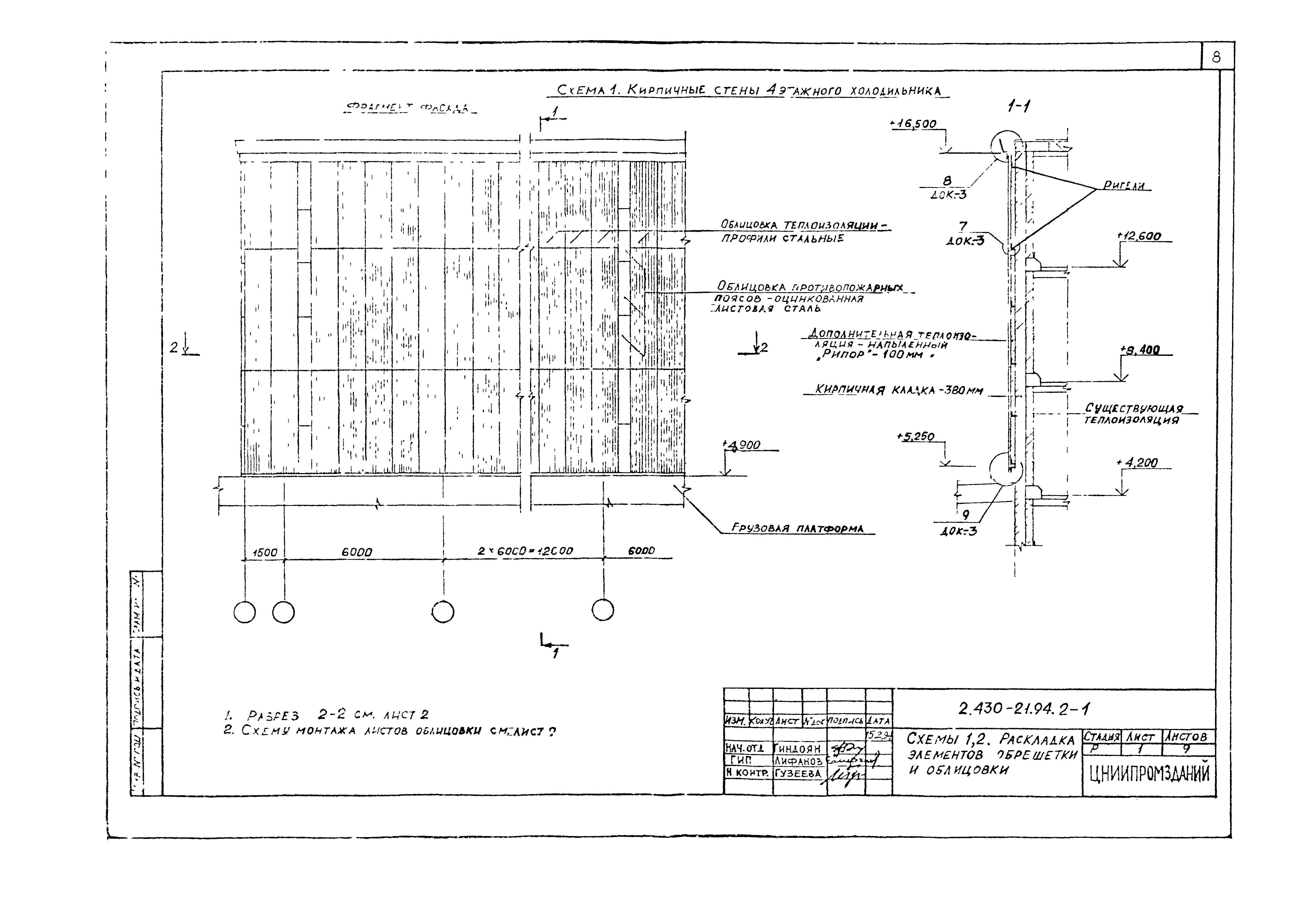
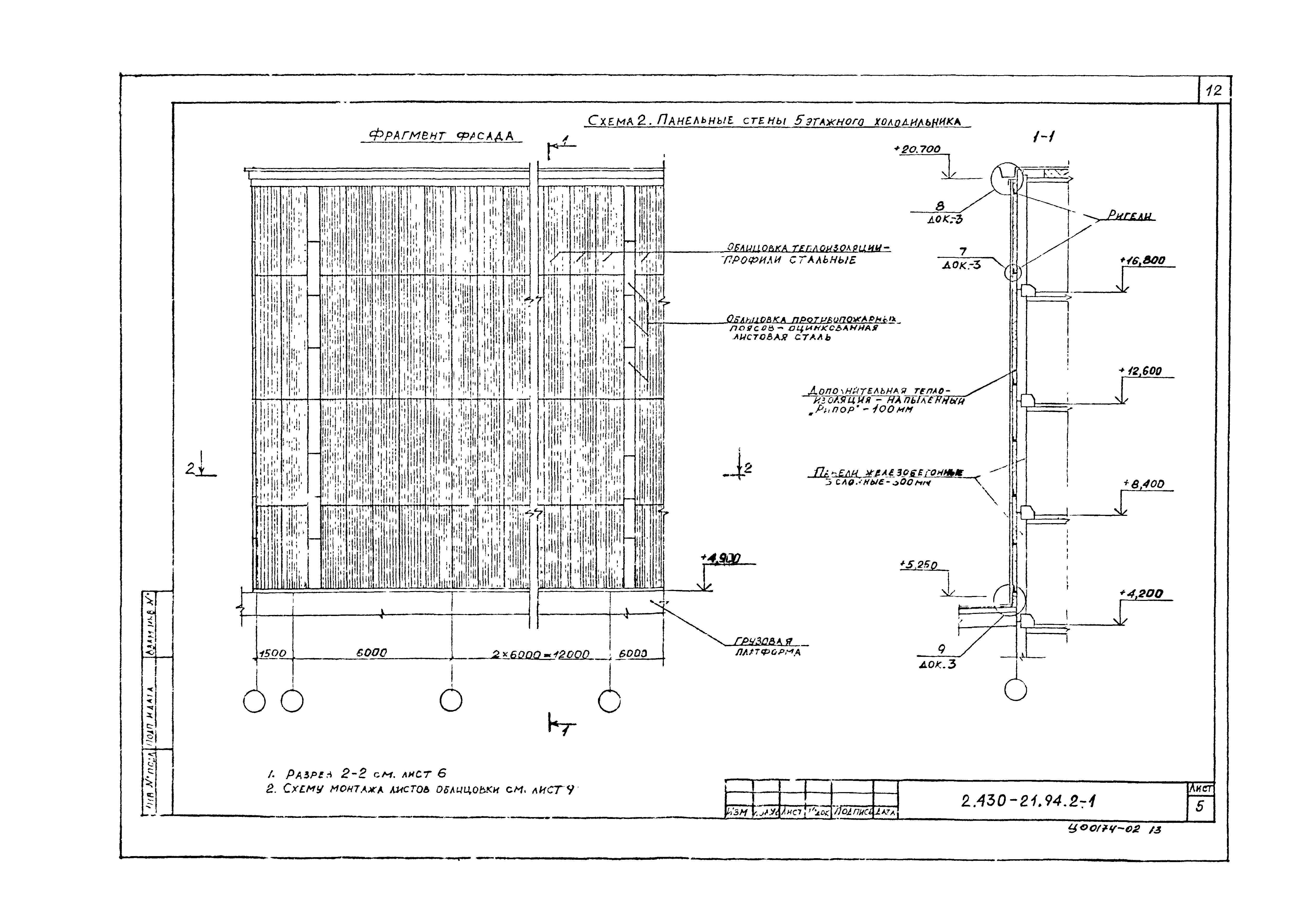
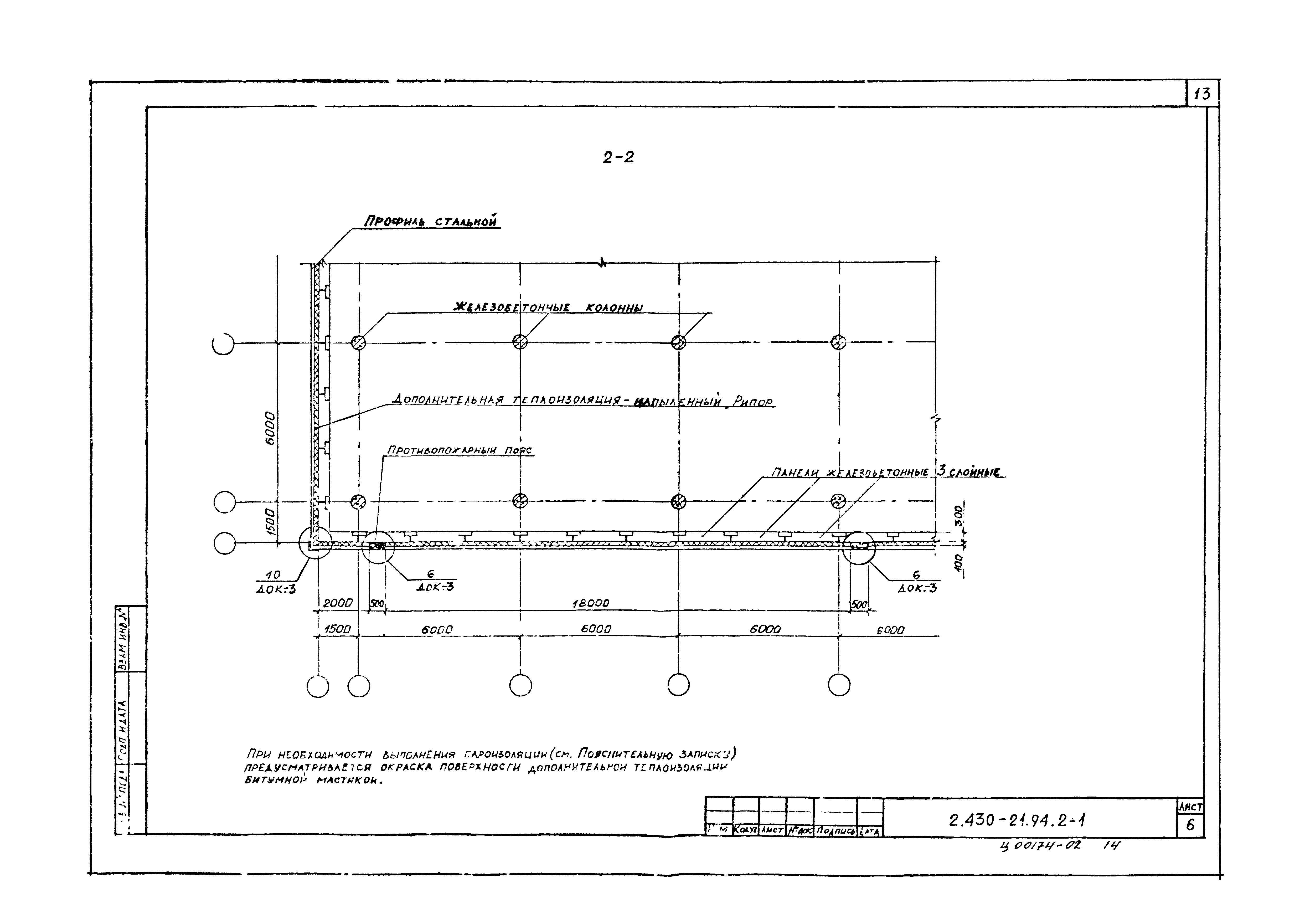
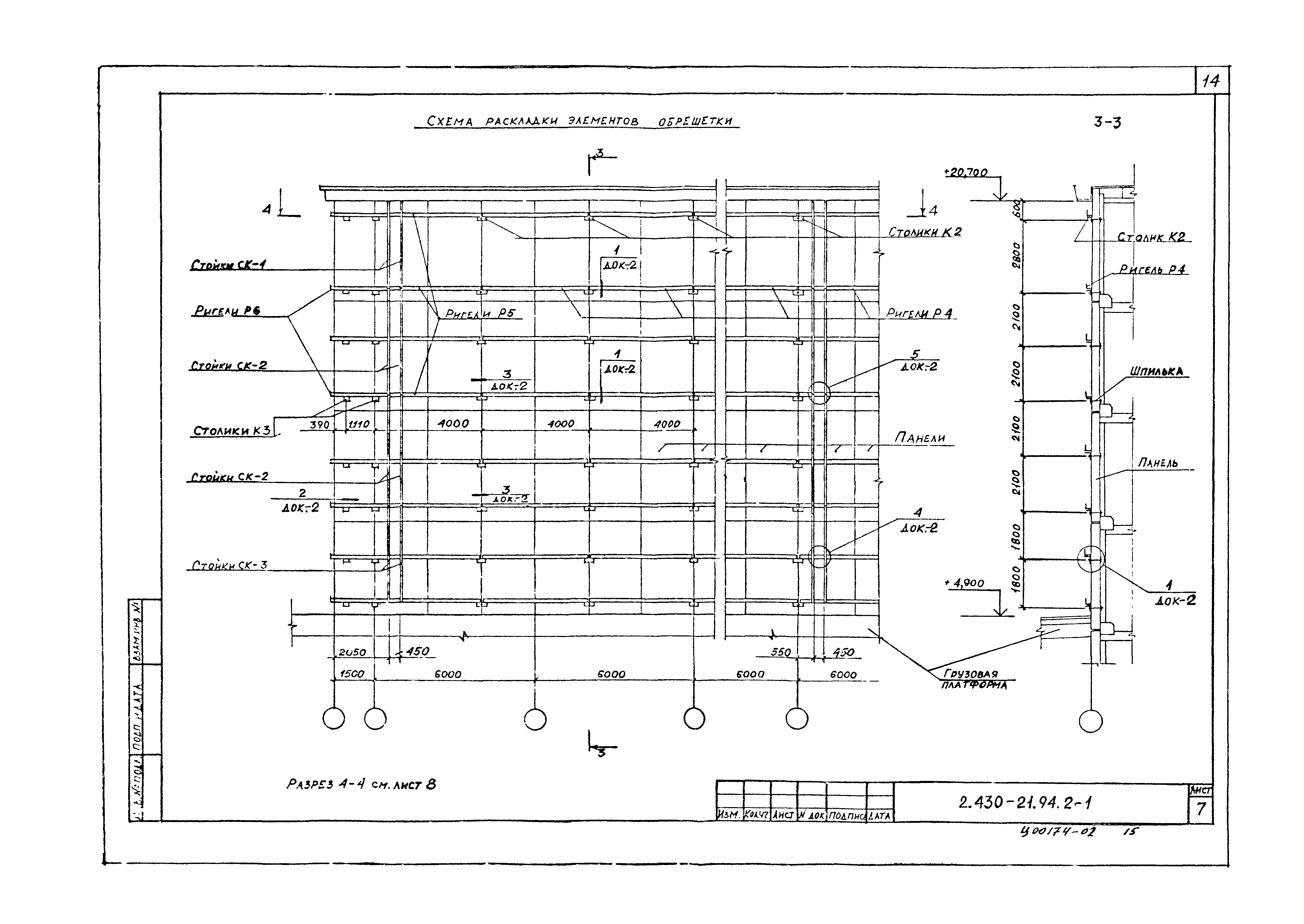
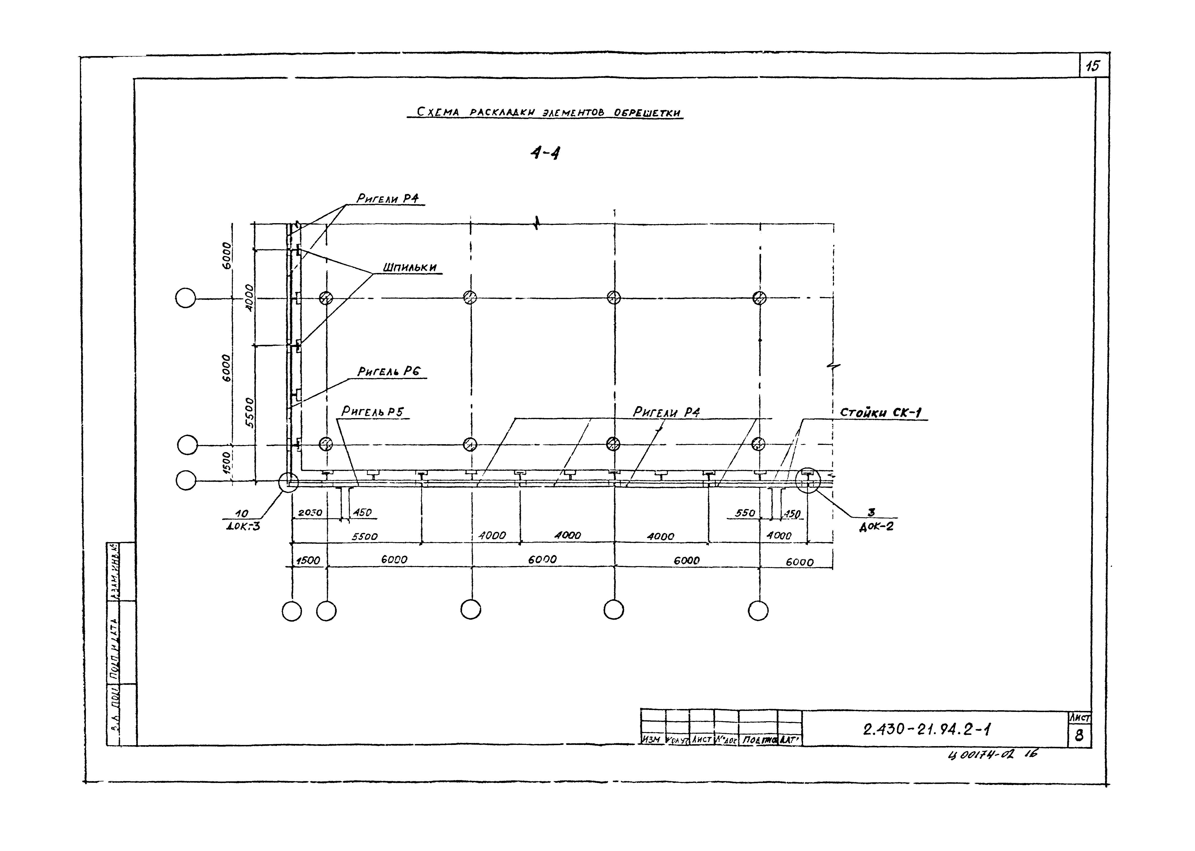
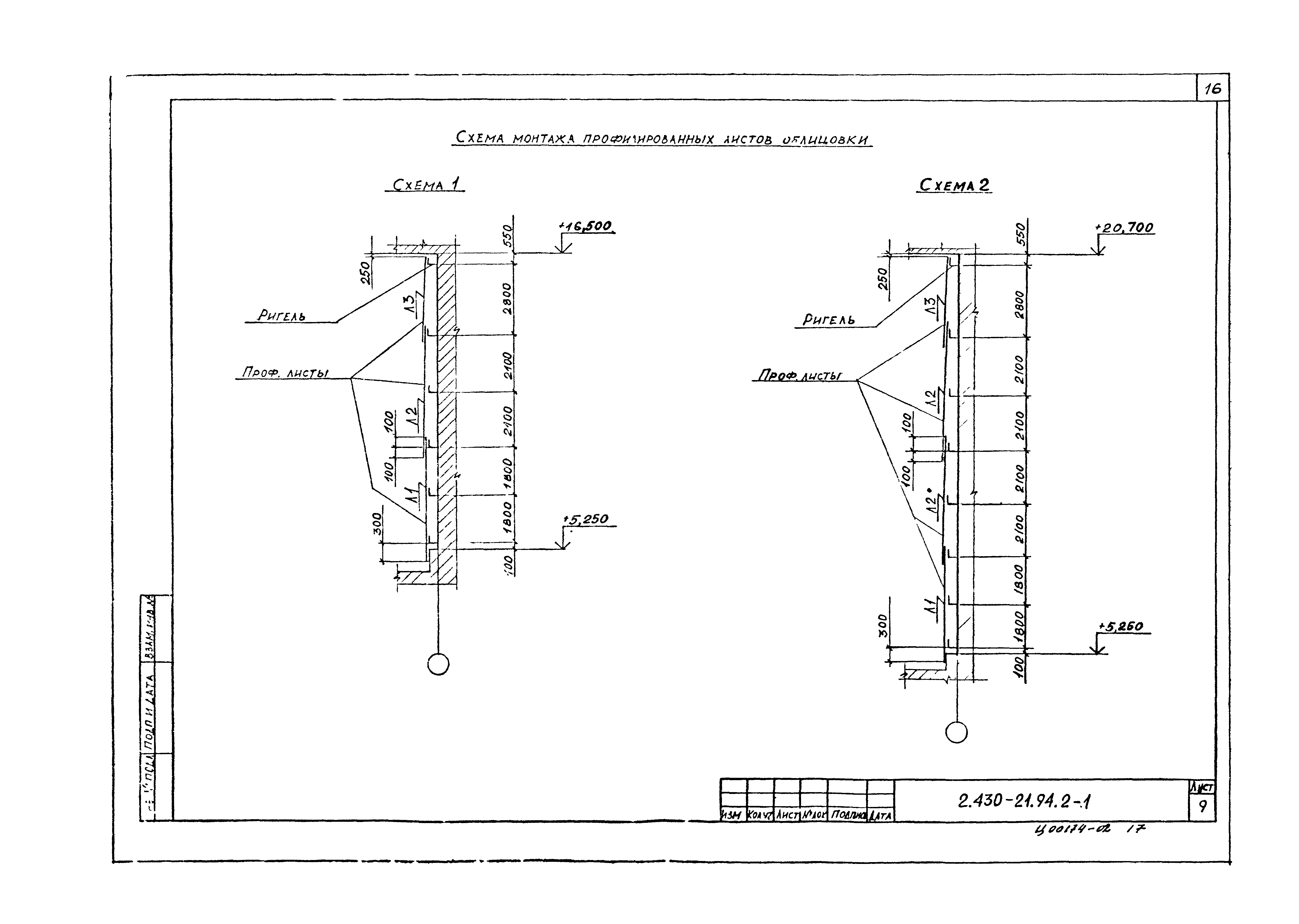
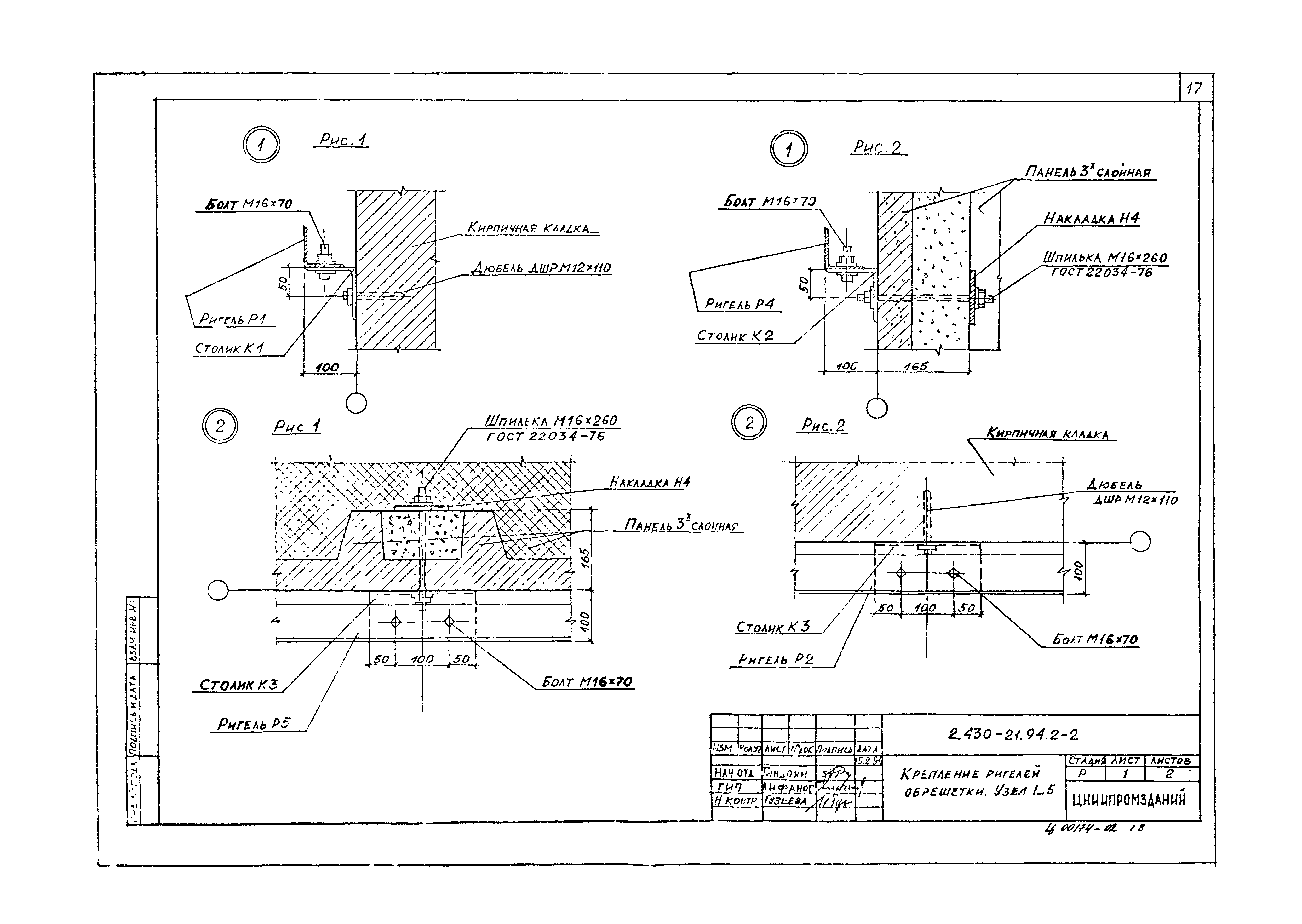
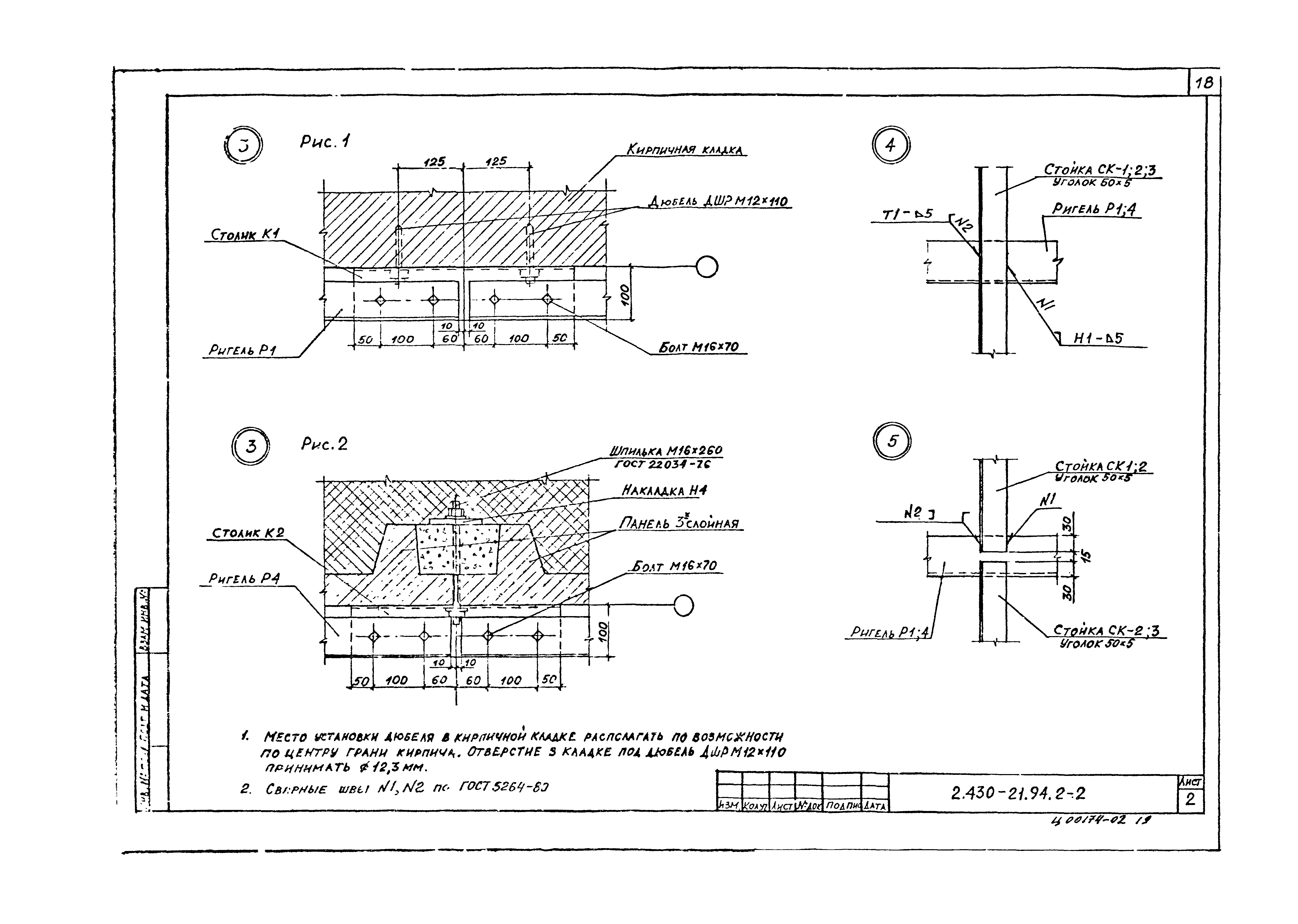
| Оглавление: | 2.430-21.94.2-ТТ Технические требования 2.430-21.94.2-1 Схемы 1, 2. Раскладка элементов обрешетки и облицовки 2.430-21.94.2-2 Крепление ригелей обрешеткой. Узел 1… 5 2.430-21.94.2-3 Сопряжение дополнительной теплоизоляции. Узел 6… 10 2.430-21.94.2-4 Изделия комплектующие 2.430-21.94.2-5 Спецификация изделий и материалов |
| Разработан: | ЦНИИпромзданий |
| Утверждён: | 18.11.1993 Главпроект Госстроя России (9-3-2/243) |
























