Скачать РС1-5320 Плиты перекрытий сплошные железобетонные толщиной 140 мм. Рабочие чертежиДата актуализации: 01.01.2021
|
| Обозначение: | РС1-5320 |
| Обозначение англ: | РС1-5320 |
| Статус: | не определен законодательством |
| Название рус.: | Плиты перекрытий сплошные железобетонные толщиной 140 мм. Рабочие чертежи |
| Дата добавления в базу: | 01.09.2013 |
| Дата актуализации: | 01.01.2021 |
| Дата введения: | 29.07.2004 |
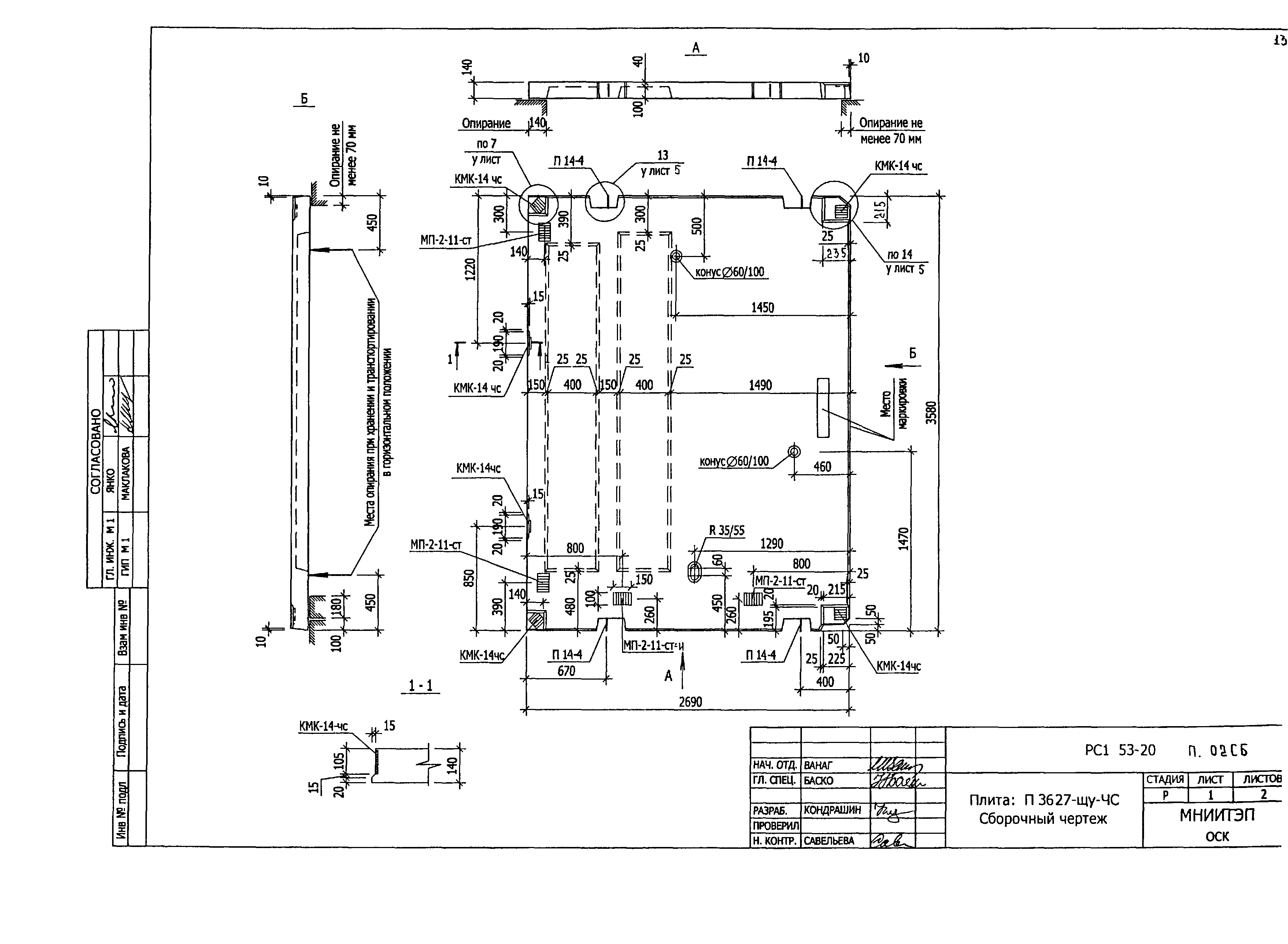
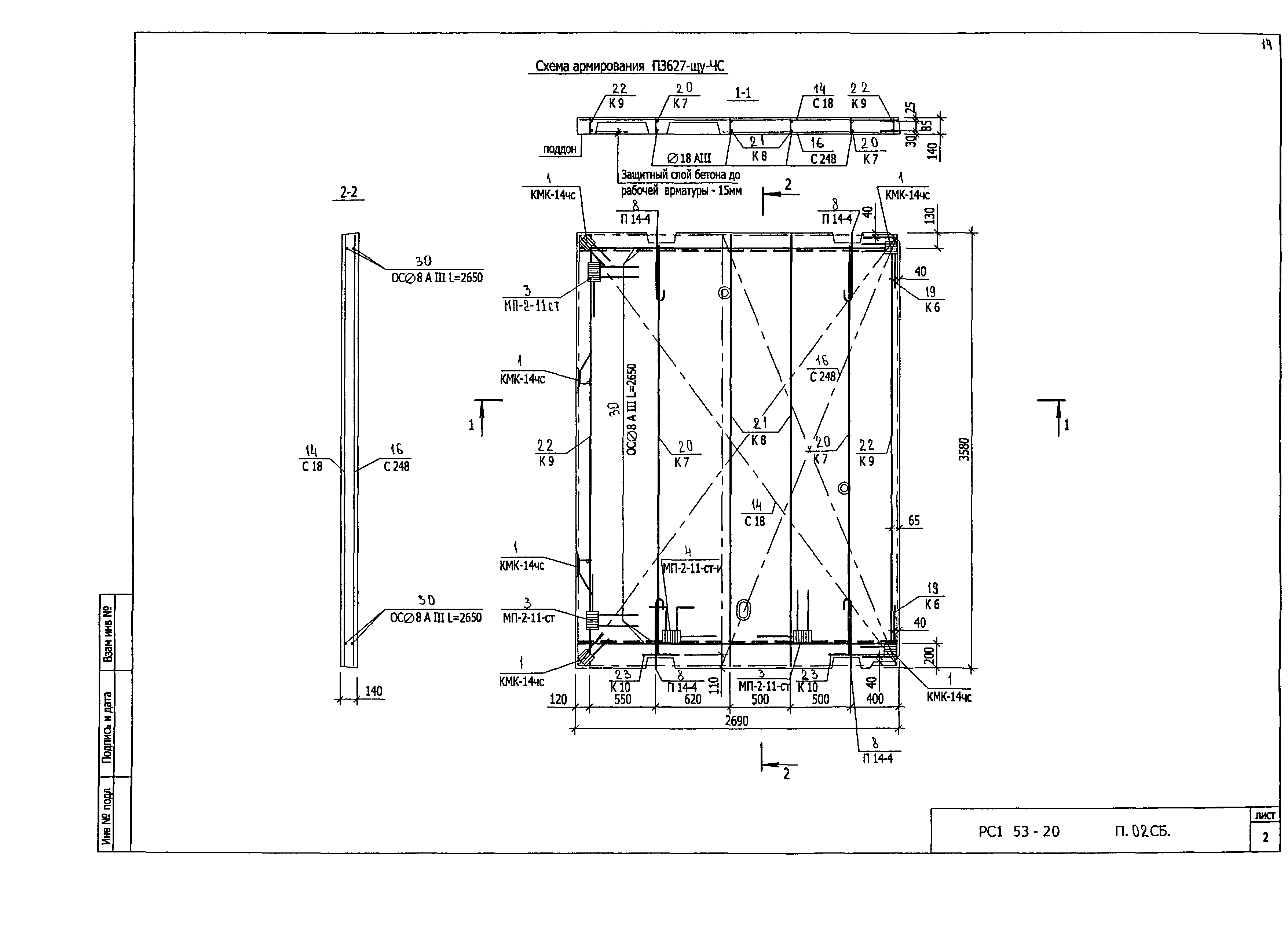
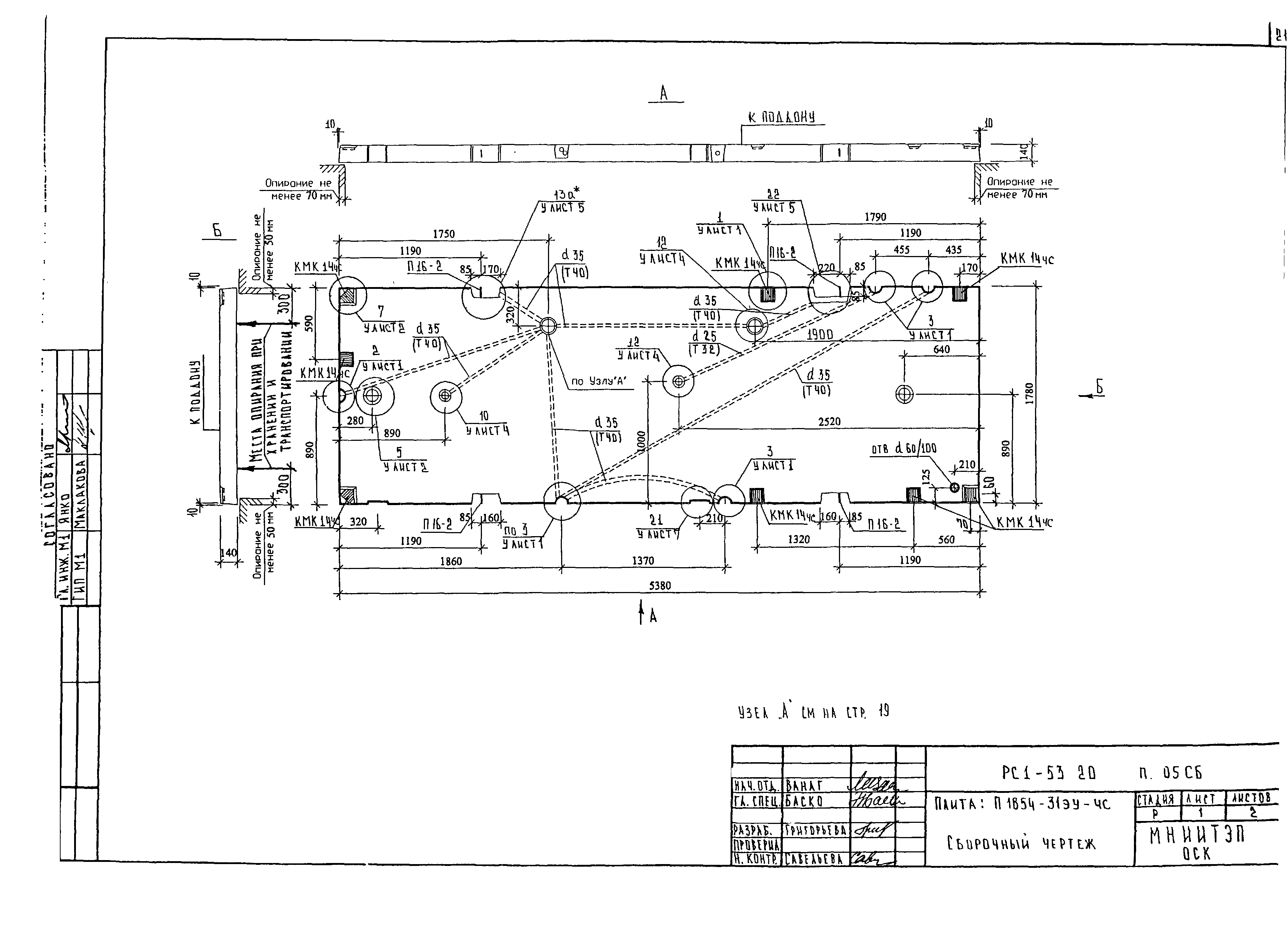
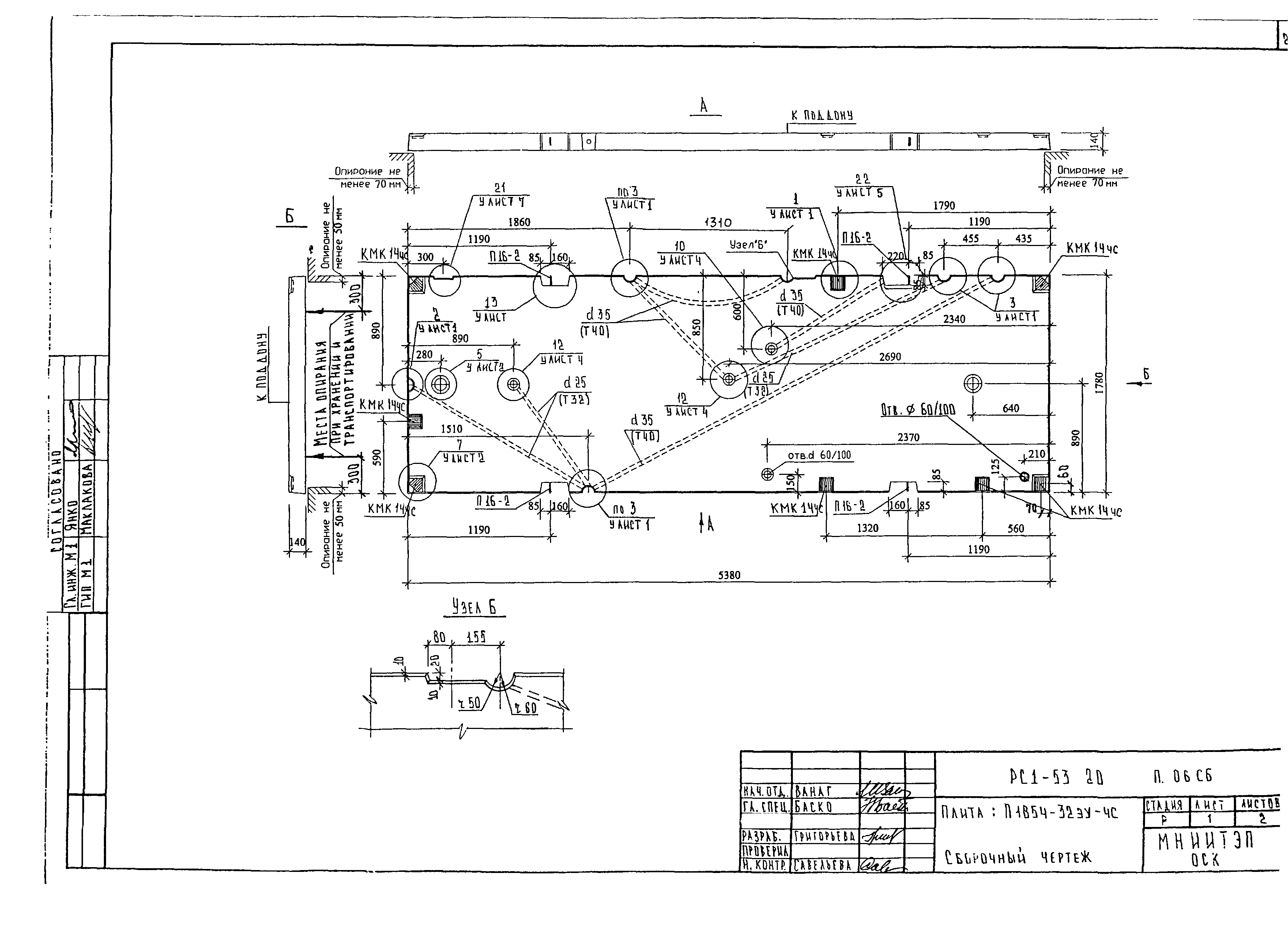
| Оглавление: | РС1-5320 ПЗ. Пояснительная записка РС1-5320 НИ. Номенклатура изделий РС1-5320 РС. Ведомость расхода стали РС1-5320 П 01 СБ. Плита П 303б-щу-ЧС. Сборочный чертеж РС1-5320 П 02 СБ. Плита П 3627-щу-ЧС. Сборочный чертеж РС1-5320 П 03 СБ. Плита П 1954-32эу-ЧС. Сборочный чертеж РС1-5320 П 04 СБ. Плита П 1854-30эу-ЧС. Сборочный чертеж РС1-5320 П 05 СБ. Плита П 1854-31эу-ЧС. Сборочный чертеж РС1-5320 П 06 СБ. Плита П 1854-32эу-ЧС. Сборочный чертеж РС1-5320 П 07 СБ. Плита П 1854-ЗЗэу-ЧС. Сборочный чертеж РС1-5320 Сетки. Сборочный чертеж РС1-5320 Каркасы. Сборочный чертеж РС1-5320 Петли. Сборочный чертеж РС1-5320 Закладные детали. Сборочный чертеж РС1-5320 Информационная карта |
| Разработан: | МНИИТЭП |
| Утверждён: | 29.07.2004 МНИИТЭП (MNIITEP 30-ТО) |


































