Скачать РС-0374-01 Кабина санитарно-техническая УК 1.1. Архитектурно-строительная часть. Рабочие чертежиДата актуализации: 01.01.2021
|
| Обозначение: | РС-0374-01 |
| Обозначение англ: | РС-0374-01 |
| Статус: | не определен законодательством |
| Название рус.: | Кабина санитарно-техническая УК 1.1. Архитектурно-строительная часть. Рабочие чертежи |
| Дата добавления в базу: | 01.09.2013 |
| Дата актуализации: | 01.01.2021 |
| Дата введения: | 24.06.2004 |
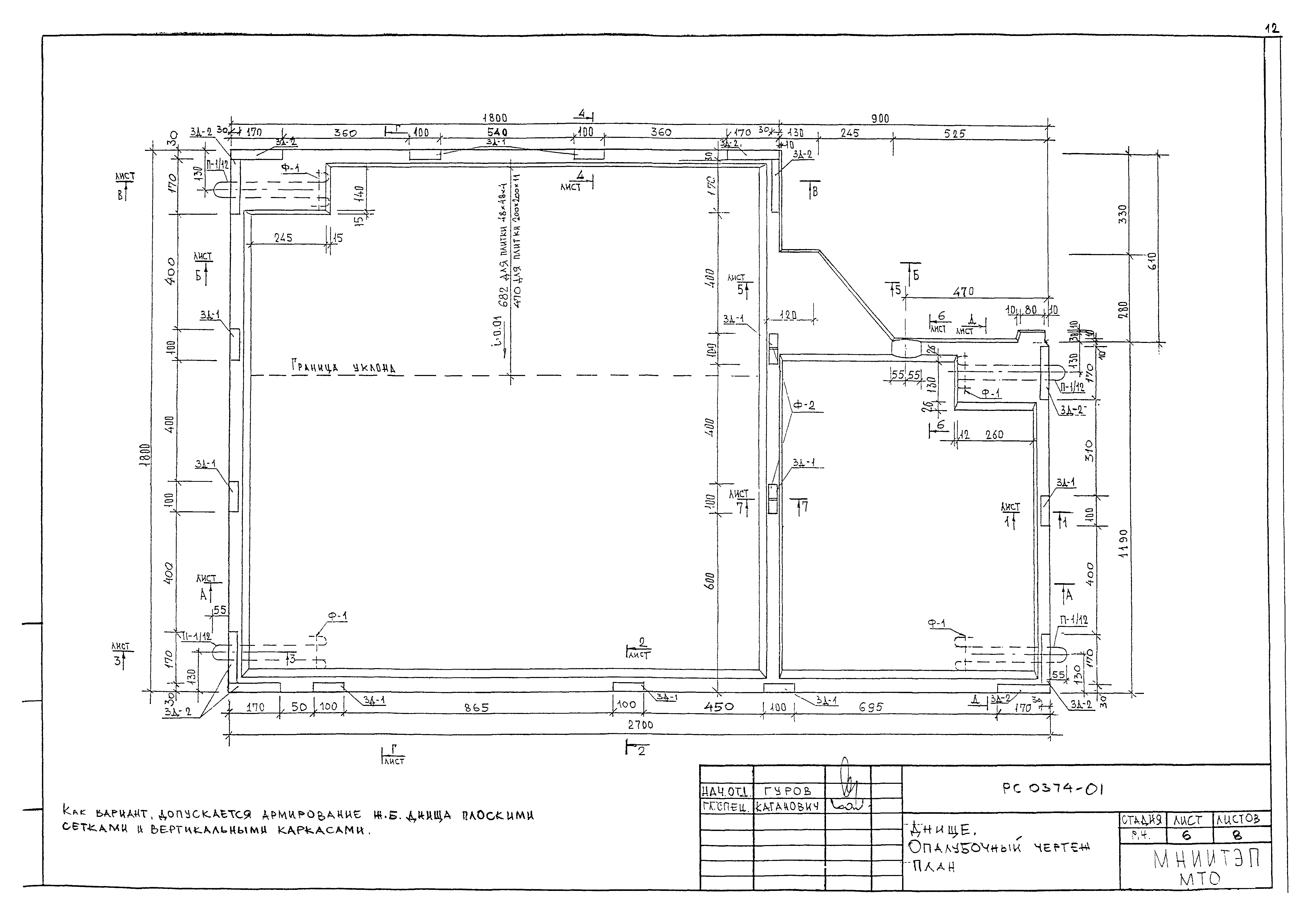
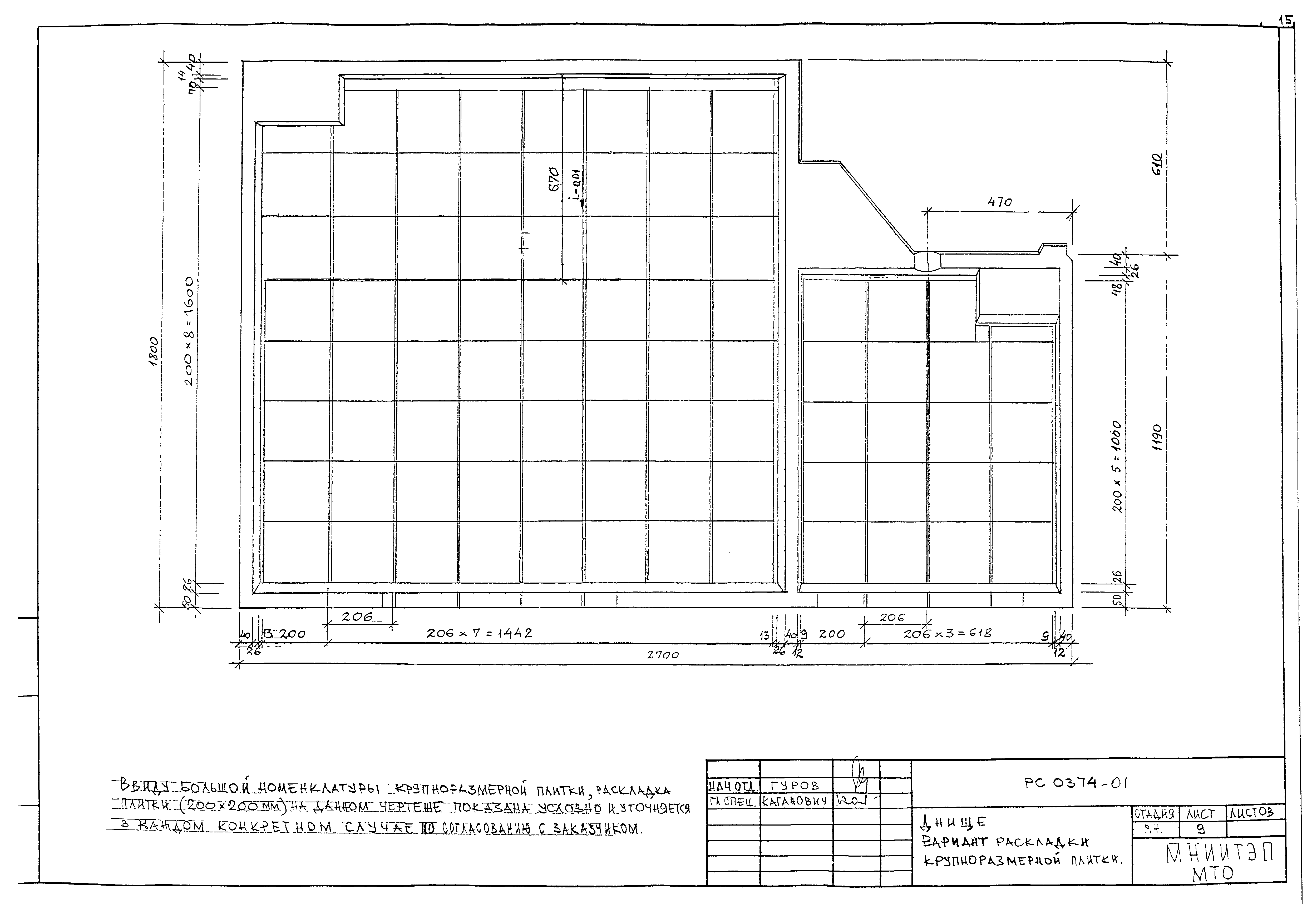
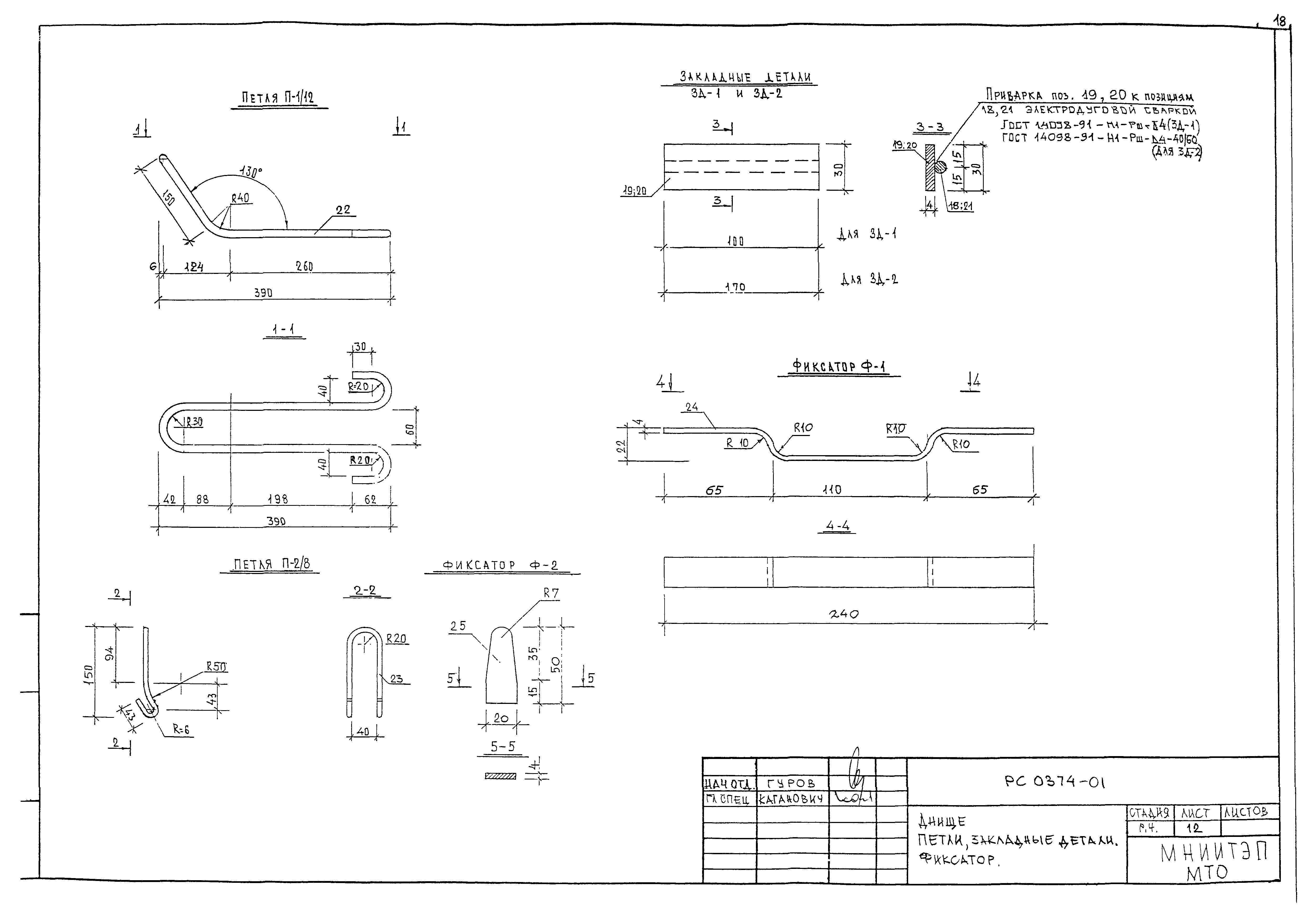
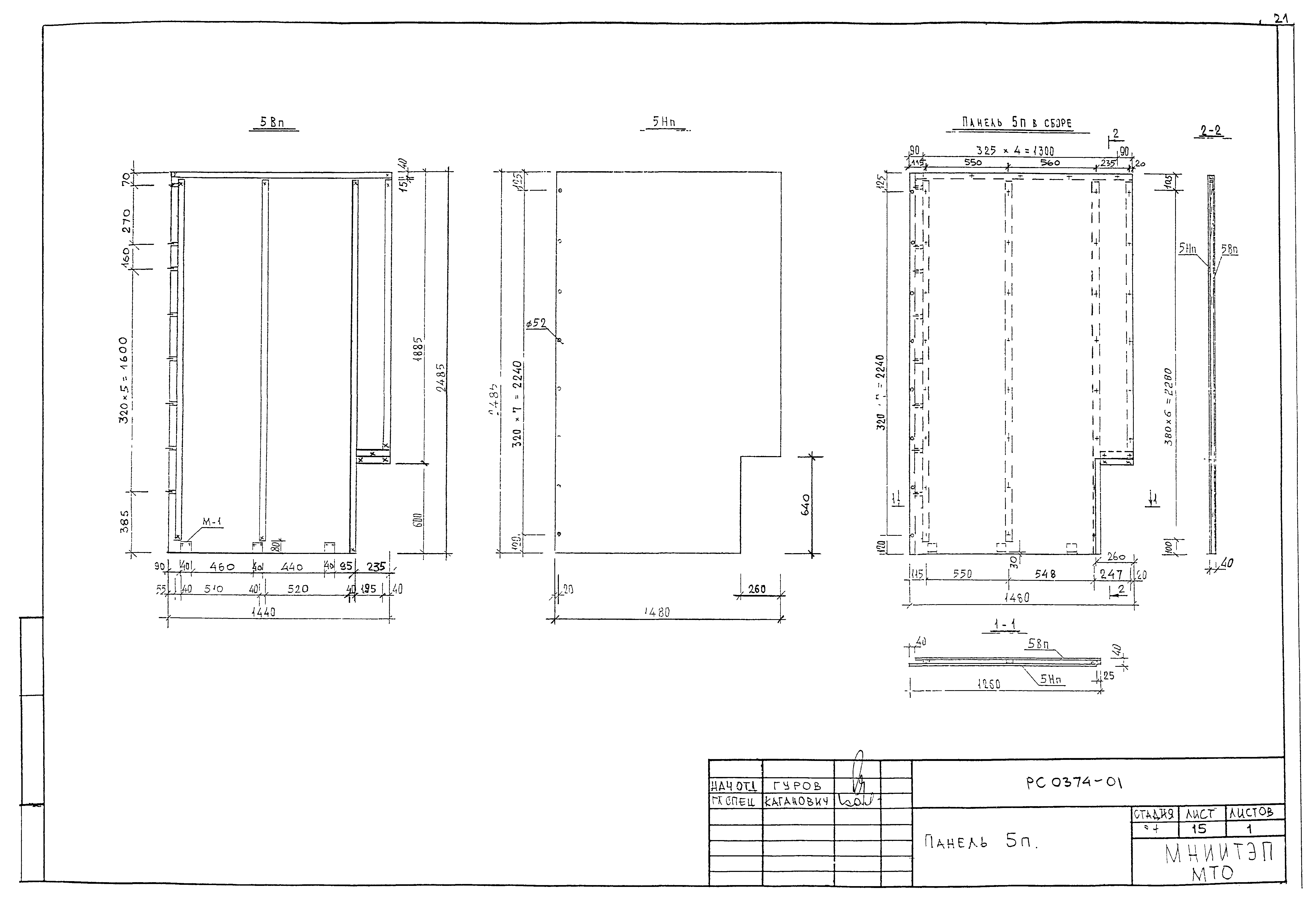
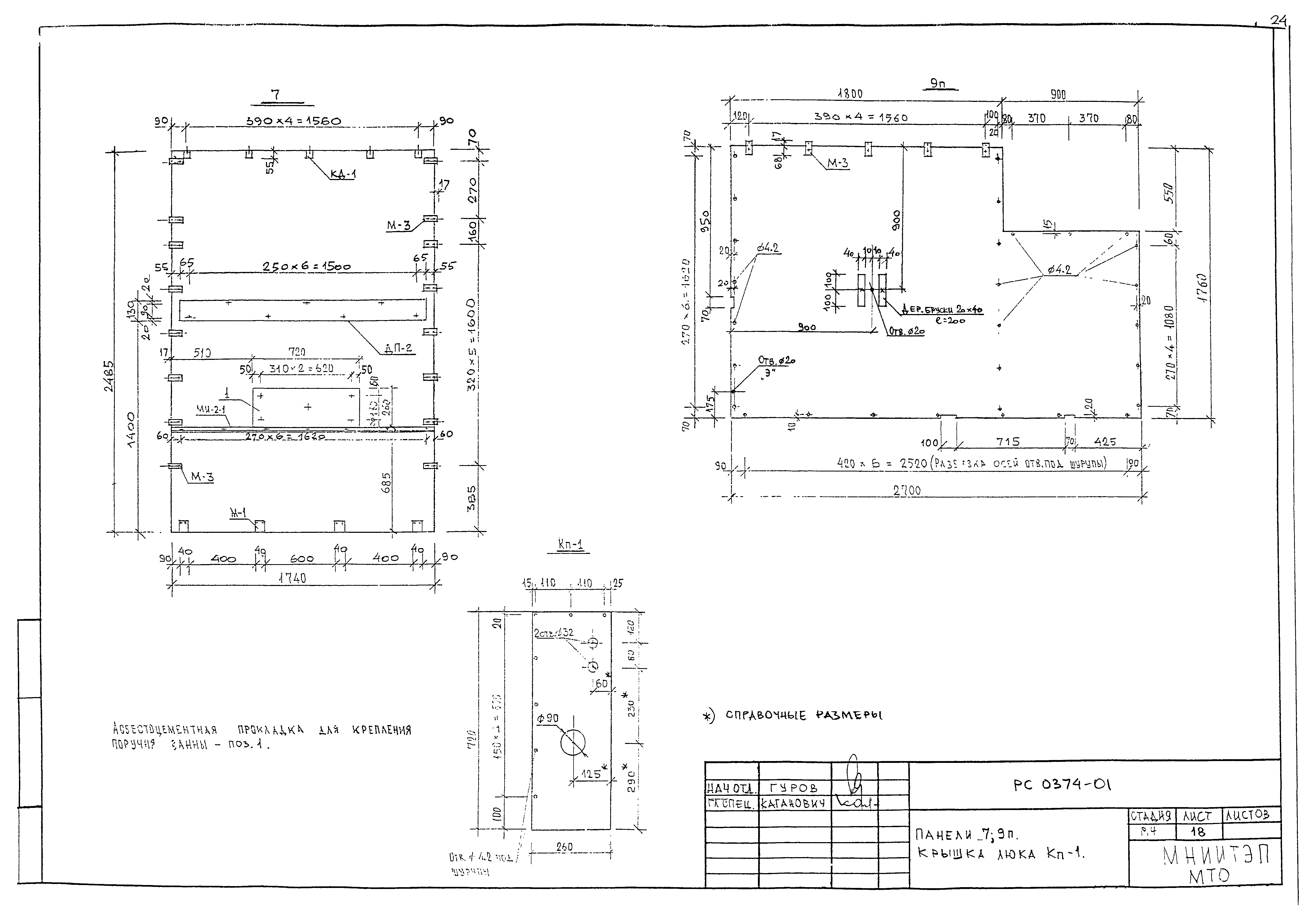
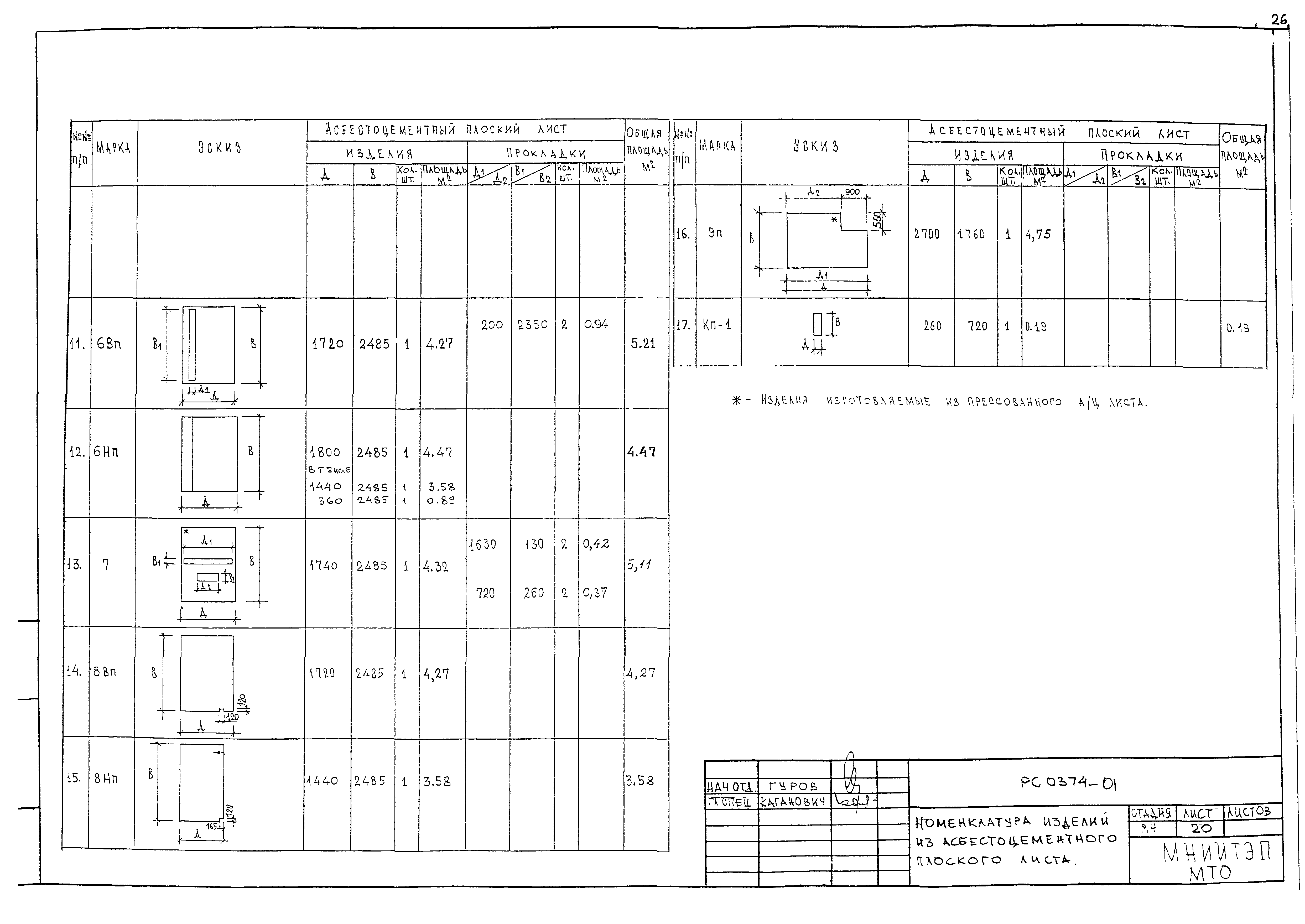
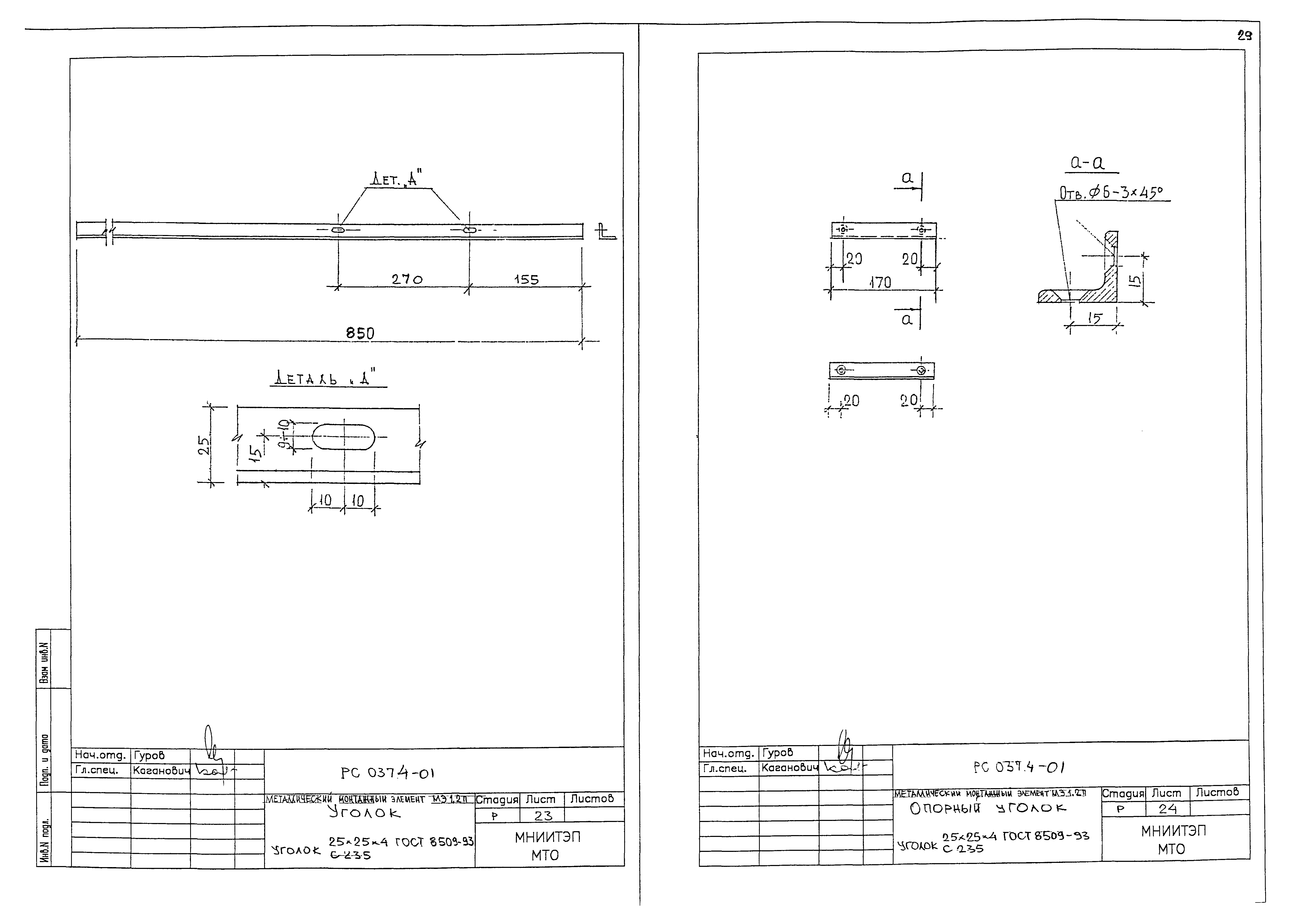
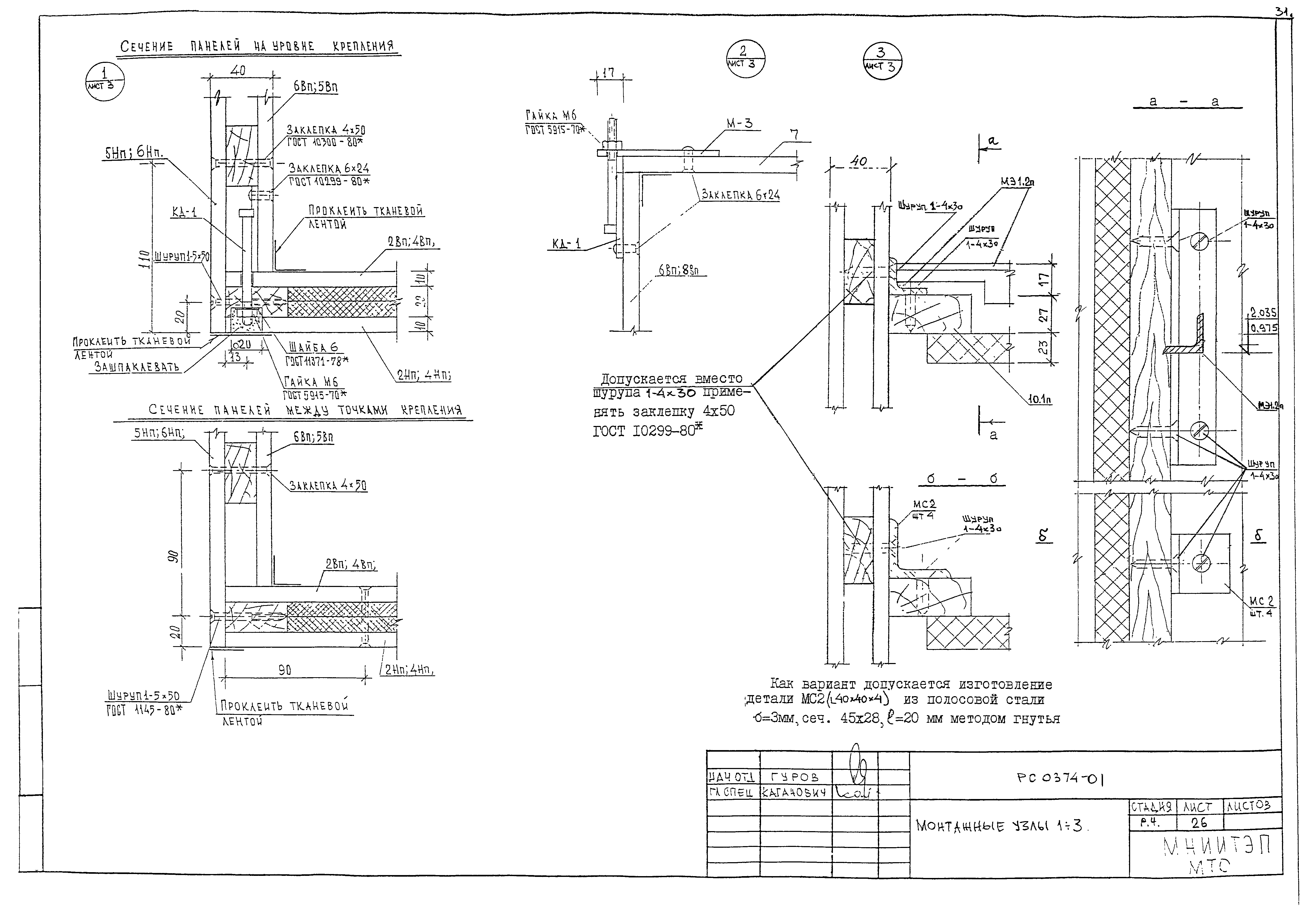
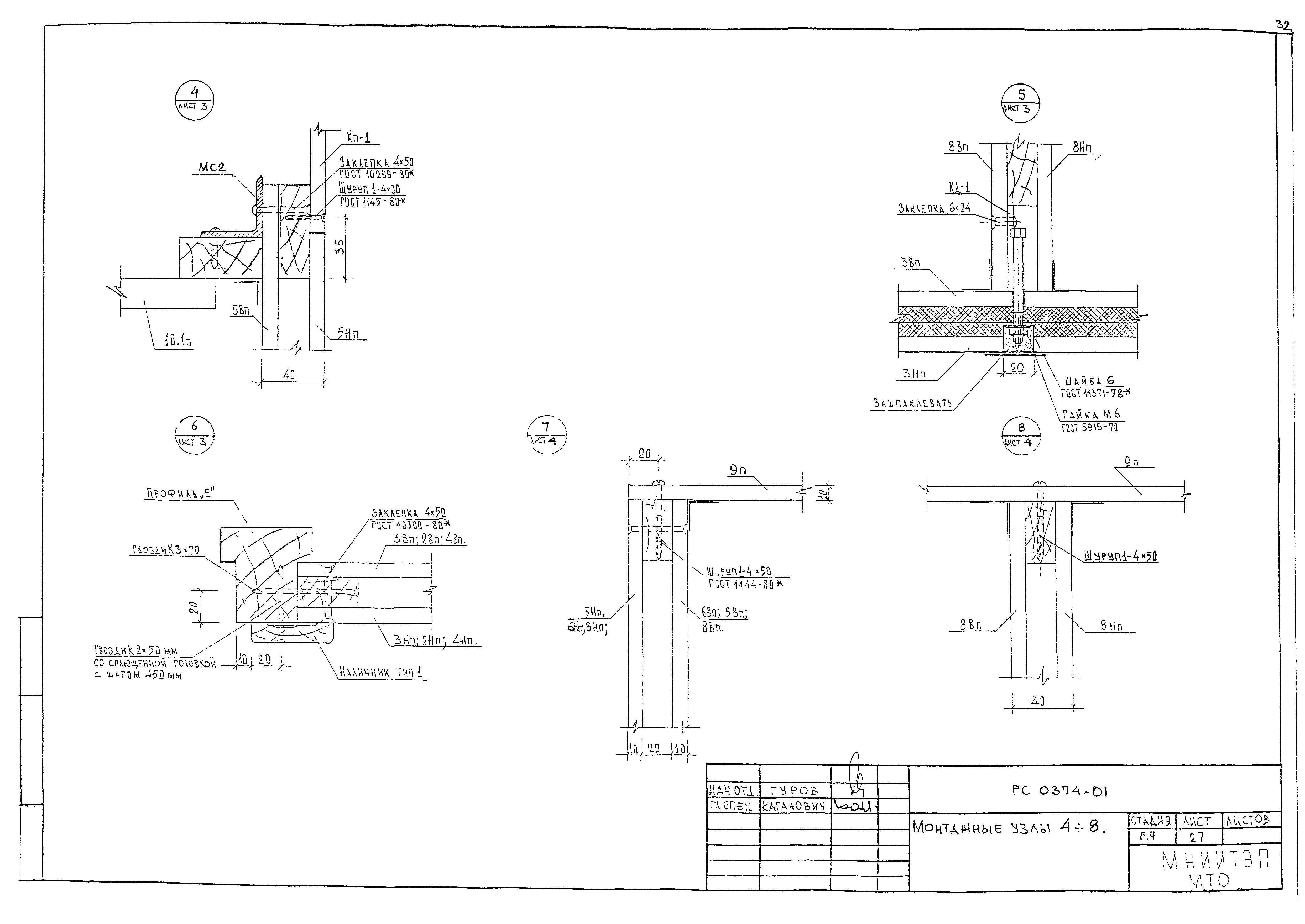
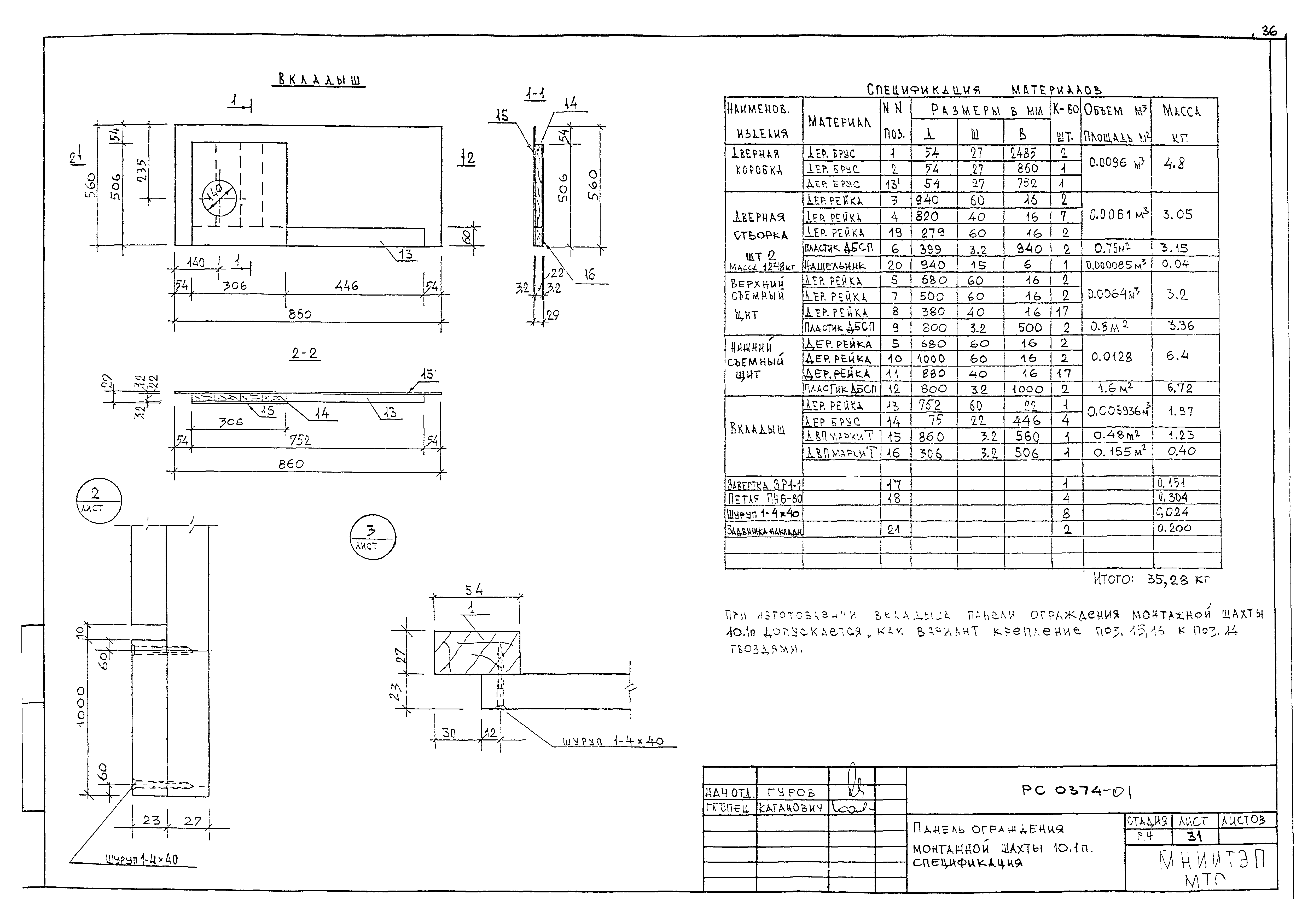
| Оглавление: | Содержание Пояснительная записка Номенклатура кабин для 12 - 25 этажных жилых домов Основные показатели Кабина санитарно-техническая типа УК 1.1п. План размещения оборудования Виды «а», «б», «в», «г» Монтажный план стеновых панелей кабины Разрезы 1-1, 2-2 Разрезы 3-3, 4-4 Днище. Опалубочный чертеж. План Днище. Опалубочный чертеж. Разрезы Днище. Сетки С-1а, С-16, С-2. Каркасы К-1, К-2 Днище. Вариант раскладки крупноразмерной плитки Днище. Сечения Днище. Схема размещения арматурных сеток, каркаса, петель Днище. Петли. Закладные детали. Фиксатор Днище. Спецификация металла Передняя панель в сборе Панель 5п Панель 6п Панель 8п Панели 7,9п. Крышка люка Кп-1 Номенклатура изделий из асбестоцементного плоского листа Металлический монтажный элемент МЭ 1.2п. Спецификация Металлический монтажный элемент МЭ 1.2п Металлические крепежные детали. Опалубочный лист ЛО-1п Монтажные узлы 1 - 3 Монтажные узлы 4 - 8 Монтажные узлы 9 - 14 Монтажные узлы 15 - 17 Панель ограждения монтажной шахты 10.1 п Панель ограждения монтажной шахты 10.1 п. Спецификация Дверные блоки Сводная спецификация материалов и изделий Информационная карта |
| Разработан: | МНИИТЭП |
| Утверждён: | 24.06.2004 МНИИТЭП (MNIITEP 27-ТО) |
| Принят: | Даниловский завод |








































