Скачать Серия 1.117.1-21 Выпуск 1. Панели толщиной 350 мм. Рабочие чертежиДата актуализации: 01.01.2021
|
| Обозначение: | Серия 1.117.1-21 |
| Обозначение англ: | Series 1.117.1-21 |
| Статус: | не определен законодательством |
| Название рус.: | Выпуск 1. Панели толщиной 350 мм. Рабочие чертежи |
| Дата добавления в базу: | 01.09.2013 |
| Дата актуализации: | 01.01.2021 |
| Дата введения: | 30.01.1986 |
| Дата окончания срока действия: | 30.06.2003 |
| Область применения: | Рабочие чертежи трехслойных стеновых панелей технического этажа предназначены для проектирования и строительства жилых 5 и 9 - этажных домов, строящихся в I климатическом районе |
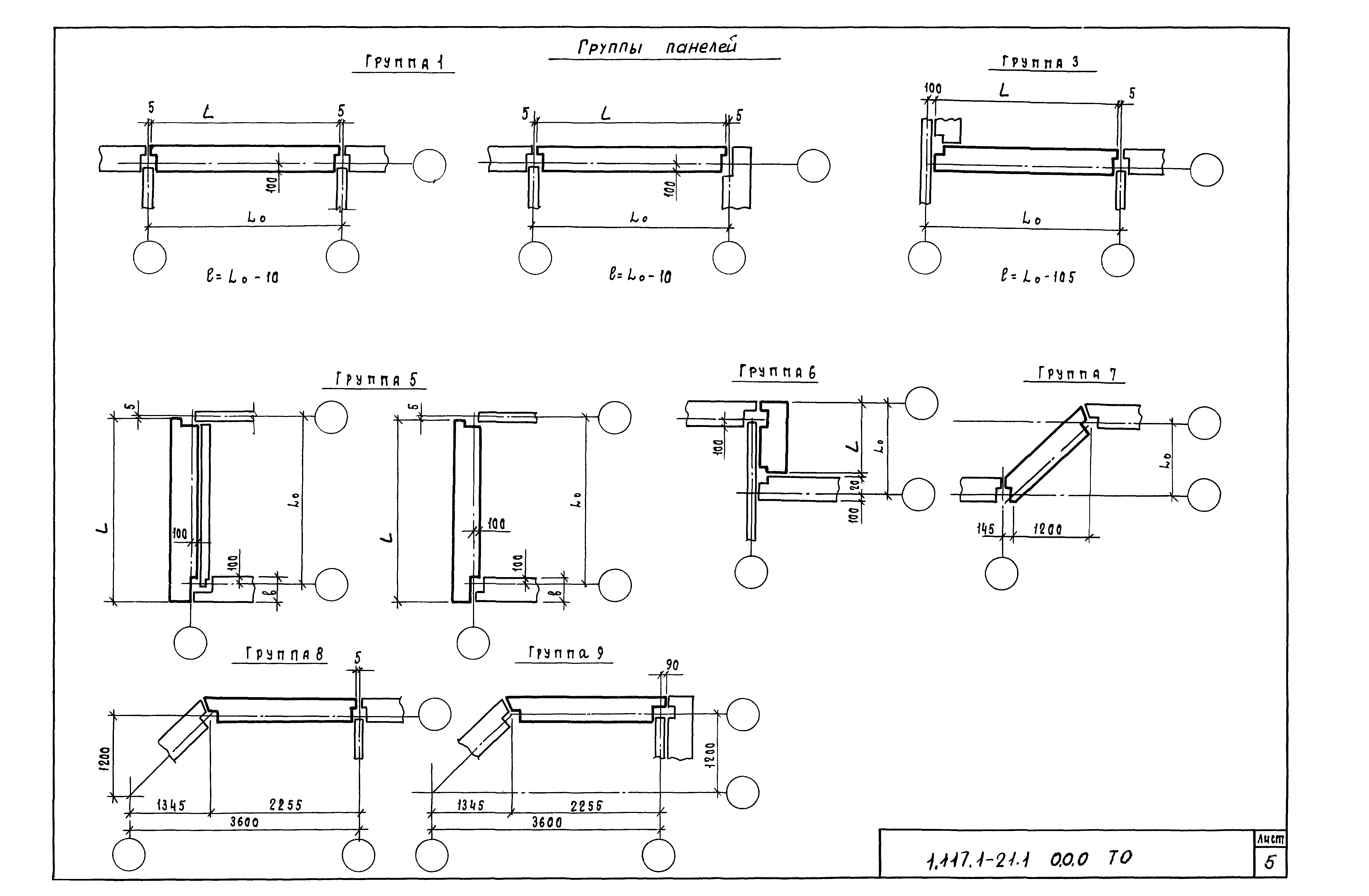
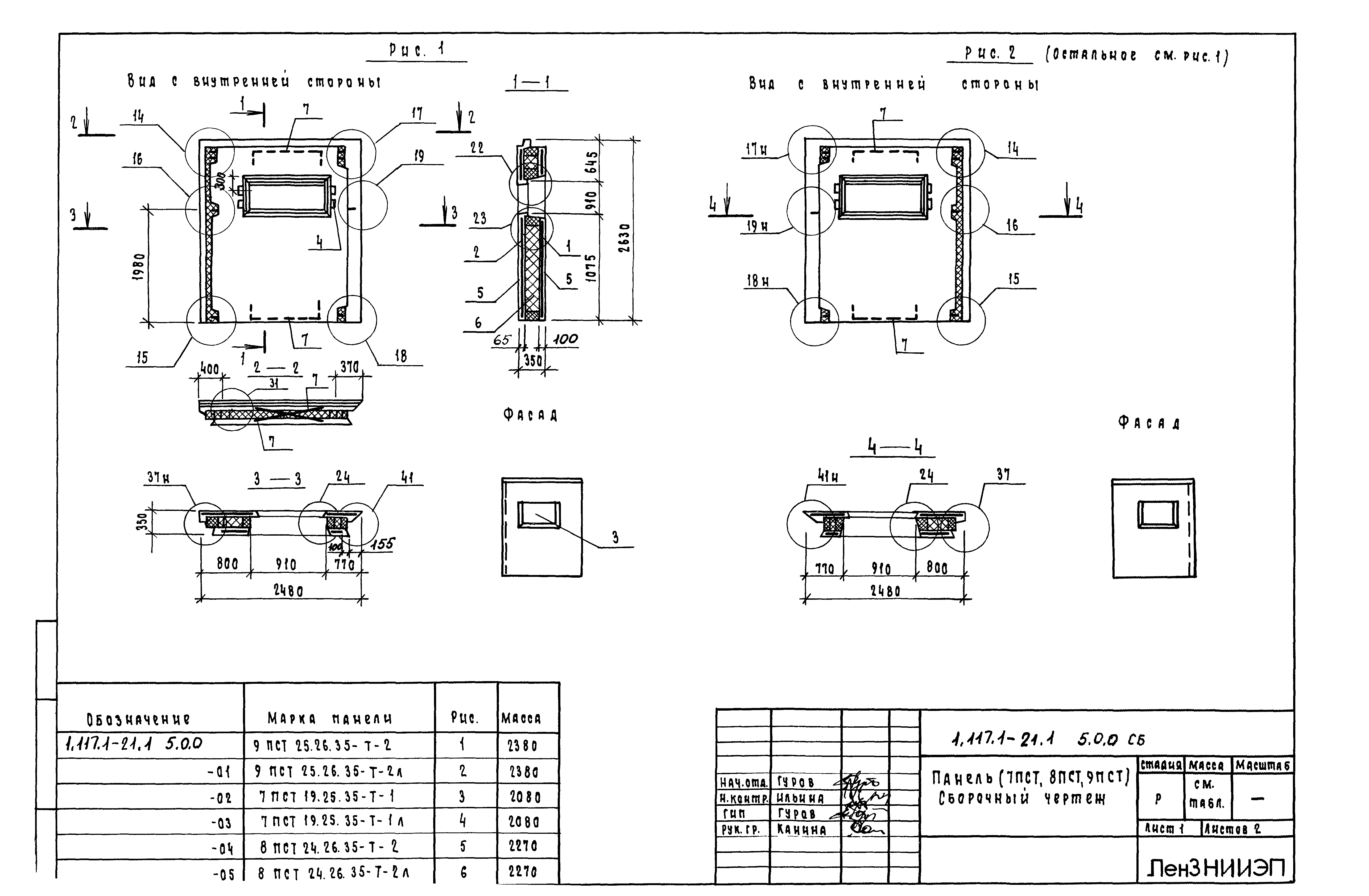
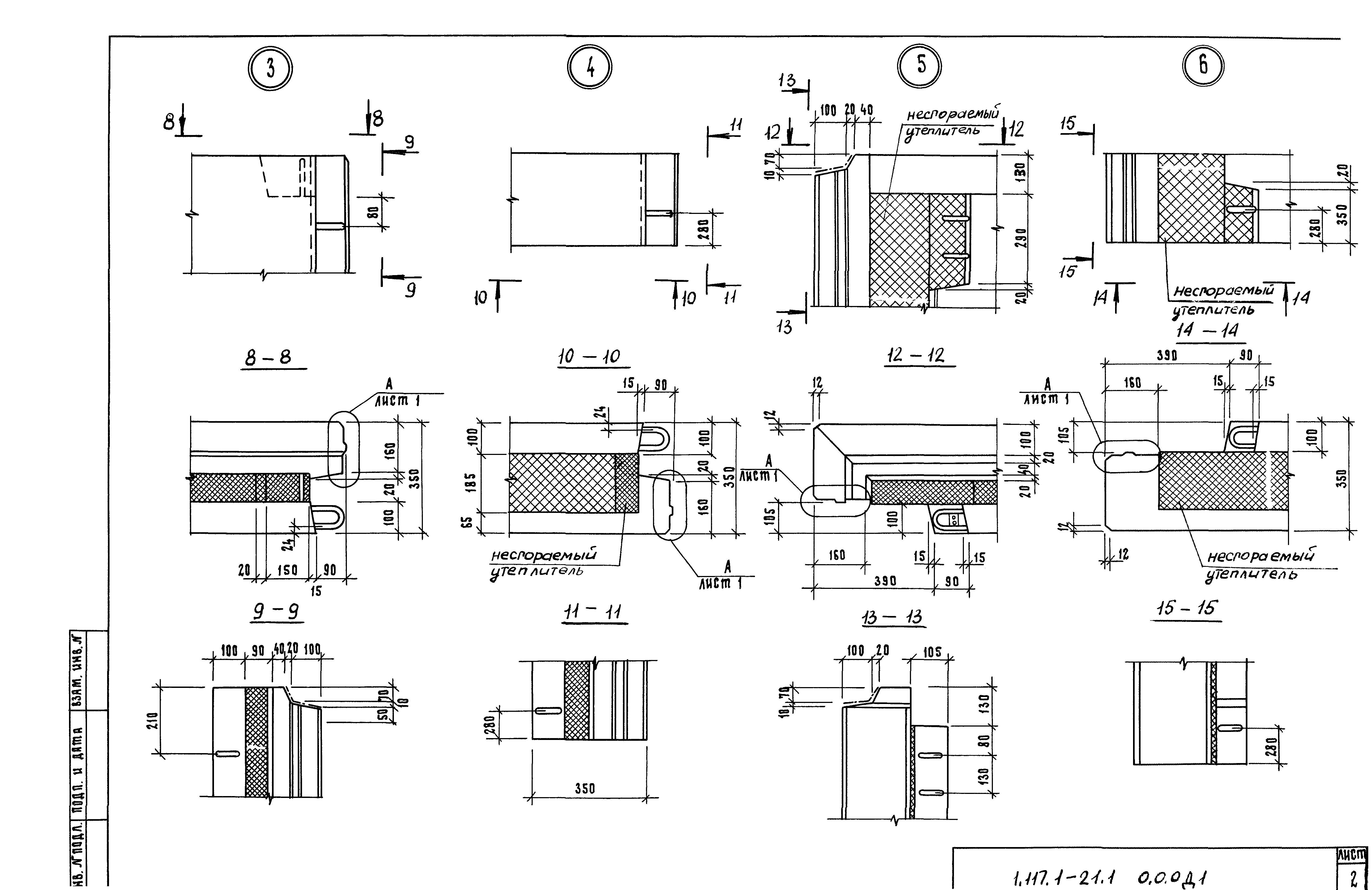
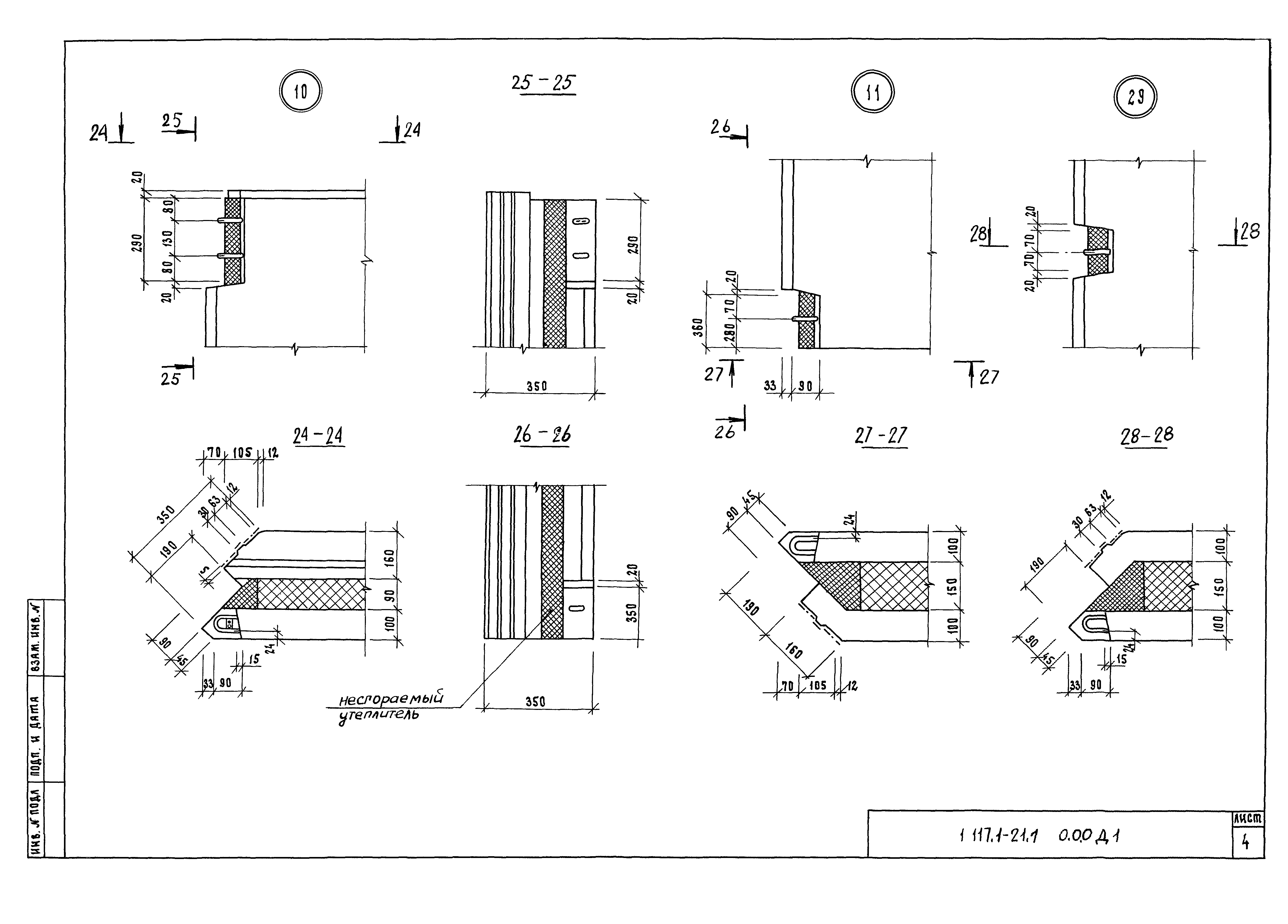
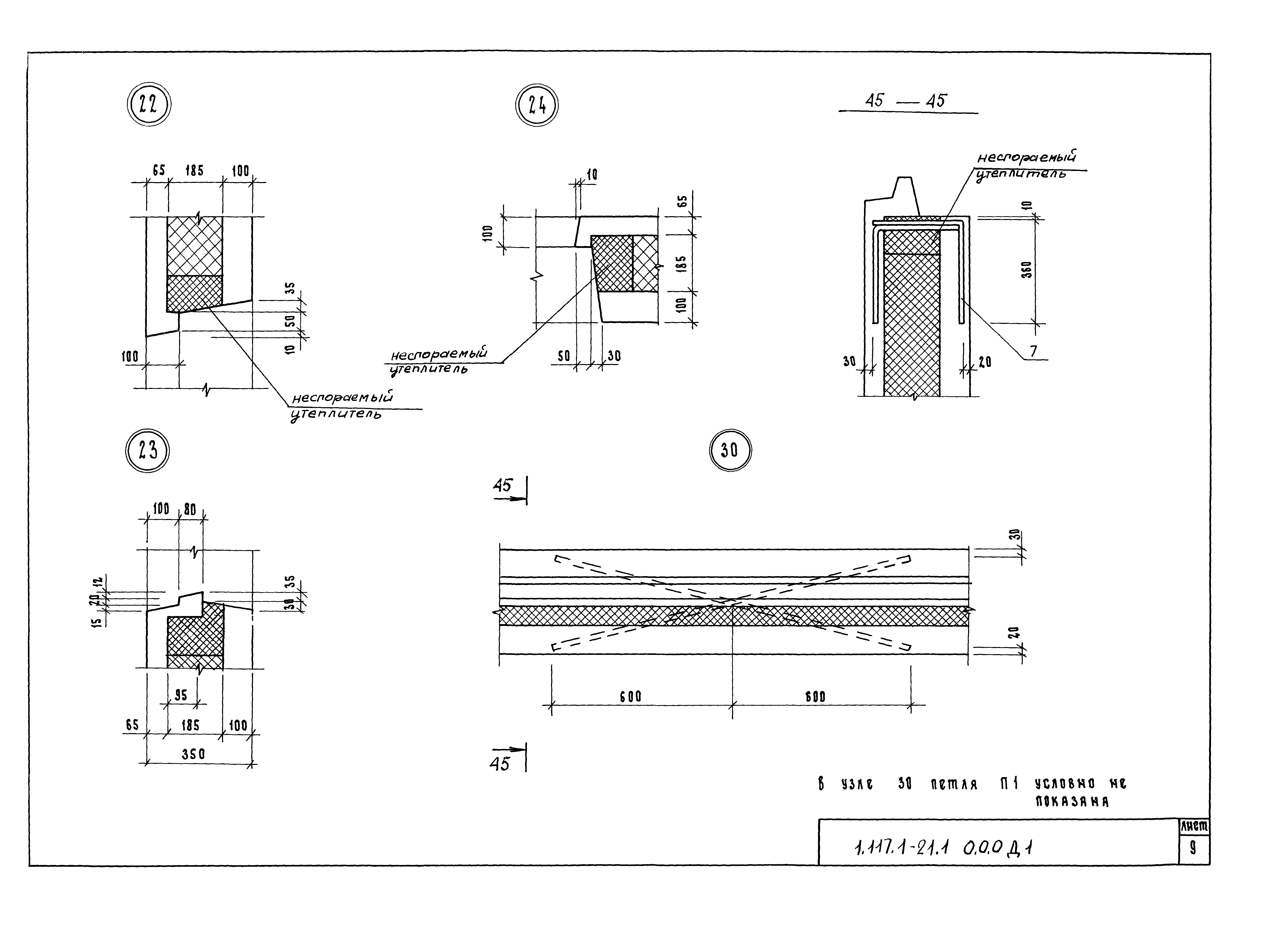
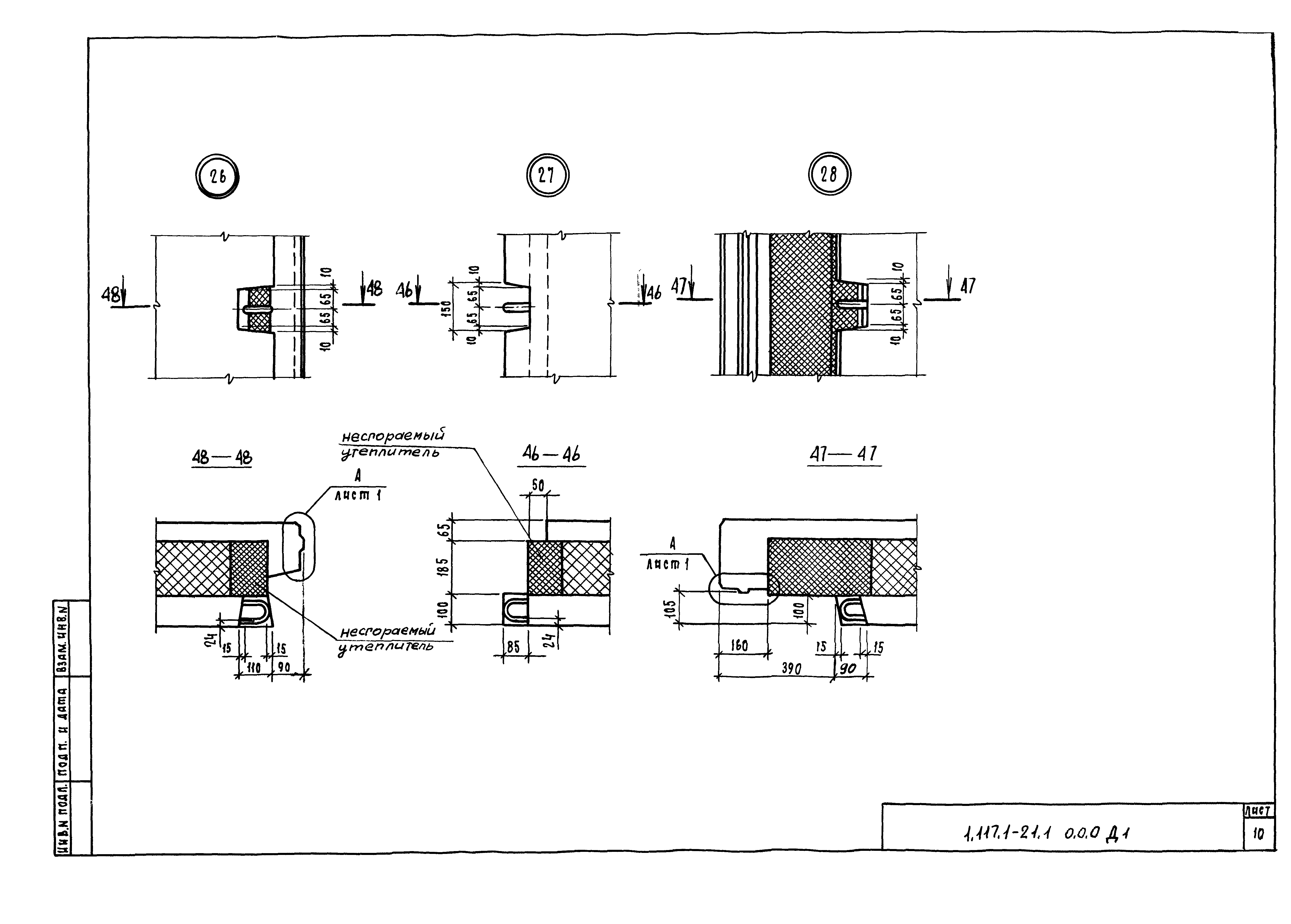
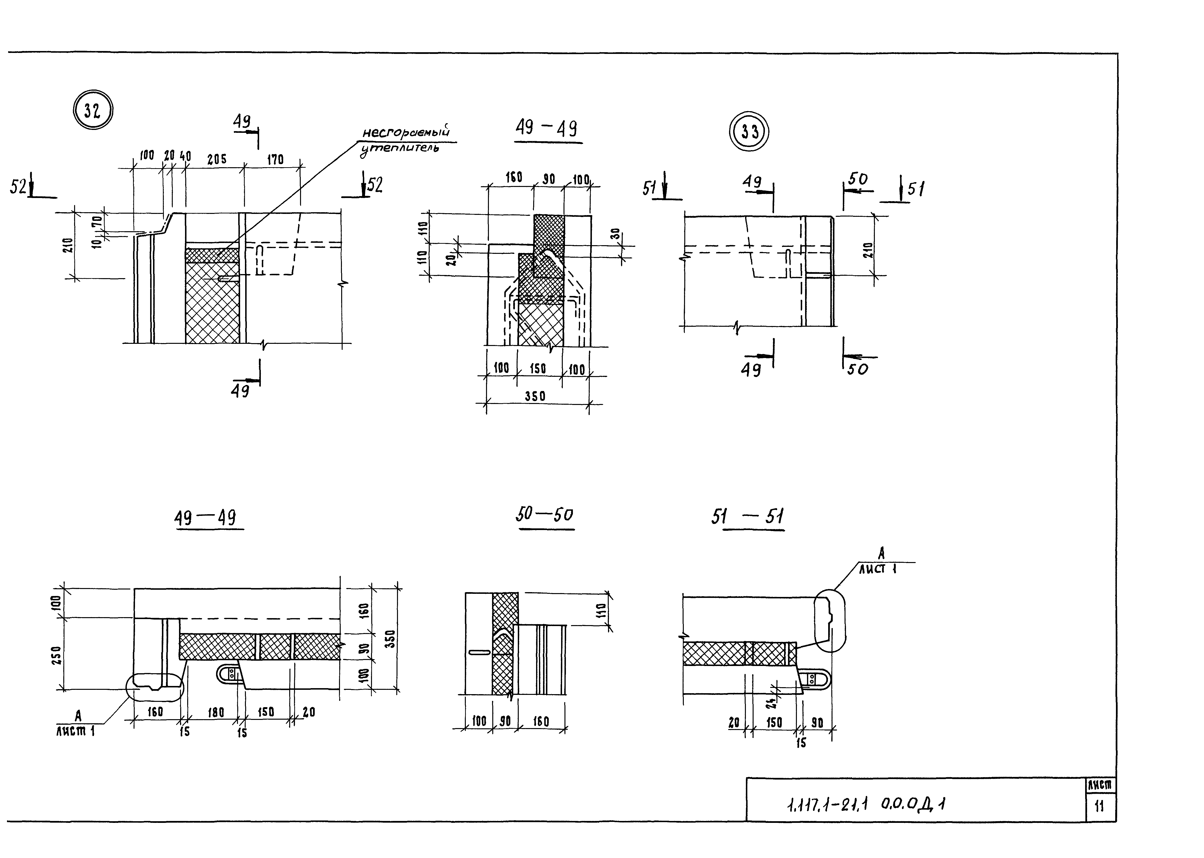
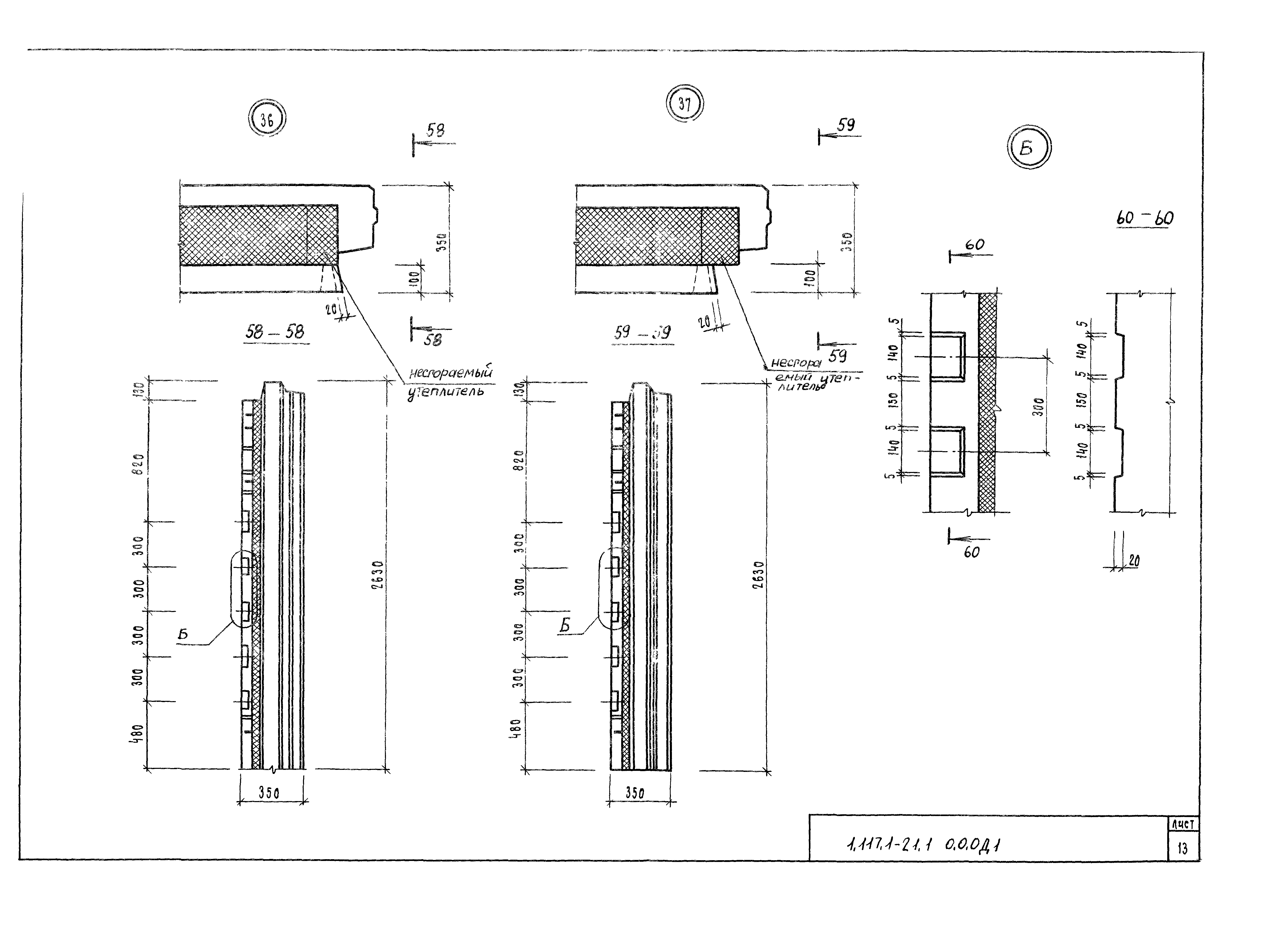
| Оглавление: | 1.117.-21.1 0.0.0 ТО Техническое описание 1.117.-21.1 0.0.0 НИ Номенклатура панели 1.117.-21.1 1.0.0 Панель 1ПСТ 1.117.-21.1 1.0.0 СБ Панель 1ПСТ. Сборочный чертеж 1.117.-21.1 2.0.0 Панель 3ПСТ 1.117.-21.1 2.0.0 СБ Панель 3ПСТ. Сборочный чертеж 1.117.-21.1 3.0.0 Панель 5ПСТ 1.117.-21.1 3.0.0 СБ Панель 5ПСТ. Сборочный чертеж 1.117.-21.1 4.0.0 Панель 6ПСТ 1.117.-21.1 4.0.0 СБ Панель 6ПСТ. Сборочный чертеж 1.117.-21.1 5.0.0 Панель (7ПСТ, 8ПСТ, 9ПСТ) 1.117.-21.1 5.0.0 СБ Панель (7ПСТ, 8ПСТ, 9ПСТ). Сборочный чертеж 1.117.-21.1 6.0.0 Блок оконный ОБ(ОБ1, ОБ2) 1.117.-21.1 6.0.0 СБ Блок оконный ОБ(ОБ1, ОБ2). Сборочный чертеж 1.117.-21.1 0.0.0 Д1 Узлы 1… 43 1.117.-21.1 0.0.0 РС Ведомость расхода стали |
| Разработан: | ЛенЗНИИЭП Госгражданстроя |
| Утверждён: | 20.01.1986 Госгражданстрой (Gosgrazhdanstroy 23) |
| Нормативные ссылки: |
|


















































