Скачать Серия 1.136.5-17 Окна и балконные двери деревянные с тройным остеклением для жилых зданийДата актуализации: 01.01.2021
|
| Обозначение: | Серия 1.136.5-17 |
| Обозначение англ: | Series 1.136.5-17 |
| Статус: | не действует |
| Название рус.: | Окна и балконные двери деревянные с тройным остеклением для жилых зданий |
| Дата добавления в базу: | 01.09.2013 |
| Дата актуализации: | 01.01.2021 |
| Дата введения: | 01.07.1981 |
| Дата окончания срока действия: | 01.06.1989 |
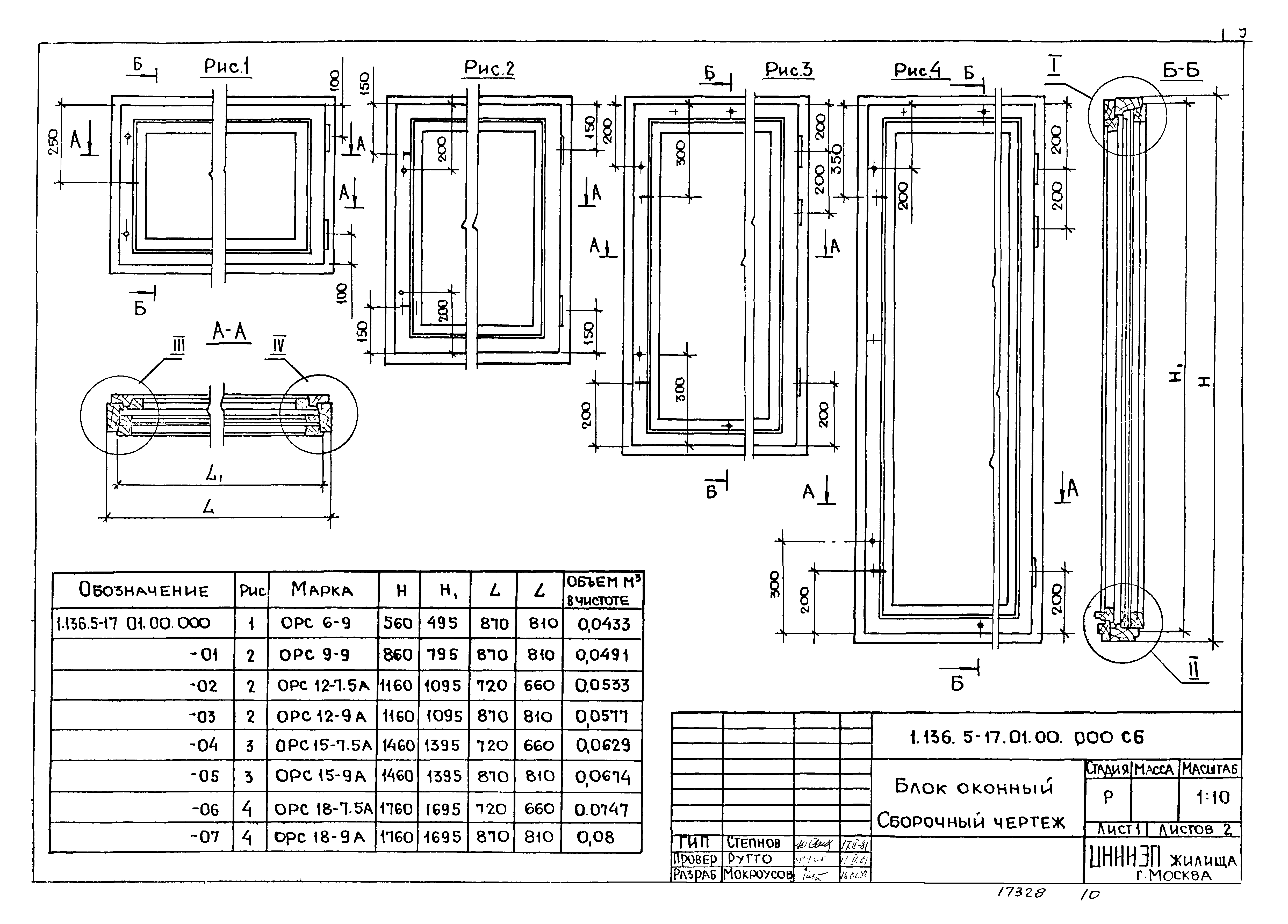
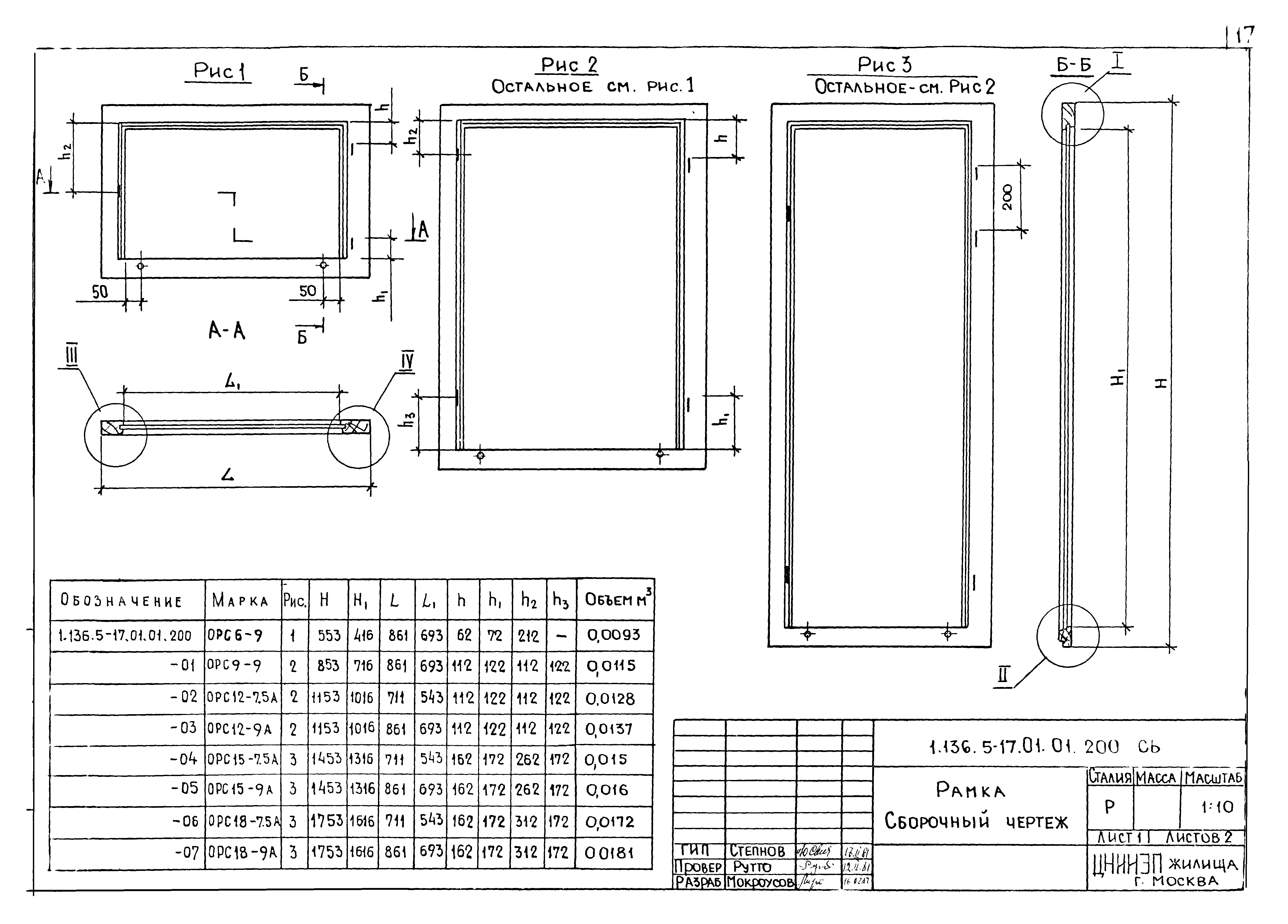
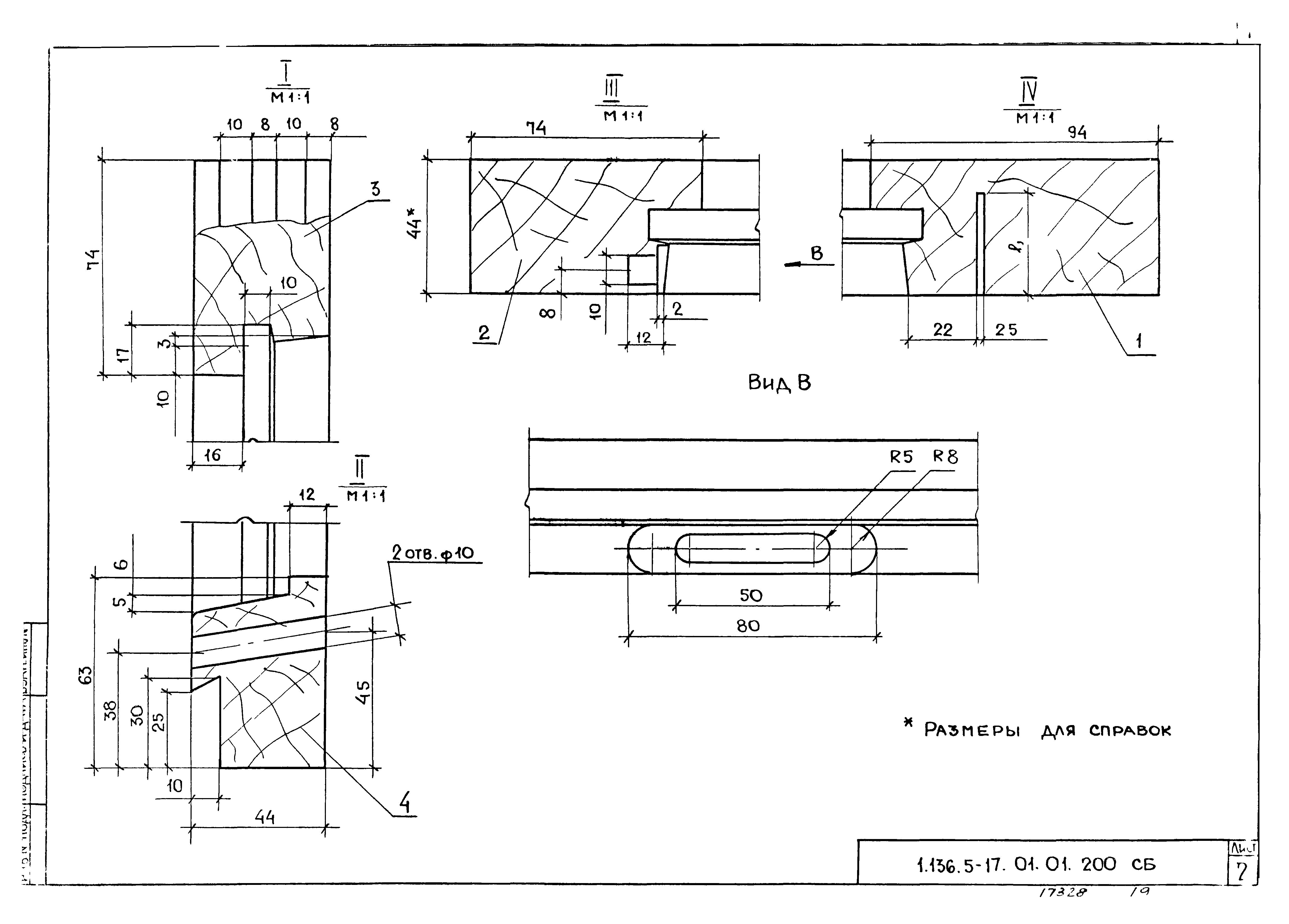
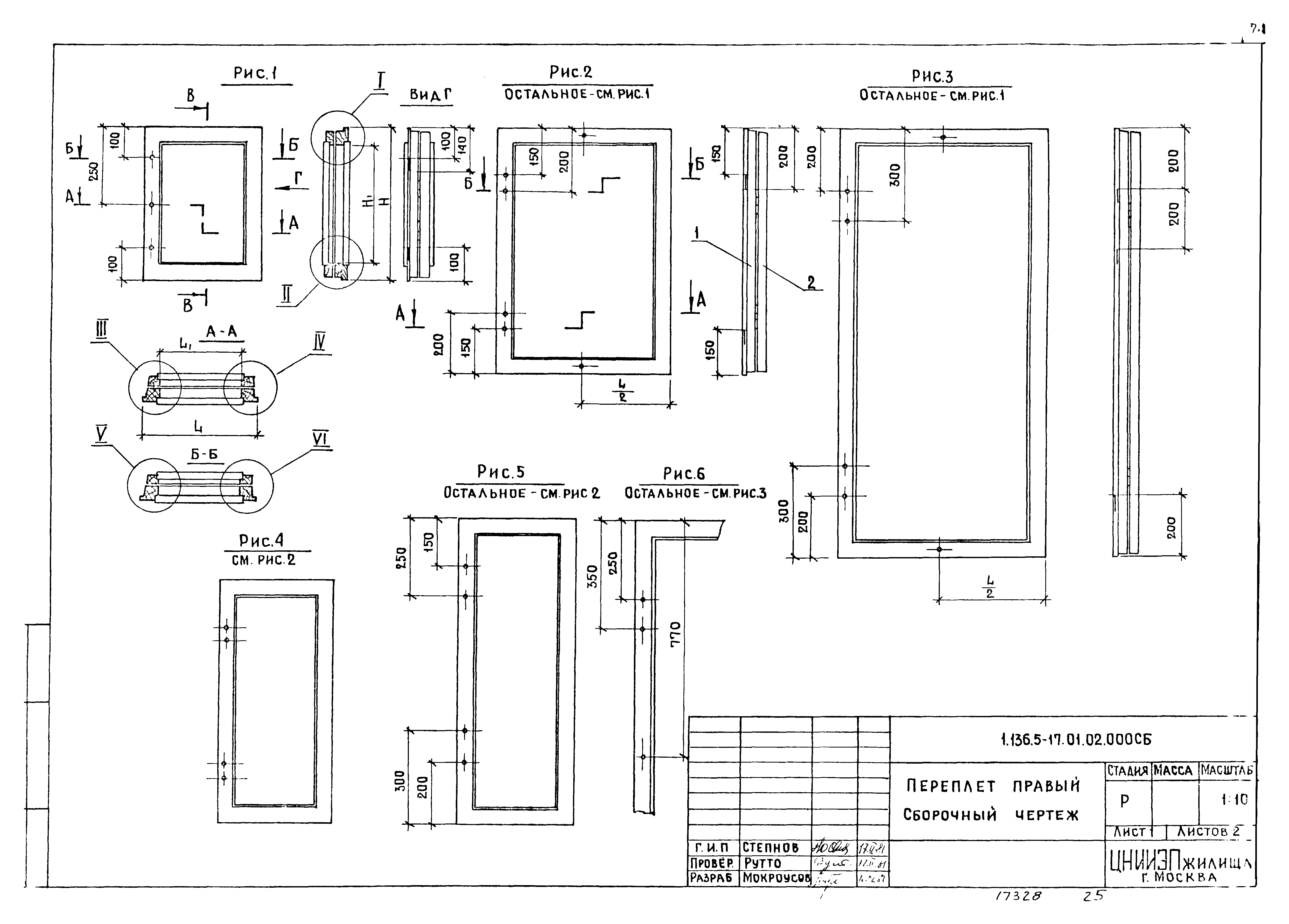
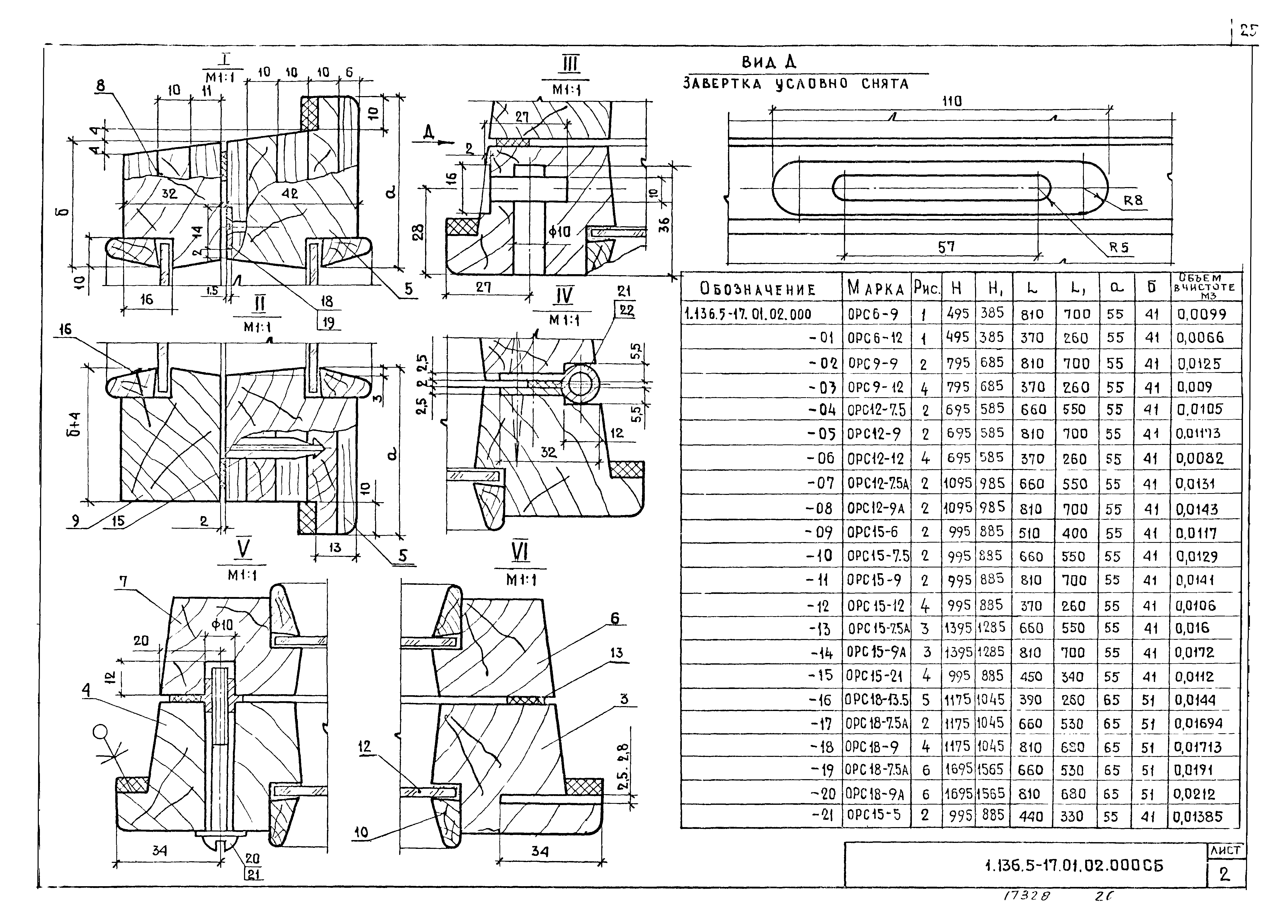
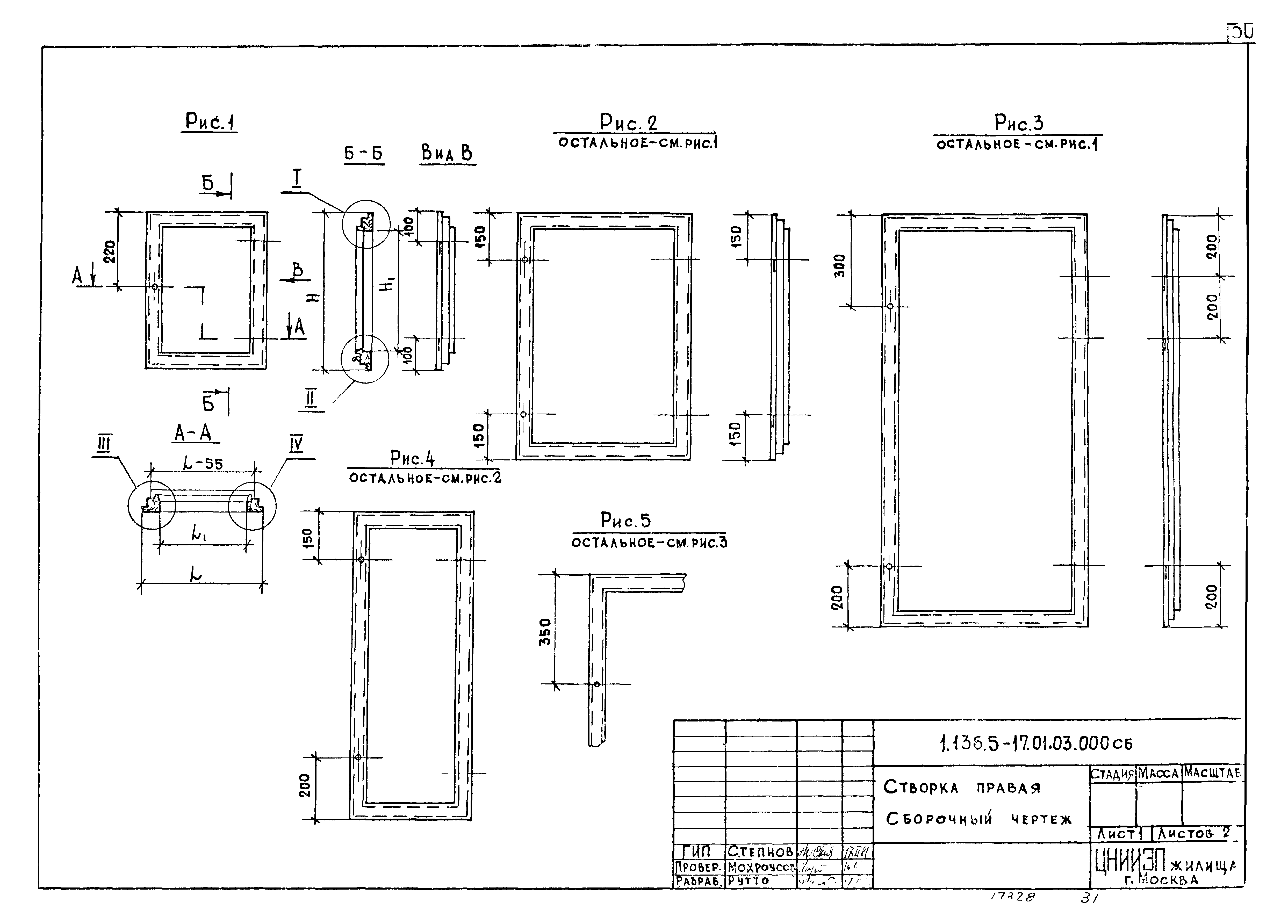
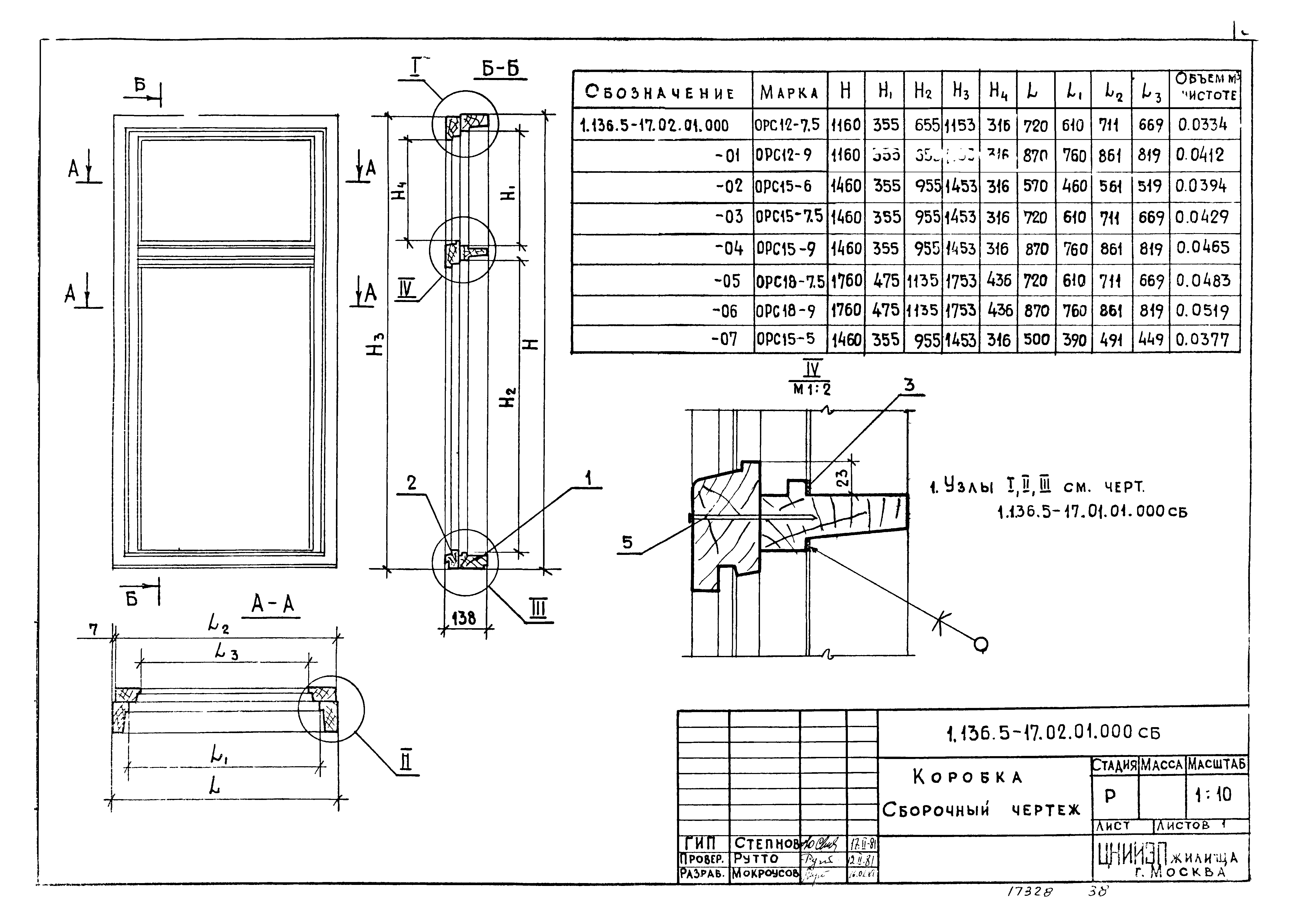
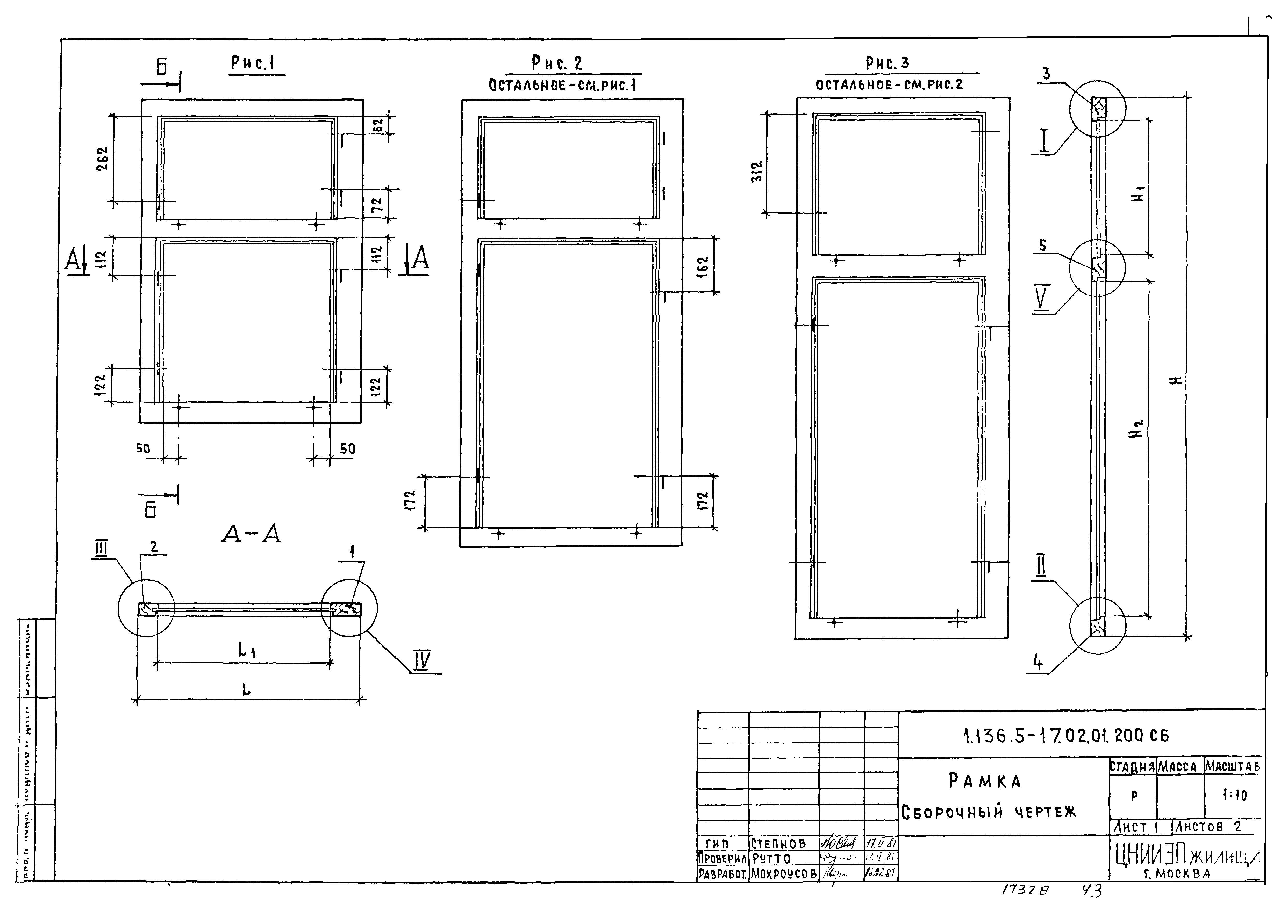
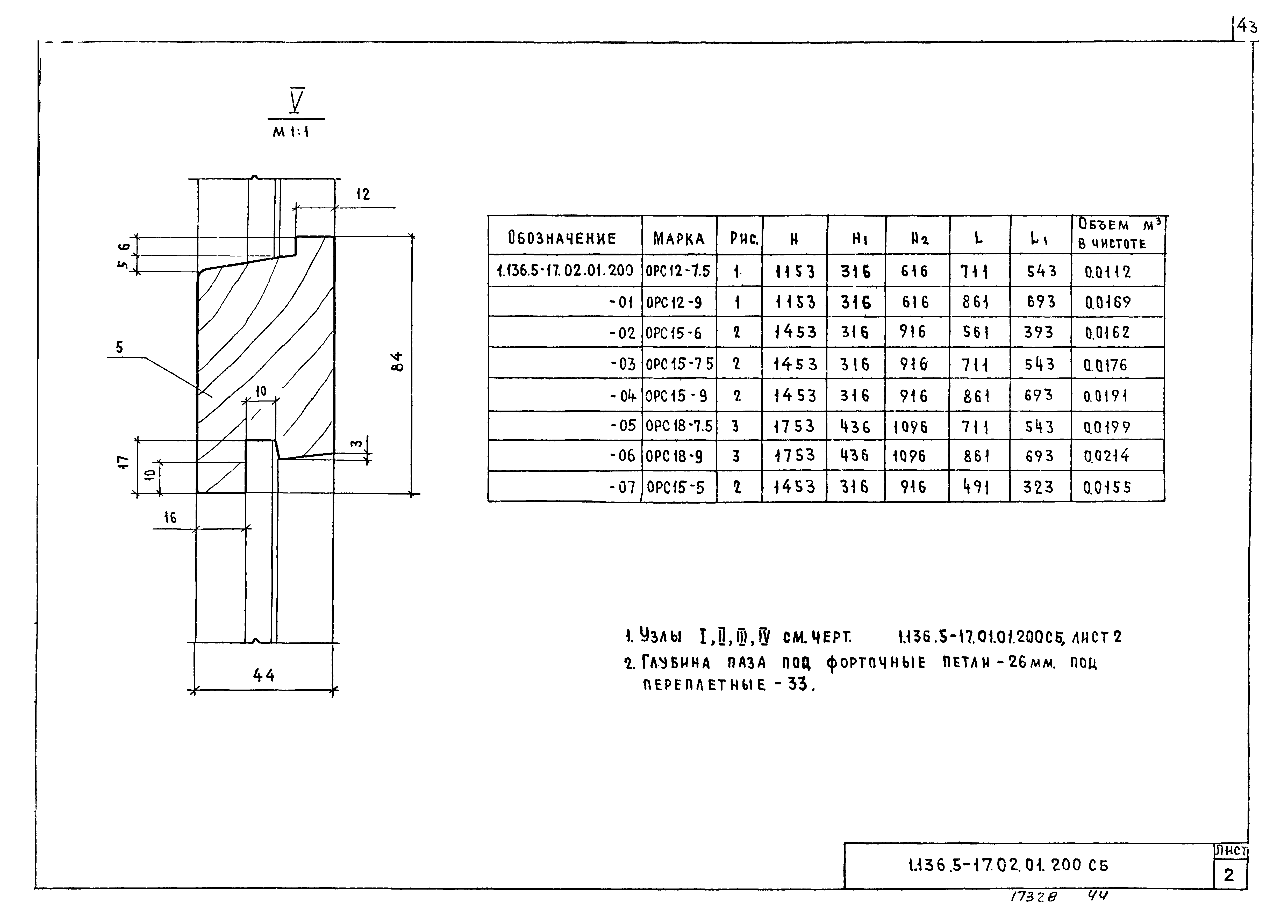
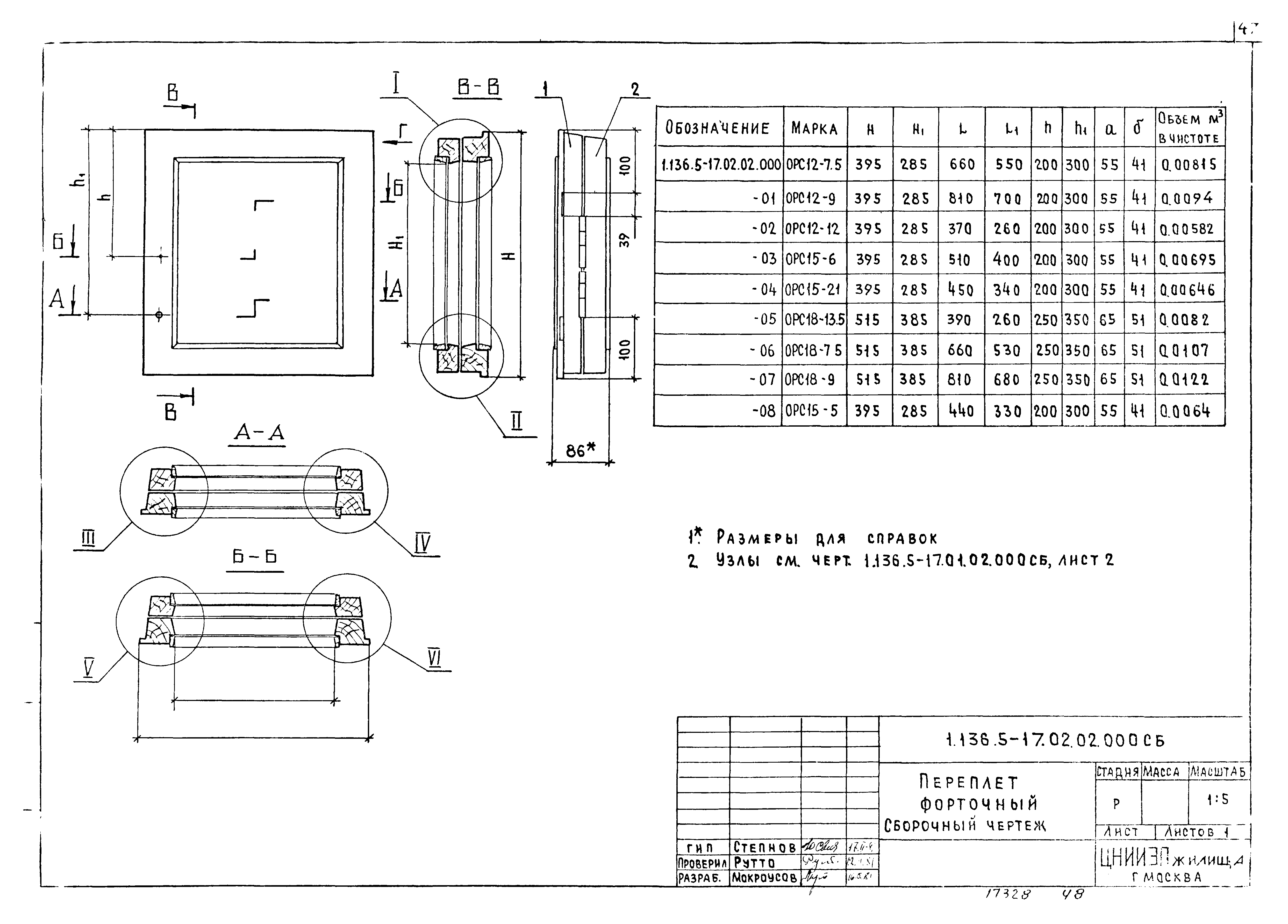
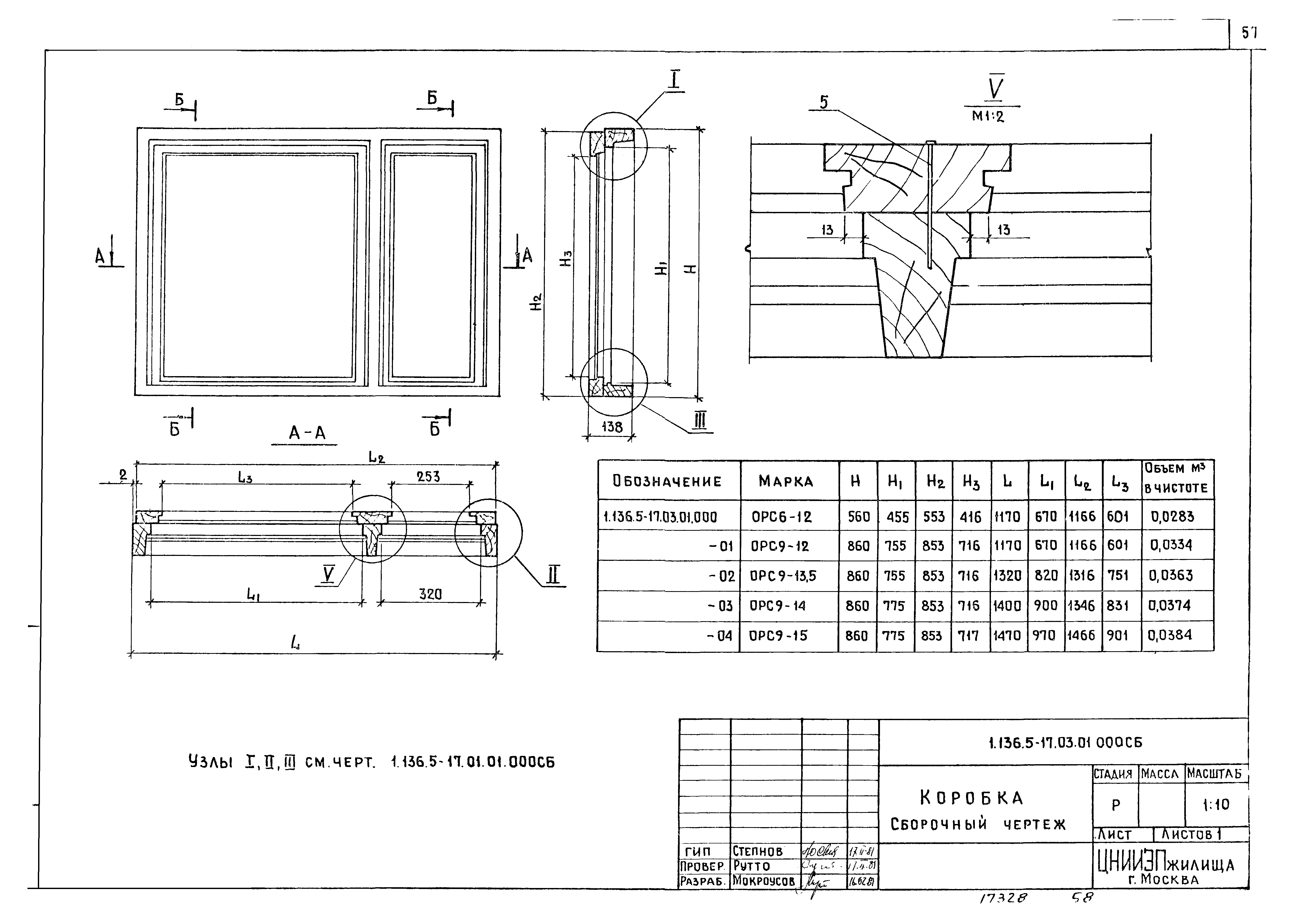
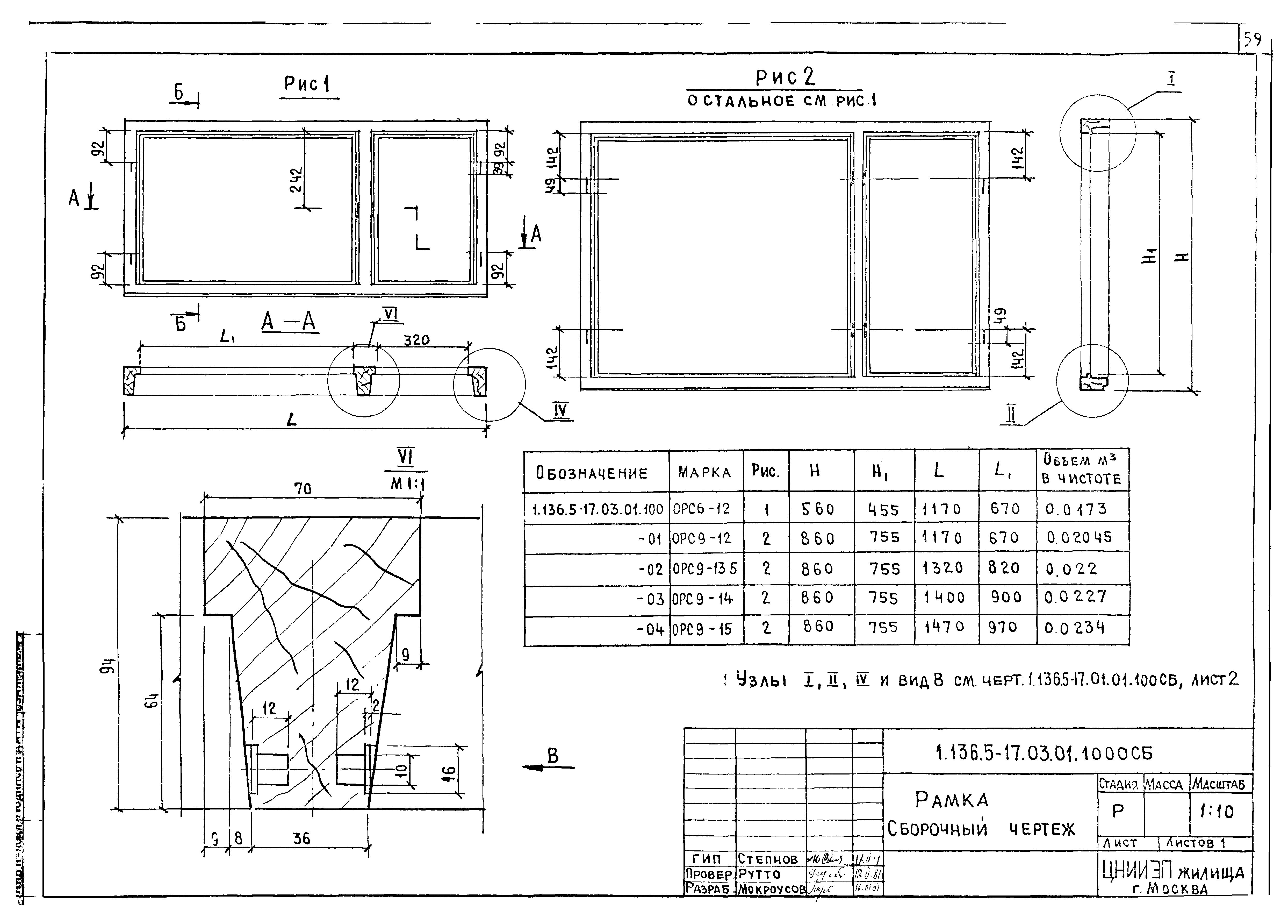
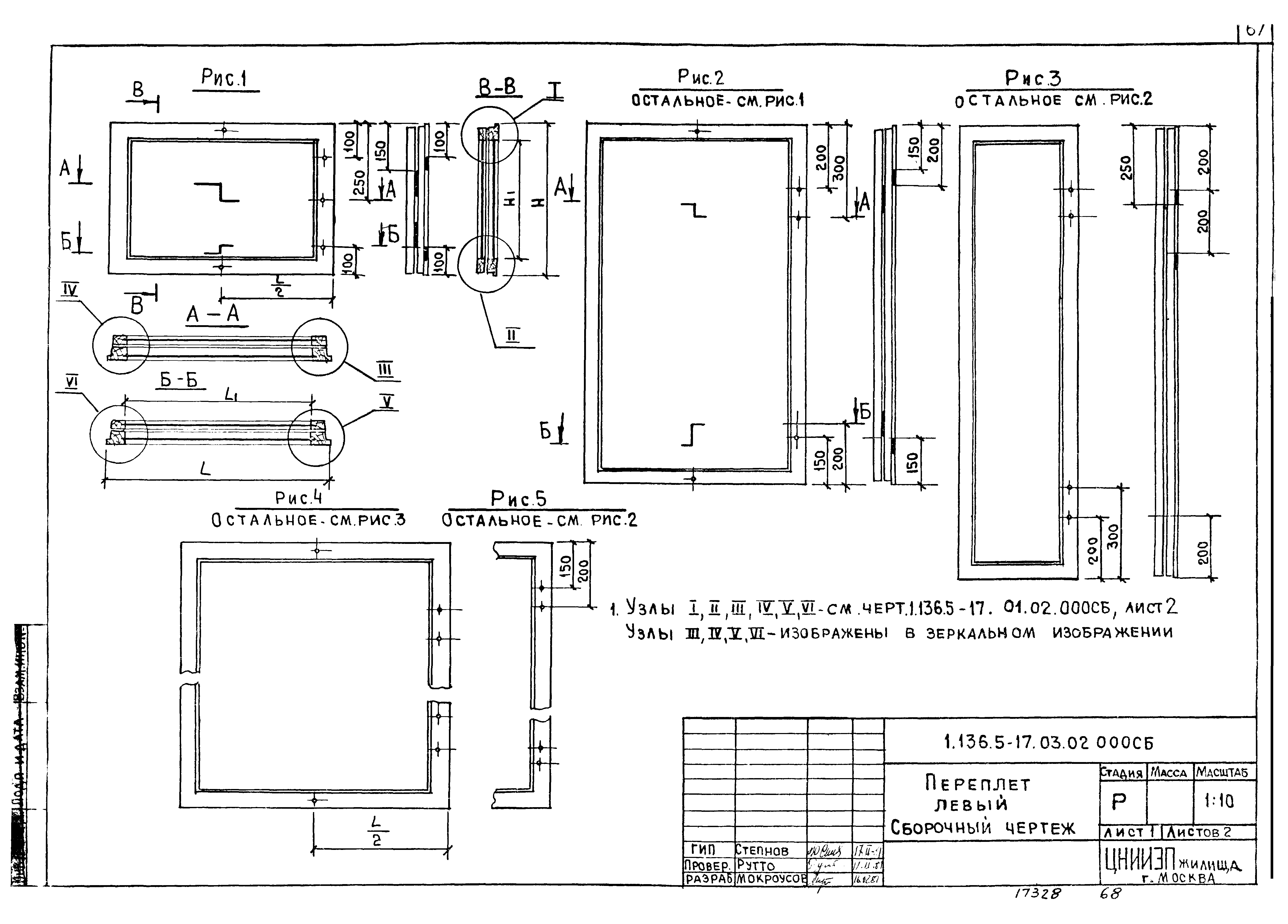
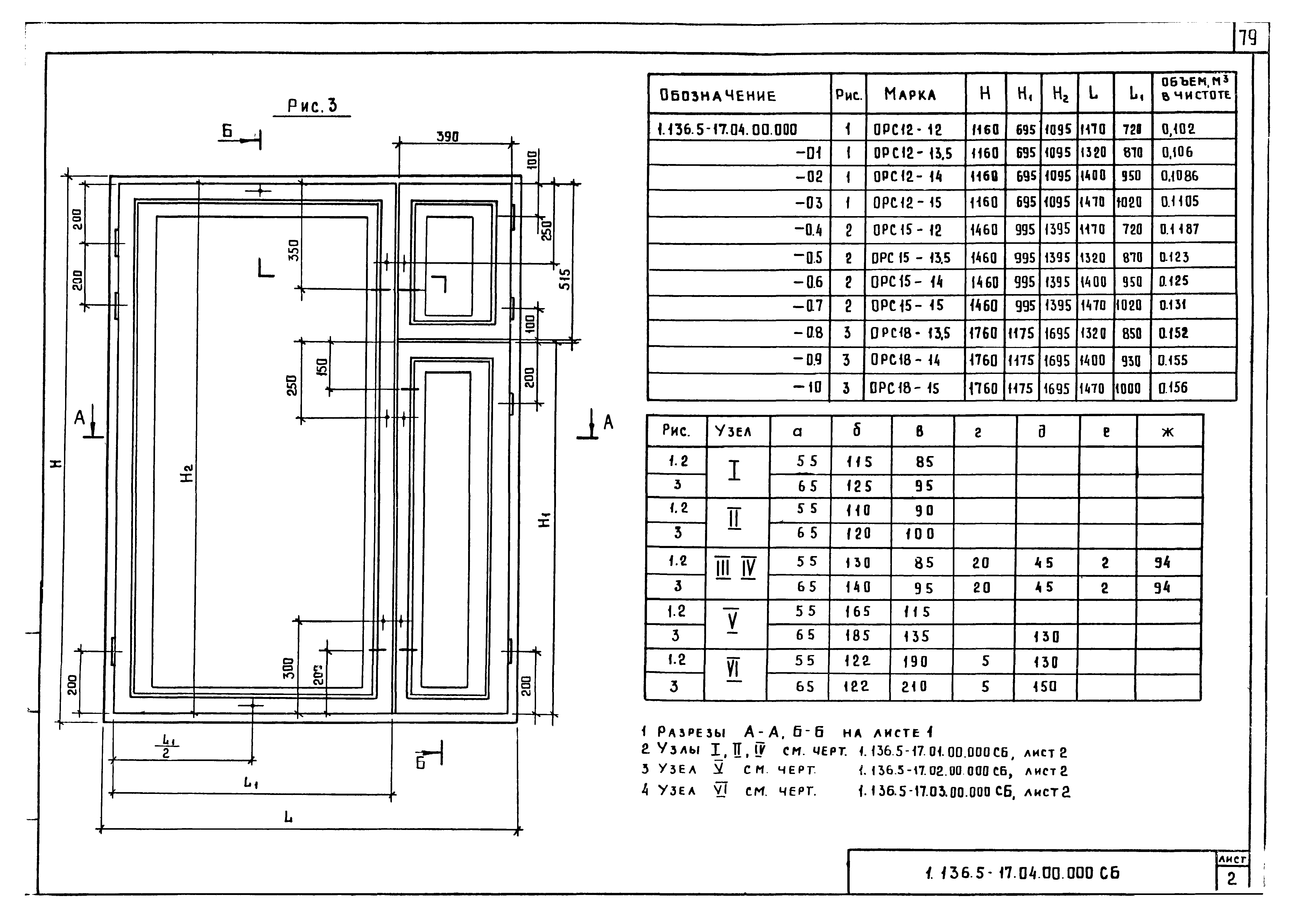
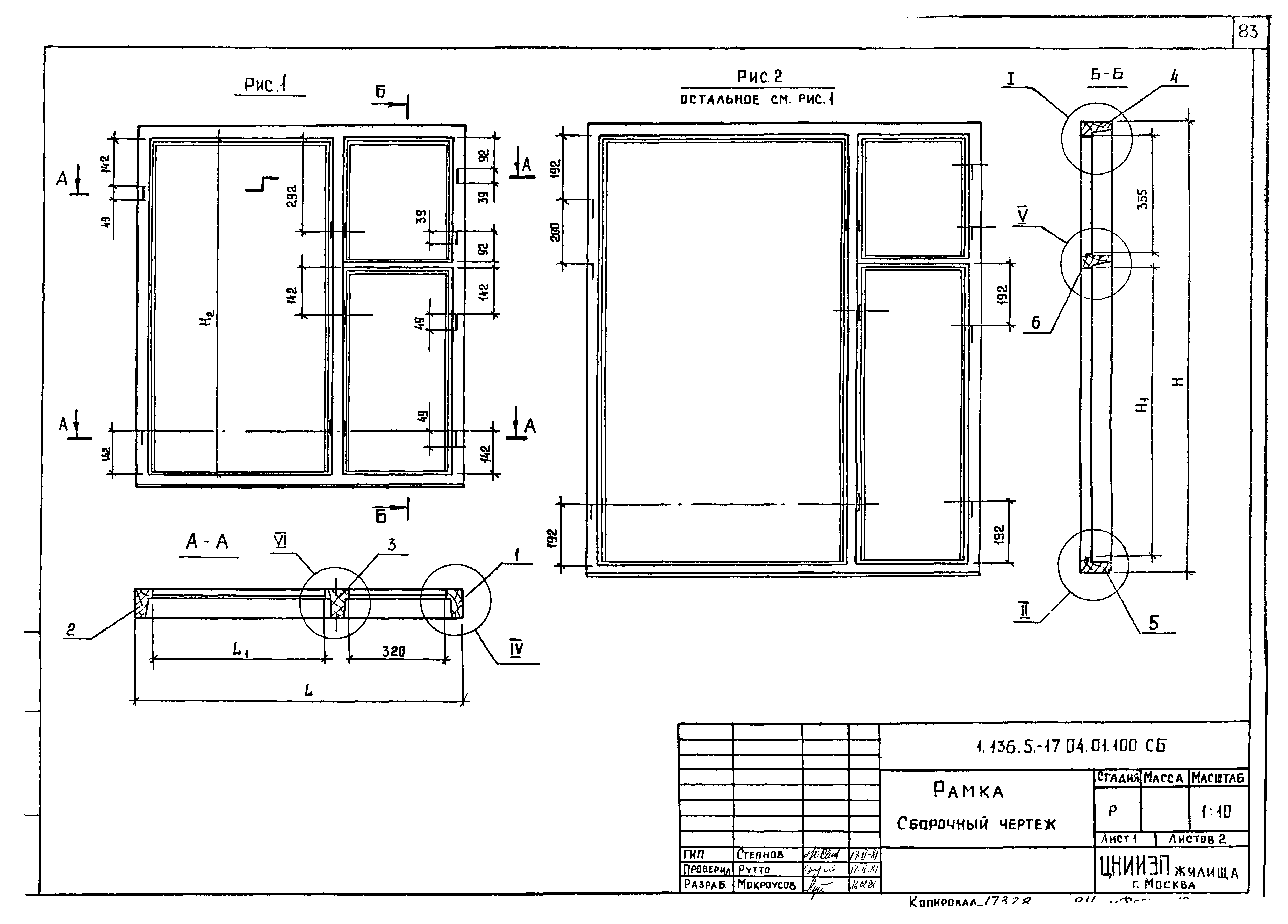
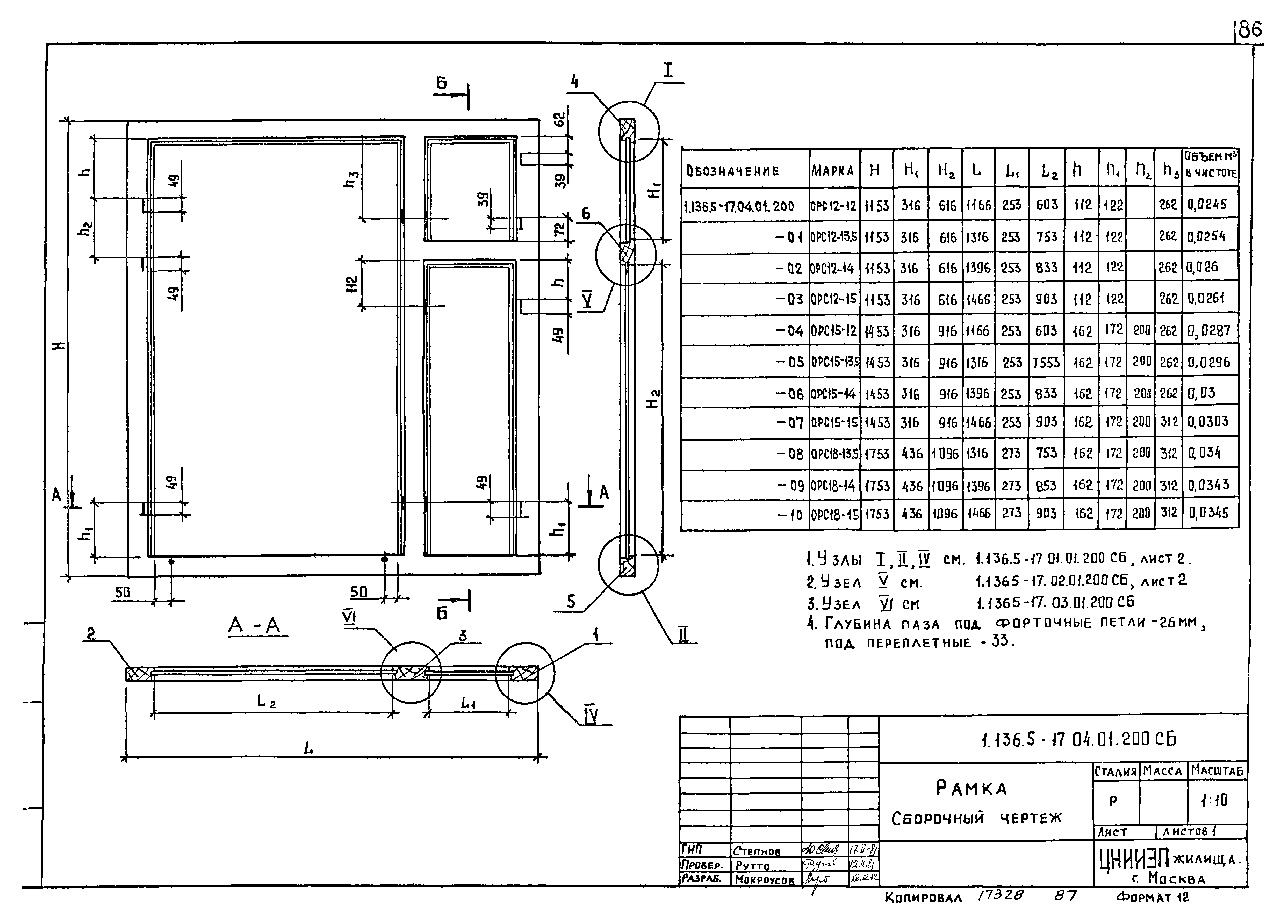
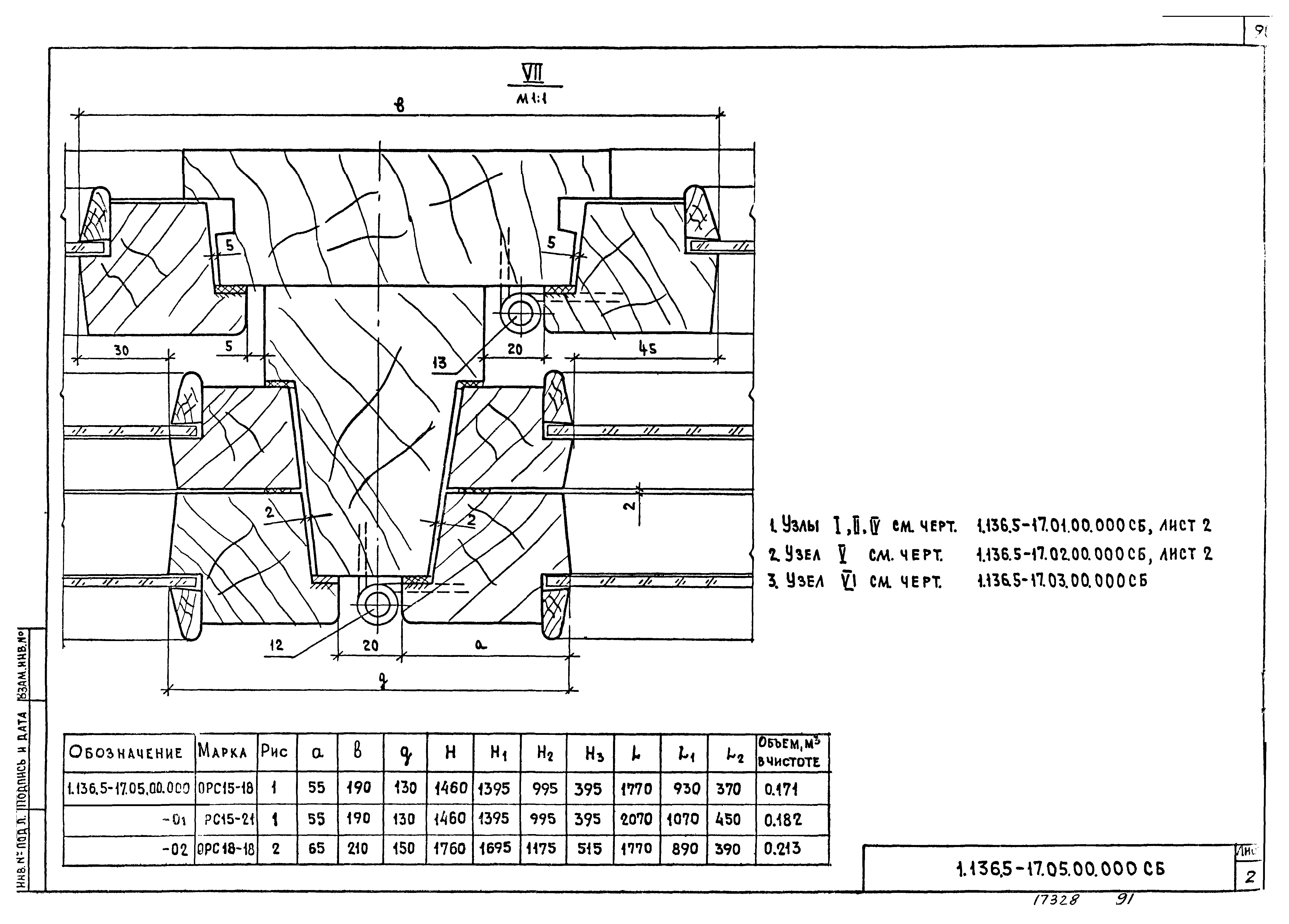
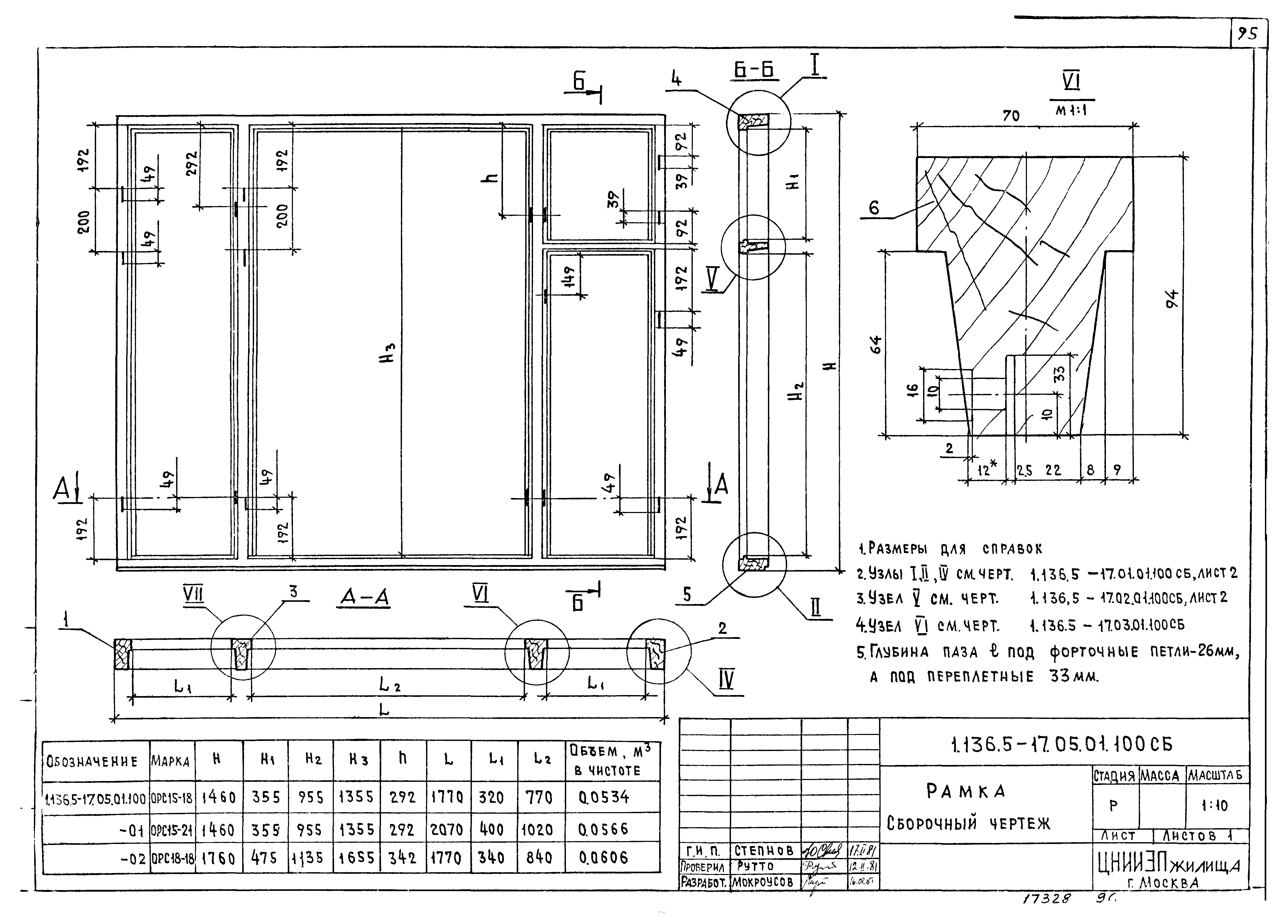
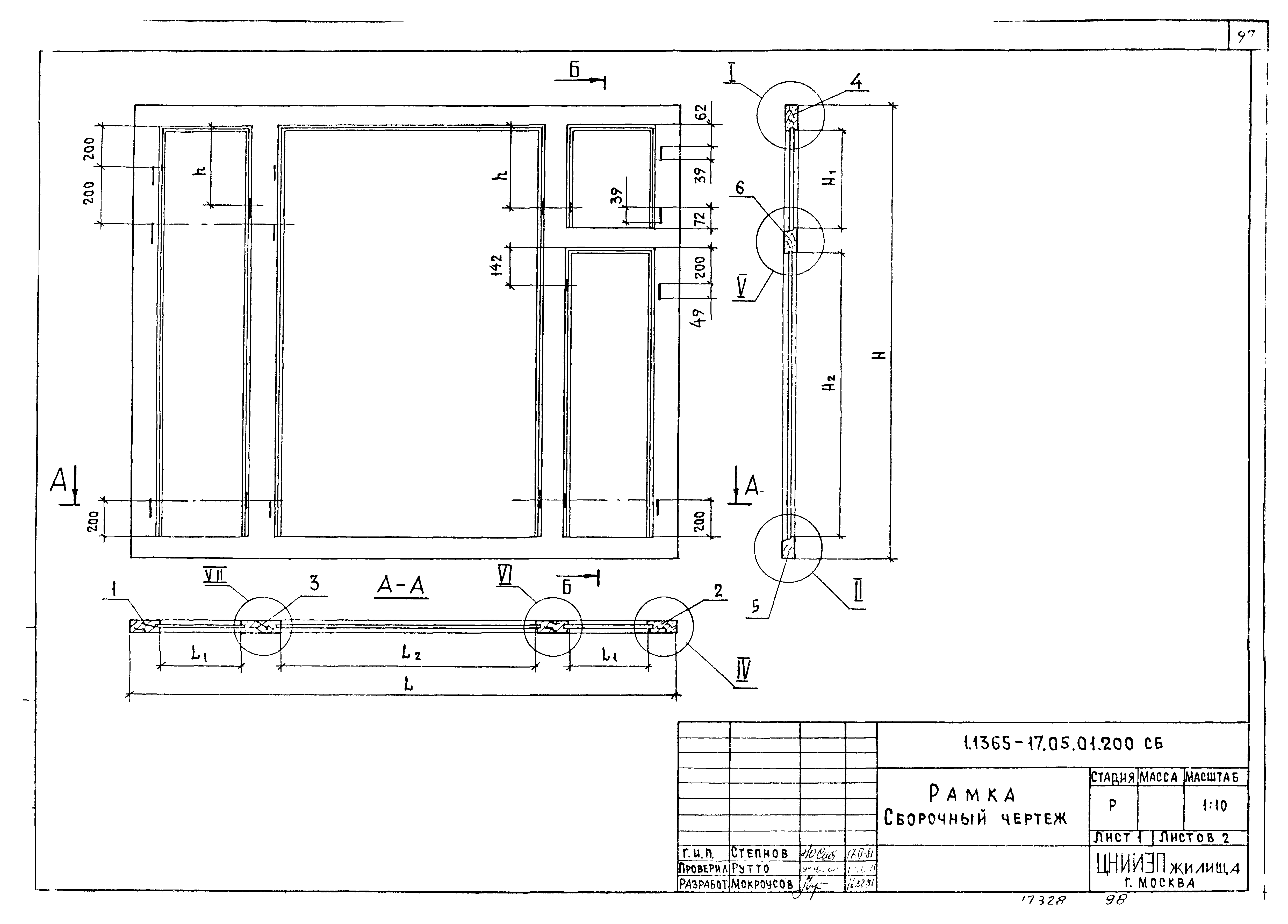
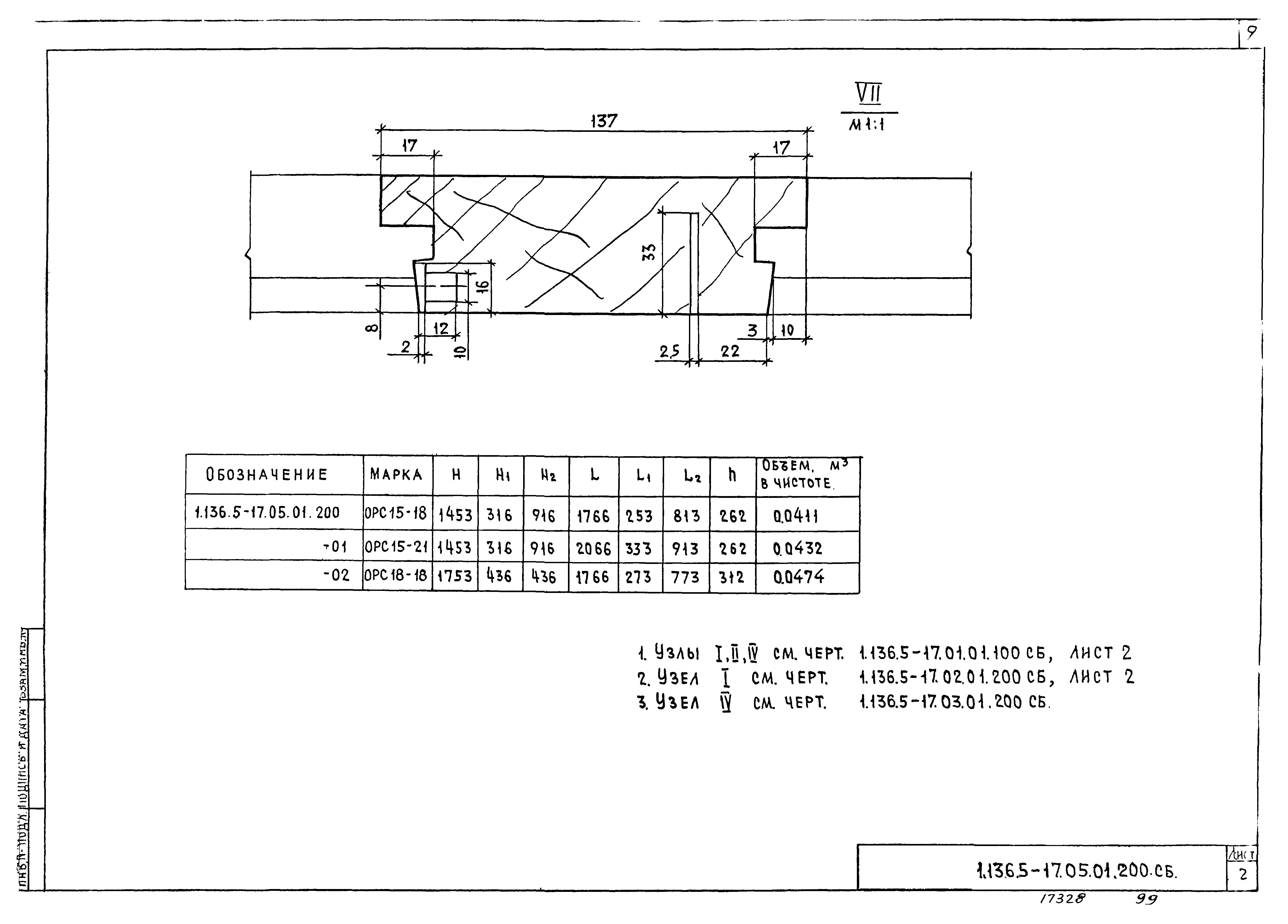
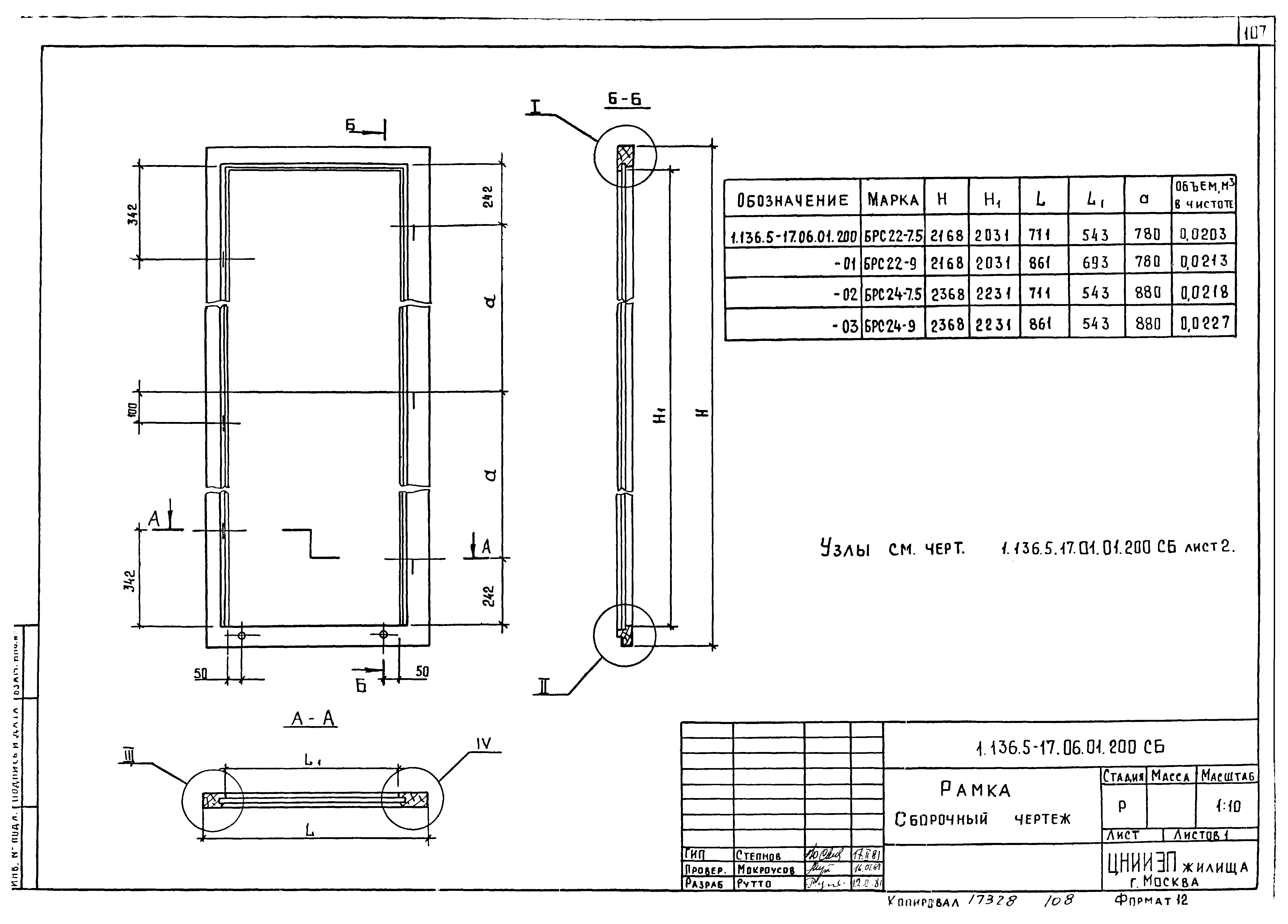
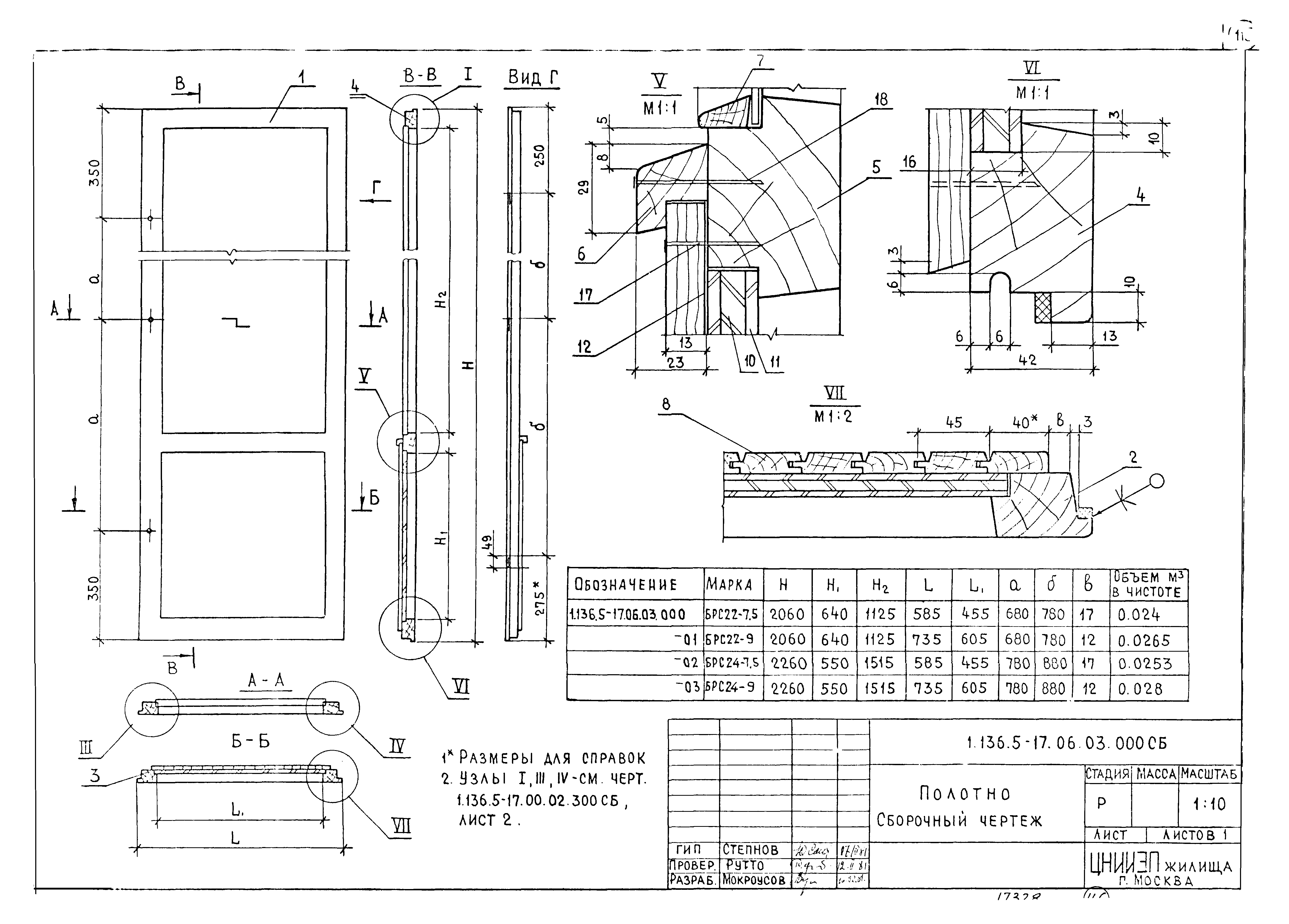
| Оглавление: | Содержание 1.136.5-17.00.00.000 ПЗ Пояснительная записка 1.136.5-17.01.00.000 Блок оконный. Спецификация 1.136.5-17.01.00.000 СБ Блок оконный. Сборочный чертеж 1.136.5-17.01.01.000 Коробка. Спецификация 1.136.5-17.01.01.000 СБ Коробка. Сборочный чертеж 1.136.5-17.01.01.100 Рамка. Спецификация 1.136.5-17.01.01.100 СБ Рамка. Сборочный чертеж 1.136.5-17.01.01.200 Рамка. Спецификация 1.136.5-17.01.01.200 СБ Рамка. Сборочный чертеж 1.136.5-17.01.02.000 Переплет правый. Спецификация 1.136.5-17.01.02.000 СБ Переплет правый. Сборочный чертеж 1.136.5-17.01.03.000 Створка правая. Спецификация 1.136.5-17.01.03.000 СБ Створка правая. Сборочный чертеж 1.136.5-17.02.00.000 Блок оконный. Спецификация 1.136.5-17.02.00.000 СБ Блок оконный. Сборочный чертеж 1.136.5-17.02.01.000 Коробка. Спецификация 1.136.5-17.02.01.000 СБ Коробка. Сборочный чертеж 1.136.5-17.02.01.100 Рамка. Спецификация 1.136.5-17.02.01.100 СБ Рамка. Сборочный чертеж 1.136.5-17.02.01.200 Рамка. Спецификация 1.136.5-17.02.01.200 СБ Рамка. Сборочный чертеж 1.136.5-17.02.02.000 Переплет форточный. Спецификация 1.136.5-17.02.02.000 СБ Переплет форточный. Сборочный чертеж 1.136.5-17.02.03.000 Створка форточная. Спецификация 1.136.5-17.02.03.000 СБ Створка форточная. Сборочный чертеж 1.136.5-17.03.00.000 Блок оконный. Спецификация 1.136.5-17.03.00.000 СБ Блок оконный. Сборочный чертеж 1.136.5-17.03.01.000 Коробка. Спецификация 1.136.5-17.03.01.000 СБ Коробка. Сборочный чертеж 1.136.5-17.03.01.100 Рамка. Спецификация 1.136.5-17.03.01.100 СБ Рамка. Сборочный чертеж 1.136.5-17.03.01.200 Рамка. Спецификация 1.136.5-17.03.01.200 СБ Рамка. Сборочный чертеж 1.136.5-17.03.02.000 Переплет левый. Спецификация 1.136.5-17.03.02.000 СБ Переплет левый. Сборочный чертеж 1.136.5-17.03.03.000 Створка левая. Спецификация 1.136.5-17.03.03.000 СБ Створка левая. Сборочный чертеж 1.136.5-17.04.00.000 Блок оконный. Спецификация 1.136.5-17.04.00.000 СБ Блок оконный. Сборочный чертеж 1.136.5-17.04.01.000 Коробка. Спецификация 1.136.5-17.04.01.000 СБ Коробка. Сборочный чертеж 1.136.5-17.04.01.100 Рамка. Спецификация 1.136.5-17.04.01.100 СБ Рамка. Сборочный чертеж 1.136.5-17.04.01.200 Рамка. Спецификация 1.136.5-17.04.01.200 СБ Рамка. Сборочный чертеж 1.136.5-17.05.00.000 Блок оконный. Спецификация 1.136.5-17.05.00.000 СБ Блок оконный. Сборочный чертеж 1.136.5-17.05.01.000 Коробка. Спецификация 1.136.5-17.05.01.000 СБ Коробка. Сборочный чертеж 1.136.5-17.05.01.100 Рамка. Спецификация 1.136.5-17.05.01.100 СБ Рамка. Сборочный чертеж 1.136.5-17.05.01.200 Рамка. Спецификация 1.136.5-17.05.01.200 СБ Рамка. Сборочный чертеж 1.136.5-17.06.00.000 Дверь балконная. Спецификация 1.136.5-17.06.00.000 СБ Дверь балконная. Сборочный чертеж 1.136.5-17.06.01.000 Коробка. Спецификация 1.136.5-17.06.01.000 СБ Коробка. Сборочный чертеж 1.136.5-17.06.01.100 Рамка. Спецификация 1.136.5-17.06.01.100 СБ Рамка. Сборочный чертеж 1.136.5-17.06.01.200 Рамка. Спецификация 1.136.5-17.06.01.200 СБ Рамка. Сборочный чертеж 1.136.5-17.06.02.000 Полотно. Спецификация 1.136.5-17.06.02.000 СБ Полотно. Сборочный чертеж 1.136.5-17.06.03.000 Полотно. Спецификация 1.136.5-17.06.03.000 СБ Полотно. Сборочный чертеж |
| Разработан: | ЦНИИЭП жилища |
| Утверждён: | 16.06.1981 Госкомитет по гражданскому строительству и архитектуре при Госстрое СССР (National Committee on Nonindustrial Construction and Architecture, USSR Gosstroy 186) |




















































































































