Скачать 3РС 17-15 Панели наружных стен цокольные трехслойные с высокими теплотехническими характеристикамиДата актуализации: 01.01.2021
|
| Обозначение: | 3РС 17-15 |
| Обозначение англ: | 3РС 17-15 |
| Статус: | не определен законодательством |
| Название рус.: | Панели наружных стен цокольные трехслойные с высокими теплотехническими характеристиками |
| Дата добавления в базу: | 01.09.2013 |
| Дата актуализации: | 01.01.2021 |
| Дата введения: | 18.03.1999 |
| Дата окончания срока действия: | 30.06.2003 |
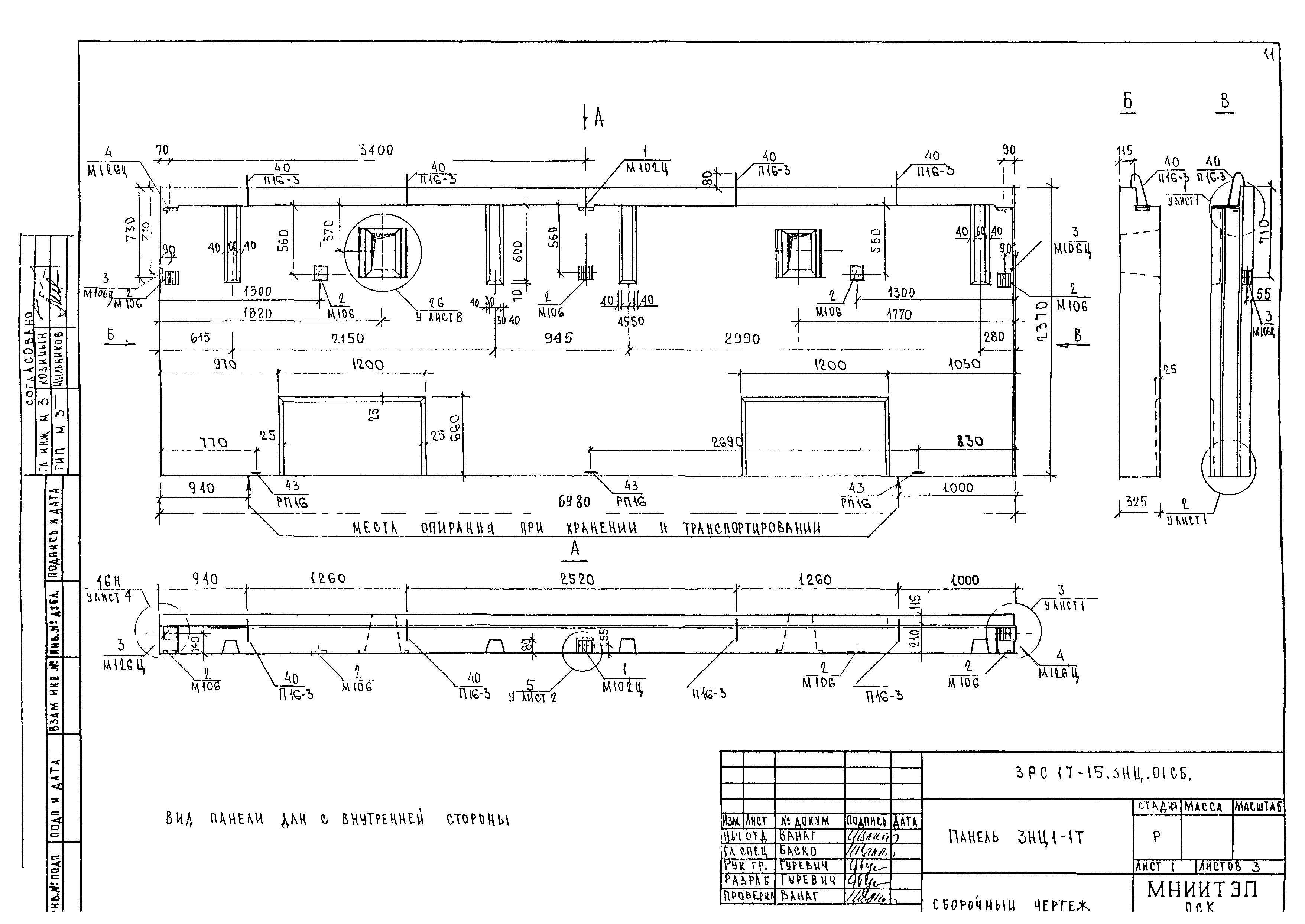
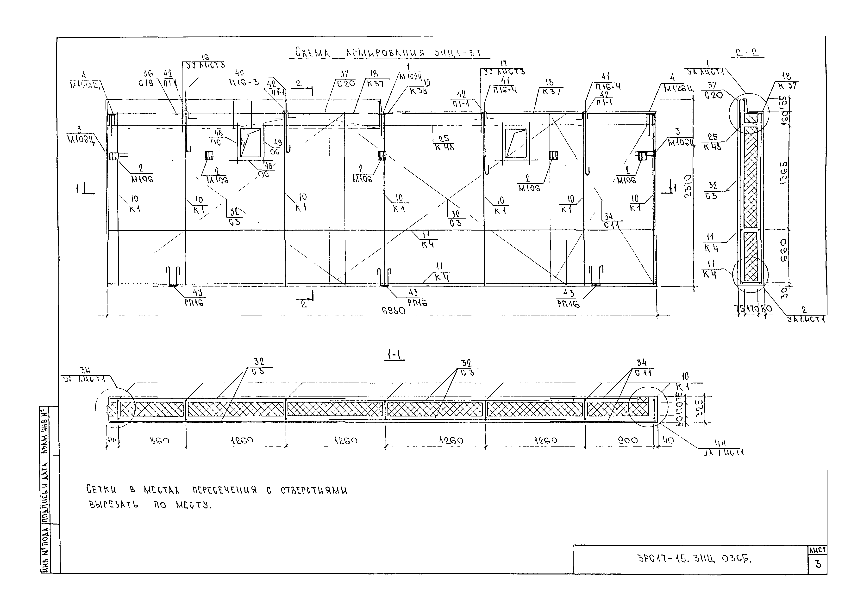
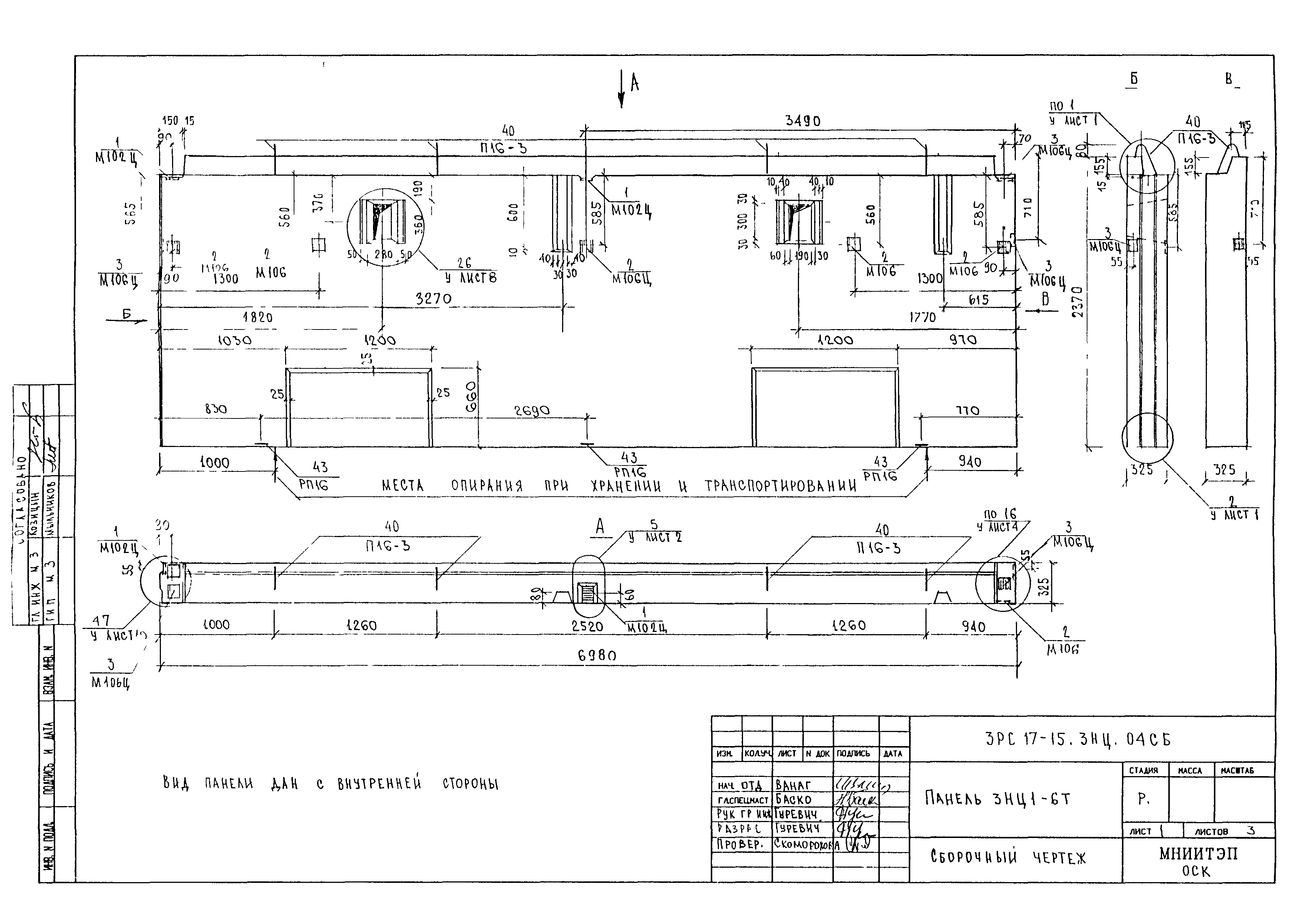
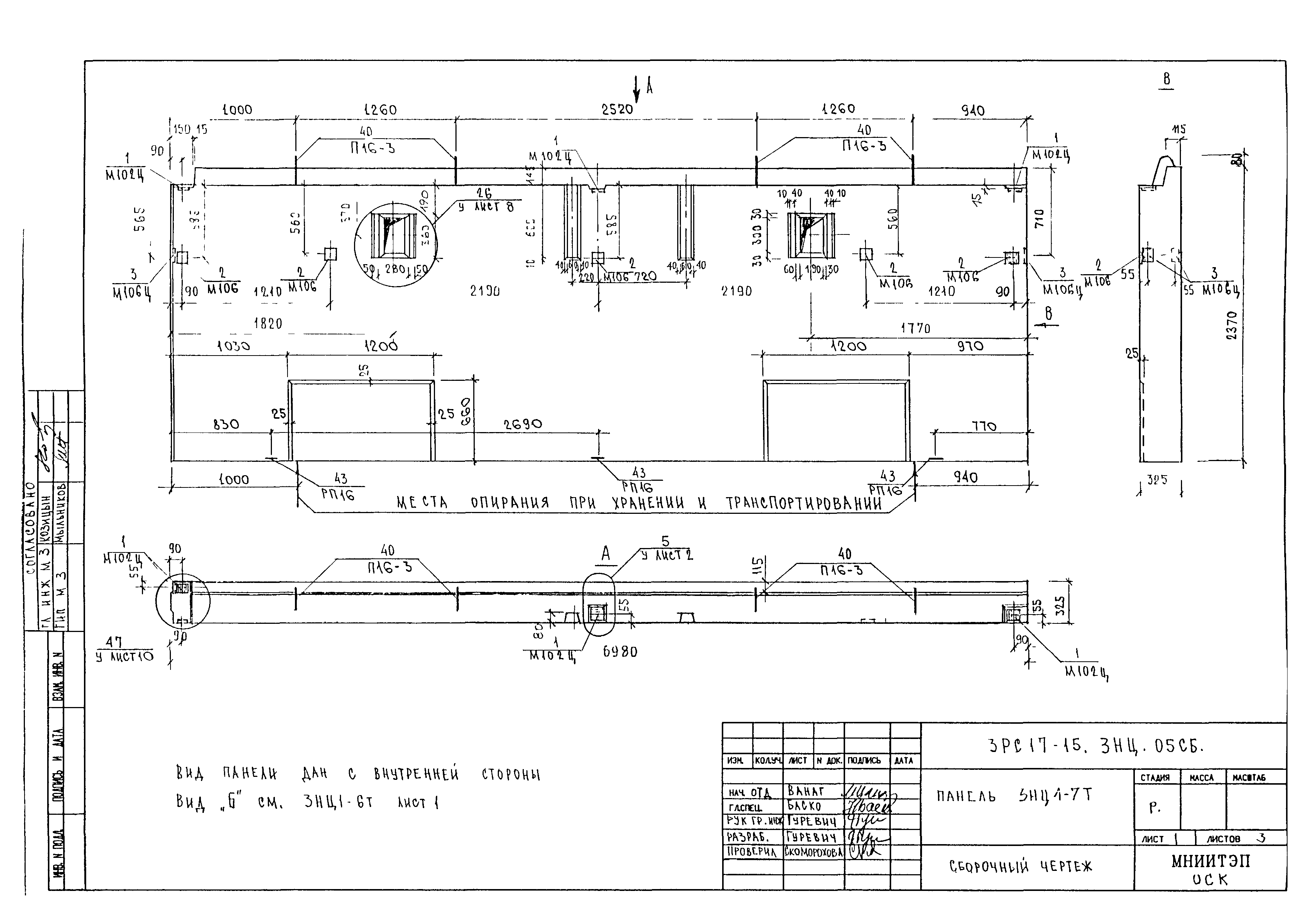
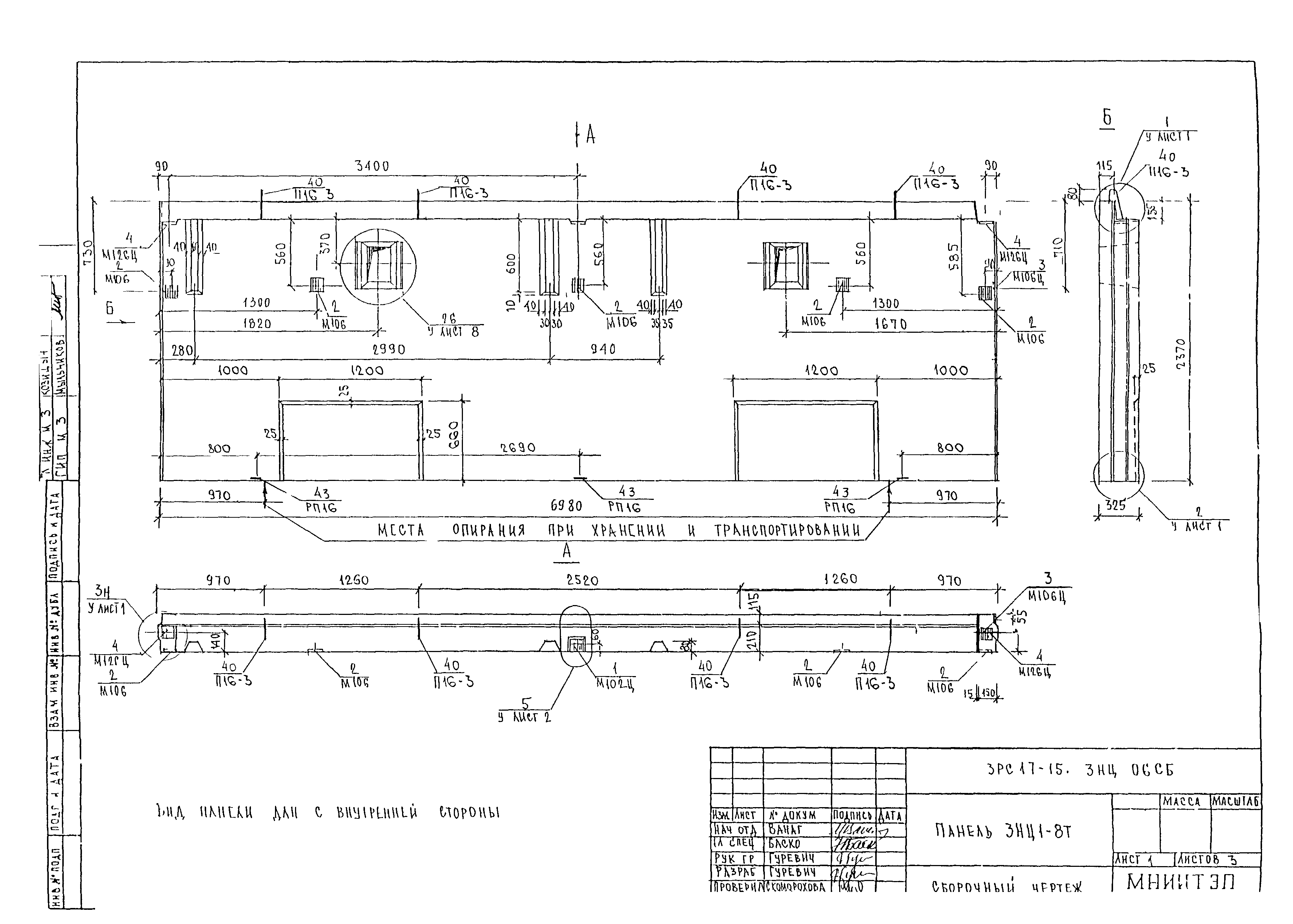
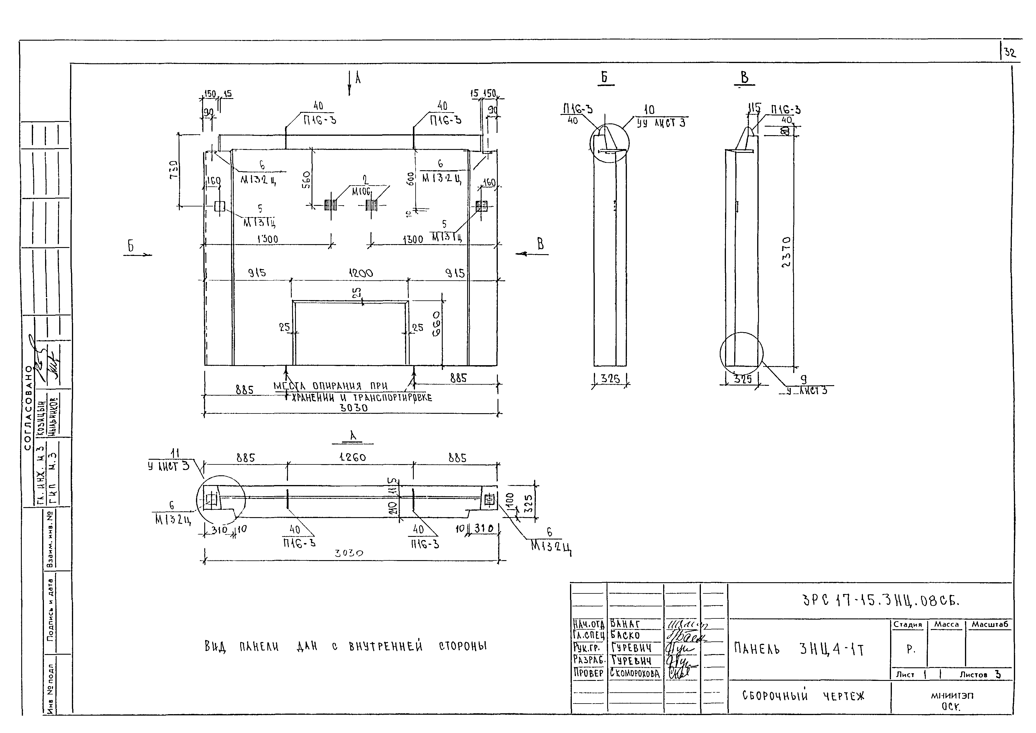
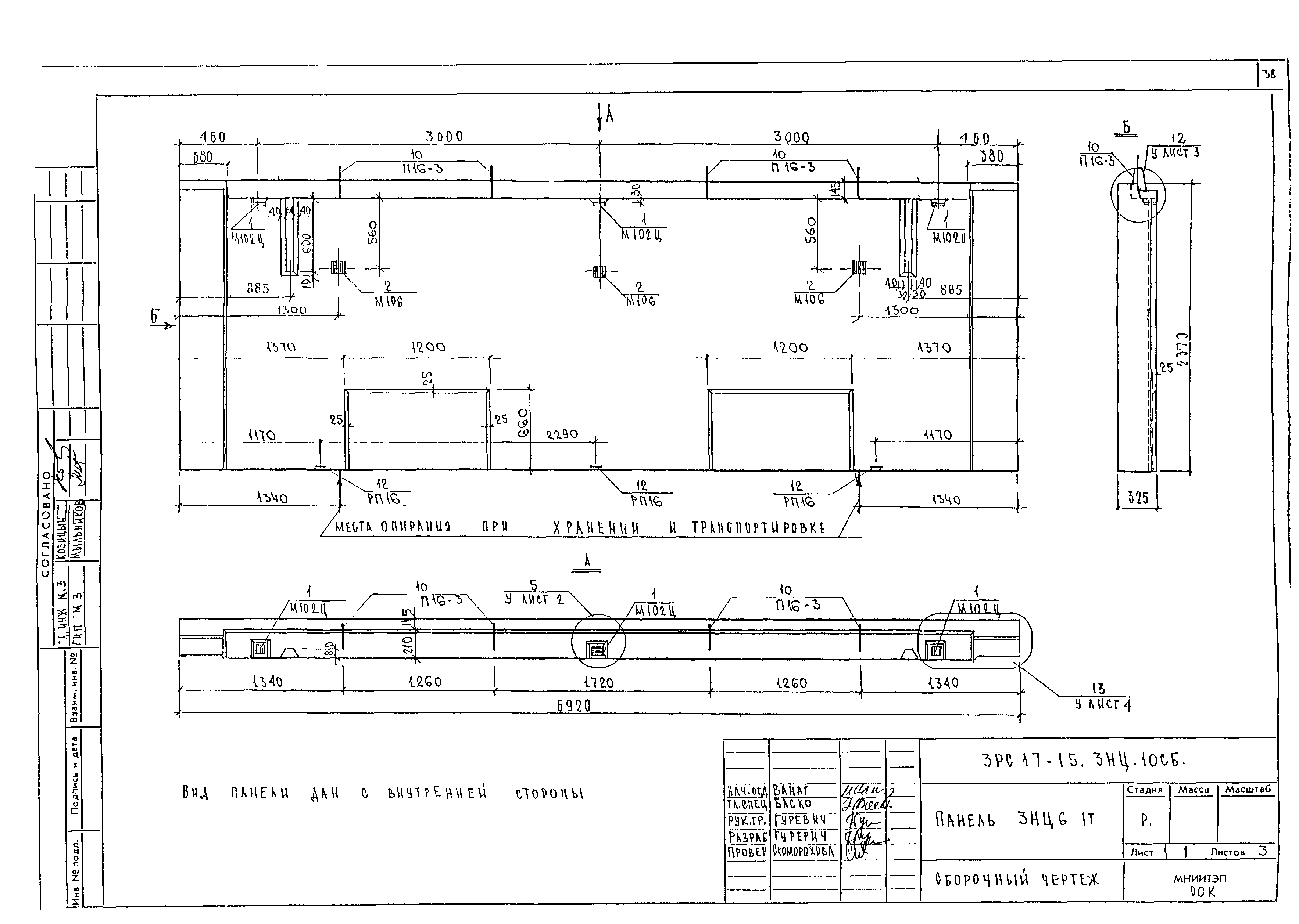
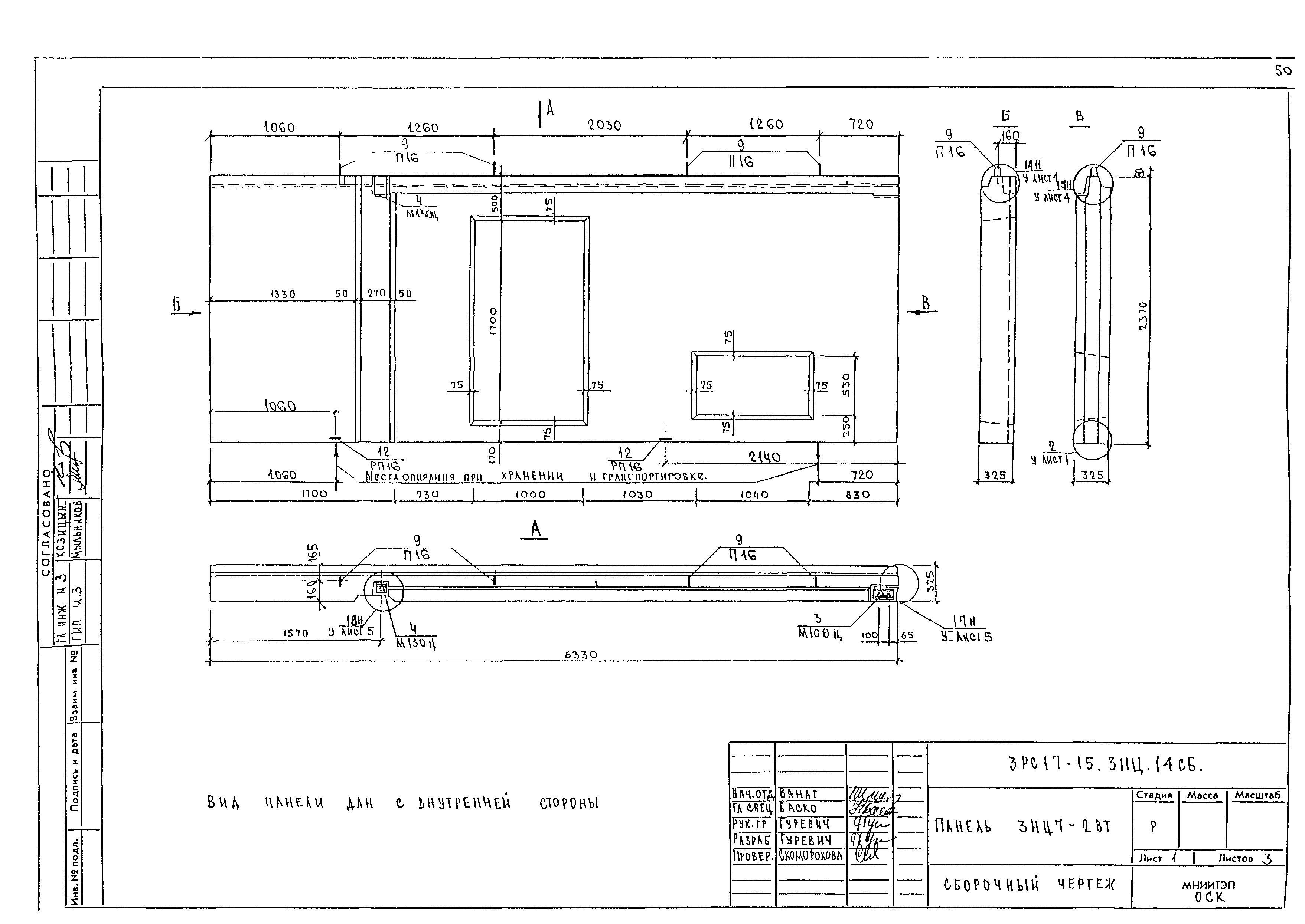
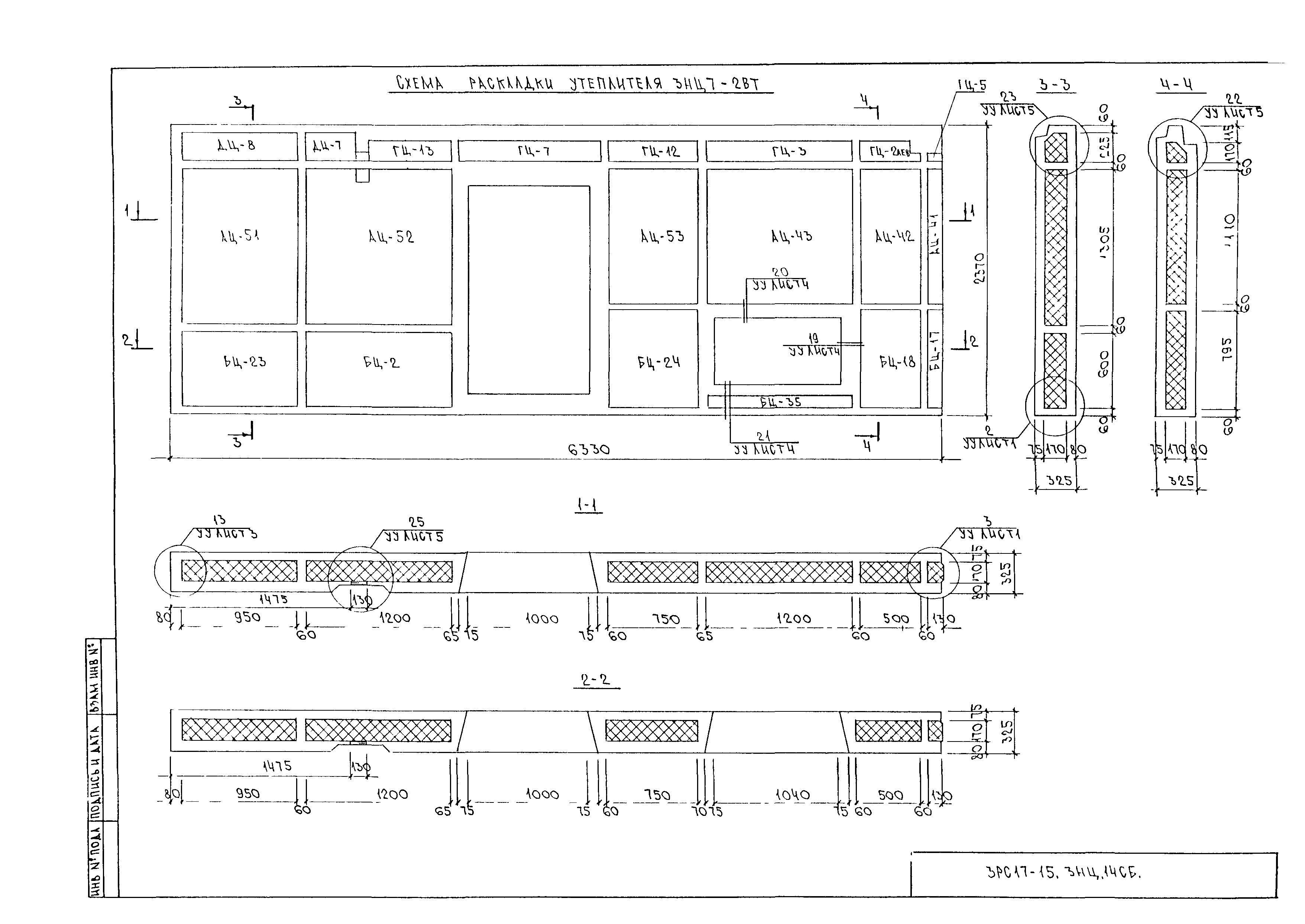
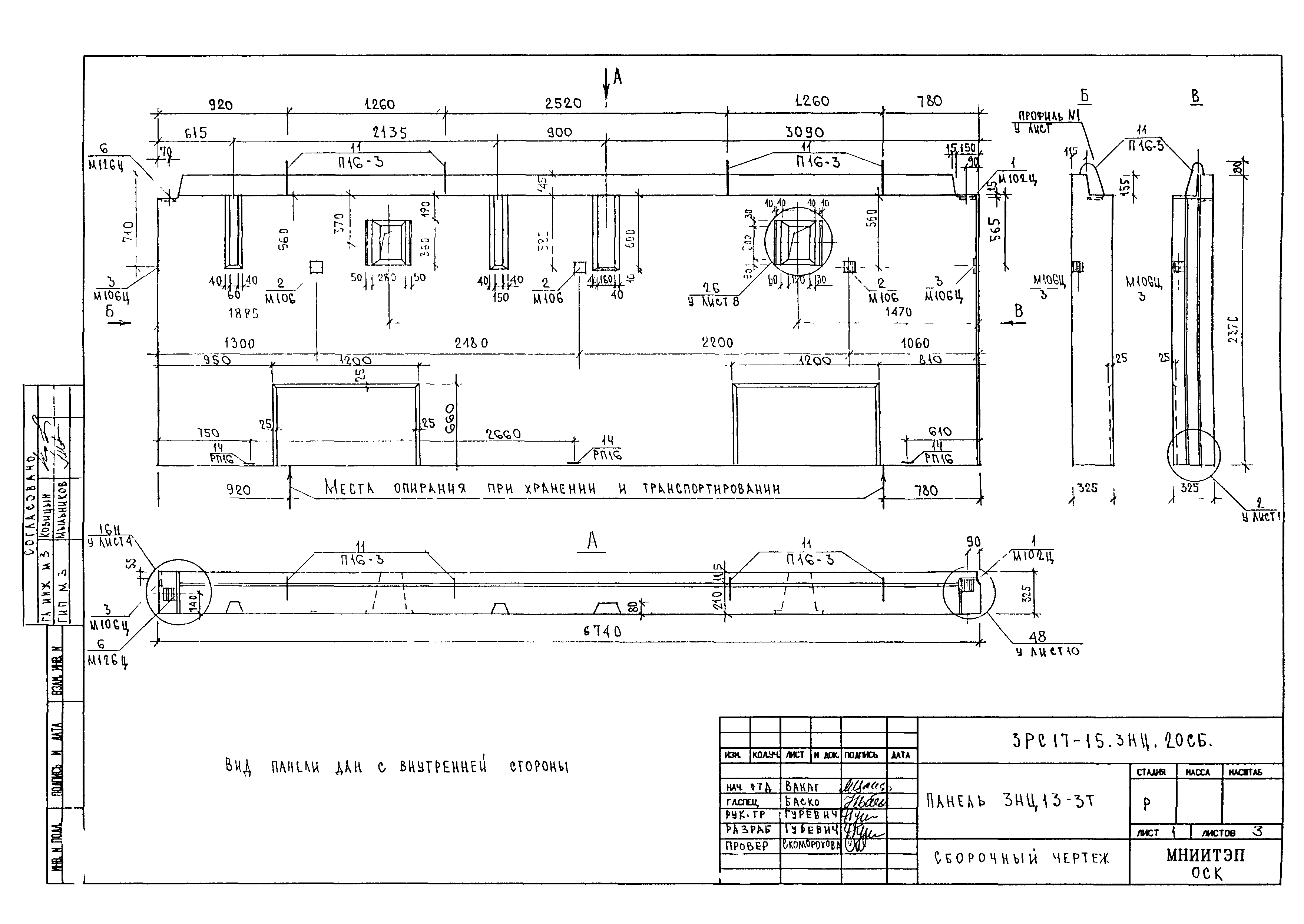
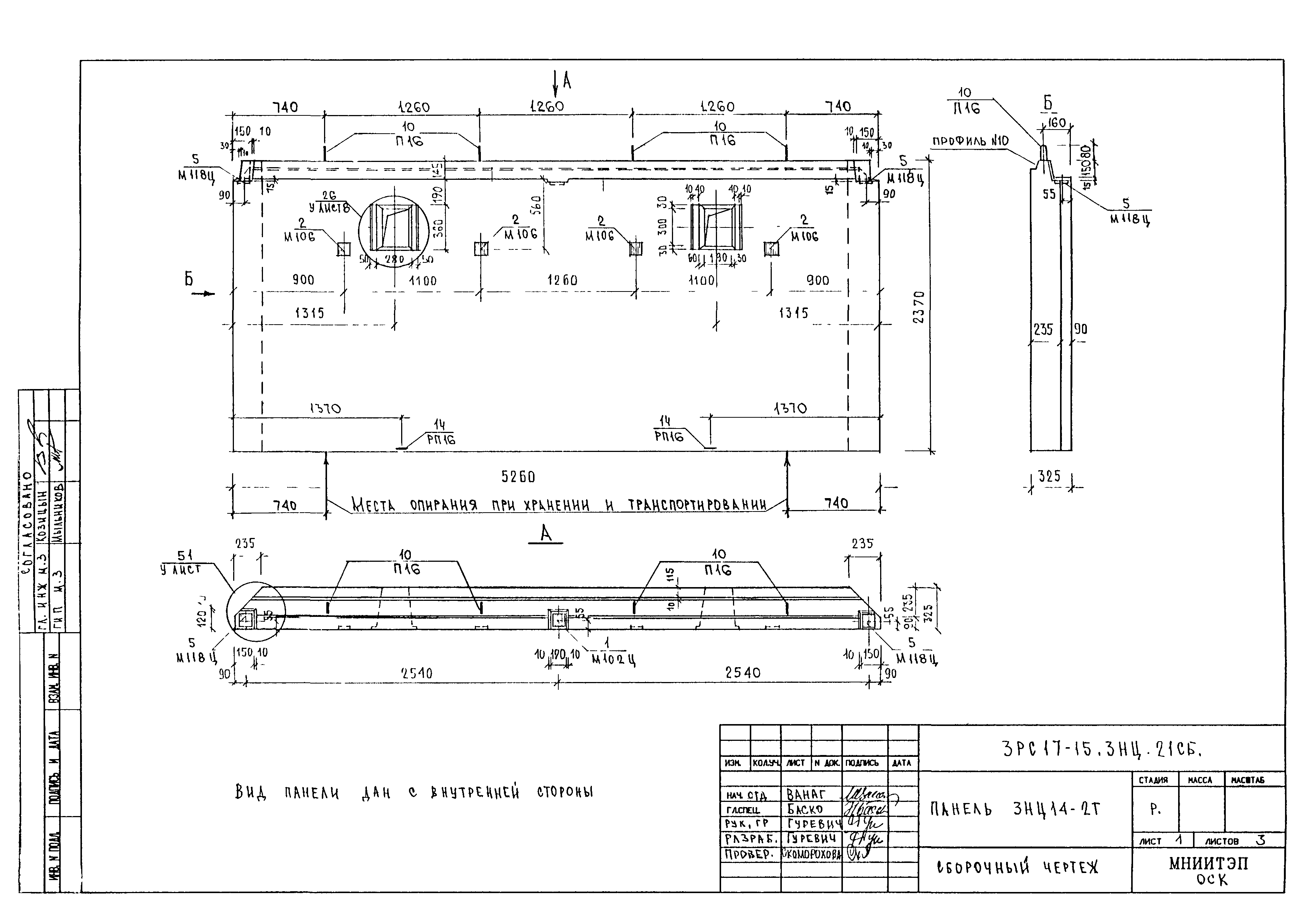
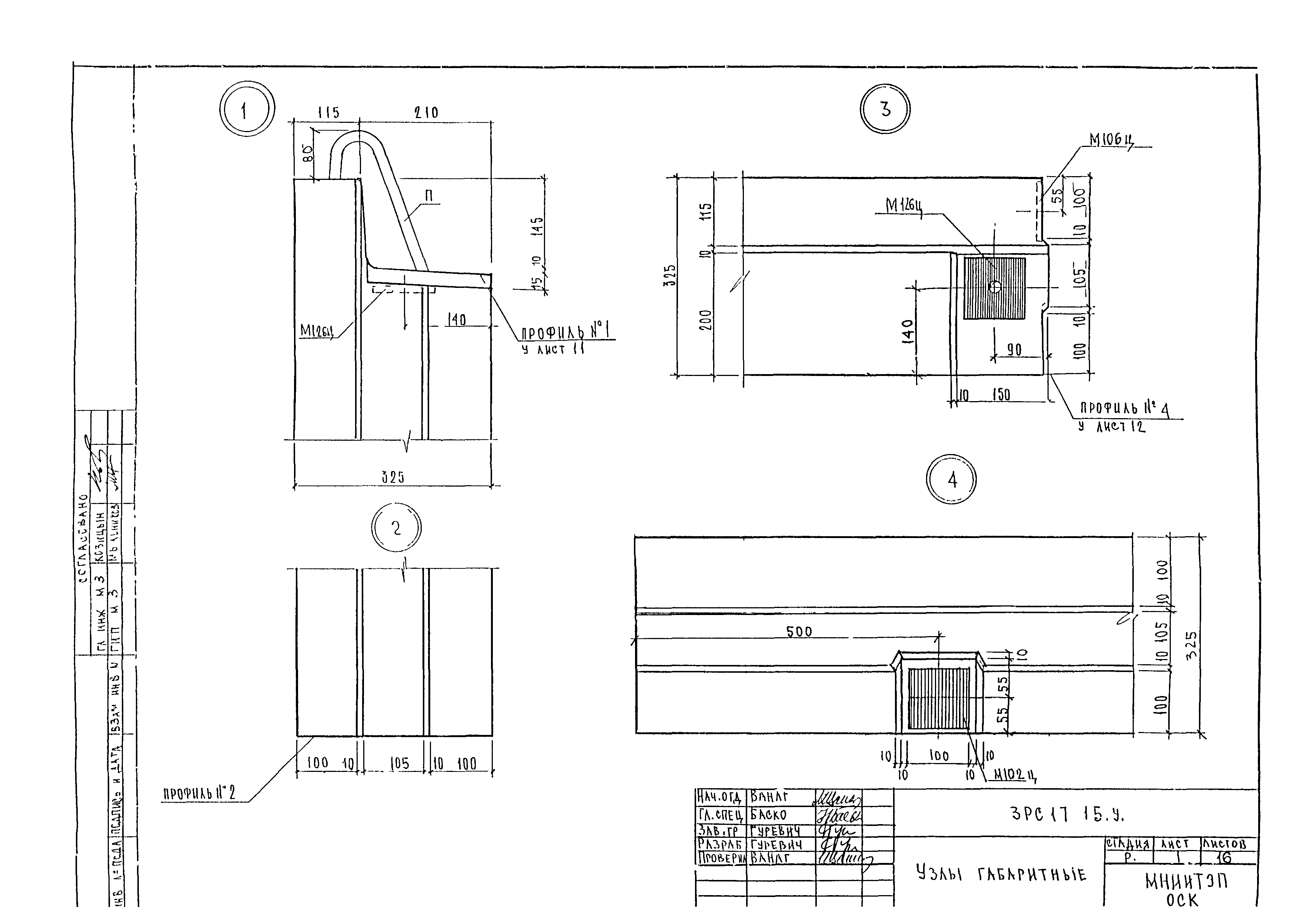
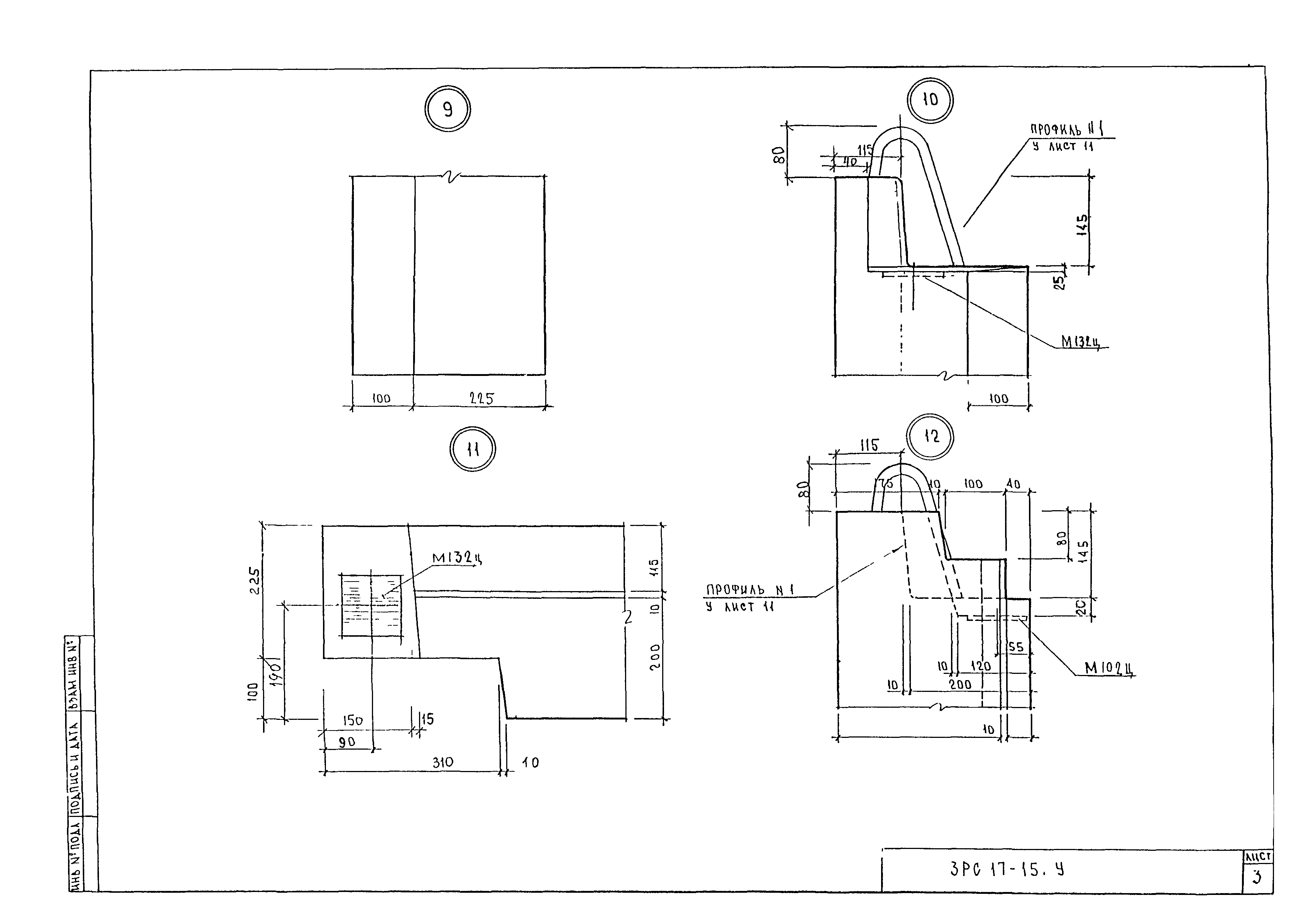
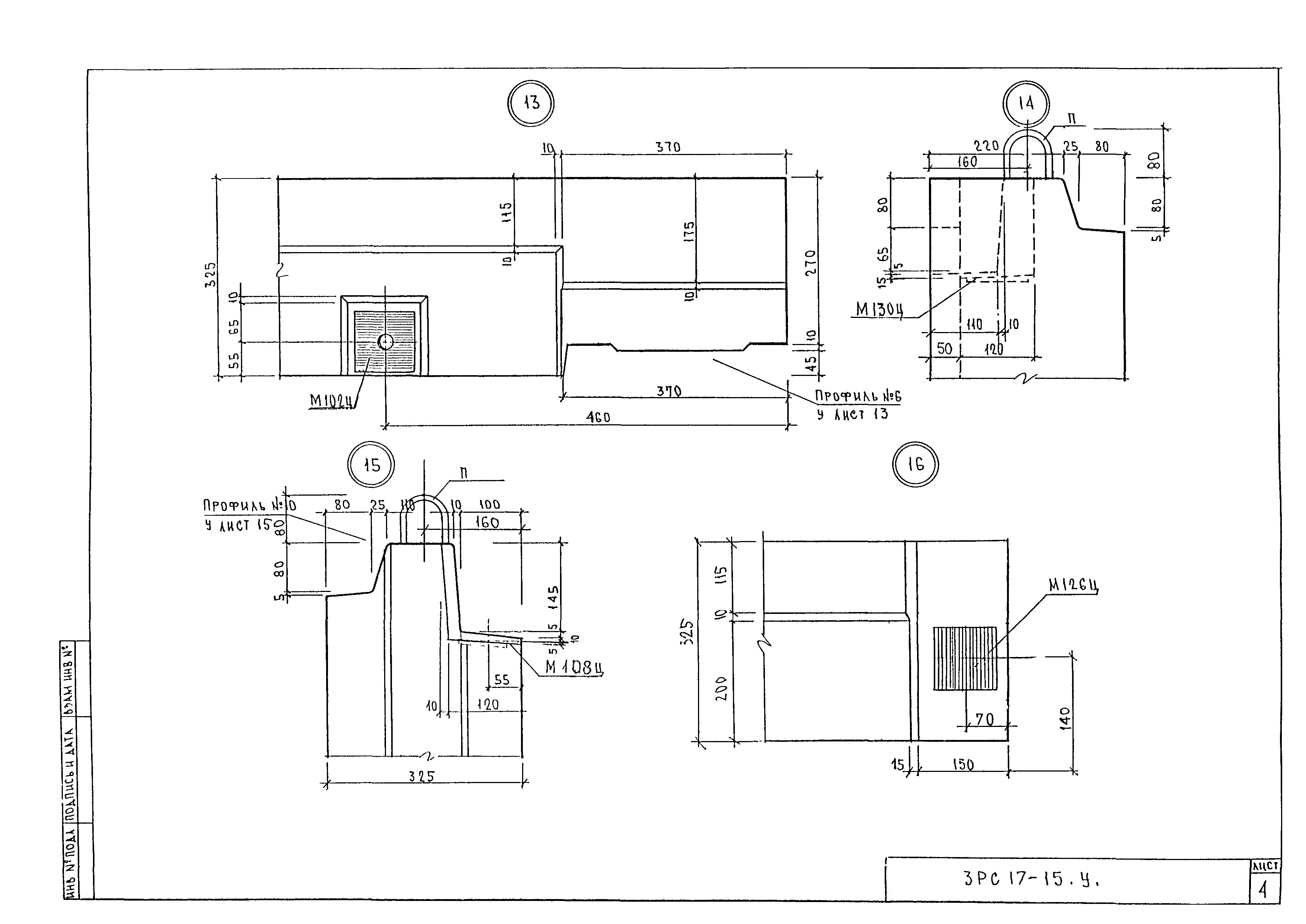
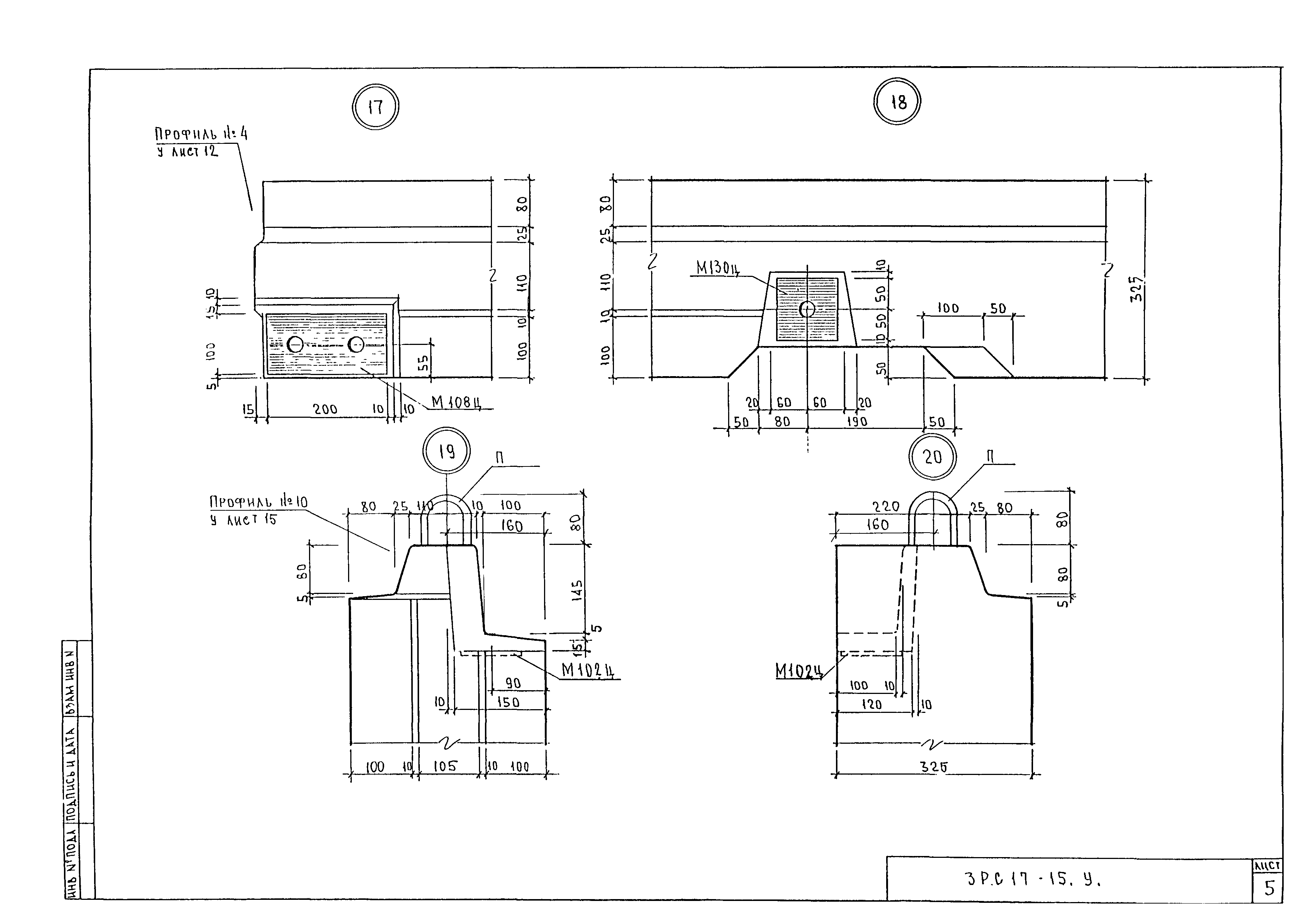
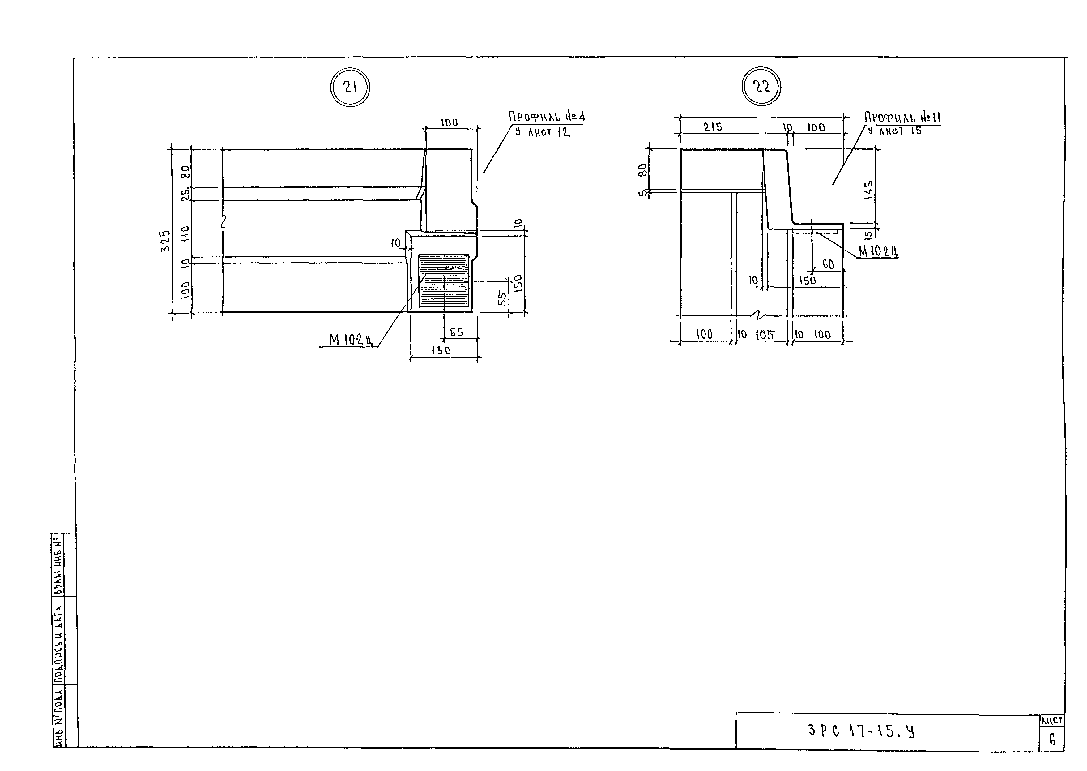
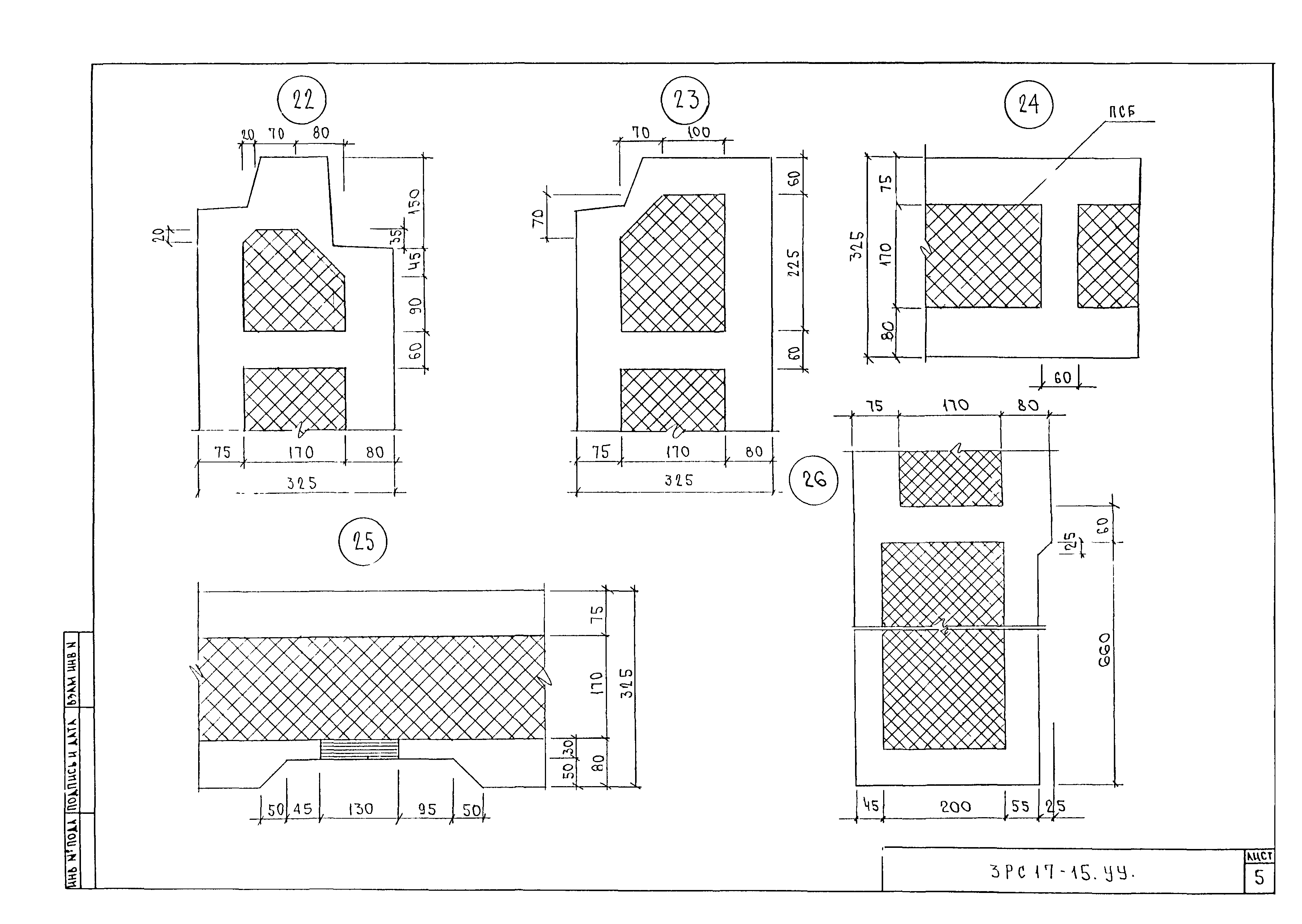
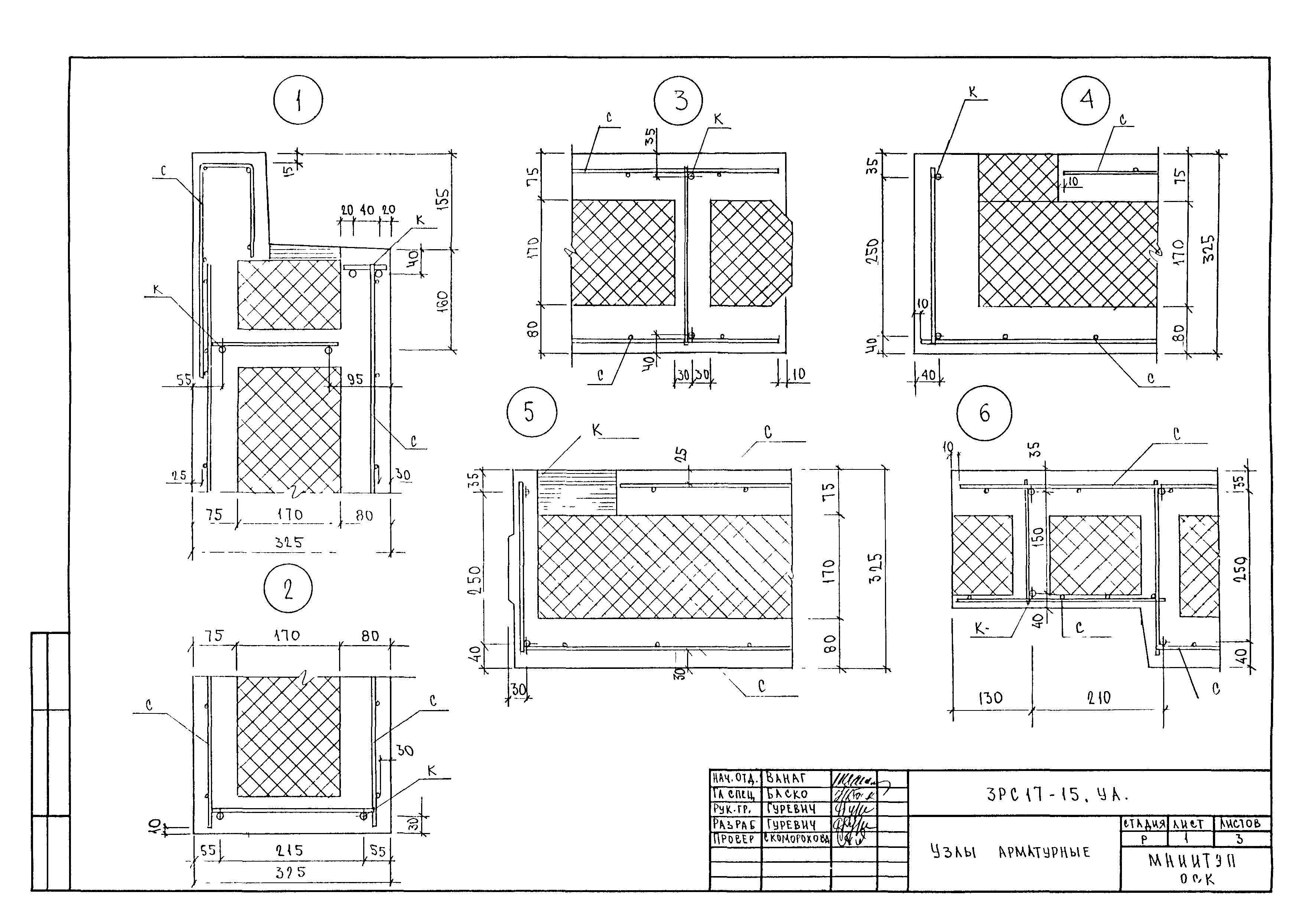
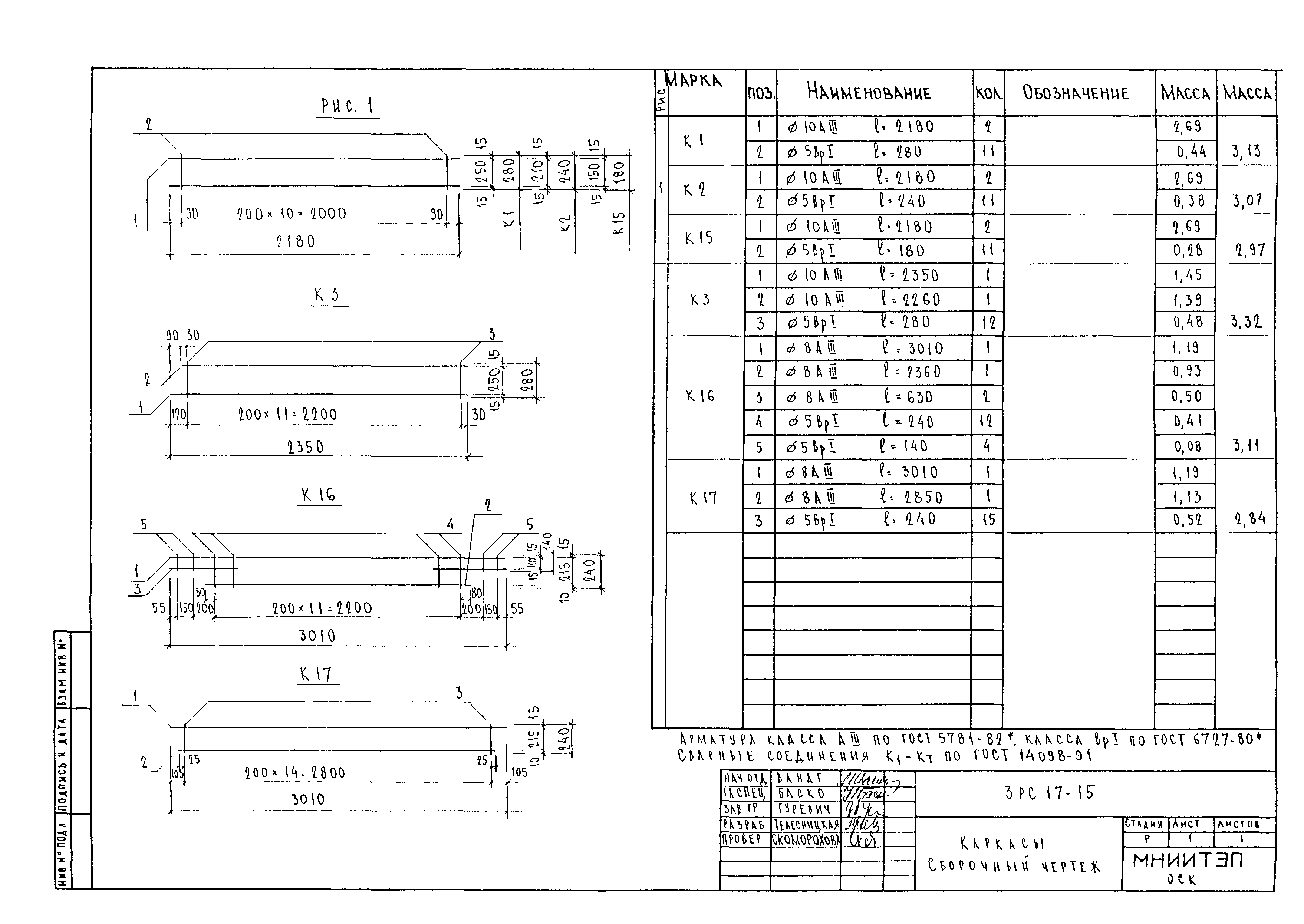
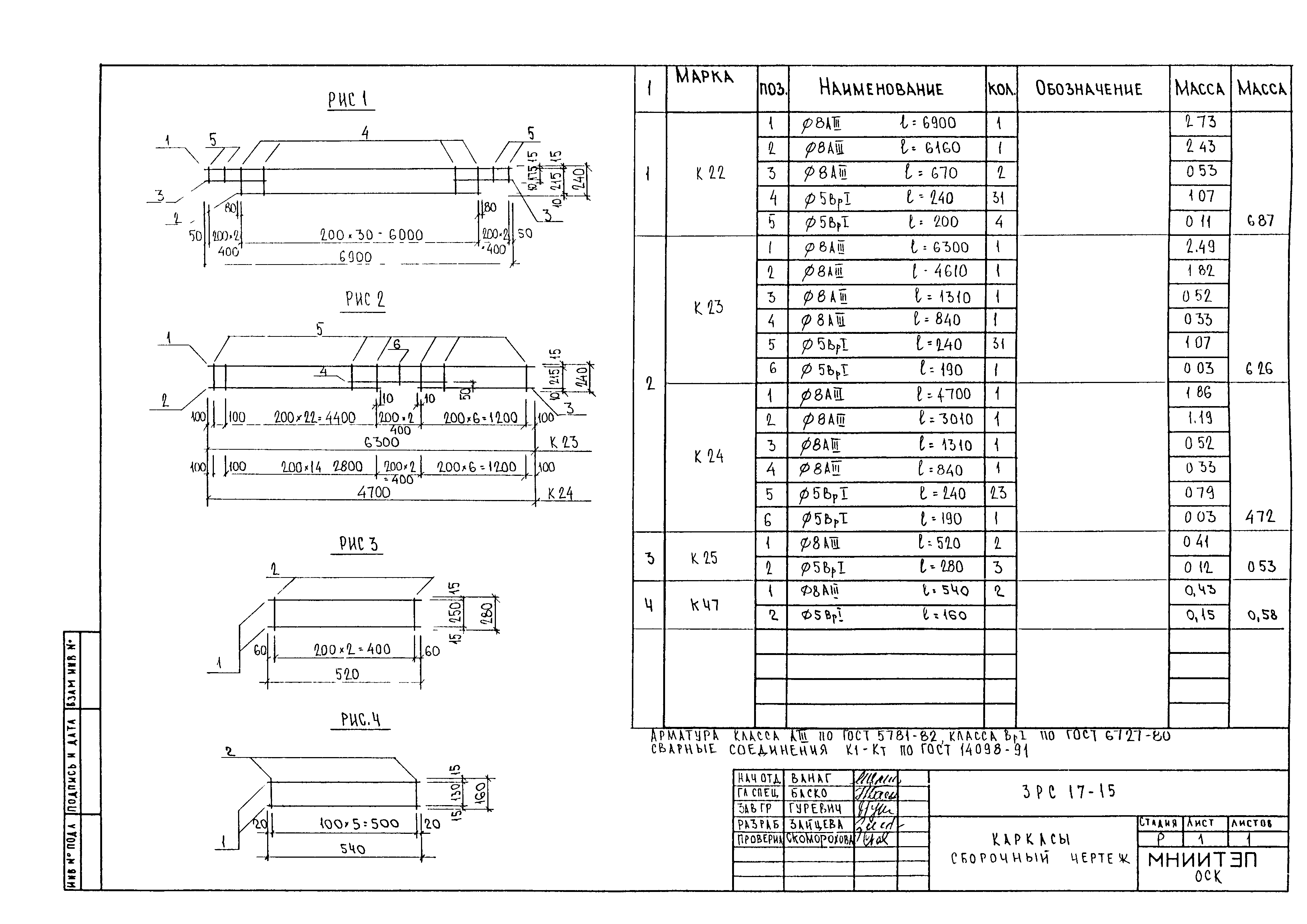
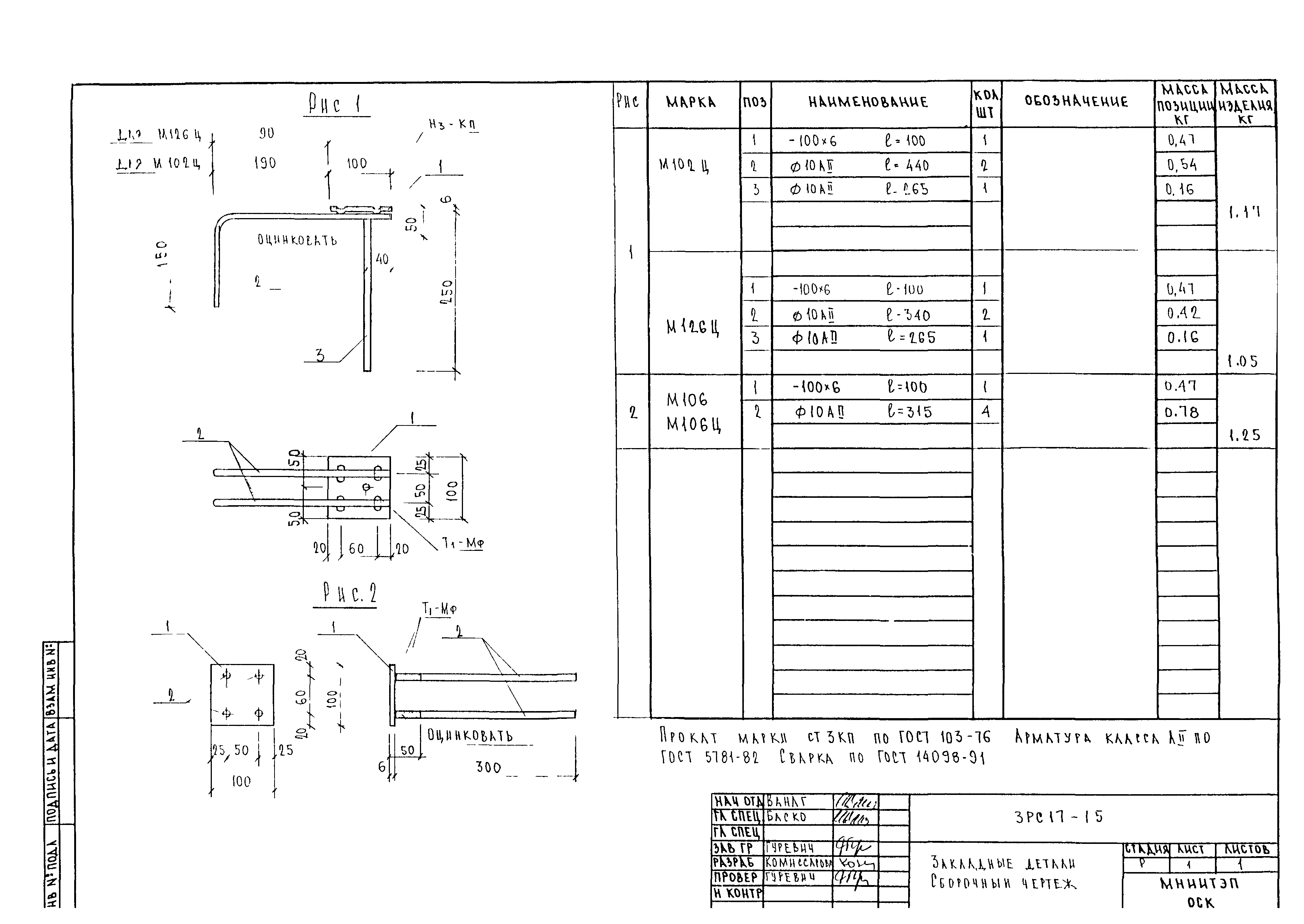
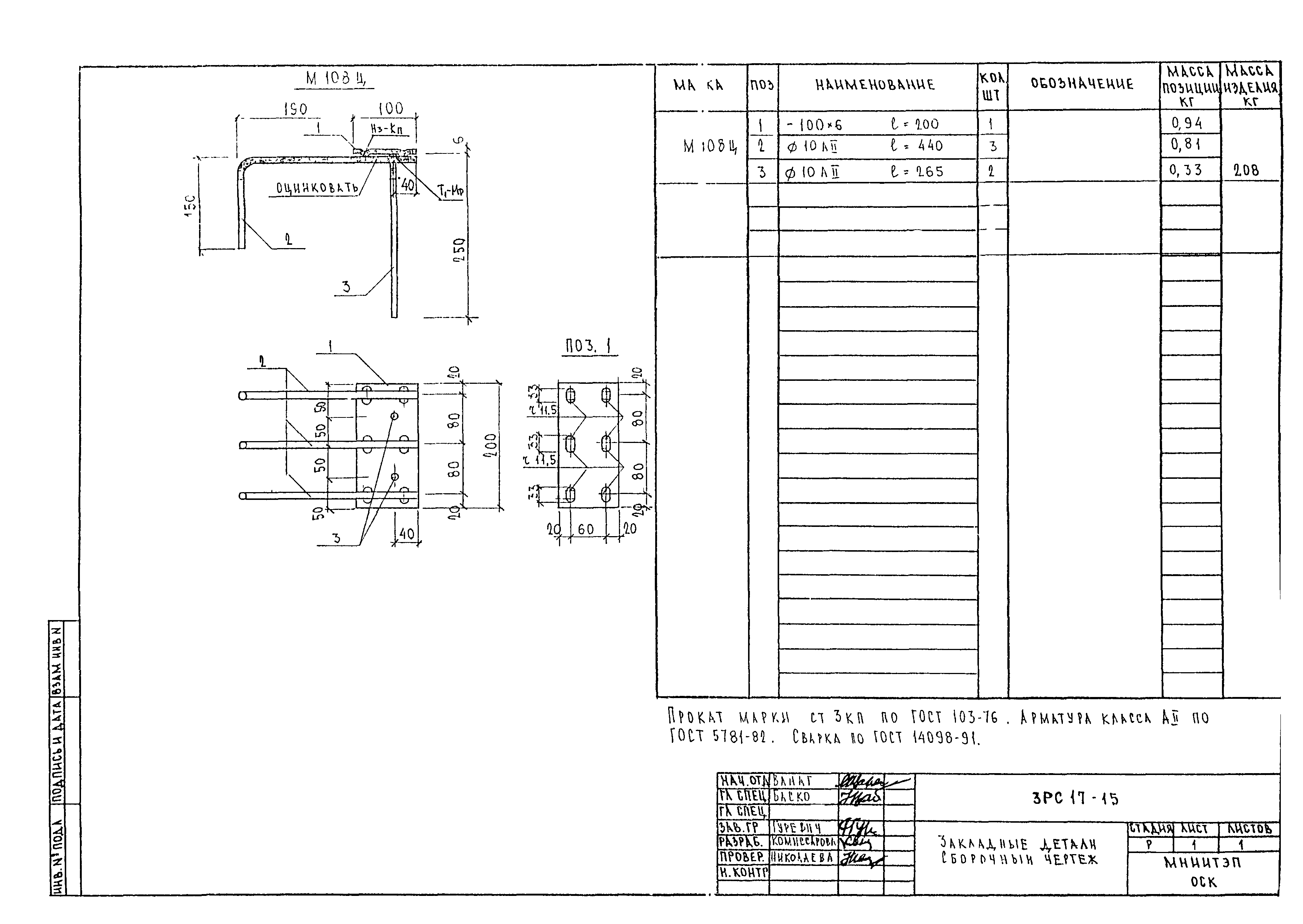
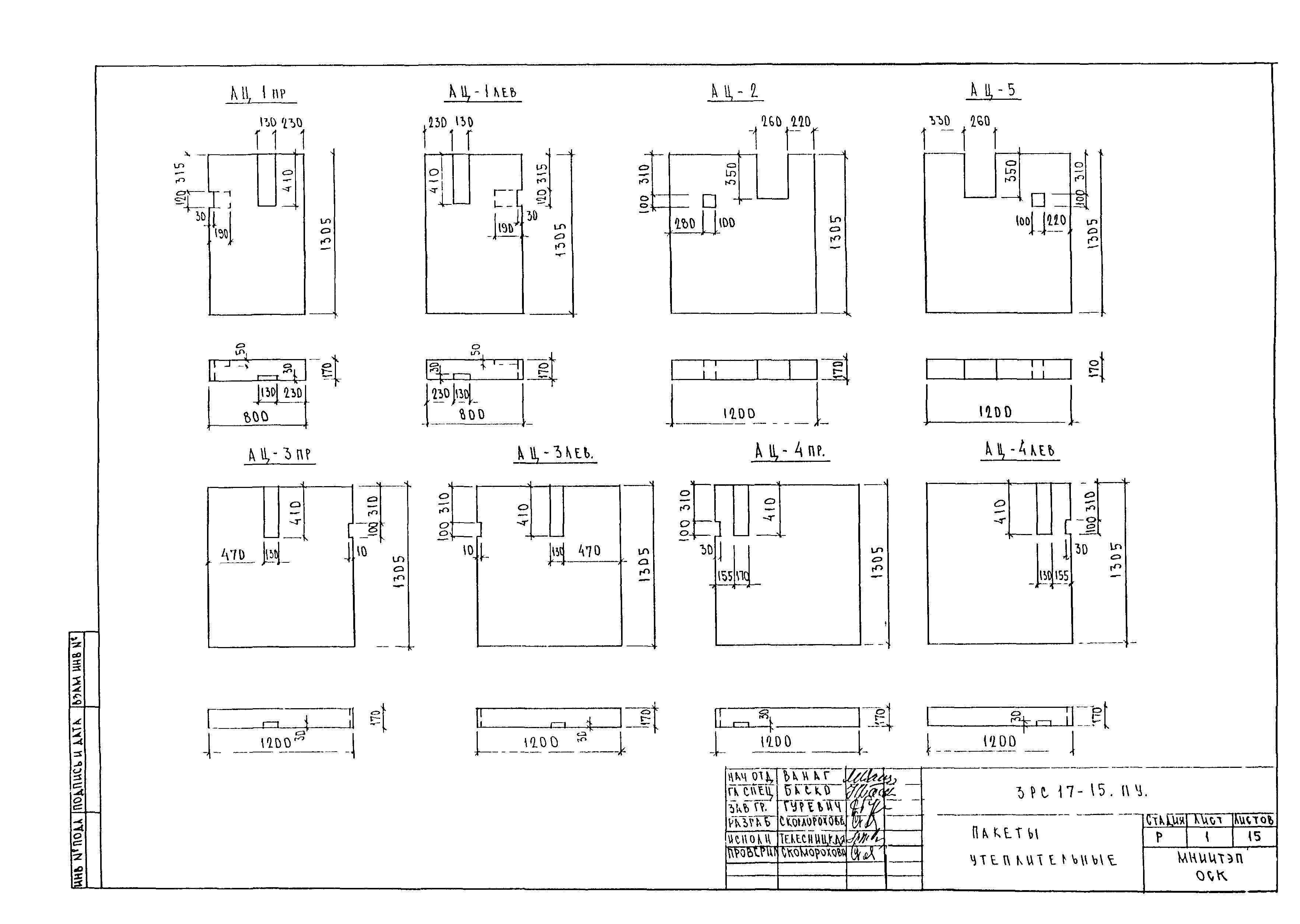
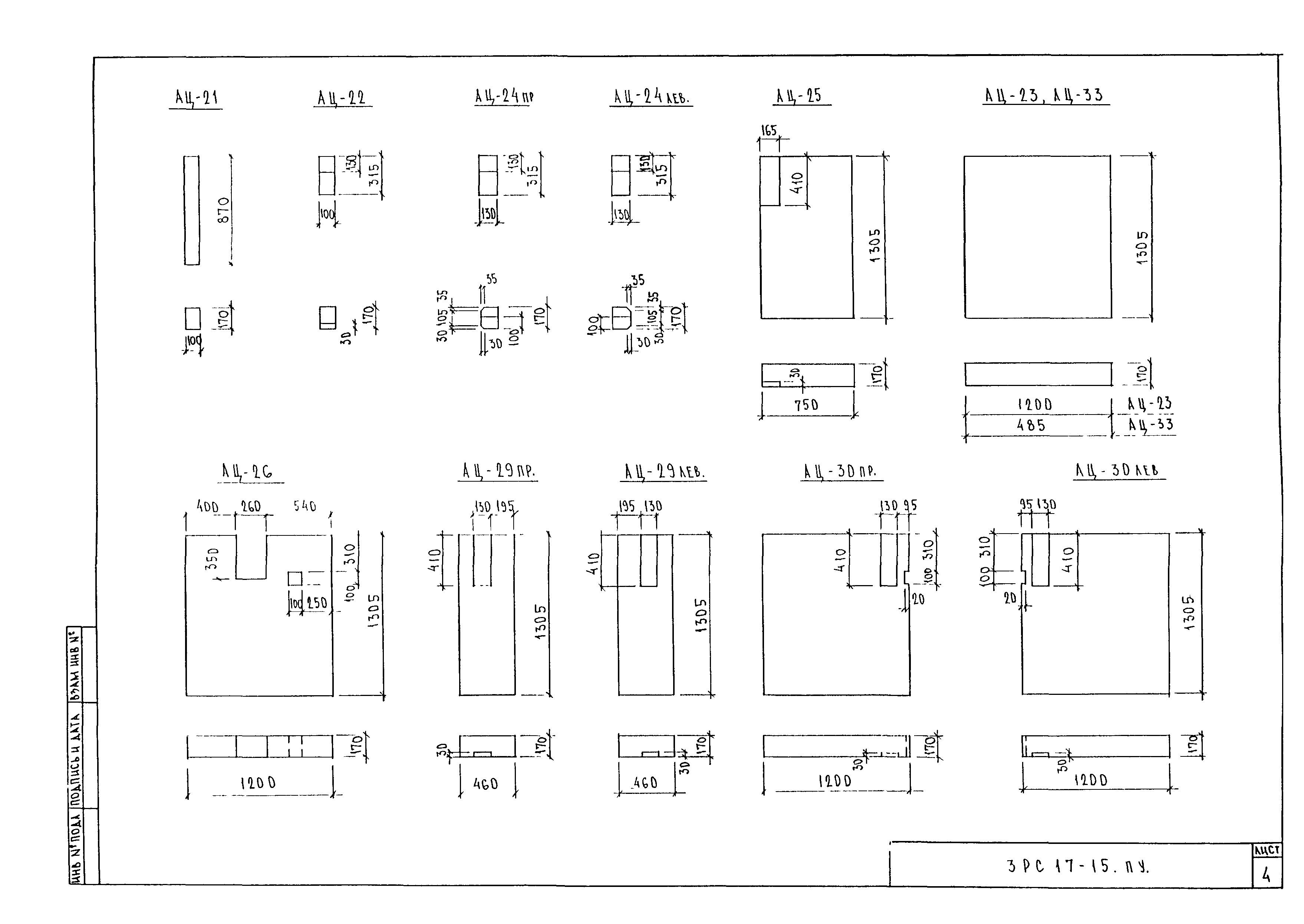
| Оглавление: | ЗРС17-15.ПЗ. Пояснительная записка ЗРС17-15.НИ. Номенклатура изделий ЗРС17-15.РС. Ведомость расхода стали ЗРС17-15.СУ. Спецификация пакетов утеплителя ЗРС17-15.ЗНЦ.01СБ. Панель ЗНЦ1-1т. Сборочный чертеж ЗРС17-15.ЗНЦ.02СБ. Панель ЗНЦ1-2т. Сборочный чертеж ЗРС17-15.ЗНЦ.03СБ. Панель ЗНЦ1-3т. Сборочный чертеж ЗРС17-15.ЗНЦ.04СБ. Панель ЗНЦ1-6т. Сборочный чертеж ЗРС17-15.ЗНЦ.05СБ. Панель ЗНЦ1-7т. Сборочный чертеж ЗРС17-15.ЗНЦ.06СБ. Панель ЗНЦ1-8т. Сборочный чертеж ЗРС17-15.ЗНЦ.07СБ. Панель ЗНЦ2-1т. Сборочный чертеж ЗРС17-15.ЗНЦ.08СБ. Панель ЗНЦ4-1т. Сборочный чертеж ЗРС17-15.ЗНЦ.09СБ. Панель ЗНЦ4-1увт. Сборочный чертеж ЗРС17-15.ЗНЦ.10СБ. Панель ЗНЦ6-1т. Сборочный чертеж ЗРС17-15.ЗНЦ.11СБ. Панель ЗНЦ7-1т. Сборочный чертеж ЗРС17-15.ЗНЦ.12СБ. Панель ЗНЦ7-1вт. Сборочный чертеж ЗРС17-15.ЗНЦ.13СБ. Панель ЗНЦ7-2т. Сборочный чертеж ЗРС17-15.ЗНЦ.14СБ. Панель ЗНЦ7-2вт. Сборочный чертеж ЗРС17-15.ЗНЦ.15СБ. Панели ЗНЦ8-1т, ЗНЦ8-2т. Сборочный чертеж ЗРС17-15.ЗНЦ.16ъСБ. Панель ЗНЦ9-3т. Сборочный чертеж ЗРС17-15.ЗНЦ.17СБ. Панели ЗНЦ10-2т, ЗНЦ10-3т. Сборочный чертеж ЗРС17-15.ЗНЦ.18СБ. Панель ЗНЦ1-2т. Сборочный чертеж ЗРС17-15.ЗНЦ.19СБ. Панели ЗНЦ12-1т, ЗНЦ12-2т. Сборочный чертеж ЗРС17-15.ЗНЦ.20СБ. Панель ЗНЦ13-3т. Сборочный чертеж ЗРС17-15.ЗНЦ.21СБ. Панель ЗНЦ14-2т. Сборочный чертеж ЗРС17-15.У. Узлы габаритные ЗРС17-15.УУ. Узлы раскладки утеплителя ЗРС17-15.УА. Узлы арматурные ЗРС17-15. Каркасы. Сборочный чертеж ЗРС17-15. Сетки. Сборочный чертеж ЗРС17-15. Петли. Сборочный чертеж ЗРС17-15. Закладные детали. Сборочный чертеж ЗРС17-15.П.У. Пакеты утеплителя ЗРС17-15. Информационная карта |
| Разработан: | МНИИТЭП |
| Утверждён: | 18.03.1999 МНИИТЭП (MNIITEP 9-то) |










































































































