Скачать 3РС 41-28 Панели наружных стен фризовые трехслойные с высокими теплотехническими характеристиками. Рабочие чертежиДата актуализации: 01.01.2021
|
| Обозначение: | 3РС 41-28 |
| Обозначение англ: | 3РС 41-28 |
| Статус: | не определен законодательством |
| Название рус.: | Панели наружных стен фризовые трехслойные с высокими теплотехническими характеристиками. Рабочие чертежи |
| Дата добавления в базу: | 01.09.2013 |
| Дата актуализации: | 01.01.2021 |
| Дата введения: | 13.10.1999 |
| Дата окончания срока действия: | 30.06.2003 |
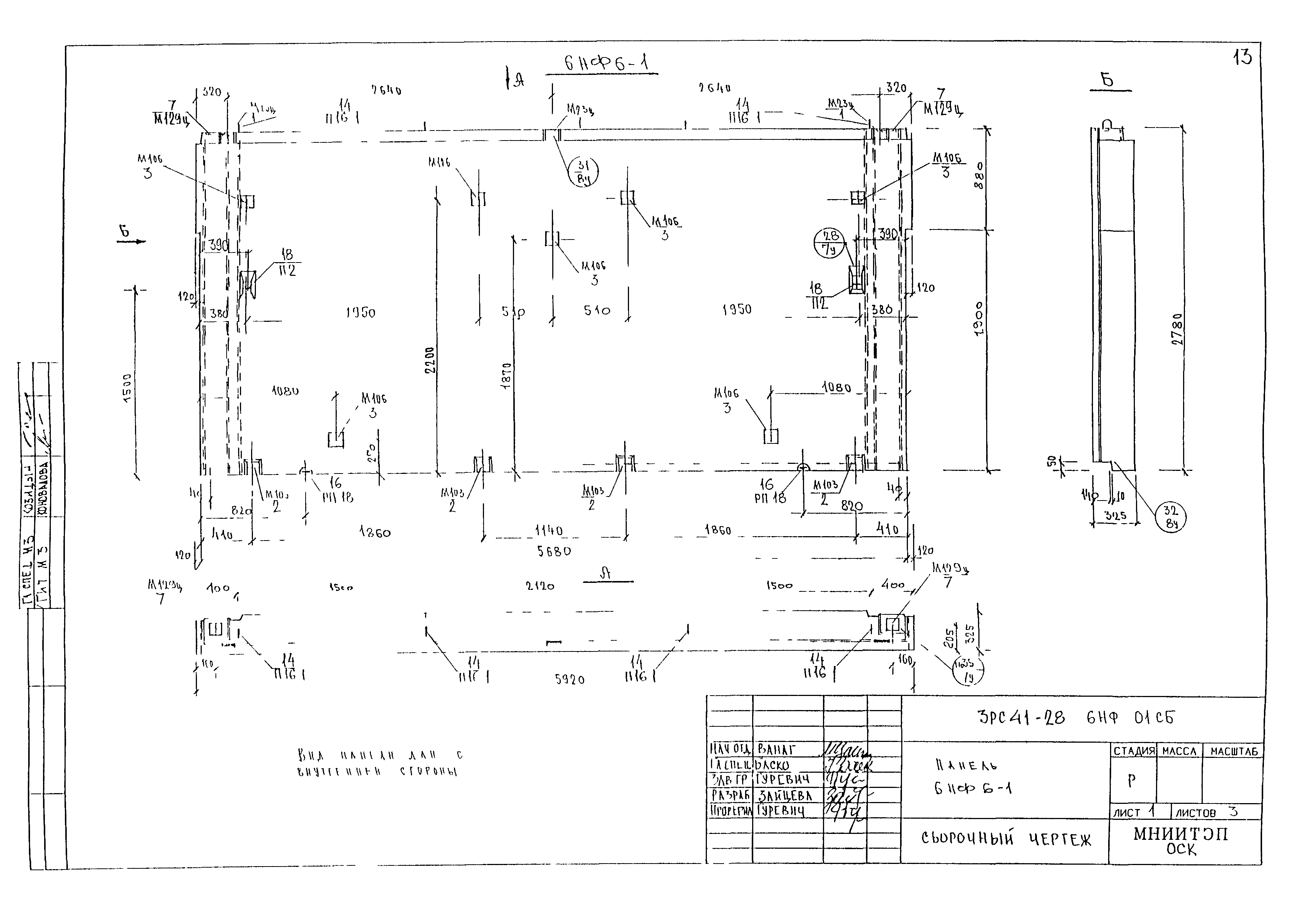
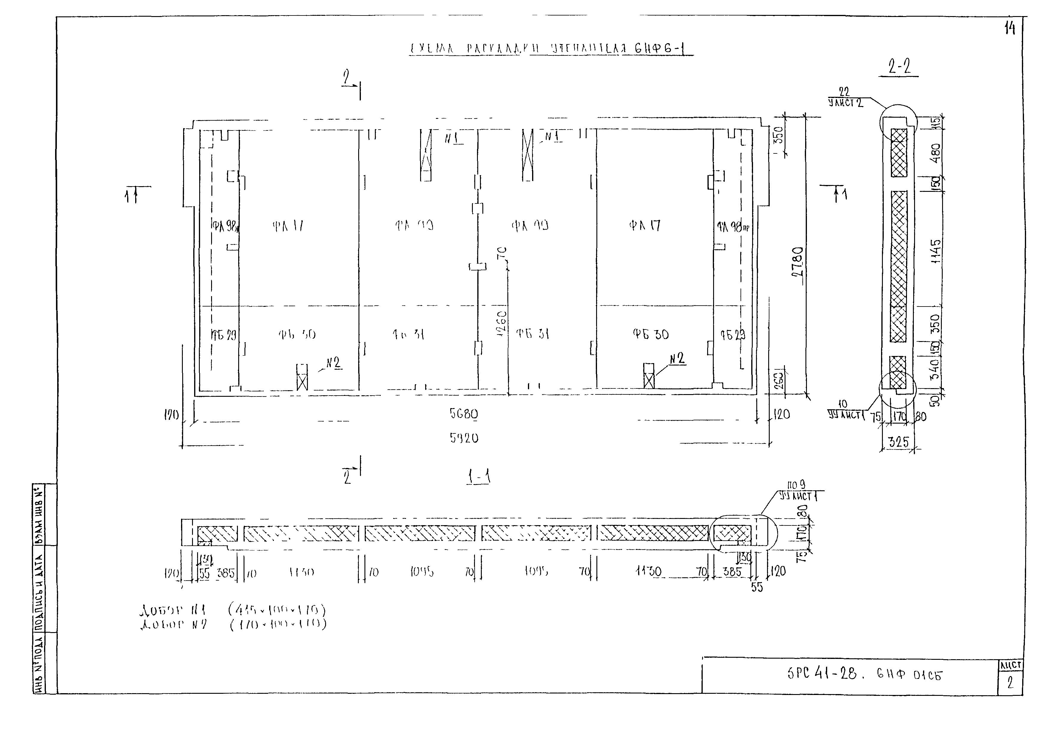
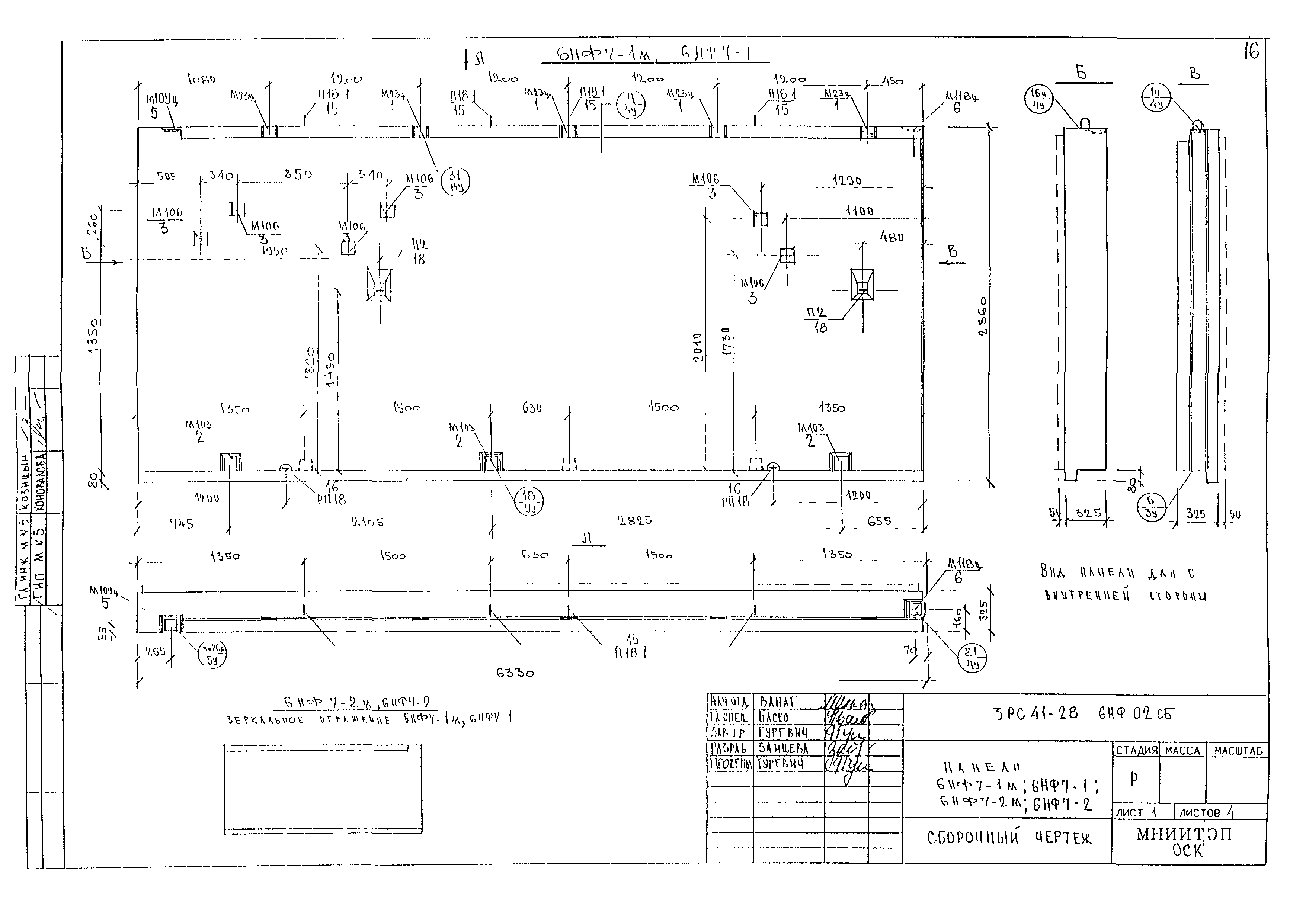
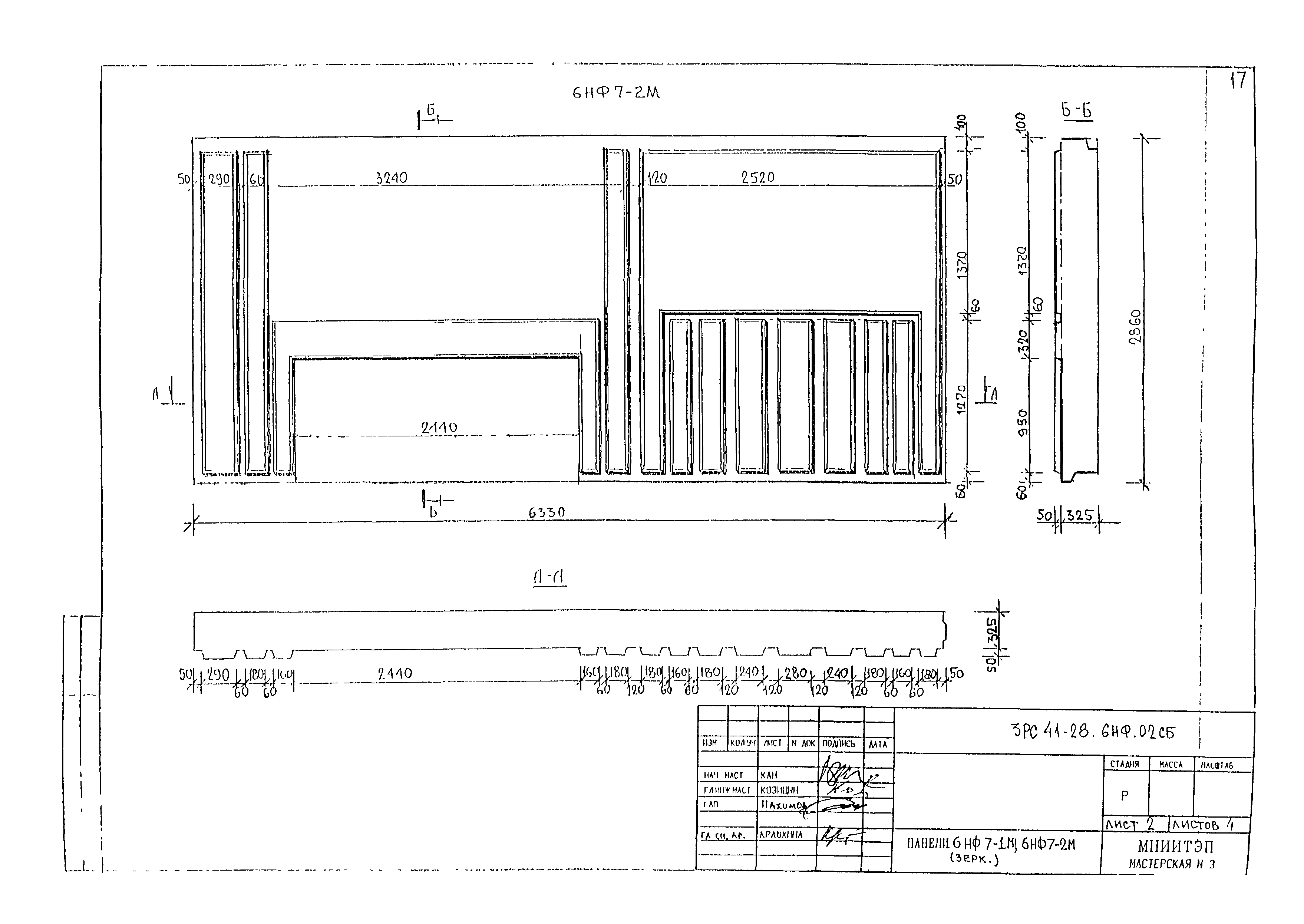
| Область применения: | Альбом содержит рабочие чертежи трехслойных бетонных фризовых панелей наружных стен с высокими теплотехническими характеристиками, предназначенных для жилых домов серии П3М-6/17 производства АО ДСК-3. |
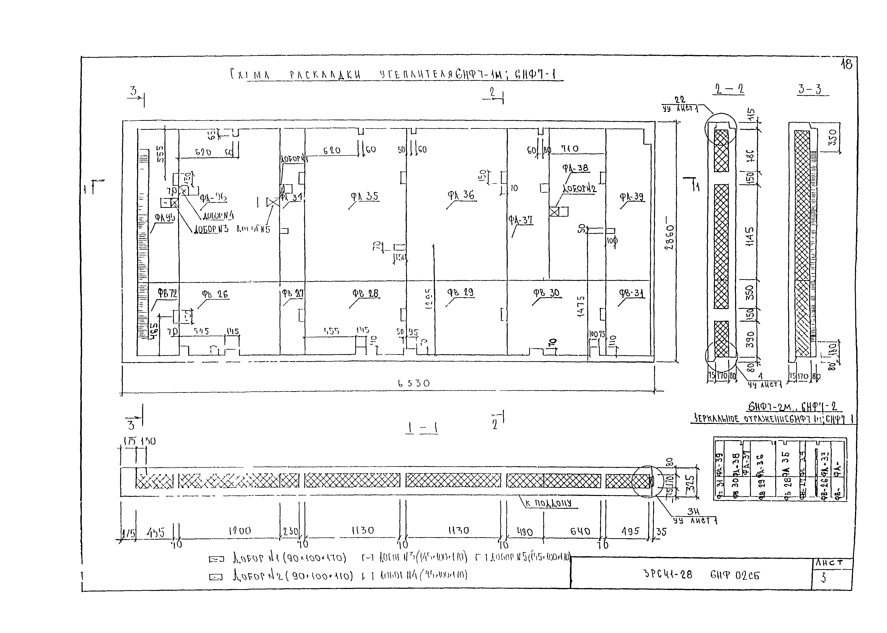
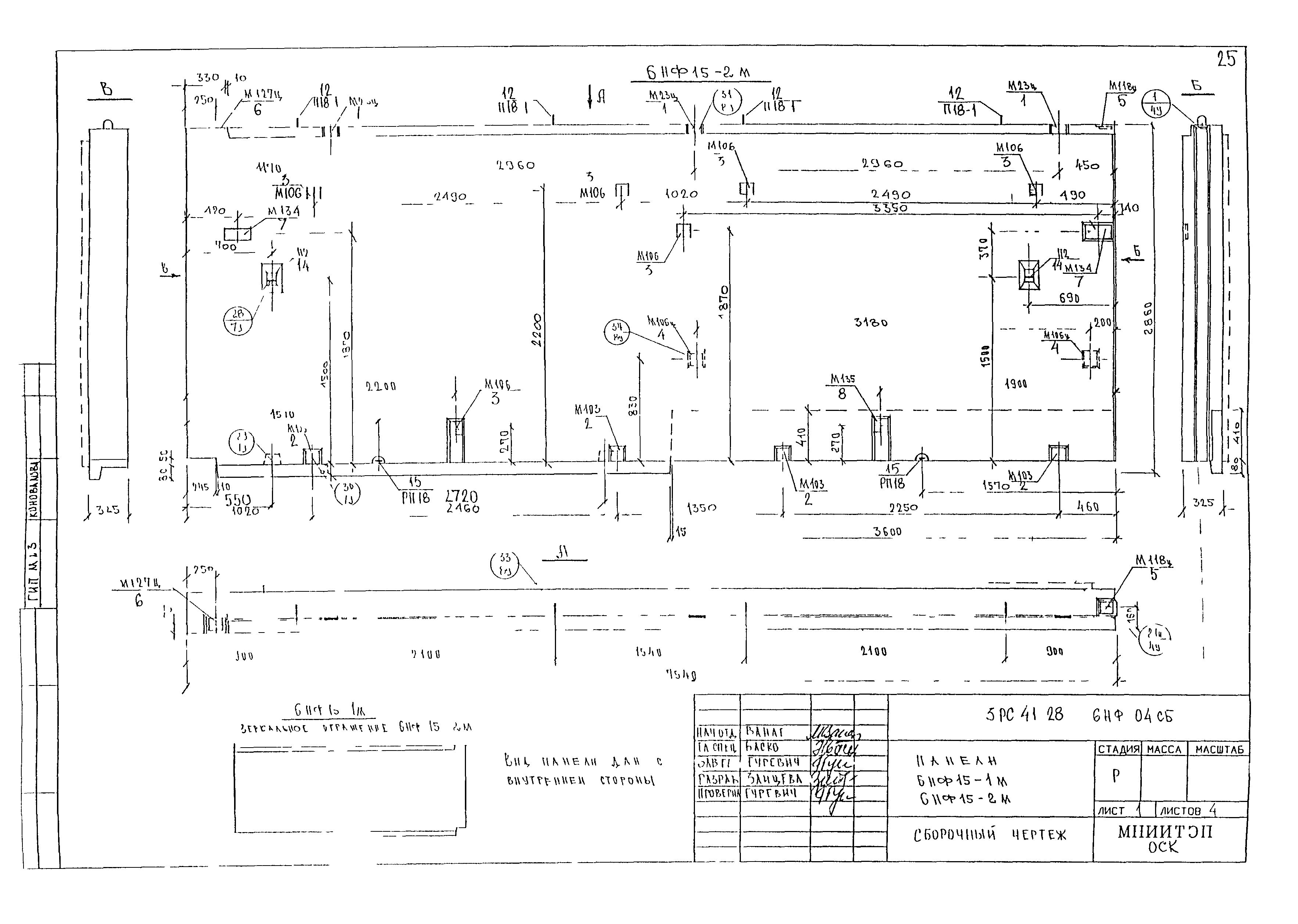
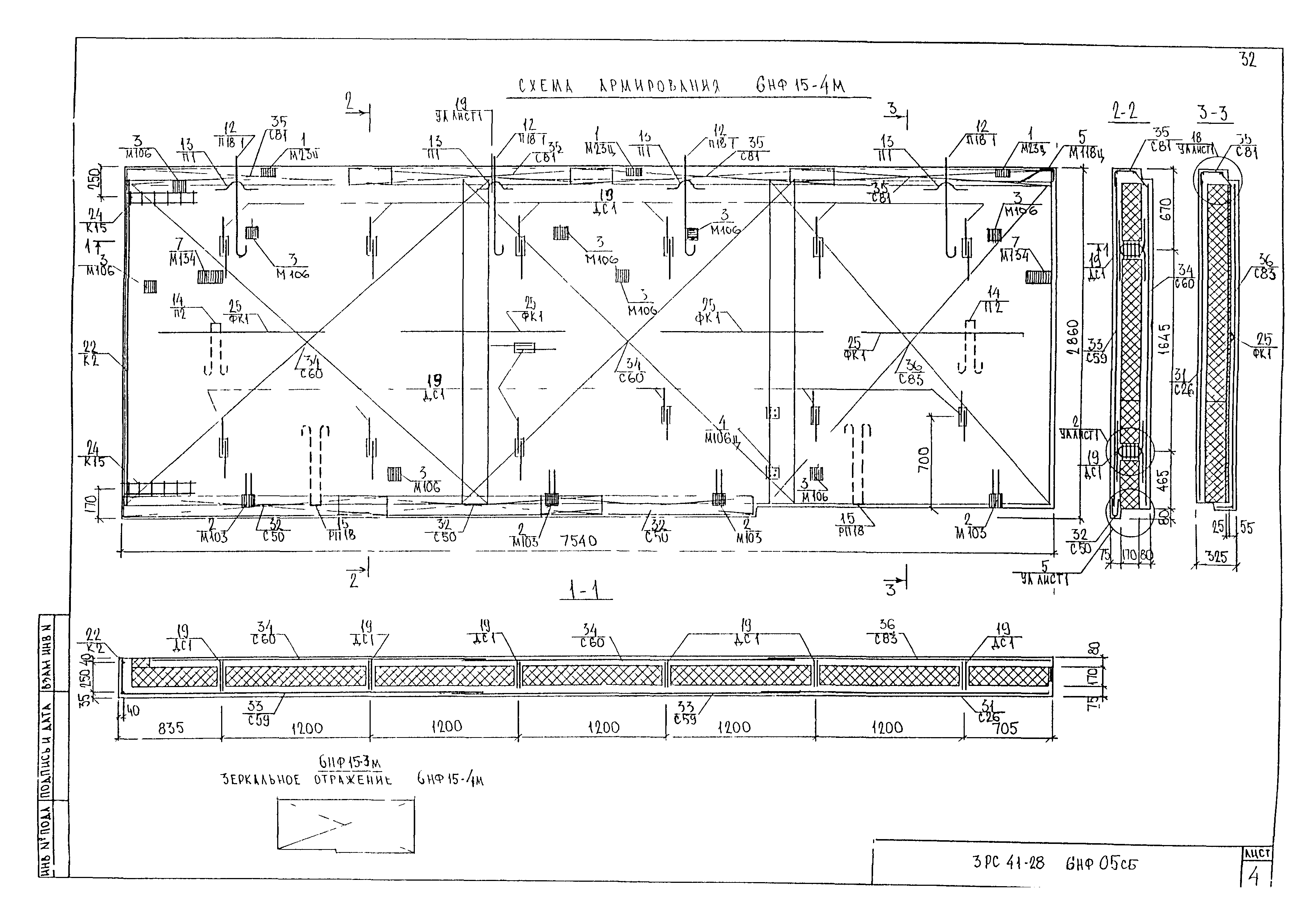
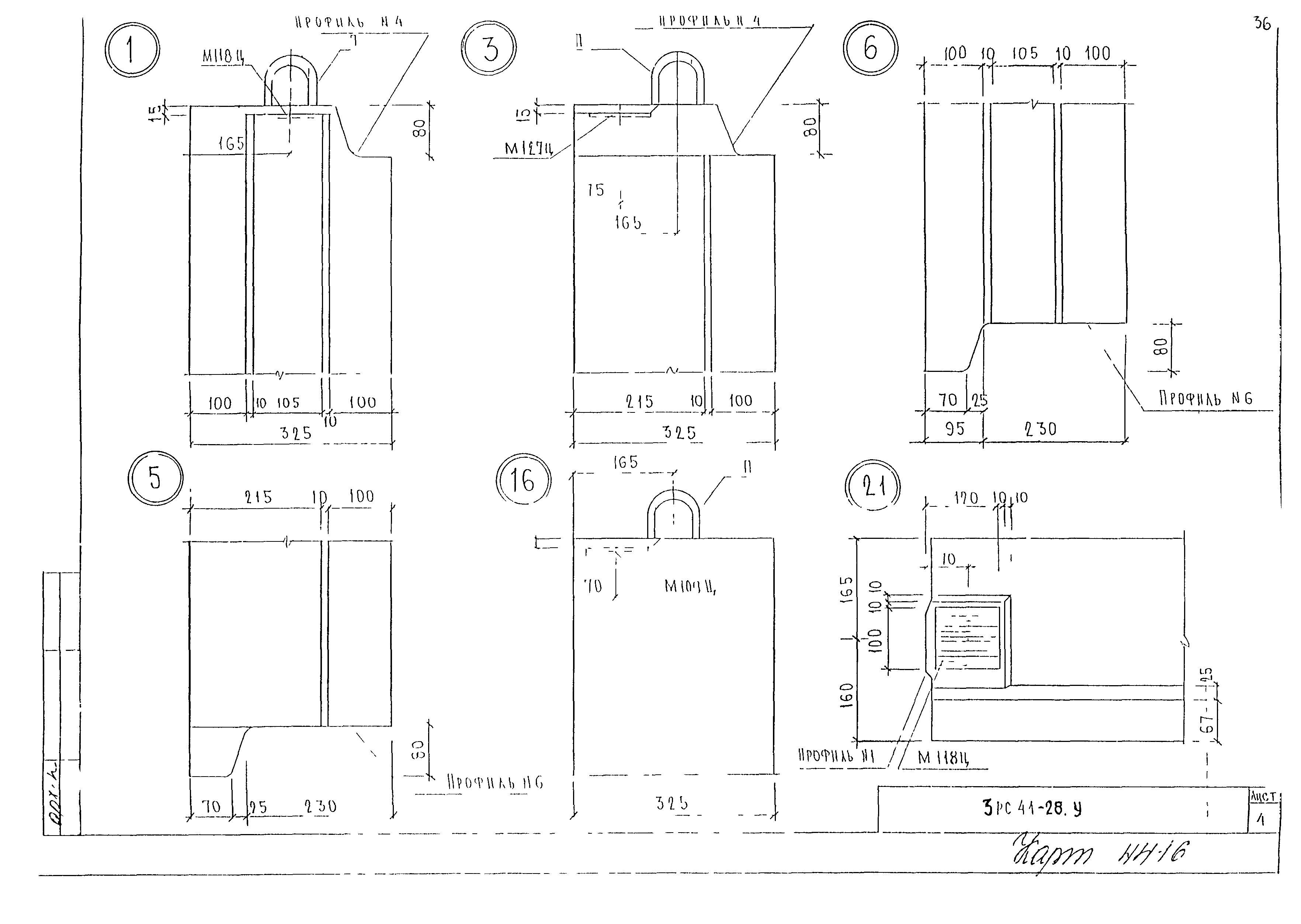
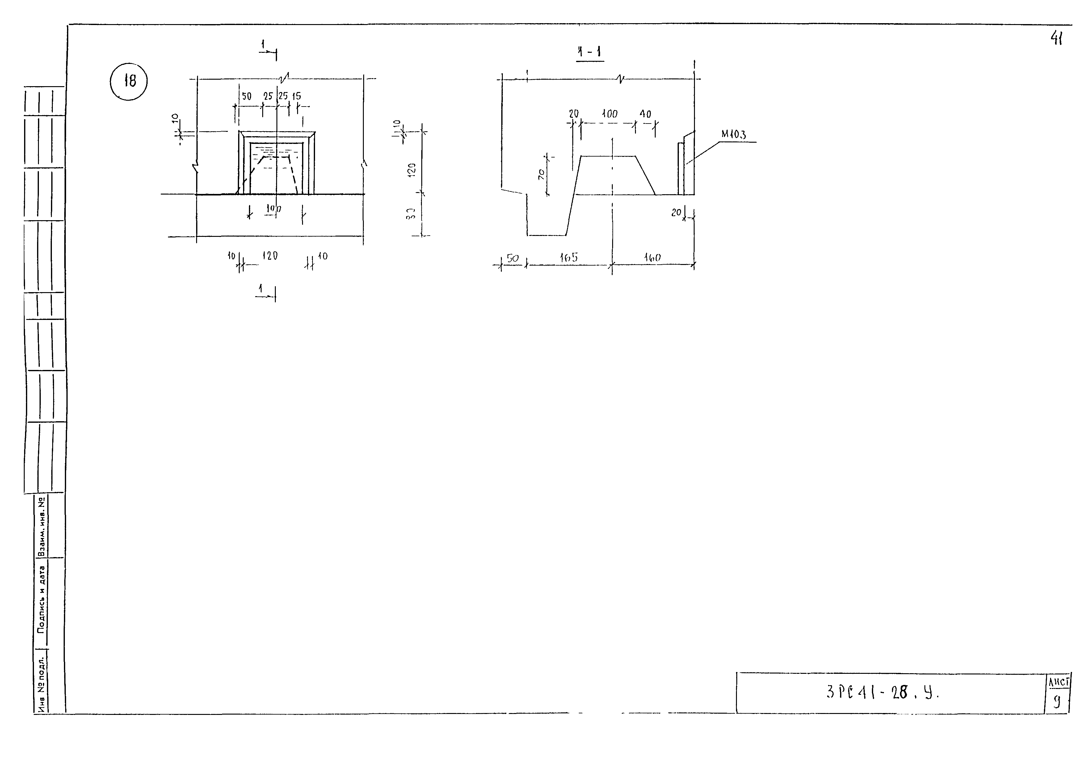
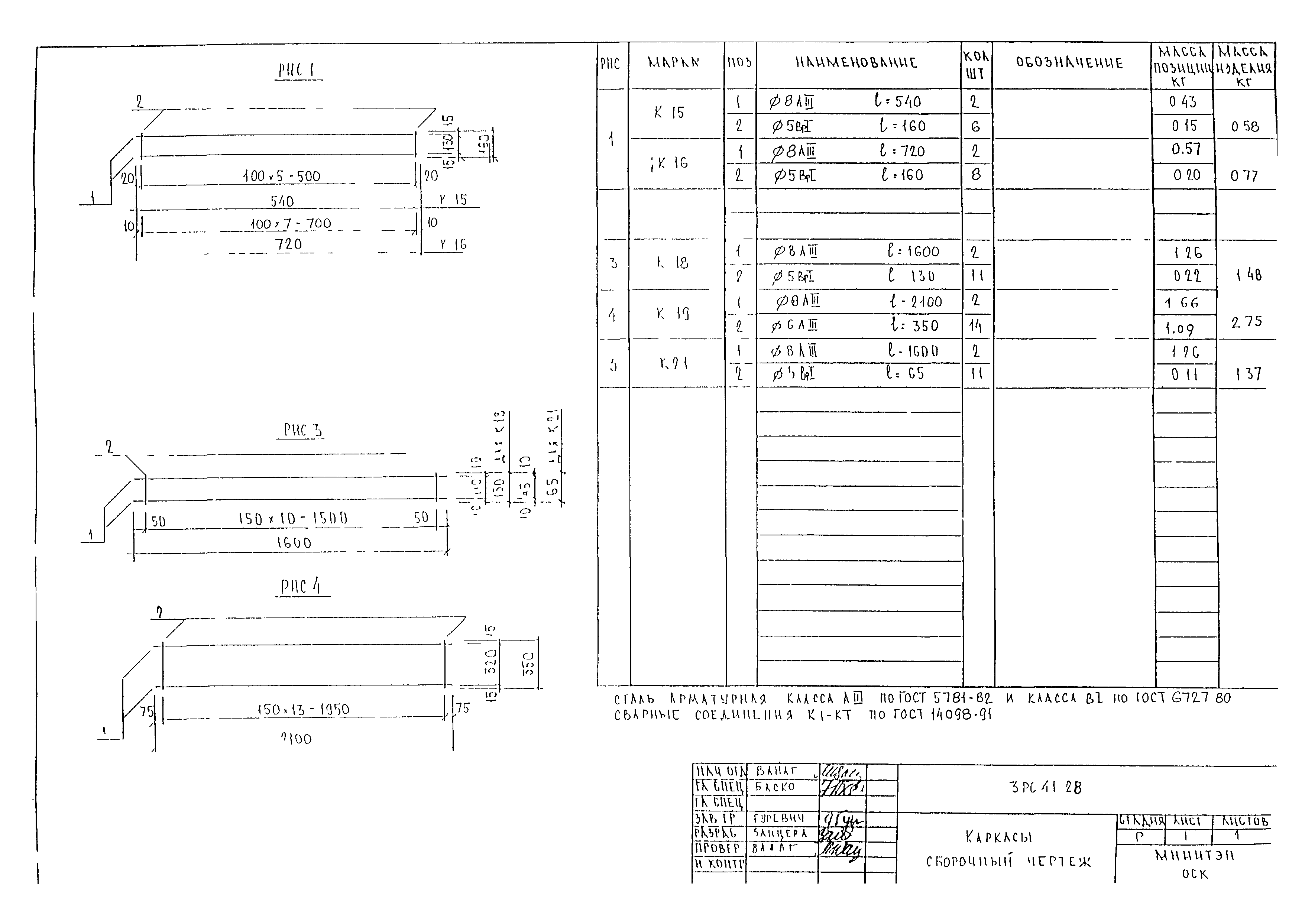
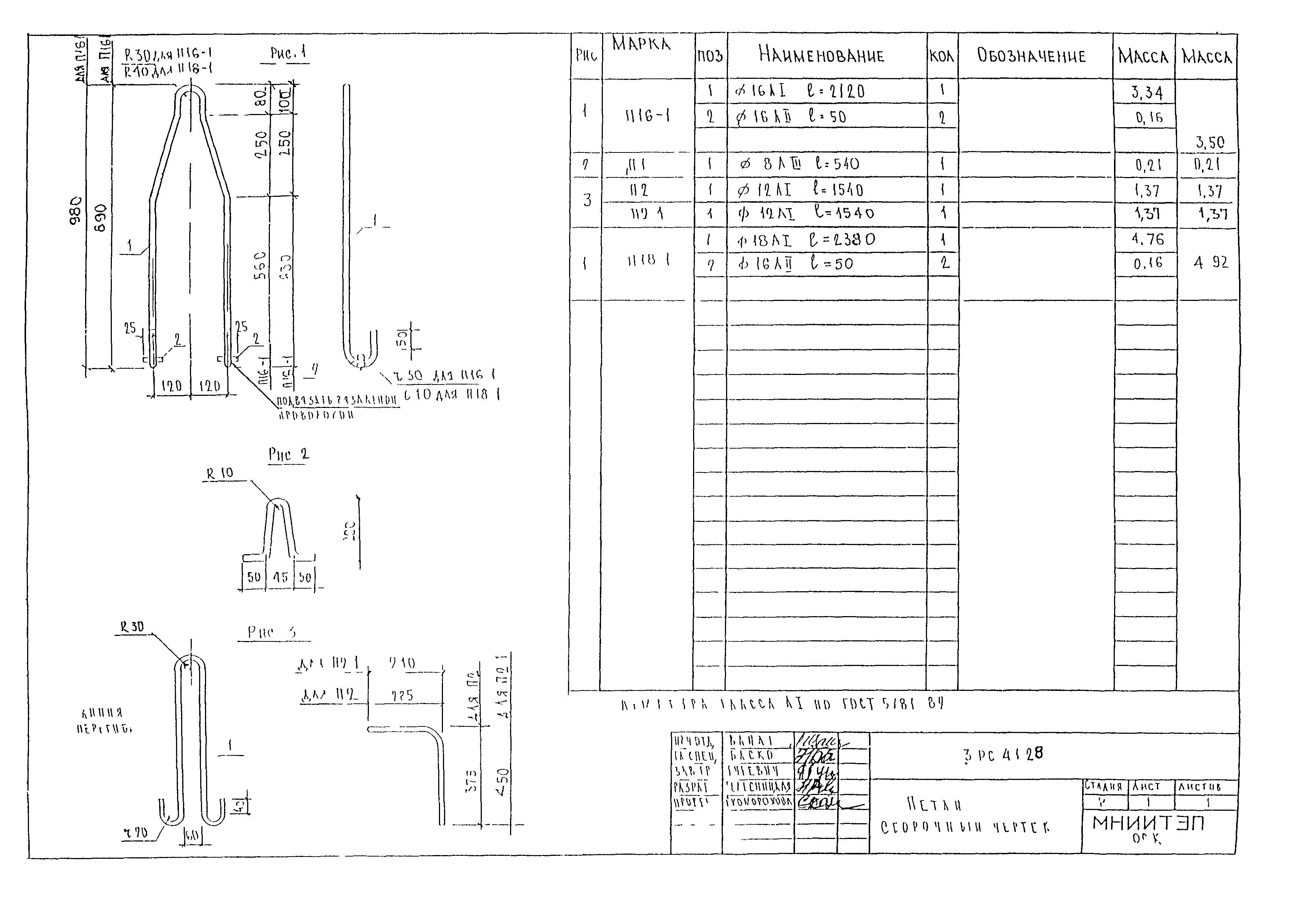
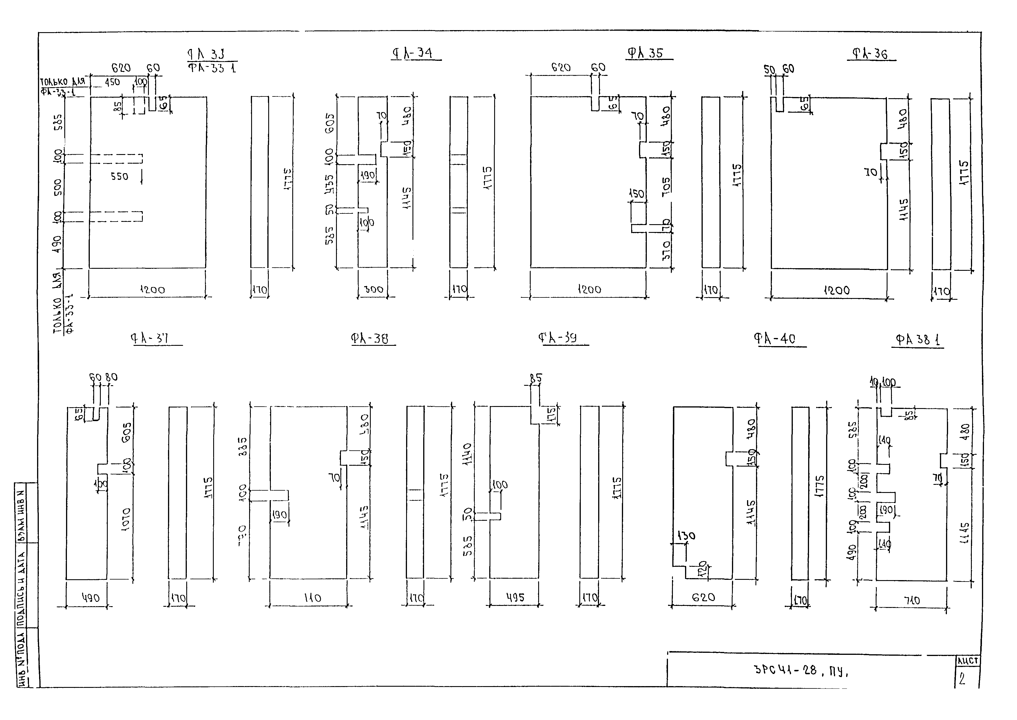
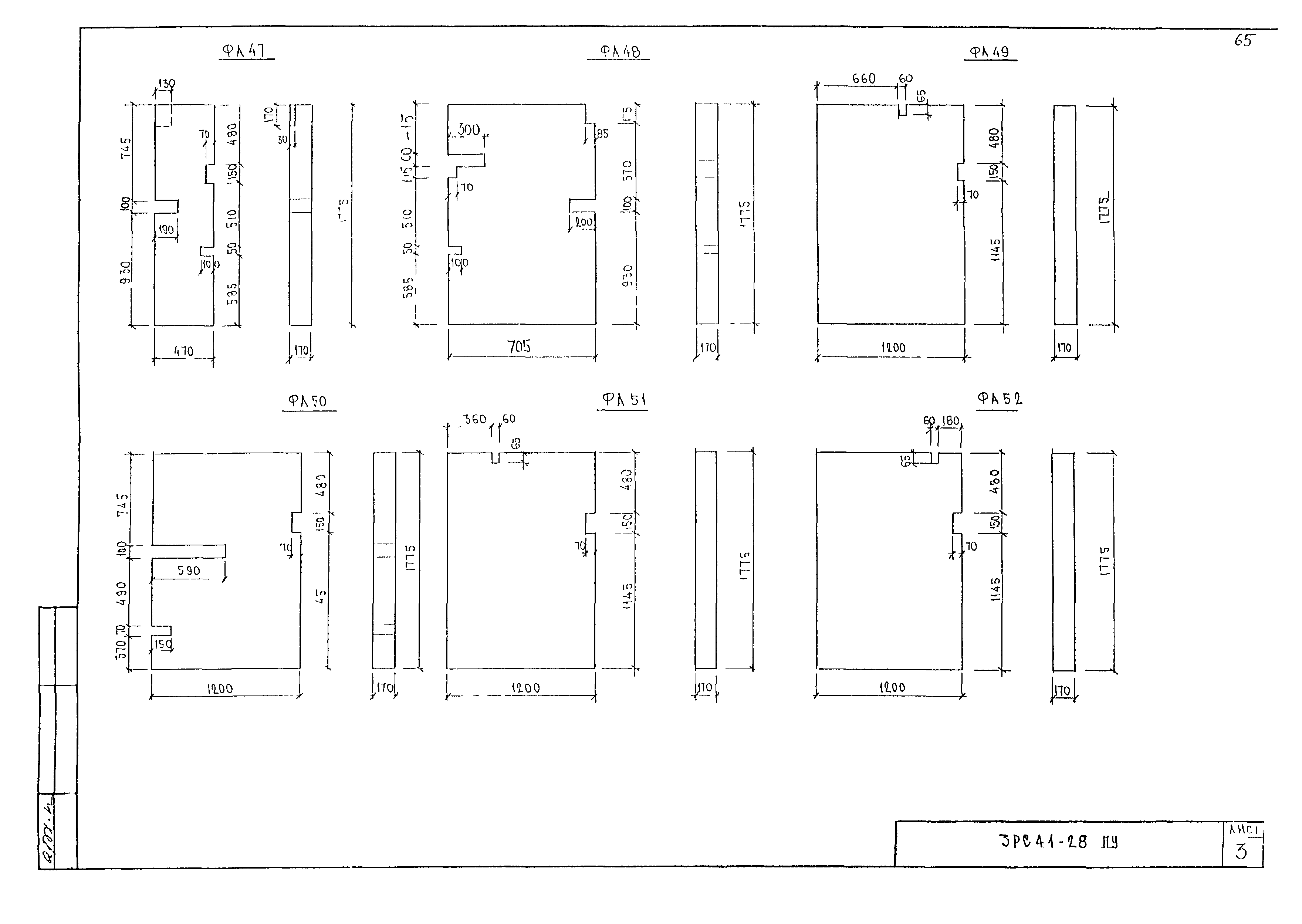
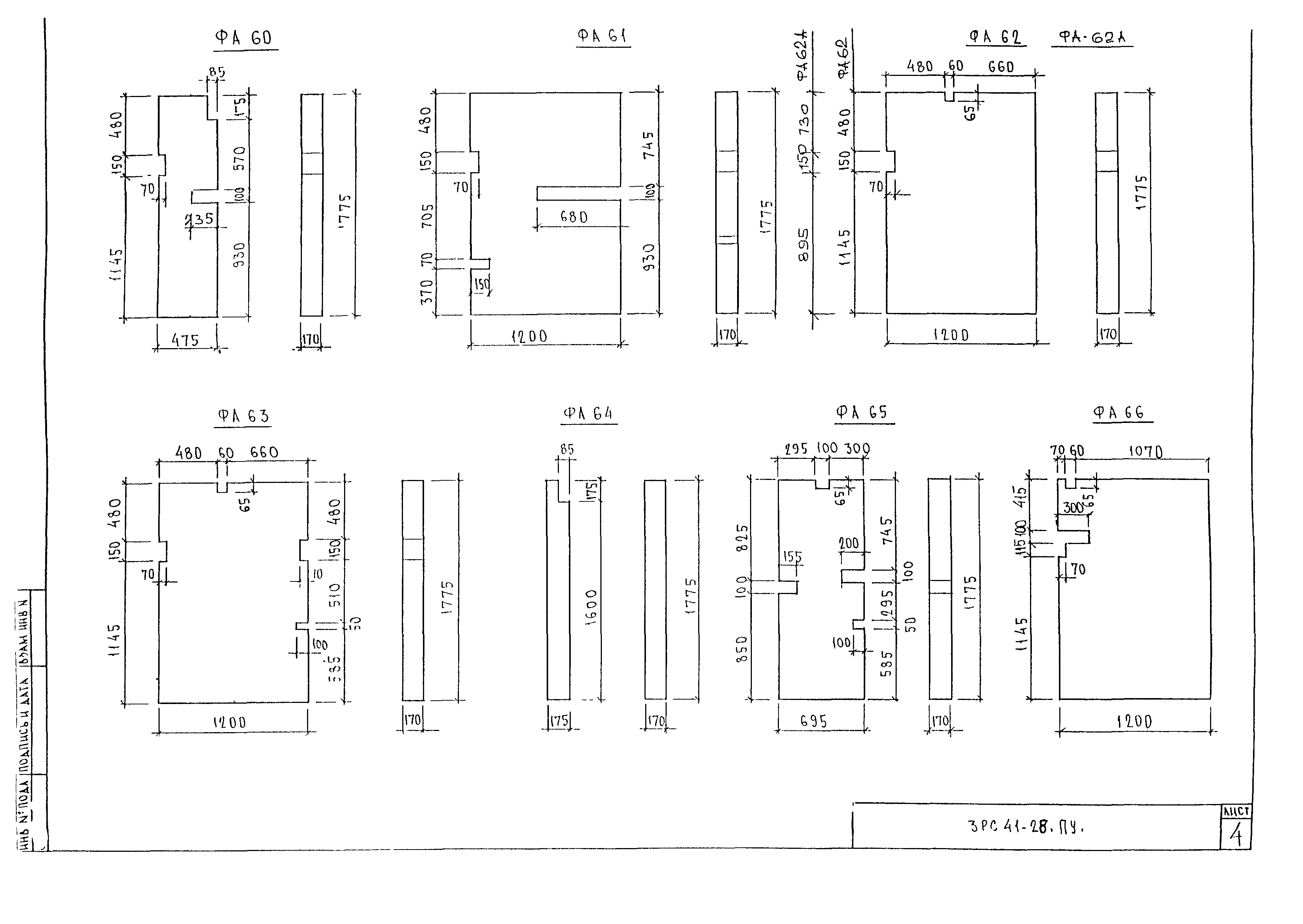
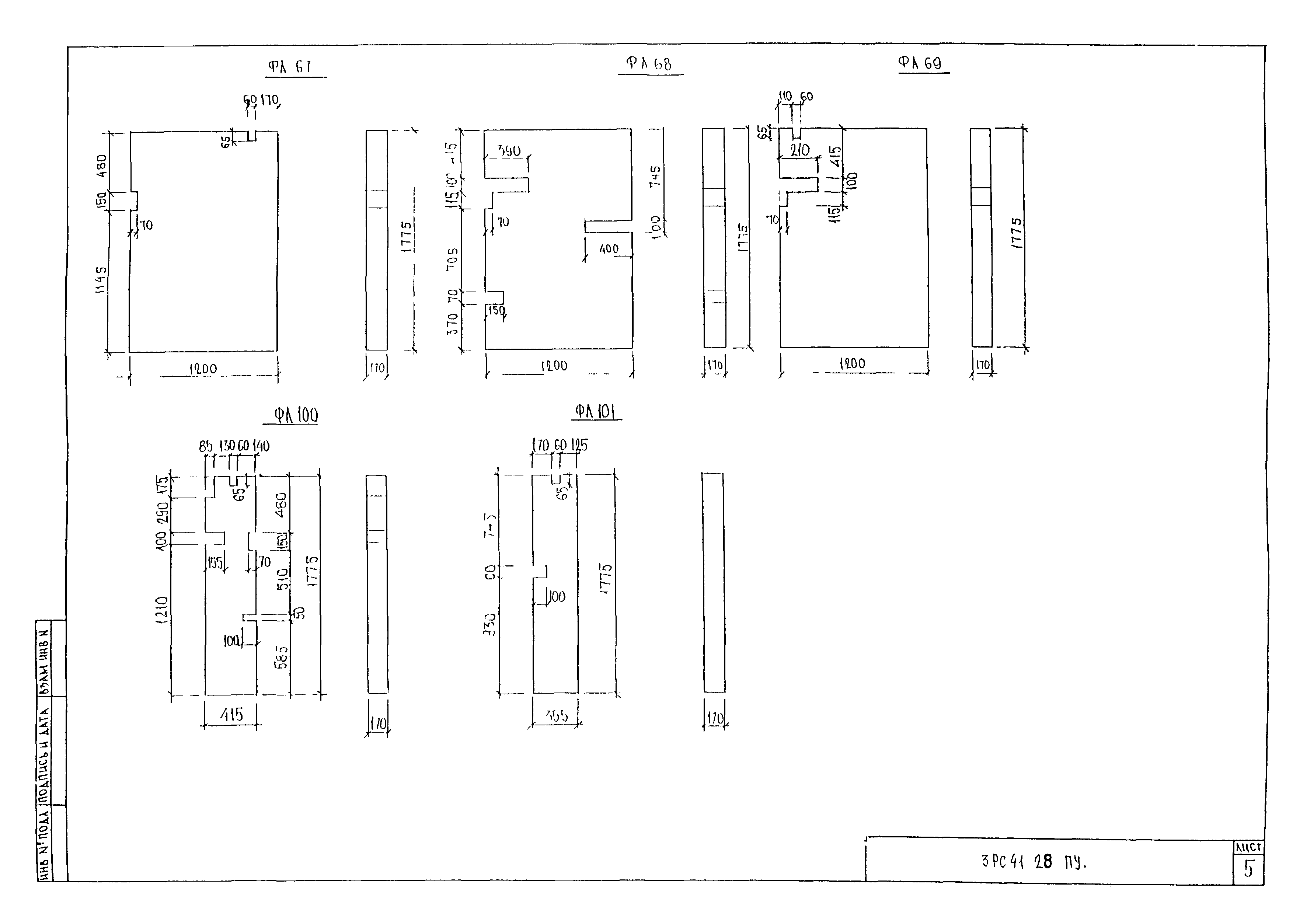
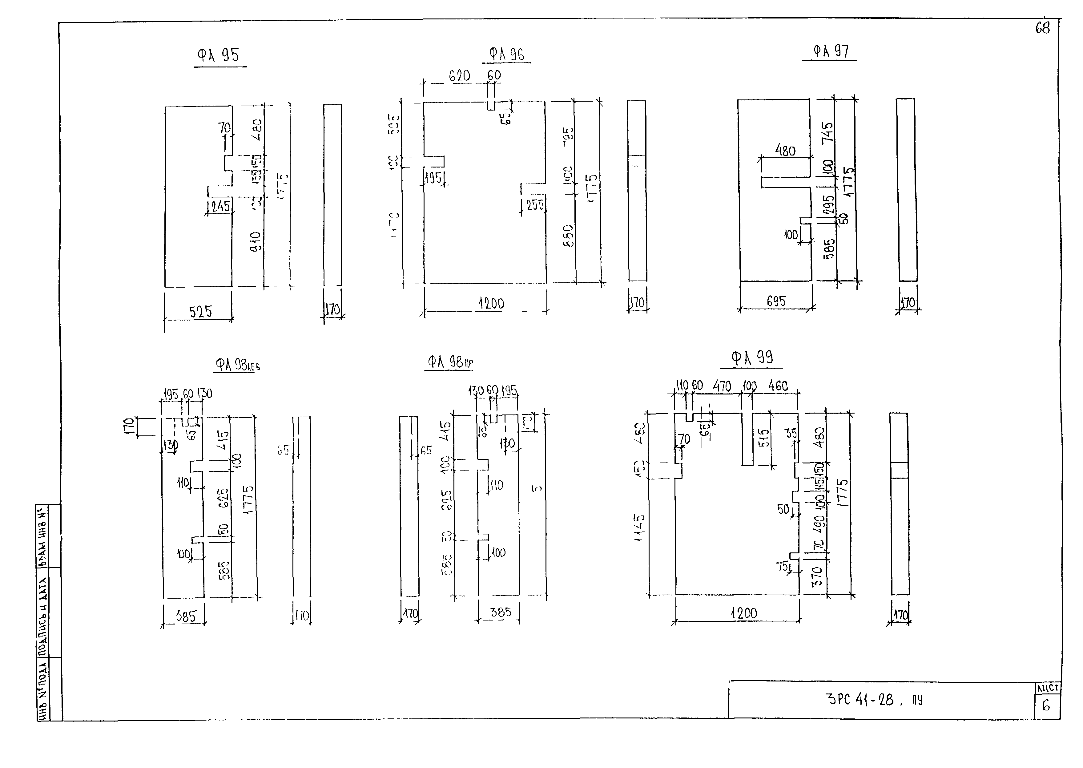
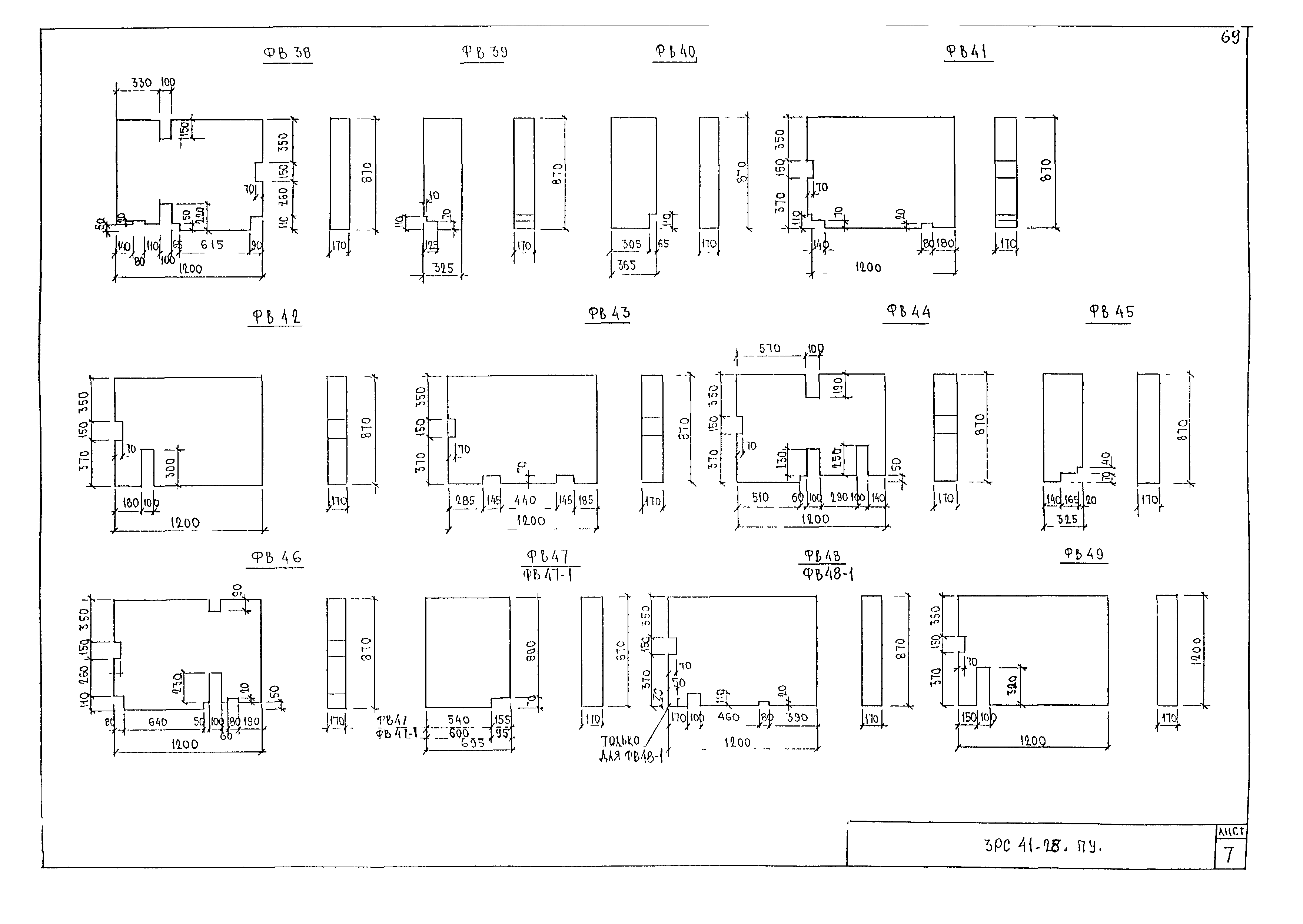
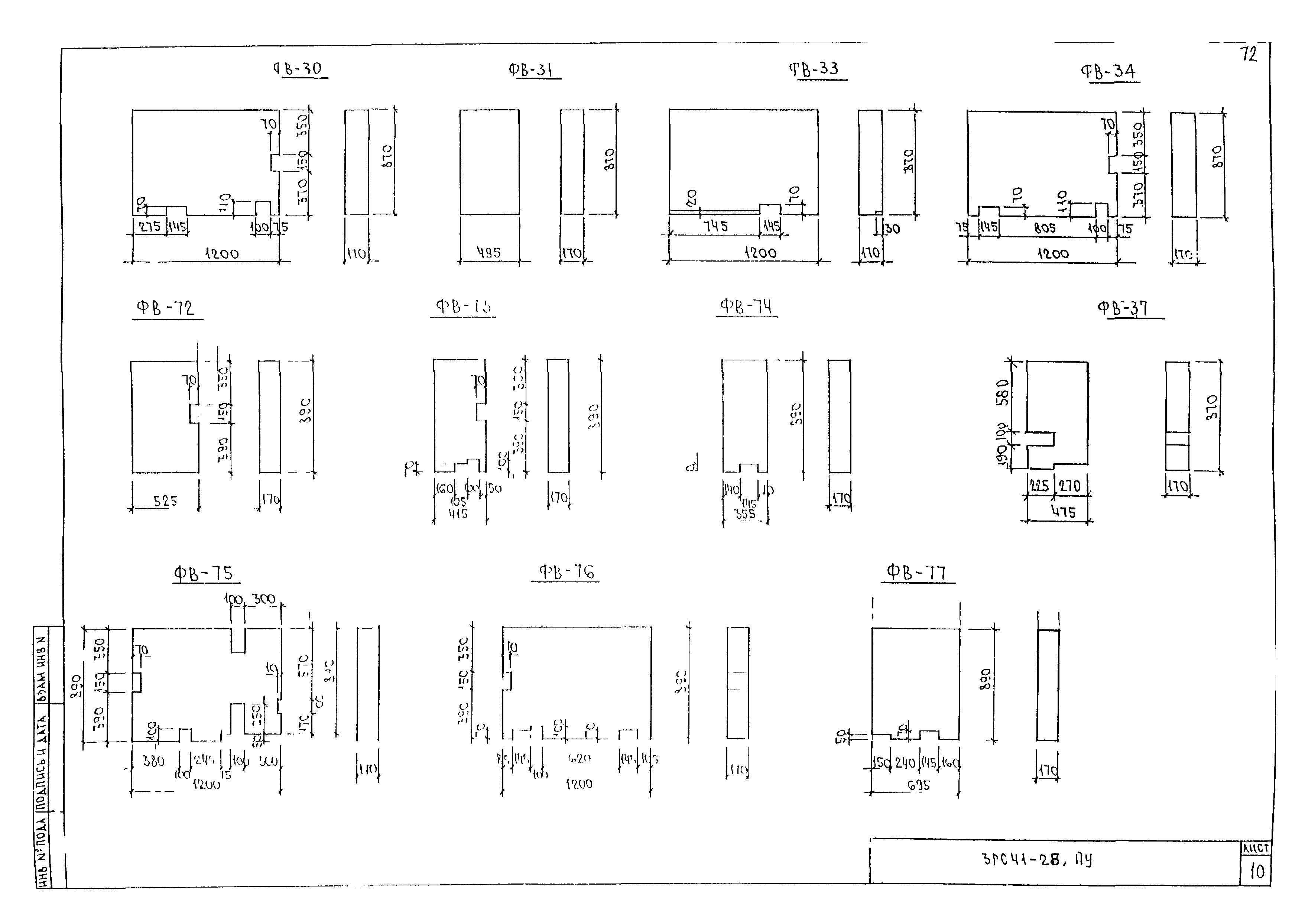
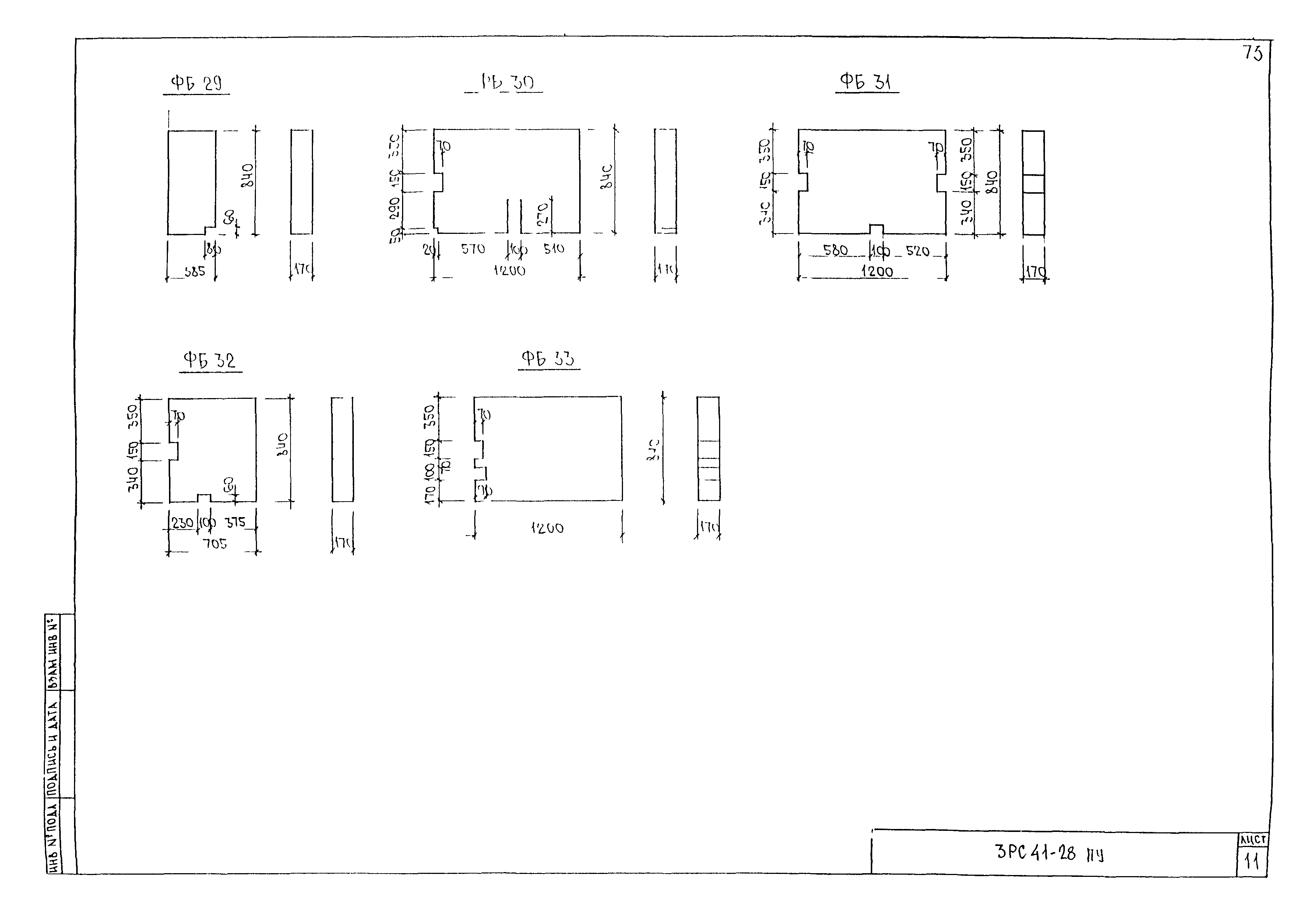
| Оглавление: | 3РС41-28 ПЗ Пояснительная записка 3РС41-28 НИ Номенклатура изделий 3РС41-28 РС Ведомость расхода стали 3РС41-28 СУ Спецификация пакетов утеплителя 3РС41-28 01СБ Панель 6НФ61. Сборочный чертеж 3РС41-28 02СБ Панели 6НФ71, 6НФ72, 6НФ71м, 6НФ72м. Сборочный чертеж 3РС41-28 03СБ Панели 6НФ81, 6НФ82. Сборочный чертеж 3РС41-28 04СБ Панели 6НФ151, 6НФ152. Сборочный чертеж 3РС41-28 05СБ Панели 6НФ153м, 6НФ154м. Сборочный чертеж 3РС41-28 У Узлы габаритные 3РС41-28 УУ Узлы раскладки утеплителя 3РС41-28 УА Узлы арматурные 3РС41-28 Каркасы. Сборочный чертеж 3РС41-28 Сетки. Сборочный чертеж 3РС41-28 Дискретная связь. Сборочный чертеж 3РС41-28 Петли. Сборочный чертеж 3РС41-28 Закладные детали. Сборочный чертеж 3РС41-28 ПУ Пакеты утеплителя 3РС41-28 Информационная карта |
| Разработан: | МНИИТЭП |
| Утверждён: | 13.10.1999 МНИИТЭП (MNIITEP 43-то) |









































































