Скачать 3РС 74-09 Плиты покрытий трехслойные бетонныеДата актуализации: 01.01.2021
|
| Обозначение: | 3РС 74-09 |
| Обозначение англ: | 3РС 74-09 |
| Статус: | не определен законодательством |
| Название рус.: | Плиты покрытий трехслойные бетонные |
| Дата добавления в базу: | 01.09.2013 |
| Дата актуализации: | 01.01.2021 |
| Дата введения: | 01.01.1999 |
| Дата окончания срока действия: | 30.06.2003 |
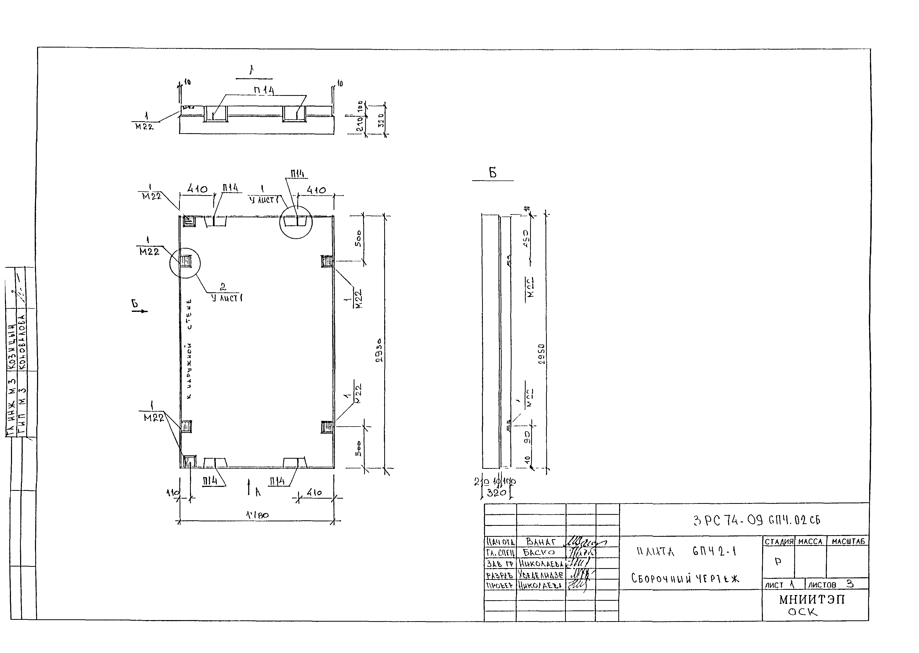
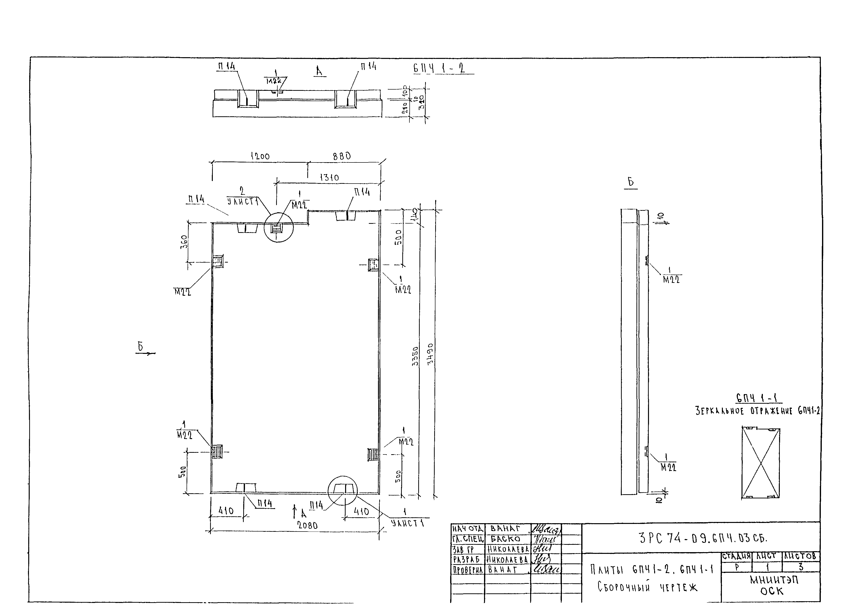
| Область применения: | Альбом содержит рабочие чертежи трехслойных бетонных плит покрытия с высокими теплотехническими характеристиками для чердачной крыши с теплым чердаком и наплавляемыми кровельными материалами, предназначенных для жилых домов серии П3М производства АО ДСК-3. |
| Оглавление: | ЗРС 74-09.ПЗ Пояснительная записка ЗРС 74-09.НИ Номенклатура изделий ЗРС 74-09.РС Ведомость расхода стали ЗРС 74-09.6П4.01СБ Плиты 6П4 3-1, 6П4 3-2 . Сборочный чертёж ЗРС 74-09.6П4.02СБ Плита 6П4 2-1. Сборочный чертёж ЗРС 74-09.6П4.03СБ Плиты 6П4 1-2, 6114 1-1.Сборочный чертёж ЗРС 74-09 Каркасы. Сборочный чертеж ЗРС 74-09 Сетка. Сборочный чертеж ЗРС 74-09.К Информационная карта |
| Разработан: | МНИИТЭП |
| Утверждён: | 01.01.1999 МНИИТЭП (MNIITEP ) |

























