Скачать Серия 1.116.1-7 Выпуск 1. Блоки толщиной 35, 45 и 55 см. Материалы для проектирования и рабочие чертежиДата актуализации: 01.01.2021
|
| Обозначение: | Серия 1.116.1-7 |
| Обозначение англ: | Series 1.116.1-7 |
| Статус: | не определен законодательством |
| Название рус.: | Выпуск 1. Блоки толщиной 35, 45 и 55 см. Материалы для проектирования и рабочие чертежи |
| Дата добавления в базу: | 01.09.2013 |
| Дата актуализации: | 01.01.2021 |
| Дата введения: | 25.06.1989 |
| Дата окончания срока действия: | 30.06.2003 |
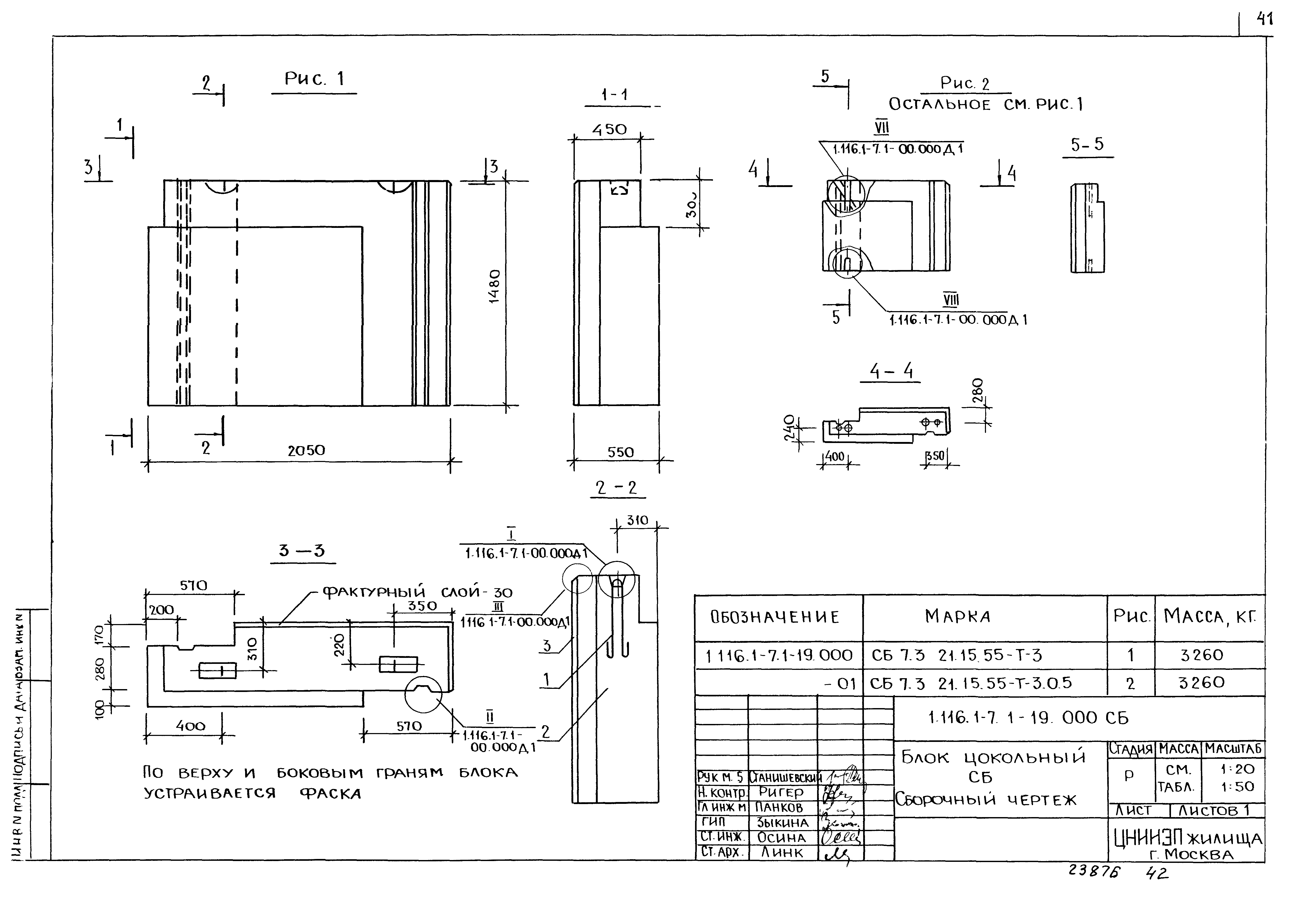
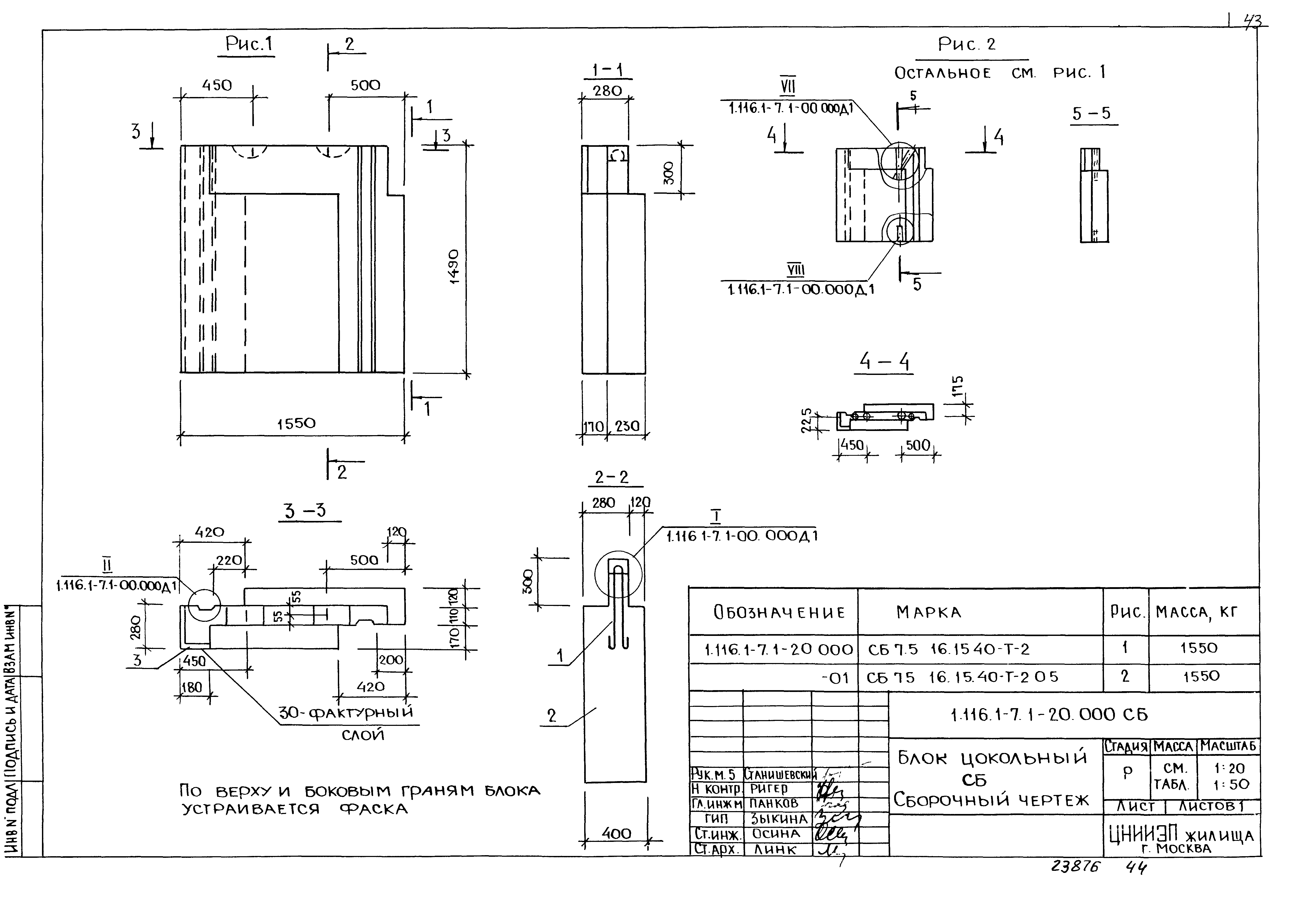
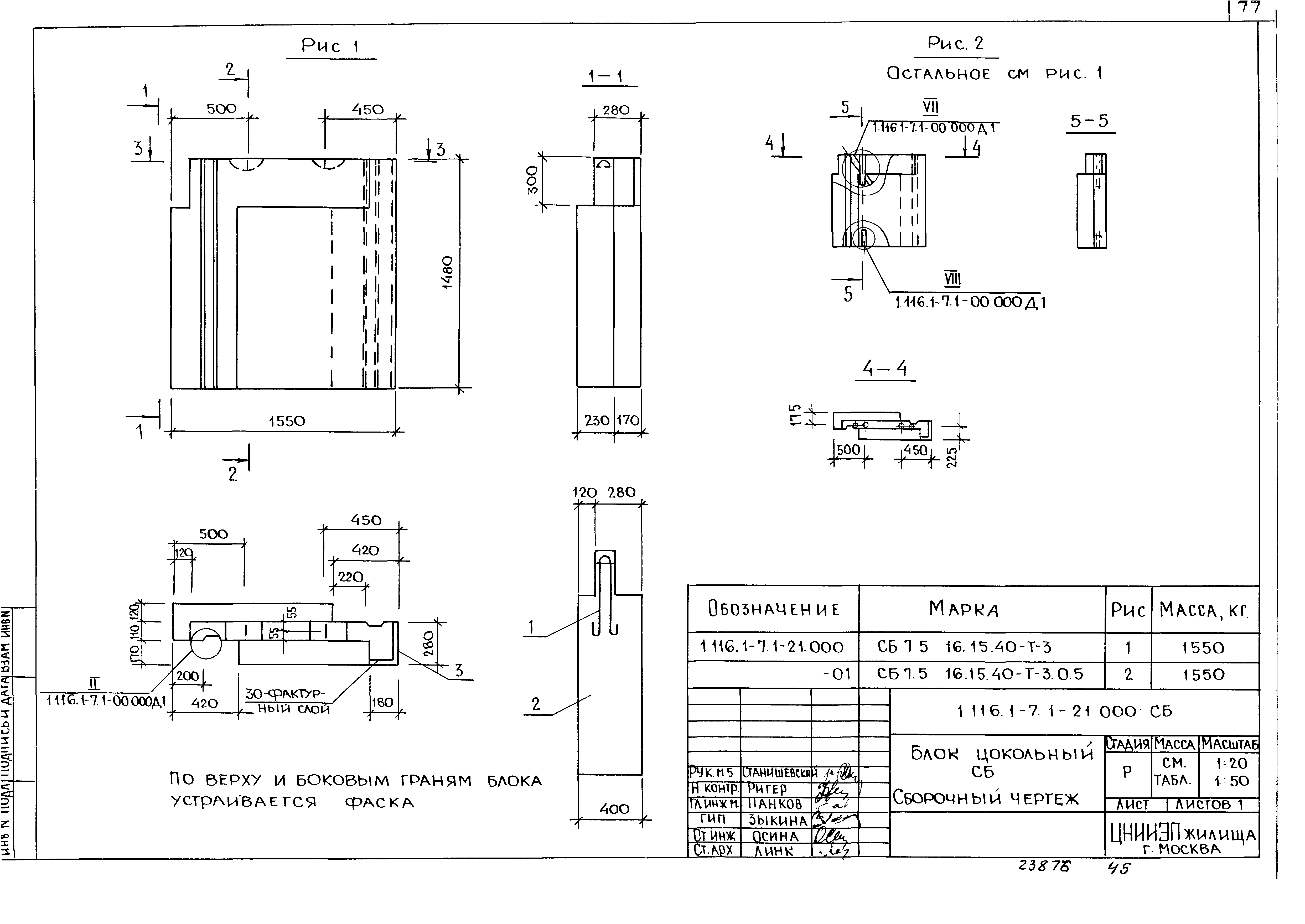
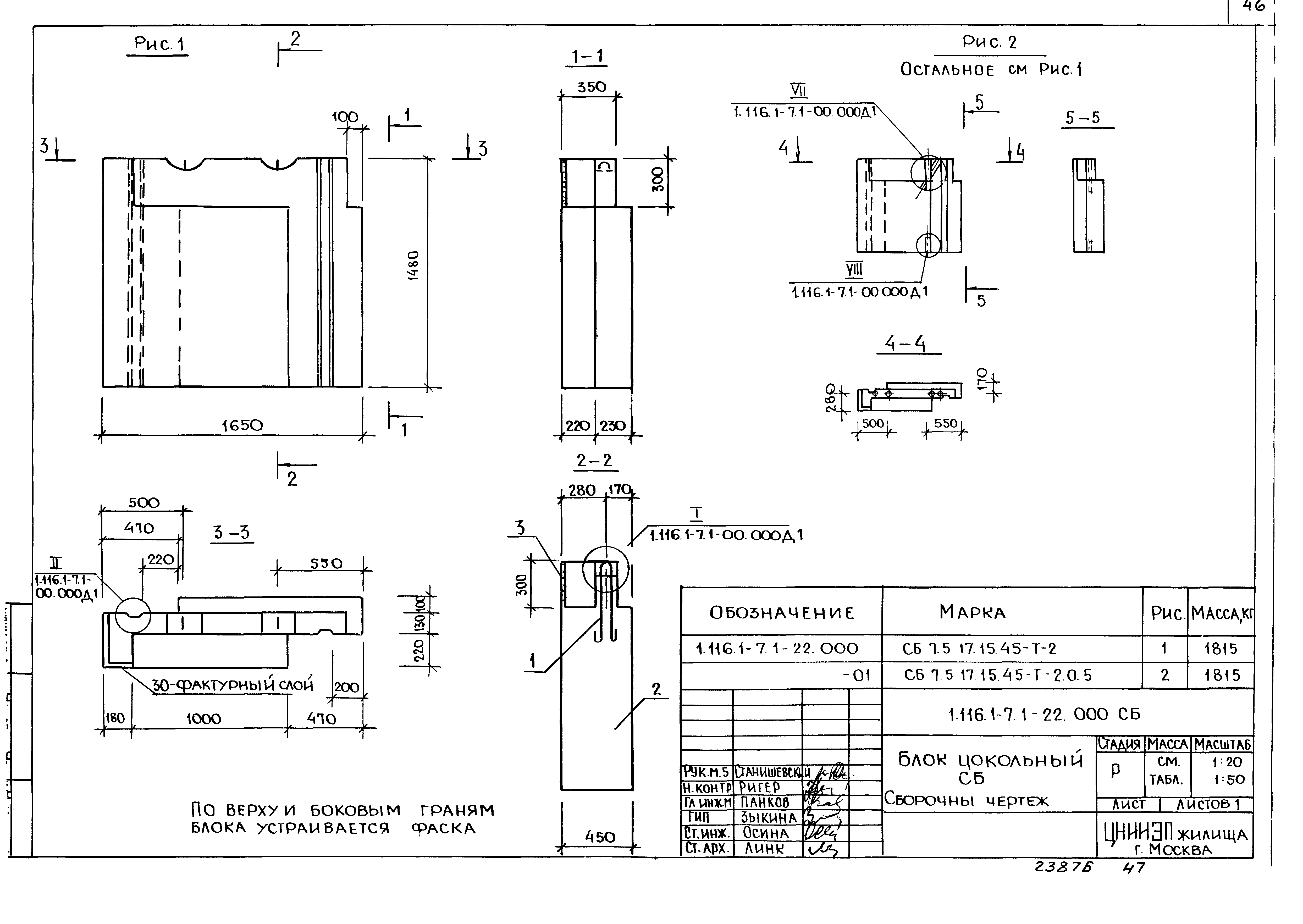
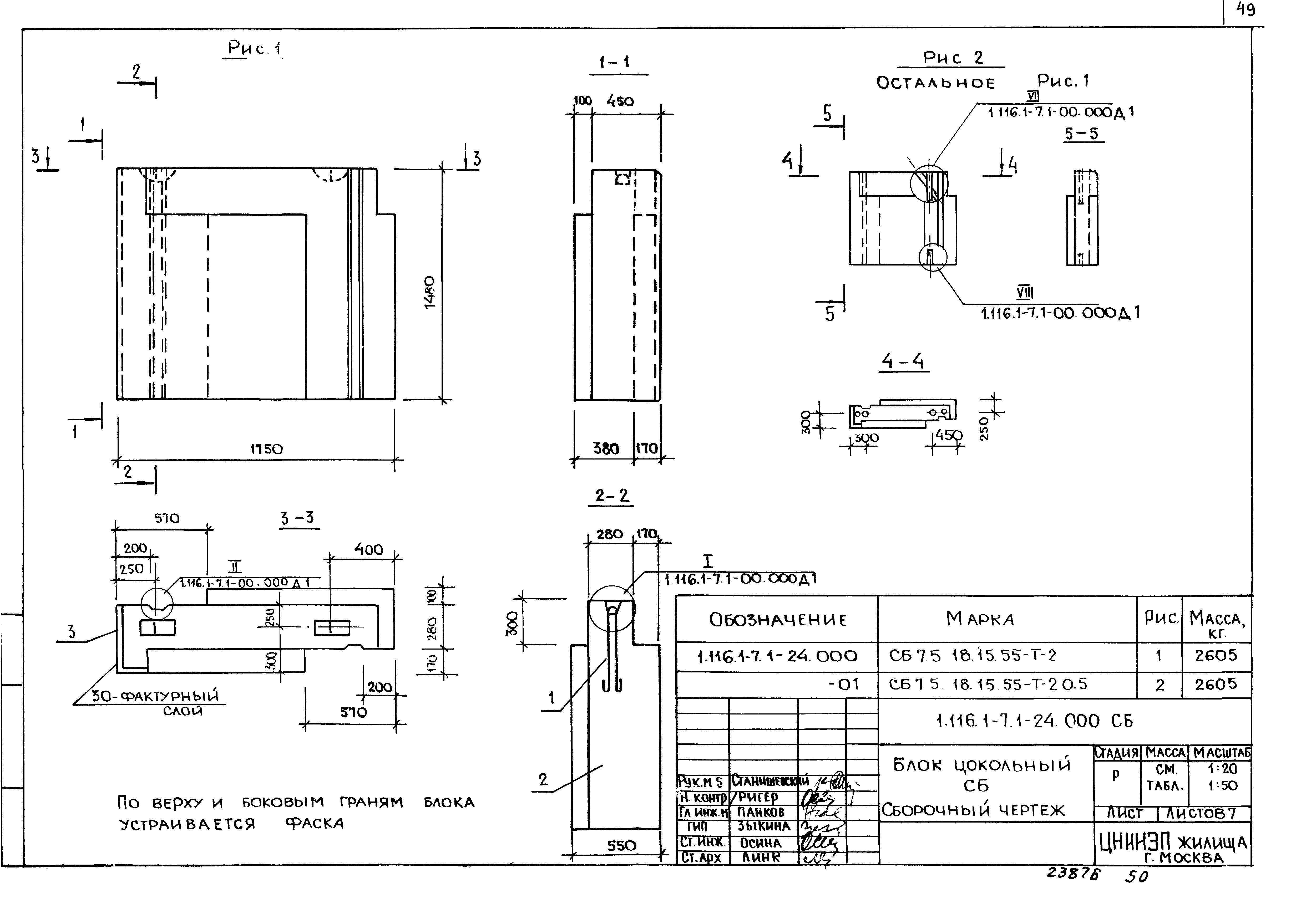
| Область применения: | В проекте разработаны блоки наружных стен с двумя способами монтажа изделий: с помощью петель и с помощью захватов типа "ножницы". Рабочие чертежи цокольных блоков предназначены для изготовления в строительстве жилых домов 5 - 9 этажей со стенами из крупных блоков |
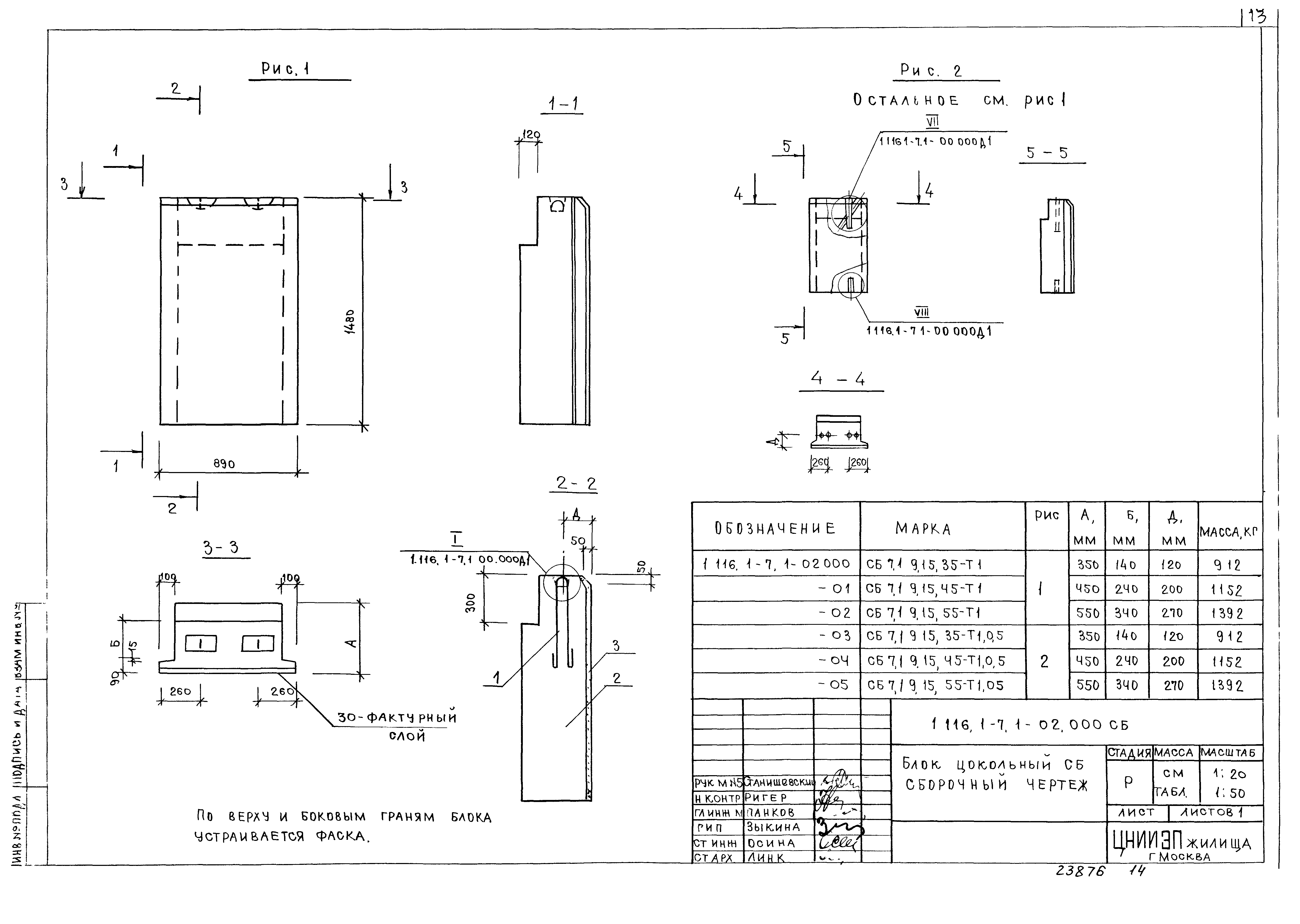
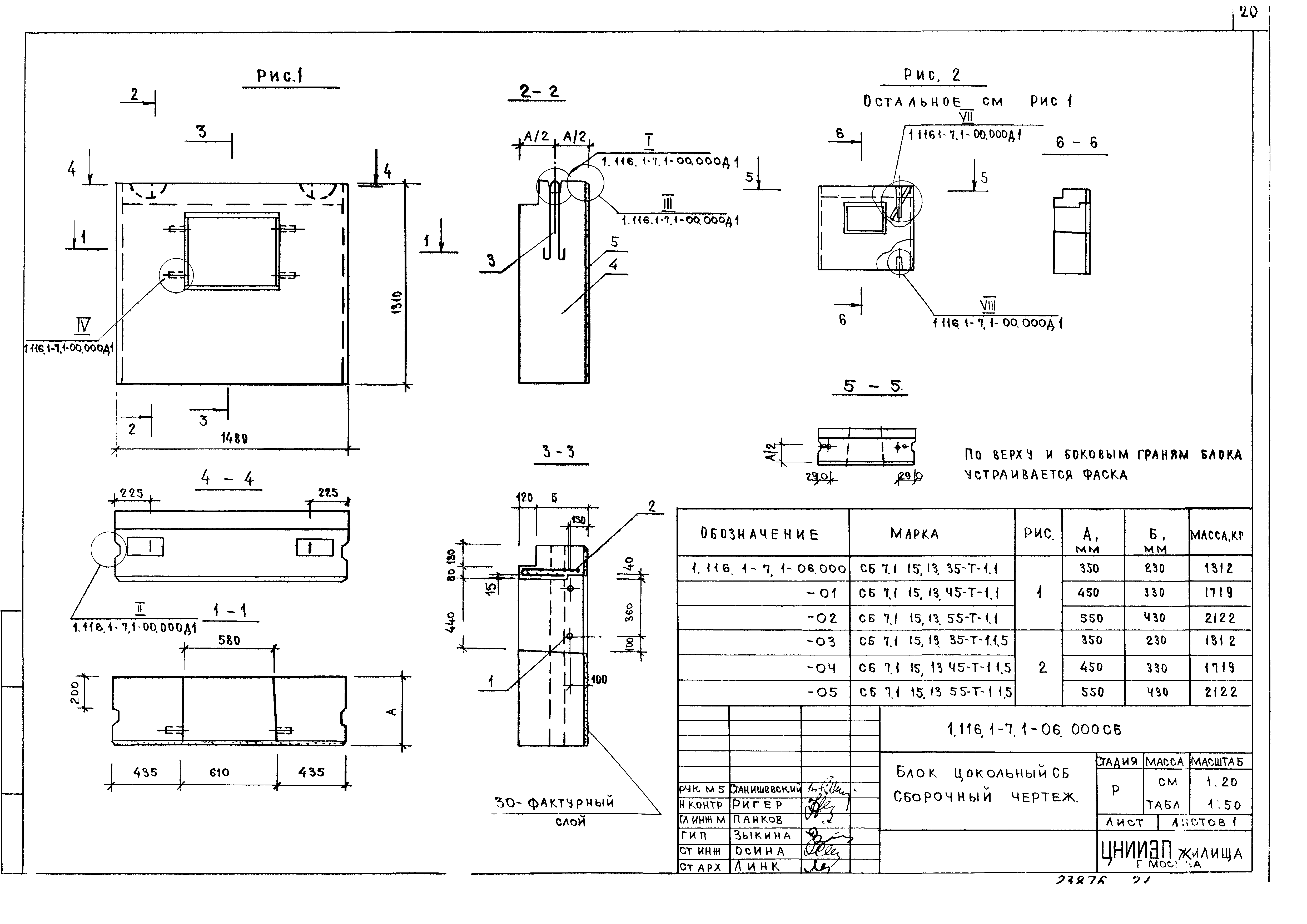
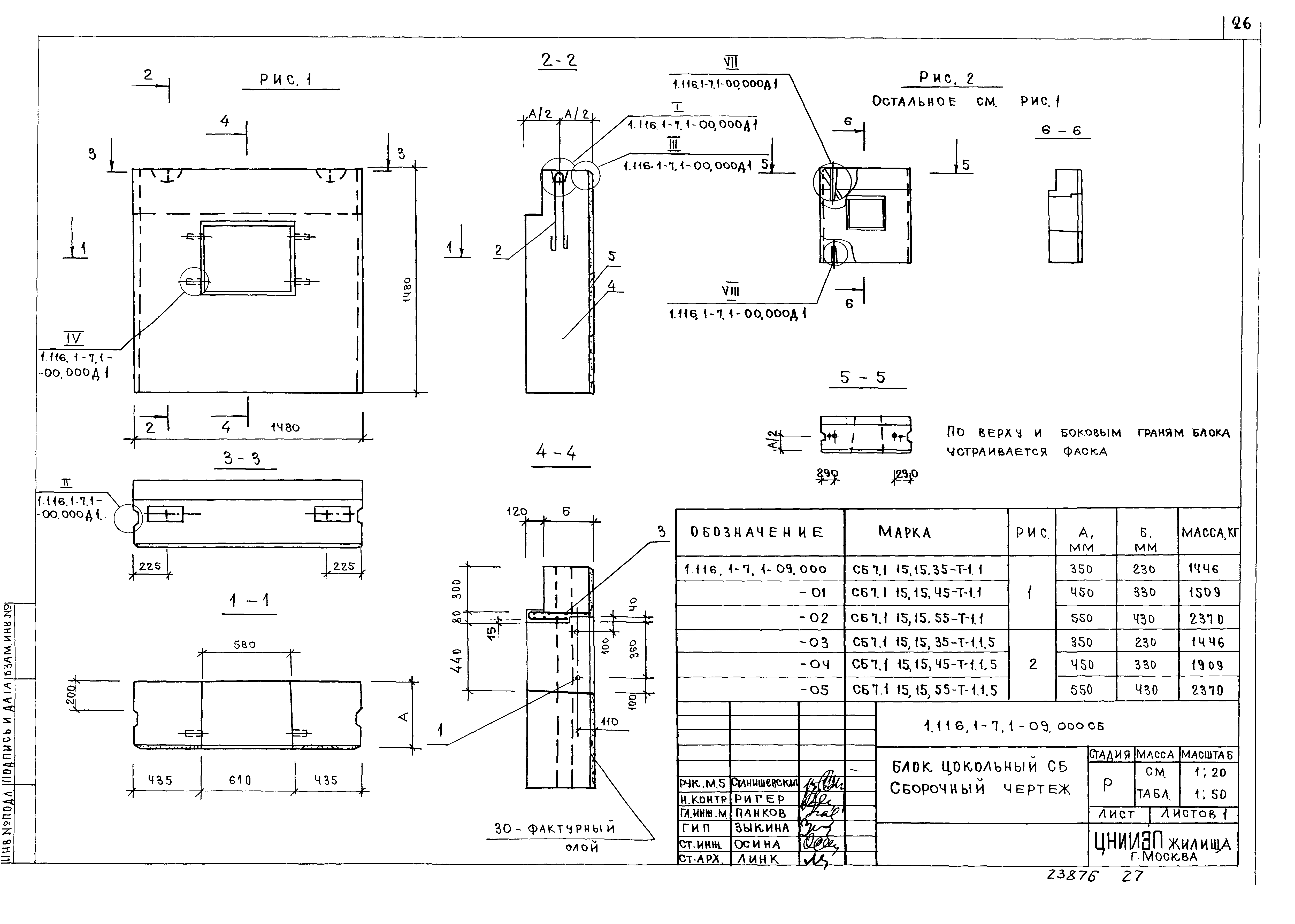
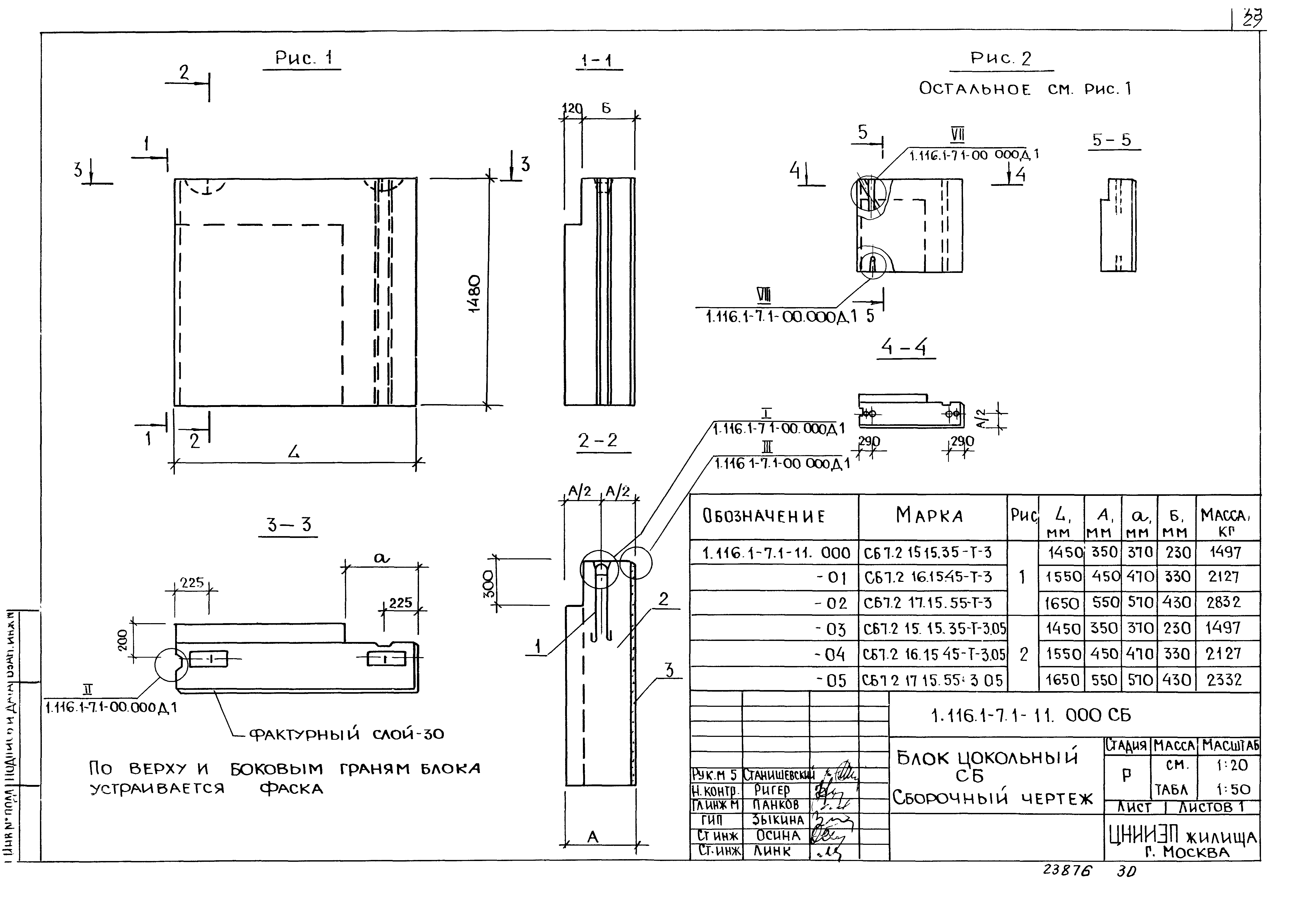
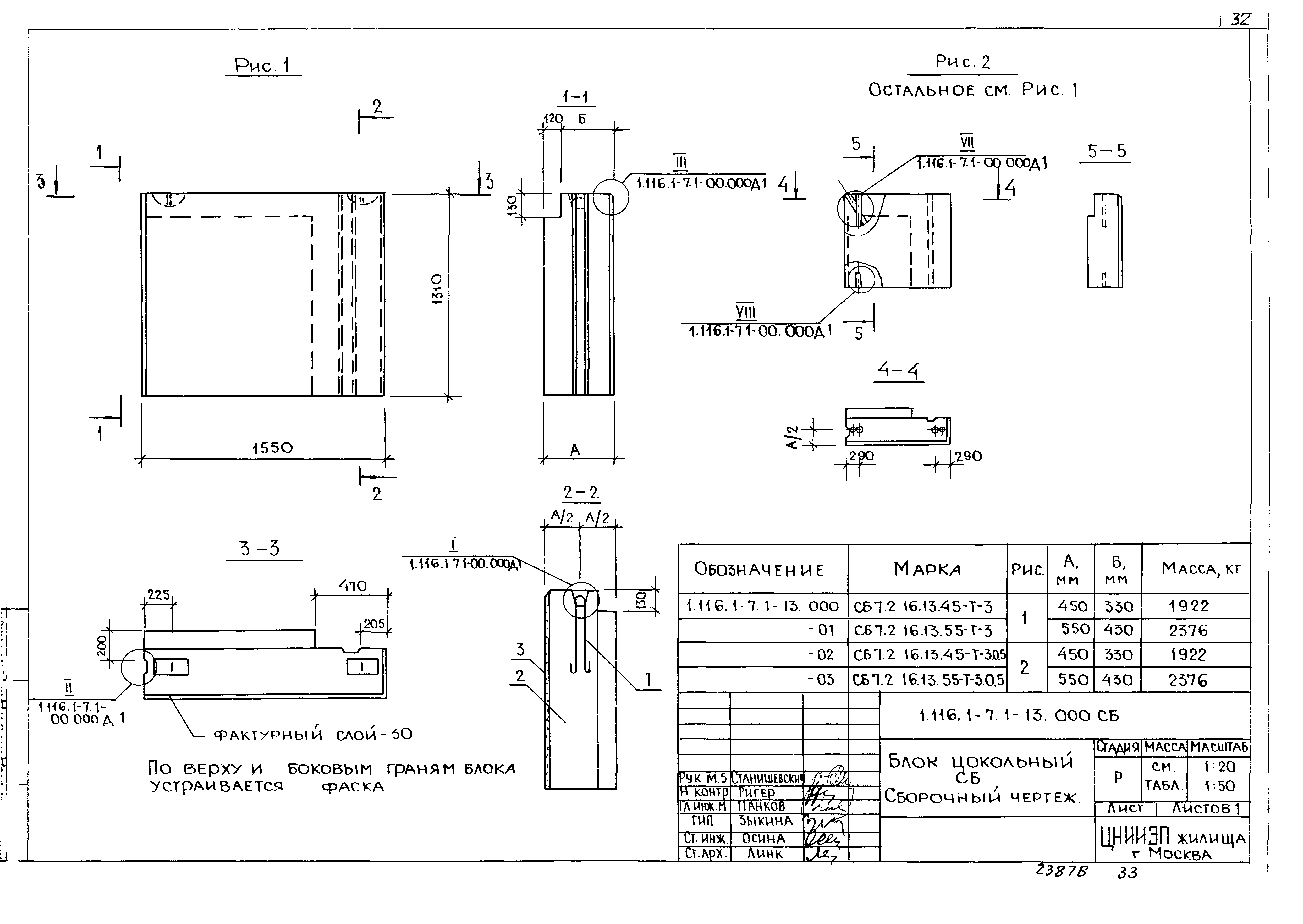
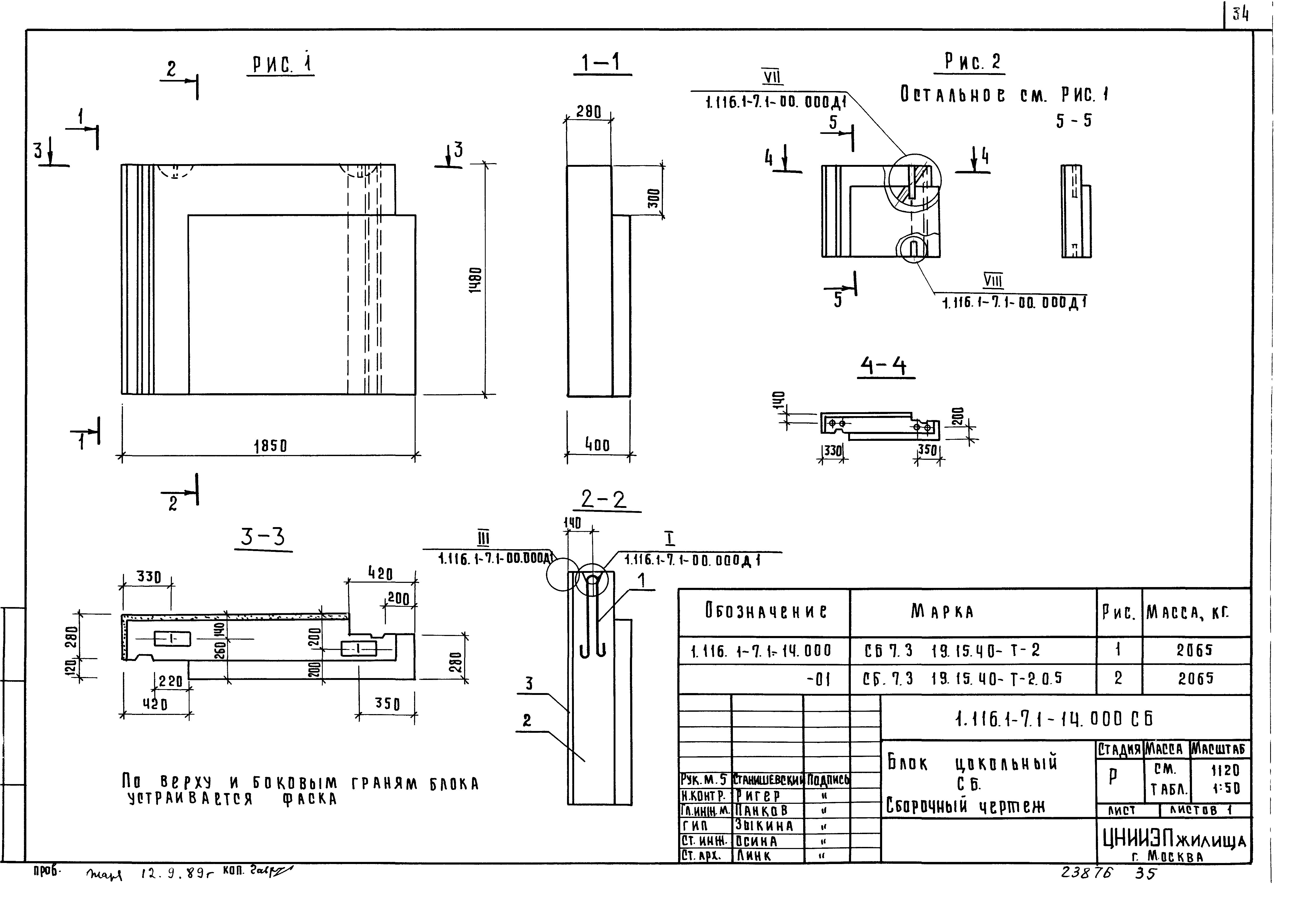
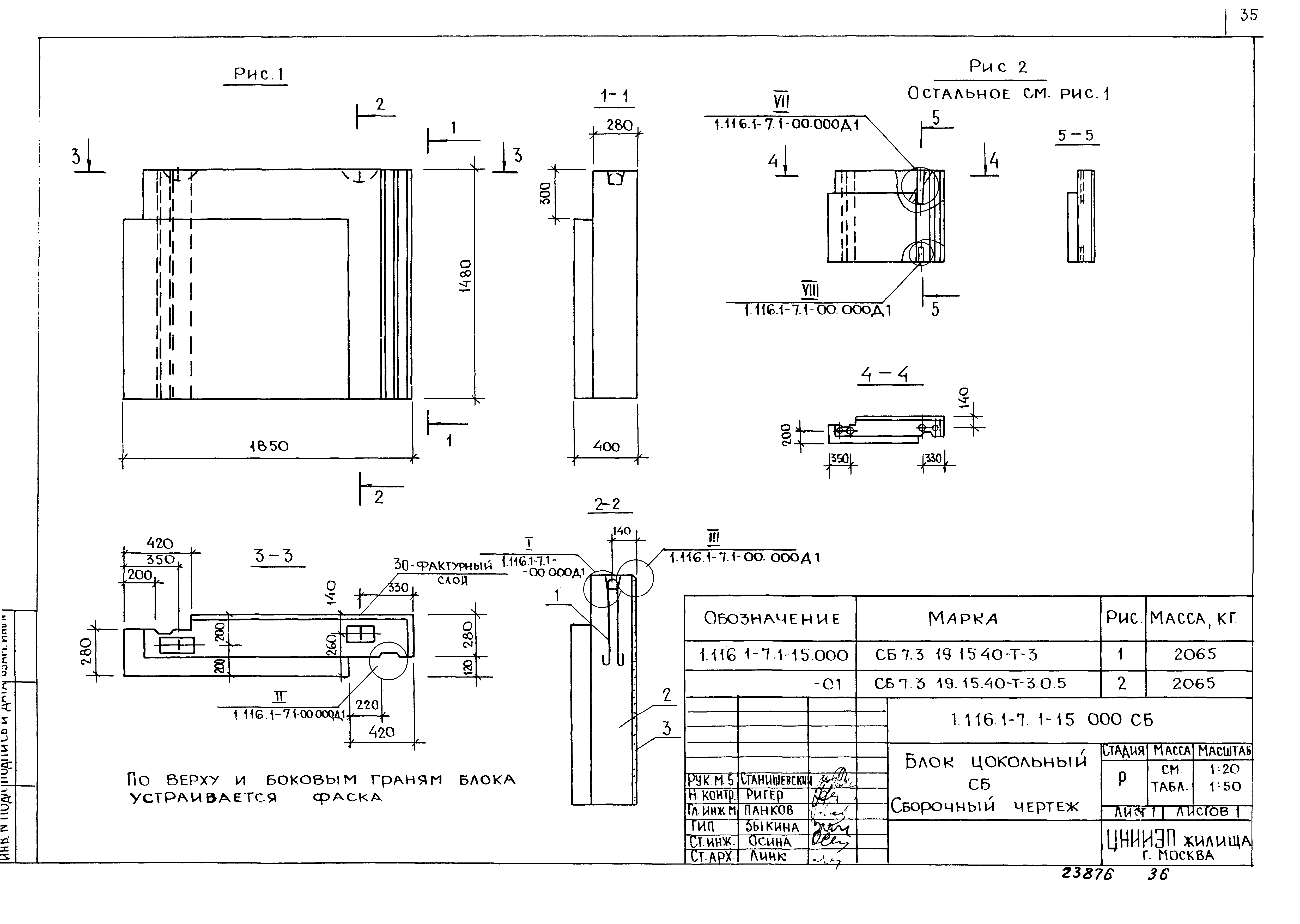
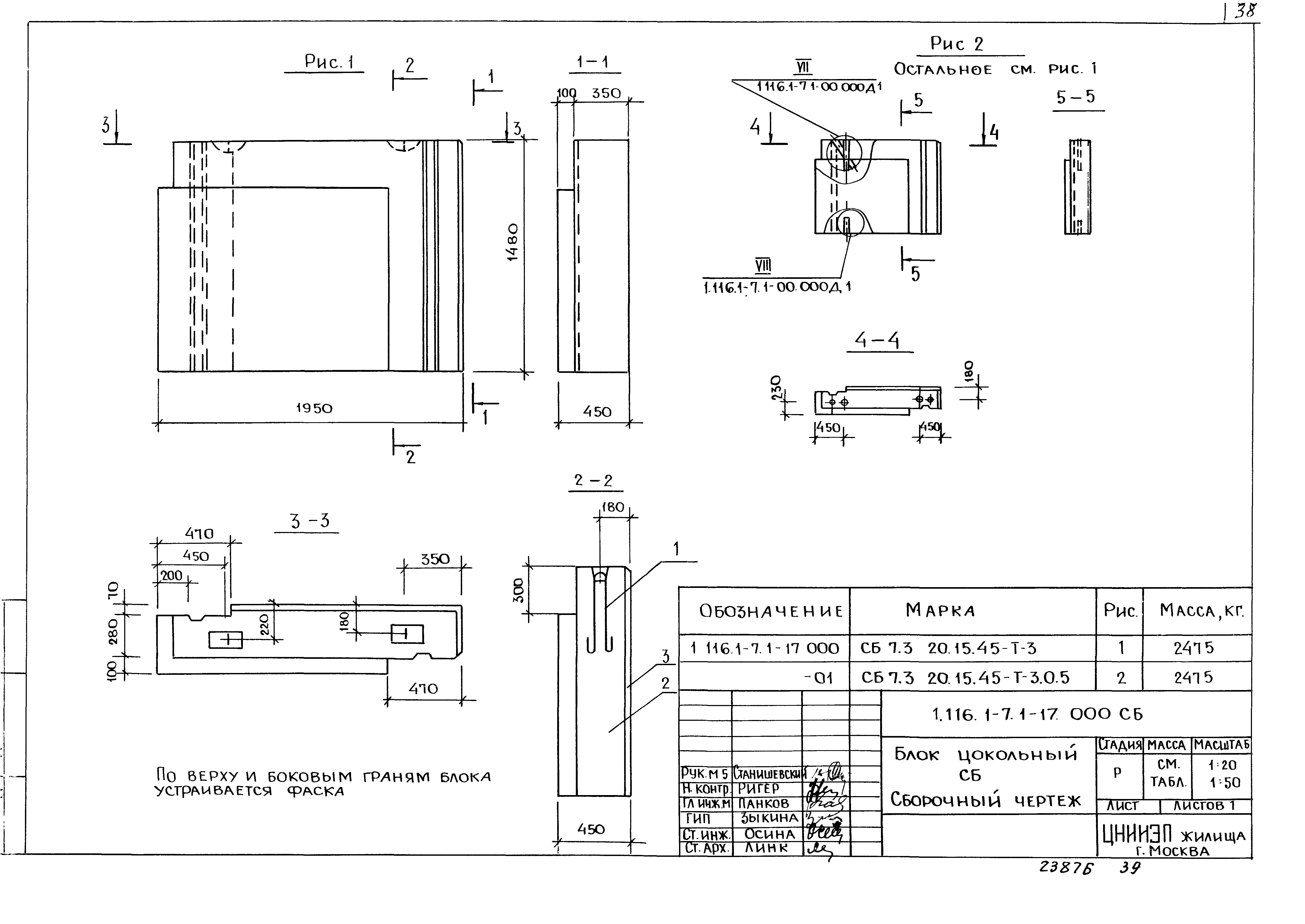
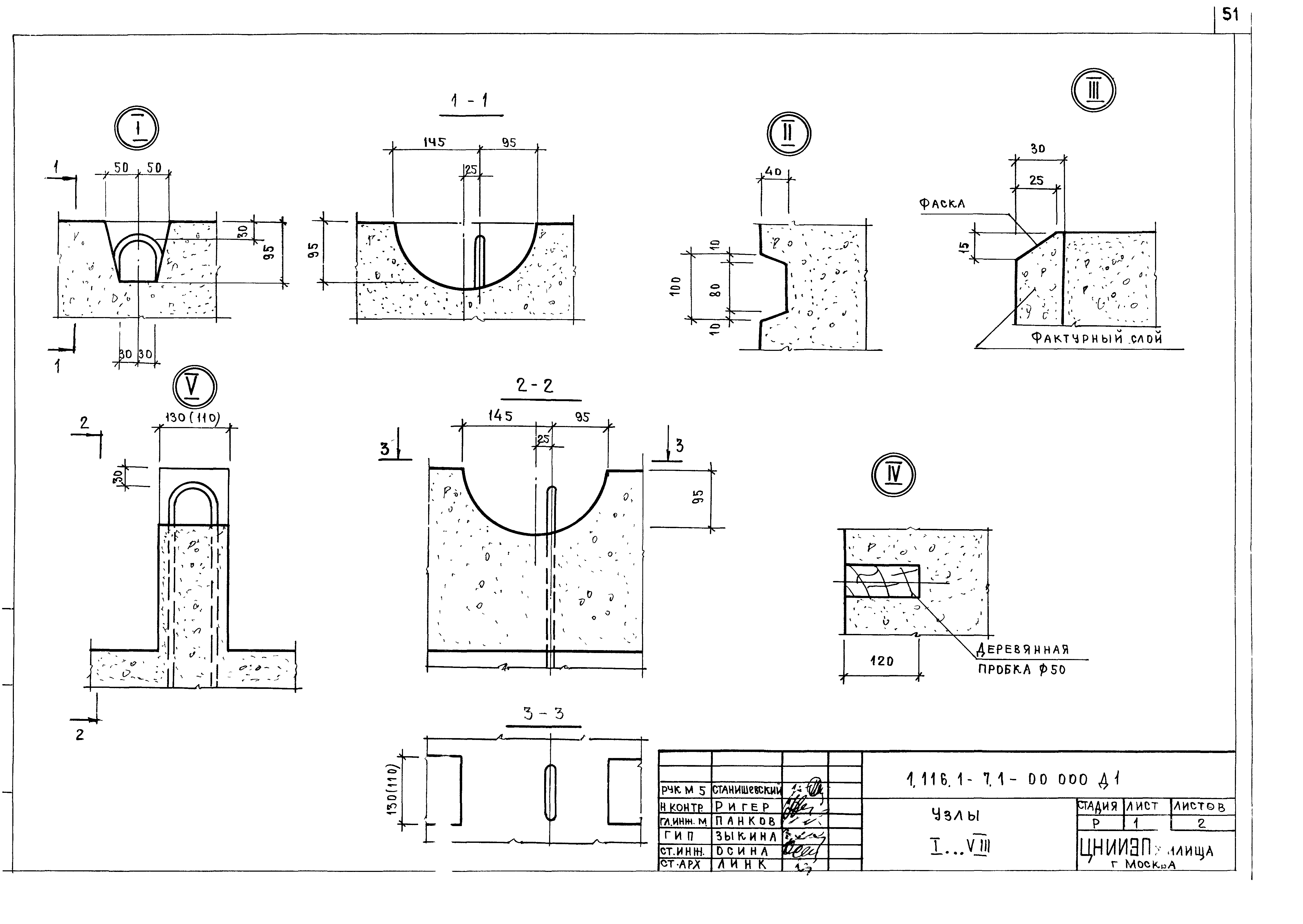
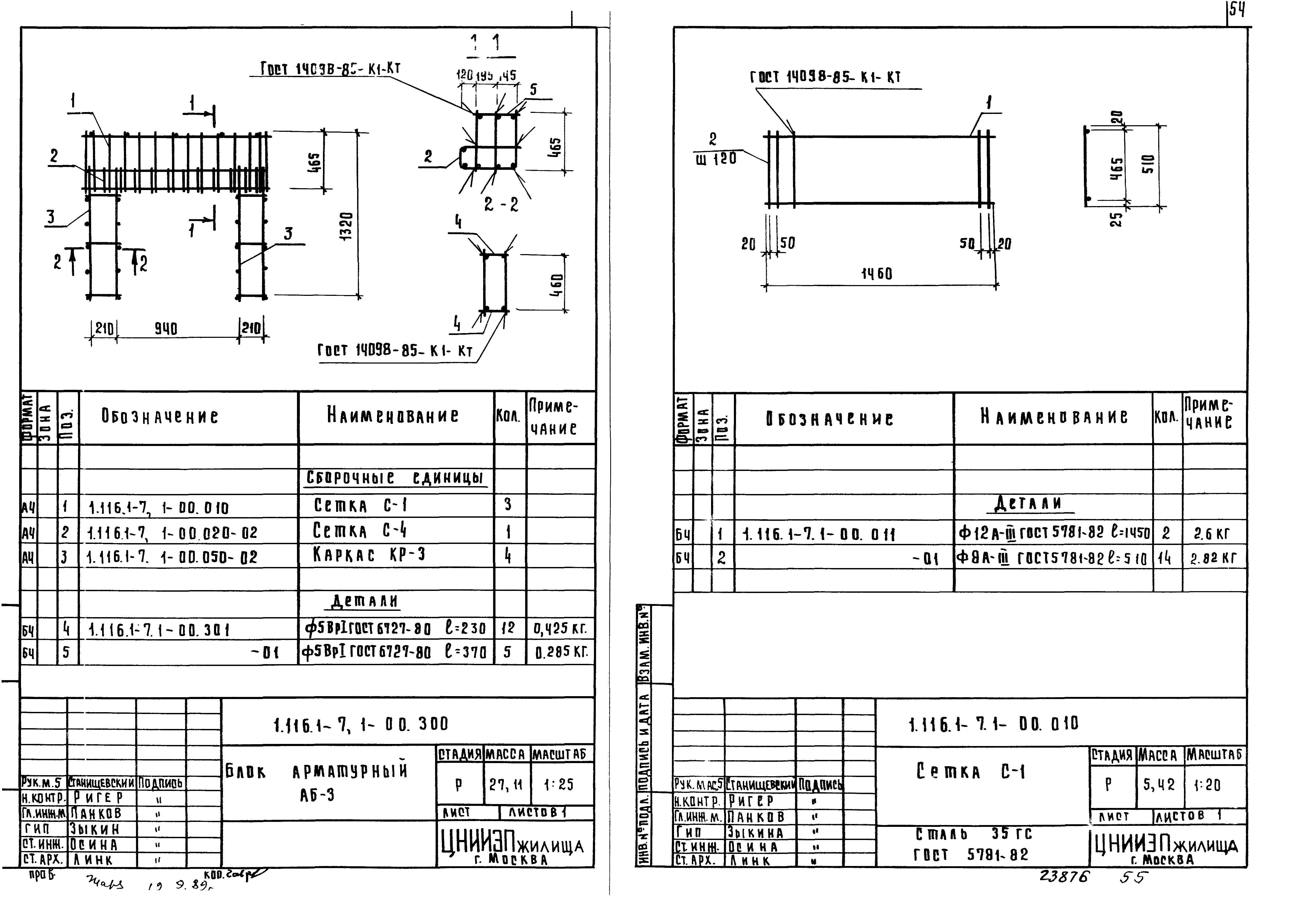
| Оглавление: | 1.116.1-7.1-00.000 Содержание 1.116.1-7.1-00.000 ТО Техническое описание 1.116.1-7.1-00.000 НИ Номенклатура 1.116.1-7.1-01.000 Блок цокольный СБ 1.116.1-7.1-02.000 Блок цокольный СБ 1.116.1-7.1-01.000 СБ Блок цокольный СБ. Сборочный чертеж 1.116.1-7.1-02.000 СБ Блок цокольный СБ. Сборочный чертеж 1.116.1-7.1-03.000 Блок цокольный СБ 1.116.1-7.1-04.000 Блок цокольный СБ 1.116.1-7.1-03.000 СБ Блок цокольный СБ. Сборочный чертеж 1.116.1-7.1-04.000 СБ Блок цокольный СБ. Сборочный чертеж 1.116.1-7.1-05.000 Блок цокольный СБ 1.116.1-7.1-05.000 СБ Блок цокольный СБ. Сборочный чертеж 1.116.1-7.1-06.000 Блок цокольный СБ 1.116.1-7.1-06.000 СБ Блок цокольный СБ. Сборочный чертеж 1.116.1-7.1-07.000 Блок цокольный СБ 1.116.1-7.1-07.000 СБ Блок цокольный СБ. Сборочный чертеж 1.116.1-7.1-08.000 Блок цокольный СБ 1.116.1-7.1-08.000 СБ Блок цокольный СБ. Сборочный чертеж 1.116.1-7.1-09.000 Блок цокольный СБ 1.116.1-7.1-09.000 СБ Блок цокольный СБ. Сборочный чертеж 1.116.1-7.1-10.000 Блок цокольный СБ 1.116.1-7.1-11.000 Блок цокольный СБ 1.116.1-7.1-10.000 СБ Блок цокольный СБ. Сборочный чертеж 1.116.1-7.1-11.000 СБ Блок цокольный СБ. Сборочный чертеж 1.116.1-7.1-12.000 Блок цокольный СБ 1.116.1-7.1-13.000 Блок цокольный СБ 1.116.1-7.1-12.000 СБ Блок цокольный СБ. Сборочный чертеж 1.116.1-7.1-13.000 СБ Блок цокольный СБ. Сборочный чертеж 1.116.1-7.1-14.000 Блок цокольный СБ 1.116.1-7.1-15.000 Блок цокольный СБ 1.116.1-7.1-14.000 СБ Блок цокольный СБ. Сборочный чертеж 1.116.1-7.1-15.000 СБ Блок цокольный СБ. Сборочный чертеж 1.116.1-7.1-16.000 Блок цокольный СБ 1.116.1-7.1-17.000 Блок цокольный СБ 1.116.1-7.1-16.000 СБ Блок цокольный СБ. Сборочный чертеж 1.116.1-7.1-17.000 СБ Блок цокольный СБ. Сборочный чертеж 1.116.1-7.1-18.000 Блок цокольный СБ 1.116.1-7.1-19.000 Блок цокольный СБ 1.116.1-7.1-18.000 СБ Блок цокольный СБ. Сборочный чертеж 1.116.1-7.1-19.000 СБ Блок цокольный СБ. Сборочный чертеж 1.116.1-7.1-20.000 Блок цокольный СБ 1.116.1-7.1-21.000 Блок цокольный СБ 1.116.1-7.1-20.000 СБ Блок цокольный СБ. Сборочный чертеж 1.116.1-7.1-21.000 СБ Блок цокольный СБ. Сборочный чертеж 1.116.1-7.1-22.000 Блок цокольный СБ 1.116.1-7.1-23.000 Блок цокольный СБ 1.116.1-7.1-22.000 СБ Блок цокольный СБ. Сборочный чертеж 1.116.1-7.1-23.000 СБ Блок цокольный СБ. Сборочный чертеж 1.116.1-7.1-24.000 Блок цокольный СБ 1.116.1-7.1-25.000 Блок цокольный СБ 1.116.1-7.1-24.000 СБ Блок цокольный СБ. Сборочный чертеж 1.116.1-7.1-25.000 СБ Блок цокольный СБ. Сборочный чертеж 1.116.1-7.1-00.000 ДI Узлы I… VIII 1.116.1-7.1-00.100 Блок арматурный АБ-1 1.116.1-7.1-00.200 Блок арматурный АБ-2 1.116.1-7.1-00.300 Блок арматурный АБ-3 1.116.1-7.1-00.010 Сетка С-1 1.116.1-7.1-00.020 Сетка С-1, С-2, С-4 1.116.1-7.1-00.020 СБ Сетка С-1. Сборочный чертеж 1.116.1-7.1-00.030 Сетка С-5 1.116.1-7.1-00.040 Сетка С-6 1.116.1-7.1-00.050 Каркас КР-1, КР-2, КР-3 1.116.1-7.1-00.050 СБ Каркас КР-1, КР-2, КР-3. Сборочный чертеж 1.116.1-7.1-00.060 Сетка С-7 1.116.1-7.1-00.070 Петля строповочная П-1, П-2, П-3, П-4, П-5 1.116.1-7.1-00.000 РС Ведомость расхода стали 1.116.1-7.1-00.000 ТУ Технические условия |
| Разработан: | ЦНИИЭП жилища |
| Утверждён: | 19.06.1989 Госкомархитектура (113) |
| Издан: | ЦИТП Госстроя СССР (CITP, Gosstroy (USSR) 1989 г. ) |
| Нормативные ссылки: |
|



































































