Скачать Серия 2.110-1 Выпуск 3. Ленточные фундаменты крупнопанельных зданийДата актуализации: 01.01.2021
|
| Обозначение: | Серия 2.110-1 |
| Обозначение англ: | Series 2.110-1 |
| Статус: | действует |
| Название рус.: | Выпуск 3. Ленточные фундаменты крупнопанельных зданий |
| Дата добавления в базу: | 01.09.2013 |
| Дата актуализации: | 01.01.2021 |
| Дата введения: | 01.08.1971 |
| Область применения: | В данном альбоме приведены конструктивные решения сборных ленточных фундаментов крупнопанельных жилых зданий, предназначенных для строительства в обычных условиях |
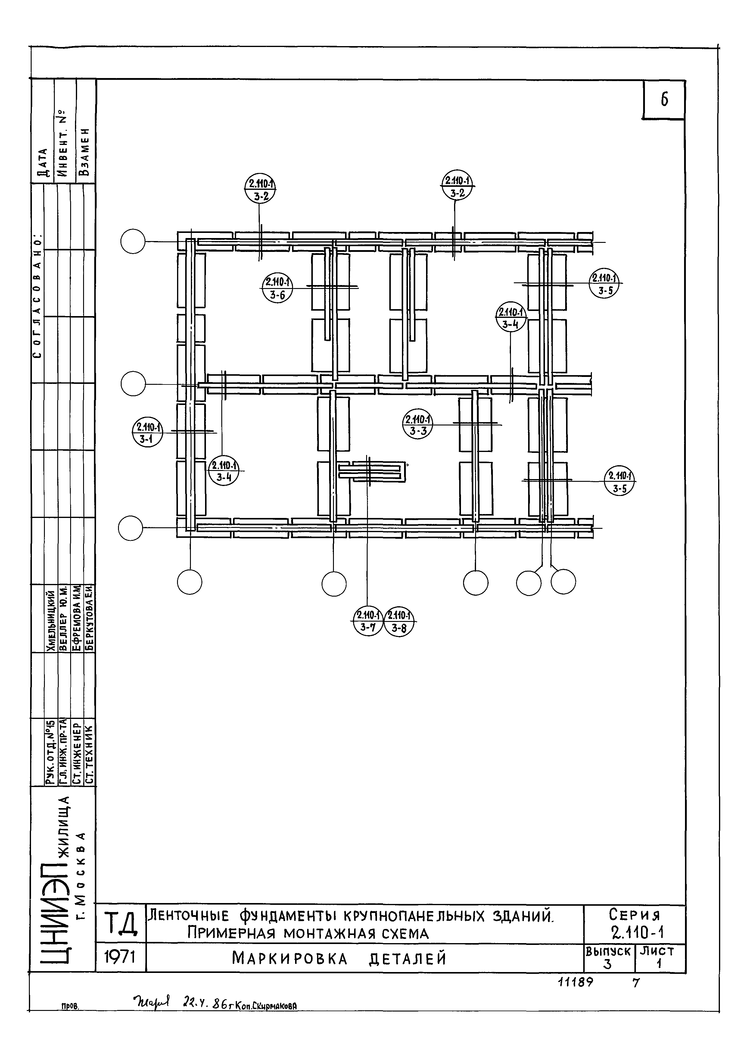
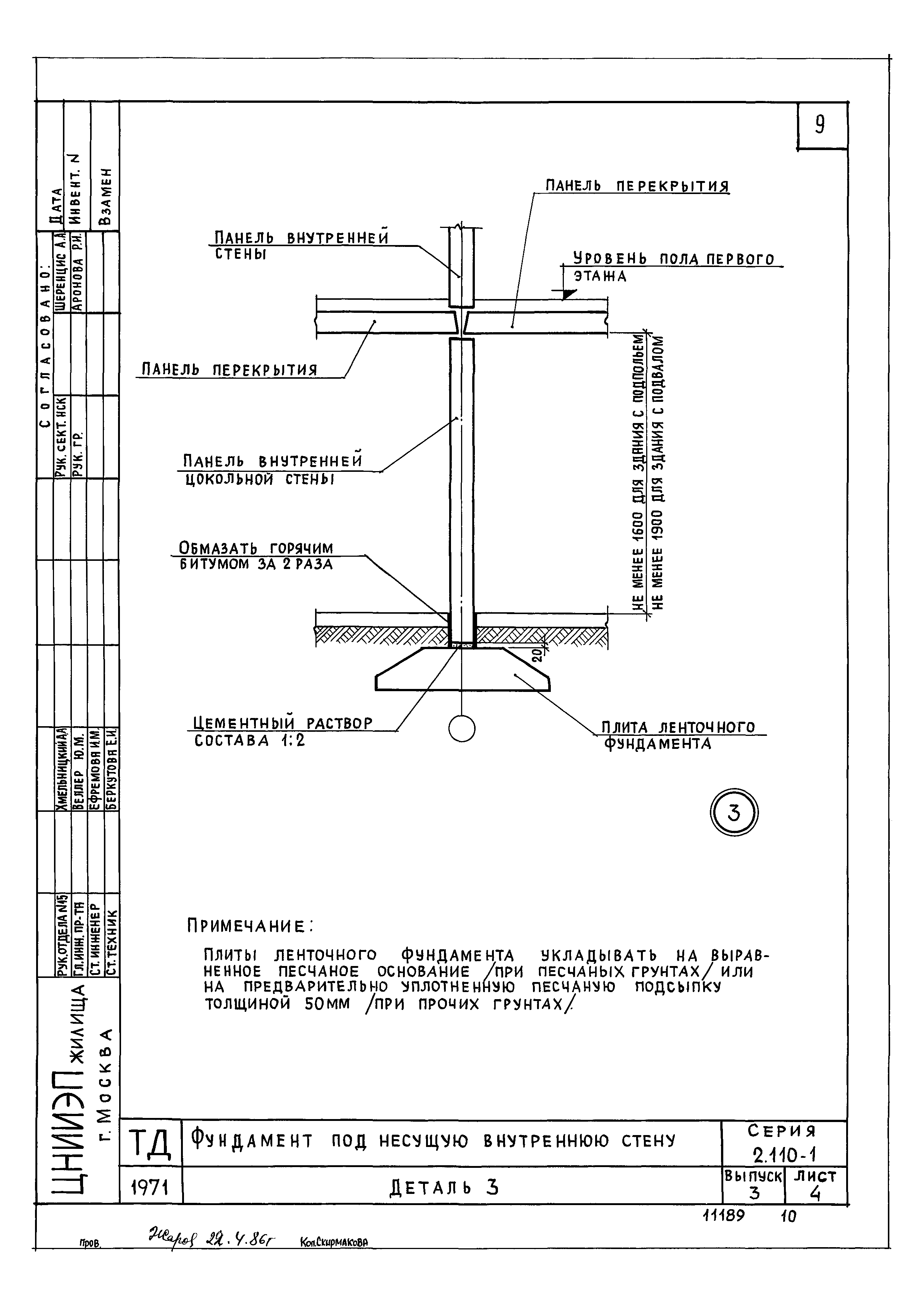
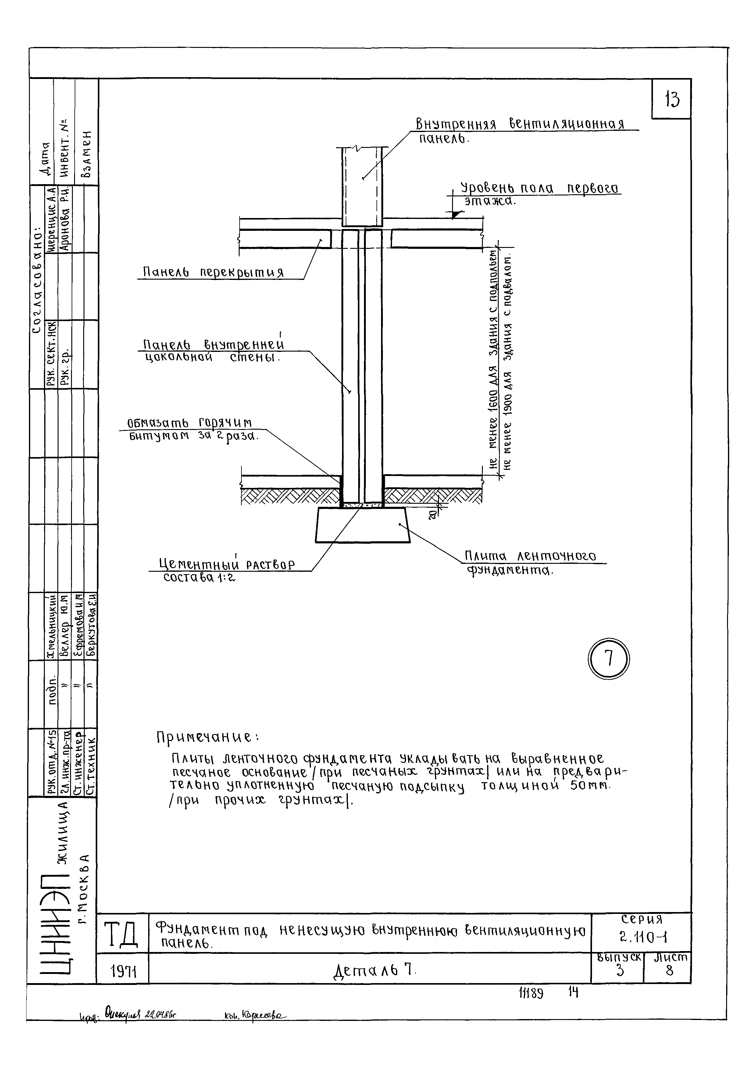
| Оглавление: | Пояснительная записка Примерная монтажная схема ленточных фундаментов крупнопанельных зданий. Маркировка деталей Фундамент под несущую наружную стену. Деталь 1 Фундамент под несущую наружную стену. Деталь 2 Фундамент под несущую внутреннюю стену. Деталь 3 Фундамент под несущую внутреннюю стену. Деталь 4 Фундамент под внутреннюю стену (температурный шов). Деталь 5 Фундамент под несущую внутреннюю вентиляционную панель. Деталь 6 Фундамент под несущую внутреннюю вентиляционную панель. Деталь 7 Фундамент под несущие спаренные внутренние вентиляционные панели. Деталь 8 |
| Разработан: | ЦНИИЭП жилища |
| Утверждён: | 19.05.1971 Госкомитет по гражданскому строительству и архитектуре при Госстрое СССР (National Committee on Nonindustrial Construction and Architecture, USSR Gosstroy 89) |
| Нормативные ссылки: |
|














