Скачать Серия 1.232.1-8 Выпуск 1-1. Панели однослойные самонесущие для зданий с высотой этажа 3,3 м. Рабочие чертежиДата актуализации: 01.01.2021
|
| Обозначение: | Серия 1.232.1-8 |
| Обозначение англ: | Series 1.232.1-8 |
| Статус: | действует |
| Название рус.: | Выпуск 1-1. Панели однослойные самонесущие для зданий с высотой этажа 3,3 м. Рабочие чертежи |
| Дата добавления в базу: | 01.09.2013 |
| Дата актуализации: | 01.01.2021 |
| Дата введения: | 01.07.1987 |
| Область применения: | Выпуск 1-1 содержит рабочие чертежи панелей наружных стен однорядной разрезки толщиной 350 и 400 мм для зданий с высотой этажа 3,3 м |
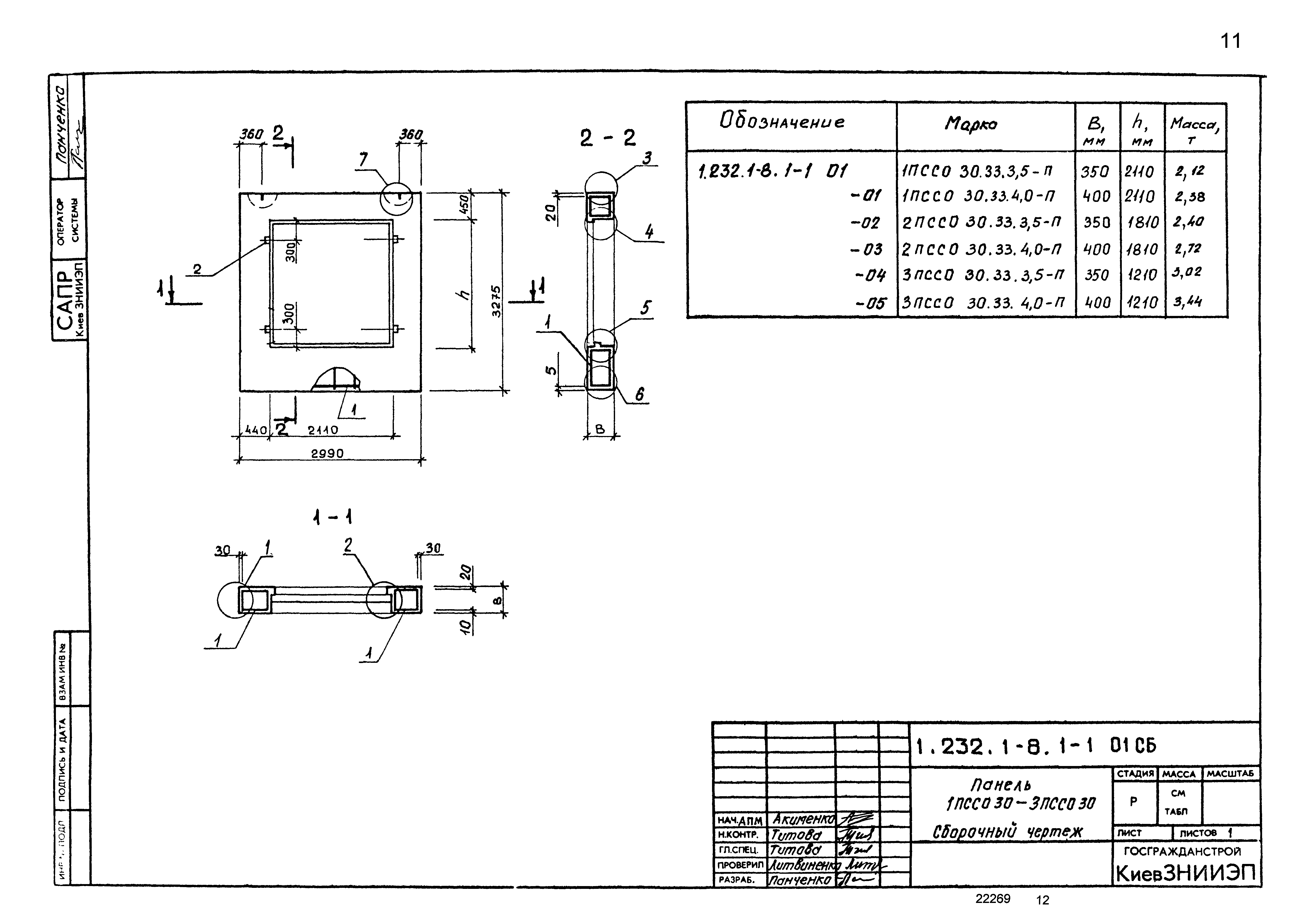
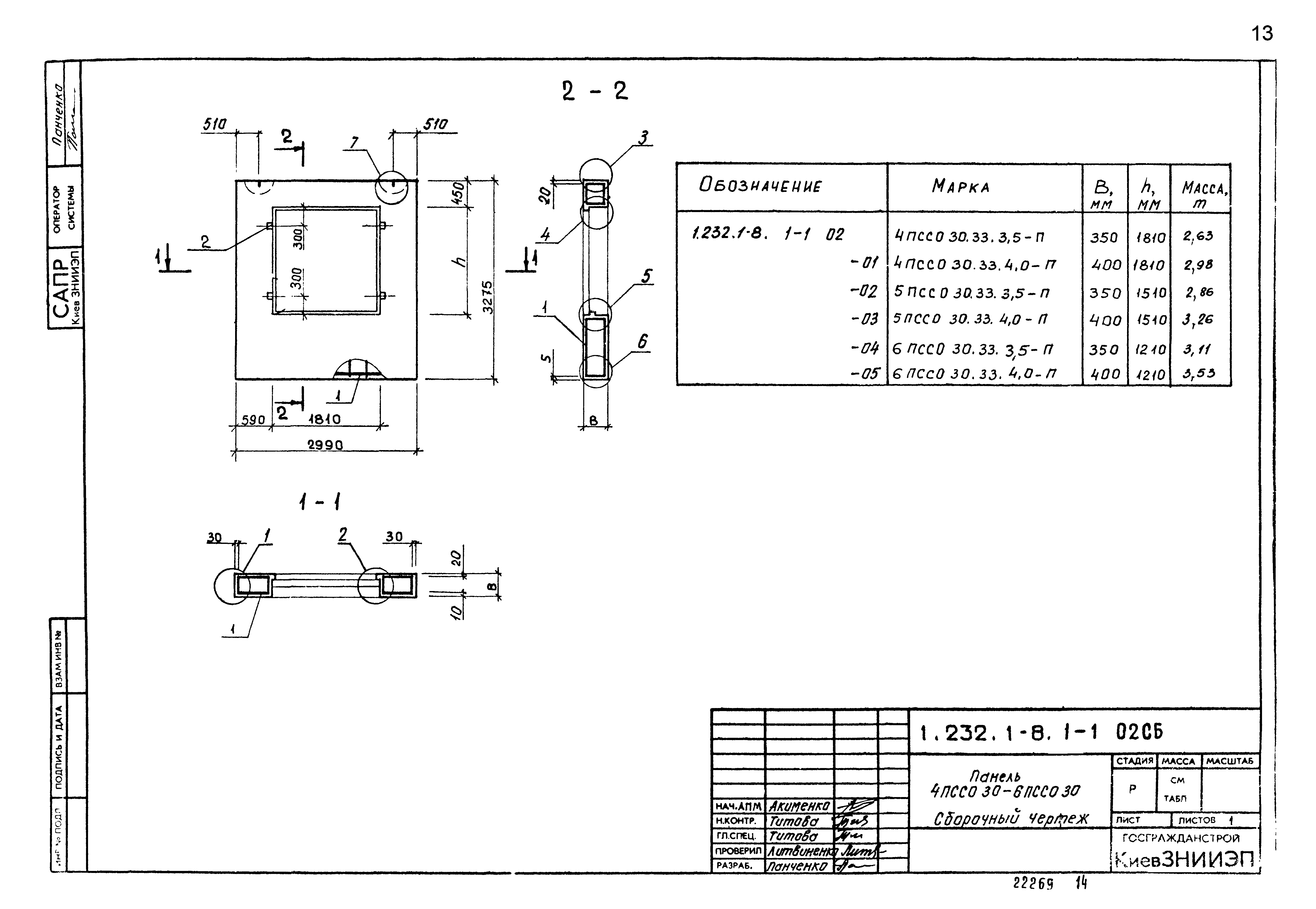
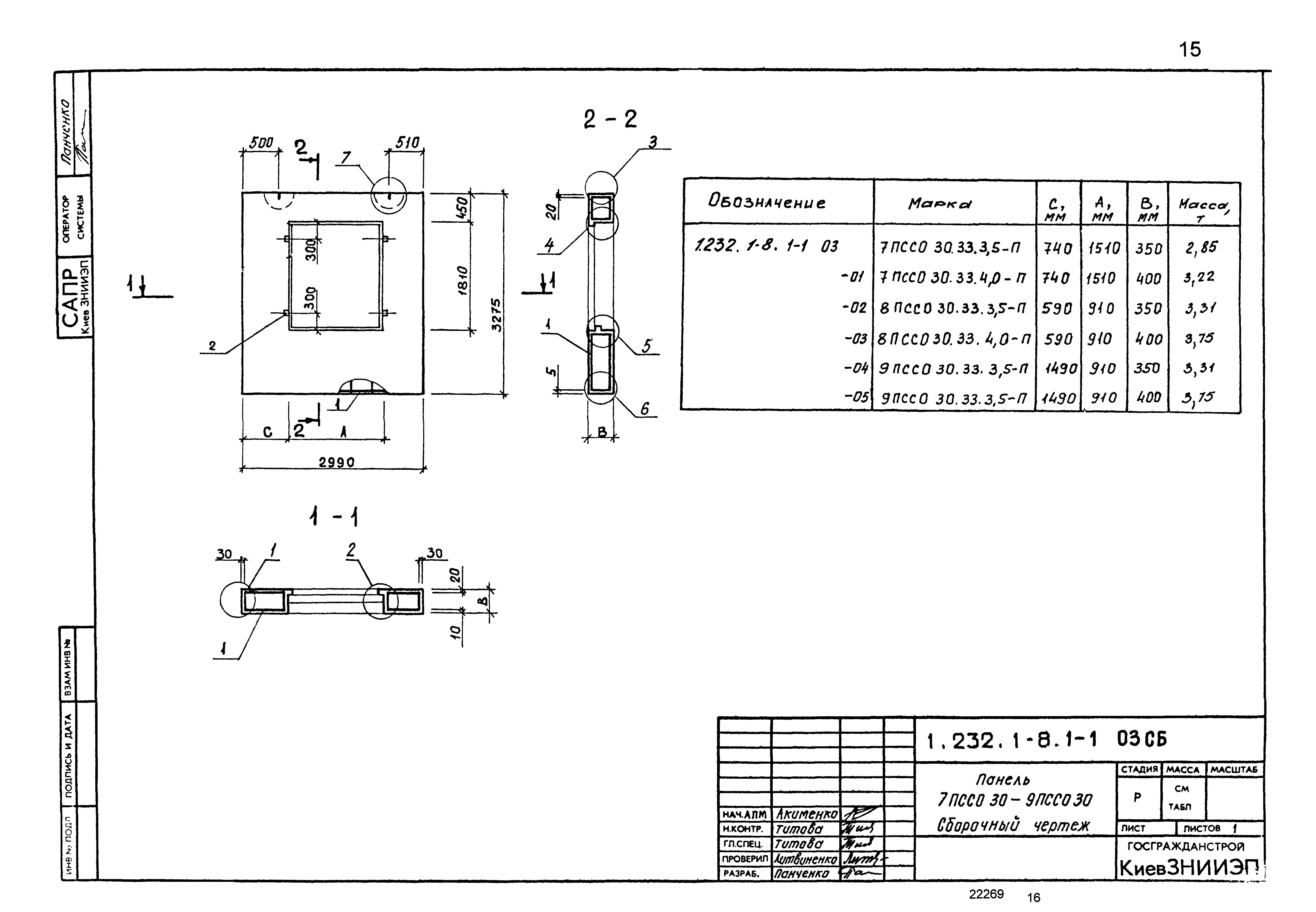
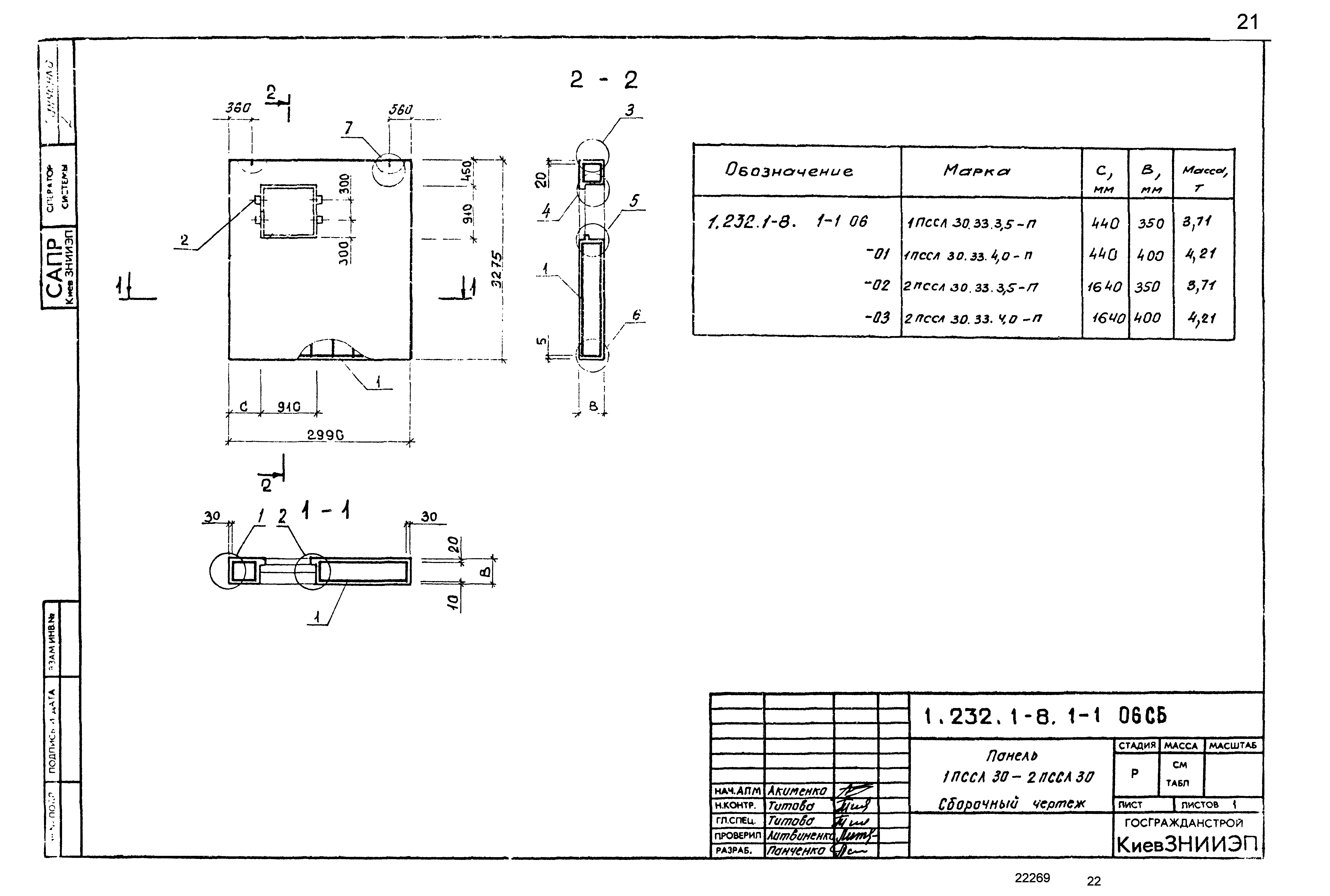
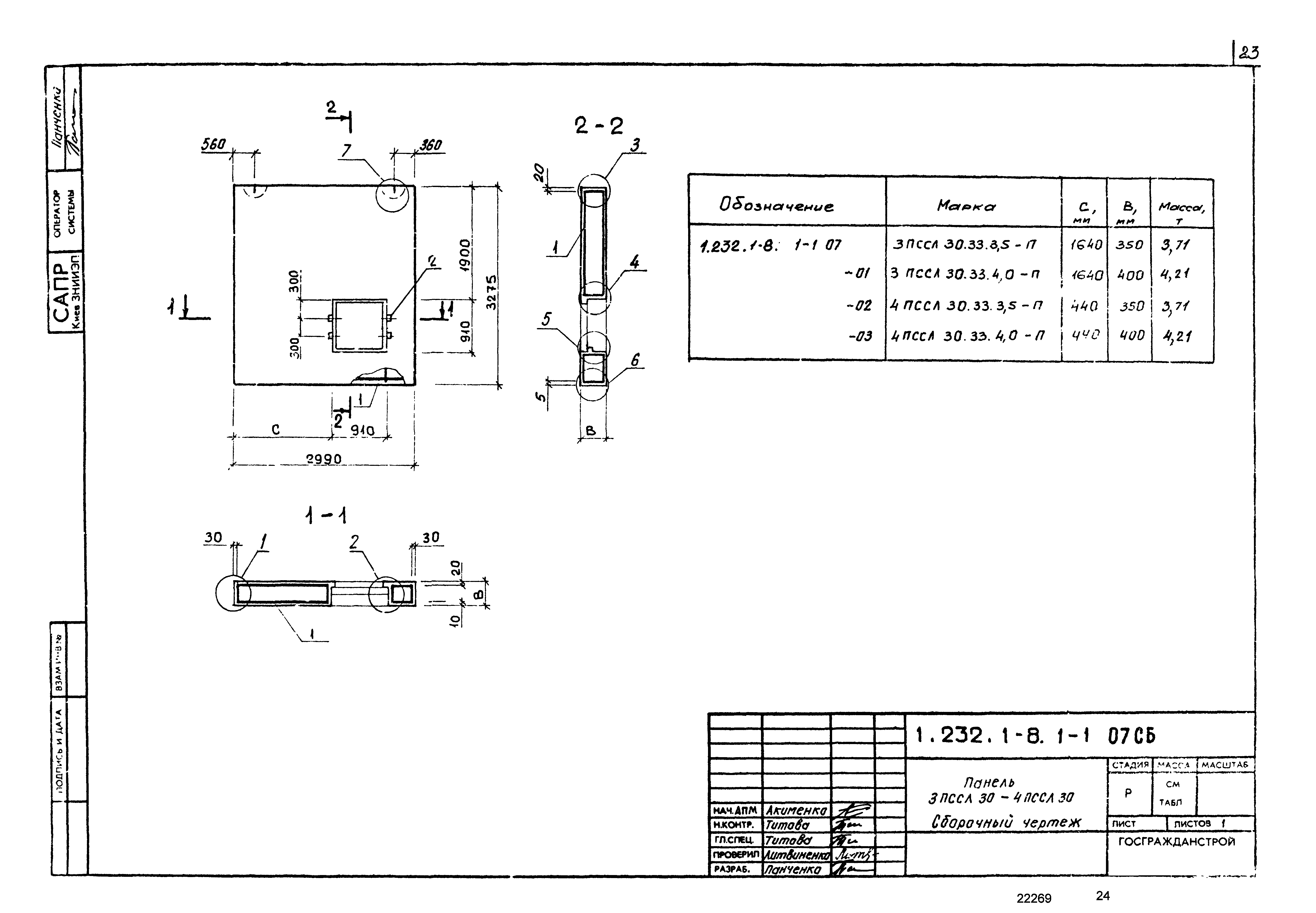
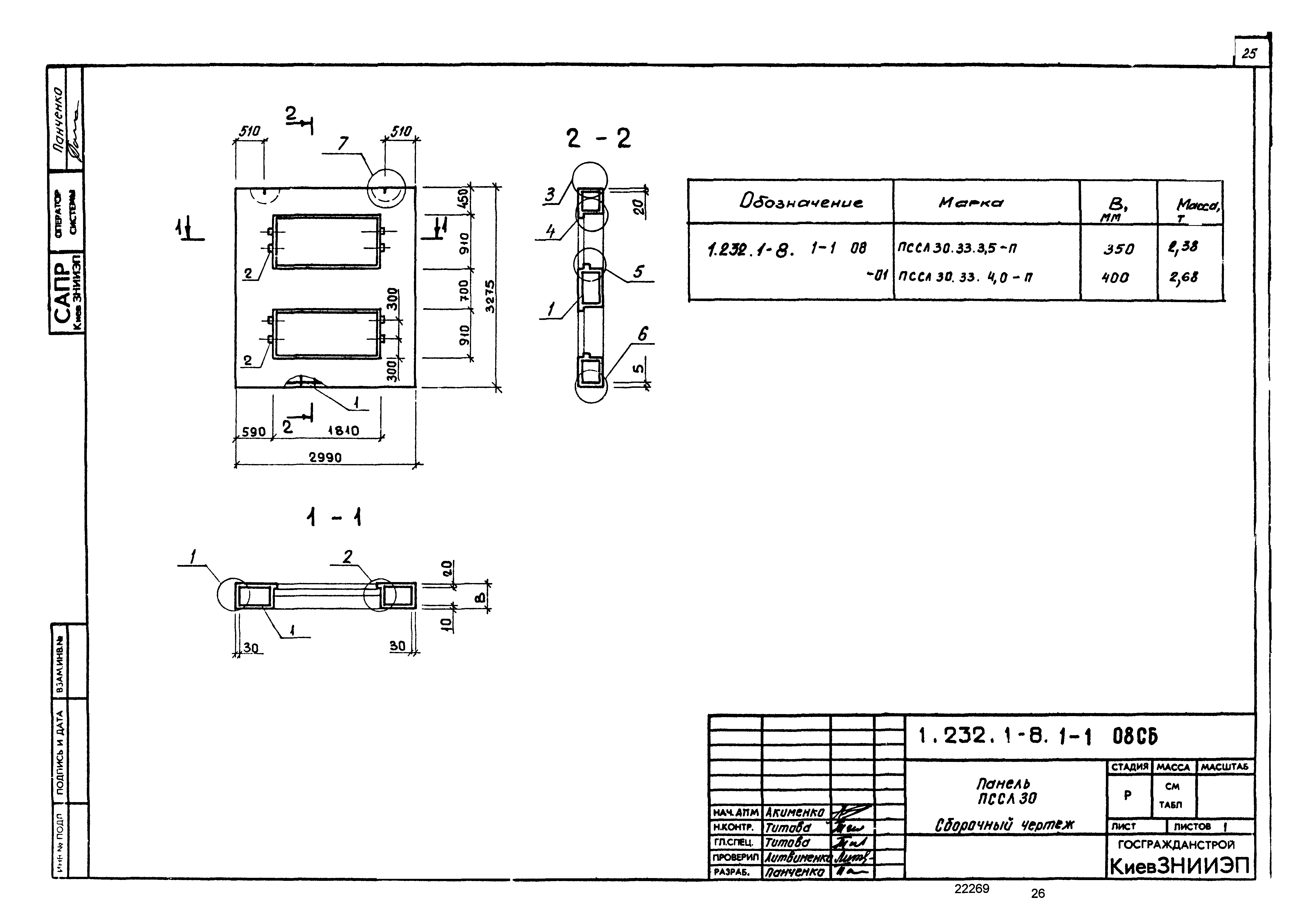
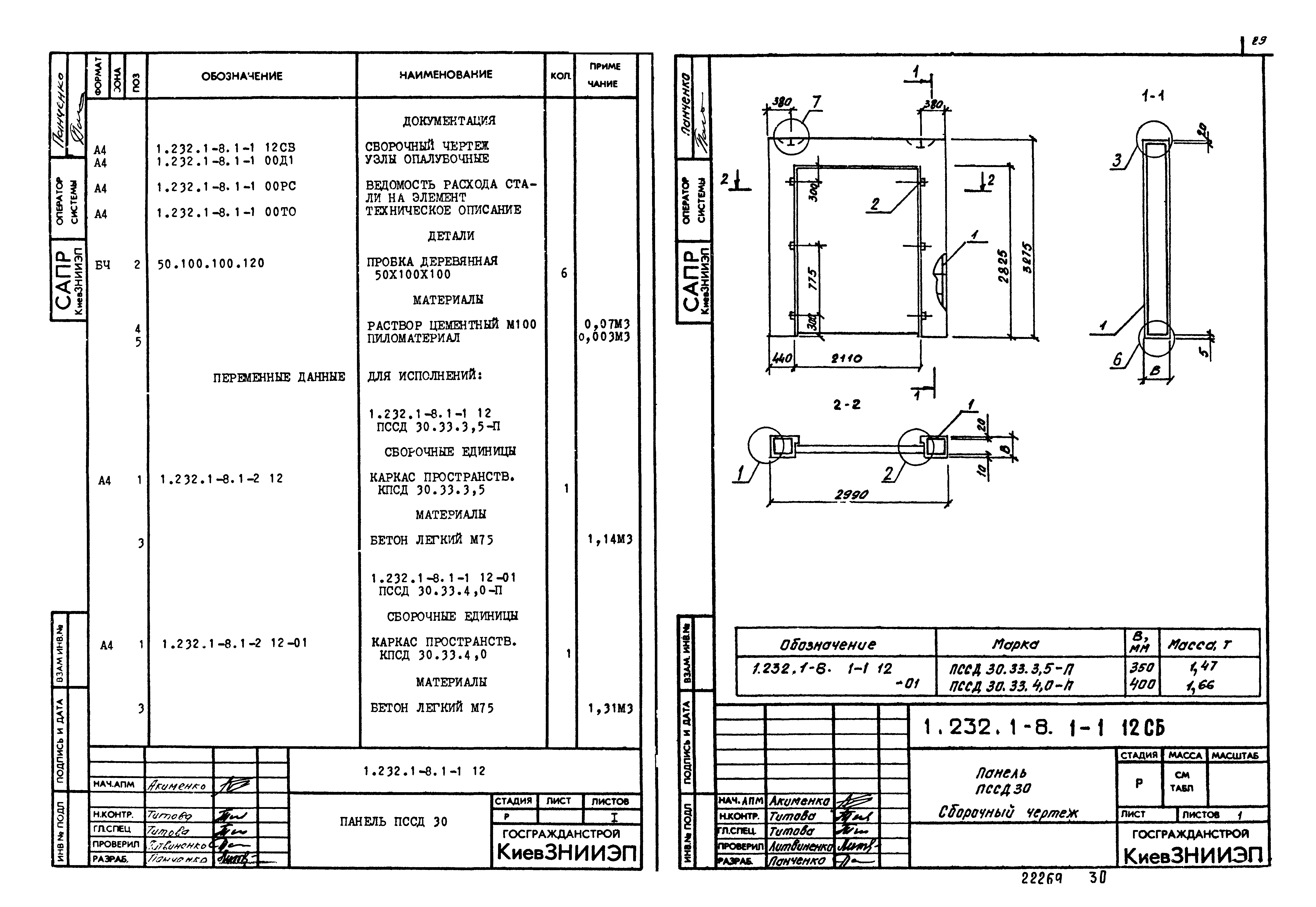
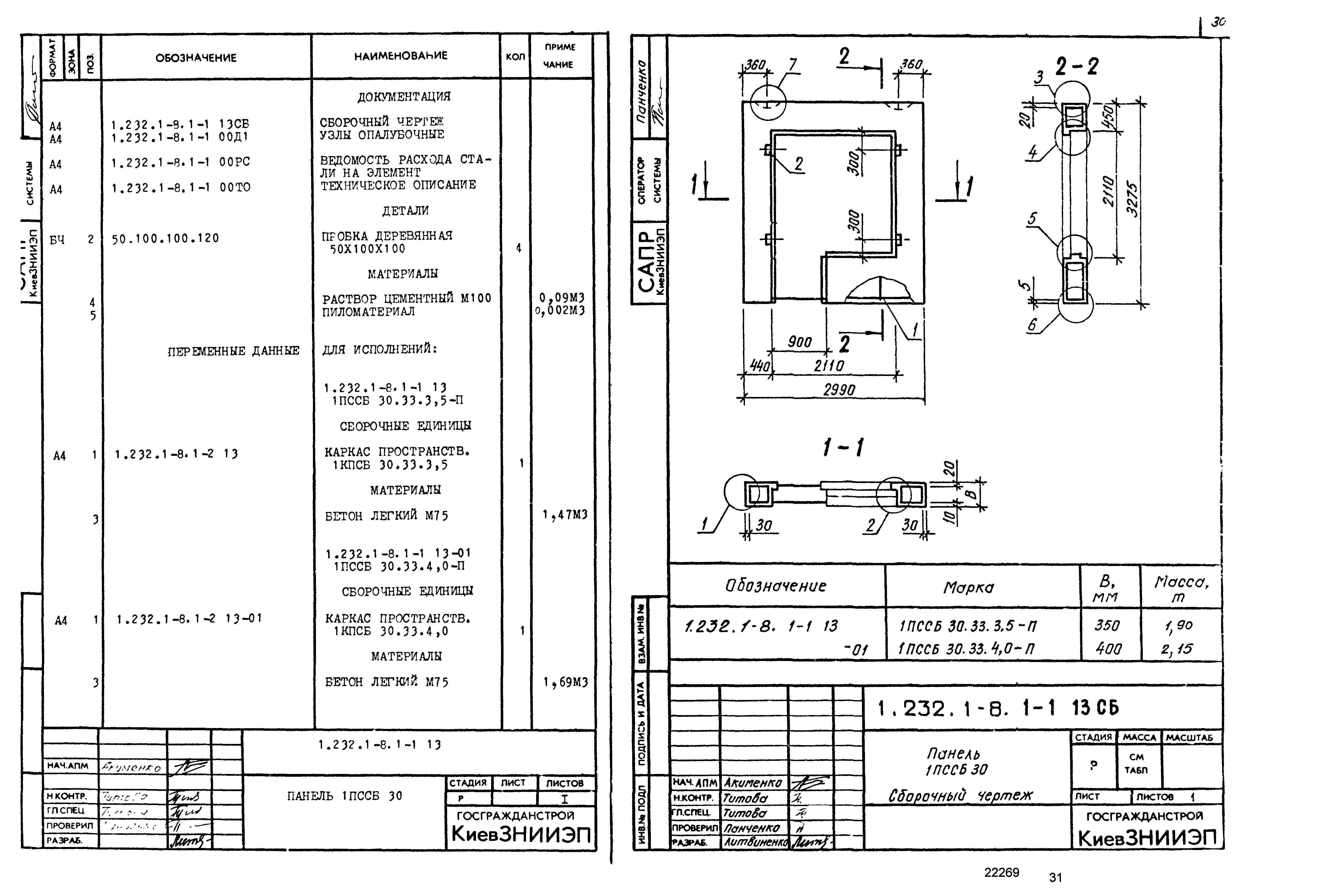
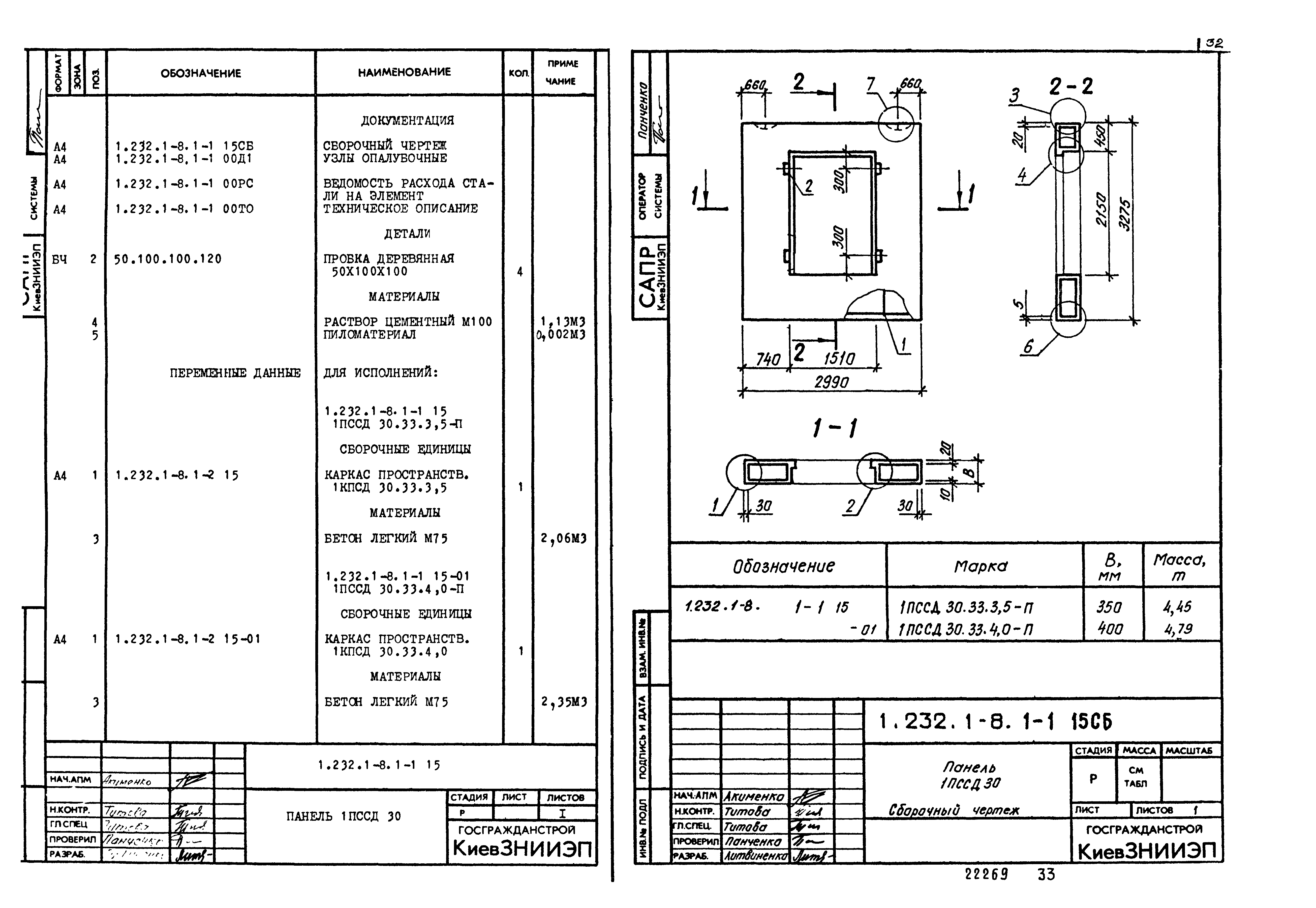
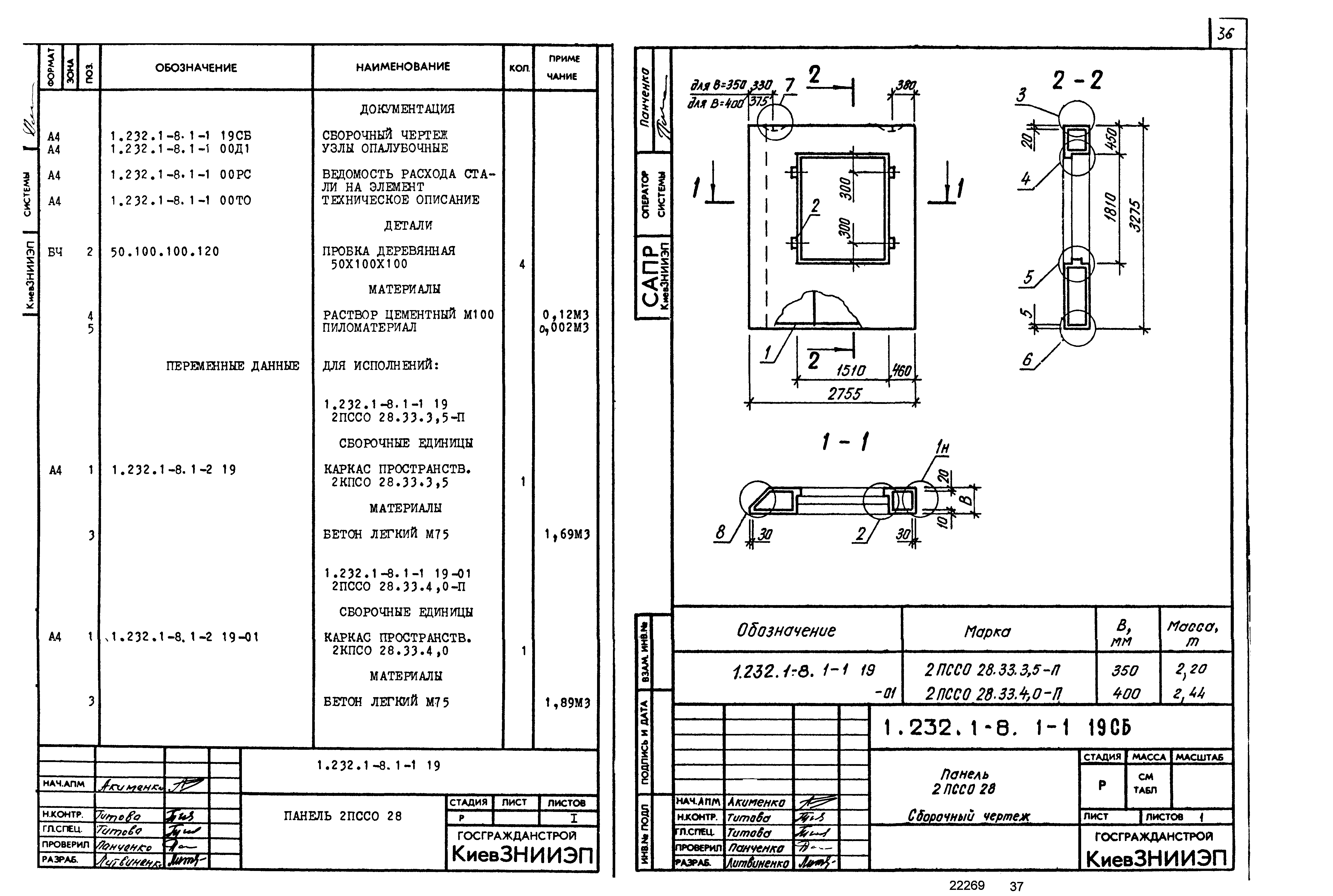
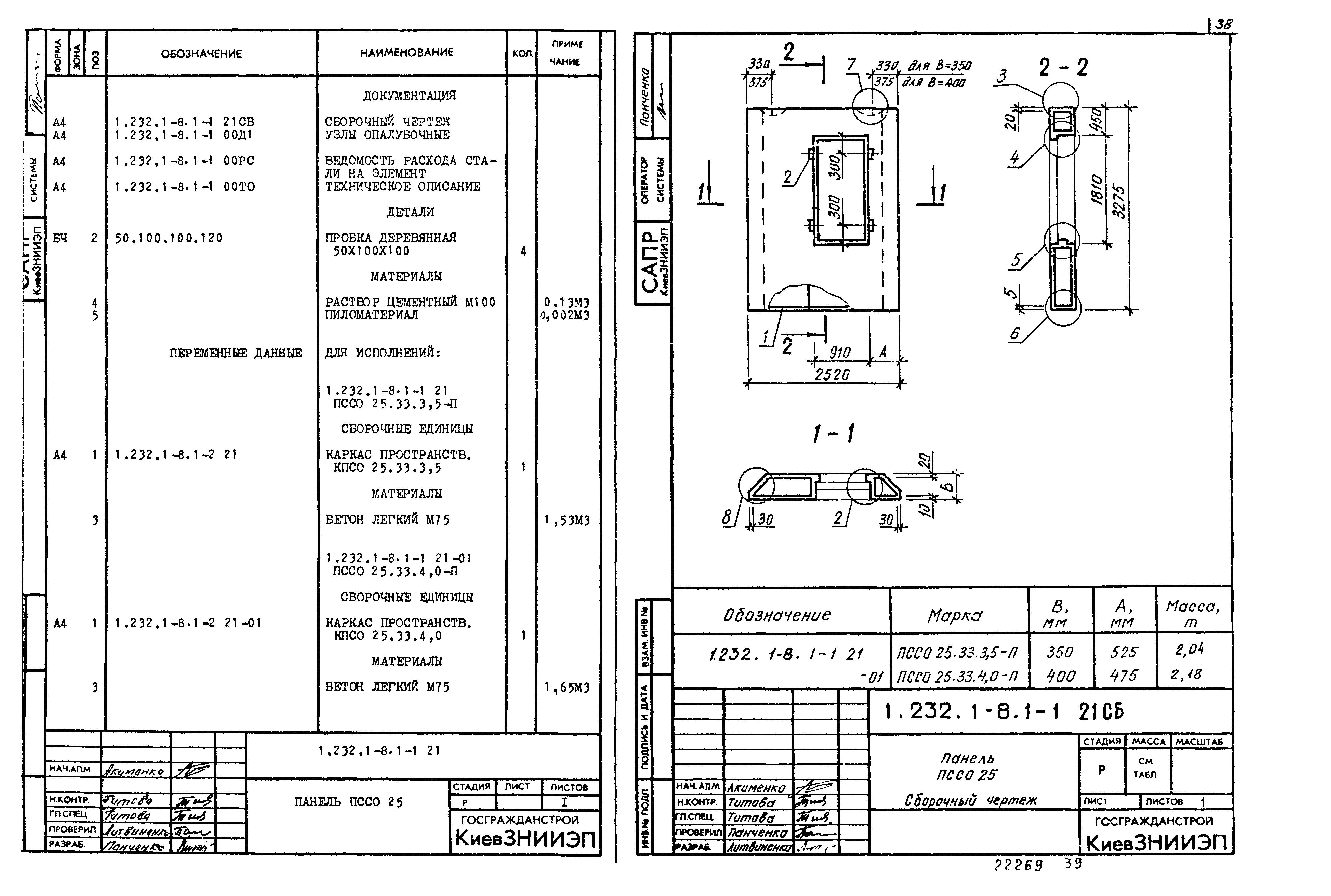
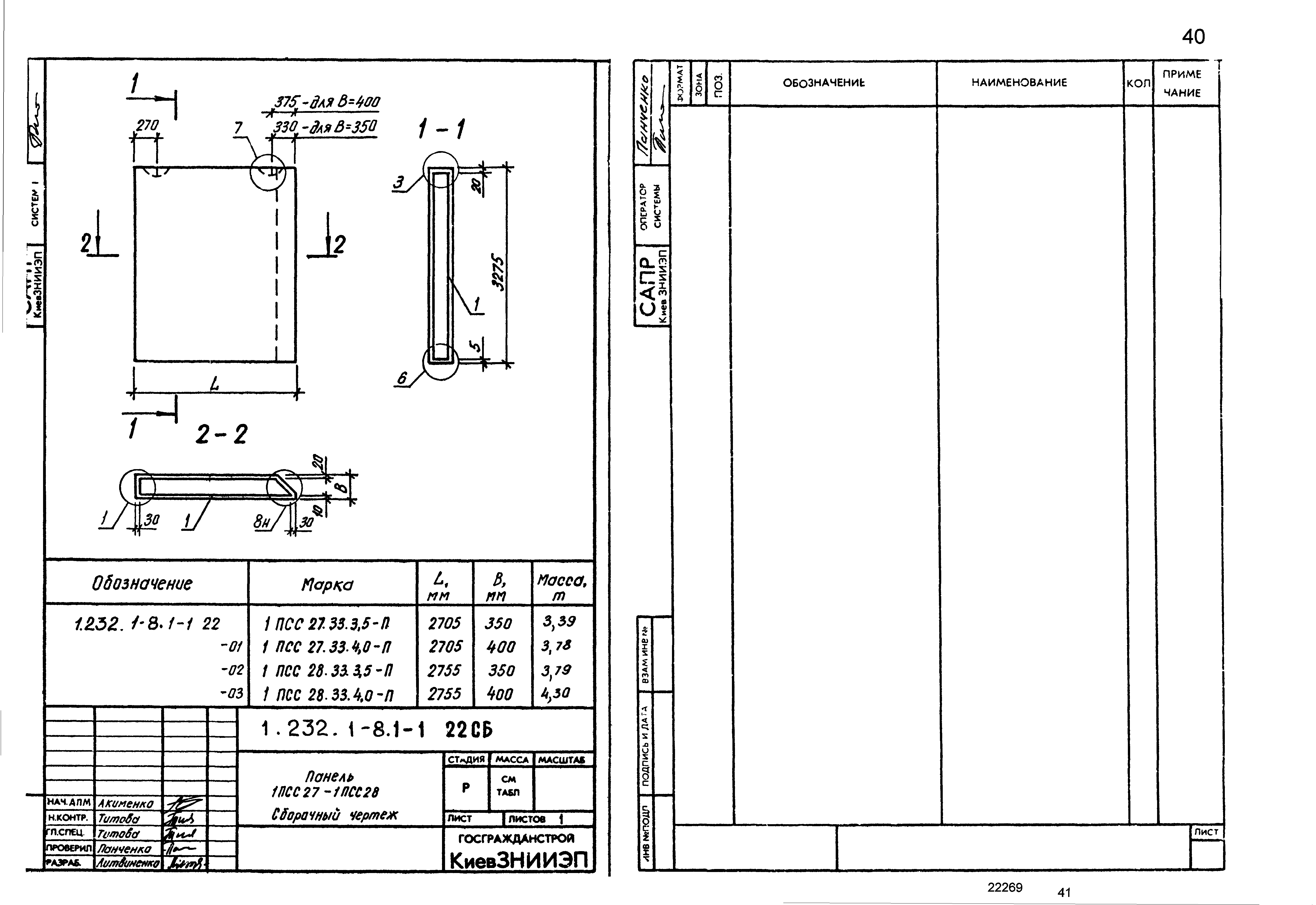
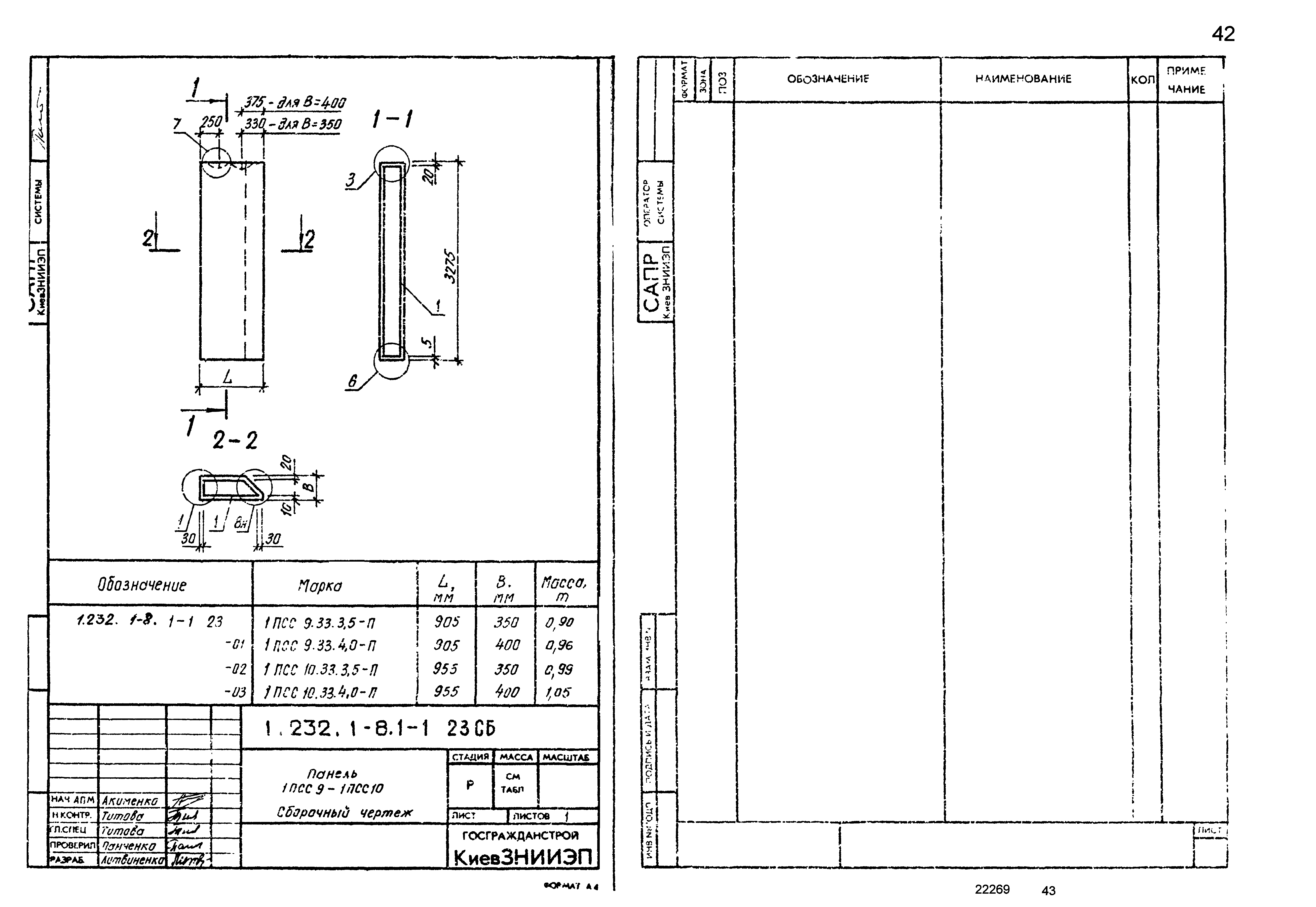
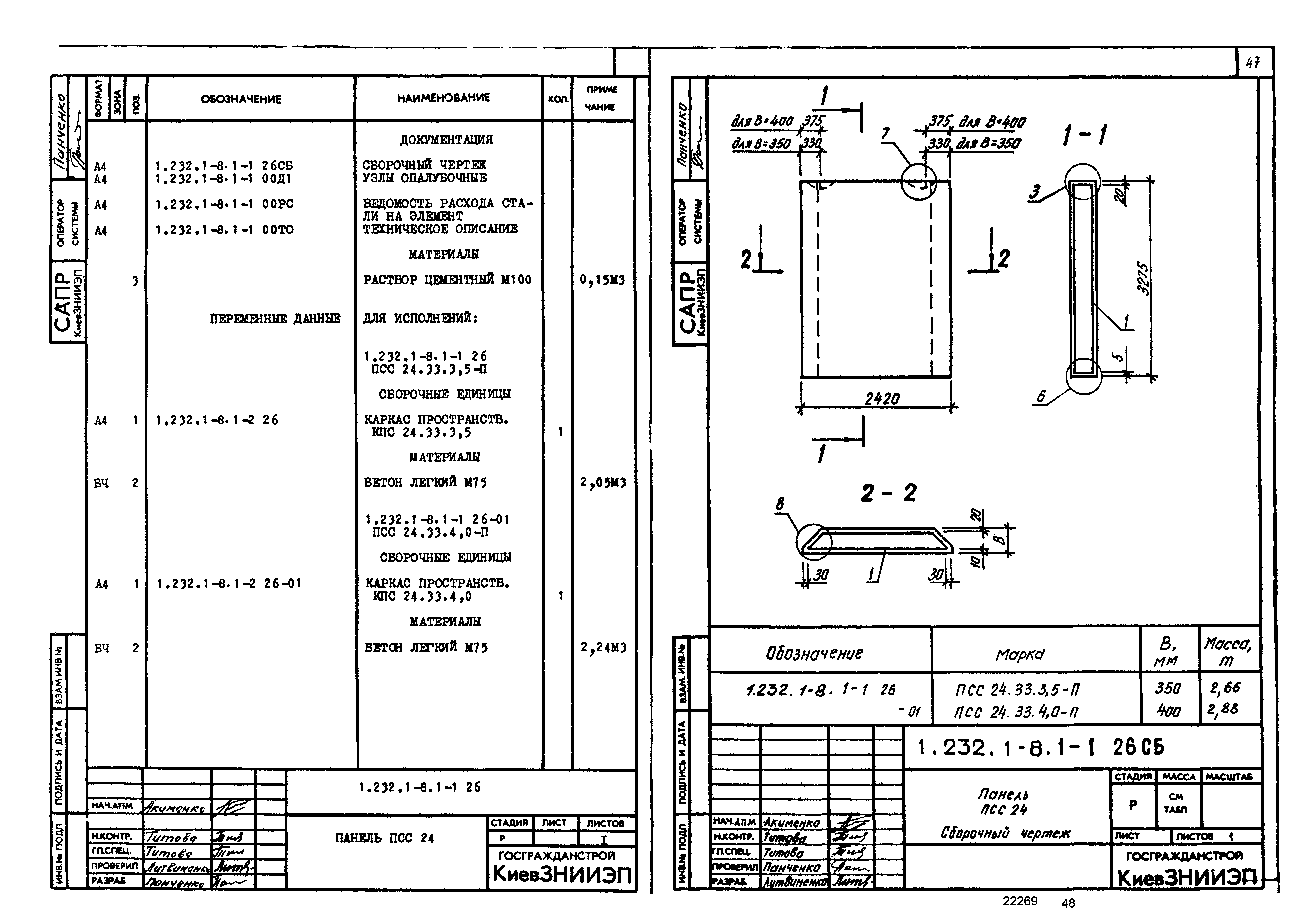
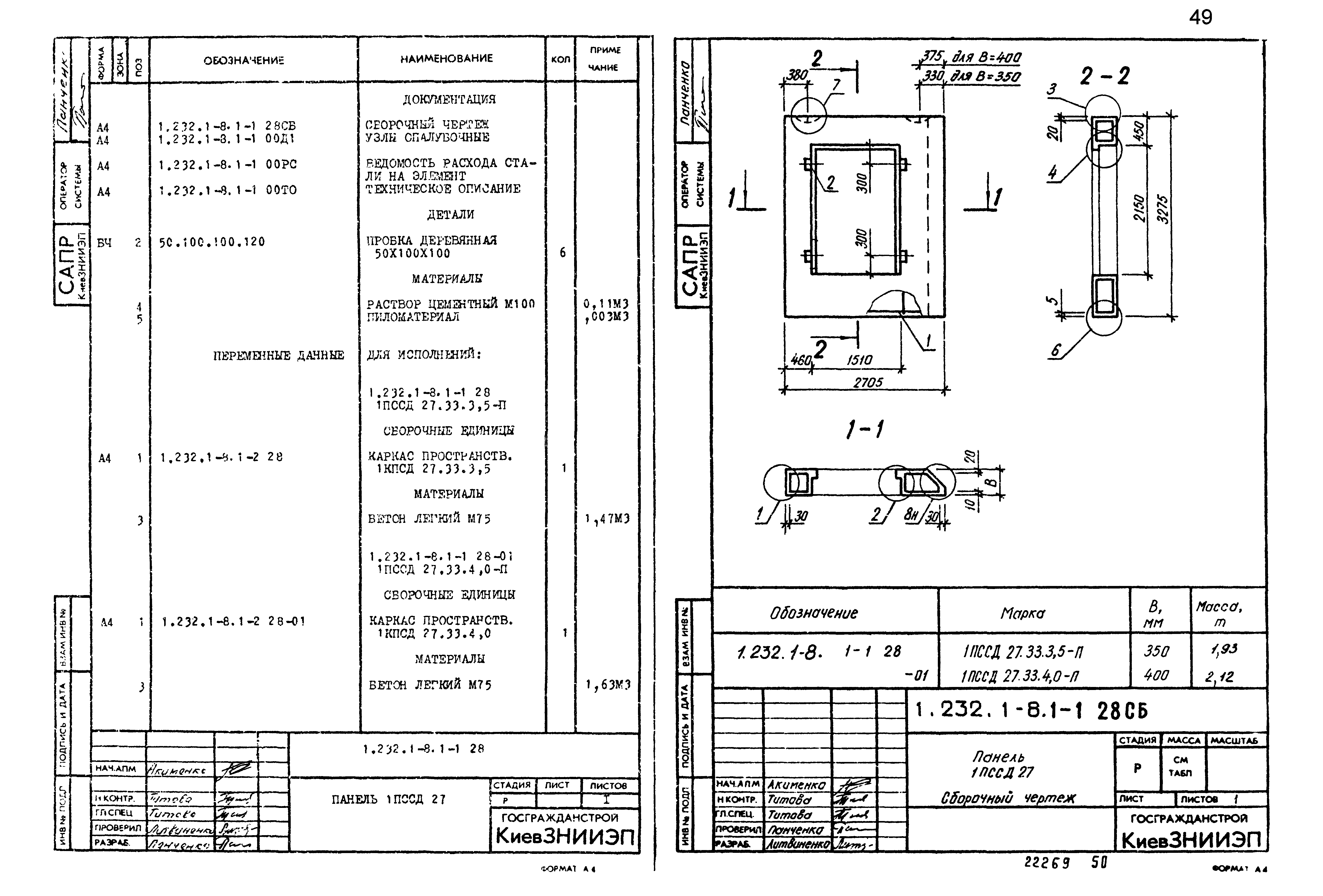
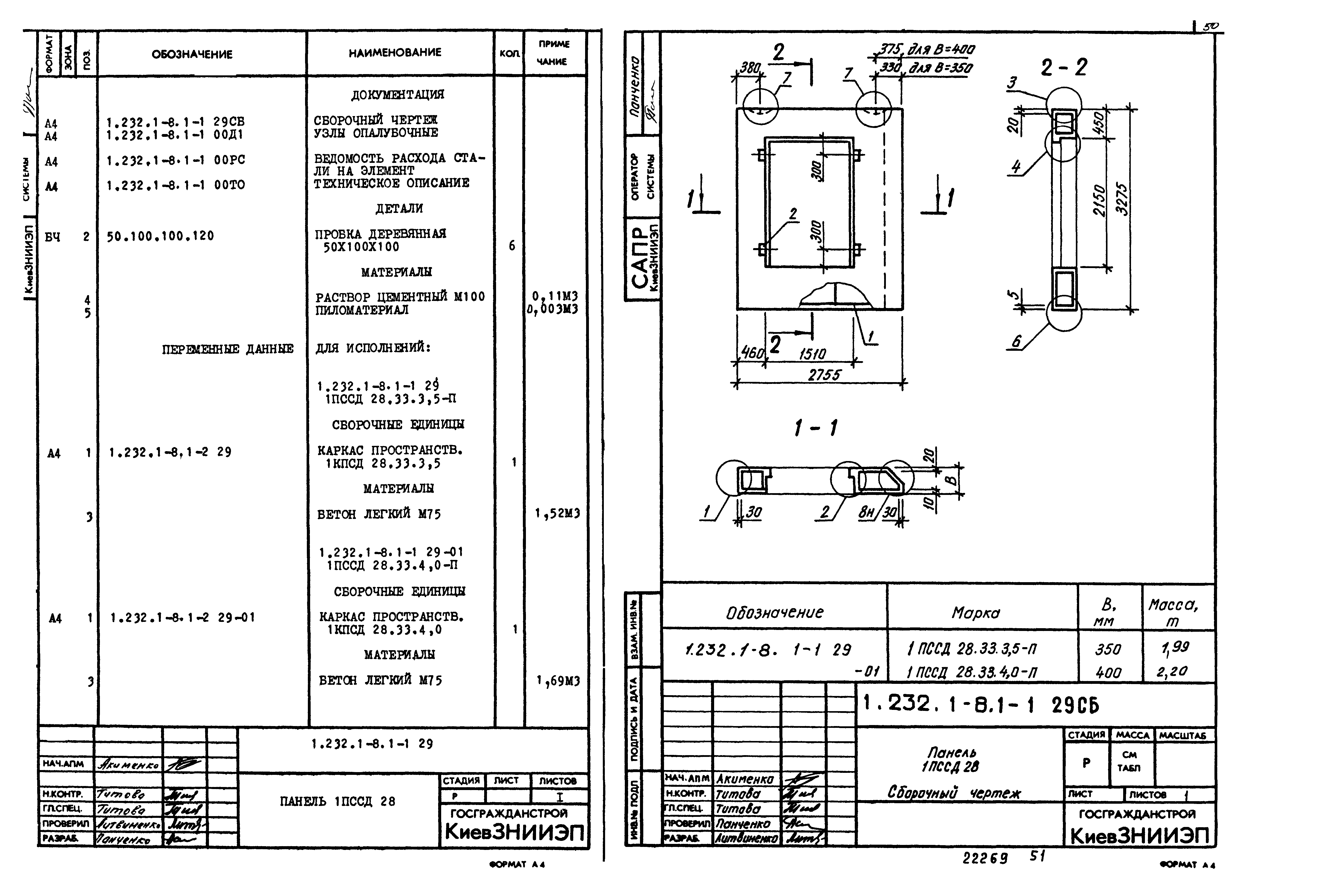
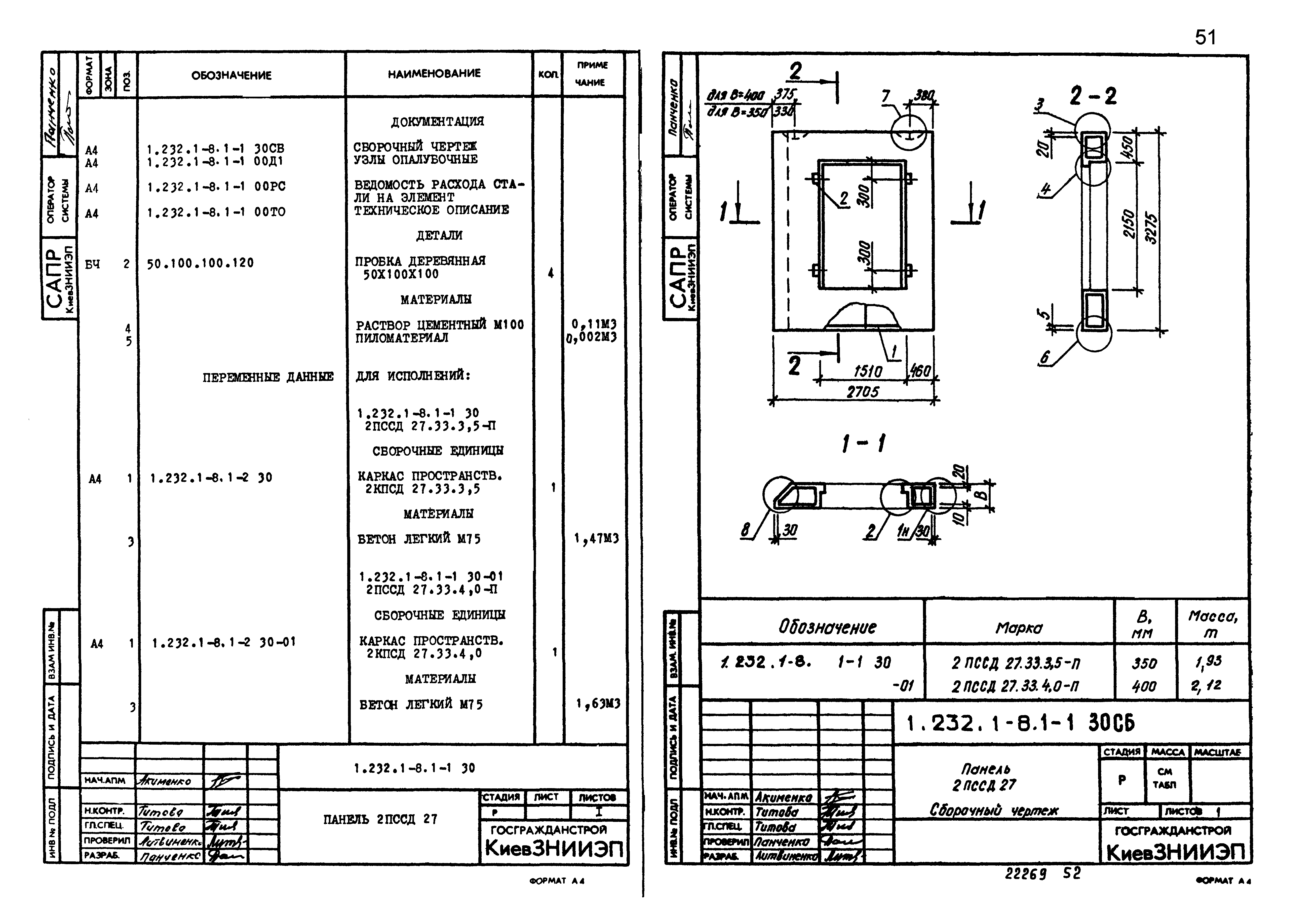
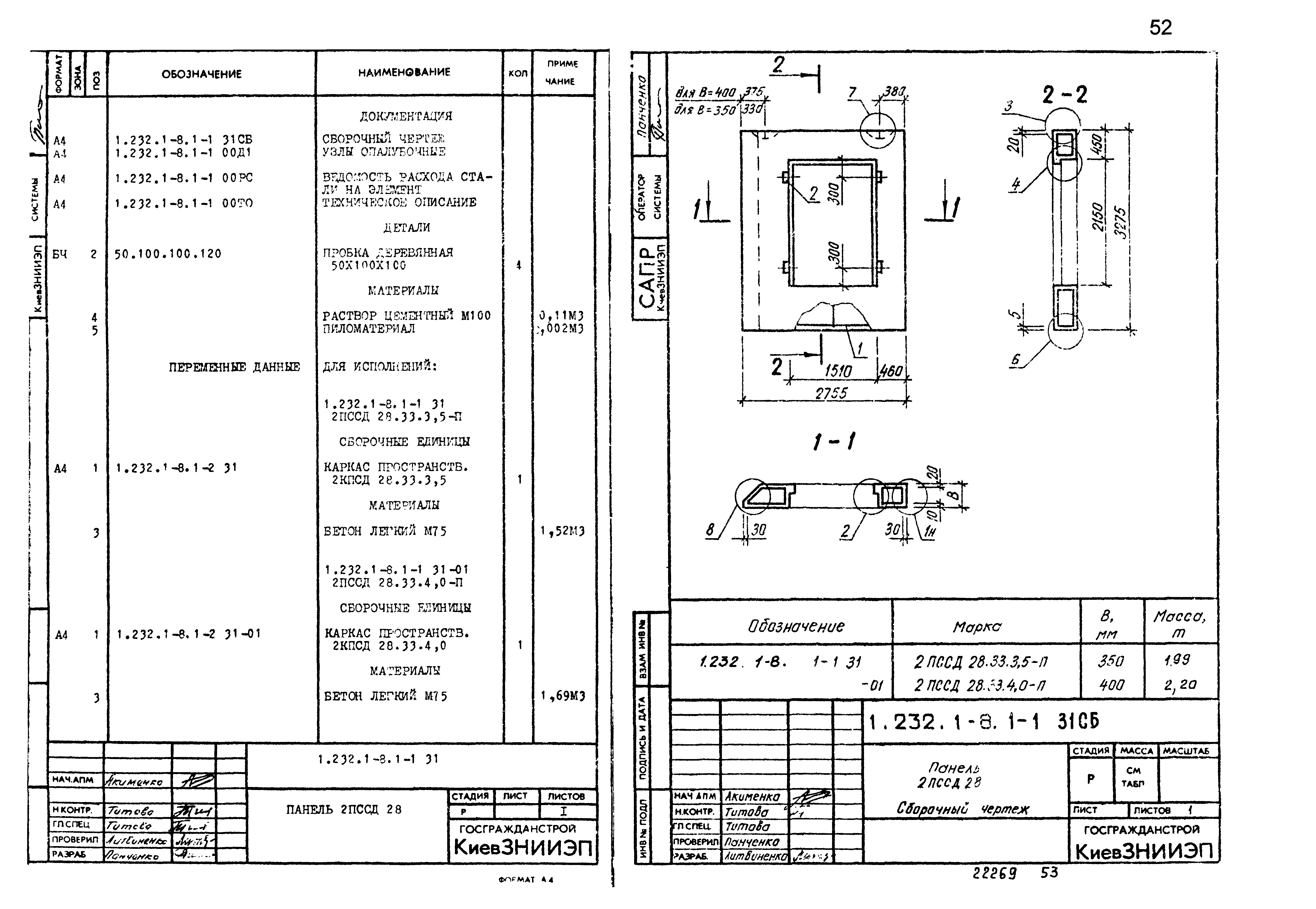
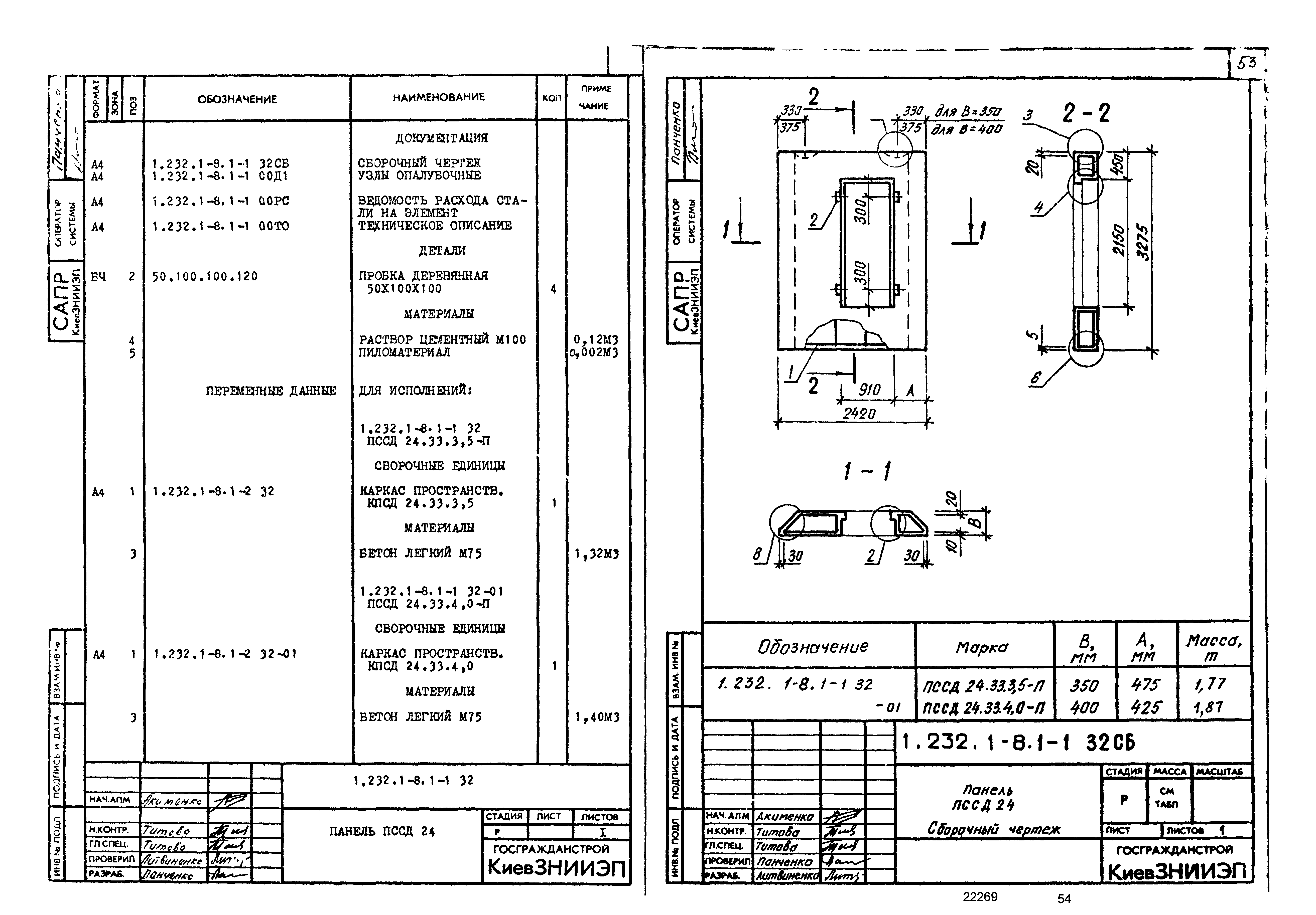
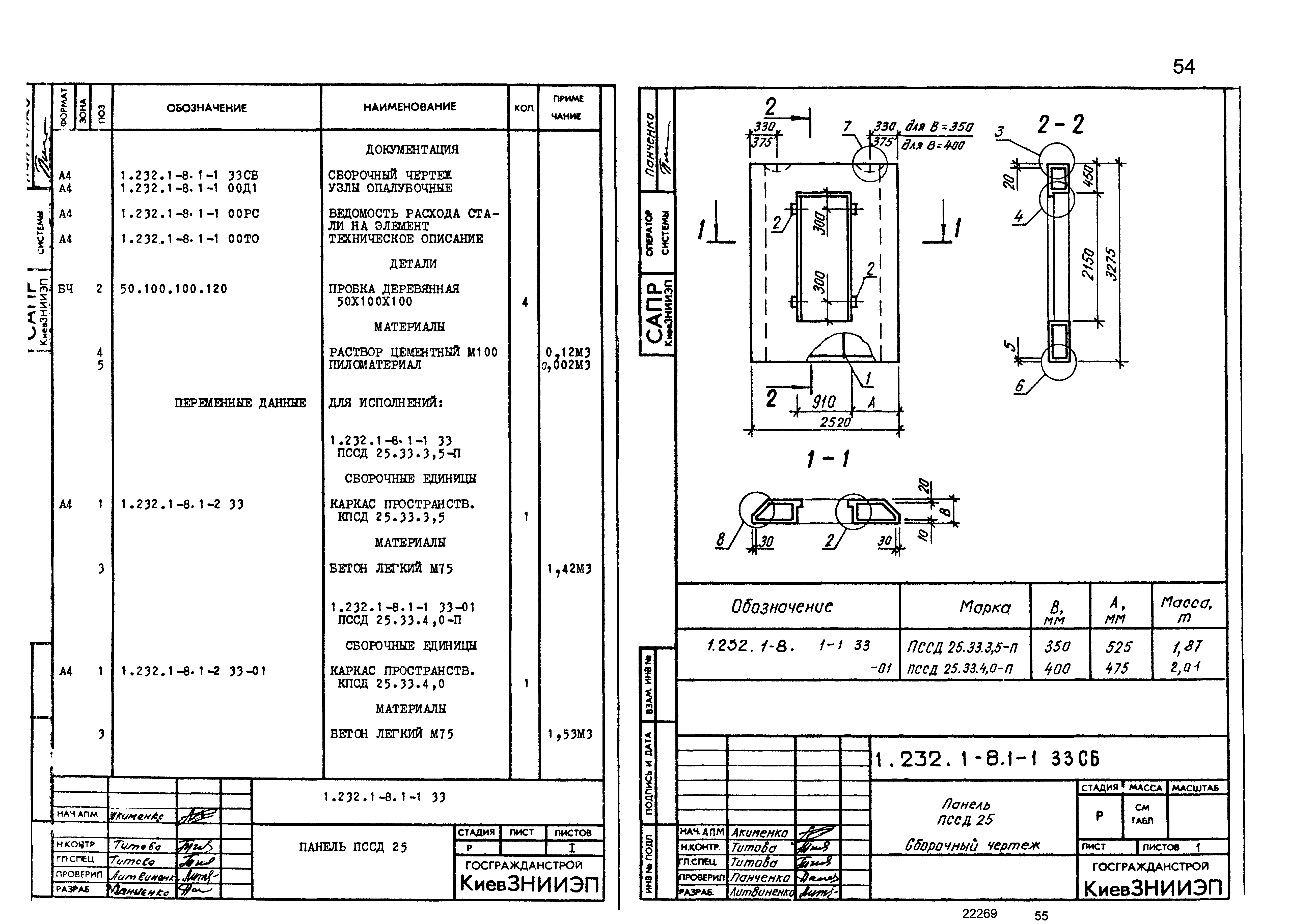
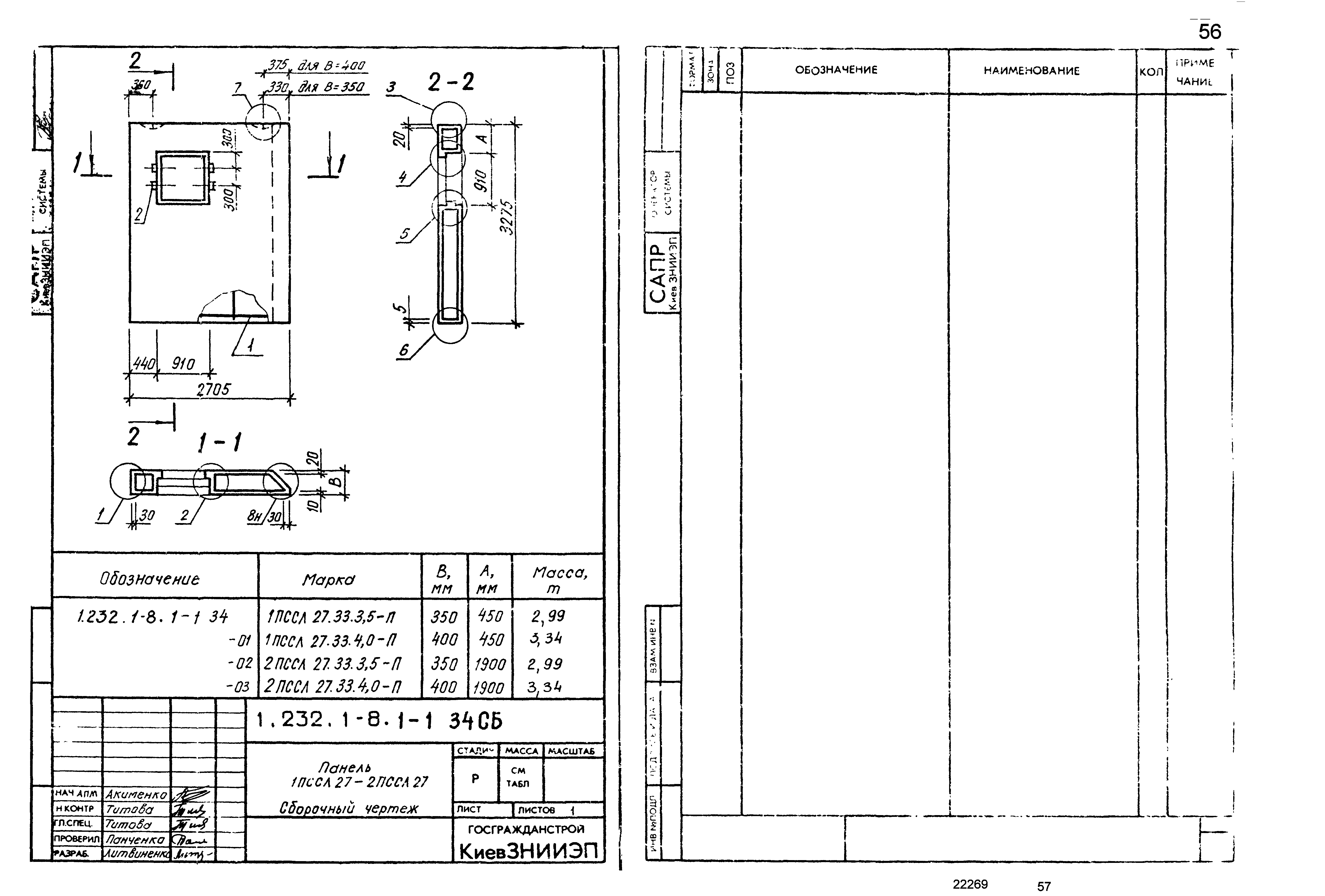
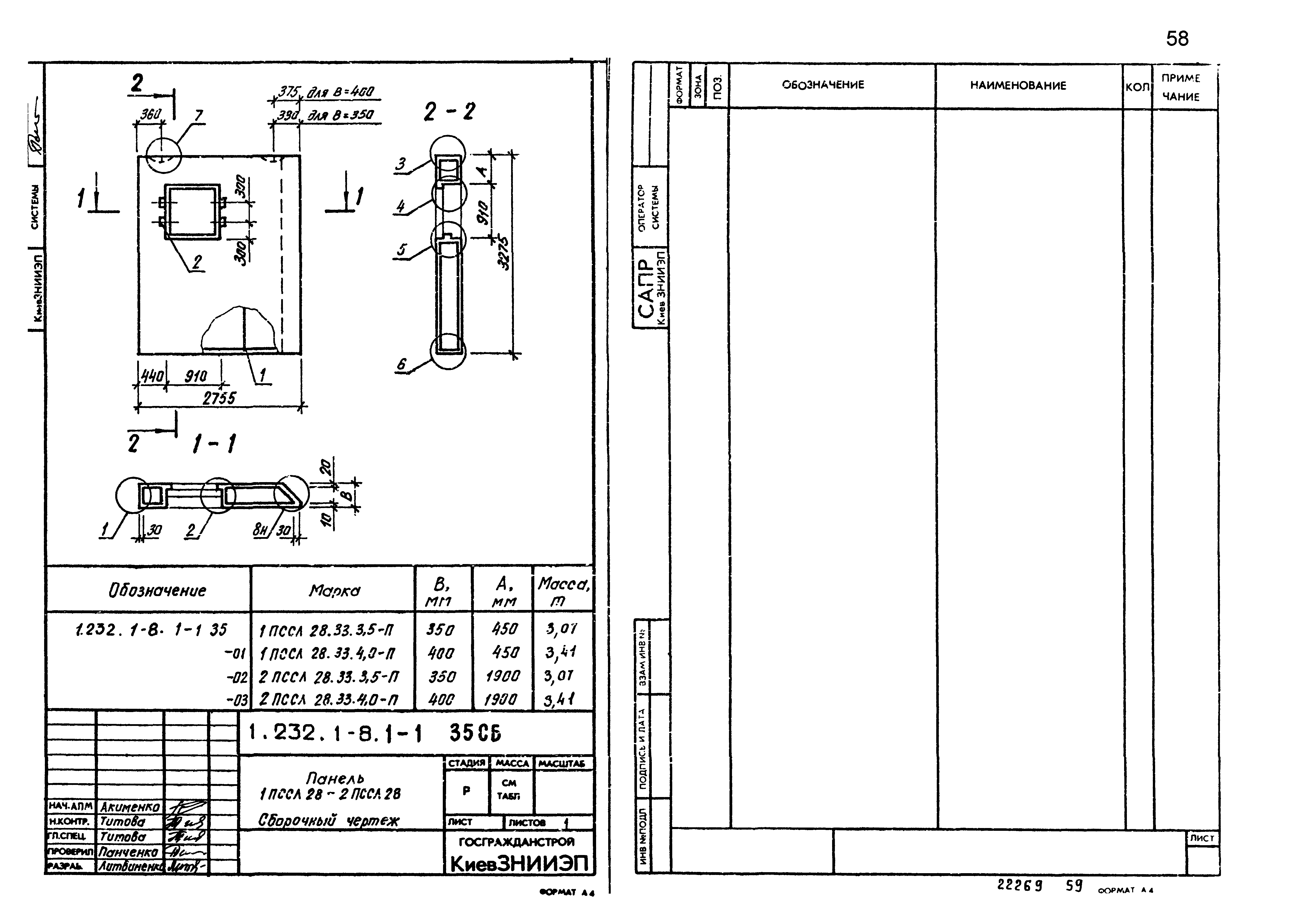
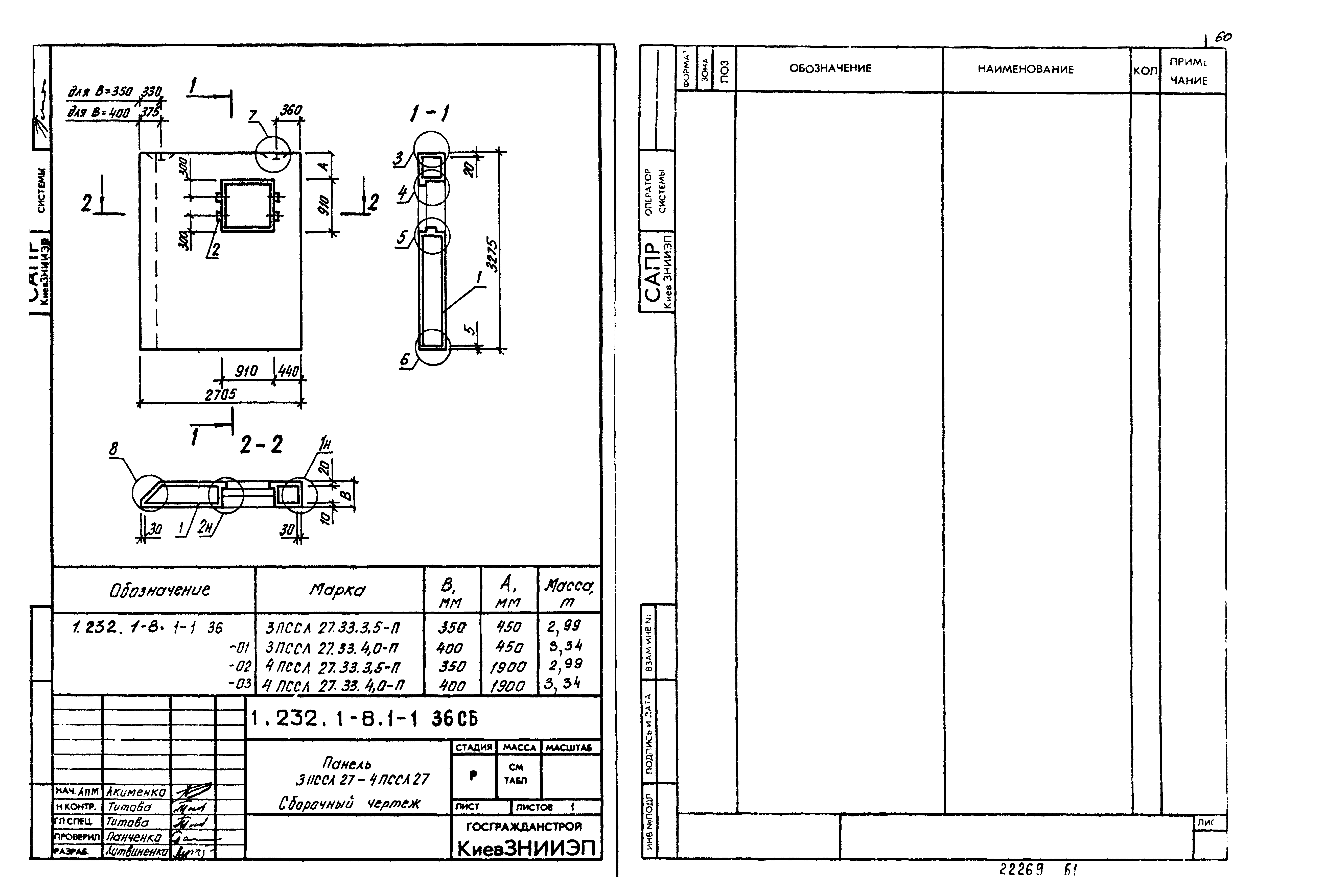
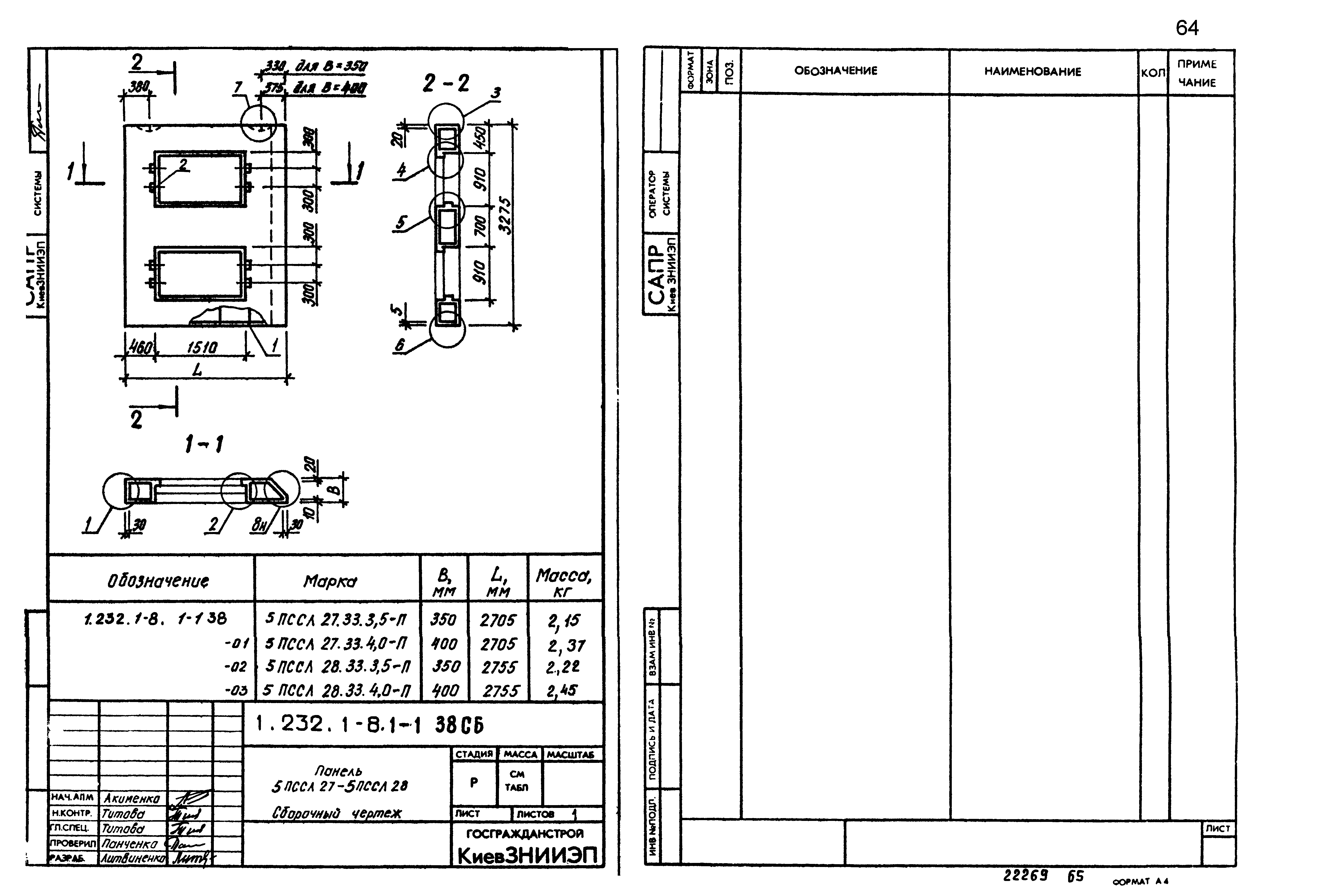
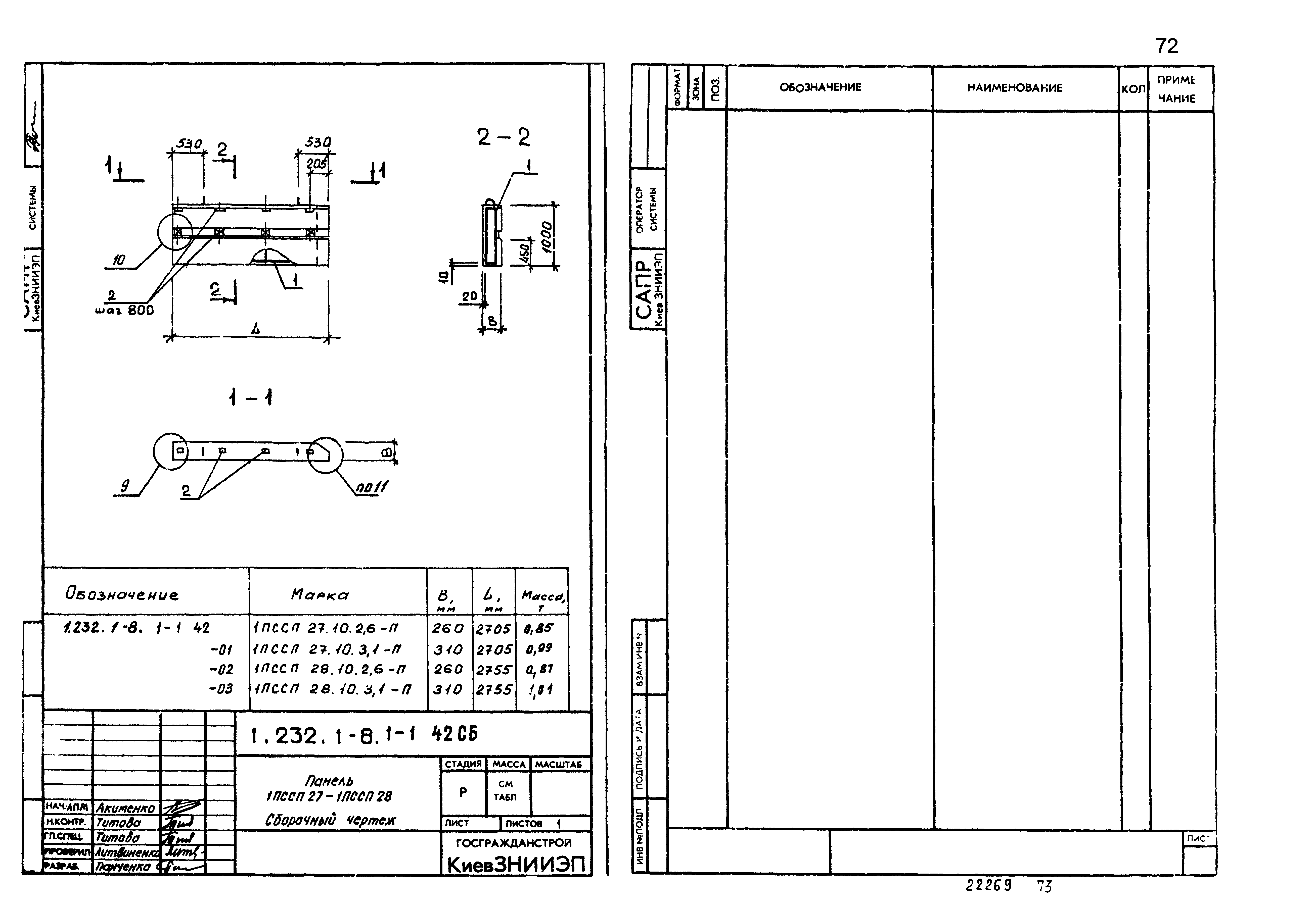
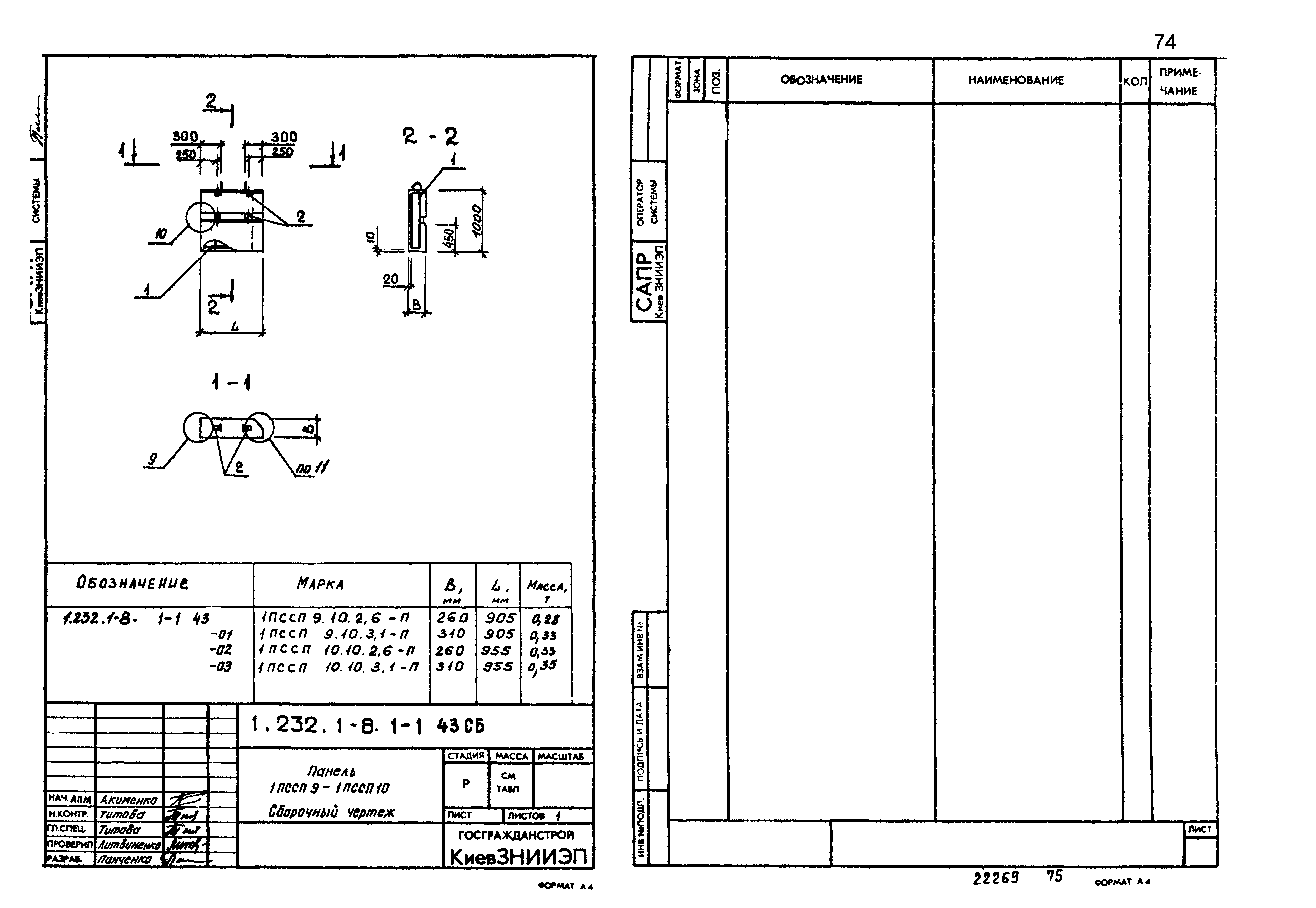
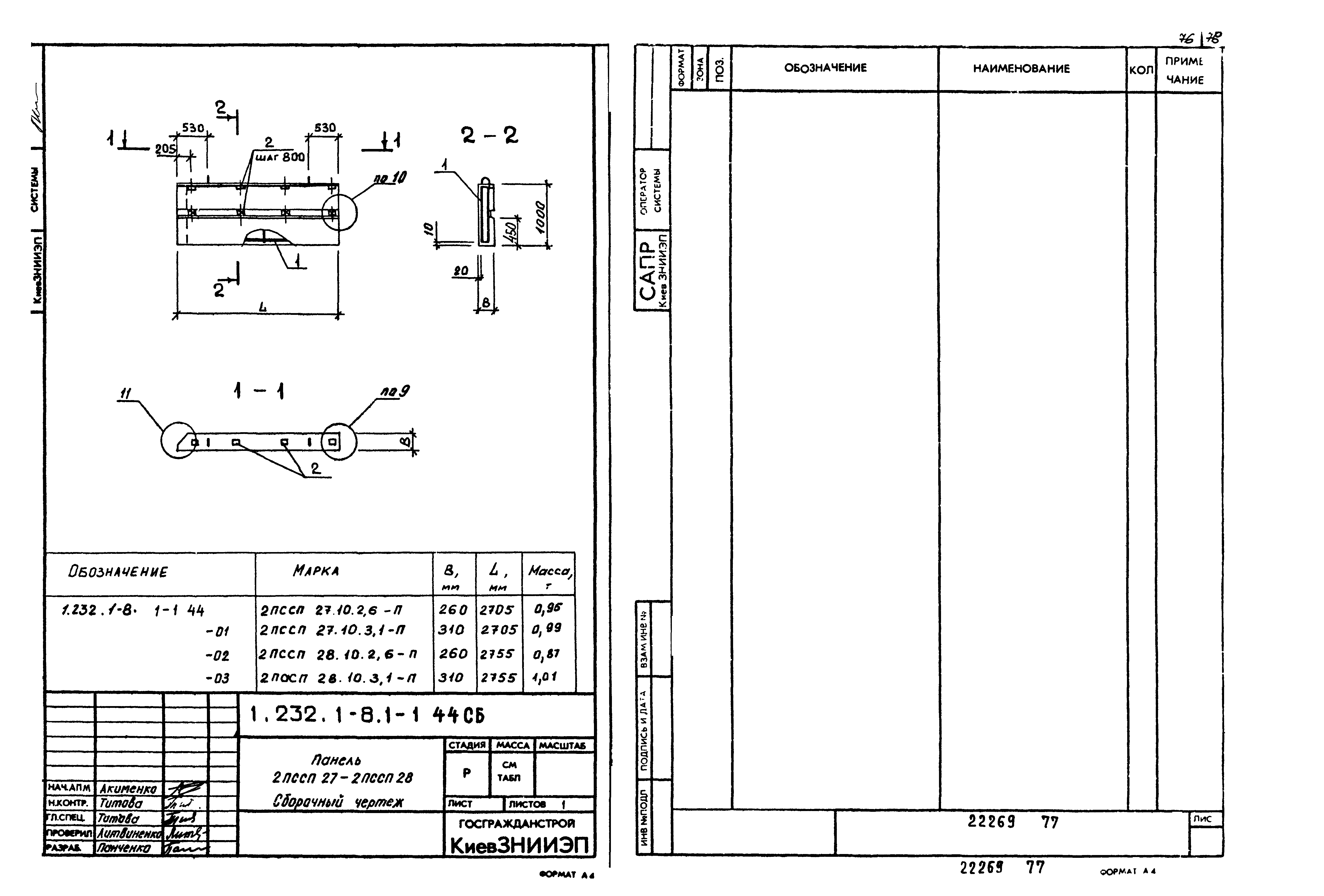
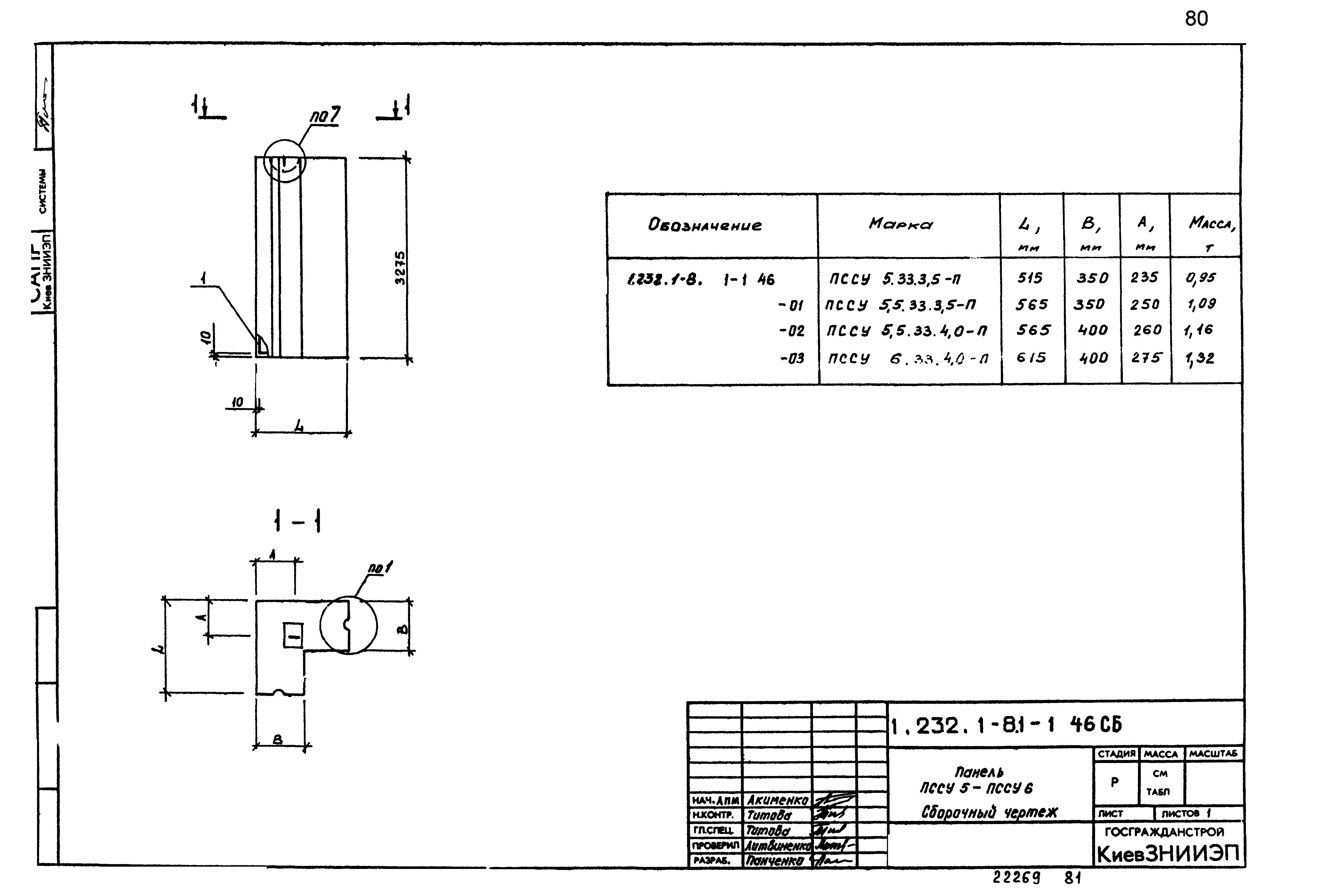
| Оглавление: | 1.232.1-8.1-1 00ТО Техническое описание 1.232.1-8.1-1 01 Панель 1ПСС030-3ПСС030 1.232.1-8.1-1 01 СБ Панель 1ПСС030-3ПСС030. Сборочный четреж 1.232.1-8.1-1 02 Панель 4ПСС030-6ПСС030 1.232.1-8.1-1 02 СБ Панель 4ПСС030-6ПСС030. Сборочный четреж 1.232.1-8.1-1 03 Панель 7ПСС030-9ПСС030 1.232.1-8.1-1 03 СБ Панель 7ПСС030-9ПСС030. Сборочный четреж 1.232.1-8.1-1 04 Панель 1ПСС060-2ПСС060 1.232.1-8.1-1 04 СБ Панель 1ПСС060-2ПСС060. Сборочный четреж 1.232.1-8.1-1 05 Панель 3ПСС060-4ПСС060 1.232.1-8.1-1 05 СБ Панель 3ПСС060-4ПСС060. Сборочный четреж 1.232.1-8.1-1 06 Панель 1ПССЛ30-2ПССЛ30 1.232.1-8.1-1 06 СБ Панель 1ПССЛ30-2ПССЛ30. Сборочный четреж 1.232.1-8.1-1 07 Панель 3ПССЛ30-4ПССЛ30 1.232.1-8.1-1 07 СБ Панель 3ПССЛ30-4ПССЛ30. Сборочный четреж 1.232.1-8.1-1 08 Панель ПССЛ30 1.232.1-8.1-1 08 СБ Панель ПССЛ30. Сборочный четреж 1.232.1-8.1-1 09 Панель ПСС30 1.232.1-8.1-1 09 СБ Панель ПСС30. Сборочный четреж 1.232.1-8.1-1 10 Панель ПСС30.16 1.232.1-8.1-1 10 СБ Панель ПСС30.16. Сборочный четреж 1.232.1-8.1-1 11 Панель ПСС12 1.232.1-8.1-1 11 СБ Панель ПСС12. Сборочный четреж 1.232.1-8.1-1 12 Панель ПССД 30 1.232.1-8.1-1 12 СБ Панель ПССД 30. Сборочный четреж 1.232.1-8.1-1 13 Панель 1ПССБ 30 1.232.1-8.1-1 13 СБ Панель 1ПССБ 30. Сборочный четреж 1.232.1-8.1-1 14 Панель 2ПССБ 30 1.232.1-8.1-1 14 СБ Панель 2ПССБ 30. Сборочный четреж 1.232.1-8.1-1 15 Панель 1ПССД 30 1.232.1-8.1-1 15 СБ Панель 1ПССД 30. Сборочный четреж 1.232.1-8.1-1 16 Панель 1ПСС027 1.232.1-8.1-1 16 СБ Панель 1ПСС027. Сборочный четреж 1.232.1-8.1-1 17 Панель 1ПСС028 1.232.1-8.1-1 17 СБ Панель 1ПСС028. Сборочный четреж 1.232.1-8.1-1 18 Панель 2ПСС027 1.232.1-8.1-1 18 СБ Панель 2ПСС027. Сборочный четреж 1.232.1-8.1-1 19 Панель 2ПСС028 1.232.1-8.1-1 19 СБ Панель 2ПСС028. Сборочный четреж 1.232.1-8.1-1 20 Панель ПСС024 1.232.1-8.1-1 20 СБ Панель ПСС024. Сборочный четреж 1.232.1-8.1-1 21 Панель ПСС025 1.232.1-8.1-1 21 СБ Панель ПСС025. Сборочный четреж 1.232.1-8.1-1 22 Панель 1ПСС27-1ПСС28 1.232.1-8.1-1 22 СБ Панель 1ПСС27-1ПСС28. Сборочный четреж 1.232.1-8.1-1 23 Панель 1ПСС9-1ПСС10 1.232.1-8.1-1 23 СБ Панель 1ПСС9-1ПСС10. Сборочный четреж 1.232.1-8.1-1 24 Панель 2ПСС27-2ПСС28 1.232.1-8.1-1 24 СБ Панель 2ПСС27-2ПСС28. Сборочный четреж 1.232.1-8.1-1 25 Панель 2ПСС9-2ПСС10 1.232.1-8.1-1 25 СБ Панель 2ПСС9-2ПСС10. Сборочный четреж 1.232.1-8.1-1 26 Панель ПСС24 1.232.1-8.1-1 26 СБ Панель ПСС24 . Сборочный четреж 1.232.1-8.1-1 27 Панель ПСС25 1.232.1-8.1-1 27 СБ Панель ПСС25 . Сборочный четреж 1.232.1-8.1-1 28 Панель 1ПССД27 1.232.1-8.1-1 28 СБ Панель 1ПССД27. Сборочный четреж 1.232.1-8.1-1 29 Панель 1ПССД28 1.232.1-8.1-1 29 СБ Панель 1ПССД28. Сборочный четреж 1.232.1-8.1-1 30 Панель 2ПССД27 1.232.1-8.1-1 30 СБ Панель 2ПССД27. Сборочный четреж 1.232.1-8.1-1 31 Панель 2ПССД28 1.232.1-8.1-1 31 СБ Панель 2ПССД28. Сборочный четреж 1.232.1-8.1-1 32 Панель ПССД24 1.232.1-8.1-1 32 СБ Панель ПССД24. Сборочный четреж 1.232.1-8.1-1 33 Панель ПССД25 1.232.1-8.1-1 33 СБ Панель ПССД25. Сборочный четреж 1.232.1-8.1-1 34 Панель 1ПССЛ27-2ПССЛ27 1.232.1-8.1-1 34 СБ Панель 1ПССЛ27-2ПССЛ27. Сборочный четреж 1.232.1-8.1-1 35 Панель 1ПССЛ28-2ПССЛ28 1.232.1-8.1-1 35 СБ Панель 1ПССЛ28-2ПССЛ28. Сборочный четреж 1.232.1-8.1-1 36 Панель 3ПССЛ27-4ПССЛ27 1.232.1-8.1-1 36 СБ Панель 3ПССЛ27-4ПССЛ27. Сборочный четреж 1.232.1-8.1-1 37 Панель 3ПССЛ28-4ПССЛ28 1.232.1-8.1-1 37 СБ Панель 3ПССЛ28-4ПССЛ28. Сборочный четреж 1.232.1-8.1-1 38 Панель 5ПССЛ27-5ПССЛ28 1.232.1-8.1-1 38 СБ Панель 5ПССЛ27-5ПССЛ28. Сборочный четреж 1.232.1-8.1-1 39 Панель 6ПССЛ27-6ПССЛ28 1.232.1-8.1-1 39 СБ Панель 6ПССЛ27-6ПССЛ28. Сборочный четреж 1.232.1-8.1-1 40 Панель ПССЛ24-ПССЛ25 1.232.1-8.1-1 40 СБ Панель ПССЛ24-ПССЛ25. Сборочный четреж 1.232.1-8.1-1 41 Панель ПССП24-ПССП25 1.232.1-8.1-1 41 СБ Панель ПССП24-ПССП25. Сборочный четреж 1.232.1-8.1-1 42 Панель 1ПССП27-1ПССП28 1.232.1-8.1-1 42 СБ Панель 1ПССП27-1ПССП28. Сборочный четреж 1.232.1-8.1-1 43 Панель 1ПССП9-1ПССП10 1.232.1-8.1-1 43 СБ Панель 1ПССП9-1ПССП10. Сборочный четреж 1.232.1-8.1-1 44 Панель 2ПССП28-2ПССП28 1.232.1-8.1-1 44 СБ Панель 2ПССП27-2ПССП28. Сборочный четреж 1.232.1-8.1-1 45 Панель 2ПССП9-2ПССП10 1.232.1-8.1-1 45 СБ Панель 2ПССП9-2ПССП10. Сборочный четреж 1.232.1-8.1-1 46 Панель ПССУ5.33-ПССУ6.33 1.232.1-8.1-1 46 СБ Панель ПССУ5.33-ПССУ6.33. Сборочный чертеж 1.232.1-8.1-1 47 Панель ПССУ5.16-ПССУ6.16 1.232.1-8.1-1 47 СБ Панель ПССУ5.16-ПССУ6.16. Сборочный чертеж 1.232.1-8.1-1 48 Панель ПССУ5.10-ПССУ6.10 1.232.1-8.1-1 48 СБ Панель ПССУ5.10-ПССУ6.10. Сборочный чертеж 1.232.1-8.1-1 00 Д1 Узлы опалубочные 1.232.1-8.1-1 00 РС Ведомость расхода стали на элемент кг |
| Разработан: | КиевЗНИИЭП ЦНИИЭП торгово-бытовых зданий и туристских комплексов |
| Утверждён: | 19.05.1987 Госгражданстрой (Gosgrazhdanstroy 161) |
| Нормативные ссылки: |
|
































































































