Скачать Серия 1.432.1-21 Выпуск 7. Узлы сопряжения панелей со скрытыми креплениями с каркасом здания. Рабочие чертежиДата актуализации: 01.01.2021
|
| Обозначение: | Серия 1.432.1-21 |
| Обозначение англ: | Series 1.432.1-21 |
| Статус: | не определен законодательством |
| Название рус.: | Выпуск 7. Узлы сопряжения панелей со скрытыми креплениями с каркасом здания. Рабочие чертежи |
| Дата добавления в базу: | 01.09.2013 |
| Дата актуализации: | 01.01.2021 |
| Дата введения: | 01.04.1994 |
| Дата окончания срока действия: | 30.06.2003 |
| Область применения: | В выпуске приведены монтажные узлы сопряжения трехслойных железобетонных стеновых панелей серий 1.432.1-21 и 1.432.1-26 с железобетонным каркасо одно- и многоэтажных производственных зданий с относительной влажностью внутреннего воздуха до 85 % с неагрессивной и агресивной газовыми средами, возводимых в несейсмических районах, с расчетной температурой наружного воздуха до минус 50 градусов Цельсия, рассчитанные под нормативную ветровую нагрузку до 90 кгс/кв. м |
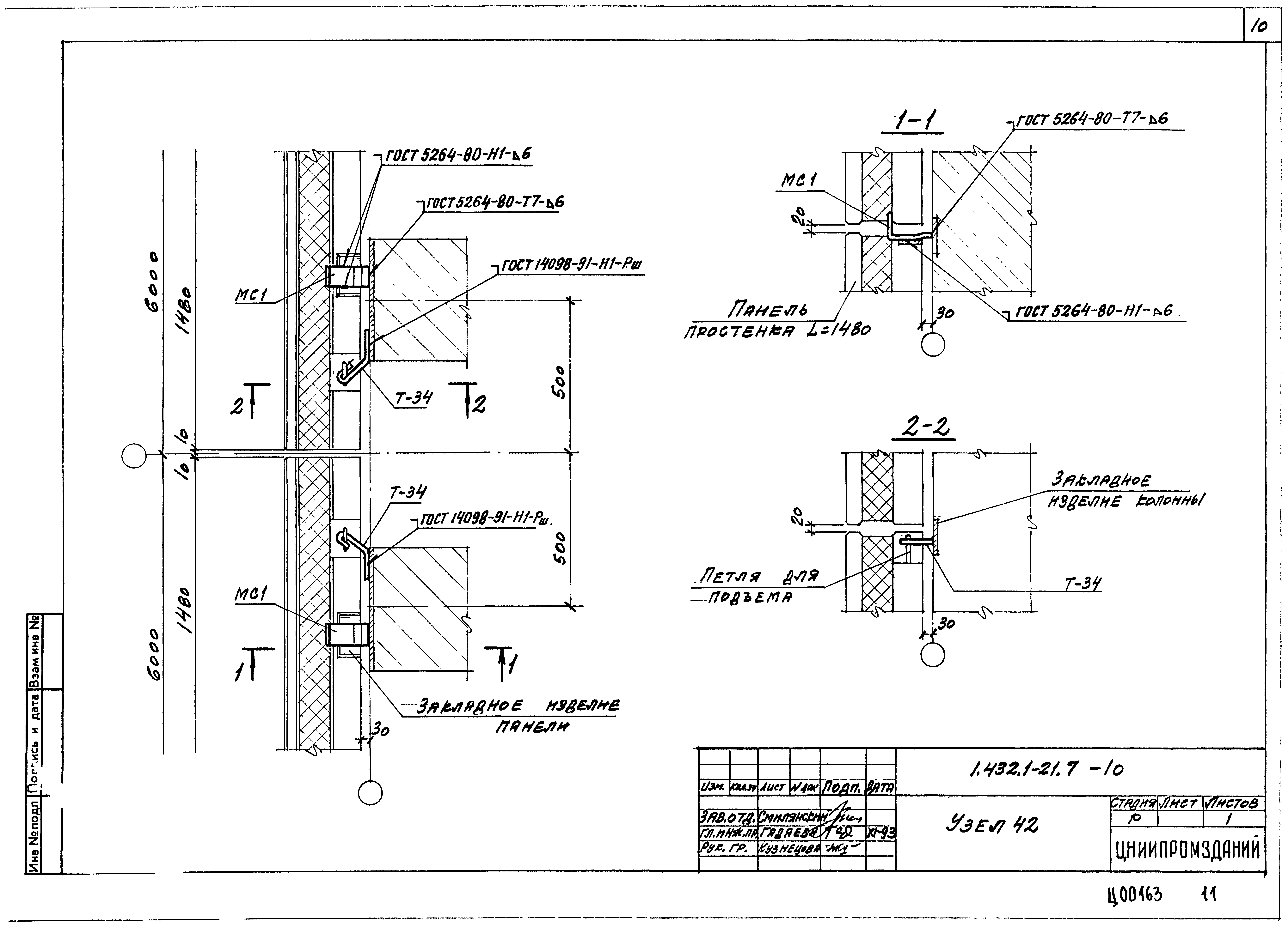
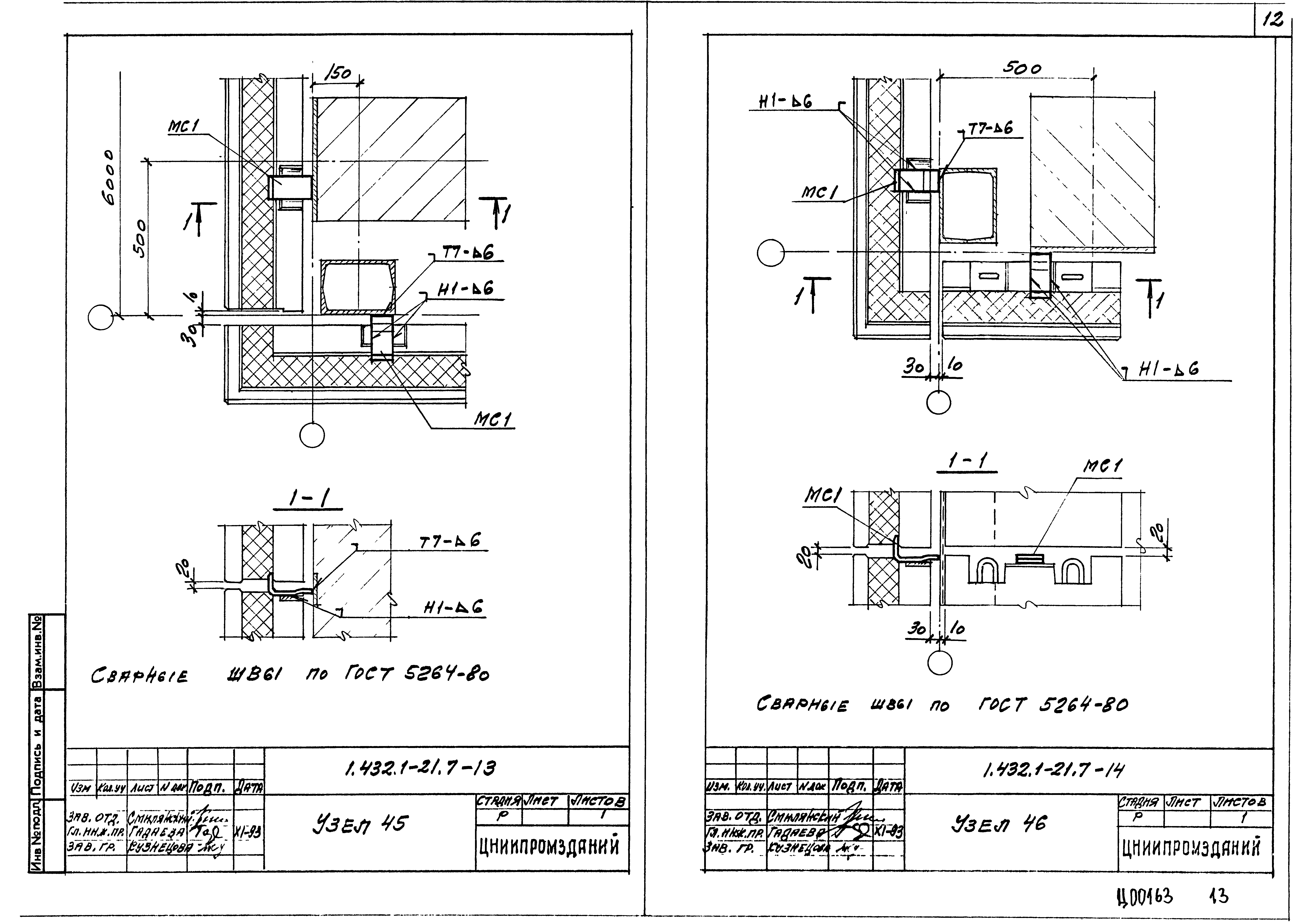
| Оглавление: | 1.432.1-21.7-ПЗ Пояснительная записка 1.432.1-21.7-1 Схемы расположения узлов крепления панелей к колоннам продольного ряда одноэтажных зданий 1.432.1-21.7-2 Схемы расположения узлов крепления панелей к колоннам торцового ряда одноэтажных зданий 1.432.1-21.7-3 Схемы расположения узлов крепления панелей к колонннам многоэтажных зданий 1.432.1-21.7-4 Узел 36 1.432.1-21.7-5 Узел 37 1.432.1-21.7-6 Узел 38 1.432.1-21.7-7 Узел 39 1.432.1-21.7-8 Узел 40 1.432.1-21.7-9 Узел 41 1.432.1-21.7-10 Узел 42 1.432.1-21.7-11 Узел 43 1.432.1-21.7-12 Узел 44 1.432.1-21.7-13 Узел 45 1.432.1-21.7-14 Узел 46 1.432.1-21.7-15 Узел 47 1.432.1-21.7-16 Узел 48 1.432.1-21.7-17 Узел 49 1.432.1-21.7-18 Спецификация к узлам 36… 49 1.432.1-21.7-19 Заполнение швов между панелями 1.432.1-21.7-20 Опалубка стеновых панелей. Специфика и выборка на закладные изделия 1.432.1-21.7-21 Закладное изделие МН1 1.432.1-21.7-22 Закладное изделие МН2 1.432.1-21.7-23 Консоль РК1 1.432.1-21.7-24 Консоль ТК10 1.432.1-21.7-25 Соединительное изделие МС1 1.432.1-21.7-26 Соединительное изделие МС2 |
| Разработан: | АО ЦНИИпромзданий |
| Утверждён: | 27.12.1993 Госстрой России (Russian Federation Gosstroy 9-3-2/300) |
| Нормативные ссылки: |
|




































