Скачать Серия 1.432-16 Выпуск 1. Стеновые панели. Рабочие чертежи

Дата актуализации: 01.01.2021

Серия 1.432-16

Выпуск 1. Стеновые панели. Рабочие чертежи

Обозначение: Серия 1.432-16
Обозначение англ: Series 1.432-16
Статус:справочные материалы, мп, тпр
Название рус.:Выпуск 1. Стеновые панели. Рабочие чертежи
Дата добавления в базу:01.09.2013
Дата актуализации:01.01.2021
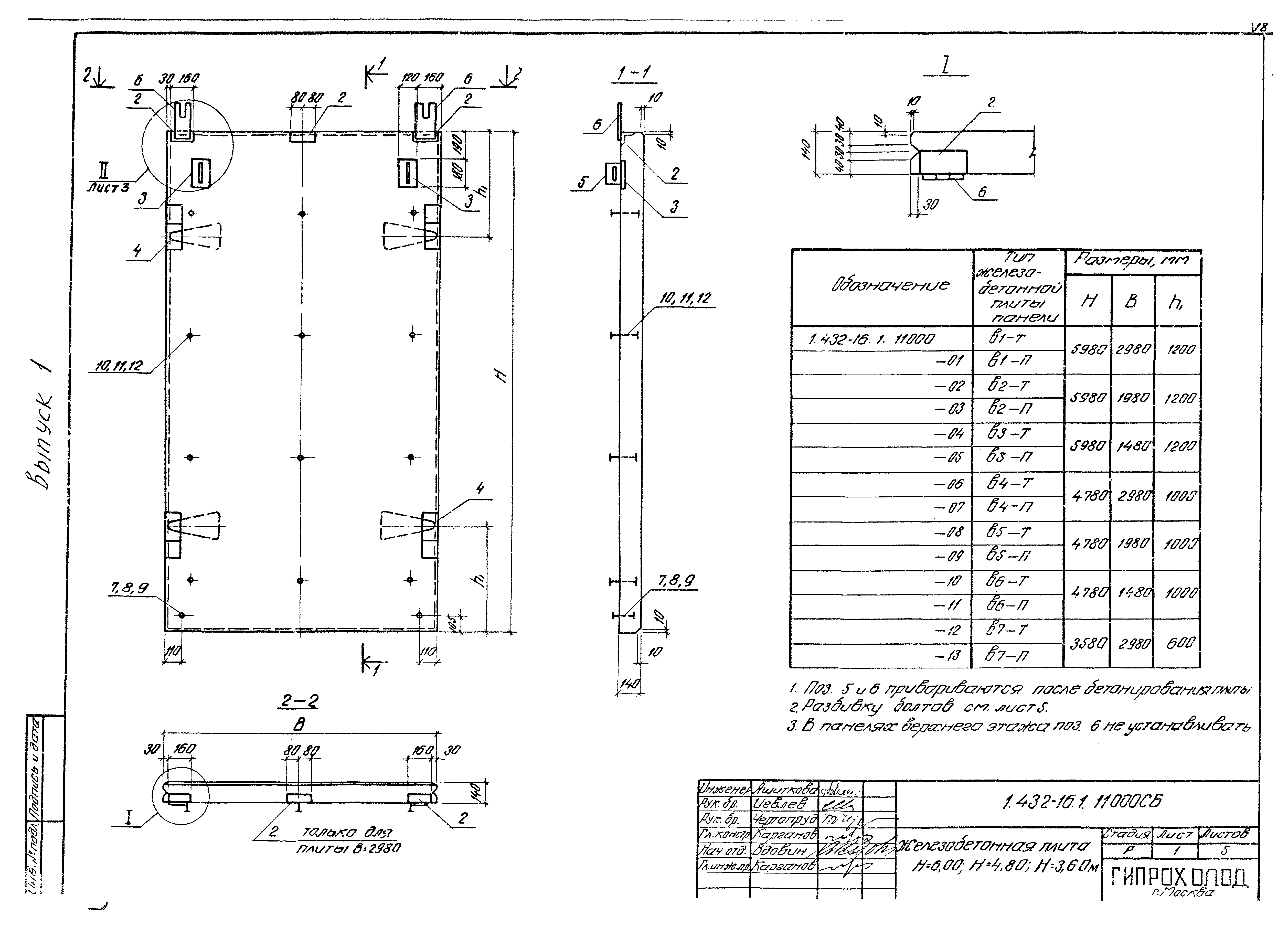
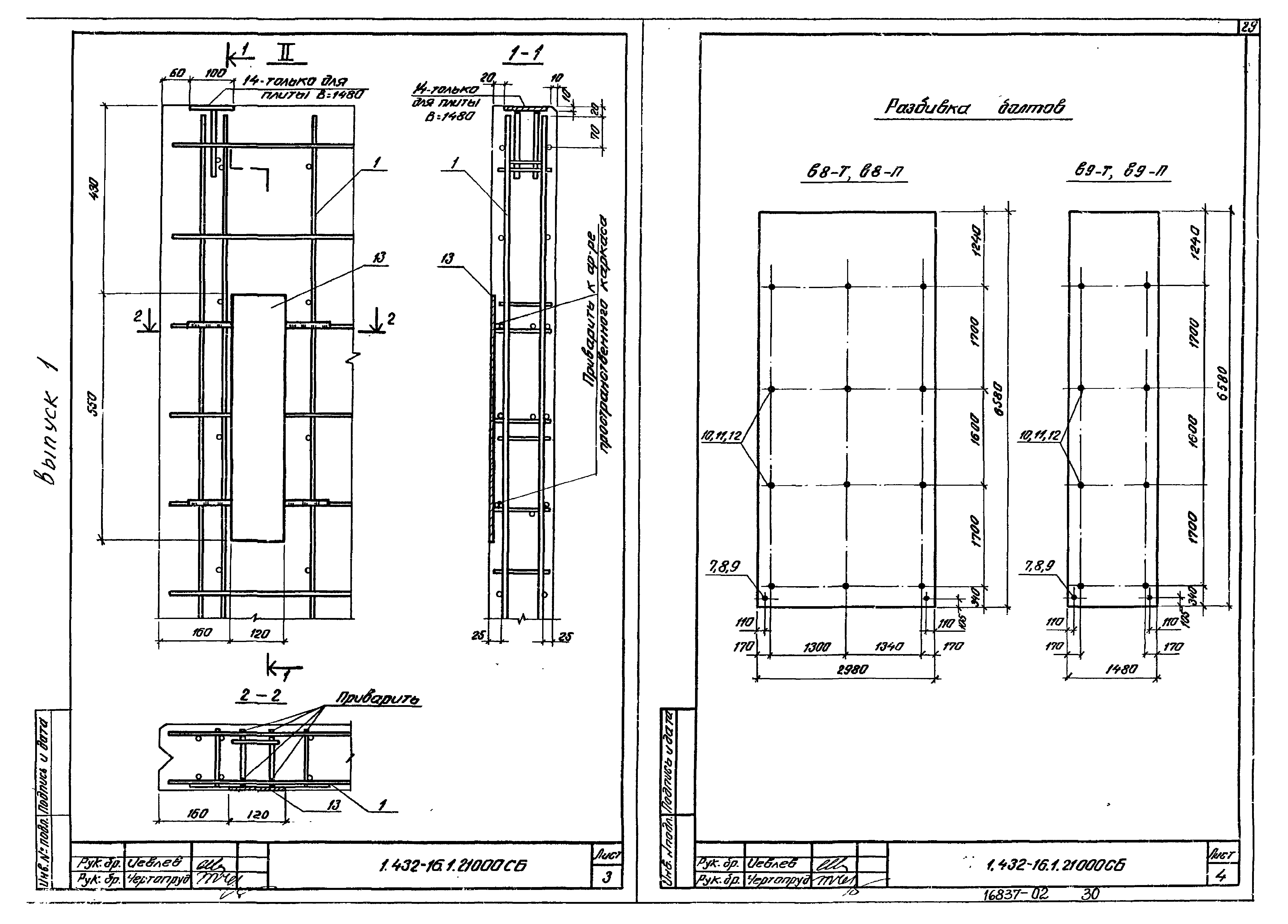
Область применения:Настоящий выпуск содержит рабочие чертежи вертикальных комплексных (с изоляцией) панелей, горизонтальной стеновой панели, угловых блоков и карнизных панелей для стен холодильников
Разработан: ЦНИИпромзданий
Гипрохолод Минторга СССР
Утверждён:22.05.1980 Госстрой СССР (Государственный комитет Совета Министров СССР по делам строительства) (USSR Gosstroy 37)
Нормативные ссылки:
Серия 1.432-16Серия 1.432-16Серия 1.432-16Серия 1.432-16Серия 1.432-16Серия 1.432-16Серия 1.432-16Серия 1.432-16Серия 1.432-16Серия 1.432-16Серия 1.432-16Серия 1.432-16Серия 1.432-16Серия 1.432-16Серия 1.432-16Серия 1.432-16Серия 1.432-16Серия 1.432-16Серия 1.432-16Серия 1.432-16Серия 1.432-16Серия 1.432-16Серия 1.432-16Серия 1.432-16Серия 1.432-16Серия 1.432-16Серия 1.432-16Серия 1.432-16Серия 1.432-16Серия 1.432-16Серия 1.432-16Серия 1.432-16Серия 1.432-16Серия 1.432-16Серия 1.432-16