Скачать Серия 1.432-16 Выпуск 3. Монтажные узлы и соединительные стальные изделия. Рабочие чертежи
Дата актуализации: 01.01.2021
Серия 1.432-16
Выпуск 3. Монтажные узлы и соединительные стальные изделия. Рабочие чертежи
Обозначение:
Серия 1.432-16
Обозначение англ:
Series 1.432-16
Статус:
справочные материалы, мп, тпр
Название рус.:
Выпуск 3. Монтажные узлы и соединительные стальные изделия. Рабочие чертежи
Дата добавления в базу:
01.09.2013
Дата актуализации:
01.01.2021
Область применения:
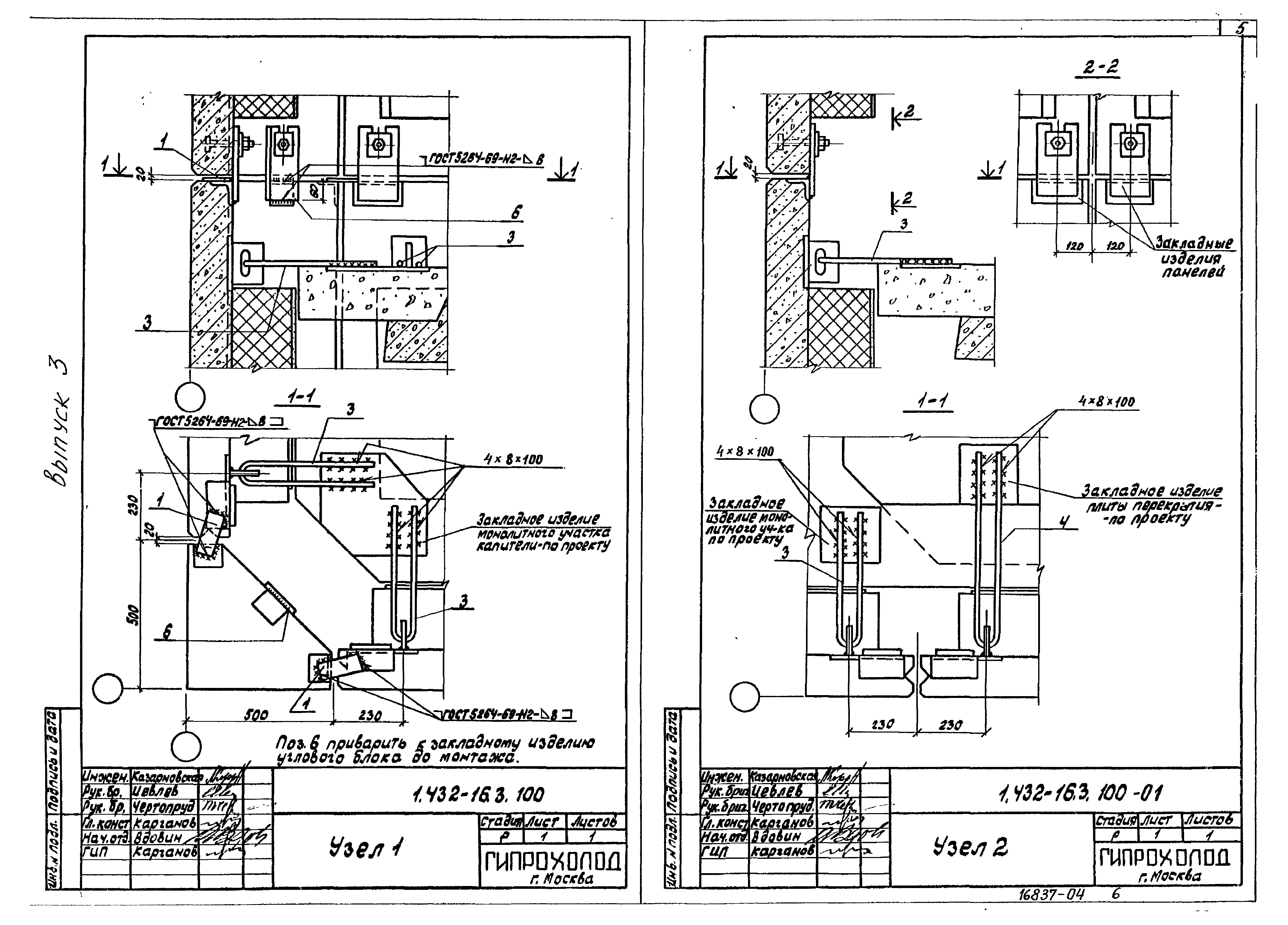
Настоящий выпуск содержит монтажные узлы крепления стеновых панелей к каркасу
Разработан:
ЦНИИпромзданий
Гипрохолод Минторга СССР
Утверждён:
22.05.1980 Госстрой СССР (Государственный комитет Совета Министров СССР по делам строительства)
(USSR Gosstroy 37)
Нормативные ссылки:
ГОСТ 103-76 «Полоса стальная горячекатаная. Сортамент»
ГОСТ 9467-75 «Электроды покрытые металлические для ручной дуговой сварки конструкционных и теплоустойчивых сталей. Типы»
ГОСТ 5915-70 «Гайки шестигранные класса точности В. Конструкция и размеры»
ГОСТ 7798-70 «Болты с шестигранной головкой класса точности В. Конструкция и размеры»
ГОСТ 11371-78 «Шайбы. Технические условия»
ГОСТ 5264-69 «Швы сварных соединений. Ручная электродуговая сварка. Основные типы и конструктивные элементы»
ГОСТ 8510-72 «Сталь прокатная угловая неравнополочная. Сортамент»
СНиП II-28-73* «Защита строительных конструкций от коррозии. Нормы проектирования»
СНиП II-В.3-72 «Стальные конструкции. Нормы проектирования»
СН 313-65 «Инструкция по технологии изготовления и установке стальных закладных деталей в сборных железобетонных и бетонных изделиях»
ГОСТ 380-71 «Сталь углеродистая обыкновенного качества. Марки и общие технические требования»
СН 420-71 «Указания по герметизации стыков при монтаже строительных конструкций»
ГОСТ 19292-73 «Соединения сварные элементов закладных деталей сборных железобетонных конструкций. Контактная и автоматическая сварка плавлением. Основные типы и конструктивные элементы»
ГОСТ 5781-75 «Сталь горячекатаная для армирования железобетонных конструкций»