Скачать Серия 1.432.1-20 Выпуск 1. Указания по применению. Монтажные узлы и соединительные изделия. Рабочие чертежи

Дата актуализации: 01.01.2021

Серия 1.432.1-20

Выпуск 1. Указания по применению. Монтажные узлы и соединительные изделия. Рабочие чертежи

Обозначение: Серия 1.432.1-20
Обозначение англ: Series 1.432.1-20
Статус:не определен законодательством
Название рус.:Выпуск 1. Указания по применению. Монтажные узлы и соединительные изделия. Рабочие чертежи
Дата добавления в базу:01.09.2013
Дата актуализации:01.01.2021
Дата введения:01.07.1988
Дата окончания срока действия:30.06.2003
Область применения:Настоящая серия содержит рабочие чертежи железобетонных предварительно напряженных стеновых панелей, предназначенных для стен неотапливаемых производственных зданий с шагом крайних колонн 12 м
Оглавление:1.432.1-20.1-00 ПЗ Пояснительная записка
1.432.1-20.1-01 НИ Номенклатура стеновых панелей
1.432.1-20.1-02 НИ Номенклатура угловых блоков
1.432.1-20.1-01 АР Пример решения фасада с окнами h = 600 мм
1.432.1-20.1-02 АР Пример решения фасада цеха с пыльным производством
1.432.1-20.1-03 АР Пример решения фасада цеха со встроенной этажеркой
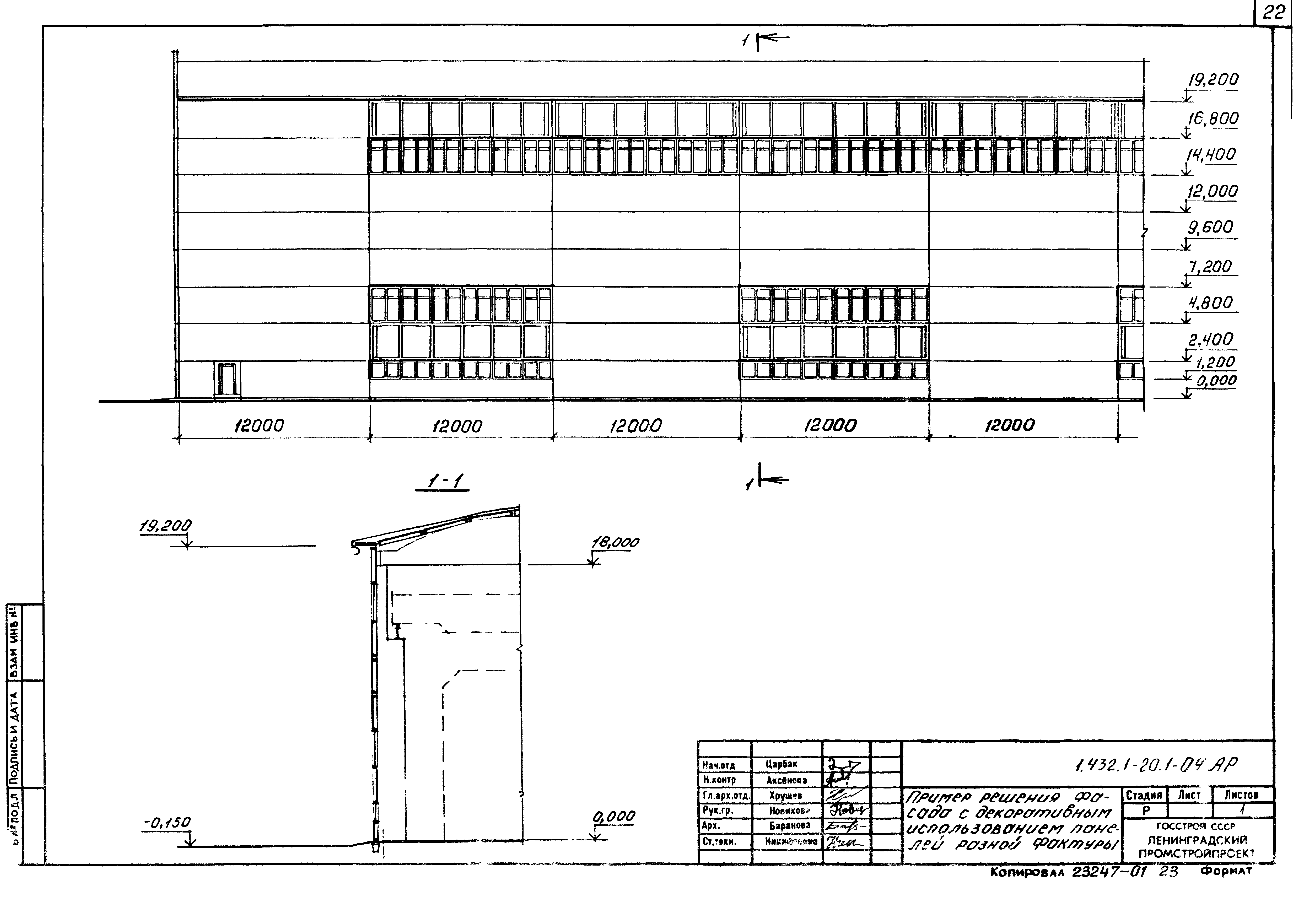
1.432.1-20.1-04 АР Пример решения фасада с декоративным использованием панелей разной фактуры
1.432.1-20.1-05 АР Пример решения парапетов торцовых фасадов
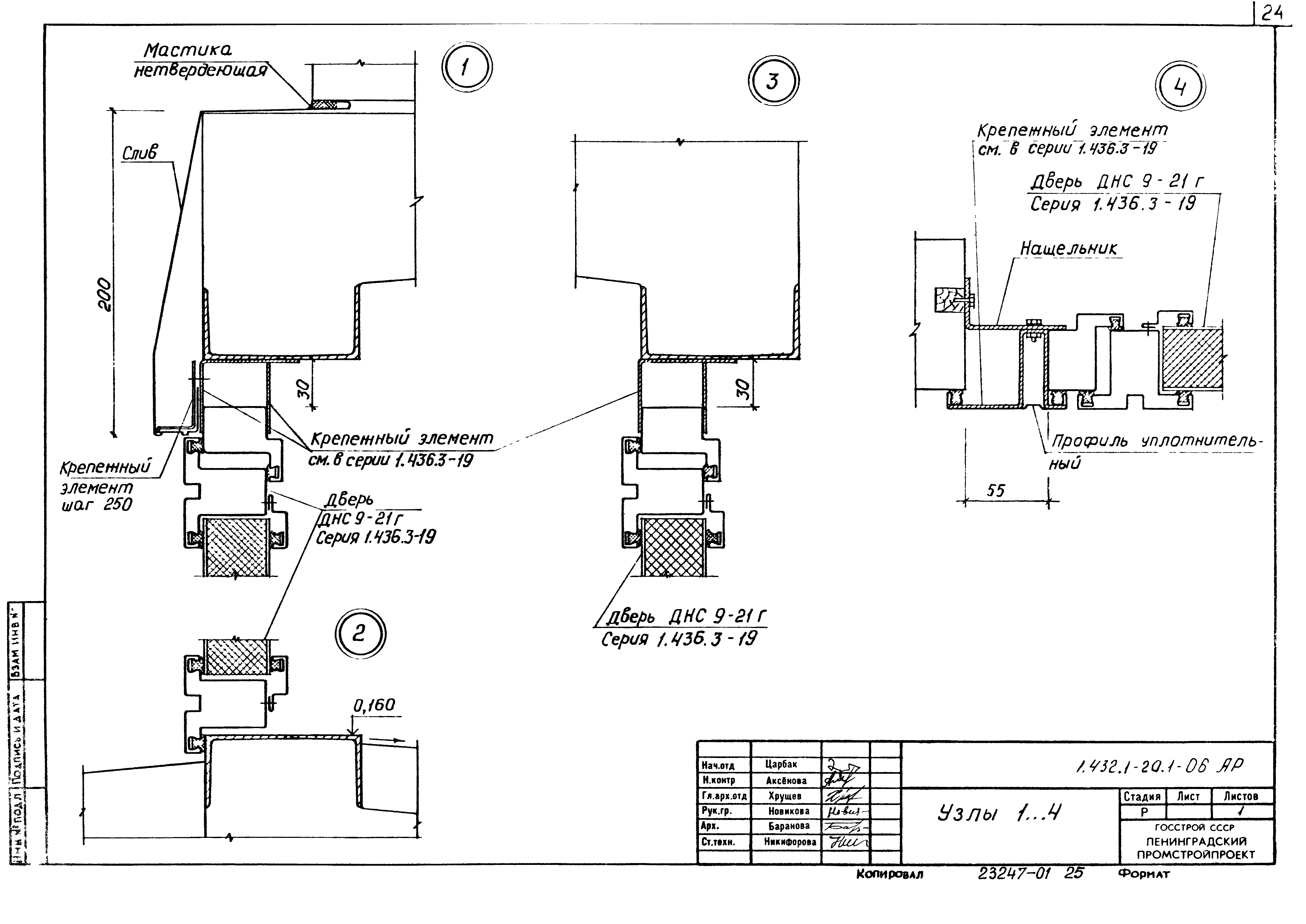
1.432.1-20.1-06 АР Узлы 1… 4
1.432.1-20.1-01 Схема расположения опорных консолей для стен с панелями марки "ПС"
1.432.1-20.1-02 Схема расположения опорных консолей для стен с панелями марок "ПС" и "ПСН"
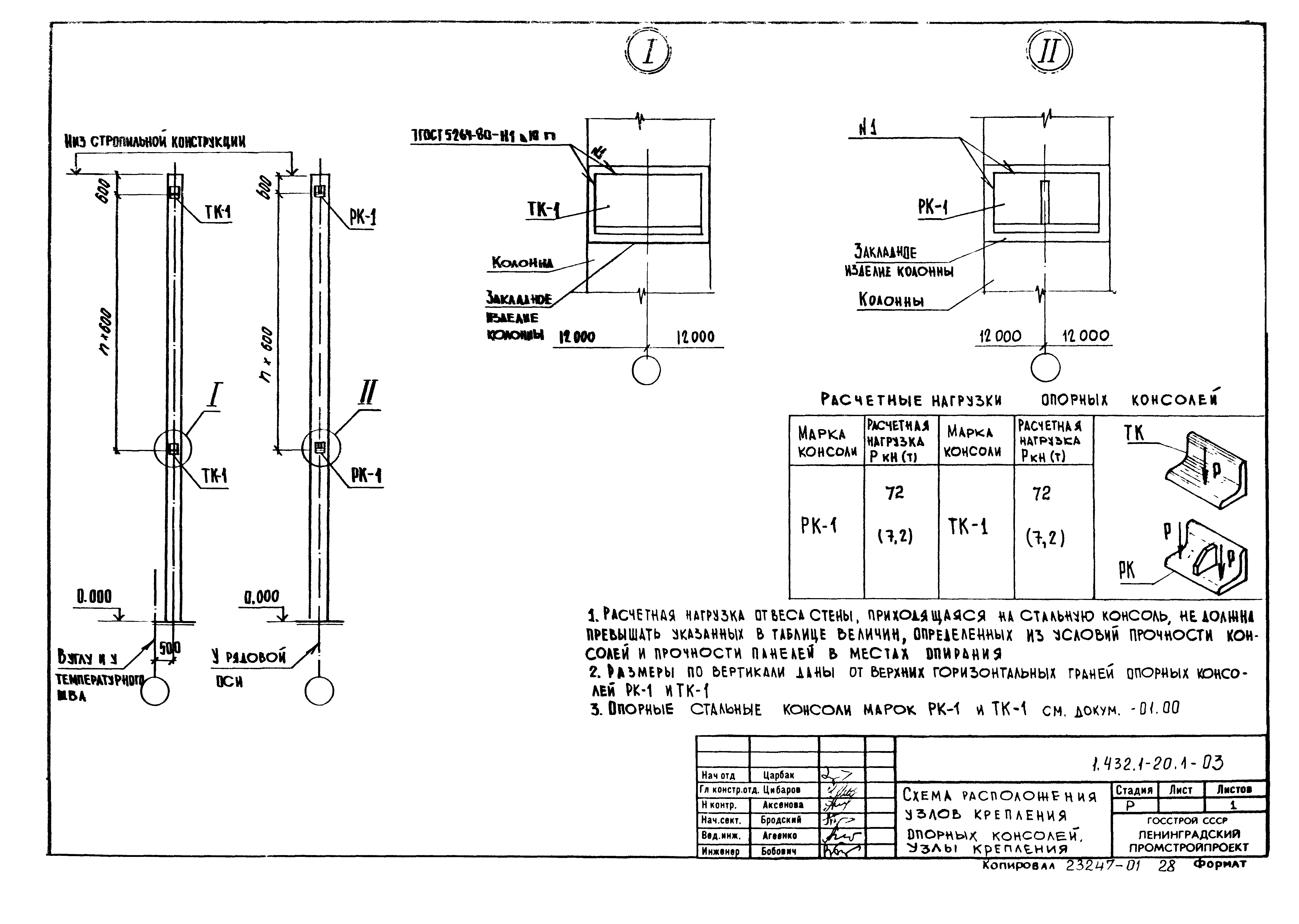
1.432.1-20.1-03 Схема расположения узлов крепления опорных консолей. Узлы крепления
1.432.1-20.1-01 У Детали углов зданий на уровне парапетных панелей
1.432.1-20.1-02 У Детали углов зданий на уровне подкрановых ветвей колонн
1.432.1-20.1-01.00 Опорные консоли РК-1 и ТК-1
1.432.1-20.1-01.00 СБ Опорные консоли РК-1 и ТК-1. Сборочный чертеж
Разработан: НИИЖБ Госстроя СССР
Ленинградский Промстройпроект
Утверждён:28.12.1987 Госстрой СССР (Государственный комитет Совета Министров СССР по делам строительства) (USSR Gosstroy 6/6-4629)
Издан: ЦИТП Госстроя СССР (CITP, Gosstroy (USSR) 1988 г. )
Заменяет собой:
Нормативные ссылки:
Серия 1.432.1-20Серия 1.432.1-20Серия 1.432.1-20Серия 1.432.1-20Серия 1.432.1-20Серия 1.432.1-20Серия 1.432.1-20Серия 1.432.1-20Серия 1.432.1-20Серия 1.432.1-20Серия 1.432.1-20Серия 1.432.1-20Серия 1.432.1-20Серия 1.432.1-20Серия 1.432.1-20Серия 1.432.1-20Серия 1.432.1-20Серия 1.432.1-20Серия 1.432.1-20Серия 1.432.1-20Серия 1.432.1-20Серия 1.432.1-20Серия 1.432.1-20Серия 1.432.1-20Серия 1.432.1-20Серия 1.432.1-20Серия 1.432.1-20Серия 1.432.1-20Серия 1.432.1-20Серия 1.432.1-20Серия 1.432.1-20Серия 1.432.1-20Серия 1.432.1-20