Скачать Серия 1.432-13 Выпуск 2. Панели стен с каркасом из асбестоцементных швеллеров. Рабочие чертежиДата актуализации: 01.01.2021
|
| Обозначение: | Серия 1.432-13 |
| Обозначение англ: | Series 1.432-13 |
| Статус: | не определен законодательством |
| Название рус.: | Выпуск 2. Панели стен с каркасом из асбестоцементных швеллеров. Рабочие чертежи |
| Дата добавления в базу: | 01.09.2013 |
| Дата актуализации: | 01.01.2021 |
| Дата введения: | 17.11.1977 |
| Дата окончания срока действия: | 30.06.2003 |
| Область применения: | Настоящий выпуск содержит рабочие чертежи асбестоцементных каркасных утепленных стеновых панелей |
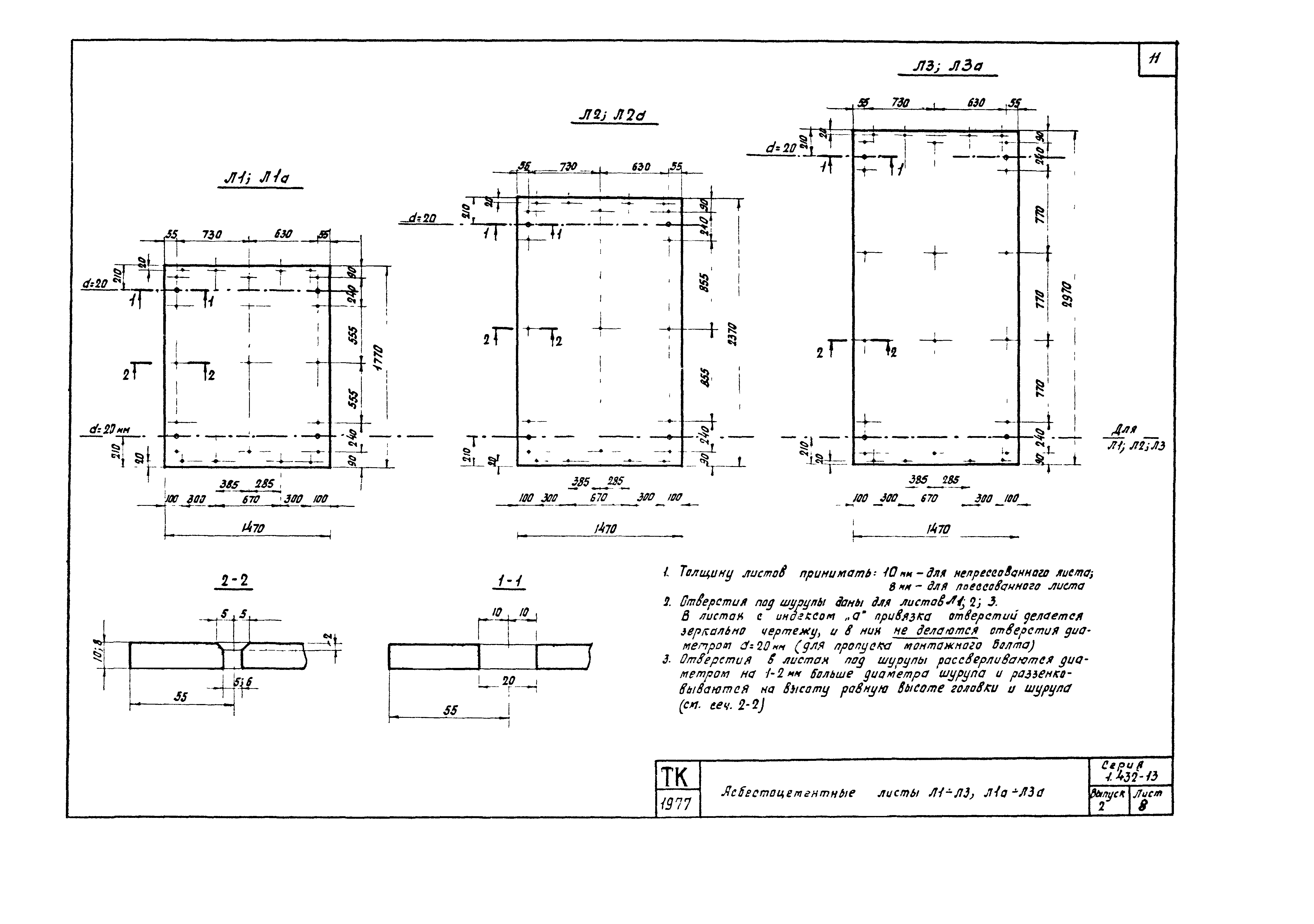
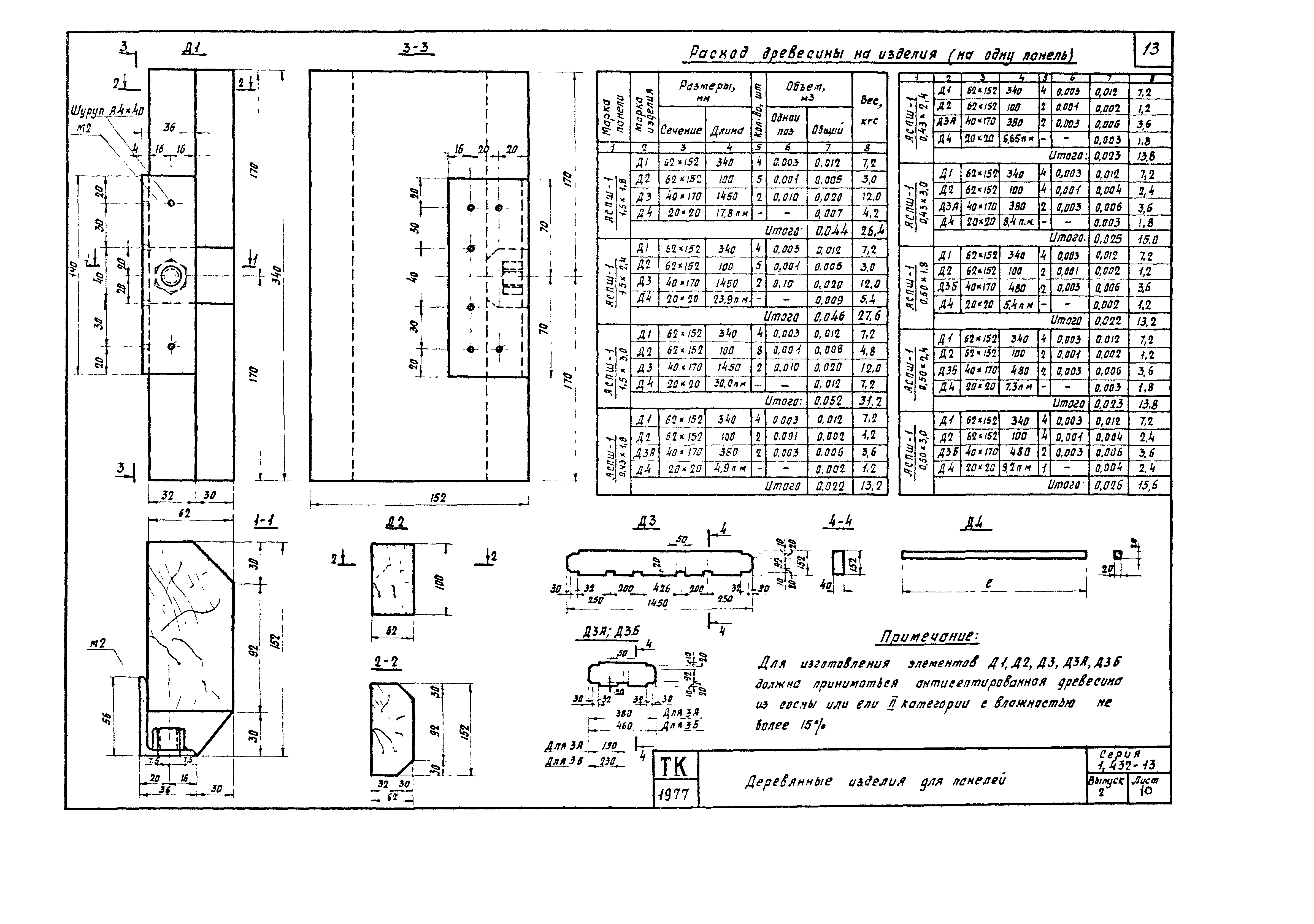
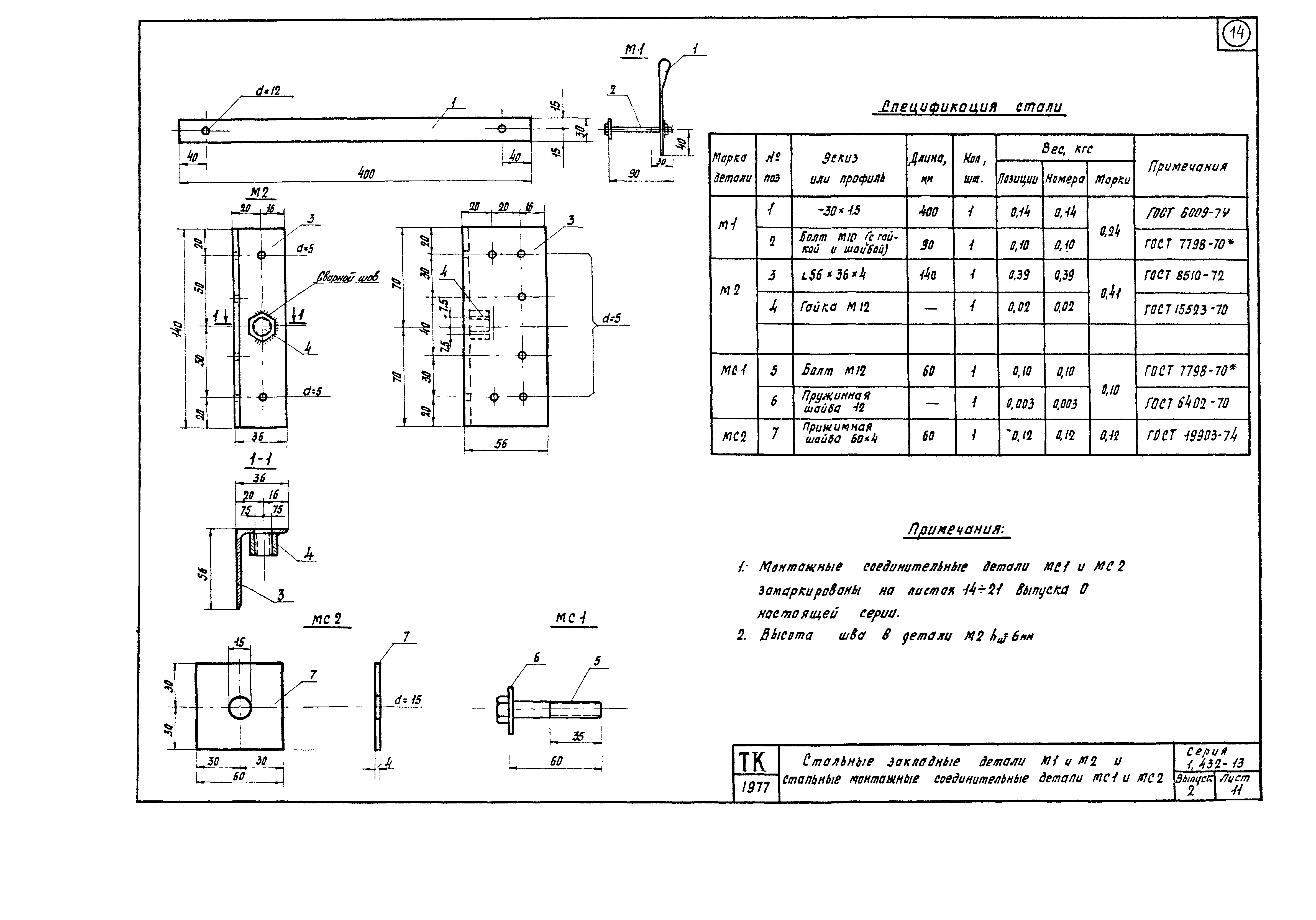
| Оглавление: | Содержание Пояснительная записка Номенклатура стеновых панелей Стеновая панель АСПШ-1/1,5х1,8 Стеновая панель АСПШ-1/1,5х2,4 Стеновая панель АСПШ-1/1,5х3,0 Доборные стеновые панели АСПШ-1/0,43х1,8; АСПШ-1/0,43х2,4; АСПШ-1/0,43х3,0; АСПШ-1/0,50х1,8; АСПШ-1/0,50х2,4; АСПШ-1/0,50х3,0 Узлы А, Б, В и Г Асбестоцементные швеллеры Ш1/ Ш8. Спецификация изделий на доборные панели Асбестоцементные листы Л1/ Л3; Л1а/ Л3а Асбестоцементные листы Л4/ Л9; Л4а/ Л9а Деревянные изделия для панелей Стальные закладные детали М1 и М2 и стальные монтажные соединительные детали МС1 и МС2 |
| Разработан: | ЦНИИСК им. В.А. Кучеренко ЦНИИпромзданий НИИСФ |
| Утверждён: | 17.11.1977 Госстрой СССР (Государственный комитет Совета Министров СССР по делам строительства) (USSR Gosstroy 74) |
| Нормативные ссылки: |
|














