Скачать Серия 1.138.1-18 Панели парапета трехслойные из тяжелого бетона с эффективным утеплителем для крупнопанельных жилых зданий с теплым чердаком. Рабочие чертежиДата актуализации: 01.01.2021
|
| Обозначение: | Серия 1.138.1-18 |
| Обозначение англ: | Series 1.138.1-18 |
| Статус: | не определен законодательством |
| Название рус.: | Панели парапета трехслойные из тяжелого бетона с эффективным утеплителем для крупнопанельных жилых зданий с теплым чердаком. Рабочие чертежи |
| Дата добавления в базу: | 01.09.2013 |
| Дата актуализации: | 01.01.2021 |
| Дата введения: | 15.05.1986 |
| Дата окончания срока действия: | 30.06.2003 |
| Область применения: | Панели разработаны для наружных несущих стен теплых чердаков 5 - 9 этажных жилых зданий, предназначенных для строительства во II и III климатических районах и в IВ климатическом подрайоне с расчетной зимней температурой до минус 40 градусов Цельсия и скоростным напором ветра до 45 кгс/кв. м (I - III ветровой районы) на грунтах с обычным инженерно-геологическими условиями |
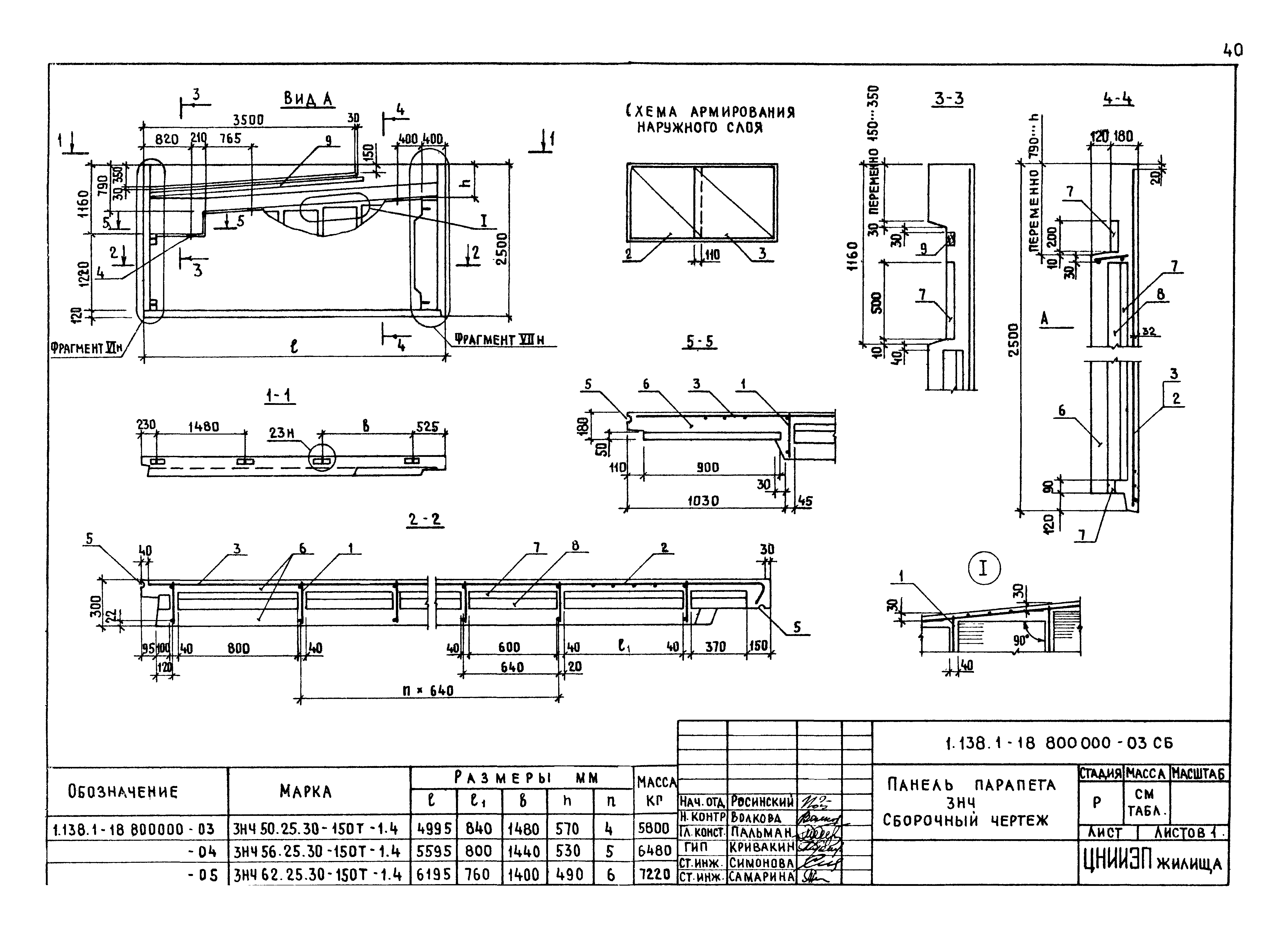
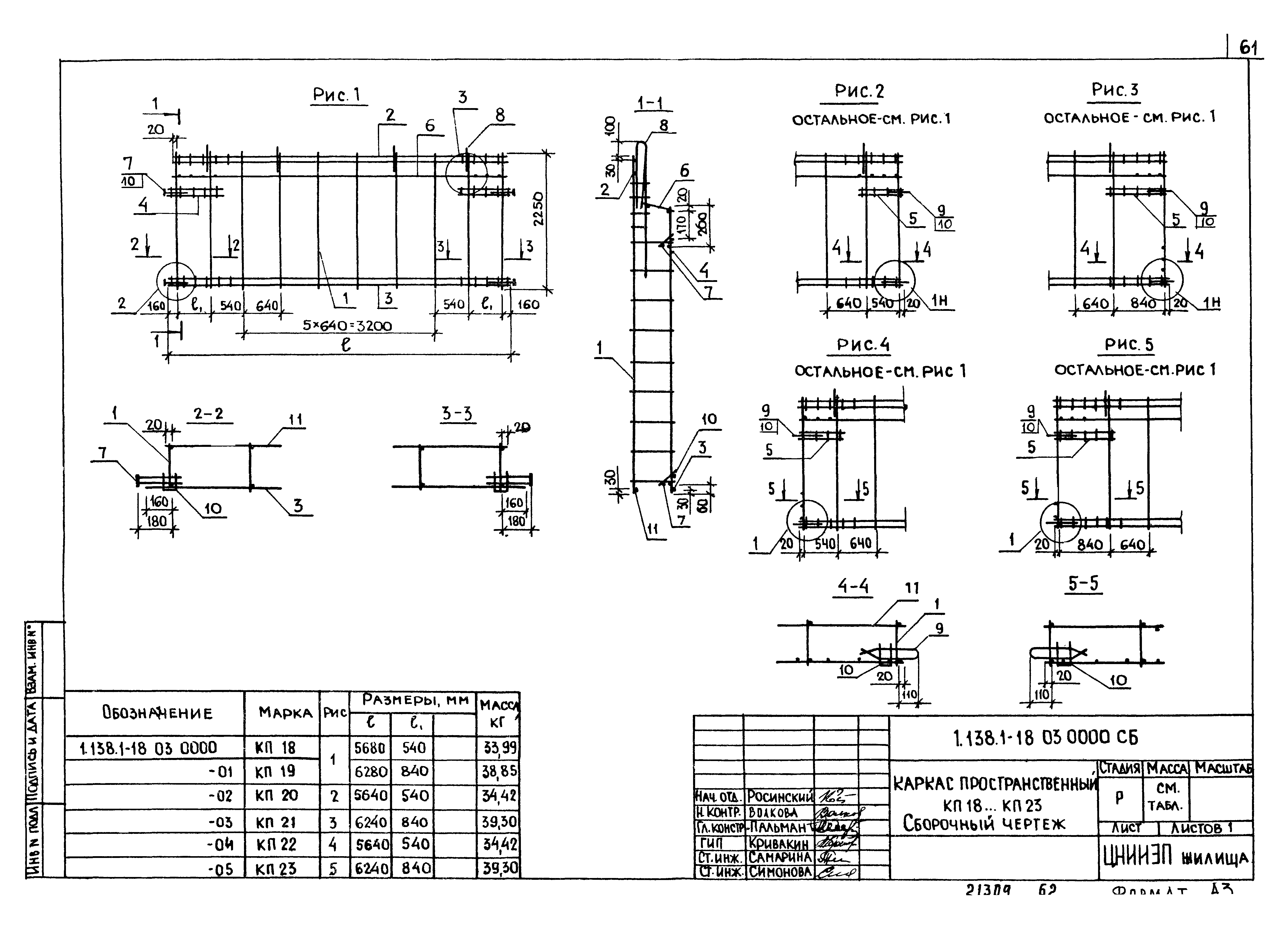
| Оглавление: | 1.138.18 000000 ТО Техническое описание 1.138.18 100000 Панель парапета 3нч 1.138.18 100000 СБ Панель парапета 3нч. Сборочный чертеж 1.138.18 200000 Панель парапета 3нч 1.138.18 200000 СБ Панель парапета 3нч. Сборочный чертеж 1.138.18 200000-04 СБ Панель парапета 3нч. Сборочный чертеж 1.138.18 300000 Панель парапета 3нч 1.138.18 300000 СБ Панель парапета 3нч. Сборочный чертеж 1.138.18 400000 Панель парапета 3нч 1.138.18 400000 СБ Панель парапета 3нч. Сборочный чертеж 1.138.18 500000 Панель парапета 3нч 1.138.18 500000 СБ Панель парапета 3нч. Сборочный чертеж 1.138.18 500000-04 СБ Панель парапета 3нч. Сборочный чертеж 1.138.18 600000 Панель парапета 3нч 1.138.18 600000 СБ Панель парапета 3нч. Сборочный чертеж 1.138.18 600000-04 СБ Панель парапета 3нч. Сборочный чертеж 1.138.18 600000-10 СБ Панель парапета 3нч. Сборочный чертеж 1.138.18 600000-14 СБ Панель парапета 3нч. Сборочный чертеж 1.138.18 700000 Панель парапета 3нч 1.138.18 700000 СБ Панель парапета 3нч. Сборочный чертеж 1.138.18 700000-04 СБ Панель парапета 3нч. Сборочный чертеж 1.138.18 800000 Панель парапета 3нч 1.138.18 800000 СБ Панель парапета 3нч. Сборочный чертеж 1.138.18 800000-03 СБ Панель парапета 3нч. Сборочный чертеж 1.138.18 900000 Панель парапета 3нч 1.138.18 900000 СБ Панель парапета 3нч. Сборочный чертеж 1.138.18 900000-06 СБ Панель парапета 3нч. Сборочный чертеж 1.138.18 000000 Д1 Фрагмент I, II, III, IV 1.138.18 000000 Д2 Фрагмент V, VI, VII 1.138.18 000000 Д3 Фрагмент VIII, IX, X, XI 1.138.18 000000 Д4 Узлы 1… 7 1.138.18 000000 Д5 Узлы 8… 13 1.138.18 000000 Д6 Узлы 14, 15, 16 1.138.18 000000 Д7 Узлы 17… 20 1.138.18 000000 Д8 Узлы 21, 22, 23 1.138.18 000000 Д9 Узлы 24… 27 1.138.18 000000 Д10 Узлы 28… 35 1.138.18 010000 Каркас пространственный КП1… КП11 1.138.18 010000 СБ Каркас пространственный КП1… КП11. Сборочный чертеж 1.138.18 020000 Каркас пространственный КП12… КП17 1.138.18 020000 СБ Каркас пространственный КП12… КП17. Сборочный чертеж 1.138.18 030000 Каркас пространственный КП18… КП23 1.138.18 030000 СБ Каркас пространственный КП18… КП23. Сборочный чертеж 1.138.18 040000 Каркас пространственный КП24, КП25, КП26 1.138.18 040000 СБ Каркас пространственный КП24, КП25, КП26. Сборочный чертеж 1.138.18 040000-03 СБ Каркас пространственный КП27, КП28, КП29. Сборочный чертеж 1.138.18 050000 Каркас пространственный КП30, КП31, КП32 1.138.18 050000 СБ Каркас пространственный КП30, КП31, КП32. Сборочный чертеж 1.138.18 000000 Д11 Узлы арматурные 1, 2, 3 1.138.18 000100 Каркас КР1… КР4 1.138.18 000200 Каркас КР5… КР15 1.138.18 000300 Каркас КР16… КР27 1.138.18 000400 Каркас КР28… КР37 1.138.18 000500 Каркас КР38… КР47 1.138.18 000600 Каркас КР48… КР56 1.138.18 000700 Каркас КР57… КР63 1.138.18 000800 Сетка С1… С11 1.138.18 000900 Сетка С12… С21 1.138.18 001000 Изделие закладное МН1 1.138.18 001100 Сетка СП1, СП2, СП3 1.138.18 001200 Петля строповочная ПС1… ПС4 1.138.18 001300 Изделие закладное МН2 1.138.18 000001 Стержень гнутый АН1, АН2, АН3 1.138.18 000000 РС Ведомость расхода стали 1.138.18 000000 РМ Ведомость расхода стали материалов |
| Разработан: | ЦНИИЭП жилища |
| Утверждён: | 30.04.1986 Госгражданстрой (Gosgrazhdanstroy 153) |
| Издан: | ЦИТП Госстроя СССР (CITP, Gosstroy (USSR) 1986 г. ) |
| Нормативные ссылки: |
|





























































































