Скачать Серия 1.131-2/82 Выпуск 1. Панели внутренних поперечных стен толщиной 120 и 160 мм. Рабочие чертежиДата актуализации: 01.01.2021
|
| Обозначение: | Серия 1.131-2/82 |
| Обозначение англ: | Series 1.131-2/82 |
| Статус: | действует |
| Название рус.: | Выпуск 1. Панели внутренних поперечных стен толщиной 120 и 160 мм. Рабочие чертежи |
| Дата добавления в базу: | 01.09.2013 |
| Дата актуализации: | 01.01.2021 |
| Дата введения: | 30.07.1984 |
| Область применения: | Стеновые панели предназначены для 5 - и 9 - этажных зданий, запроектированных с размерами планировочной сетки, кратными 600 мм |
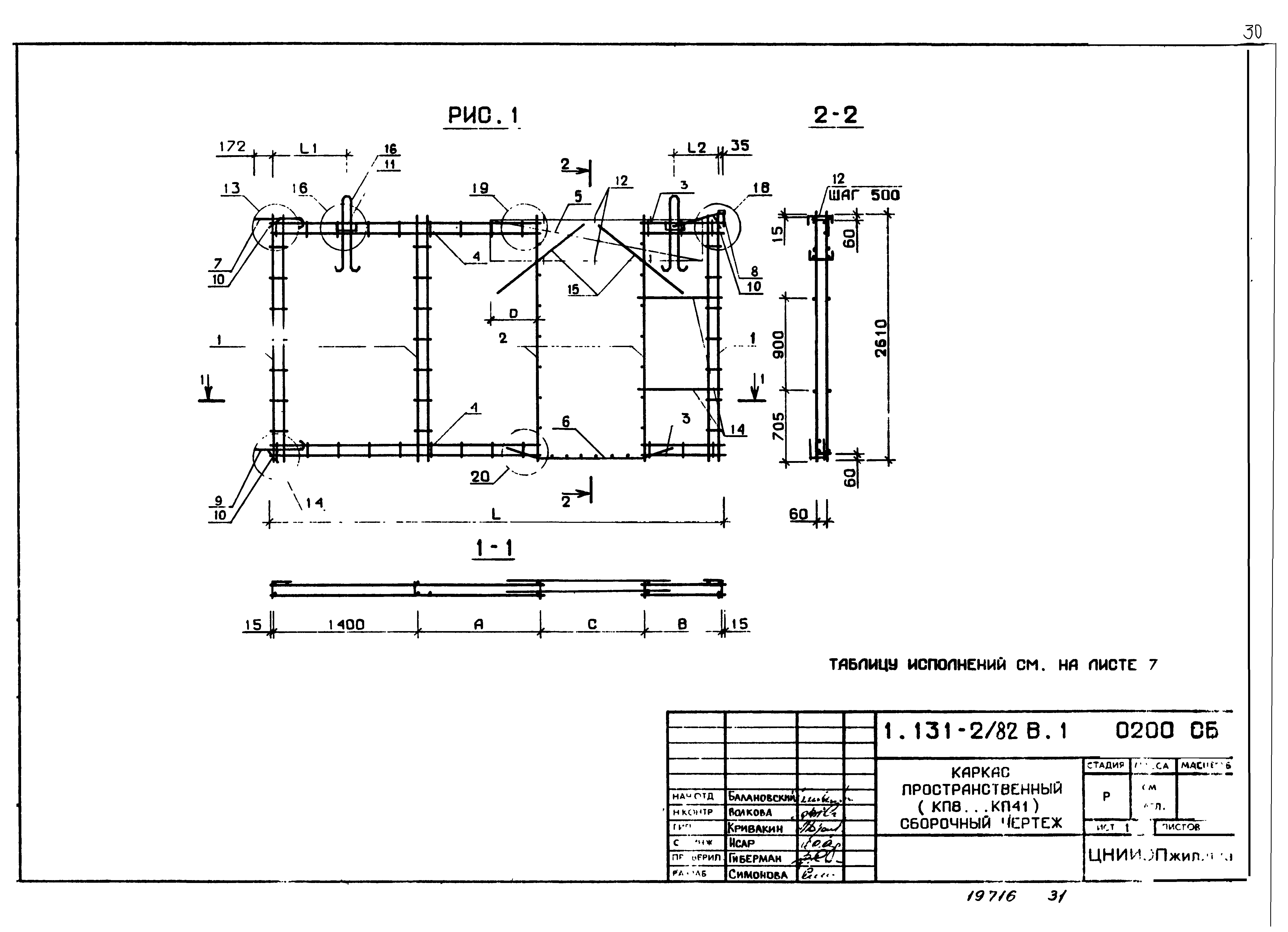
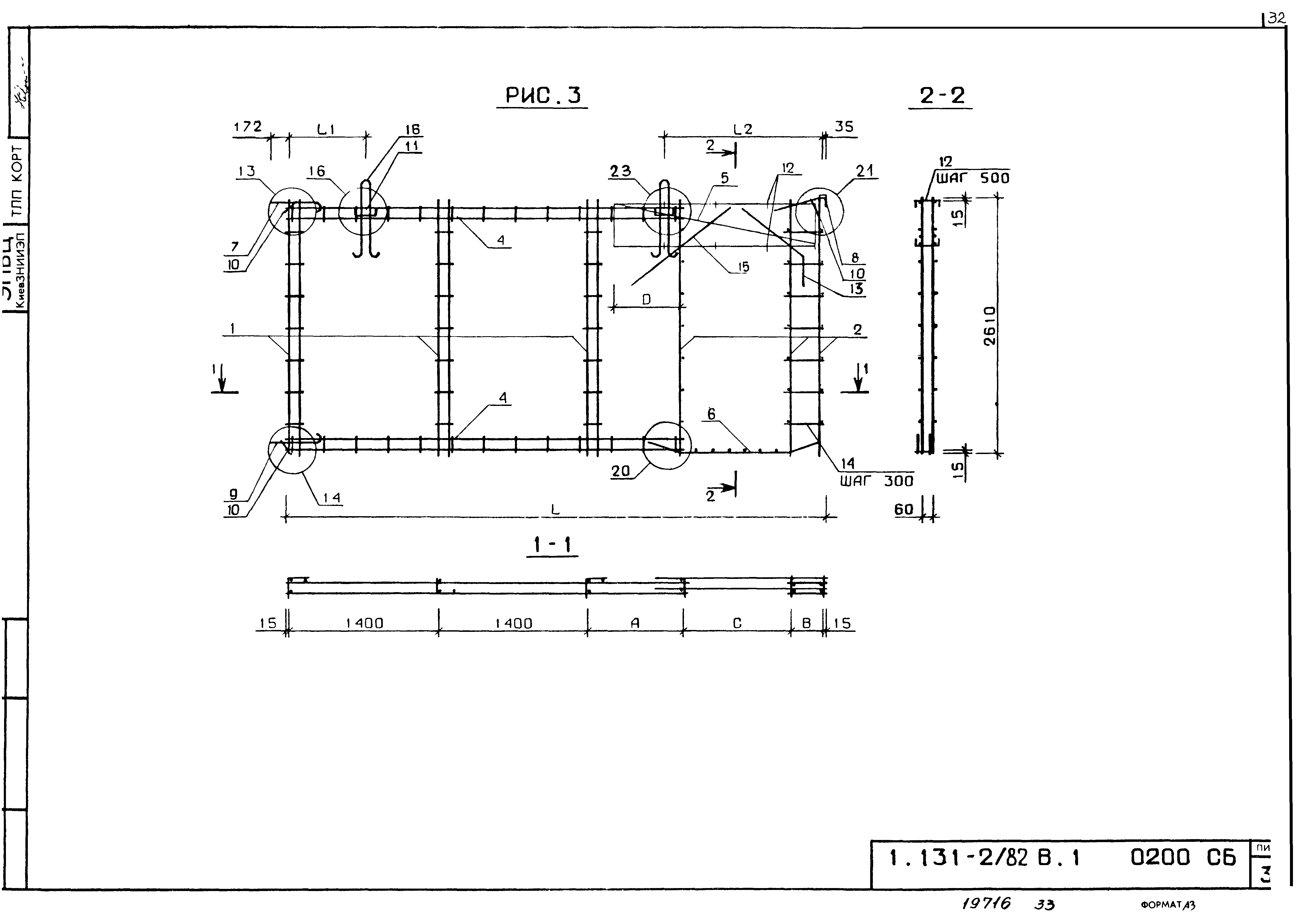
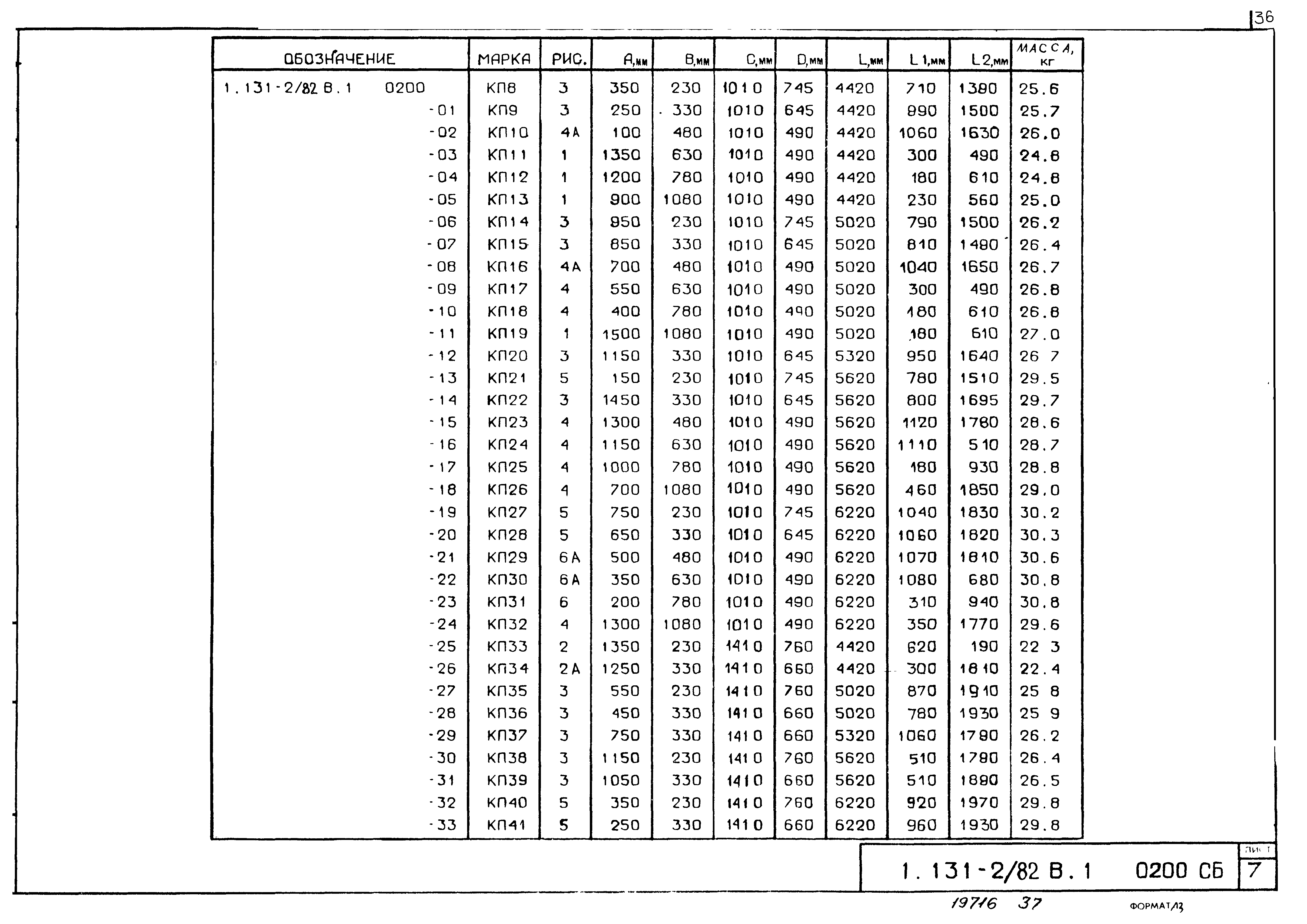
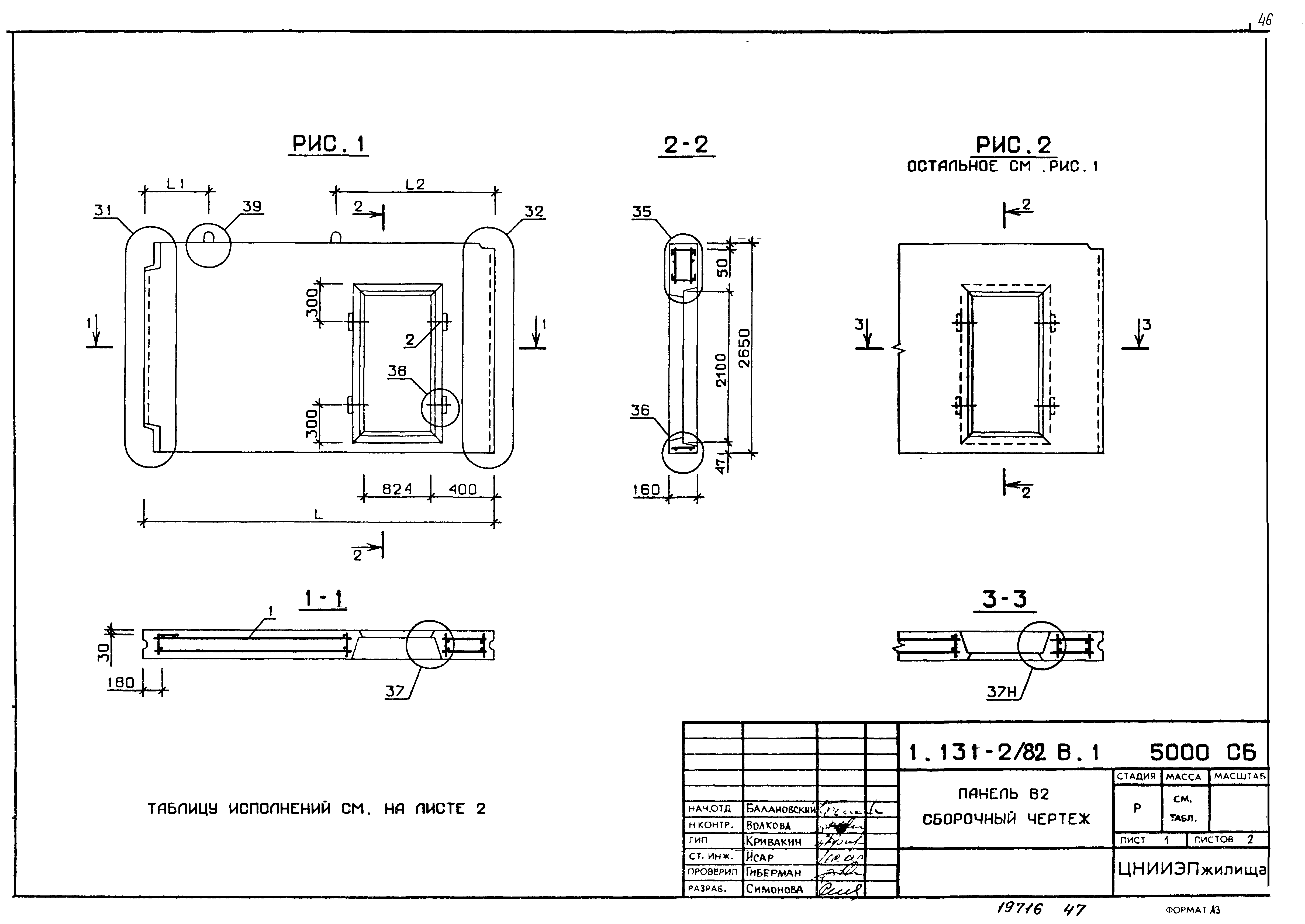
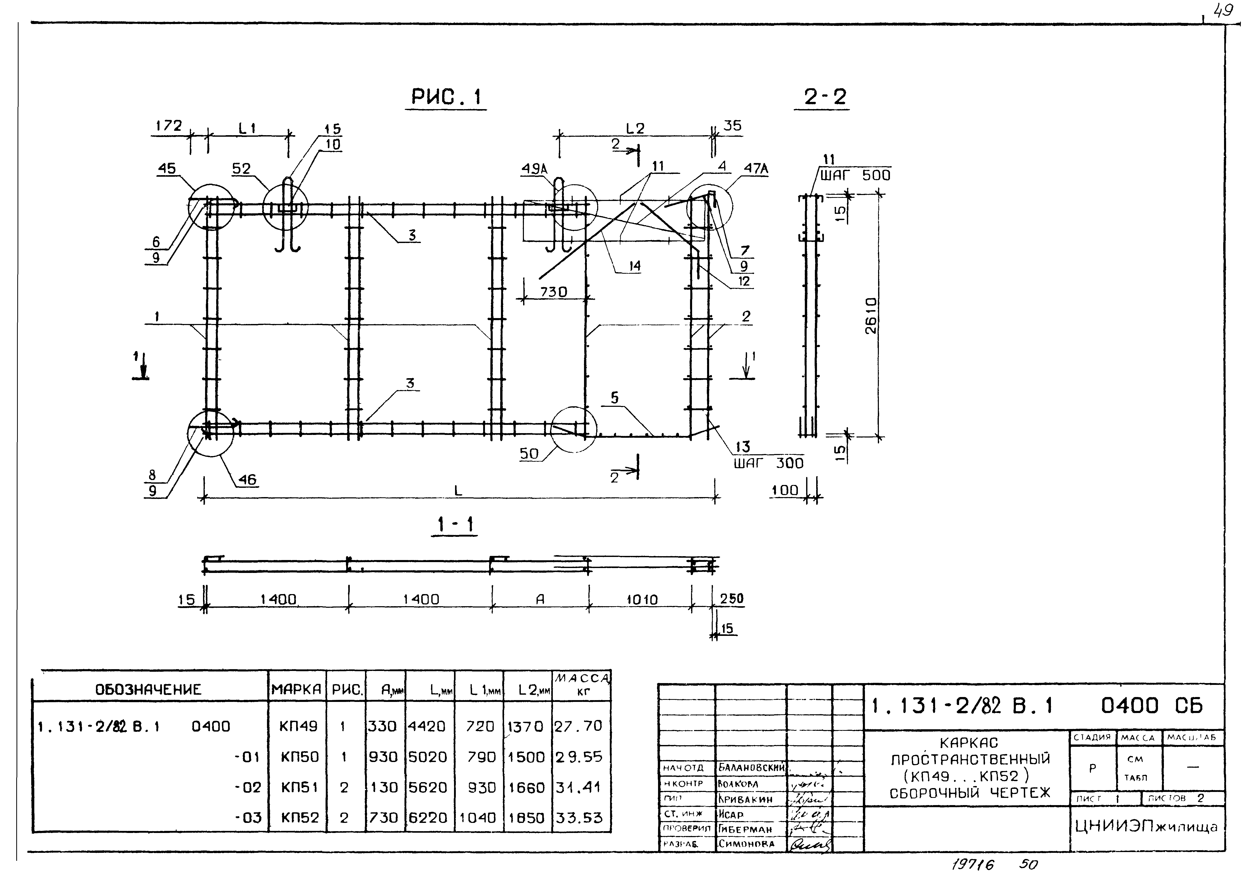
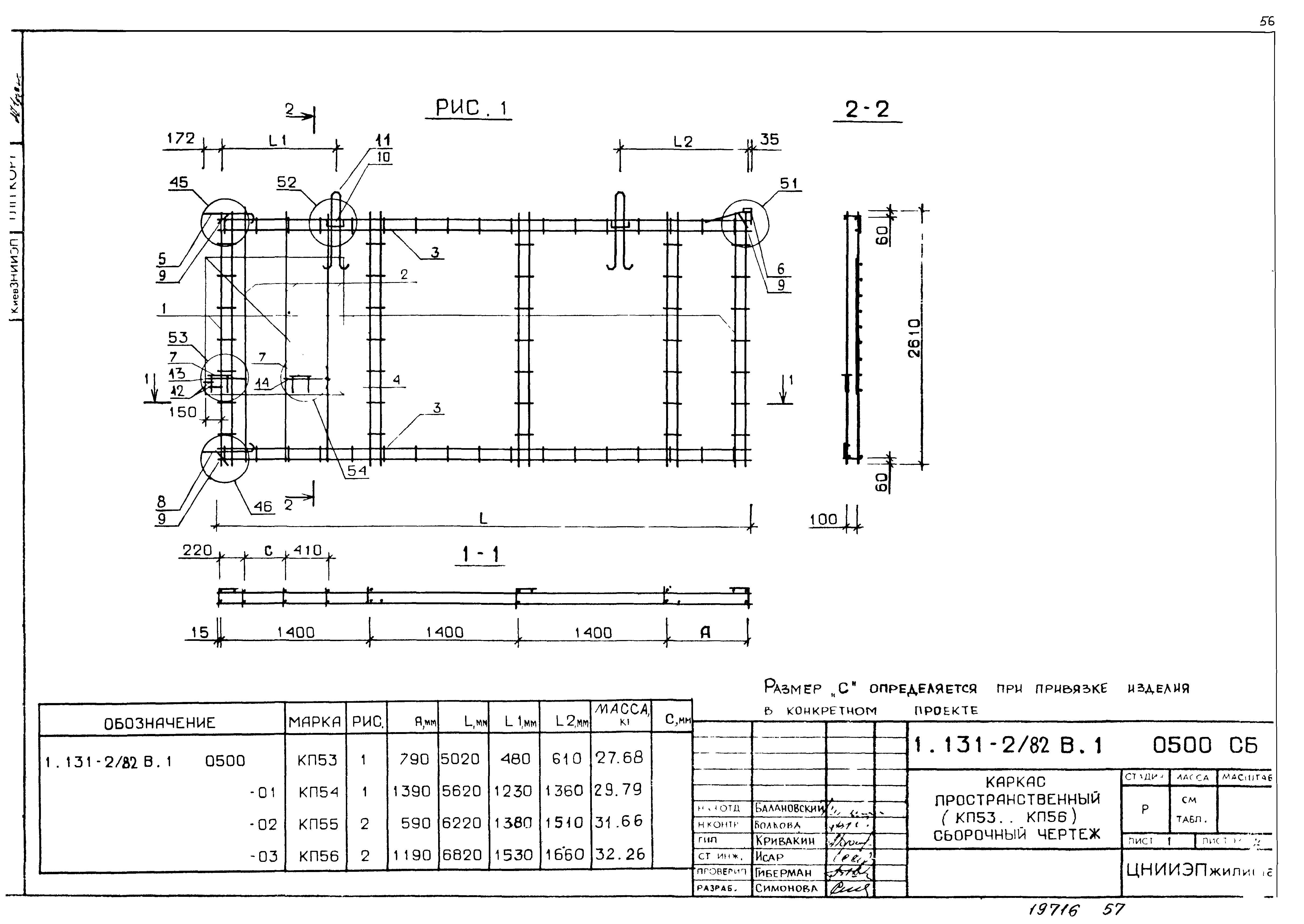
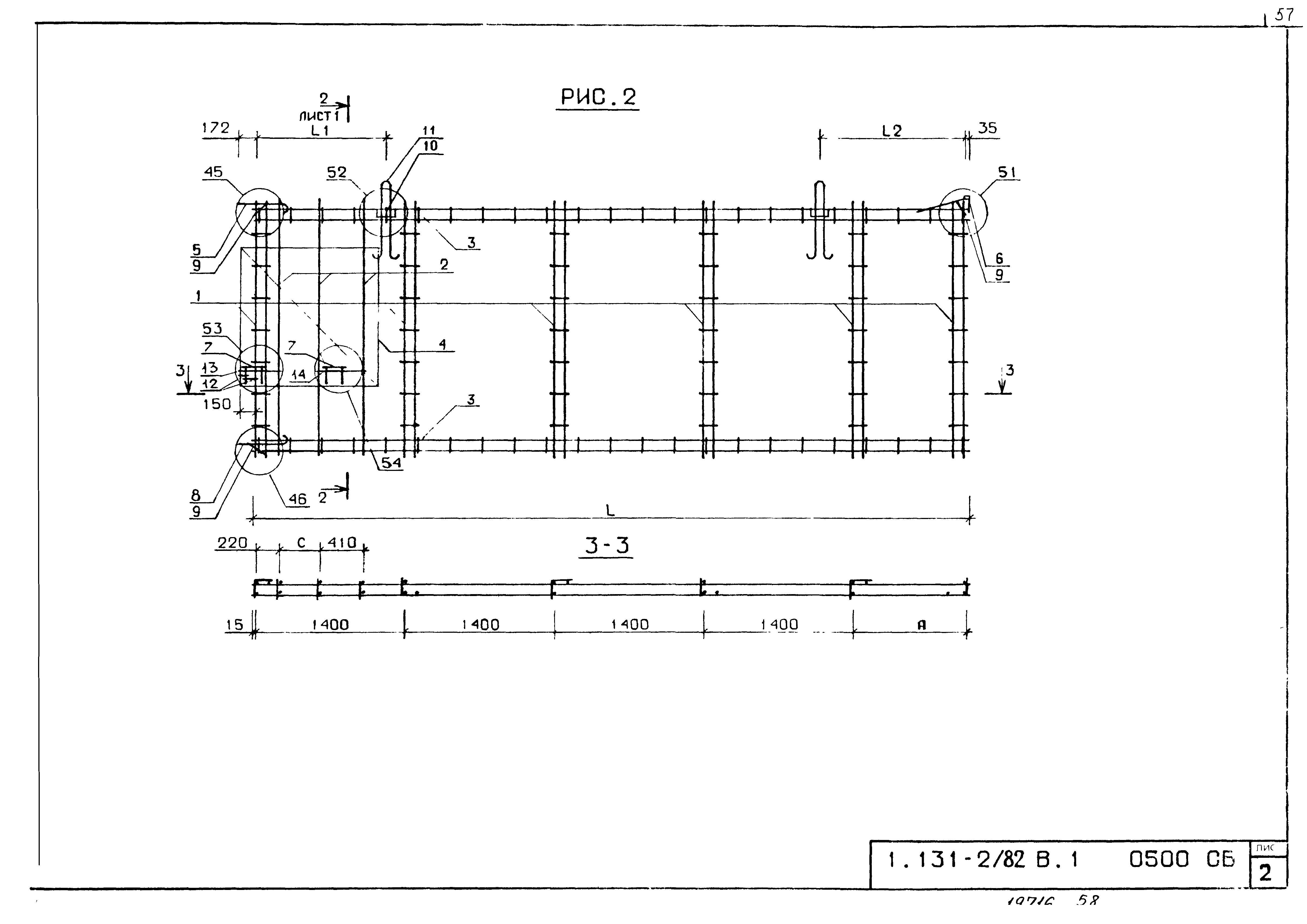
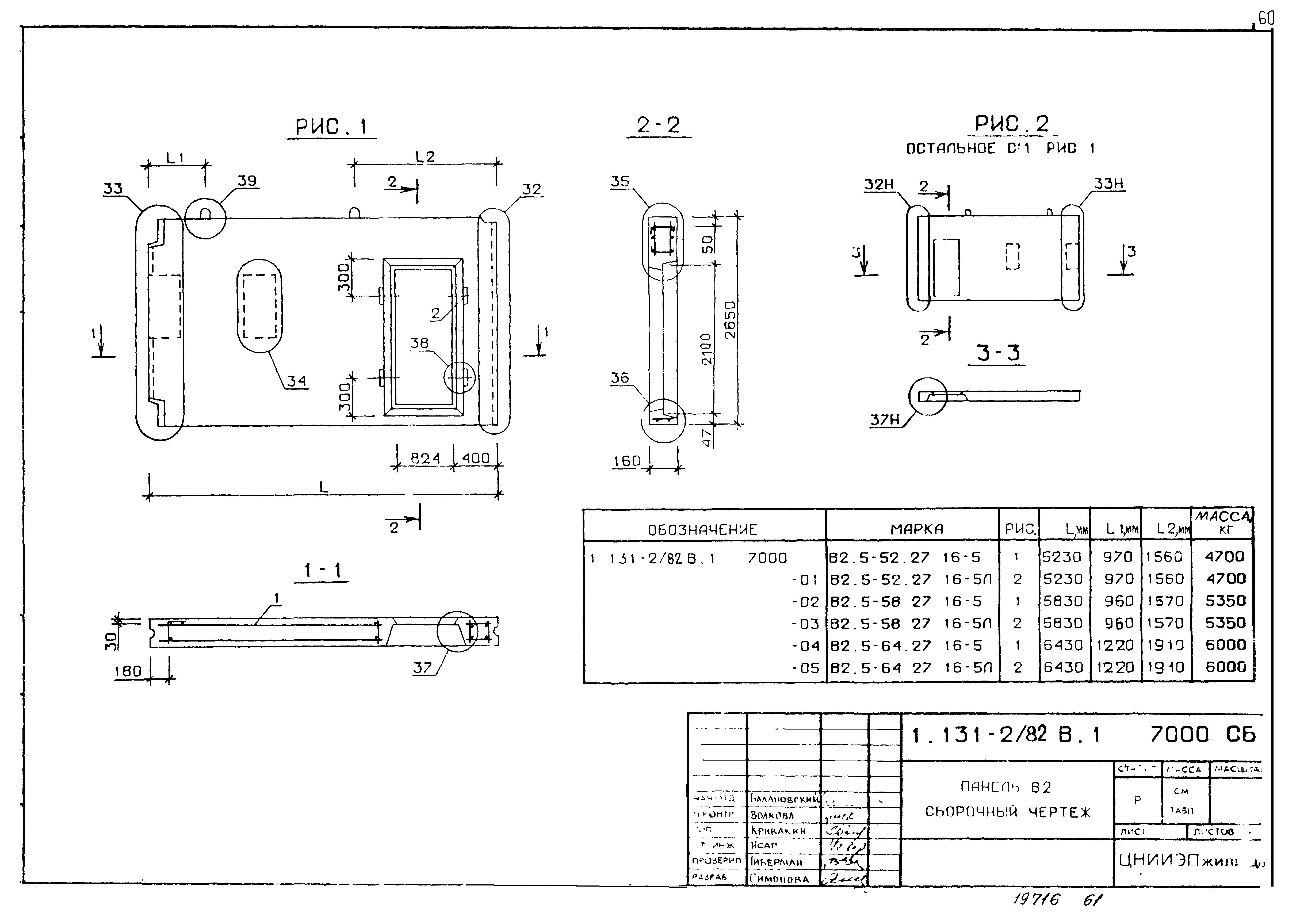
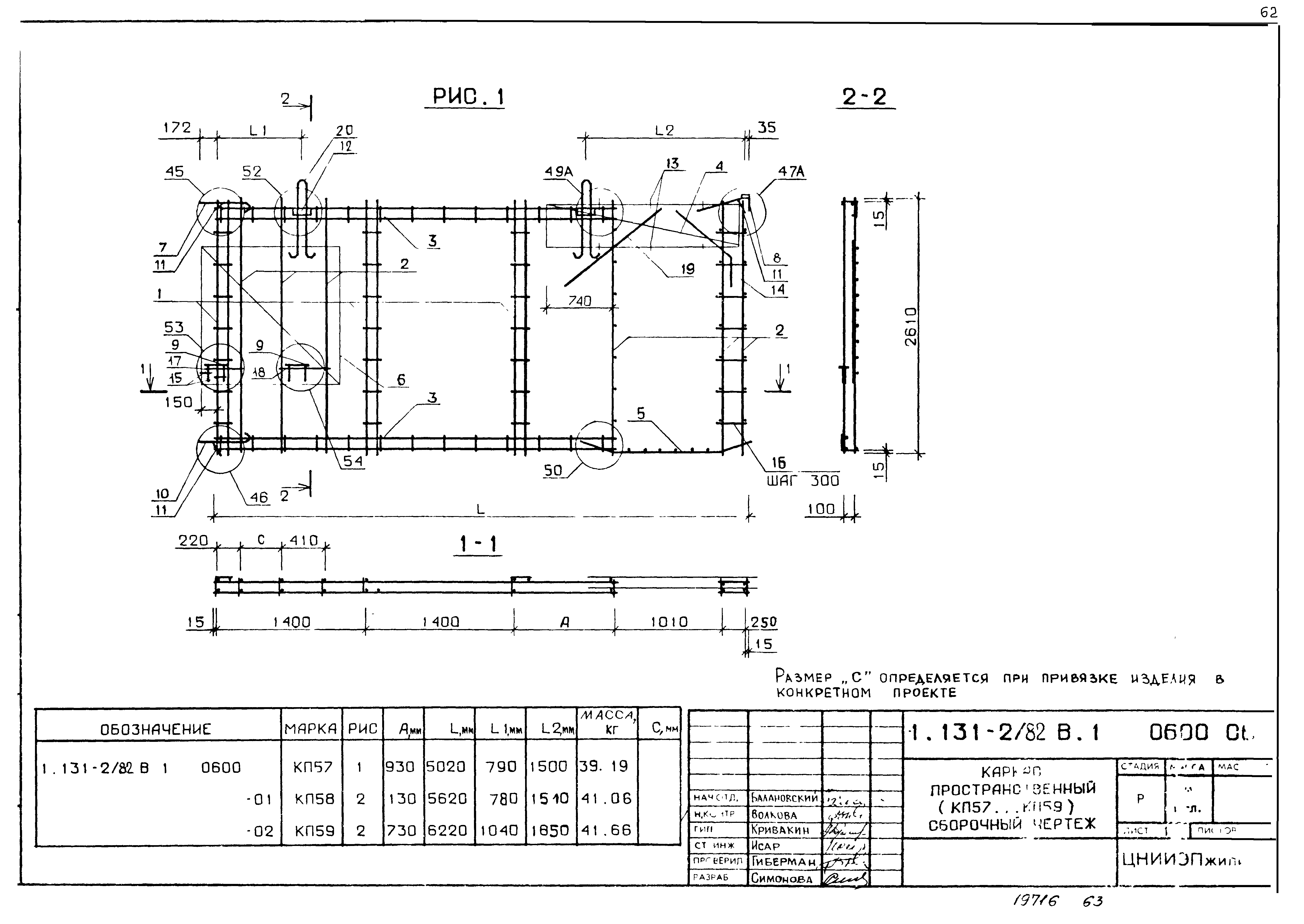
| Оглавление: | 1.131-2/82 В.1 0000 ТО Техническое описание 1.131-2/82 В.1 0000 Д1 Номенклатура панелей 1.131-2/82 В.1 1000 Панель В2: В2.3-40.27.12-1 1.131-2/82 В.1 1000-01 Панель В2: В2.3-46.27.12-1 1.131-2/82 В.1 1000-02 Панель В2: В2.3-52.27.12-1 1.131-2/82 В.1 1000-03 Панель В2: В2.3-55.27.12-1 1.131-2/82 В.1 1000-04 Панель В2: В2.3-58.27.12-1 1.131-2/82 В.1 1000-05 Панель В2: В2.3-64.27.12-1 1.131-2/82 В.1 1000-06 Панель В2: В2.3-70.27.12-1 1.131-2/82 В.1 1000 СБ Панель В2. Сборочный чертеж 1.131-2/82 В.1 0100 Каркас пространственный (КП1… КП7) 1.131-2/82 В.1 0100 СБ Каркас пространственный (КП1… КП7). Сборочный чертеж 1.131-2/82 В.1 1000 Д2 Ведомость расхода материалов 1.131-2/82 В.1 2000 Панель В4: В4.3-40.27.12-1 1.131-2/82 В.1 2000-01 Панель В4: В4.3-40.27.12-1л 1.131-2/82 В.1 2000-02 Панель В4: В4.3-46.27.12-1 1.131-2/82 В.1 2000-03 Панель В4: В4.3-46.27.12-1л 1.131-2/82 В.1 2000-04 Панель В4: В4.3-52.27.12-1 1.131-2/82 В.1 2000-05 Панель В4: В4.3-52.27.12-1л 1.131-2/82 В.1 2000-06 Панель В4: В4.3-58.27.12-1 1.131-2/82 В.1 2000-07 Панель В4: В4.3-58.27.12-1л 1.131-2/82 В.1 2000-08 Панель В4: В4.3-64.27.12-1 1.131-2/82 В.1 2000-09 Панель В4: В4.3-64.27.12-1л 1.131-2/82 В.1 2000-10 Панель В4: В4.3-70.27.12-1 1.131-2/82 В.1 2000-11 Панель В4: В4.3-70.27.12-1л 1.131-2/82 В.1 2000 СБ Панель В4. Сборочный чертеж 1.131-2/82 В.1 2000 Д3 Ведомость расхода материалов 1.131-2/82 В.1 3000 Панель В2: В2.3-46.27.12-2.1 1.131-2/82 В.1 3000-01 Панель В2: В2.3-46.27.12-2.2 1.131-2/82 В.1 3000-02 Панель В2: В2.3-46.27.12-2.3 1.131-2/82 В.1 3000-03 Панель В2: В2.3-46.27.12-2.4 1.131-2/82 В.1 3000-04 Панель В2: В2.3-46.27.12-2.5 1.131-2/82 В.1 3000-05 Панель В2: В2.3-46.27.12-2.6 1.131-2/82 В.1 3000-06 Панель В2: В2.3-52.27.12-2.1 1.131-2/82 В.1 3000-07 Панель В2: В2.3-52.27.12-2.2 1.131-2/82 В.1 3000-08 Панель В2: В2.3-52.27.12-2.3 1.131-2/82 В.1 3000-09 Панель В2: В2.3-52.27.12-2.4 1.131-2/82 В.1 3000-10 Панель В2: В2.3-52.27.12-2.5 1.131-2/82 В.1 3000-11 Панель В2: В2.3-52.27.12-2.6 1.131-2/82 В.1 3000-12 Панель В2: В2.3-55.27.12-2.2 1.131-2/82 В.1 3000-13 Панель В2: В2.3-58.27.12-2.1 1.131-2/82 В.1 3000-14 Панель В2: В2.3-58.27.12-2.2 1.131-2/82 В.1 3000-15 Панель В2: В2.3-58.27.12-2.3 1.131-2/82 В.1 3000-16 Панель В2: В2.3-58.27.12-2.4 1.131-2/82 В.1 3000-17 Панель В2: В2.3-58.27.12-2.5 1.131-2/82 В.1 3000-18 Панель В2: В2.3-58.27.12-2.6 1.131-2/82 В.1 3000-19 Панель В2: В2.3-64.27.12-2.1 1.131-2/82 В.1 3000-20 Панель В2: В2.3-64.27.12-2.2 1.131-2/82 В.1 3000-21 Панель В2: В2.3-64.27.12-2.3 1.131-2/82 В.1 3000-22 Панель В2: В2.3-64.27.12-2.4 1.131-2/82 В.1 3000-23 Панель В2: В2.3-64.27.12-2.5 1.131-2/82 В.1 3000-24 Панель В2: В2.3-64.27.12-2.6 1.131-2/82 В.1 3000-25 Панель В2: В2.3-46.27.12-6.1 1.131-2/82 В.1 3000-26 Панель В2: В2.3-46.27.12-6.2 1.131-2/82 В.1 3000-27 Панель В2: В2.3-52.27.12-6.1 1.131-2/82 В.1 3000-28 Панель В2: В2.3-52.27.12-6.2 1.131-2/82 В.1 3000-29 Панель В2: В2.3-55.27.12-6.2 1.131-2/82 В.1 3000-30 Панель В2: В2.3-58.27.12-6.1 1.131-2/82 В.1 3000-31 Панель В2: В2.3-58.27.12-6.2 1.131-2/82 В.1 3000-32 Панель В2: В2.3-64.27.12-6.1 1.131-2/82 В.1 3000-33 Панель В2: В2.3-64.27.12-6.2 1.131-2/82 В.1 3000 СБ Панель В2. Сборочный чертеж 1.131-2/82 В.1 0200 Каркас пространственный (КП8… КП41) 1.131-2/82 В.1 0200 СБ Каркас пространственный (КП8… КП41). Сборочный чертеж 1.131-2/82 В.1 3000 Д4 Ведомость расхода материалов 1.131-2/82 В.1 4000 Панель В2: В2.5-40.27.16-1 1.131-2/82 В.1 4000-01 Панель В2: В2.5-46.27.16-1 1.131-2/82 В.1 4000-02 Панель В2: В2.5-52.27.16-1 1.131-2/82 В.1 4000-03 Панель В2: В2.5-55.27.16-1 1.131-2/82 В.1 4000-04 Панель В2: В2.5-58.27.16-1 1.131-2/82 В.1 4000-05 Панель В2: В2.5-64.27.16-1 1.131-2/82 В.1 4000-06 Панель В2: В2.5-70.27.16-1 1.131-2/82 В.1 4000 СБ Панель В2. Сборочный чертеж 1.131-2/82 В.1 0300 Каркас пространственный (КП42… КП48) 1.131-2/82 В.1 0300 СБ Каркас пространственный (КП42… КП48). Сборочный чертеж 1.131-2/82 В.1 4000 Д5 Ведомость расхода материалов 1.131-2/82 В.1 5000 Панель В2: В2.5-46.27.16-2 1.131-2/82 В.1 4000-01 Панель В2: В2.5-46.27.16-2л 1.131-2/82 В.1 4000-02 Панель В2: В2.5-52.27.16-2 1.131-2/82 В.1 4000-02 Панель В2: В2.5-52.27.16-2л 1.131-2/82 В.1 4000-02 Панель В2: В2.5-58.27.16-2 1.131-2/82 В.1 4000-02 Панель В2: В2.5-58.27.16-2л 1.131-2/82 В.1 4000-02 Панель В2: В2.5-64.27.16-2 1.131-2/82 В.1 4000-02 Панель В2: В2.5-64.27.16-2л 1.131-2/82 В.1 5000 СБ Панель В2. Сборочный чертеж 1.131-2/82 В.1 0400 Каркас пространственный (КП49… КП52) 1.131-2/82 В.1 0400 СБ Каркас пространственный (КП49… КП52). Сборочный чертеж 1.131-2/82 В.1 5000 Д6 Ведомость расхода материалов 1.131-2/82 В.1 6000 Панель В2: В2.5-52.27.16-4 1.131-2/82 В.1 6000-01 Панель В2: В2.5-52.27.16-4л 1.131-2/82 В.1 6000-02 Панель В2: В2.5-58.27.16-4 1.131-2/82 В.1 6000-03 Панель В2: В2.5-58.27.16-4л 1.131-2/82 В.1 6000-04 Панель В2: В2.5-64.27.16-4 1.131-2/82 В.1 6000-05 Панель В2: В2.5-64.27.16-4л 1.131-2/82 В.1 6000-06 Панель В2: В2.5-70.27.16-4 1.131-2/82 В.1 6000-07 Панель В2: В2.5-70.27.16-4л 1.131-2/82 В.1 6000 СБ Панель В2. Сборочный чертеж 1.131-2/82 В.1 0500 Каркас пространственный (КП53… КП56) 1.131-2/82 В.1 0500 СБ Каркас пространственный (КП53… КП56). Сборочный чертеж 1.131-2/82 В.1 6000 Д7 Ведомость расхода материалов 1.131-2/82 В.1 7000 Панель В2: В2.5-52.27.16-5 1.131-2/82 В.1 7000-01 Панель В2: В2.5-52.27.16-5л 1.131-2/82 В.1 7000-02 Панель В2: В2.5-58.27.16-5 1.131-2/82 В.1 7000-03 Панель В2: В2.5-58.27.16-5л 1.131-2/82 В.1 7000-04 Панель В2: В2.5-64.27.16-5 1.131-2/82 В.1 7000-05 Панель В2: В2.5-64.27.16-5л 1.131-2/82 В.1 7000 СБ Панель В2. Сборочный чертеж 1.131-2/82 В.1 0600 Каркас пространственный (КП57… КП59) 1.131-2/82 В.1 0600 СБ Каркас пространственный (КП57… КП59). Сборочный чертеж 1.131-2/82 В.1 7000 Д7 Ведомость расхода материалов |
| Разработан: | ЦНИИЭП жилища |
| Утверждён: | 25.06.1984 Госгражданстрой (Gosgrazhdanstroy 172) |
| Нормативные ссылки: |
|

































































