Скачать Серия 1.134.1-15 Выпуск 1-1. Блоки толщиной 200 мм. Рабочие чертежиДата актуализации: 01.01.2021
|
| Обозначение: | Серия 1.134.1-15 |
| Обозначение англ: | Series 1.134.1-15 |
| Статус: | не определен законодательством |
| Название рус.: | Выпуск 1-1. Блоки толщиной 200 мм. Рабочие чертежи |
| Дата добавления в базу: | 01.09.2013 |
| Дата актуализации: | 01.01.2021 |
| Дата введения: | 20.06.1986 |
| Дата окончания срока действия: | 30.06.2003 |
| Область применения: | Разработка рабочих чертежей блоков внутренних стен для жилых зданий высотой 1 - 4 этажа и общественных зданий высотой 1 - 3 этажа |
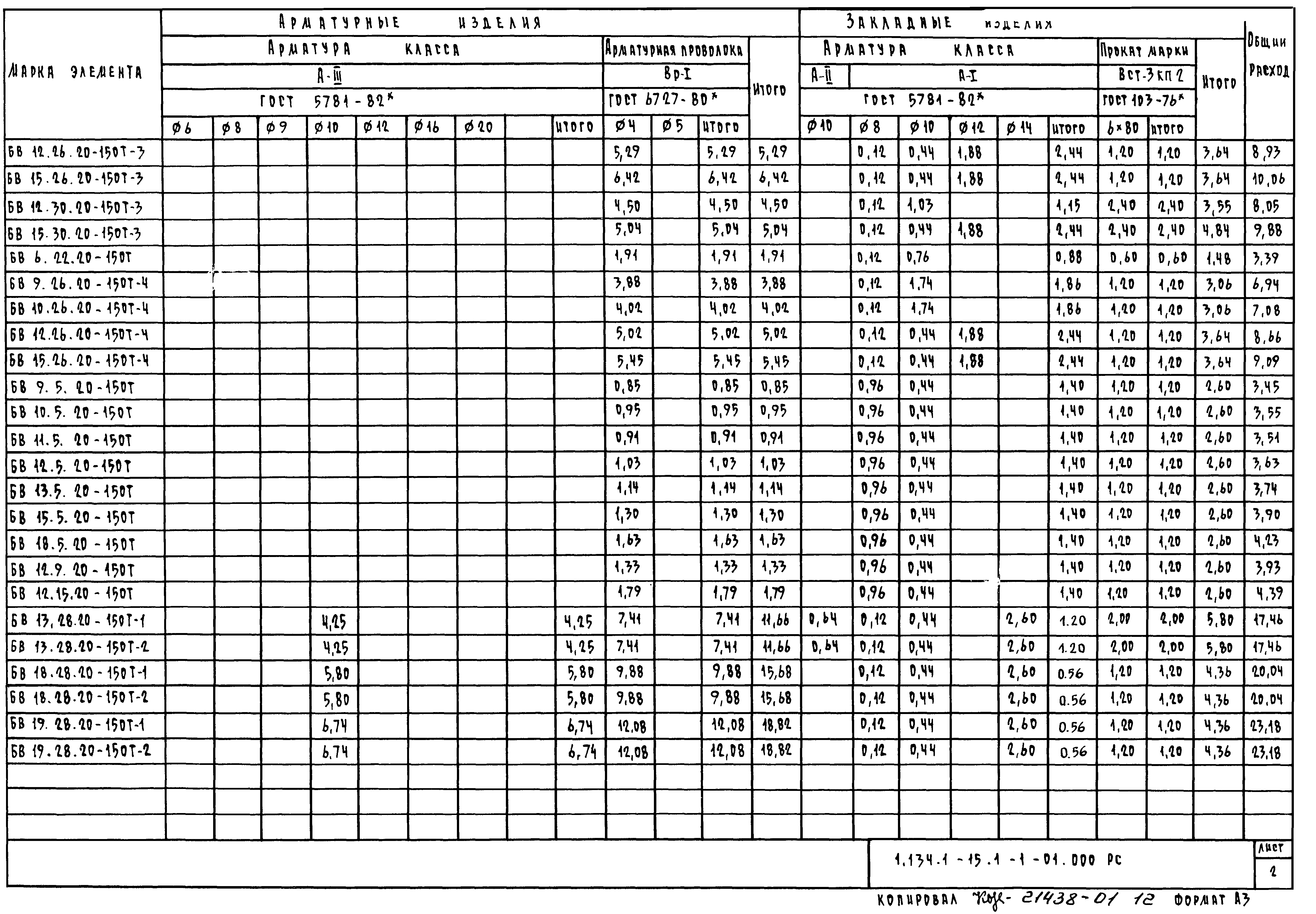
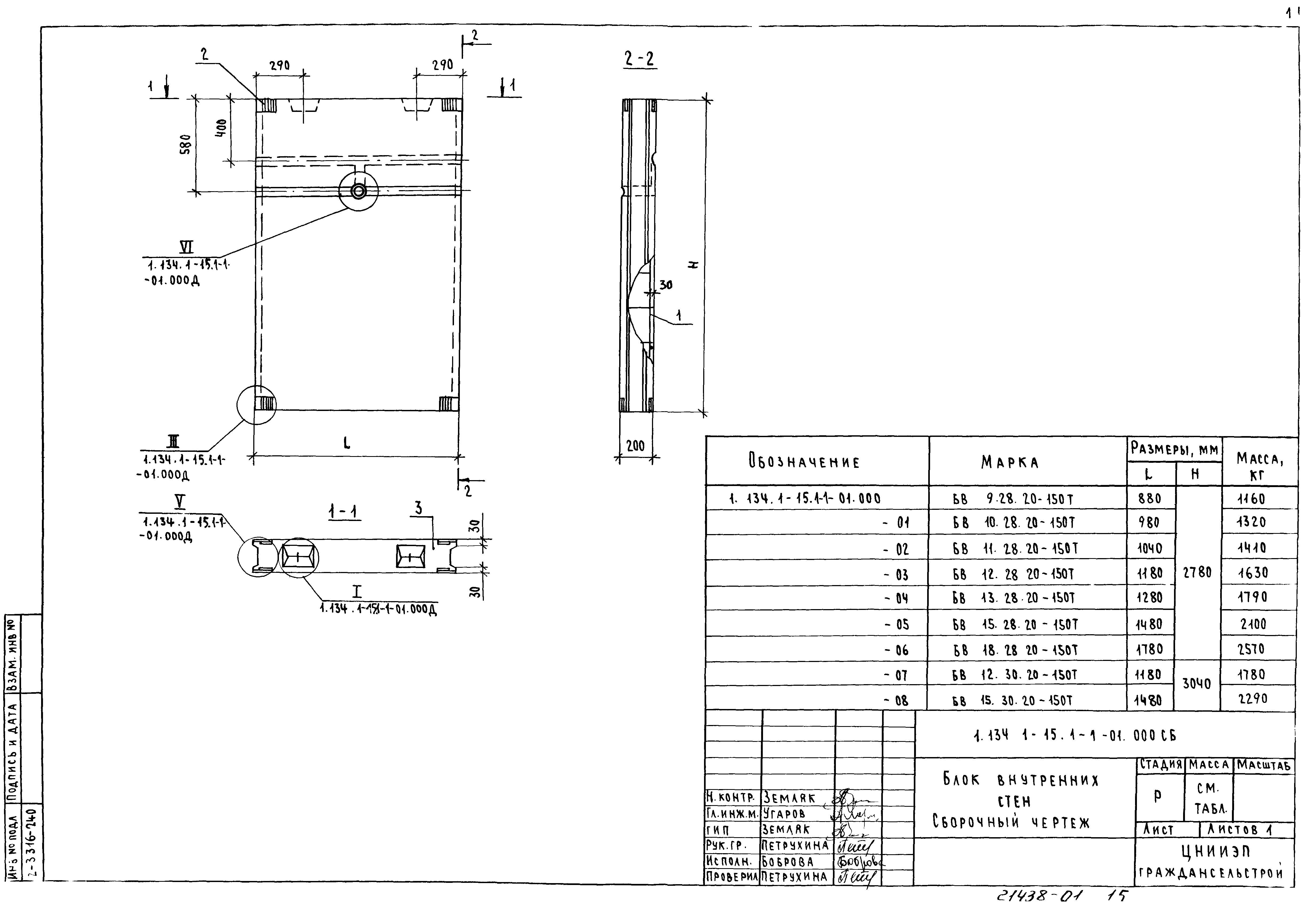
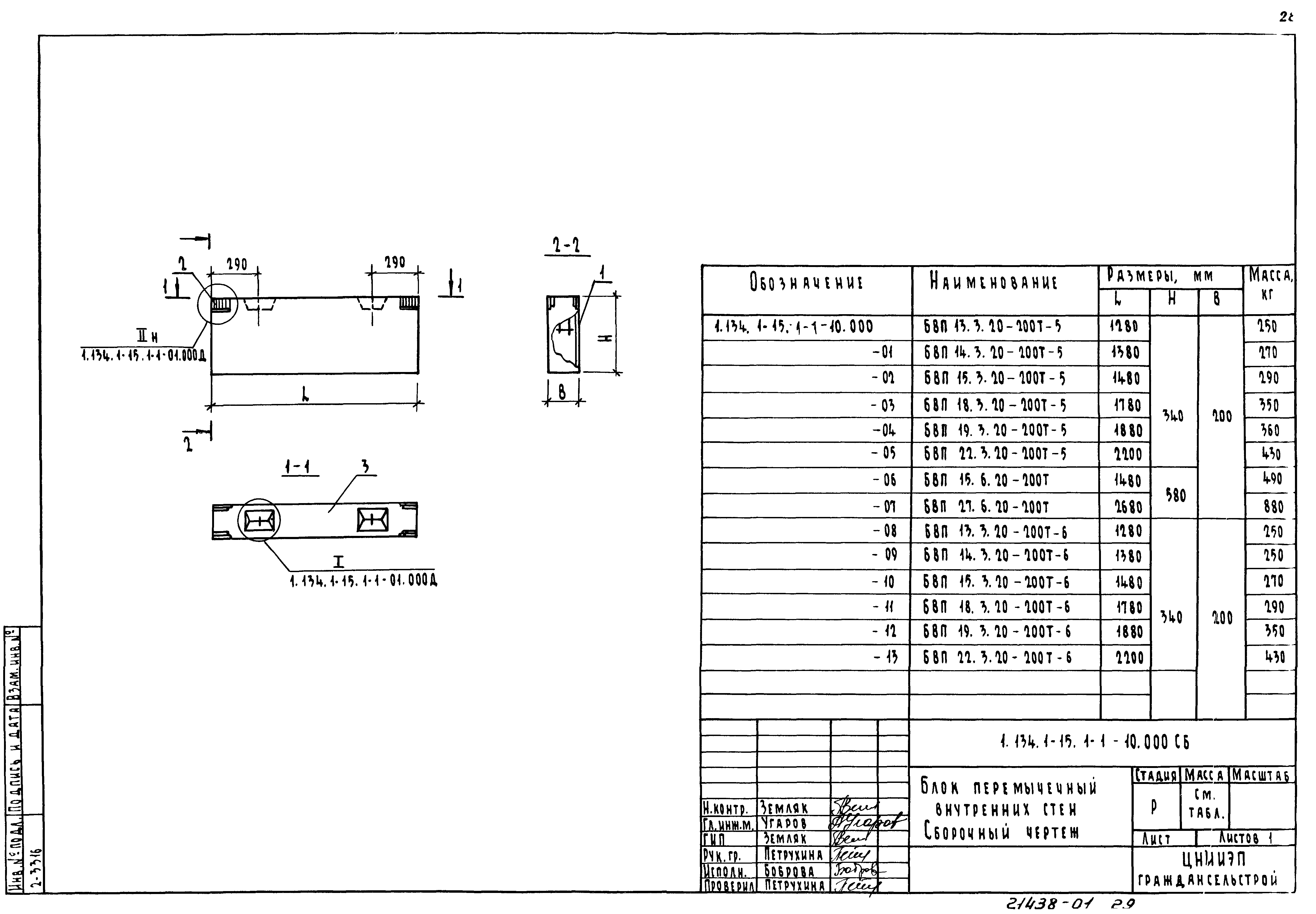
| Оглавление: | 1.134.1-15.1-1-00.000 ТО Техническое описание 1.134.1-15.1-1-00.000 НИ Номенклатура 1.134.1-15.1-1-00.000 РС Ведомость расхода стали, кг 1.134.1-15.1-1-01.000 Блок внутернних стен 1.134.1-15.1-1-01.000 СБ Блок внутернних стен. Сборочный чертеж 1.134.1-15.1-1-02.000 Блок внутернних стен 1.134.1-15.1-1-02.000 СБ Блок внутернних стен. Сборочный чертеж 1.134.1-15.1-1-03.000 Блок внутернних стен 1.134.1-15.1-1-03.000 СБ Блок внутернних стен. Сборочный чертеж 1.134.1-15.1-1-04.000 Блок внутернних стен 1.134.1-15.1-1-05.000 Блок внутернних стен БВ 6.22.20 - 150 Т 1.134.1-15.1-1-06.000 Блок внутернних стен 1.134.1-15.1-1-07.000 Блок внутернних стен доборный 1.134.1-15.1-1-08.000 Блок внутернних стен лестничных клеток 1.134.1-15.1-1-08.000 СБ Блок внутернних стен лестничных клеток. Сборочный чертеж 1.134.1-15.1-1-09.000 Блок внутернних стен лестничных клеток 1.134.1-15.1-1-09.000 СБ Блок внутернних стен лестничных клеток. Сборочный чертеж 1.134.1-15.1-1-10.000 Блок перемычный внутренних стен 1.134.1-15.1-1-10.000 СБ Блок перемычный внутренних стен. Сборочный чертеж 1.134.1-15.1-1-11.000 Блок перемычный внутренних стен 1.134.1-15.1-1-11.000 СБ Блок перемычный внутренних стен. Сборочный чертеж 1.134.1-15.1-1-12.000 Блок перемычный лестничных клеток 1.134.1-15.1-1-13.000 Блок перемычный лестничных клеток 1.134.1-15.1-1-01.000 Д Узлы I… VI 1.134.1-15.1-1-00.000 РМ Ведомость расхода материалов |
| Разработан: | ЦНИИЭП граждансельстрой |
| Утверждён: | 30.05.1986 Госгражданстрой (Gosgrazhdanstroy 183) |
| Издан: | ЦИТП Госстроя СССР (CITP, Gosstroy (USSR) 1986 г. ) |
| Заменяет собой: | |
| Нормативные ссылки: |
|







































