Скачать Серия 1.134.1-15 Выпуск 1-2. Блоки толщиной 200 мм. Арматурные и закладные изделия. Рабочие чертежиДата актуализации: 01.01.2021
|
| Обозначение: | Серия 1.134.1-15 |
| Обозначение англ: | Series 1.134.1-15 |
| Статус: | не определен законодательством |
| Название рус.: | Выпуск 1-2. Блоки толщиной 200 мм. Арматурные и закладные изделия. Рабочие чертежи |
| Дата добавления в базу: | 01.09.2013 |
| Дата актуализации: | 01.01.2021 |
| Дата введения: | 20.06.1986 |
| Дата окончания срока действия: | 30.06.2003 |
| Область применения: | Блоки внутренних стен предназначены для применения в 1 - 4-этажных жилых зданиях и 1 - 3-этажных общественных зданиях со стенами из крупных легкобетонных блоков. Предел огнестойкости блоков - 6 часов |
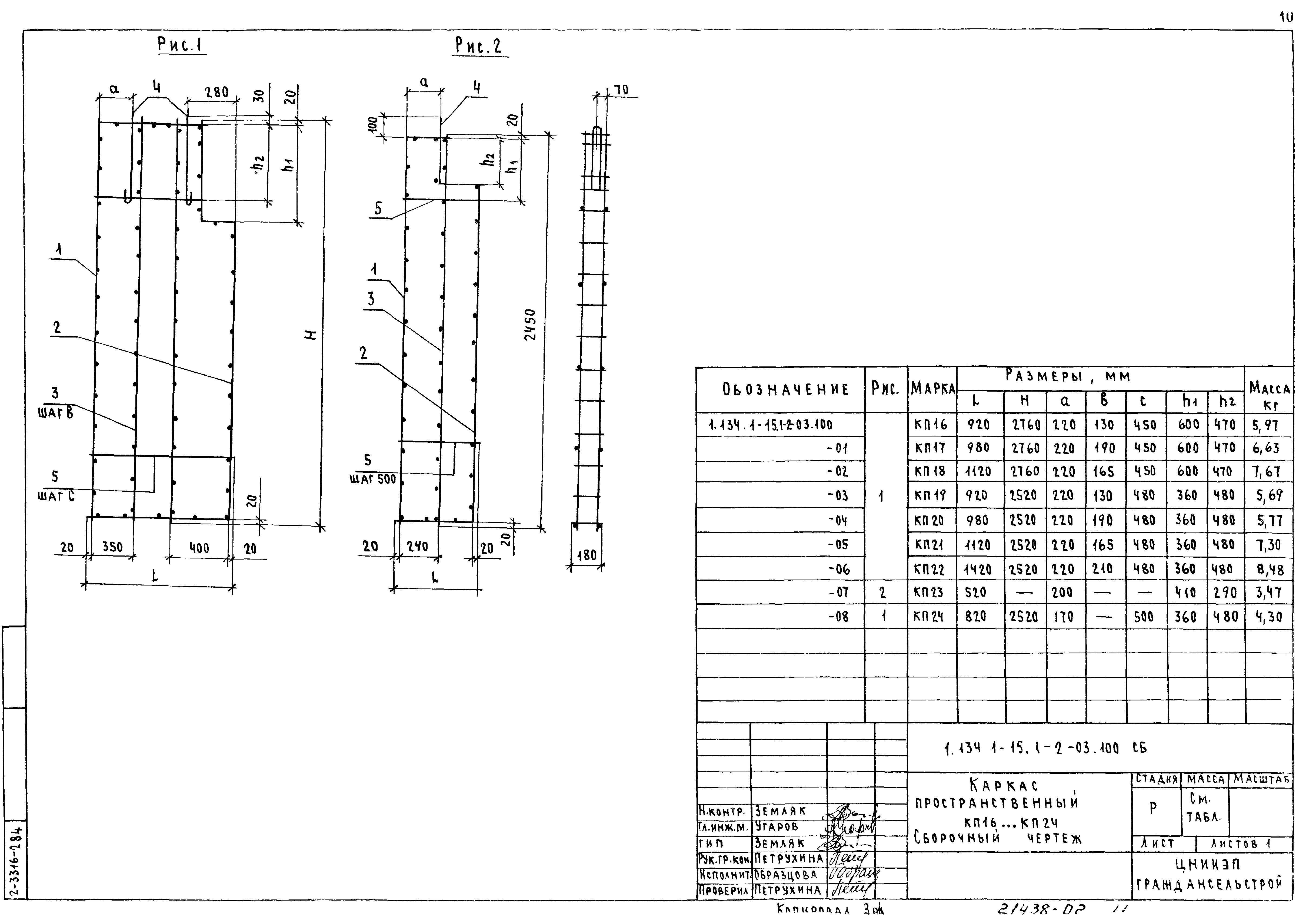
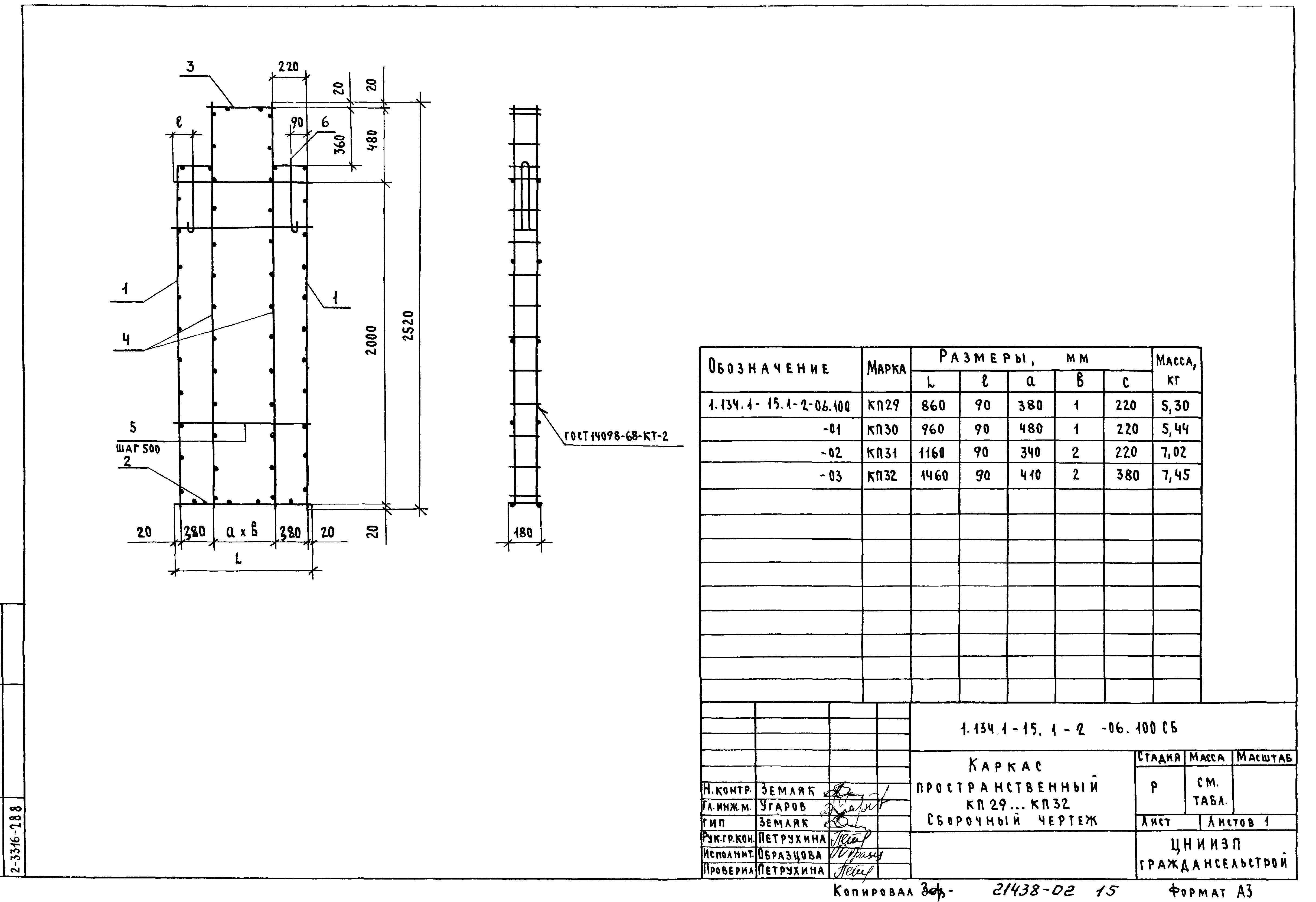
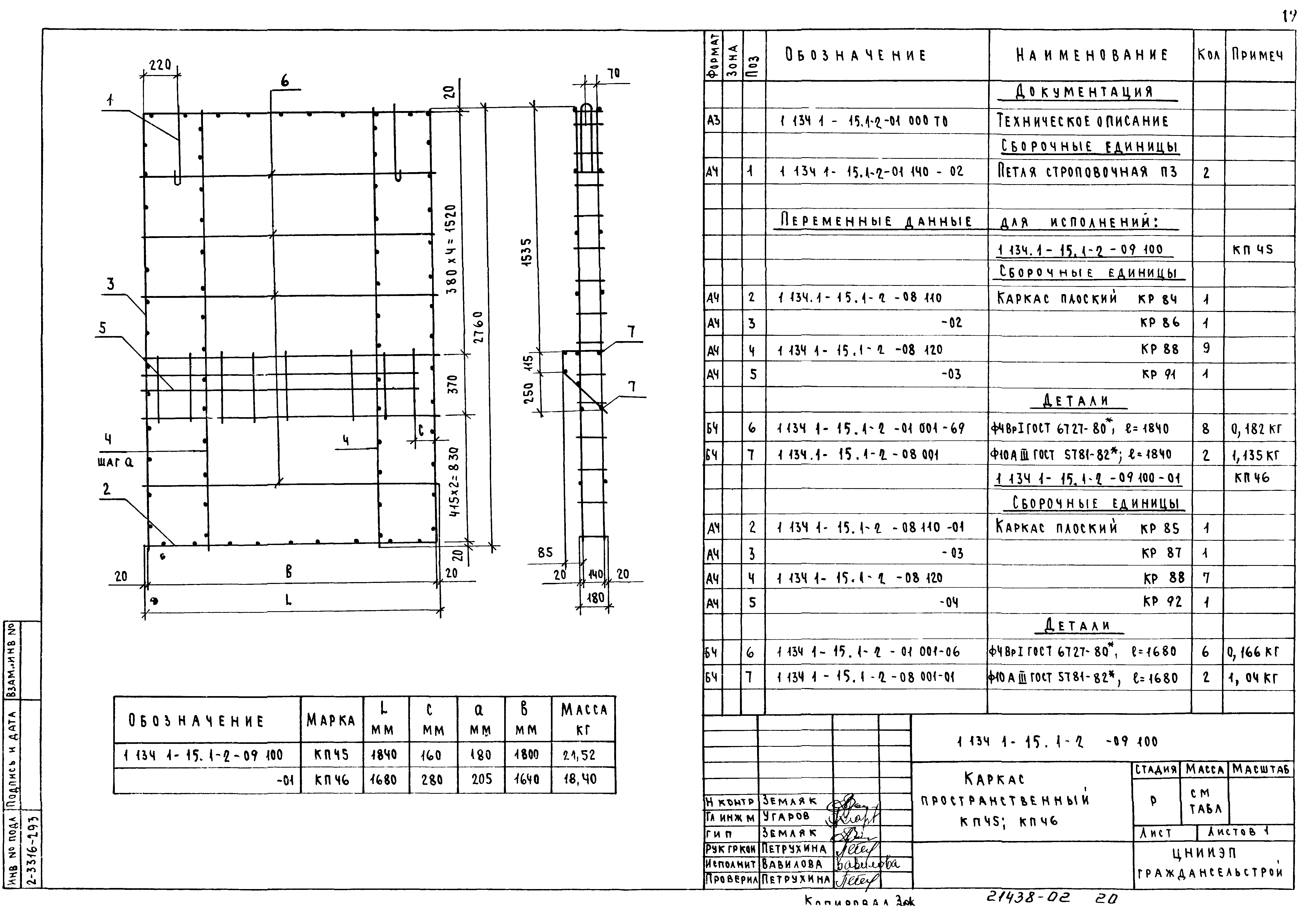
| Оглавление: | 1.134.1-15.1-2-01.000 ТО Техническое описание 1.134.1-15.1-2-01.100 Каркас пространственный КП1… КП15 1.134.1-15.1-2-01.100 СБ Каркас пространственный КП1… КП15. Сборочный чертеж 1.134.1-15.1-2-03.100 Каркас пространственный КП16… КП24 1.134.1-15.1-2-03.100 СБ Каркас пространственный КП16… КП24. Сборочный чертеж 1.134.1-15.1-2-04.100 Каркас пространственный КП25; КП26 1.134.1-15.1-2-04.100 СБ Каркас пространственный КП25; КП26. Сборочный чертеж 1.134.1-15.1-2-05.100 Каркас пространственный КП28 1.134.1-15.1-2-06.100 Каркас пространственный КП29… КП32 1.134.1-15.1-2-06.100 СБ Каркас пространственный КП29… КП32. Сборочный чертеж 1.134.1-15.1-2-07.100 Каркас пространственный КП33… КП39 1.134.1-15.1-2-07.100 СБ Каркас пространственный КП33… КП39. Сборочный чертеж 1.134.1-15.1-2-07.200 Каркас пространственный КП40; КП41 1.134.1-15.1-2-07.200 СБ Каркас пространственный КП40; КП41. Сборочный чертеж 1.134.1-15.1-2-08.100 Каркас пространственный КП42; КП43 1.134.1-15.1-2-08.200 Каркас пространственный КП44 1.134.1-15.1-2-09.100 Каркас пространственный КП45; КП46 1.134.1-15.1-2-09.200 Каркас пространственный КП47 1.134.1-15.1-2-10.100 Каркас пространственный КП48… КП61, КП 69 1.134.1-15.1-2-10.100 СБ Каркас пространственный КП48… КП61, КП 69. Сборочный чертеж 1.134.1-15.1-2-11.100 Каркас пространственный КП64… КП67, КП 70… КП73 1.134.1-15.1-2-11.100 СБ Каркас пространственный КП64… КП67, КП 70… КП73. Сборочный чертеж 1.134.1-15.1-2-12.100 Каркас пространственный КП76; КП78 1.134.1-15.1-2-12.200 Каркас пространственный КП77; КП79 1.134.1-15.1-2-01.110 Каркас плоский КР1… КР15 1.134.1-15.1-2-01.110 СБ Каркас плоский КР1… КР15. Сборочный чертеж 1.134.1-15.1-2-01.120 Каркас плоский КР15… КР30 1.134.1-15.1-2-01.120 СБ Каркас плоский КР15… КР30. Сборочный чертеж 1.134.1-15.1-2-01.300 Изделие закладное МН2 1.134.1-15.1-2-01.130 Каркас плоский КР31…. КР33; КР52 1.134.1-15.1-2-01.130 СБ Каркас плоский КР31…. КР33; КР52. Сборочный чертеж 1.134.1-15.1-2-03.110 Каркас плоский КР34…. КР42 1.134.1-15.1-2-03.110 СБ Каркас плоский КР34…. КР42. Сборочный чертеж 1.134.1-15.1-2-03.120 Каркас плоский КР43…. КР51 1.134.1-15.1-2-03.120 СБ Каркас плоский КР43…. КР51. Сборочный чертеж 1.134.1-15.1-2-04.110 Каркас плоский КР53; КР54 1.134.1-15.1-2-04.120 Каркас плоский КР55; КР56 1.134.1-15.1-2-05.110 Каркас плоский КР58 1.134.1-15.1-2-06.110 Каркас плоский КР62; КР69 1.134.1-15.1-2-06.120 Каркас плоский КР63… КР68, КР70… КР72 1.134.1-15.1-2-06.120 СБ Каркас плоский КР63… КР68, КР70… КР72. Сборочный чертеж 1.134.1-15.1-2-07.110 Каркас плоский КР73… КР79 1.134.1-15.1-2-07.110 СБ Каркас плоский КР73… КР79. Сборочный чертеж 1.134.1-15.1-2-07.210 Каркас плоский КР80; КР81 1.134.1-15.1-2-07.220 Каркас плоский КР82; КР83 1.134.1-15.1-2-08.110 Каркас плоский КР84… КР87 1.134.1-15.1-2-08.110 СБ Каркас плоский КР84… КР87. Сборочный чертеж 1.134.1-15.1-2-08.120 Каркас плоский КР88… КР92 1.134.1-15.1-2-08.120 СБ Каркас плоский КР88… КР92. Сборочный чертеж 1.134.1-15.1-2-08.210 Каркас плоский КР93… КР96 1.134.1-15.1-2-08.210 СБ Каркас плоский КР93… КР96. Сборочный чертеж 1.134.1-15.1-2-10.110 Каркас плоский КР97… КР112 1.134.1-15.1-2-11.110 Каркас плоский КР113… КР120 1.134.1-15.1-2-10.110 СБ Каркас плоский КР97… КР112. Сборочный чертеж 1.134.1-15.1-2-11.110 СБ Каркас плоский КР113… КР120. Сборочный чертеж 1.134.1-15.1-2-12.110 Каркас плоский КР125… КР128 1.134.1-15.1-2-12.120 Каркас плоский КР129… КР131 1.134.1-15.1-2-12.120 СБ Каркас плоский КР129… КР131. Сборочный чертеж 1.134.1-15.1-2-12.210 Каркас плоский КР132… КР134 1.134.1-15.1-2-12.210 СБ Каркас плоский КР132… КР134. Сборочный чертеж 1.134.1-15.1-2-01.200 Изделие закладное МН1 1.134.1-15.1-2-01.140 Петля строповочная П1, П2, П3, П4 |
| Разработан: | ЦНИИЭП граждансельстрой |
| Утверждён: | 30.05.1986 Госгражданстрой (Gosgrazhdanstroy 183) |
| Издан: | ЦИТП Госстроя СССР (CITP, Gosstroy (USSR) 1986 г. ) |
| Заменяет собой: | |
| Нормативные ссылки: |
|

















































