Скачать Серия 1.231-5 Выпуск 0. Панели перегородок для каркасно-панельных зданий с высотой этажей 2,8; 3,0; 3,3; 3,6 и 4,2 м. Указания по изготовлению и применению панелей перегородокДата актуализации: 01.01.2021
|
| Обозначение: | Серия 1.231-5 |
| Обозначение англ: | Series 1.231-5 |
| Статус: | не определен законодательством |
| Название рус.: | Выпуск 0. Панели перегородок для каркасно-панельных зданий с высотой этажей 2,8; 3,0; 3,3; 3,6 и 4,2 м. Указания по изготовлению и применению панелей перегородок |
| Дата добавления в базу: | 01.09.2013 |
| Дата актуализации: | 01.01.2021 |
| Дата введения: | 01.08.1979 |
| Дата окончания срока действия: | 30.06.2003 |
| Область применения: | Гипсоперлитовые перегородки предназначены для помещений с относительной влажностью воздуха до 60 % каркасно-панельных зданий серии ИИ-04, возводимых в обычных условиях строительства |
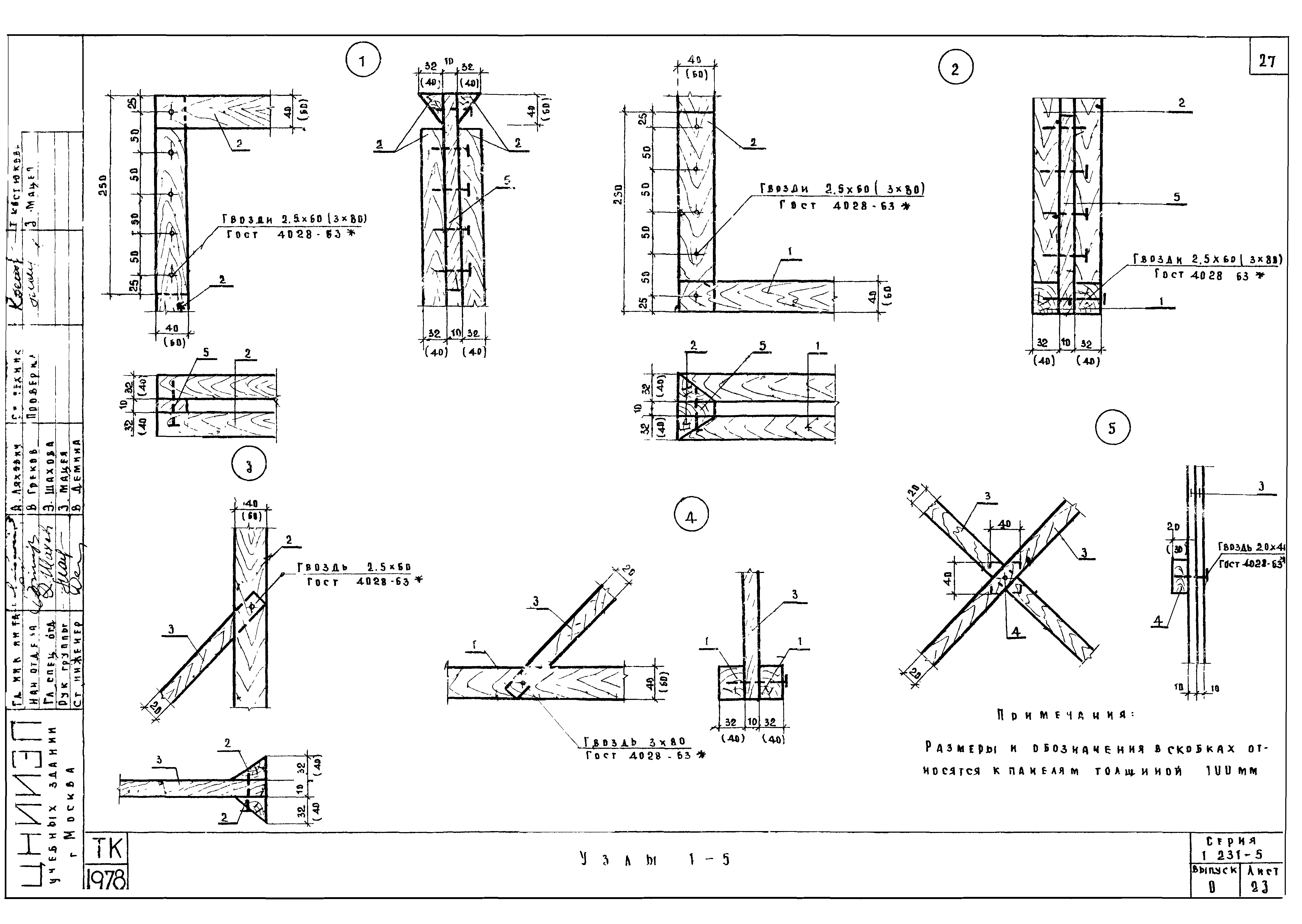
| Оглавление: | Содержание Пояснительная записка Номенклатра изделий при высоте этажа 2,8 м Номенклатра изделий при высоте этажа 3,0 м Номенклатра изделий при высоте этажа 3,3 м Номенклатра изделий при высоте этажа 3,6 м Номенклатра изделий при высоте этажа 4,2 м Петли П1/ П33 Узлы 1/ 5 Узлы 6, 7 Узел 8. Сечения А-А, Б-Б, В-В Узлы 9/ 11 |
| Разработан: | ЦНИИЭП учебных зданий Госгражданстроя |
| Утверждён: | 18.07.1979 Государственный комитет по гражданскому строительству и архитектуре при Госстрое СССР (153) |
| Издан: | ЦИТП Госстроя СССР (CITP, Gosstroy (USSR) 1979 г. ) |
| Нормативные ссылки: |
|































