Скачать Серия 1.231.8-11 Выпуск 1. Перегородки из гипсовых изделий. Рабочие чертежиДата актуализации: 01.01.2021
|
| Обозначение: | Серия 1.231.8-11 |
| Обозначение англ: | Series 1.231.8-11 |
| Статус: | не определен законодательством |
| Название рус.: | Выпуск 1. Перегородки из гипсовых изделий. Рабочие чертежи |
| Дата добавления в базу: | 01.09.2013 |
| Дата актуализации: | 01.01.2021 |
| Дата введения: | 06.07.1988 |
| Дата окончания срока действия: | 30.06.2003 |
| Область применения: | Перегородки из экструзионных гипсоволокнистых панелей предназначены для применения в проектах общественных зданий (предприятия общественного питания, торговля, бытового обслуживания, школ, учебных, лечебных и детских учреждений), а также в гостиницах, административно-бытовых зданиях и других с высотами этажей 2,8; 3,3; 3,6 и 4,2 м |
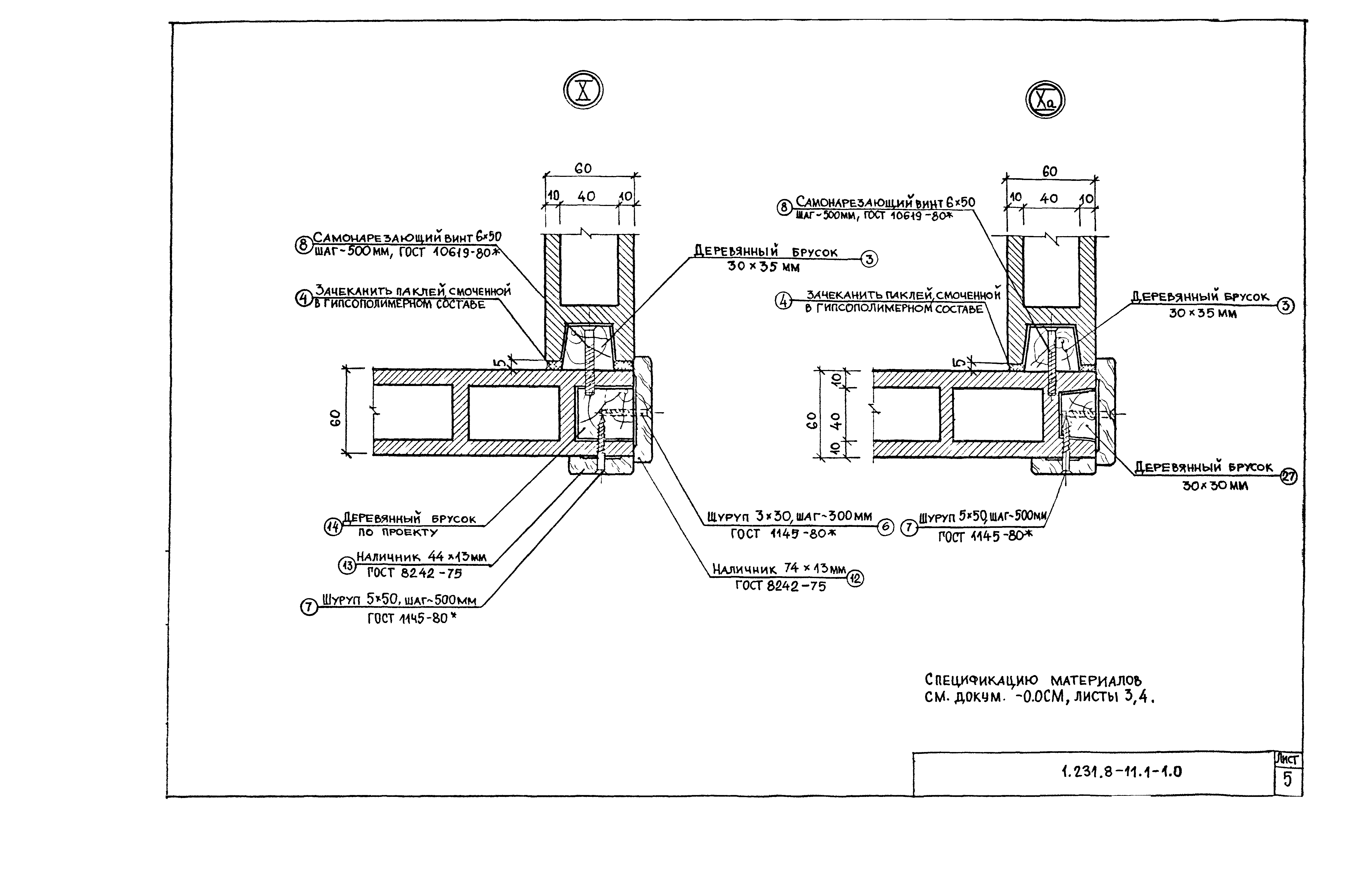
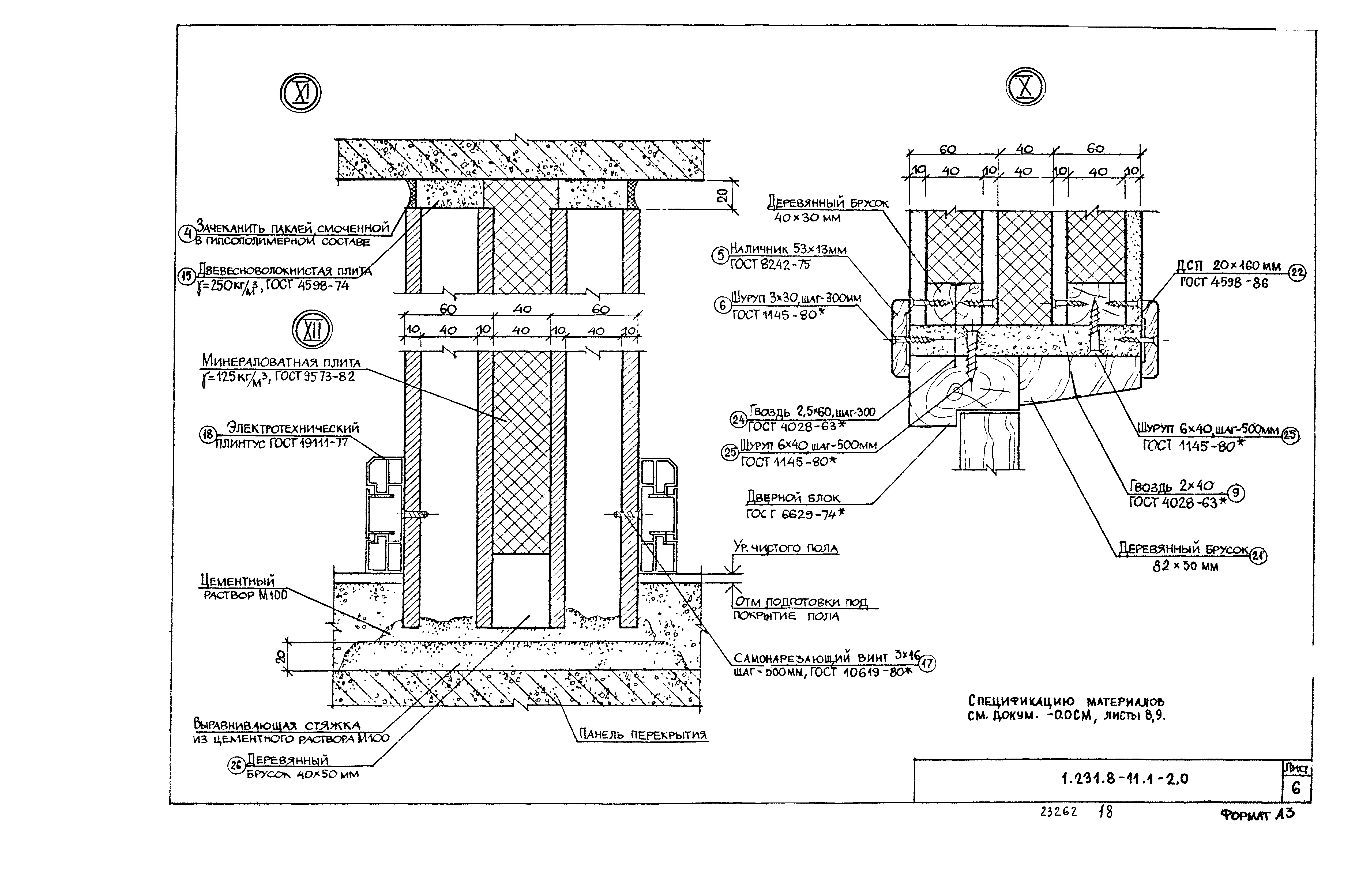
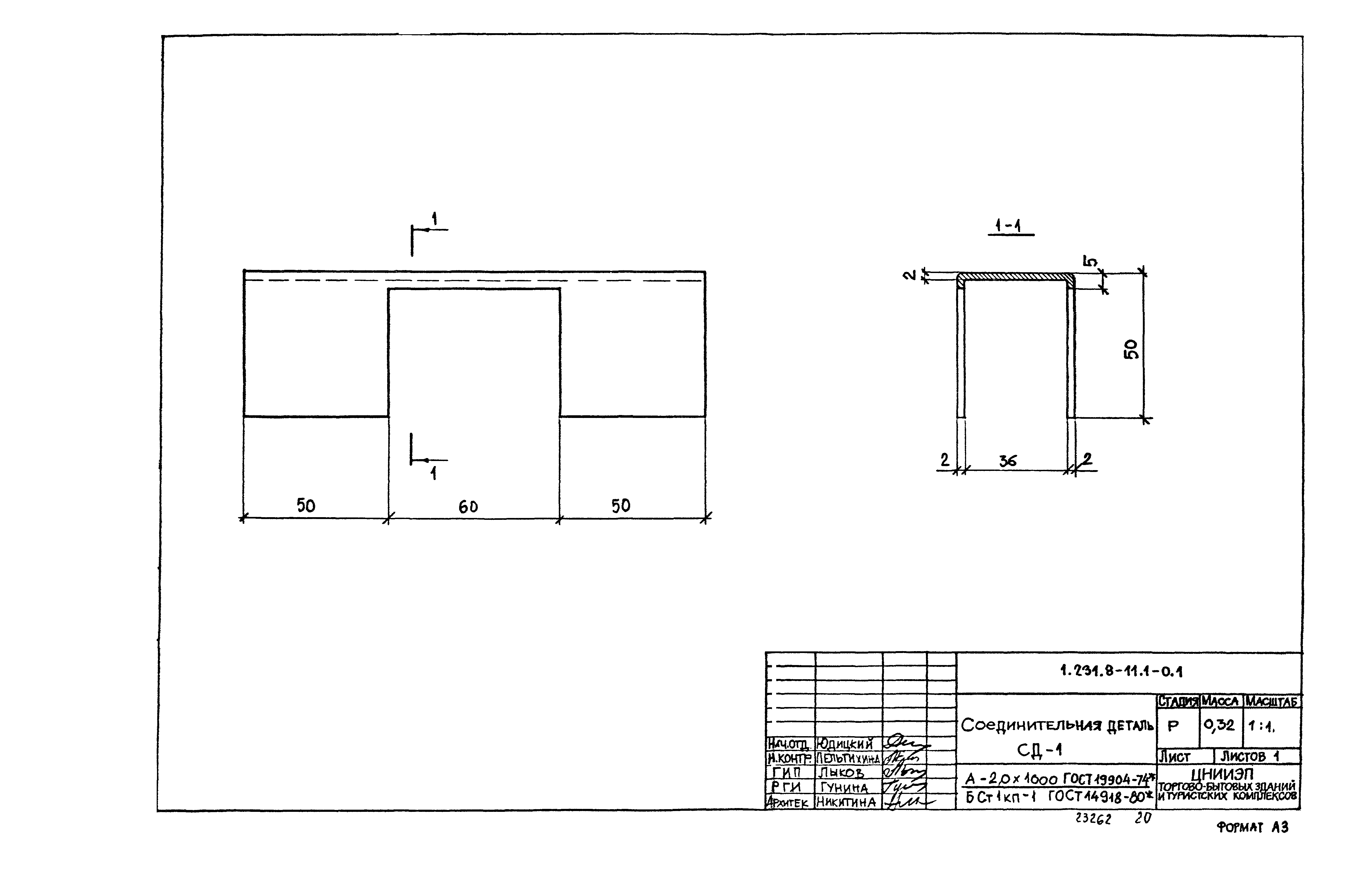
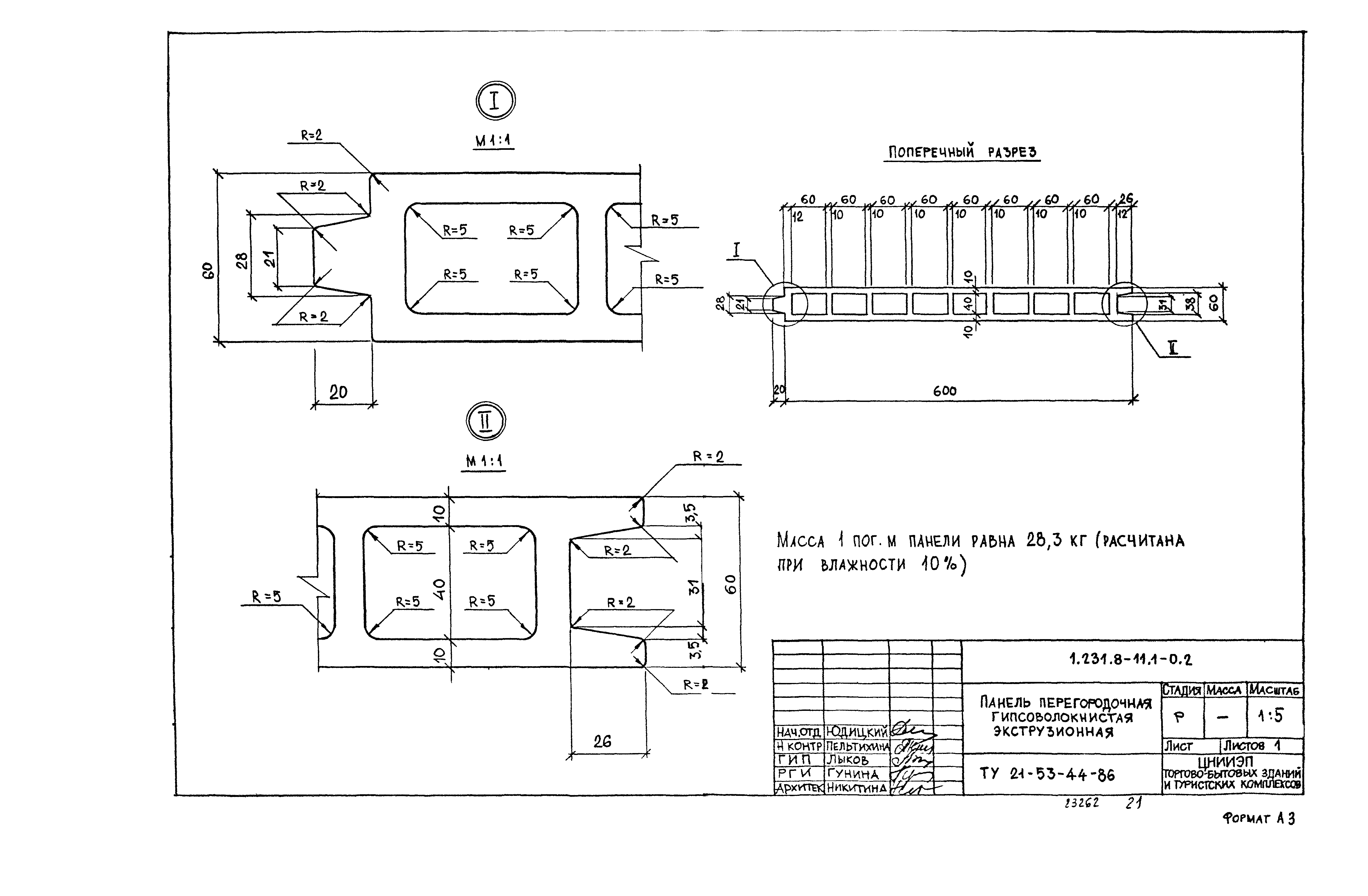
| Оглавление: | 1.231.8-11.1-0.0 ПЗ Пояснительная записка 1.231.8-11.1-1.0 Перегородка ПГЭ-1 (фрагмент). Узлы I… XIV. Пример 1.231.8-11.1-2.0 Перегородка ПГЭ-2м (фрагмент). Узлы I… XIII. Пример 1.231.8-11.1-0.1 Соединительная деталь СД-1 1.231.8-11.1-0.2 Панель перегородочная гипсоволокнистая экструзионная 1.231.8-11.1-0.0 СМ Спецификация материалов на монтажные узлы |
| Разработан: | ЦНИИЭП торгово-бытовых зданий и туристских комплексов |
| Утверждён: | 06.07.1988 Госкомархитектура Госстроя СССР (Goskomarkhitektura, USSR Gosstroy 190) |
| Издан: | ЦИТП Госстроя СССР (CITP, Gosstroy (USSR) 1988 г. ) |
| Нормативные ссылки: |
|





























