Скачать Серия 1.231.8-11 Выпуск 2. Перегородки из асбестоцементных изделий. Рабочие чертежи

Дата актуализации: 01.01.2021

Серия 1.231.8-11

Выпуск 2. Перегородки из асбестоцементных изделий. Рабочие чертежи

Обозначение: Серия 1.231.8-11
Обозначение англ: Series 1.231.8-11
Статус:не определен законодательством
Название рус.:Выпуск 2. Перегородки из асбестоцементных изделий. Рабочие чертежи
Дата добавления в базу:01.09.2013
Дата актуализации:01.01.2021
Дата введения:06.07.1988
Дата окончания срока действия:30.06.2003
Область применения:Перегородки из экструзионных асбестоцементных панелей предназначены для применения в проектах общественных зданийза исключением детских и лечебно-профилактических учреждений, с высотами этажей 2,8; 3,3; 3,6 и 4,2 м
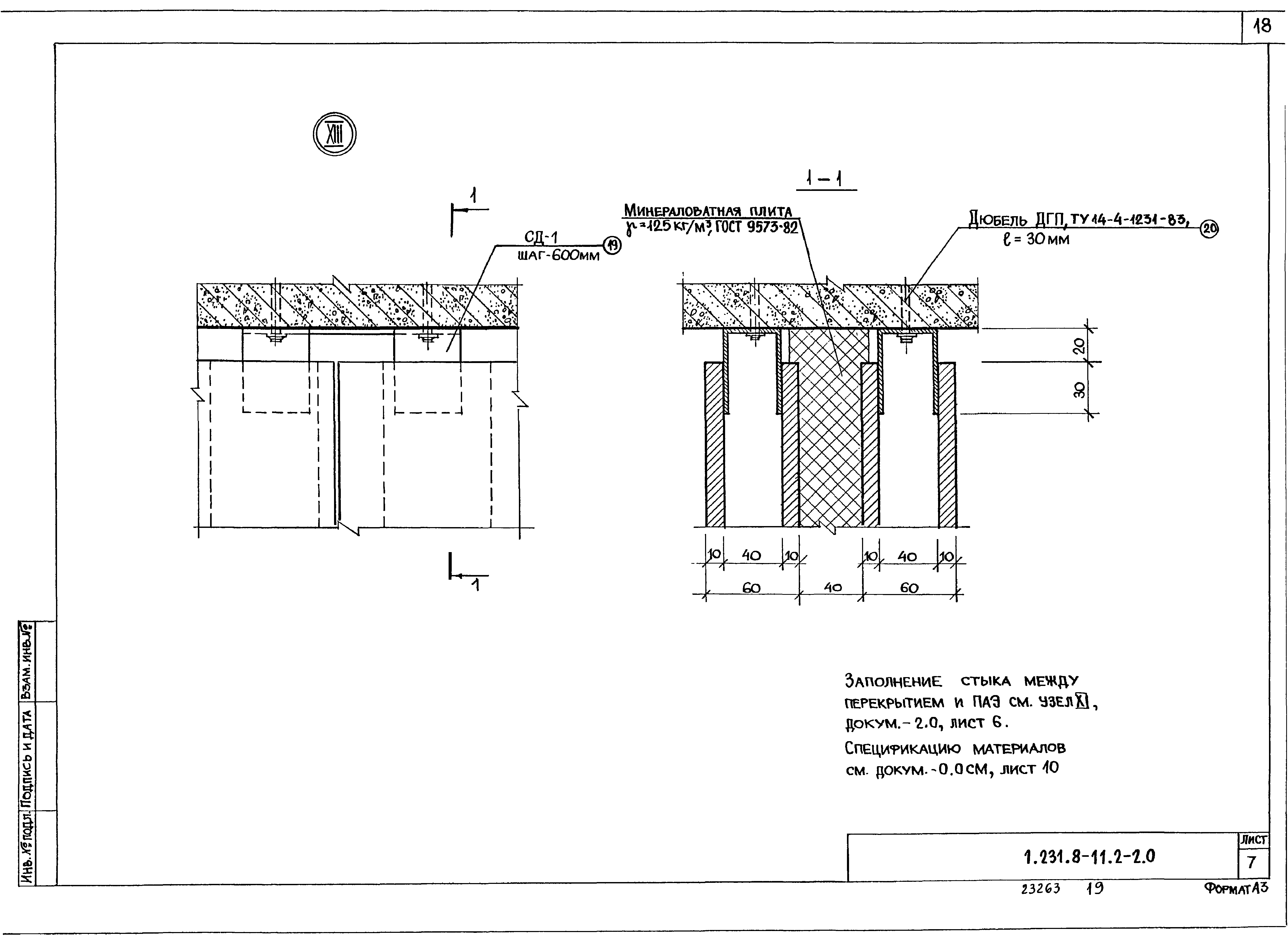
Оглавление:1.231.8-11.2-0.0 ПЗ Поясниткльная записка
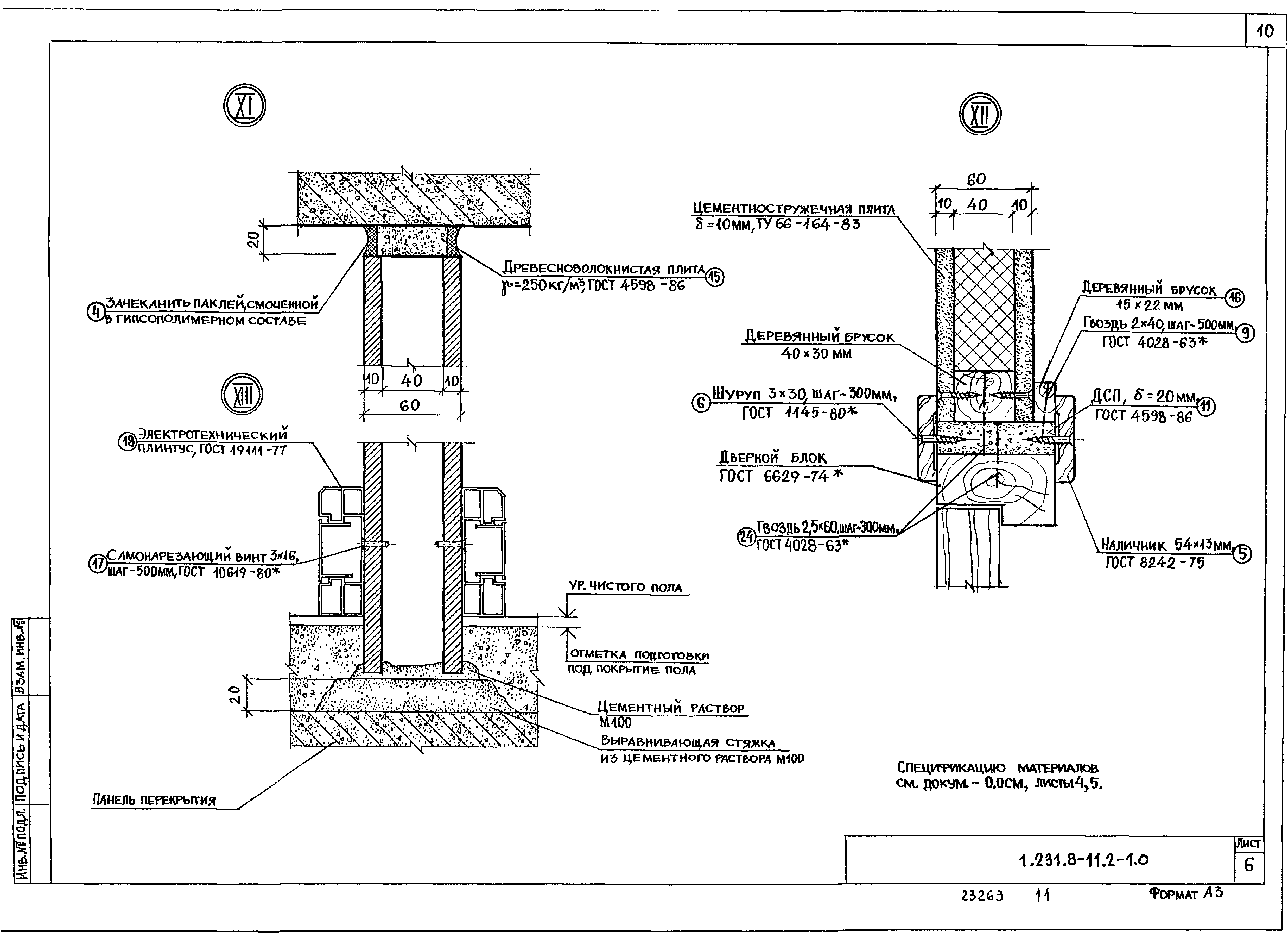
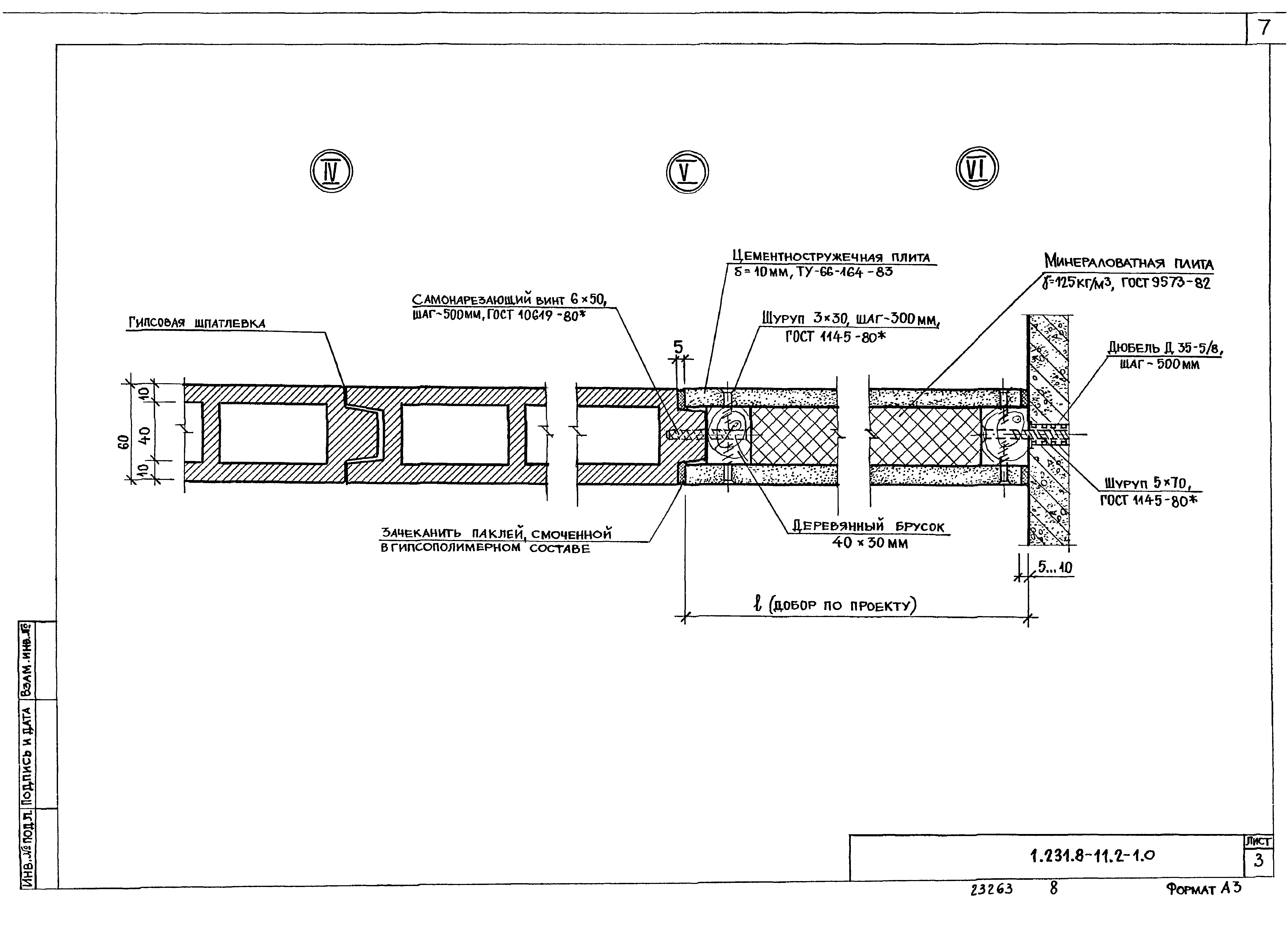
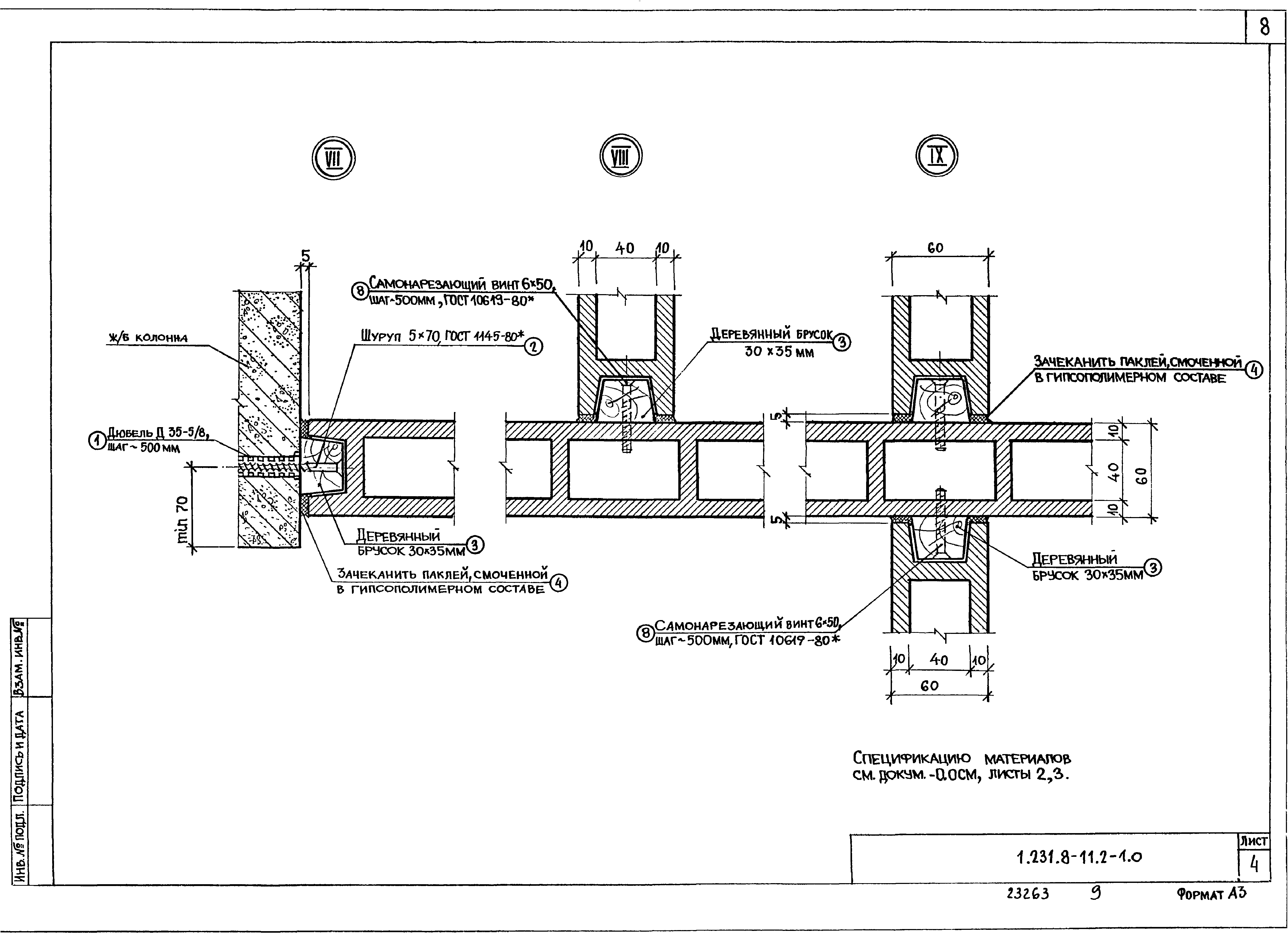
1.231.8-11.2-1.0 Перегородка ПАЭ-1 (фрагмент). Узлы 1…14. Пример
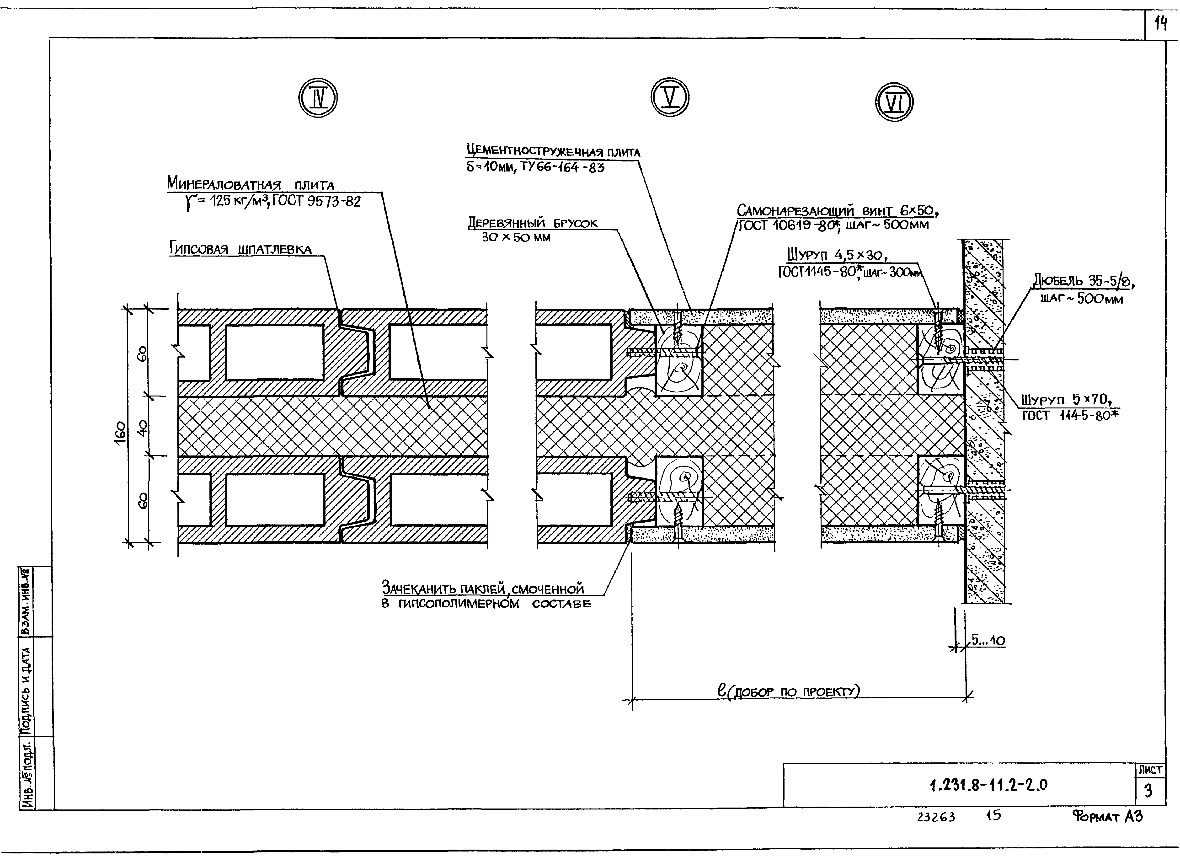
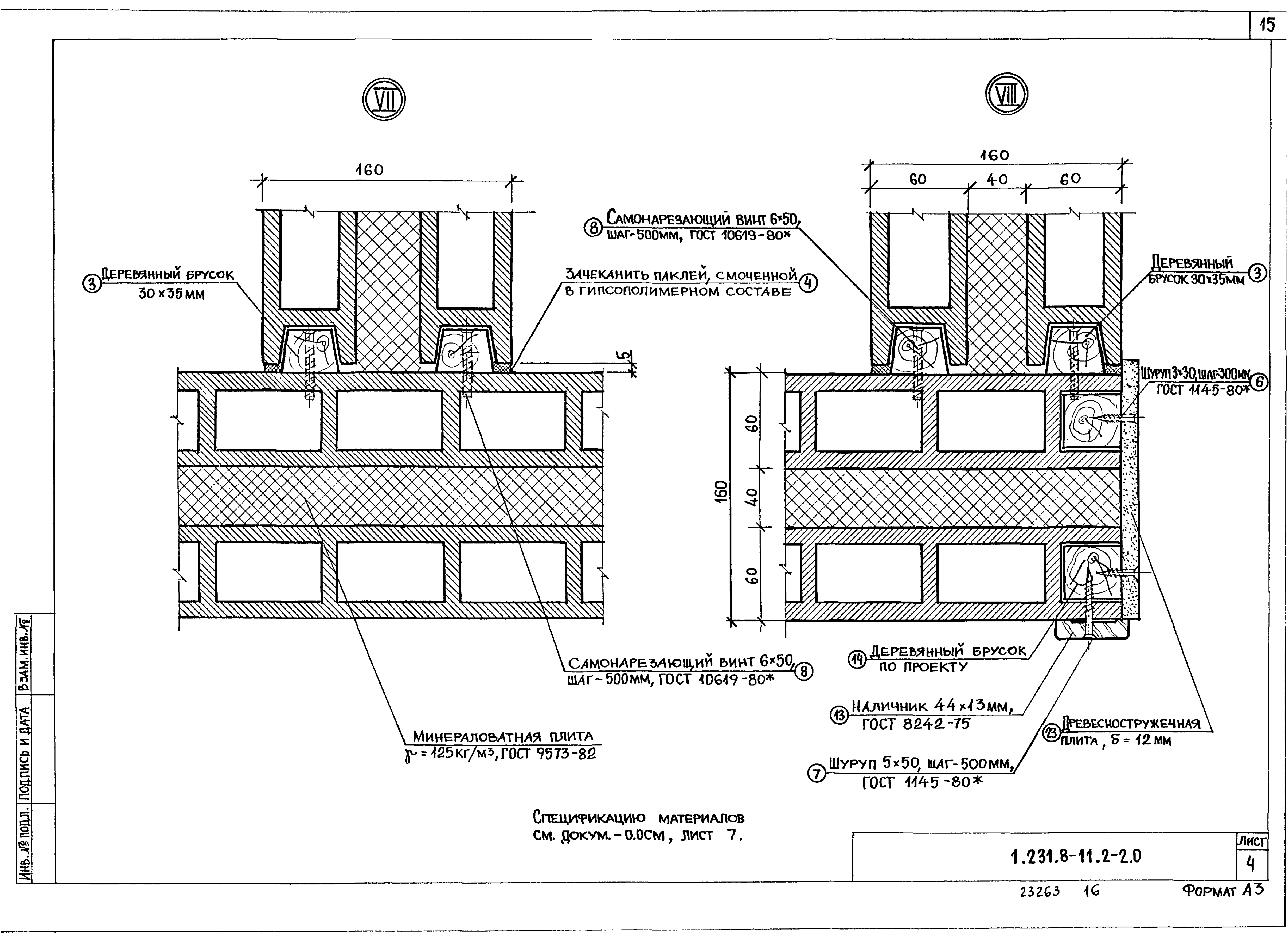
1.231.8-11.2-2.0 Перегородка ПАЭ-2м (фрагмент). Узлы 1…13. Пример
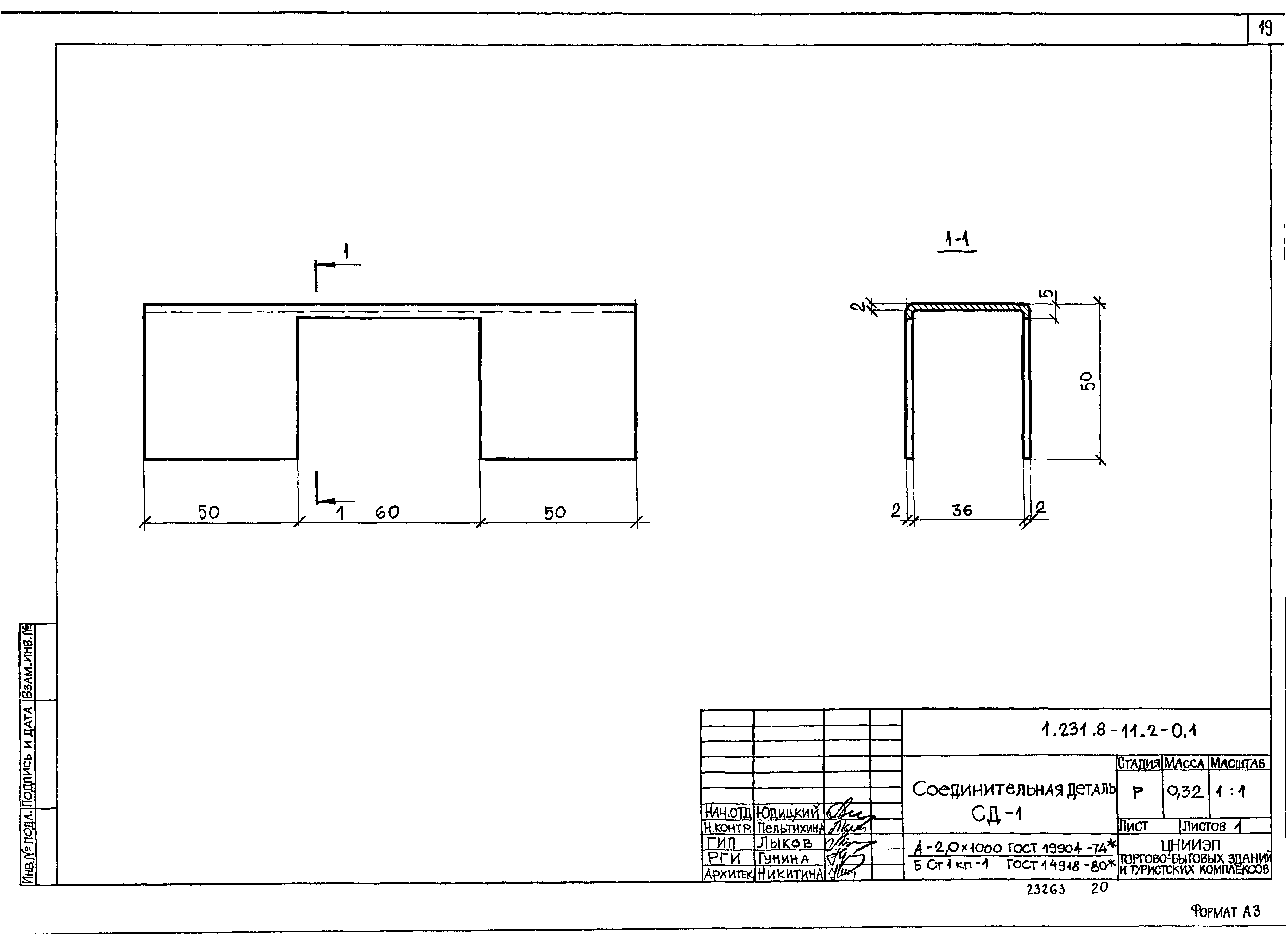
1.231.8-11.2-3.0 Соединительная деталь СД-1
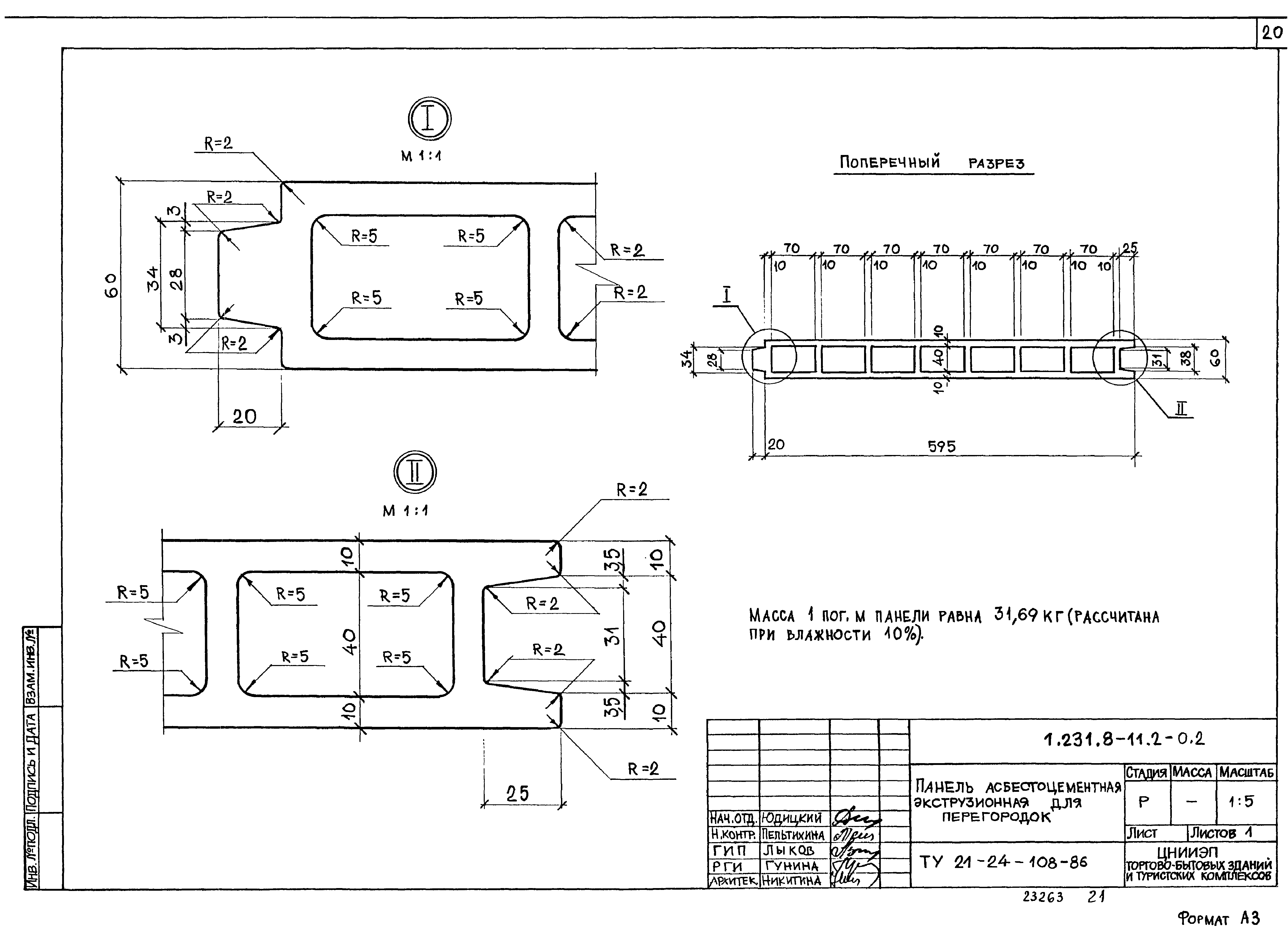
1.231.8-11.2-4.0 Панель асбестоцементная экструзионная для перегородок
1.231.8-11.2-5.0 Спецификация материалов на монтажные узлы
Разработан: ЦНИИЭП торгово-бытовых зданий и туристских комплексов
Утверждён:06.07.1988 Госкомархитектура (190)
Нормативные ссылки:
Серия 1.231.8-11Серия 1.231.8-11Серия 1.231.8-11Серия 1.231.8-11Серия 1.231.8-11Серия 1.231.8-11Серия 1.231.8-11Серия 1.231.8-11Серия 1.231.8-11Серия 1.231.8-11Серия 1.231.8-11Серия 1.231.8-11Серия 1.231.8-11Серия 1.231.8-11Серия 1.231.8-11Серия 1.231.8-11Серия 1.231.8-11Серия 1.231.8-11Серия 1.231.8-11Серия 1.231.8-11Серия 1.231.8-11Серия 1.231.8-11Серия 1.231.8-11Серия 1.231.8-11Серия 1.231.8-11Серия 1.231.8-11