Скачать Серия 1.231.8-12 Перегородки из гипсовых плит по ГОСТ 6428-83 для общественных зданий. Рабочие чертежиДата актуализации: 01.01.2021
|
| Обозначение: | Серия 1.231.8-12 |
| Обозначение англ: | Series 1.231.8-12 |
| Статус: | не определен законодательством |
| Название рус.: | Перегородки из гипсовых плит по ГОСТ 6428-83 для общественных зданий. Рабочие чертежи |
| Дата добавления в базу: | 01.09.2013 |
| Дата актуализации: | 01.01.2021 |
| Дата введения: | 01.04.1989 |
| Дата окончания срока действия: | 30.06.2003 |
| Область применения: | Альбом содержит перечень типов перегородок, монтажные узлы, комплектующие элементы и детали, рекомендации по заделке швов и методам отделки лицевых поверхностей |
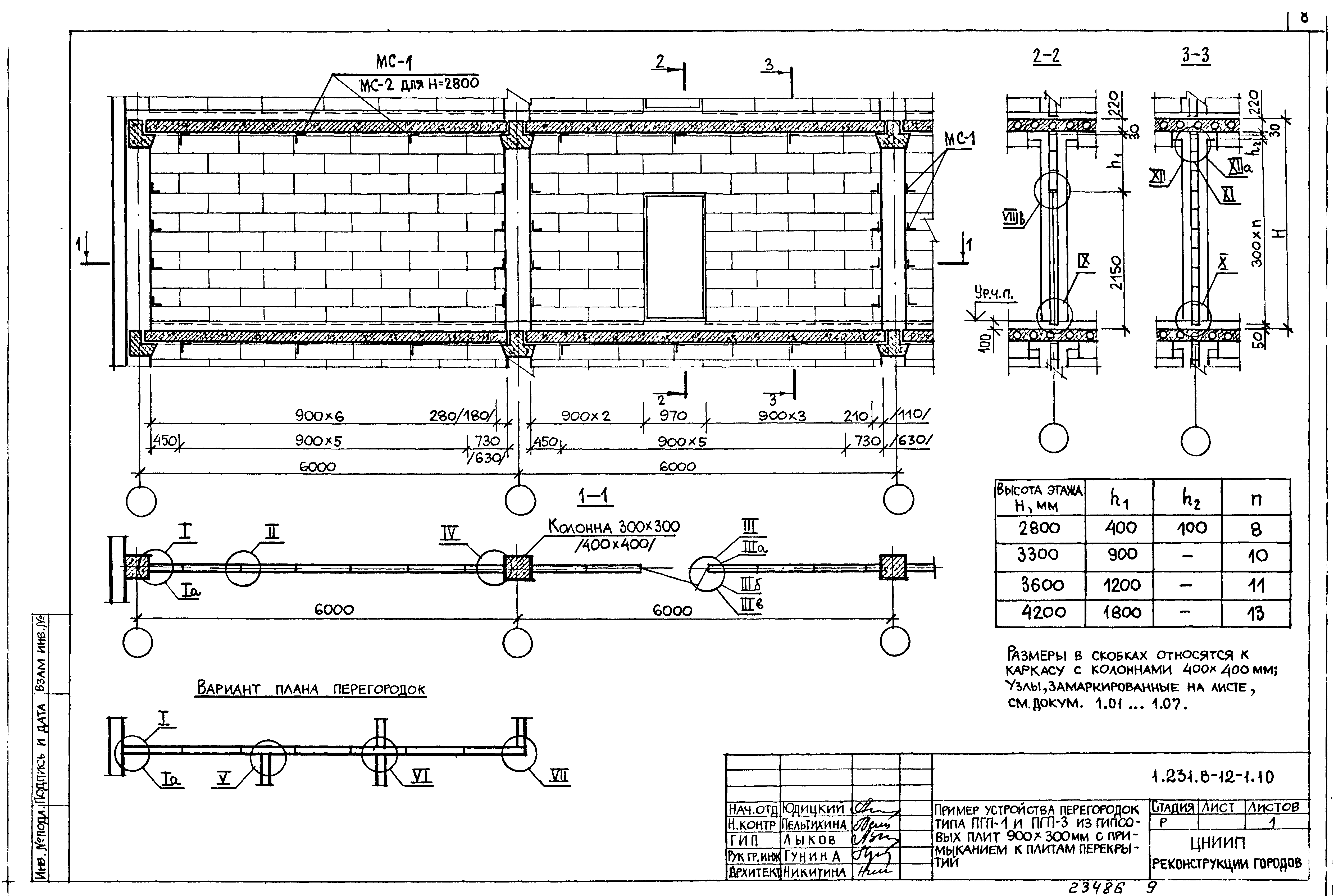
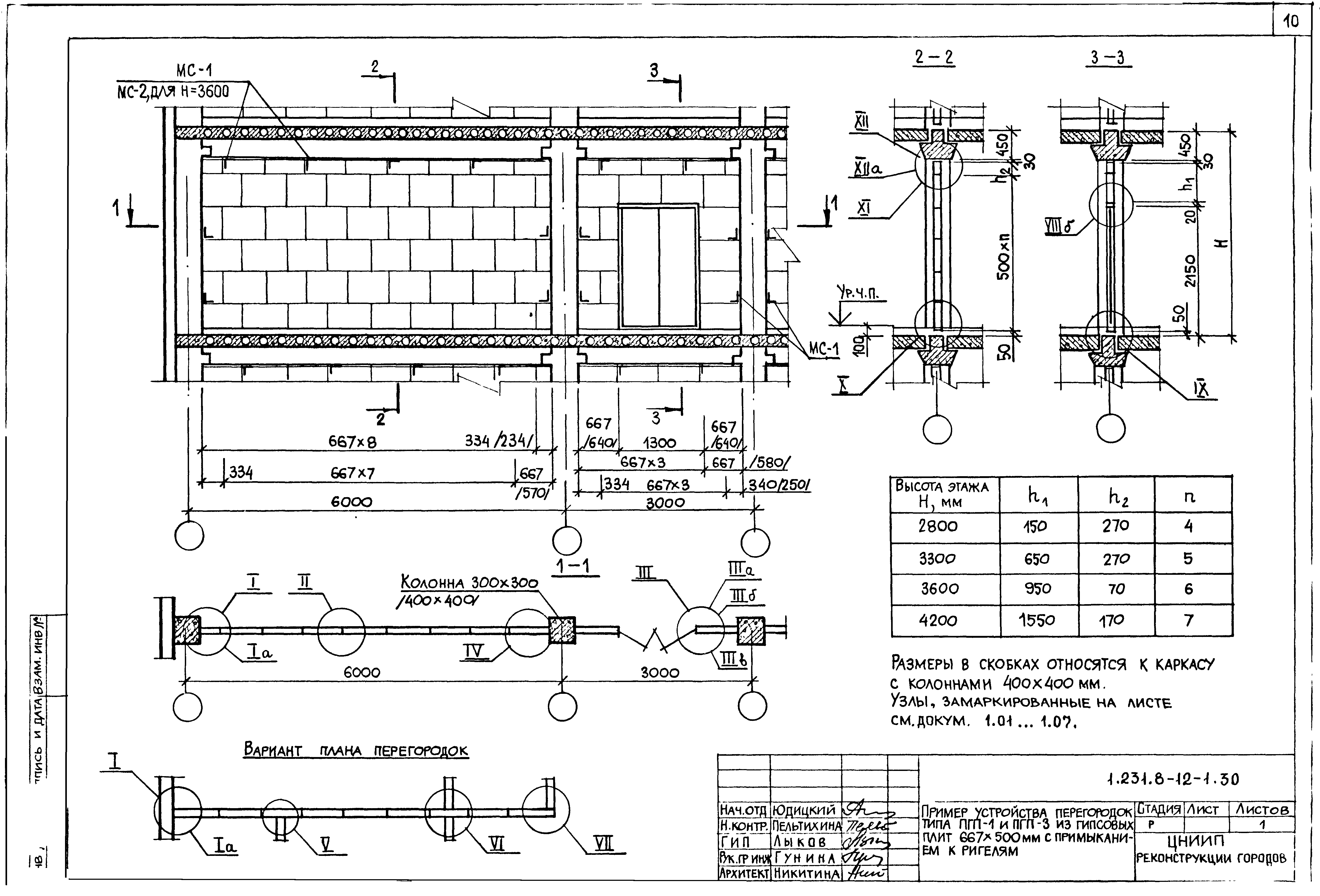
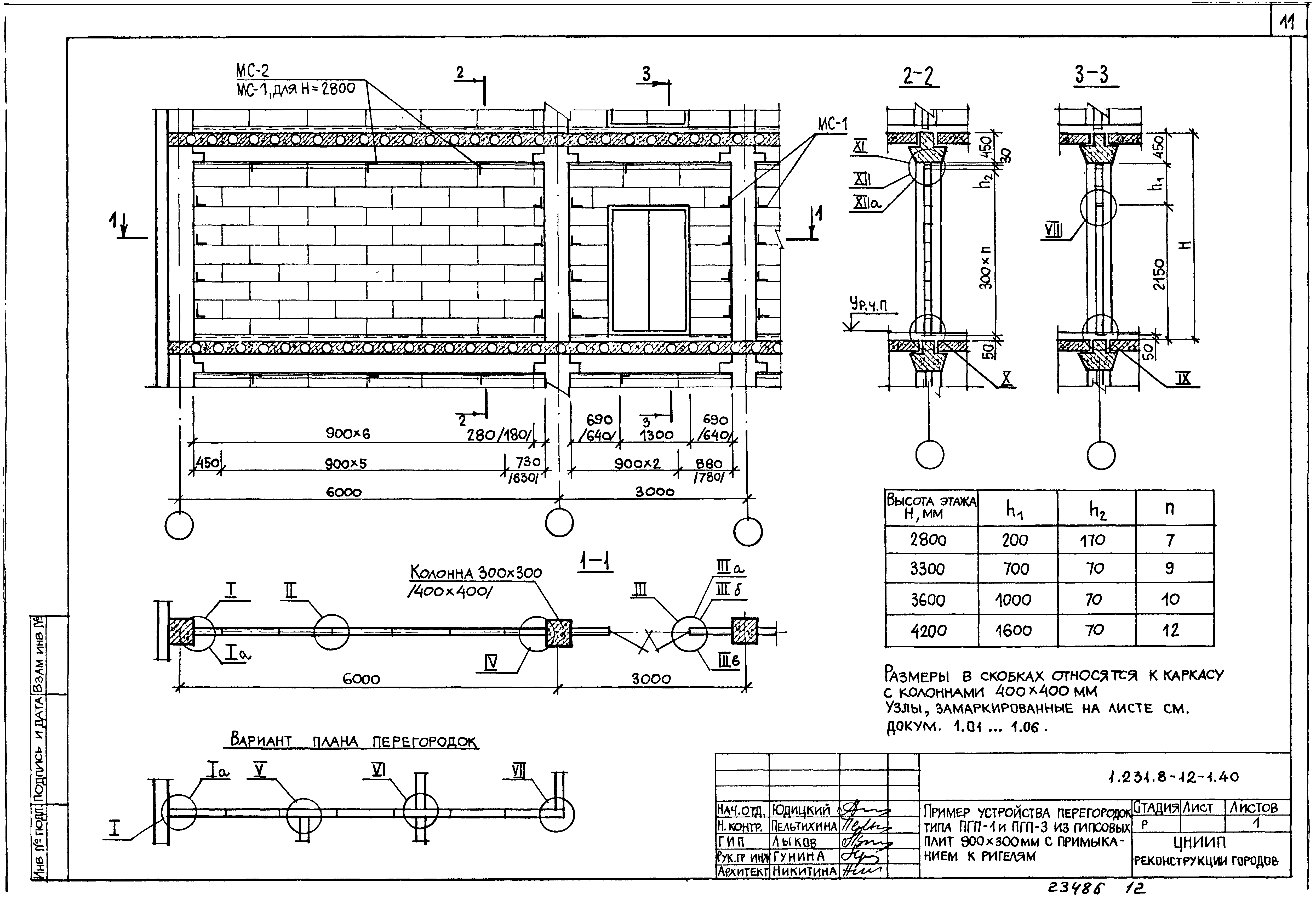
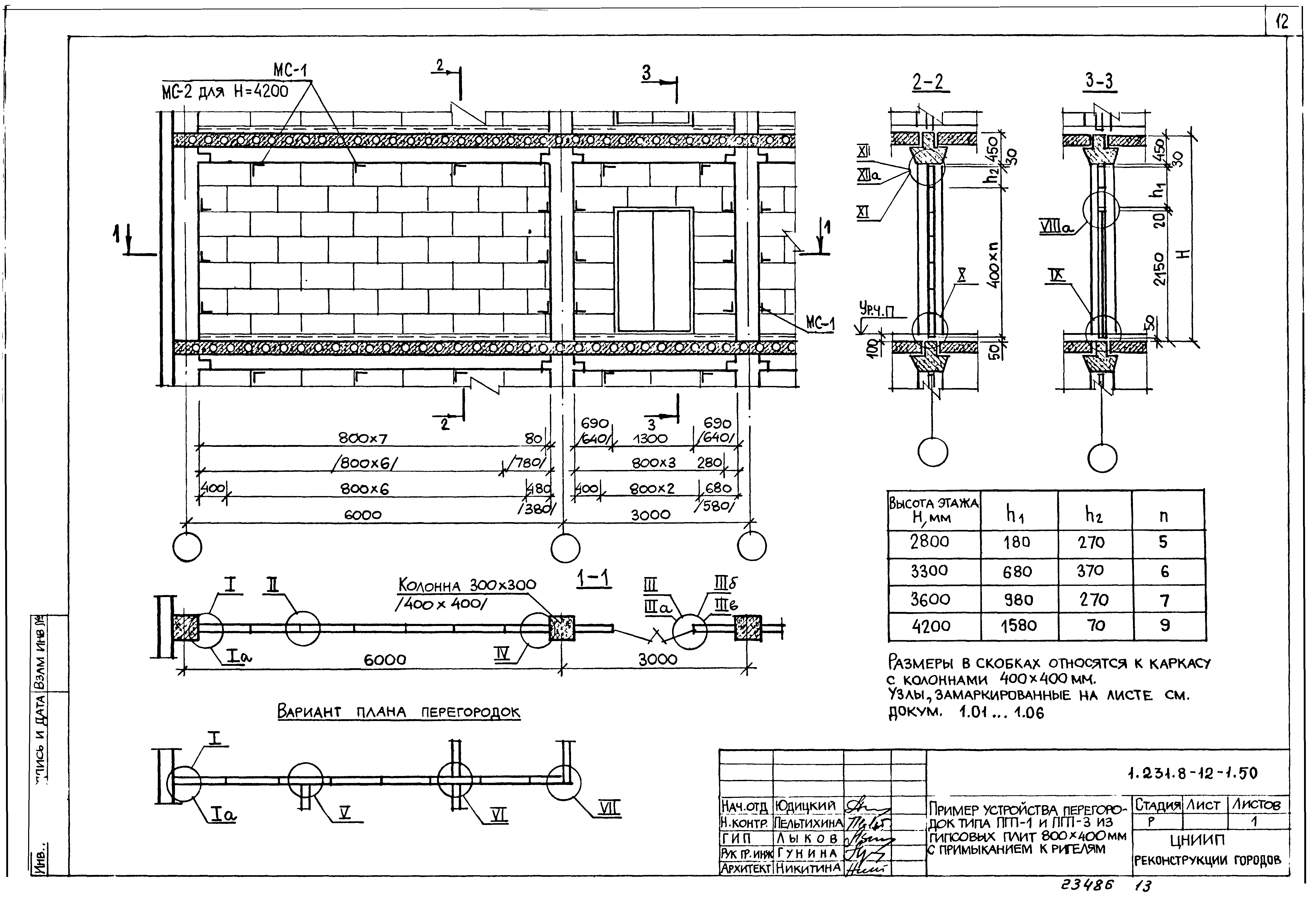
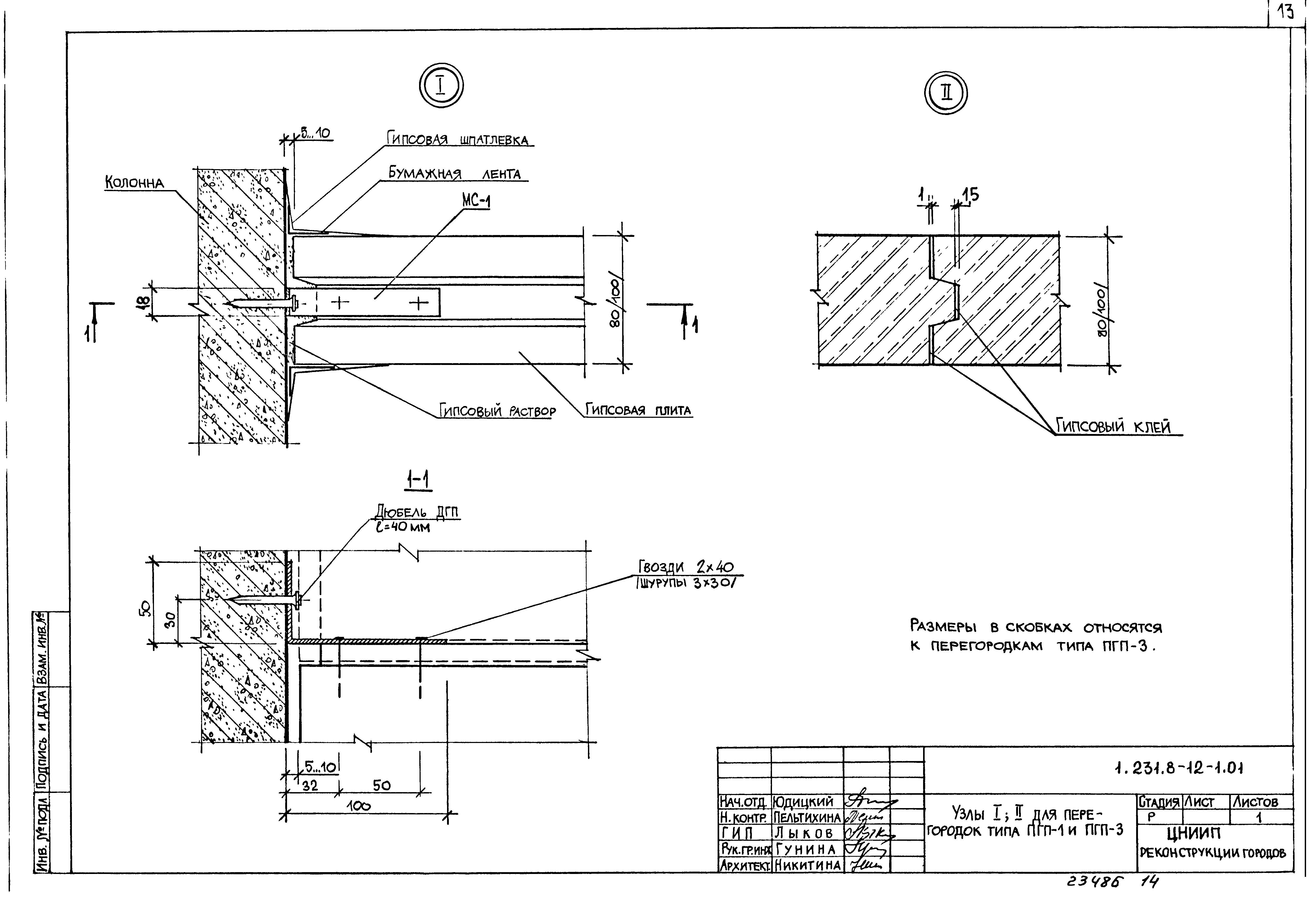
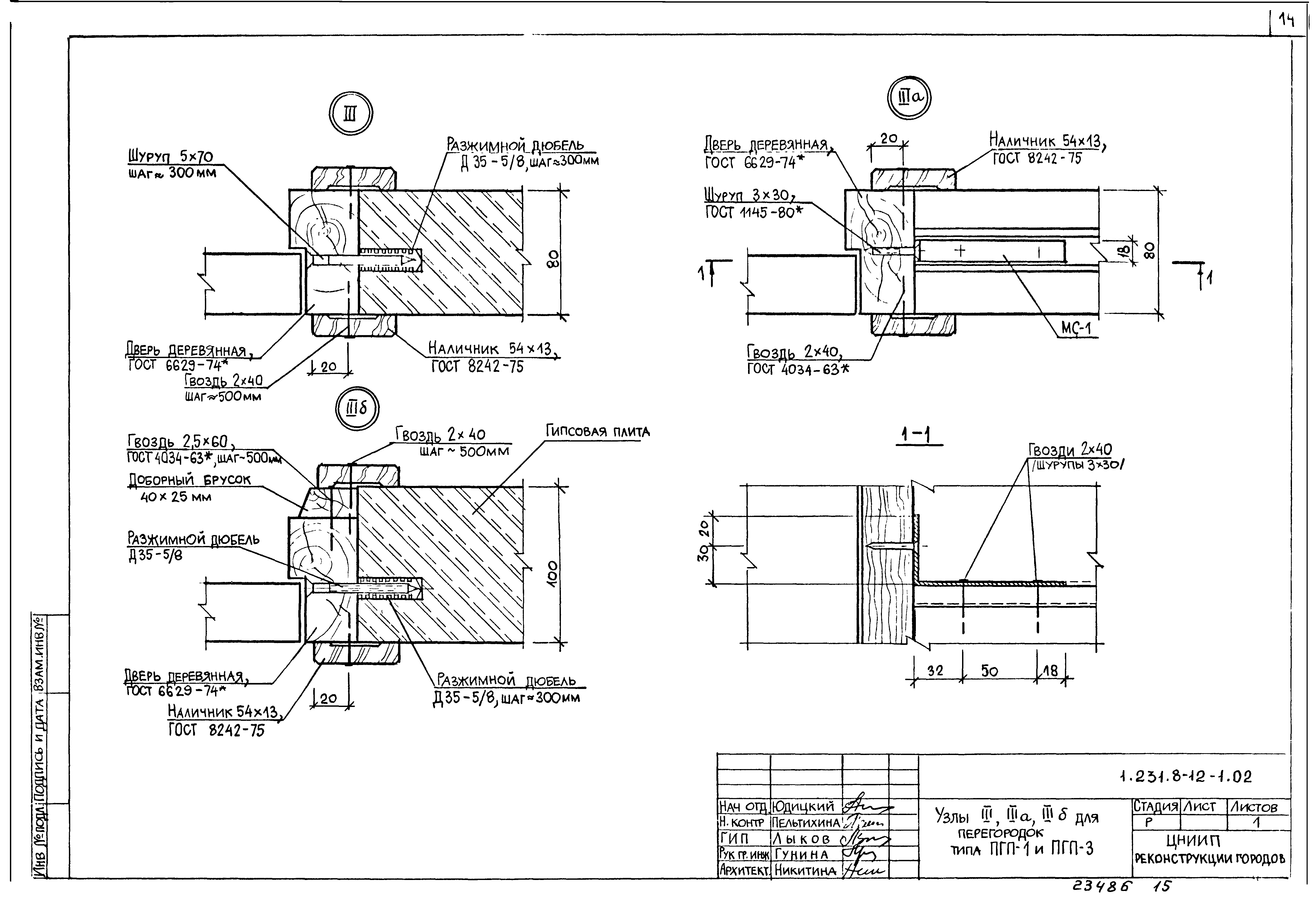
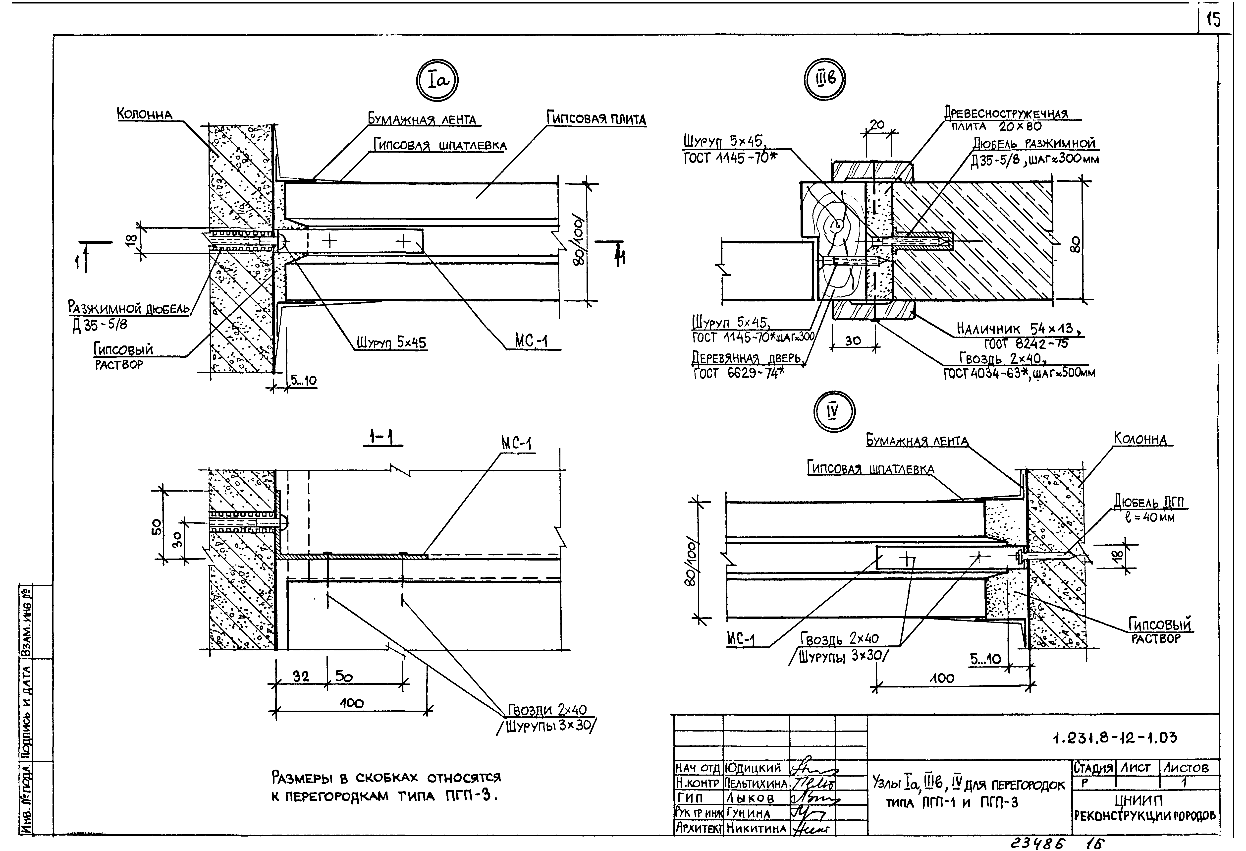
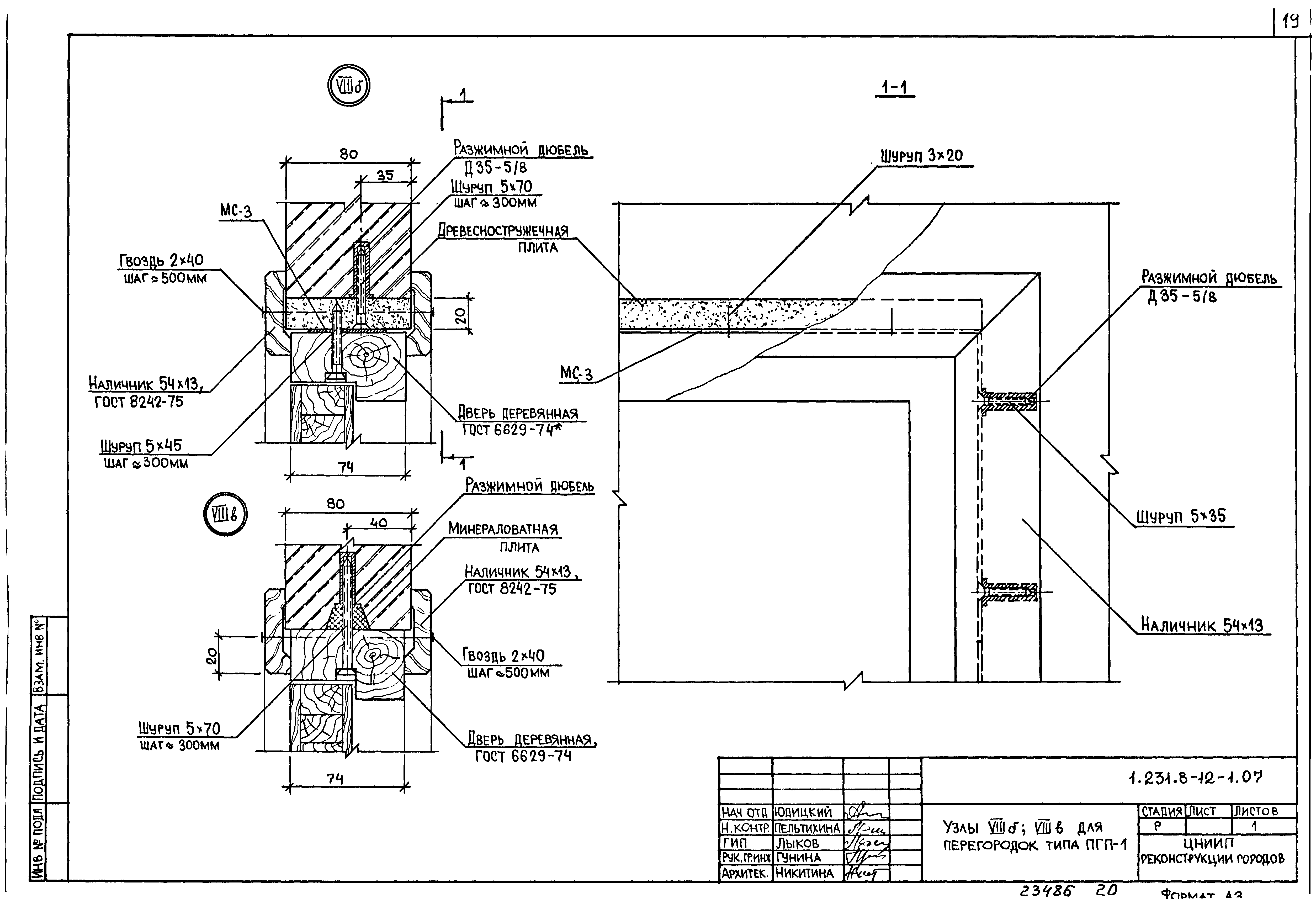
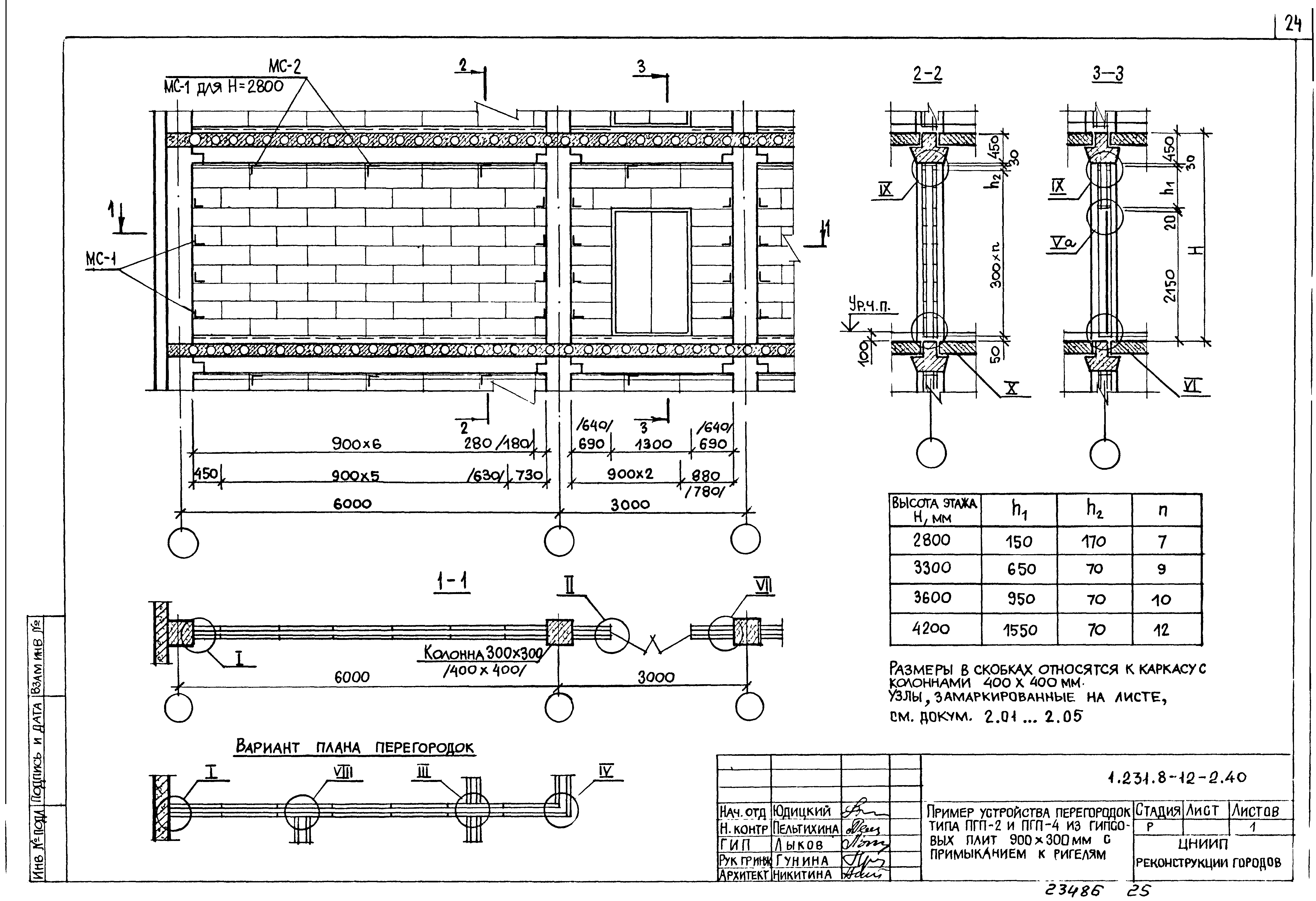
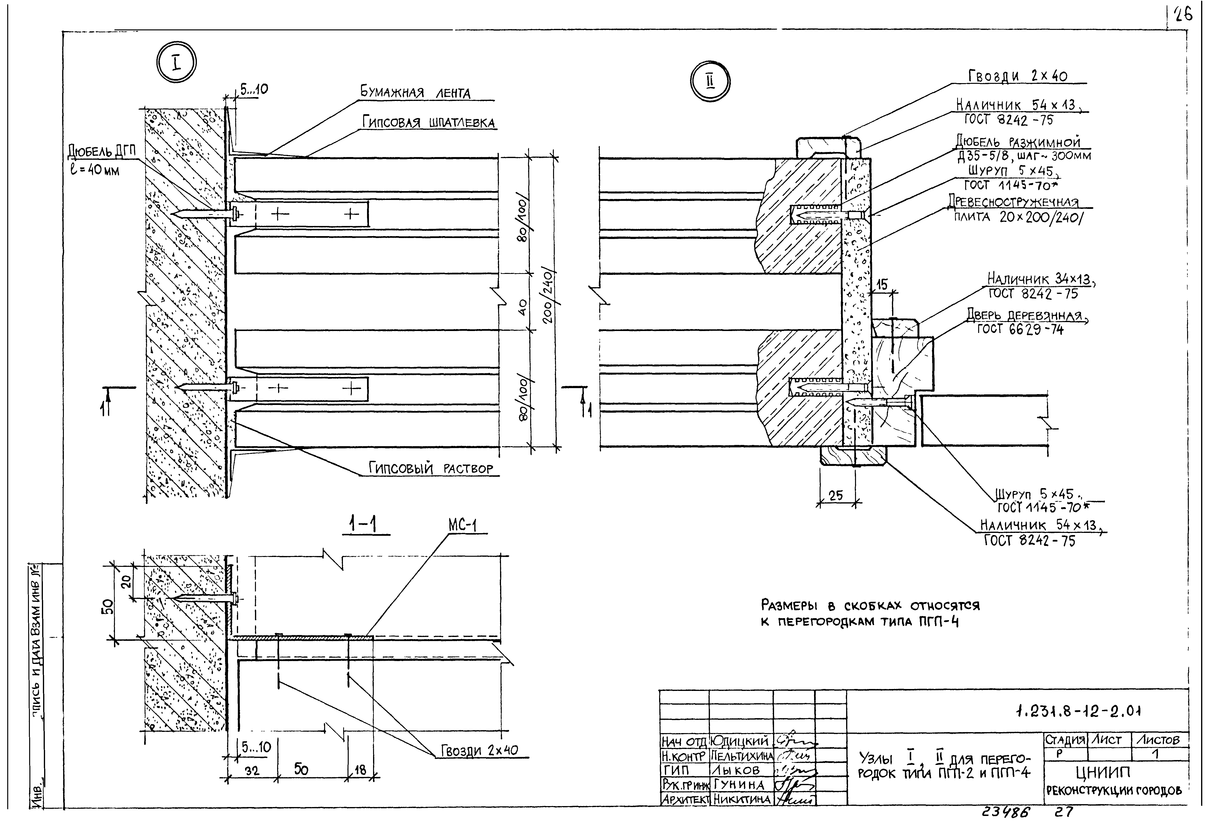
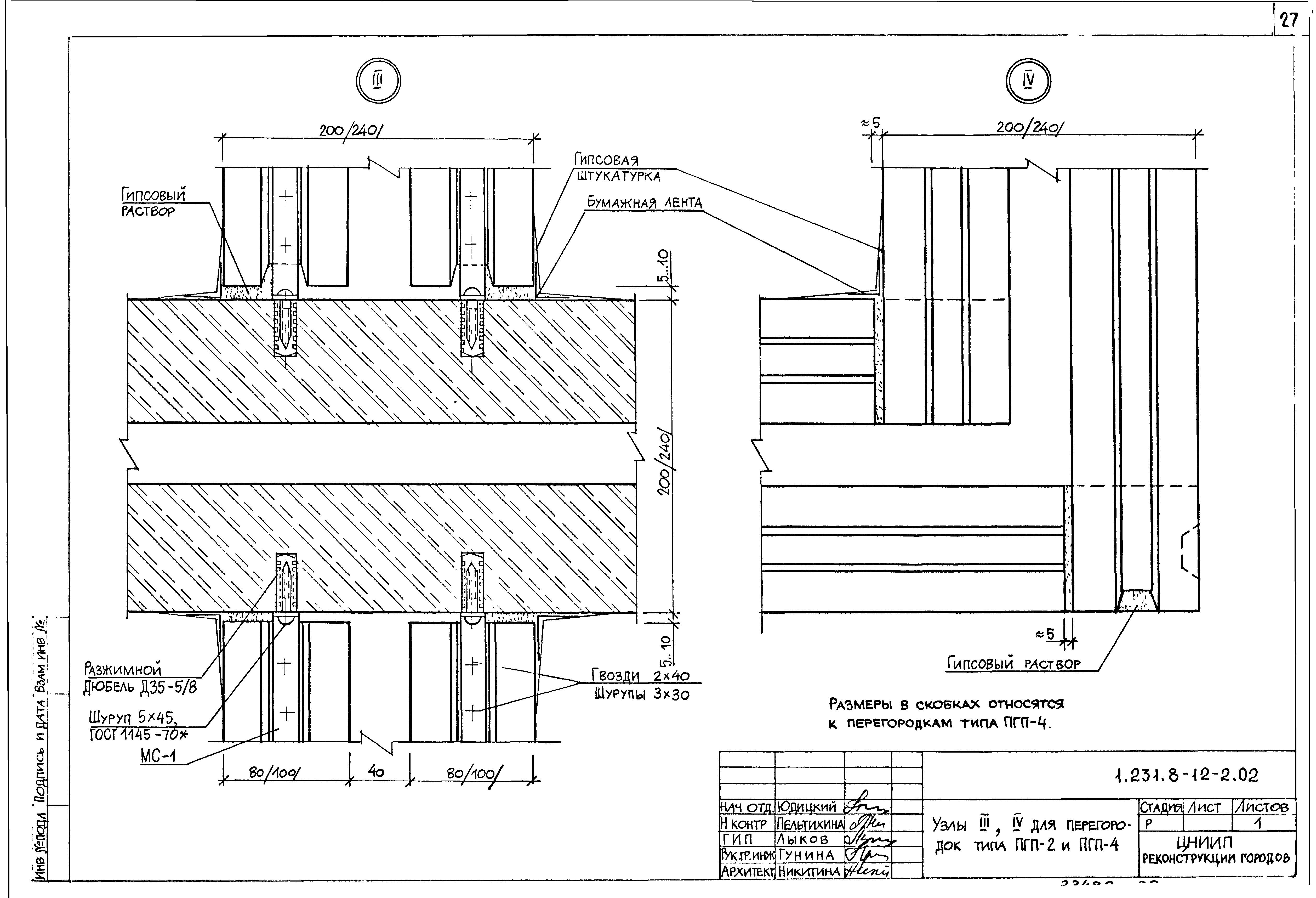
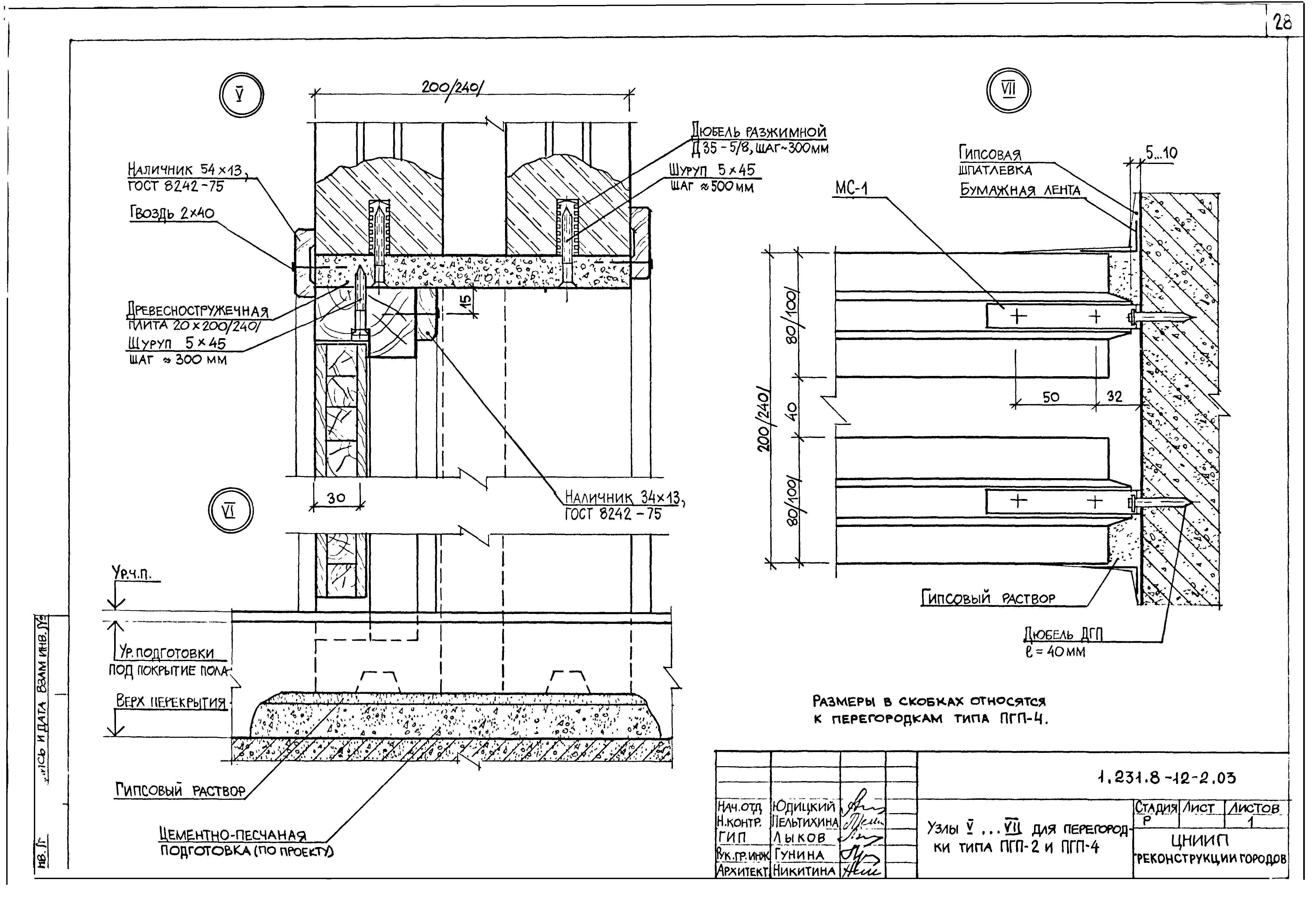
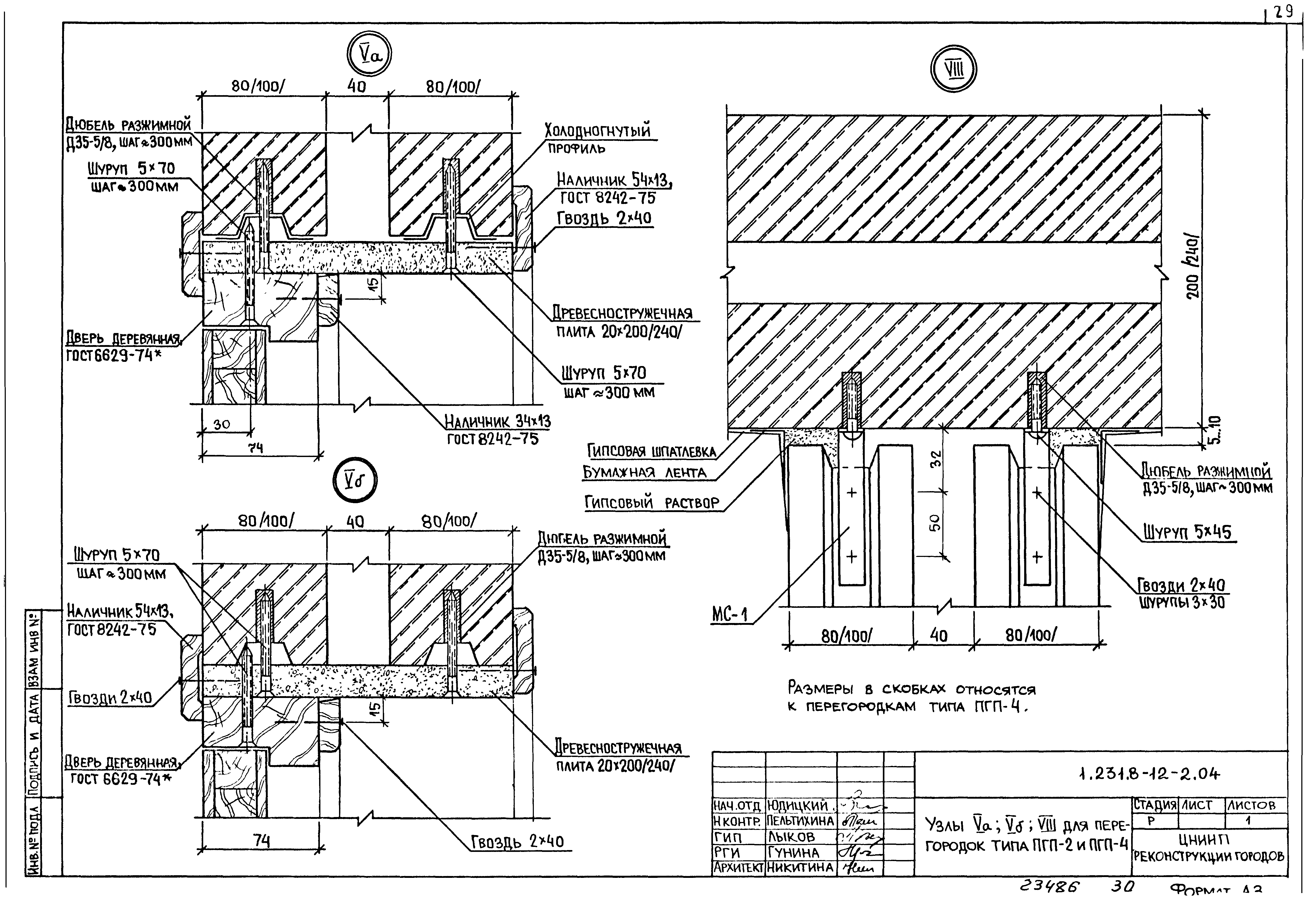
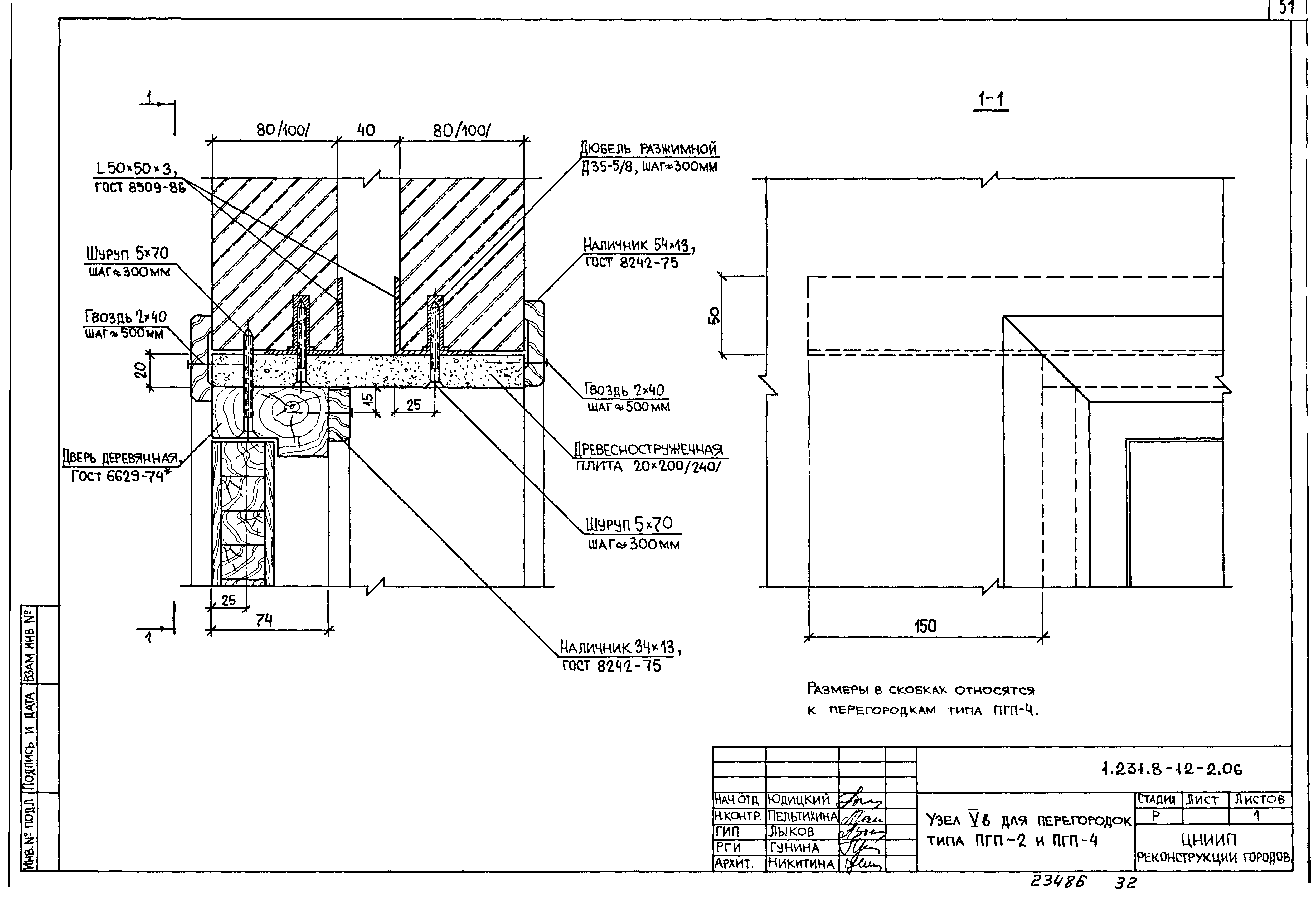
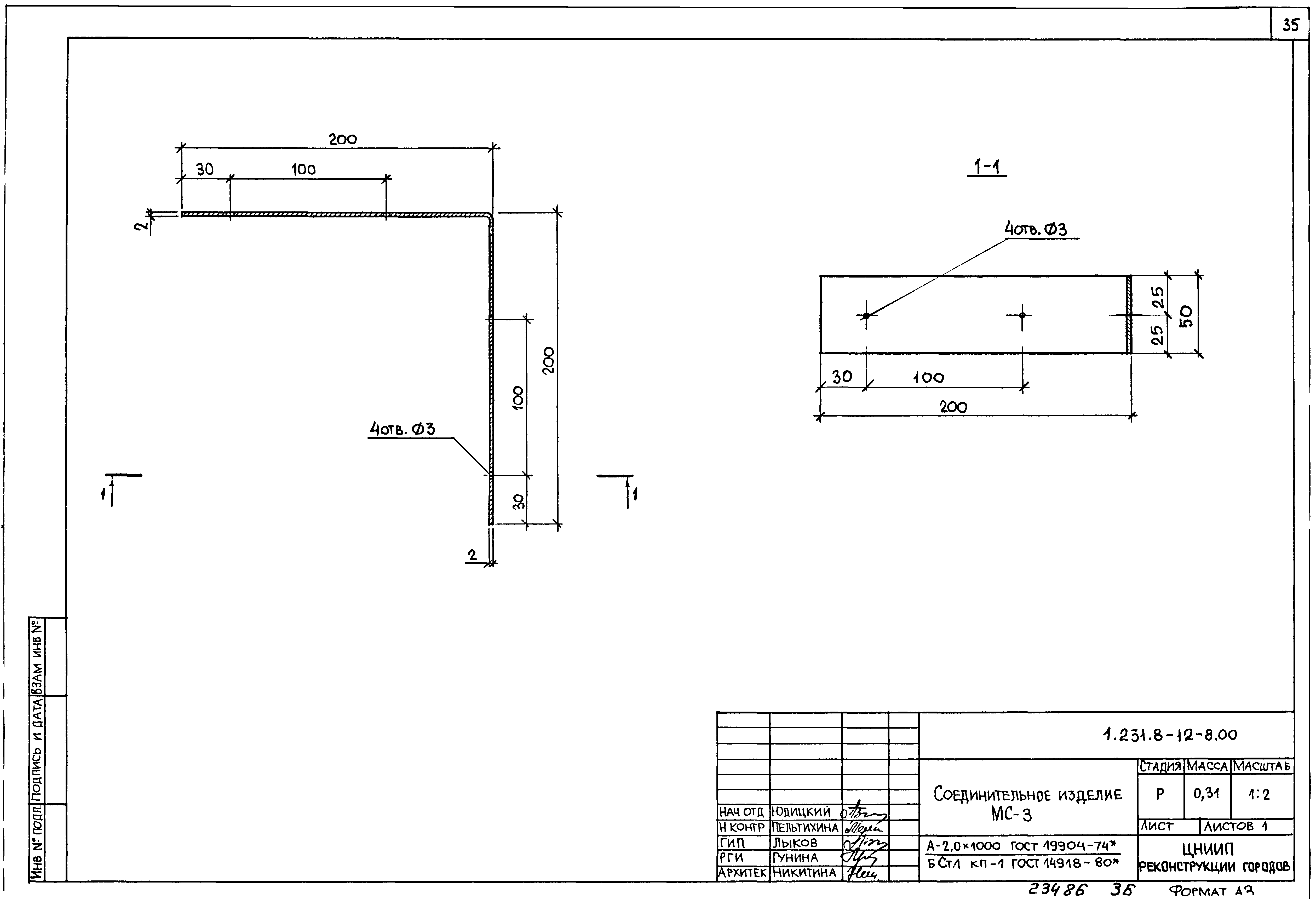
| Оглавление: | 1.231.8-12-0.00 ПЗ Пояснительная записка 1.231.8-12-1.00 Пример устройства перегородок типа ПГП-1 и ПГП-3 из гипсовых плит 667х500 мм с примыканием к плитам перекрытий 1.231.8-12-1.10 Пример устройства перегородок типа ПГП-1 и ПГП-3 из гипсовых плит 900х300 мм с примыканием к плитам перекрытий 1.231.8-12-1.20 Пример устройства перегородок типа ПГП-1 и ПГП-3 из гипсовых плит 800х400 мм с примыканием к плитам перекрытий 1.231.8-12-1.30 Пример устройства перегородок типа ПГП-1 и ПГП-3 из гипсовых плит 667х500 мм с примыканием к ригелям 1.231.8-12-1.40 Пример устройства перегородок типа ПГП-1 и ПГП-3 из гипсовых плит 900х300 мм с примыканием к ригелям 1.231.8-12-1.50 Пример устройства перегородок типа ПГП-1 и ПГП-3 из гипсовых плит 800х400 мм с примыканием к ригелям 1.231.8-12-1.01 Узлы I, II для перегородок типа ПГП-1 и ПГП-3 1.231.8-12-1.02 Узлы III, IIIa, IIIб для перегородок типа ПГП-1 и ПГП-3 1.231.8-12-1.03 Узлы Iа, IIIв, IV для перегородок типа ПГП-1 и ПГП-3 1.231.8-12-1.04 Узлы V, VI, VII для перегородок типа ПГП-1 и ПГП-3 1.231.8-12-1.05 Узлы VIII, VIIIa, IX, X для перегородок типа ПГП-1 и ПГП-3 1.231.8-12-1.06 Узлы XI, XIIa, XII для перегородок типа ПГП-1 и ПГП-3 1.231.8-12-1.07 Узлы VIIIa, VIIIв для перегородок типа ПГП-1 1.231.8-12-2.00 Пример устройства перегородок типа ПГП-2 и ПГП-4 из гипсовых плит 667х500 мм с примыканием к плитам перекрытий 1.231.8-12-2.10 Пример устройства перегородок типа ПГП-2 и ПГП-4 из гипсовых плит 900х300 мм с примыканием к плитам перекрытий 1.231.8-12-2.20 Пример устройства перегородок типа ПГП-2 и ПГП-4 из гипсовых плит 800х400 мм с примыканием к плитам перекрытий 1.231.8-12-2.30 Пример устройства перегородок типа ПГП-2 и ПГП-4 из гипсовых плит 667х500 мм с примыканием к ригелям 1.231.8-12-2.40 Пример устройства перегородок типа ПГП-2 и ПГП-4 из гипсовых плит 900х300 мм с примыканием к ригелям 1.231.8-12-2.50 Пример устройства перегородок типа ПГП-2 и ПГП-4 из гипсовых плит 800х400 мм с примыканием к ригелям 1.231.8-12-2.01 Узлы I, II для перегородок типа ПГП-2 и ПГП-4 1.231.8-12-2.02 Узлы III, IV для перегородок типа ПГП-2 и ПГП-4 1.231.8-12-2.03 Узлы V… VII для перегородок типа ПГП-2 и ПГП-4 1.231.8-12-2.04 Узлы Va, Vб, VIII для перегородок типа ПГП-2 и ПГП-4 1.231.8-12-2.05 Узлы IX, X, для перегородок типа ПГП-2 и ПГП-4 1.231.8-12-2.06 Узлы Vв для перегородок типа ПГП-2 и ПГП-4 1.231.8-12-3.00 Примеры установки анкерных изделий 1.231.8-12-4.00 Крючок 1.231.8-12-5.00 Дюбель разжимной 1.231.8-12-6.00 Соединительные изделия МС-1 и МС-2 1.231.8-12-7.00 Холодногнутый профиль 1.231.8-12-8.00 Соединительное изделие МС-3 1.231.8-12-9.00 Номенклатура пазогребневых гипсовых плит по ГОСТ 6428-83 |
| Разработан: | ЦНИИП реконструкции городов Госкомархитектуры |
| Утверждён: | 31.07.1987 Госкомархитектура (ЭС-7-2880) |
| Издан: | ЦИТП Госстроя СССР (CITP, Gosstroy (USSR) 1989 г. ) |
| Нормативные ссылки: |
|





































