Скачать Серия 1.431.9-31 Выпуск 4. Колонны фахверка стальные. Рабочие чертежиДата актуализации: 01.01.2021 Серия 1.431.9-31
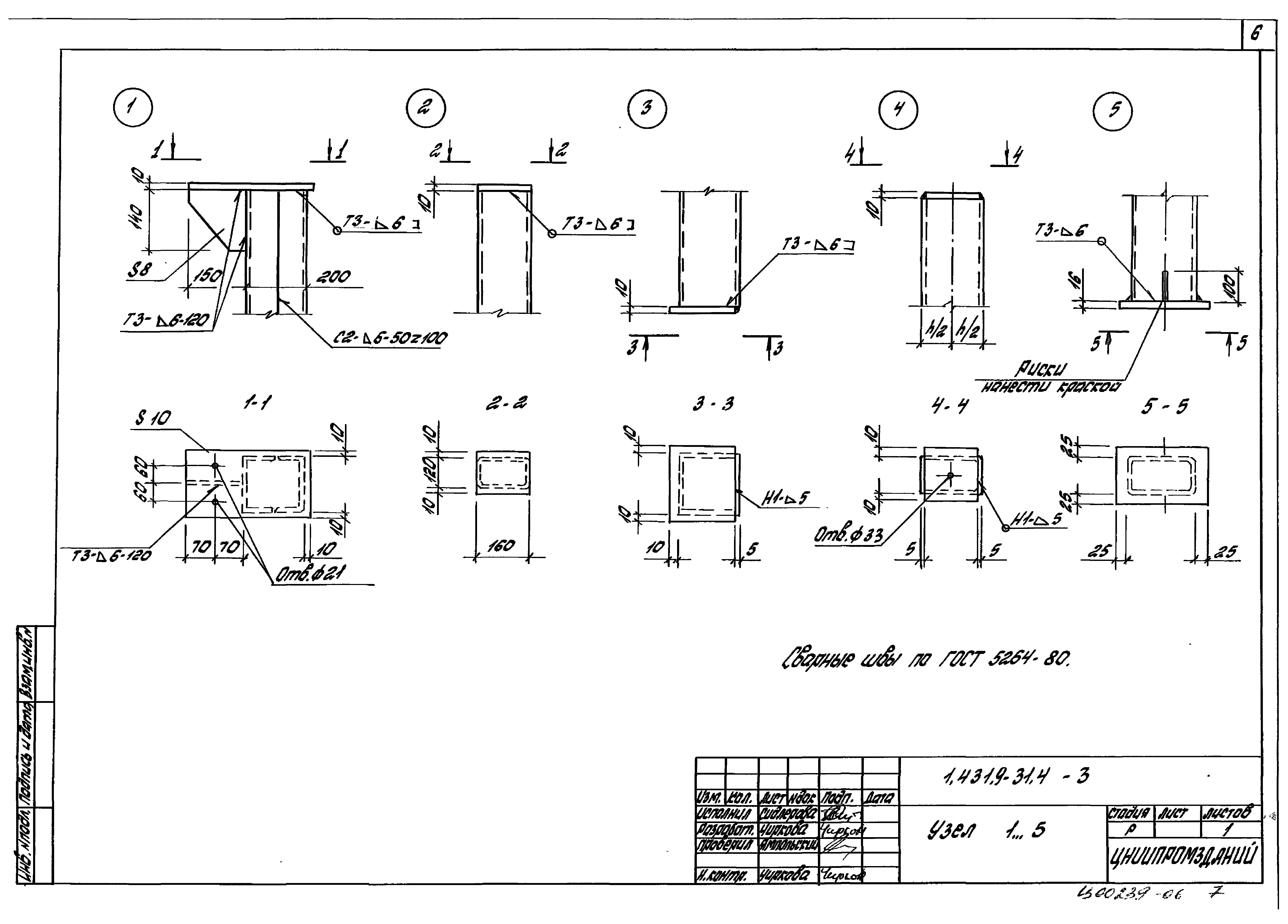
Выпуск 4. Колонны фахверка стальные. Рабочие чертежи| Обозначение: | Серия 1.431.9-31 | | Обозначение англ: | Series 1.431.9-31 | | Статус: | не определен законодательством | | Название рус.: | Выпуск 4. Колонны фахверка стальные. Рабочие чертежи | | Дата добавления в базу: | 01.09.2013 | | Дата актуализации: | 01.01.2021 | | Дата введения: | 01.01.1995 | | Дата окончания срока действия: | 30.06.2003 | | Область применения: | Настоящий выпуск содержит чертежи стальных конструкций фахверковых колонн и элементов "Т" на основных колоннах здания | | Разработан: | ЦНИИпромзданий
| | Утверждён: | 17.01.1994 Главпроект Госстроя России (9-3-2/5)
| | Нормативные ссылки: | |
        
|