Скачать Серия 1.431.3-26 Выпуск 0. Материалы для проектированияДата актуализации: 01.01.2021
|
| Обозначение: | Серия 1.431.3-26 |
| Обозначение англ: | Series 1.431.3-26 |
| Статус: | не определен законодательством |
| Название рус.: | Выпуск 0. Материалы для проектирования |
| Дата добавления в базу: | 01.09.2013 |
| Дата актуализации: | 01.01.2021 |
| Дата введения: | 07.06.1985 |
| Дата окончания срока действия: | 30.06.2003 |
| Область применения: | Настоящая серия содержит рабочие чертежи панельных перегородок с каркасом из стальных холодногнутых профилей |
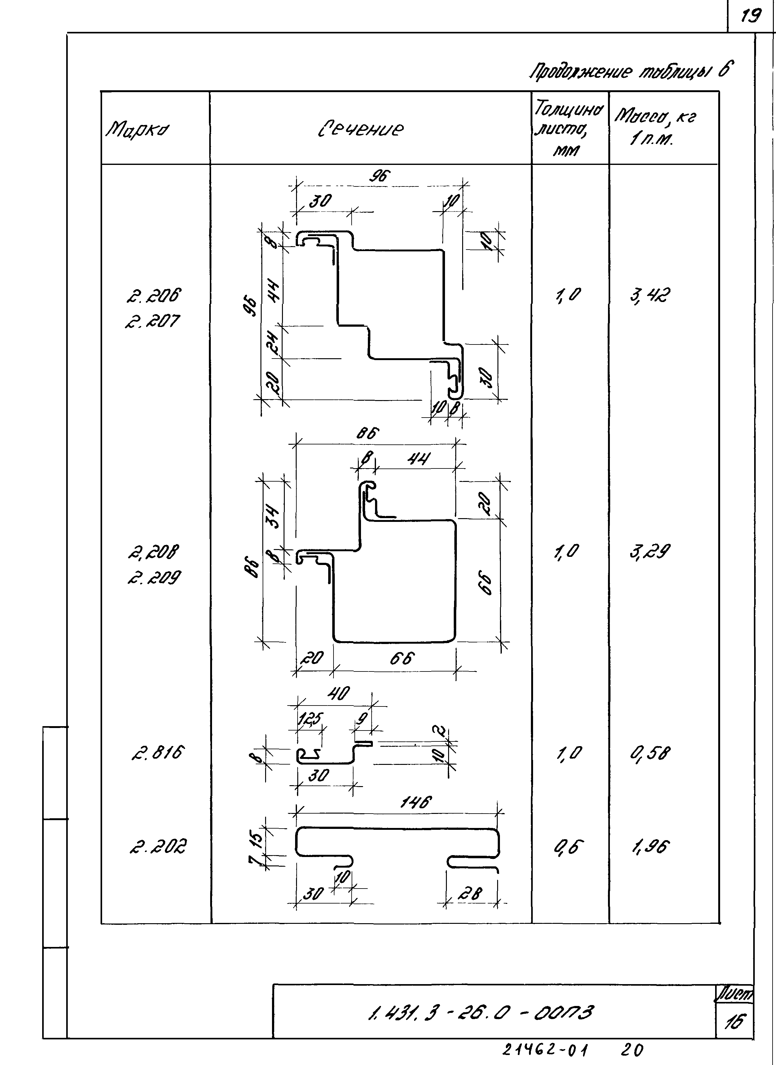
| Оглавление: | 1.431.3-26.0-00 ПЗ Пояснительная записка 1.431.3-26.0-01 Ключ для подбора стоек фахверка в зданиях с каркасами серий 1.420-12; 1.420-6 1.431.3-26.0-02 Ключ для подбора стоек фахверка в зданиях с каркасами серий 1.020-1/83 1.431.3-26.0-03 Пример решения поперечной перегородки в зданиях с каркасом по серии 1.420-12 (ригели с полками) 1.431.3-26.0-04 Пример решения поперечной перегородки в зданиях с каркасом по серии 1.420-12 (прямоугольный ригель) 1.431.3-26.0-05 Пример решения поперечной перегородки в зданиях с каркасом по серии 1.420-6 (ребристые плиты перекрытия) 1.431.3-26.0-06 Пример решения поперечной перегородки в зданиях с каркасом по серии 1.420-6 (многопустотные плиты перекрытия) 1.431.3-26.0-07 Пример решения продольной перегородки в зданиях с каркасом по серии 1.420-6 (многопустотные плиты перекрытия) 1.431.3-26.0-08 Пример решения поперечной перегородки в зданиях с каркасом по серии 1.420-12; 1.420-6 в пролете между колонн 1.431.3-26.0-09 Пример решения поперечной перегородки в зданиях с каркасом по серии 1.020-1/83 (многопустотные плиты перекрытия) 1.431.3-26.0-10 Пример решения продольной перегородки в зданиях с каркасом по серии 1.020-1/83 (многопустотные плиты перекрытия) 1.431.3-26.0-11 Схема расположения элементов каркаса поперечной перегородки с шагом колонн 6 м в зданиях серии 1.420-12 1.431.3-26.0-12 Схема расположения элементов каркаса поперечной перегородки с шагом колонн 12 м в зданиях серии 1.420-12 1.431.3-26.0-13 Схема расположения элементов каркаса продольной перегородки в зданиях по серии 1.420-6 (многопустотные плиты перекрытия) 1.431.3-26.0-14 Схема расположения элементов каркаса поперечной перегородки, устанавливаемой в пролете между колонн в зданиях серий 1.420-12; 1.420-6 1.431.3-26.0-15 Схема расположения элементов каркаса поперечной перегородки с шагом колонн 9 м в зданиях серий 1.020-1/83 1.431.3-26.0-16 Схема расположения элементов каркаса поперечной перегородки в зданиях с каркасом по серий 1.020-1/83 1.431.3-26.0-17 Схема расположения элементов верхней части перегородки 1.431.3-26.0-18 Схема расположения опорных столиков и ригелей на колоннах и стойках фахверка |
| Разработан: | ЦНИИпромзданий |
| Утверждён: | 07.06.1985 Госстрой СССР (Государственный комитет Совета Министров СССР по делам строительства) (USSR Gosstroy 49) |
| Издан: | ЦИТП Госстроя СССР (CITP, Gosstroy (USSR) 1986 г. ) |
| Нормативные ссылки: |
|











































