Скачать Серия 1.831.9-3 Выпуск 4. Узлы перегородок. Рабочие чертежиДата актуализации: 01.01.2021
|
| Обозначение: | Серия 1.831.9-3 |
| Обозначение англ: | Series 1.831.9-3 |
| Статус: | не определен законодательством |
| Название рус.: | Выпуск 4. Узлы перегородок. Рабочие чертежи |
| Дата добавления в базу: | 01.09.2013 |
| Дата актуализации: | 01.01.2021 |
| Дата введения: | 15.03.1992 |
| Дата окончания срока действия: | 30.06.2003 |
| Область применения: | Настоящий выпуск содержит рабочие чертежи монтажных узлов панельных перегородок и крепления их к конструкциям здания |
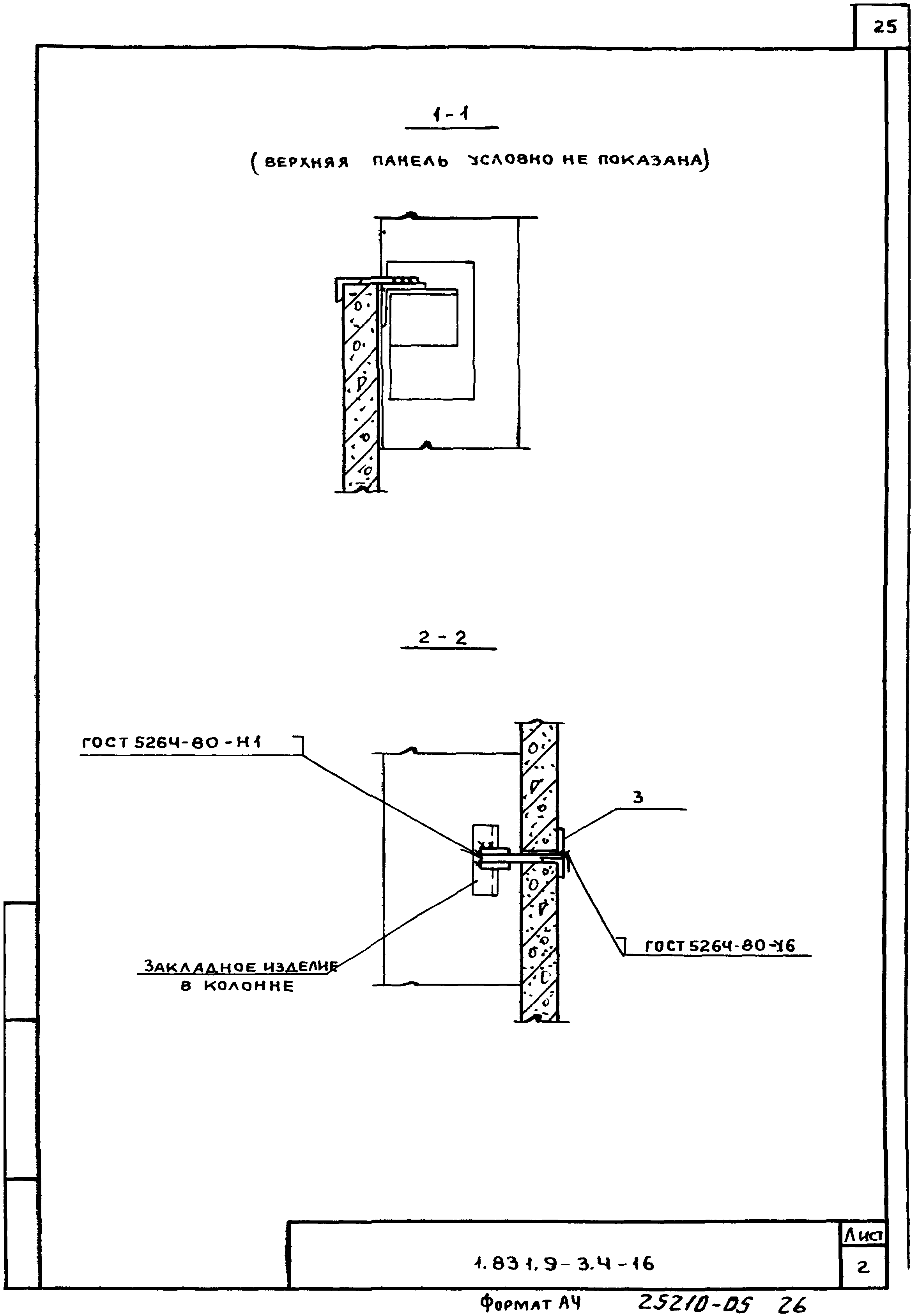
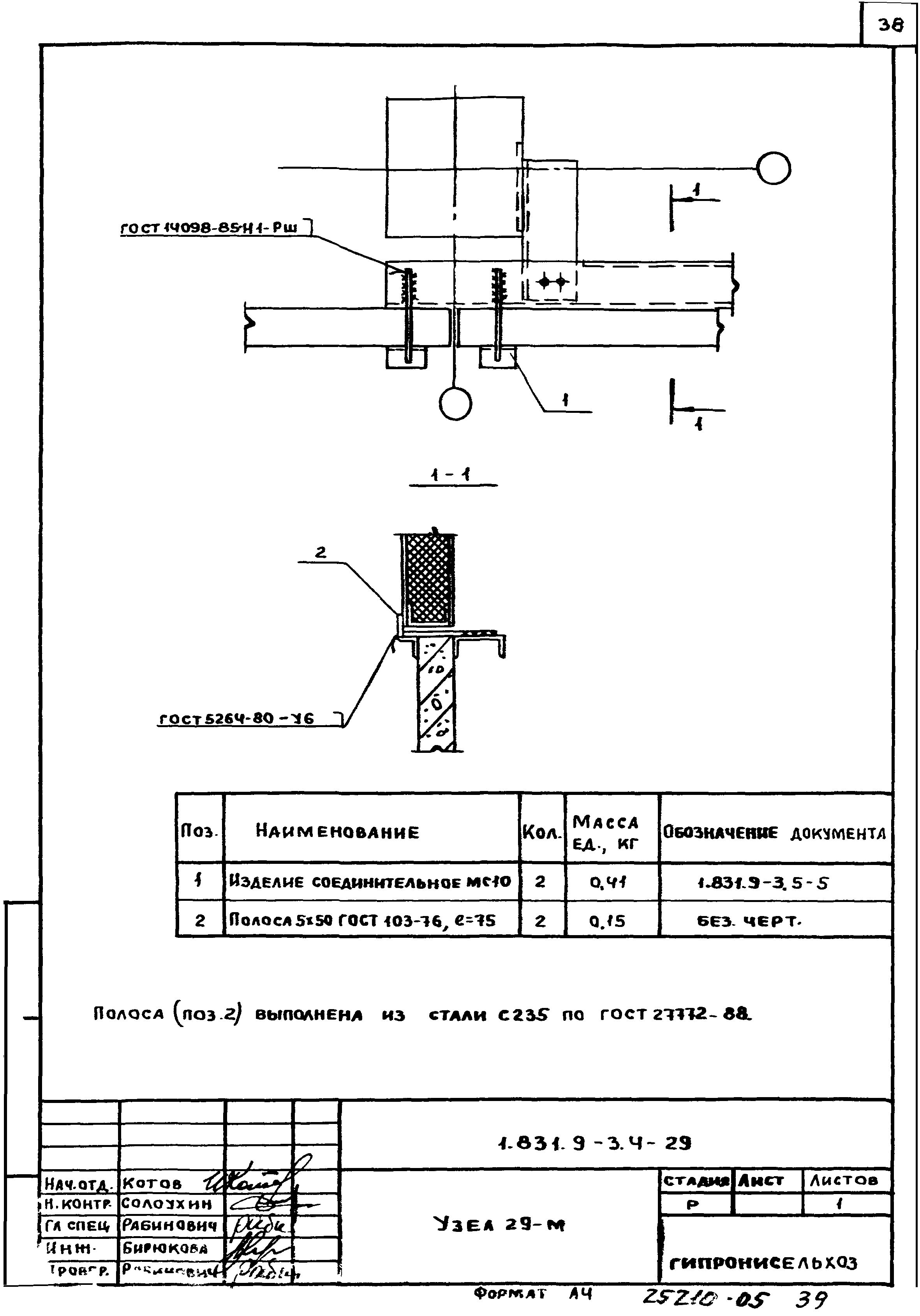
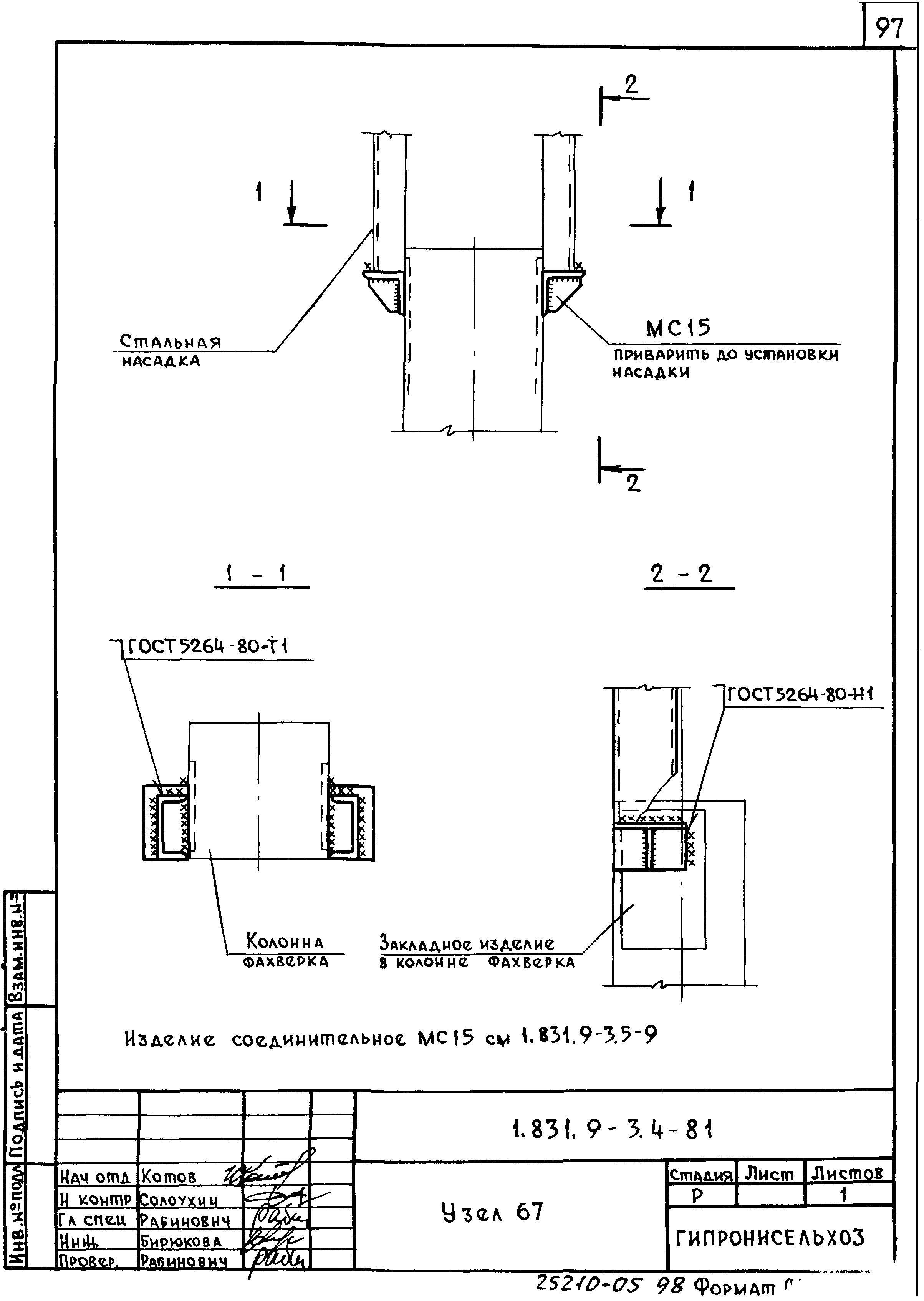
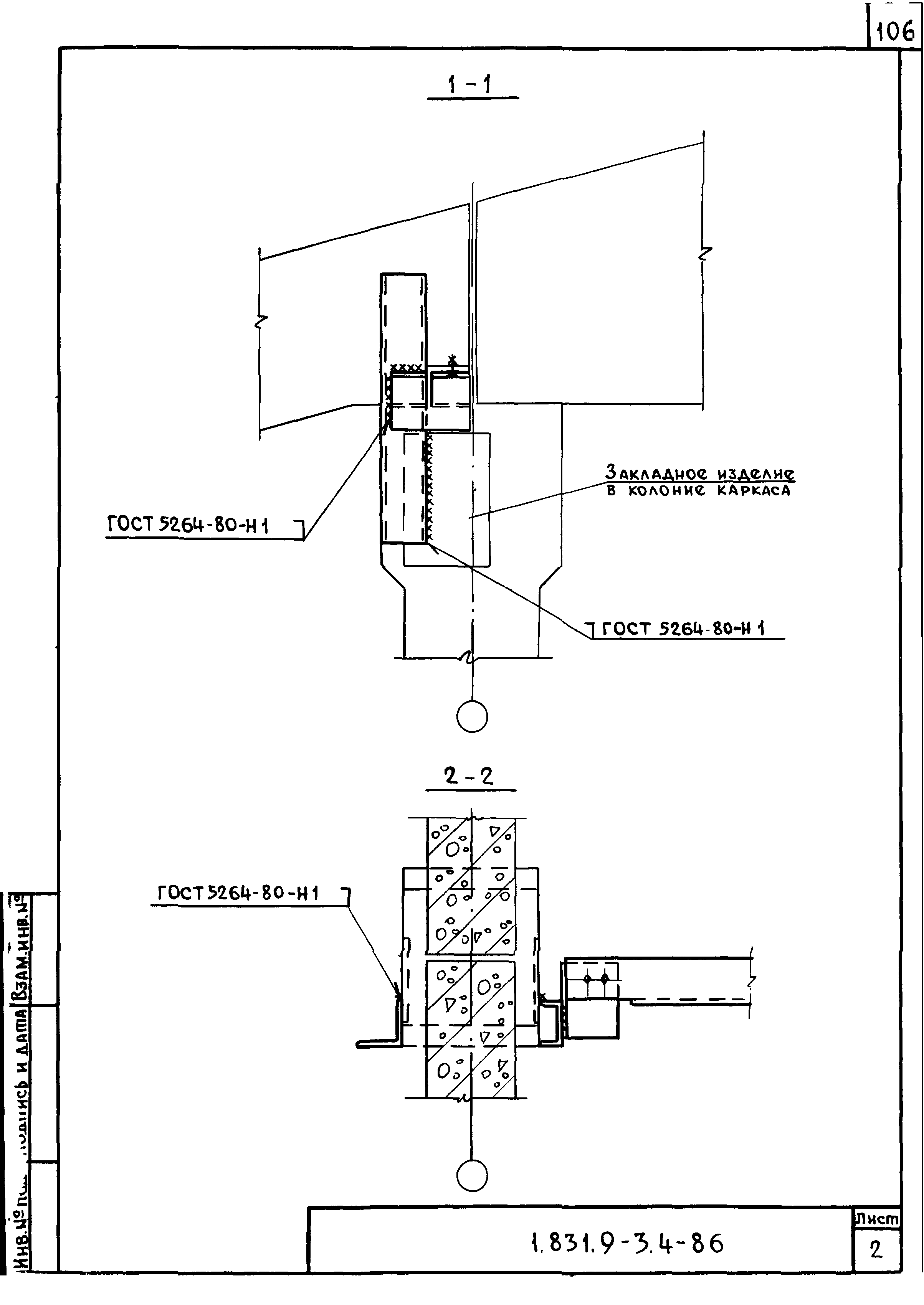
| Оглавление: | 1.831.9-3.4-ТТ Технические условие 1.831.9-3.4-1 Узел 1 1.831.9-3.4-2 Узел 2 1.831.9-3.4-3 Узел 3 1.831.9-3.4-4 Узел 4, 5, 6 1.831.9-3.4-5 Узел 7, 8, 9 1.831.9-3.4-6 Узел 10 1.831.9-3.4-7 Узел 11 1.831.9-3.4-8 Узел 12 1.831.9-3.4-9 Узел 13 1.831.9-3.4-10 Узел 14 1.831.9-3.4-11 Узел 15 1.831.9-3.4-12 Узел 16 1.831.9-3.4-13 Узел 17 1.831.9-3.4-14 Узел 18 1.831.9-3.4-15 Узел 19 1.831.9-3.4-16 Узел 20 1.831.9-3.4-17 Узел 21 1.831.9-3.4-18 Узел 22 1.831.9-3.4-19 Узел 23 1.831.9-3.4-20 Узел 24 1.831.9-3.4-21 Узел 25 1.831.9-3.4-22 Узел 26-Д 1.831.9-3.4-23 Узел 26-М 1.831.9-3.4-24 Узел 27-Д 1.831.9-3.4-25 Узел 27-М 1.831.9-3.4-26 Узел 28-Д 1.831.9-3.4-27 Узел 28-М 1.831.9-3.4-28 Узел 29-Д 1.831.9-3.4-29 Узел 29-М 1.831.9-3.4-30 Узел 30-Д 1.831.9-3.4-31 Узел 30-М 1.831.9-3.4-32 Узел 31-Д 1.831.9-3.4-33 Узел 31-М 1.831.9-3.4-34 Узел 32-Д 1.831.9-3.4-35 Узел 32-М 1.831.9-3.4-36 Узел 33-Д 1.831.9-3.4-37 Узел 33-М 1.831.9-3.4-38 Узел 34-Д 1.831.9-3.4-39 Узел 34-М 1.831.9-3.4-40 Узел 35-Д 1.831.9-3.4-41 Узел 35-М 1.831.9-3.4-42 Узел 36-Д 1.831.9-3.4-43 Узел 36-М 1.831.9-3.4-44 Узел 37-Д 1.831.9-3.4-45 Узел 37-М 1.831.9-3.4-46 Узел 38-Д; 39 1.831.9-3.4-47 Узел 38-М 1.831.9-3.4-48 Узел 40-Д 1.831.9-3.4-49 Узел 40-М 1.831.9-3.4-50 Узел 41-Д 1.831.9-3.4-51 Узел 41-М 1.831.9-3.4-52 Узел 42-П 1.831.9-3.4-53 Узел 42-М 1.831.9-3.4-54 Узел 43 1.831.9-3.4-55 Узел 44-Д 1.831.9-3.4-56 Узел 44-М 1.831.9-3.4-57 Узел 45-Д 1.831.9-3.4-58 Узел 45-М 1.831.9-3.4-59 Узел 46-Д 1.831.9-3.4-60 Узел 46-М 1.831.9-3.4-61 Узел 47 1.831.9-3.4-62 Узел 48 1.831.9-3.4-63 Узел 49 1.831.9-3.4-64 Узел 50 1.831.9-3.4-65 Узел 51 1.831.9-3.4-66 Узел 52 1.831.9-3.4-67 Узел 53 1.831.9-3.4-68 Узел 54 1.831.9-3.4-69 Узел 55 1.831.9-3.4-70 Узел 56 1.831.9-3.4-71 Узел 57 1.831.9-3.4-72 Узел 58 1.831.9-3.4-73 Узел 59 1.831.9-3.4-74 Узел 60 1.831.9-3.4-75 Узел 61 1.831.9-3.4-76 Узел 62 1.831.9-3.4-77 Узел 63 1.831.9-3.4-78 Узел 64 1.831.9-3.4-79 Узел 65 1.831.9-3.4-80 Узел 66 1.831.9-3.4-81 Узел 67 1.831.9-3.4-82 Узел 68 1.831.9-3.4-83 Узел 69 1.831.9-3.4-84 Узел 70 1.831.9-3.4-85 Узел 71 1.831.9-3.4-86 Узел 72 1.831.9-3.4-87 Узел 73 1.831.9-3.4-88 Узел 74 1.831.9-3.4-89 Узел 75 |
| Разработан: | ГипроНИсельхоз (Институт Гипронисельхоз ) |
| Утверждён: | 16.05.1991 Главпроект Госстроя СССР (5/6-137) |
| Издан: | АПП ЦИТП (1991 г. ) |
| Нормативные ссылки: |
|














































































































