Скачать Серия 1.831.9-4 Выпуск 2. Узлы перегородок на металлическом каркасе и соединительные изделия. Рабочие чертежи

Дата актуализации: 01.01.2021

Серия 1.831.9-4

Выпуск 2. Узлы перегородок на металлическом каркасе и соединительные изделия. Рабочие чертежи

Обозначение: Серия 1.831.9-4
Обозначение англ: Series 1.831.9-4
Статус:не определен законодательством
Название рус.:Выпуск 2. Узлы перегородок на металлическом каркасе и соединительные изделия. Рабочие чертежи
Дата добавления в базу:01.09.2013
Дата актуализации:01.01.2021
Дата введения:15.01.1992
Дата окончания срока действия:30.06.2003
Область применения:Настоящий выпуск содержит рабочие чертежи монтажных узлов перегородок с металлическим каркасом поэлементной сборки с различными видами обшивок для зданий сельскохозяйственных предприятий и крепления их к конструкциям здания
Оглавление:1.831.9-4.2-ТТ Технические требования
1.831.9-4.2-1 Узел 1м
1.831.9-4.2-2 Узел 2м
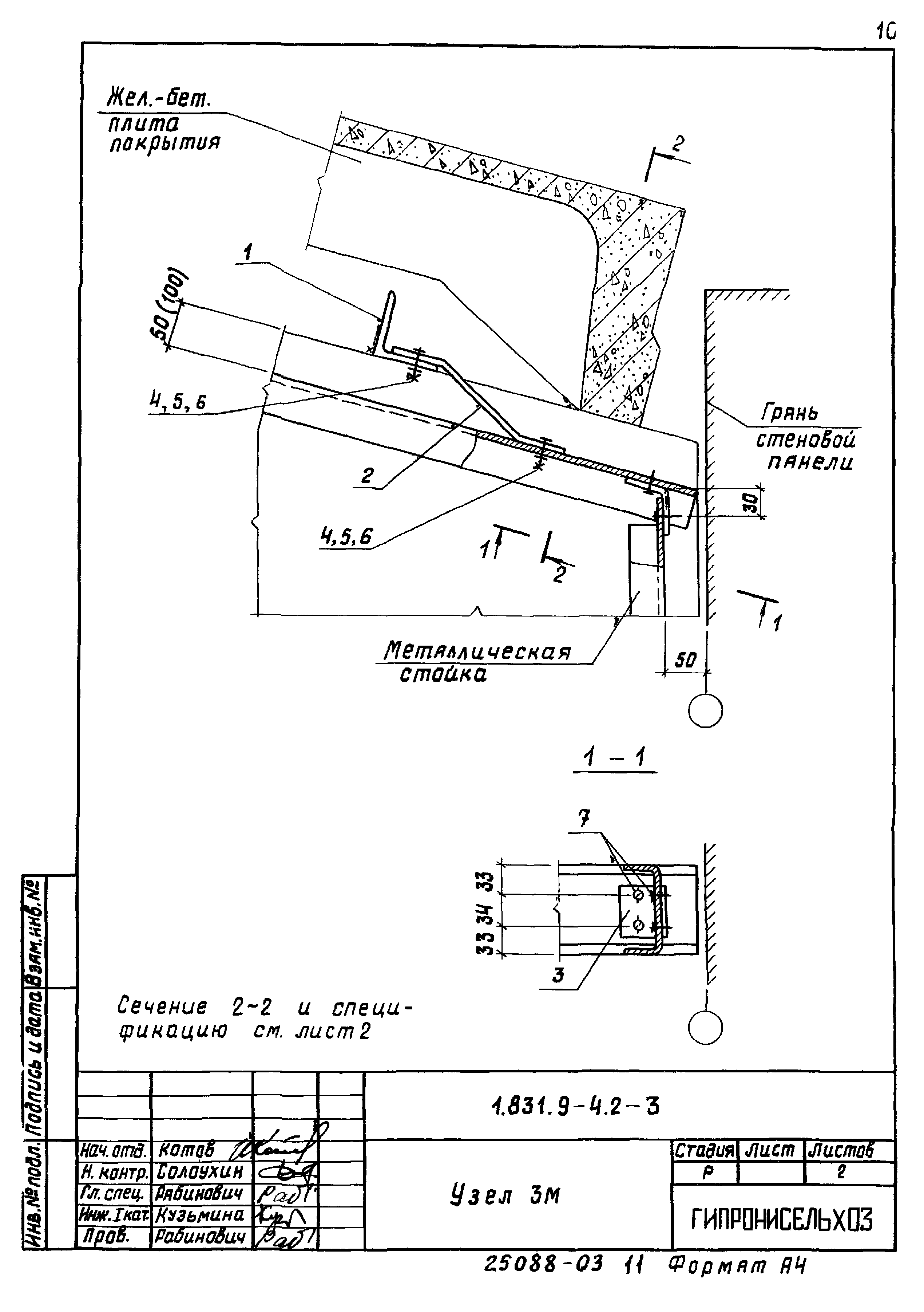
1.831.9-4.2-3 Узел 3м
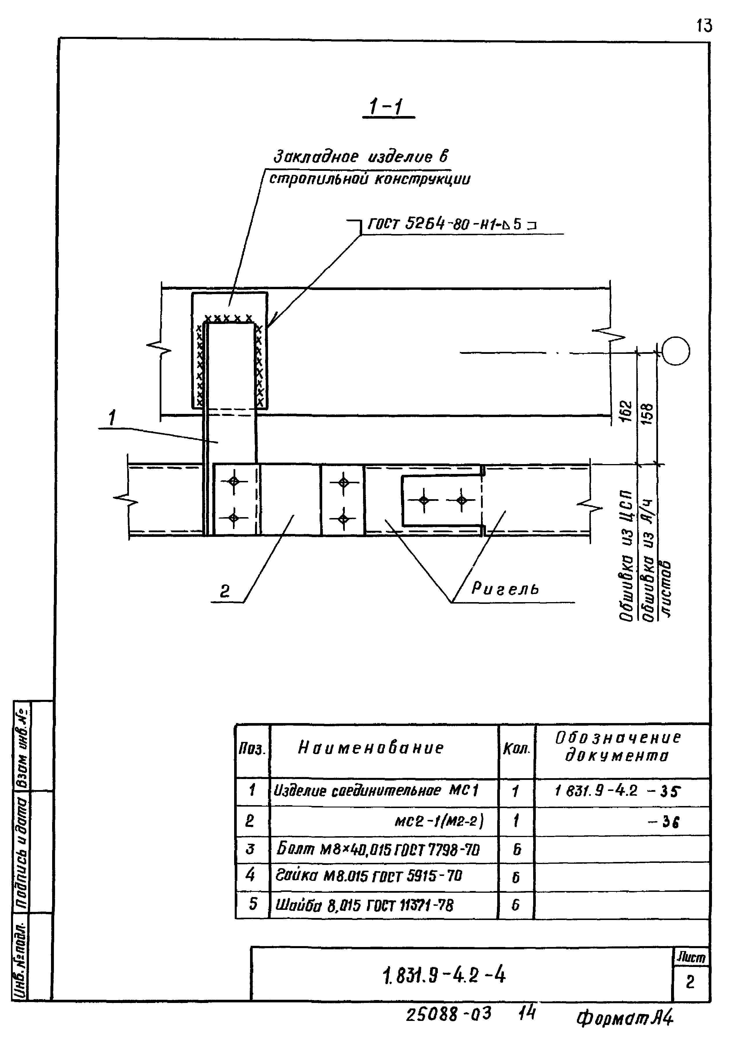
1.831.9-4.2-4 Узел 4м
1.831.9-4.2-5 Узел 5м
1.831.9-4.2-6 Узел 6м
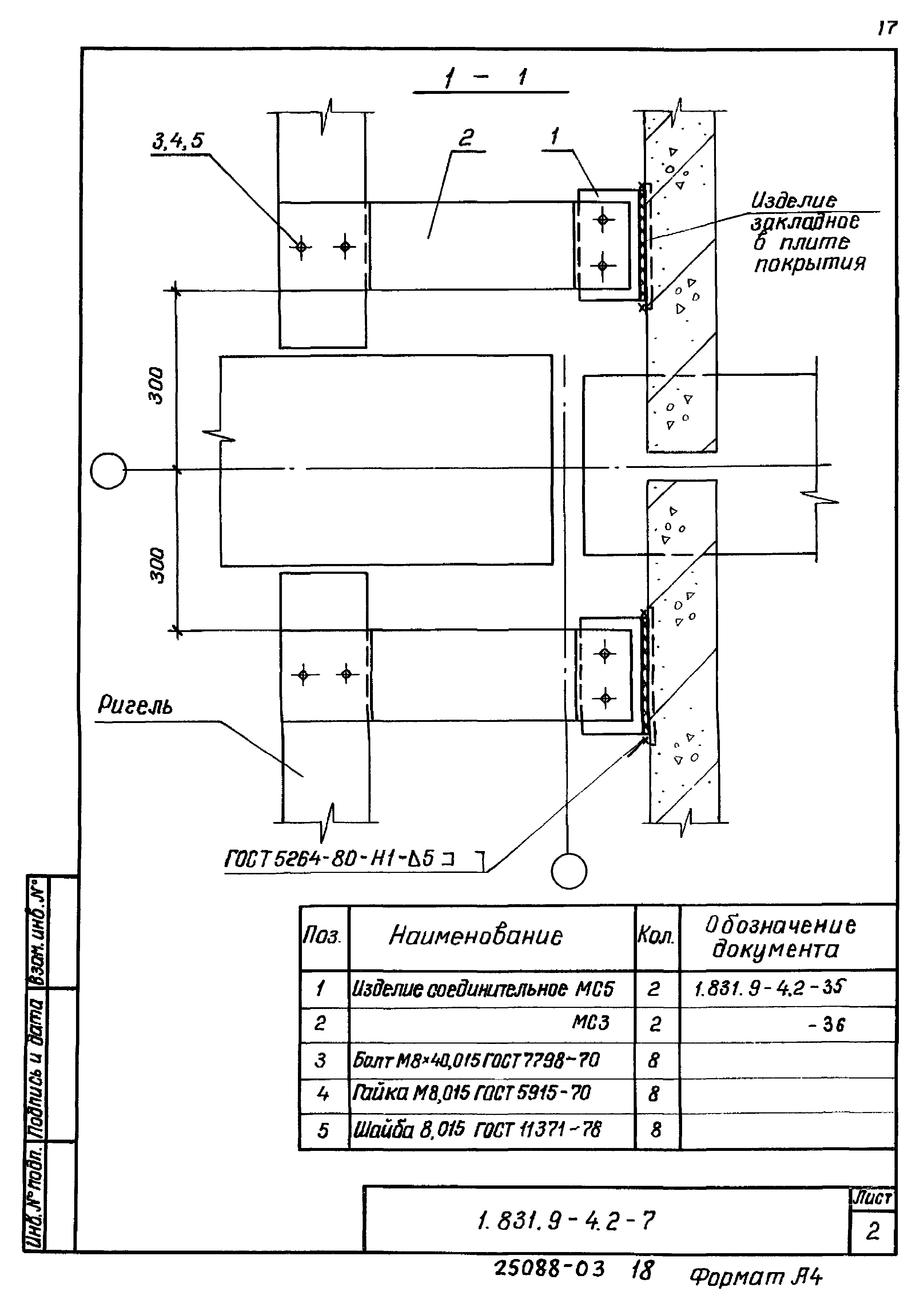
1.831.9-4.2-7 Узел 7м
1.831.9-4.2-8 Узел 8м
1.831.9-4.2-9 Узел 9м
1.831.9-4.2-10 Узел 10м
1.831.9-4.2-11 Узел 11м
1.831.9-4.2-12 Узел 12м
1.831.9-4.2-13 Узел 13м
1.831.9-4.2-14 Узел 14м
1.831.9-4.2-15 Узел 15м
1.831.9-4.2-16 Узел 16м
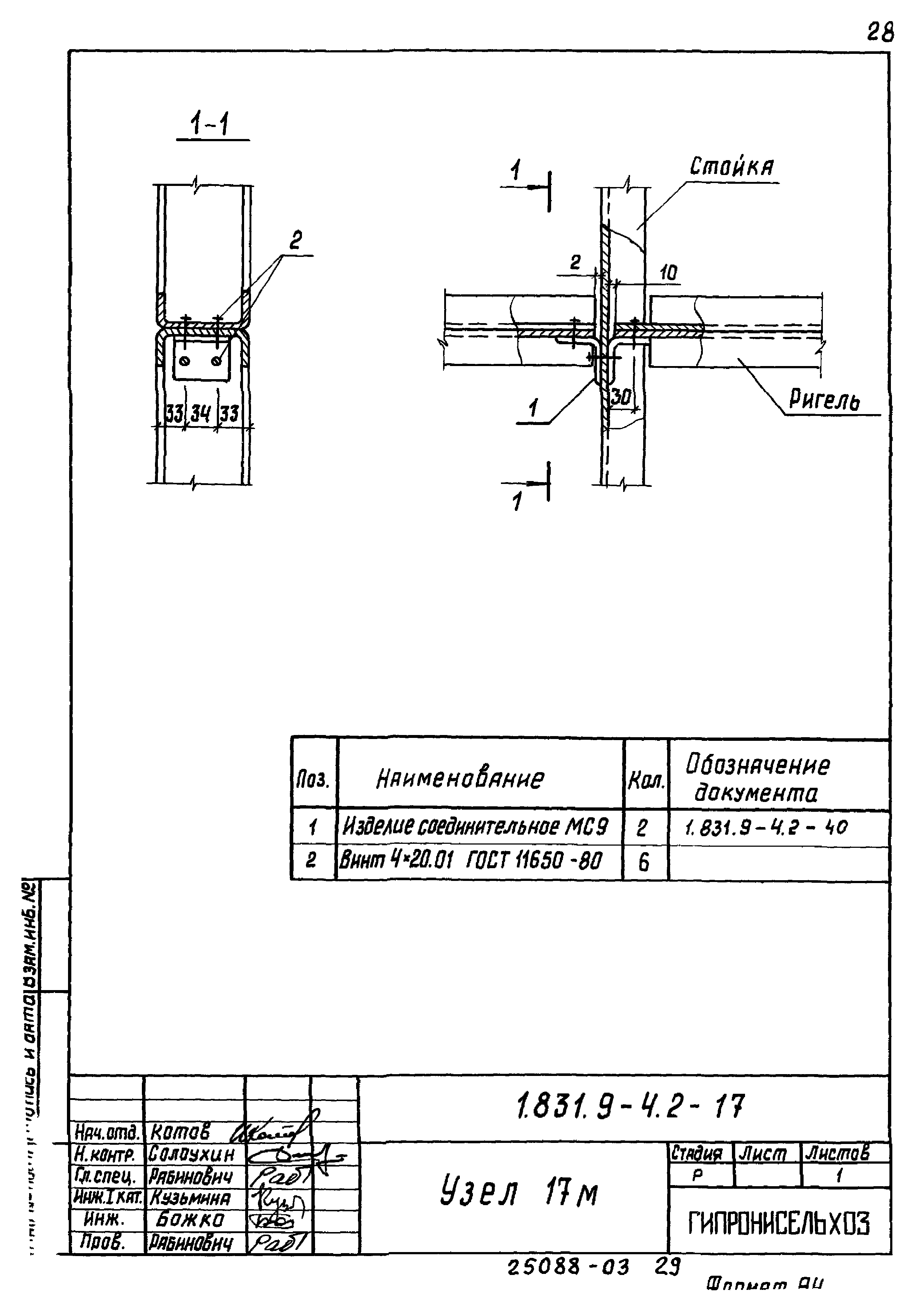
1.831.9-4.2-17 Узел 17м
1.831.9-4.2-18 Узел 18м
1.831.9-4.2-19 Узел 19м
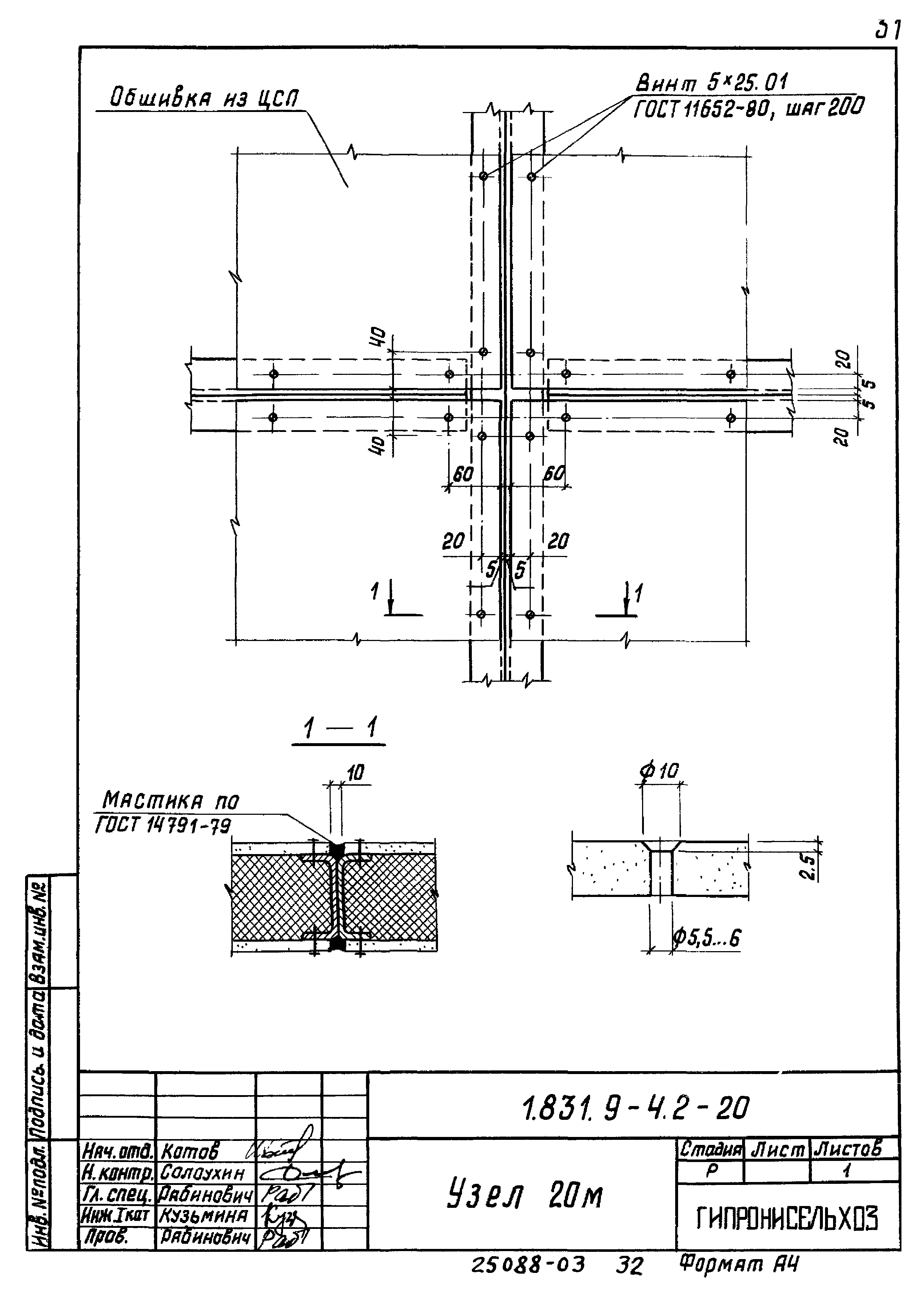
1.831.9-4.2-20 Узел 20м
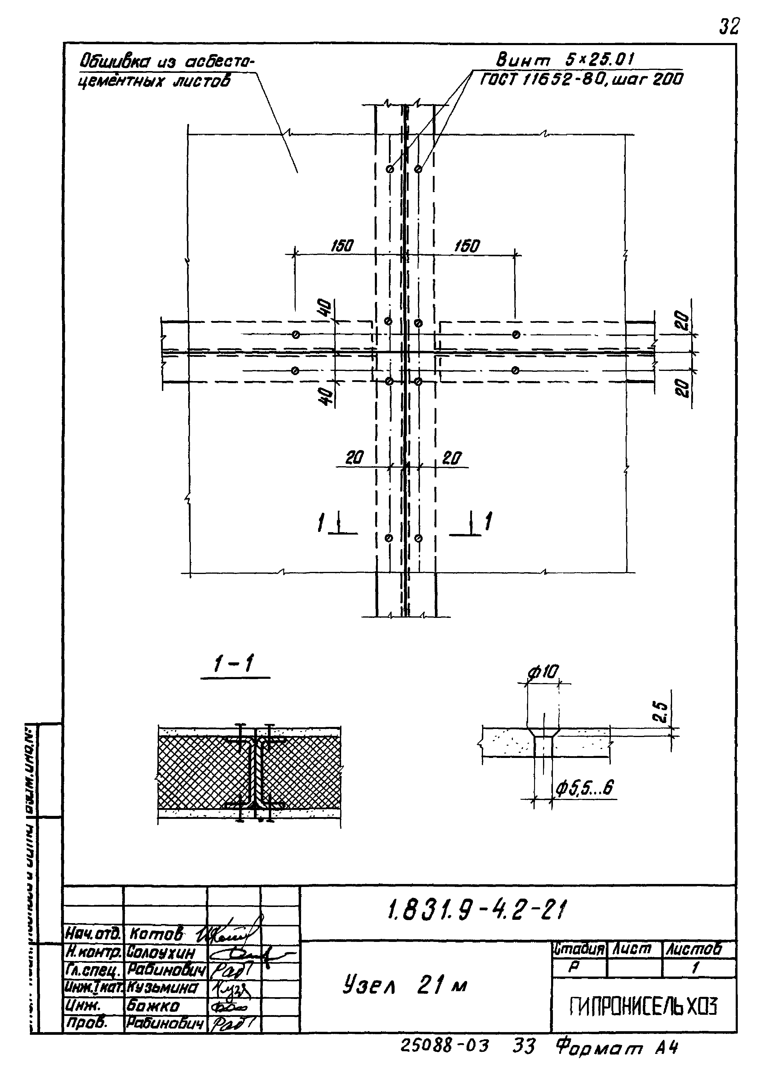
1.831.9-4.2-21 Узел 21м
1.831.9-4.2-22 Узел 22м
1.831.9-4.2-23 Узел 23м
1.831.9-4.2-24 Узел 24м
1.831.9-4.2-25 Узел 25м
1.831.9-4.2-26 Узел 26м
1.831.9-4.2-27 Узел 27м, 28м
1.831.9-4.2-28 Узел 29м
1.831.9-4.2-29 Узел 30м
1.831.9-4.2-30 Узел 31м, 32м
1.831.9-4.2-31 Узел 33м
1.831.9-4.2-32 Узел 34м
1.831.9-4.2-33 Узел 35м
1.831.9-4.2-34 Узел 36м
1.831.9-4.2-35 Изделие соединительное МС1-1, МС1-2, МС5
1.831.9-4.2-36 Изделие соединительное МС2-1, МС2-2, МС3
1.831.9-4.2-37 Изделие соединительное МС4
1.831.9-4.2-38 Изделие соединительное МС6
1.831.9-4.2-39 Изделие соединительное МС7, МС8
1.831.9-4.2-40 Изделие соединительное МС9, МС10, МС11
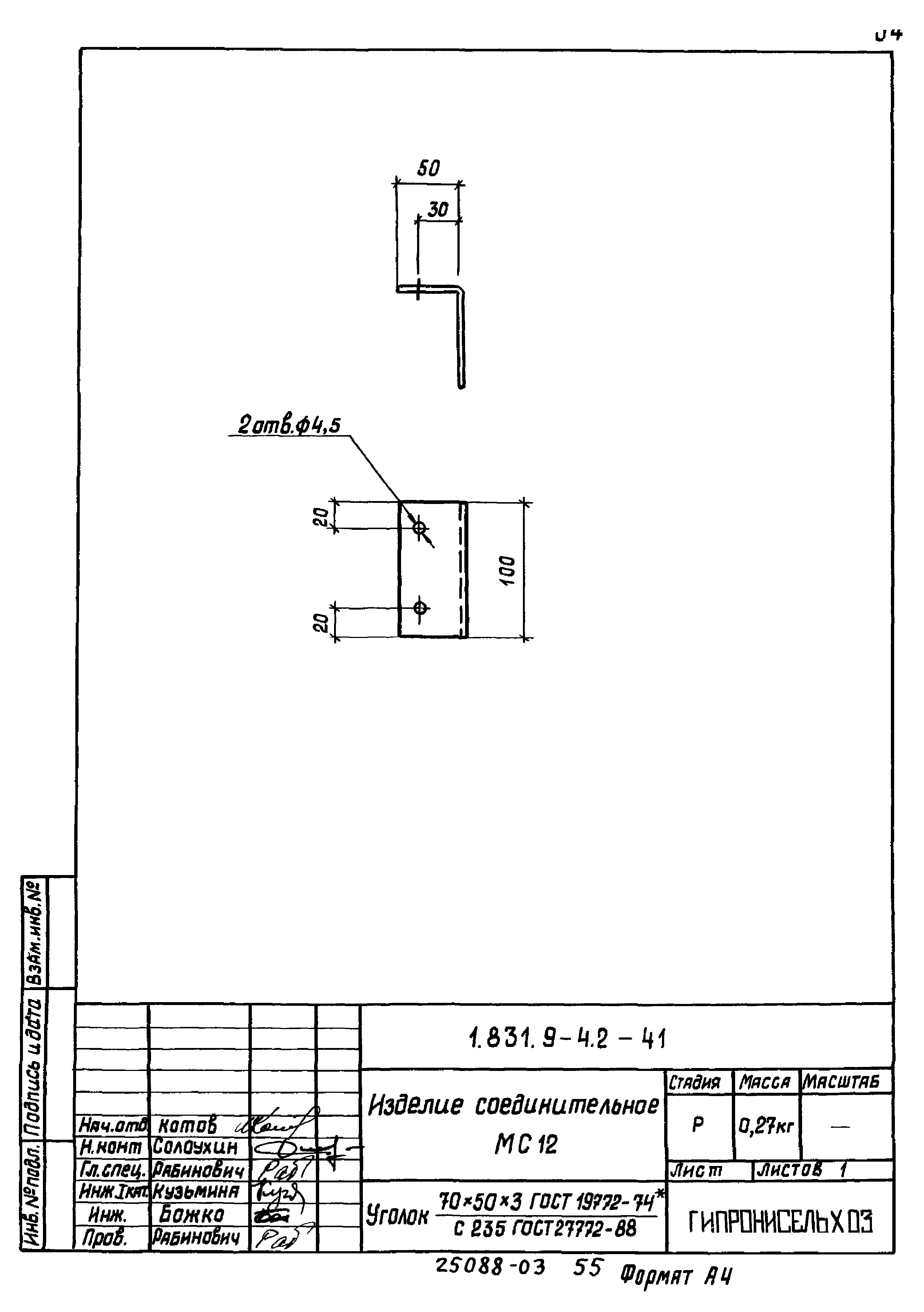
1.831.9-4.2-41 Изделие соединительное МС12
1.831.9-4.2-42 Фасонный элемент ФС1-1 - ФС1-4, ФС3
1.831.9-4.2-43 Фасонный элемент ФС2-1, ФС2-2, ФС4
Разработан: ГипроНИсельхоз (Институт Гипронисельхоз )
Утверждён:15.01.1992 Главпроект Госстроя СССР (5/6-137)
Издан: ЦИТП Госстроя СССР (CITP, Gosstroy (USSR) 1991 г. )
Нормативные ссылки:
Серия 1.831.9-4Серия 1.831.9-4Серия 1.831.9-4Серия 1.831.9-4Серия 1.831.9-4Серия 1.831.9-4Серия 1.831.9-4Серия 1.831.9-4Серия 1.831.9-4Серия 1.831.9-4Серия 1.831.9-4Серия 1.831.9-4Серия 1.831.9-4Серия 1.831.9-4Серия 1.831.9-4Серия 1.831.9-4Серия 1.831.9-4Серия 1.831.9-4Серия 1.831.9-4Серия 1.831.9-4Серия 1.831.9-4Серия 1.831.9-4Серия 1.831.9-4Серия 1.831.9-4Серия 1.831.9-4Серия 1.831.9-4Серия 1.831.9-4Серия 1.831.9-4Серия 1.831.9-4Серия 1.831.9-4Серия 1.831.9-4Серия 1.831.9-4Серия 1.831.9-4Серия 1.831.9-4Серия 1.831.9-4Серия 1.831.9-4Серия 1.831.9-4Серия 1.831.9-4Серия 1.831.9-4Серия 1.831.9-4Серия 1.831.9-4Серия 1.831.9-4Серия 1.831.9-4Серия 1.831.9-4Серия 1.831.9-4Серия 1.831.9-4Серия 1.831.9-4Серия 1.831.9-4Серия 1.831.9-4Серия 1.831.9-4Серия 1.831.9-4Серия 1.831.9-4Серия 1.831.9-4Серия 1.831.9-4Серия 1.831.9-4Серия 1.831.9-4Серия 1.831.9-4