Скачать Серия 2.130-1 Выпуск 14. Стены брусчатой, каркасно-фибролитовой, арболитовой и панельной конструкцийДата актуализации: 01.01.2021
|
| Обозначение: | Серия 2.130-1 |
| Обозначение англ: | Series 2.130-1 |
| Статус: | справочные материалы, мп, тпр |
| Название рус.: | Выпуск 14. Стены брусчатой, каркасно-фибролитовой, арболитовой и панельной конструкций |
| Дата добавления в базу: | 01.09.2013 |
| Дата актуализации: | 01.01.2021 |
| Дата введения: | 15.03.1972 |
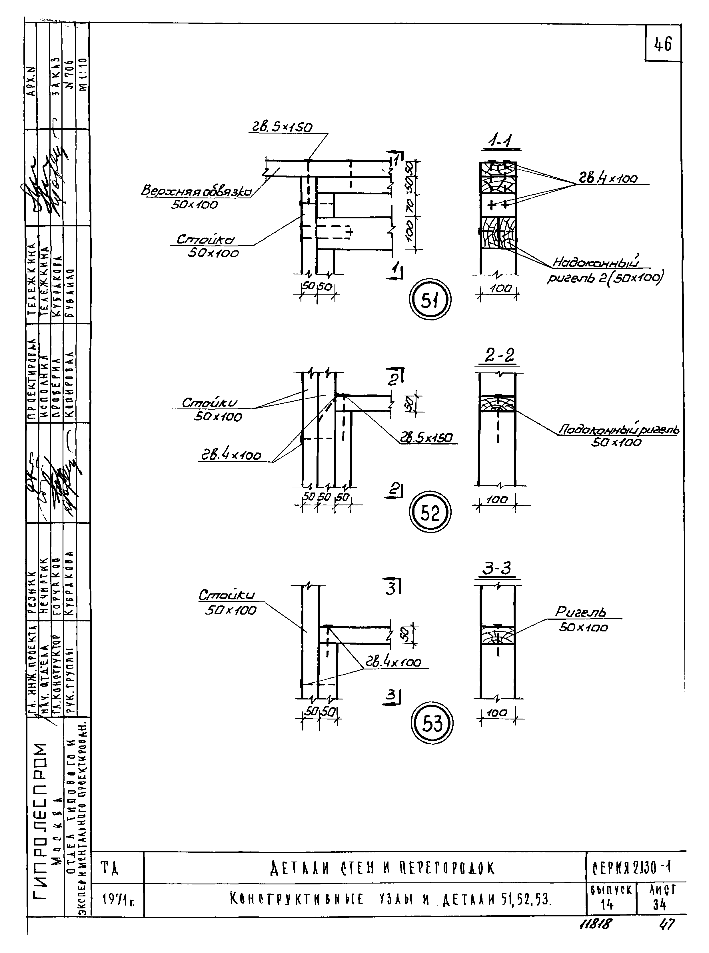
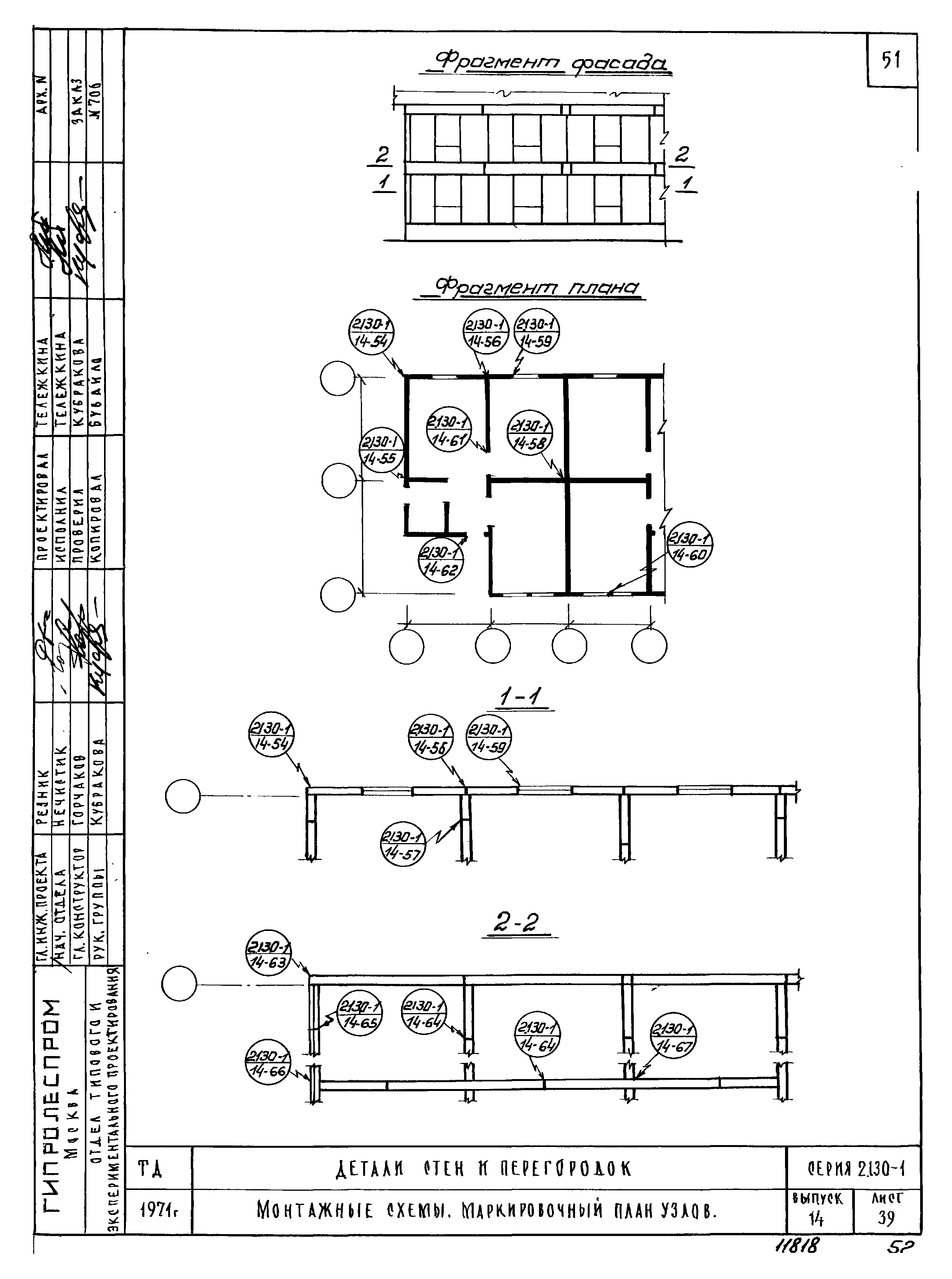
| Оглавление: | Содержание выпуска Пояснительная записка Брусчатые конструкции Монтажная схема . Маркировочный план узлов Размер поперечный и продольный. Маркировочная схема узлов Сопряжения наружных и внутренних стен. Детали 1, 2 Установка оконных блоков с раздельным переплетом. Детали 3, 4 Сопряжение внутренних стен. Установка дверных блоков в наружных стенах. Детали 5, 6 Установка дверных блоков во внутренних стенах. Деталь 7. Деталь сжима Детали наружных стен 8, 9 Установка оконного блока с раздельным переплетом. Деталь 10, 11 Деталь наружных стен 12 Деталь внутренних стен 13, 14 Детали внутренних стен 15 Детали наружных стен 16, 17, 18, 19 Установка дверных блоков во внутренних стенах. Детали 20, 21 Установка дверных блоков в наружных стенах. Детали 22, 23 Каркасно-фибролитовые конструкции Монтажные схемы. Маркировочный план узлов Разрезы поперечный и продольный. Маркировочные схемы узлов Стыки наружных и внутренних стен. Детали 24, 25 Детали наружных стен. Детали 26 Установка оконных блоков с раздельным и спаренным переплетами. Детали 27, 27' Установка дверных блоков в наружных и внутренних стенах. Детали 28, 29 Детали наружных стен. Деталь 30, 31 Установка оконного блока с раздельным переплетом. Детали 32, 33 Установка оконного блока со спаренным переплетом. Детали 32', 33' Детали наружных стен. Деталь 34 Детали внутренних стен. Деталь 35, 36 Установка дверного блока во внутренних стенах. Детали 37, 38 Детали внутренних стен 39 Детали наружных стен 40, 41, 42, 43 Установка дверного блока в наружных стенах. Детали 44, 45 Схема каркас стены. Конструктивные узлы. Деталь 46, 47 ,48 Конструктивные узлы. Детали 49, 50, 51, 52, 53 Конструктивные узлы. Каркас наружной стены Конструктивные узлы. Каркас торцевой стены Конструктивные узлы. Каркас внутренней стены Детали крепления асбестоцементных листов к каркасу Арболитовые конструкции Монтажные схемы. Маркировочный план узлов Разрезы поперечный и продольный. Маркировочный план узлов Стыки наружных и внутренних стеновых блоков. Детали 54, 55, 56 Стыки внутренних стеновых блоков. Детали 54, 55, 56 Установка оконных блоков с раздельным и спаренными переплетами. Детали 59, 59', 60, 60' Установка дверных блоков во внутренних и наружных стенах. Детали 61, 62 Угловой стык горизонтальных блоков. Деталь 63 Стыки горизонтальных блоков. Детали 64, 65, 66, 67 Детали наружных стен. Детали 68, 69 Установка оконного блока с раздельным перелетом. Детали 70, 71 Установка оконного блока со спаренным перелетом. Детали 70', 71' Детали наружных стен. Детали 72 Детали внутренних стен 73, 74, 75 Детали наружных стен 76, 77, 78, 79 Установка дверных блоков во внутренних стенах. Детали 80, 81 Панельные конструкции Монтажные схемы. Маркировочный план узлов Разрезы поперечный и продольный. Маркировочные схемы узлов Стыки наружных и внутренних стен. Детали 82, 83, 82', 83' Рядовые стыки наружных и внутренних стен. Детали 84, 85 Установка оконного блока в панелях (с раздельным и спаренными переплетами). Детали 86, 86' Установка дверным блоков в наружных и внутренних стеновых панелях. Детали 87, 88 Рядовые стык наружных стен и установка дверного блока в панелях (наружных). Детали 84', 87' Детали наружных стен 89, 90 Установка оконного блока в панелях (с раздельным переплетами). Детали 91, 92 Установка оконного блока в панелях (со спаренным переплетами). Детали 91', 92' Детали наружных стен. Детали наружных стен. Детали 93, 94 Детали внутренних стен 95, 96, 97 Установка дверного блока в панелях наружных. Детали 98, 99, 98', 99' Установка дверного блока в панелях внутренних. Детали 100, 101 |
| Разработан: | Гипролеспром Минлесбумпрома СССР |
| Утверждён: | 28.12.1971 Госстрой СССР (Государственный комитет Совета Министров СССР по делам строительства) (USSR Gosstroy 234) |
























































































