Скачать Серия 2.130-10.99 Выпуск 1. Материалы для проектирования и рабочие чертежи узловДата актуализации: 01.01.2021
|
| Обозначение: | Серия 2.130-10.99 |
| Обозначение англ: | Series 2.130-10.99 |
| Статус: | не определен законодательством |
| Название рус.: | Выпуск 1. Материалы для проектирования и рабочие чертежи узлов |
| Дата добавления в базу: | 01.09.2013 |
| Дата актуализации: | 01.01.2021 |
| Дата введения: | 29.12.1999 |
| Дата окончания срока действия: | 30.06.2003 |
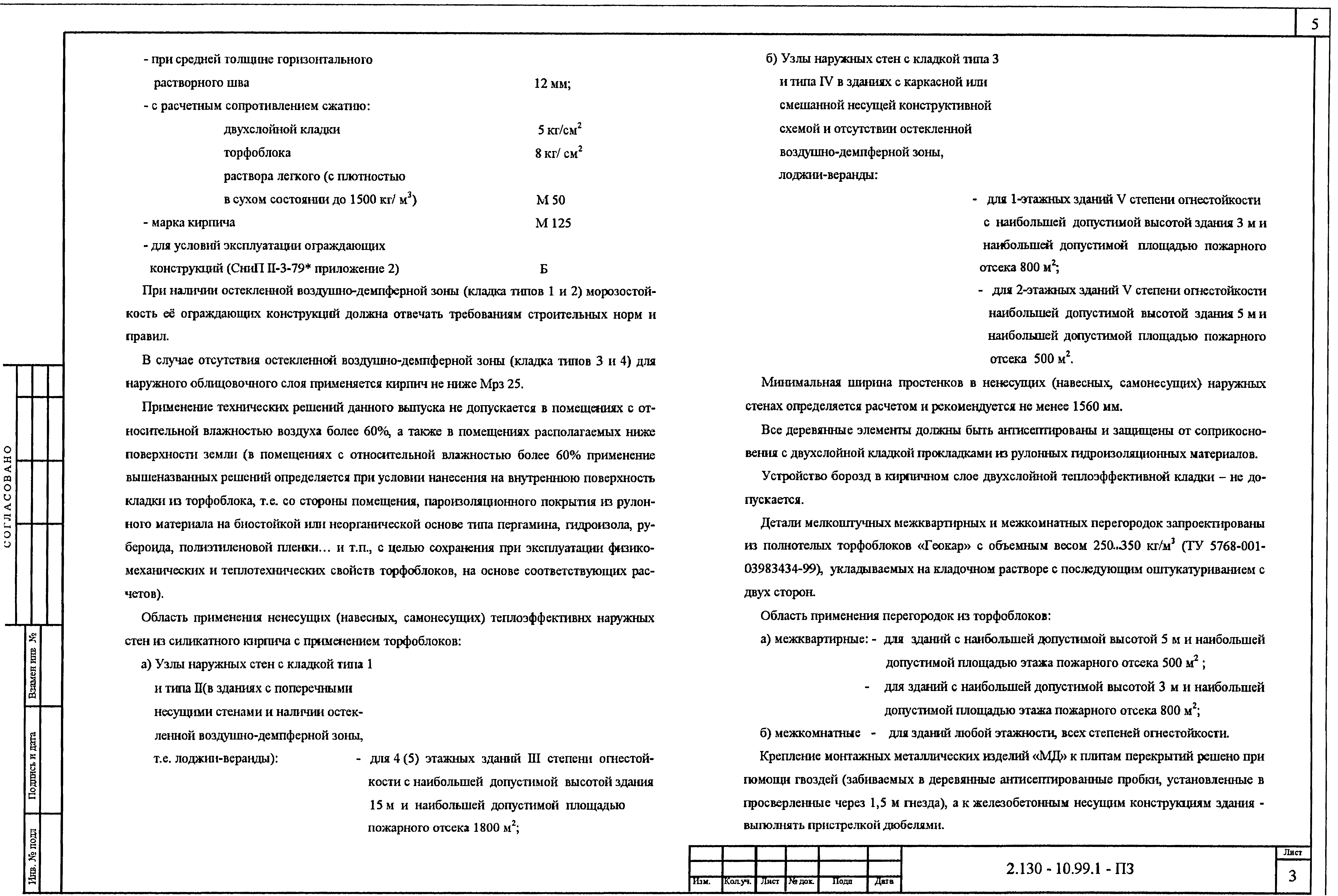
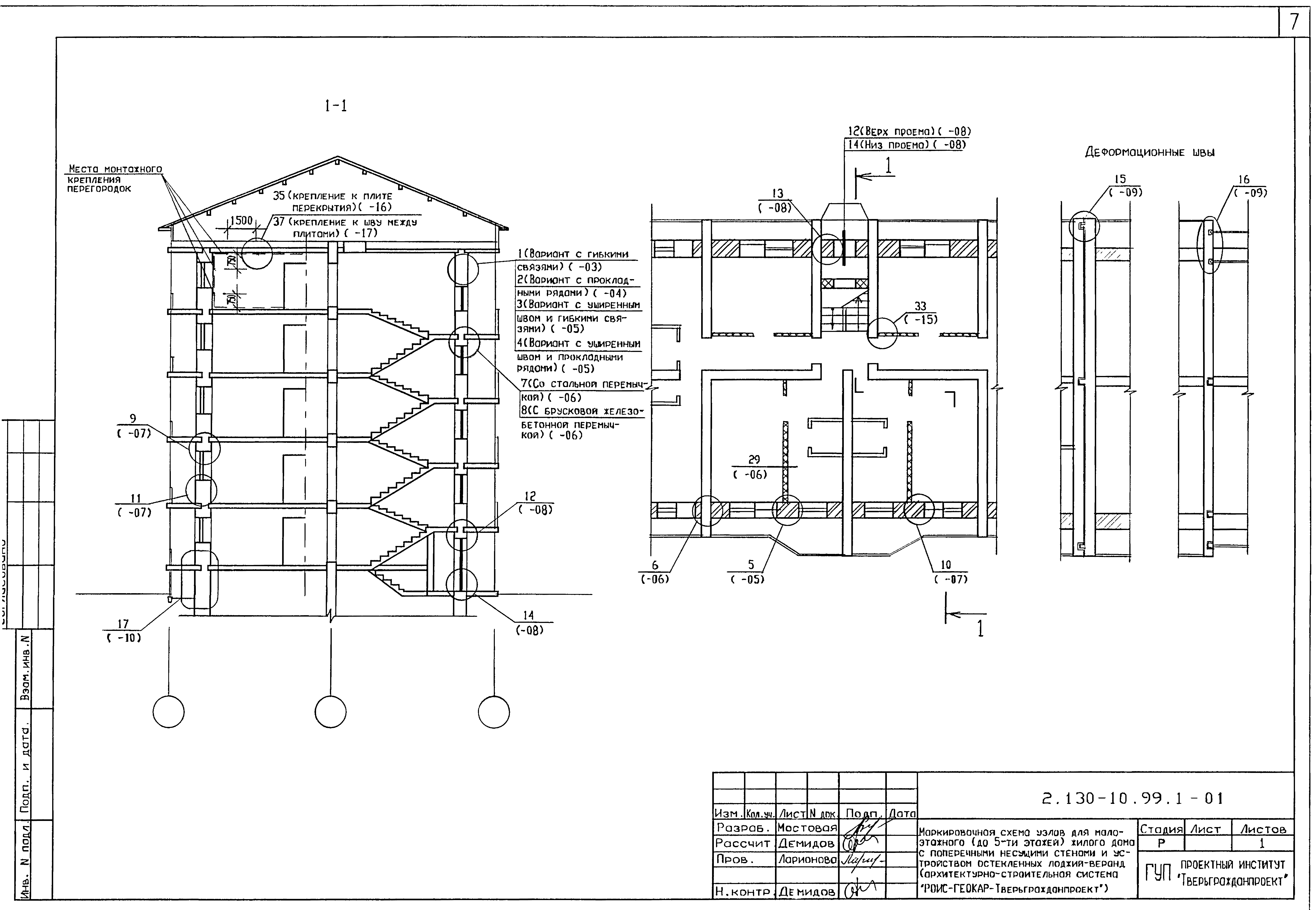
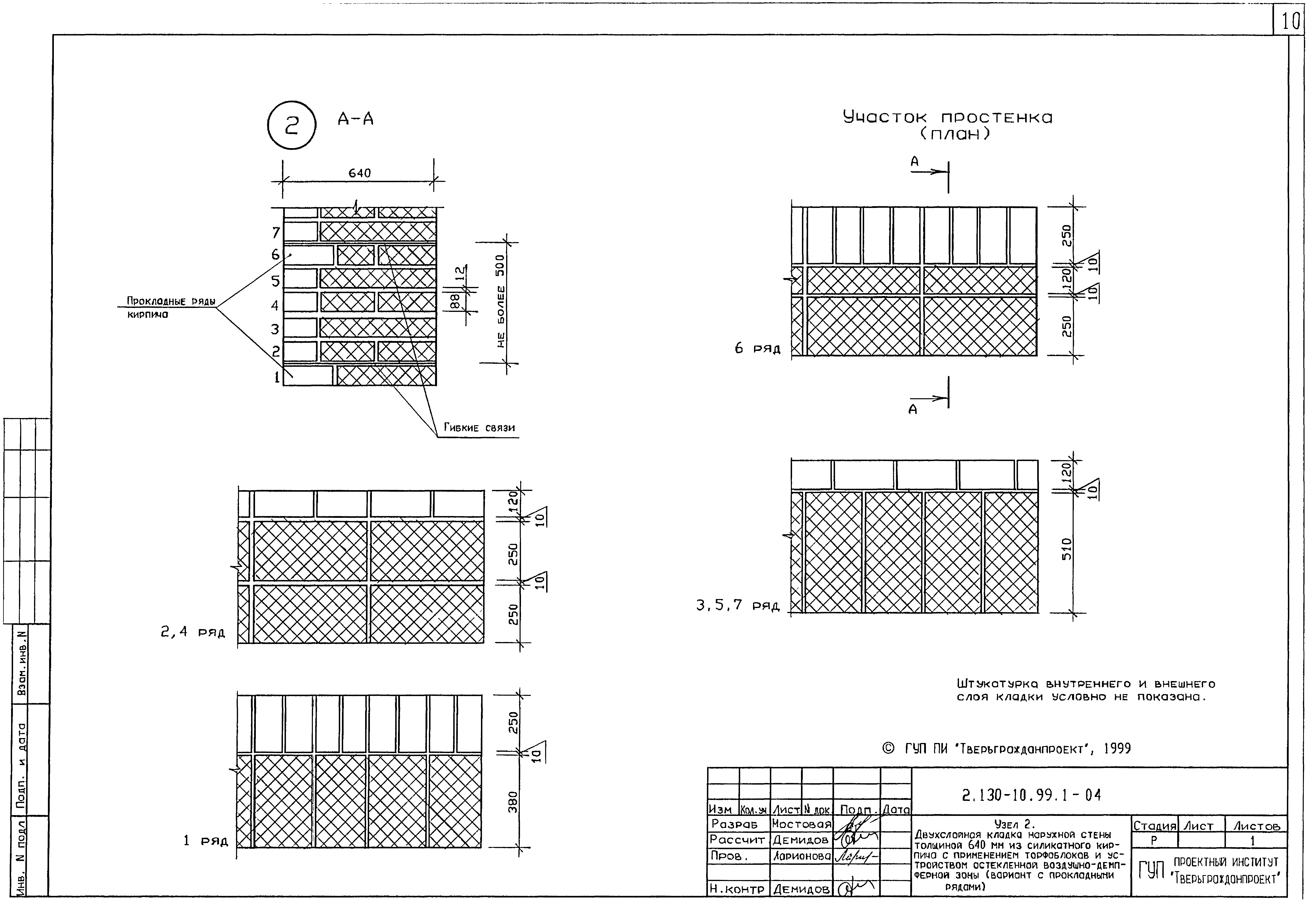
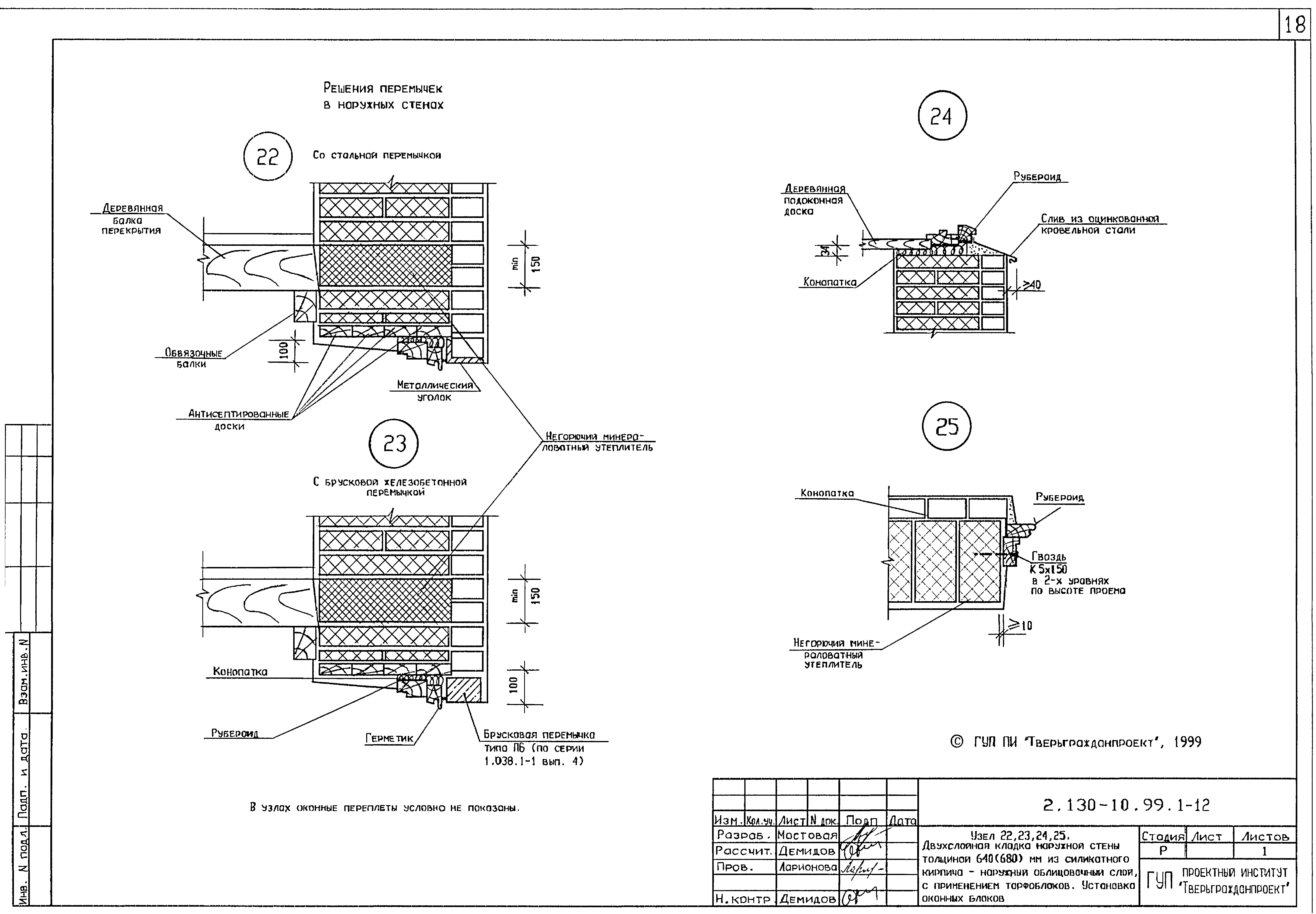
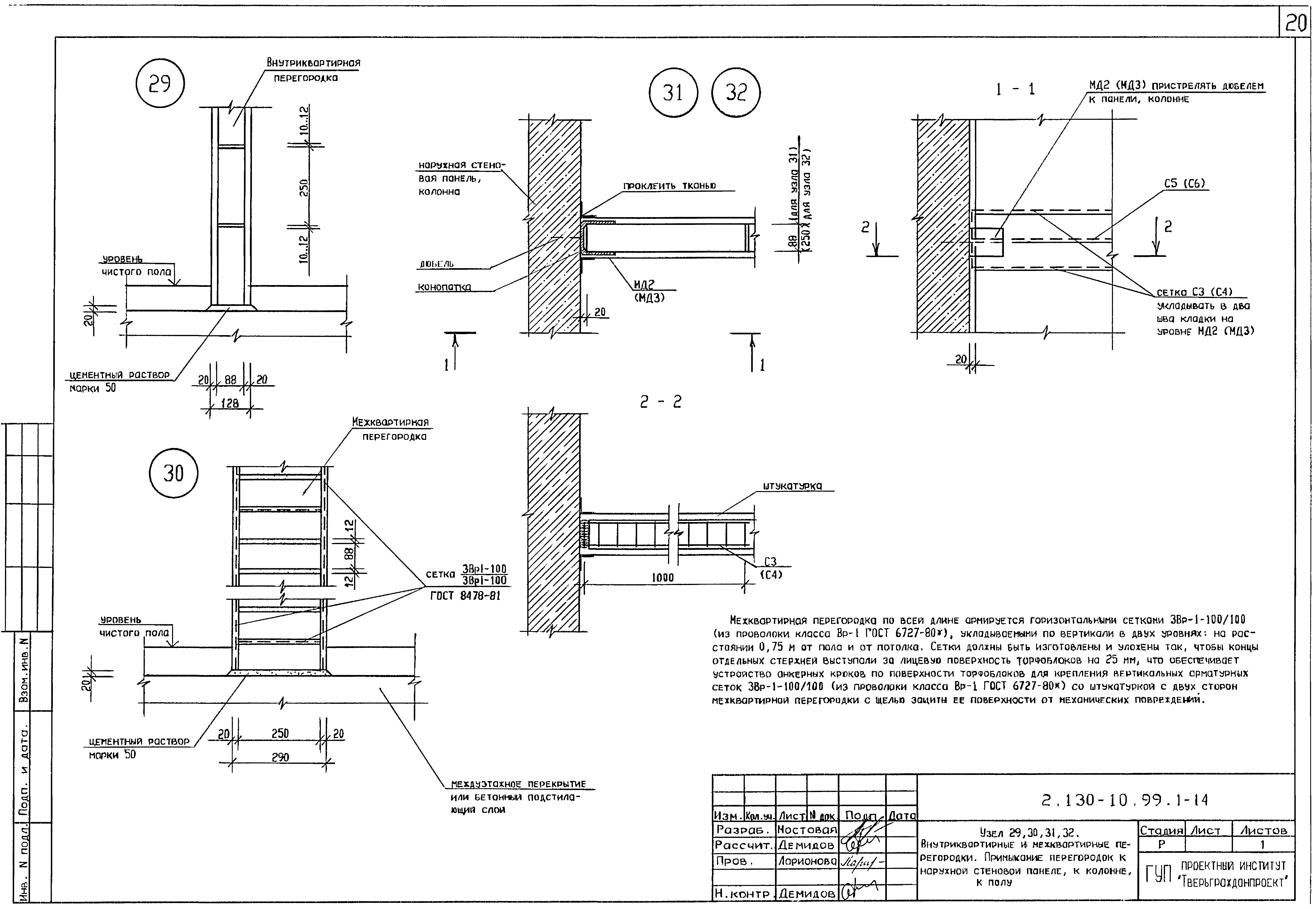
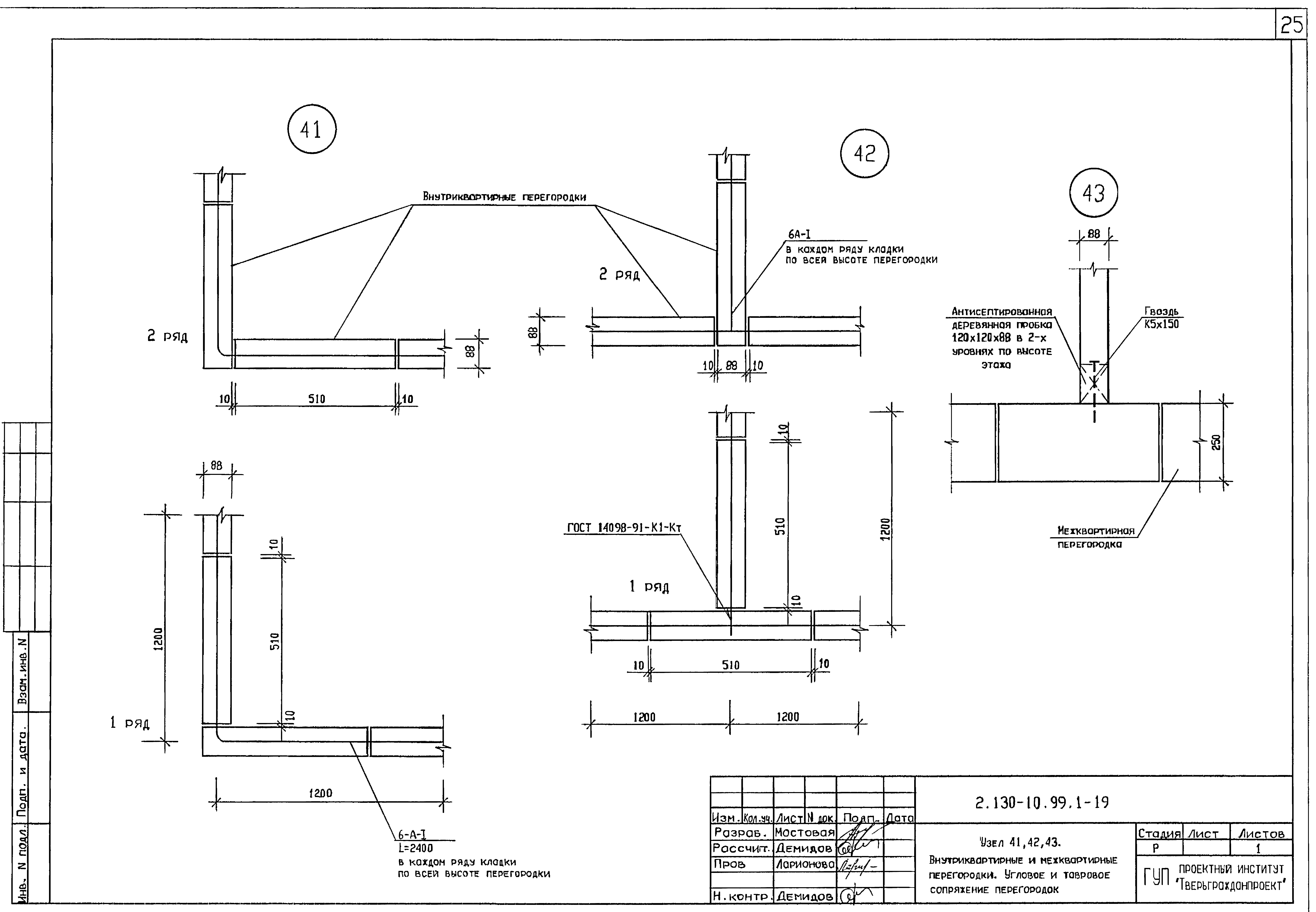
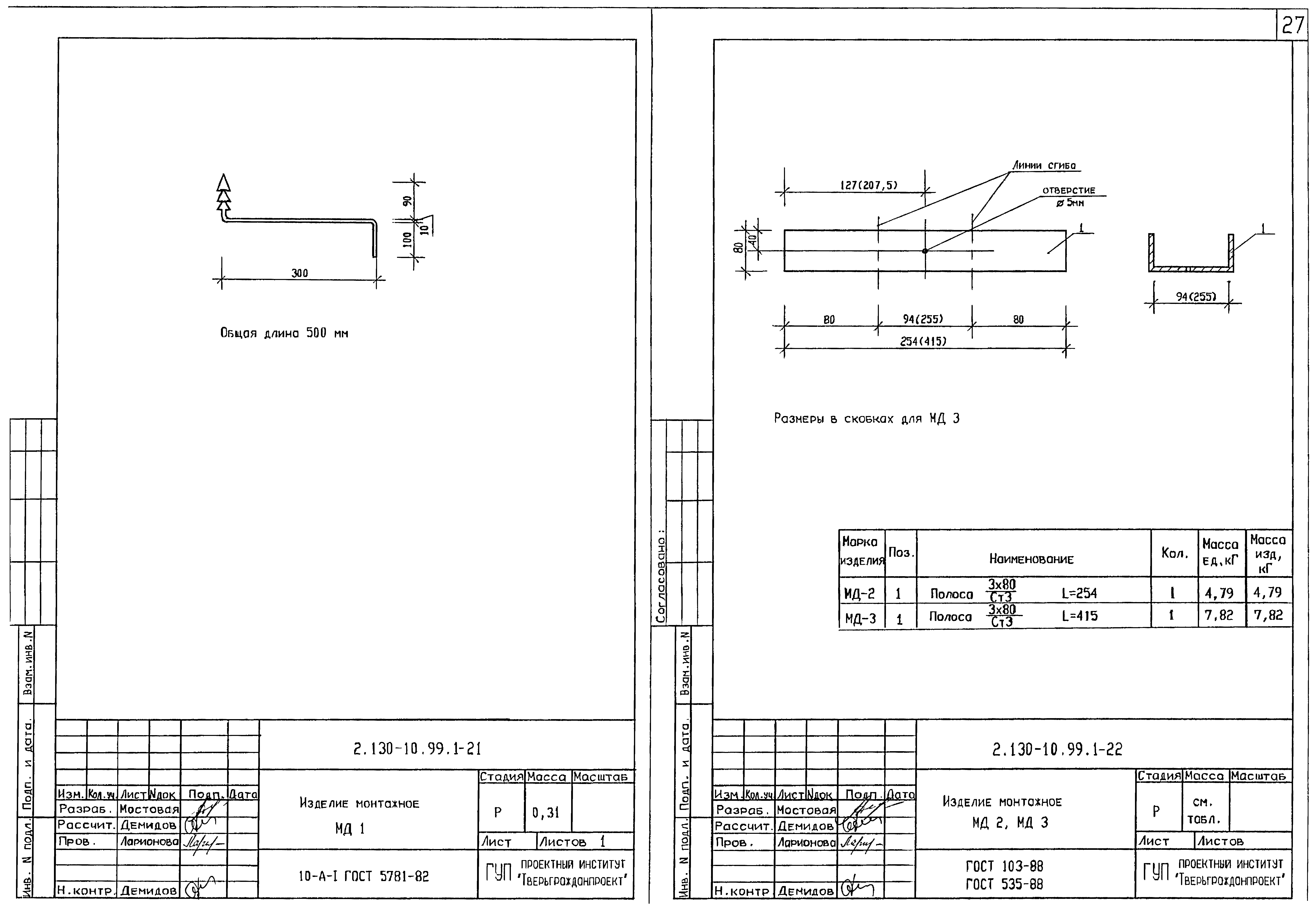
| Оглавление: | 2.130-10.99.1-ПЗ Пояснительная записка 2.130-10.99.1-01 Маркировочная схема узлов для малоэтажного (до 5-ти этажей) жилого дома с поперечными несущими стенами и устройством остекленных лоджий-веранд (архитектурно-строительная система "РОИС-ГЕОКАР-Тверьгражданпроект") 2.130-10.99.1-02 Маркировочная схема узлов для малоэтажного (до 2-х этажей) жилого дома с каркасной или смешанной конструктивной схемой (при отсутствии остекленной воздушно-демпферной зоны, лоджии-веранды) 2.130-10.99.1-03 Узел 1. Двухслойная кладка наружной стены толщиной 640 мм из силикатного кирпича с применением торфоблоков и устройством воздушно-демпферной зоны (варианты с гибкими связи). Порядовка наружной стены 2.130-10.99.1-04 Узел 2. Двухслойная кладка наружной стены толщиной 640 мм из силикатного кирпича с применением торфоблоков и устройством остекленной воздушно-демпферной зоны (вариант с прокладными рядами) 2.130-10.99.1-05 Узел 3, 4, 5. Двухслойная кладка наружной стены толщиной 680 мм из силикатного кирпича с применением торфоблоков и устройством остекленной воздушно-демпферной зоны (вариант с уширенным швом). Узкий простенок 1550 х 640 (680) 2.130-10.99.1-06 Узел 6, 7, 8. Двухслойная кладка наружной стены толщиной 640 (680) мм из силикатного кирпича с применением торфоблоков и устройством остекленной воздушно-демпферной зоны. Сопряжение наружных и внутренних стен. Решения перемычек в наружных стенах 2.130-10.99.1-07 Узел 9, 10, 11. Двухслойная кладка наружной стены толщиной 640 (680) мм из силикатного кирпича с применением торфоблоков и устройством остекленной воздушно-демпферной зоны. Установка оконных блоков 2.130-10.99.1-08 Узел 12, 13, 14. Двухслойная кладка наружной стены толщиной 640 (680) мм из силикатного кирпича с применением торфоблоков и устройством остекленной воздушно-демпферной зоны. Установка оконных блоков в наружных стенах 2.130-10.99.1-09 Узел 15, 16. Двухслойная кладка наружной стены толщиной 640 (680) мм из силикатного кирпича с применением торфоблоков и устройством остекленной воздушно-демпферной зоны. Деформационные швы 2.130-10.99.1-10 Узел 17. Двухслойная кладка наружной стены толщиной 640 (680) мм из силикатного кирпича с применением торфоблоков и устройством остекленной воздушно-демпферной зоны. Цоколь. Узел 18. Двухслойная кладка наружной стены толщиной 640 (680) мм из силикатного кирпича - наружный облицовочный слой, с применением торфоблоков. Цоколь 2.130-10.99.1-11 Узел 19, 19-1, 20, 21. Двухслойная кладка наружной стены толщиной 640 (680) мм из силикатного кирпича - наружный облицовочный слой, с применением торфоблоков. Сопряжение наружный стен с каркасом 2.130-10.99.1-12 Узел 22, 23, 24, 25. Двухслойная кладка наружной стены толщиной 640 (680) мм из силикатного кирпича - наружный облицовочный слой, с применением торфоблоков. Установка оконных блоков 2.130-10.99.1-13 Узел 26, 27, 28. Двухслойная кладка наружной стены толщиной 640 (680) мм из силикатного кирпича - наружный облицовочный слой, с применением торфоблоков. Установка оконных блоков в наружных стенах Деформационный шов 2.130-10.99.1-14 Узел 29, 30, 31, 32. Внутриквартирные и межквартирные перегородки. Примыкание перегородок к наружной стеновой панели, к колонне, к полу 2.130-10.99.1-15 Узел 33, 34. Внутриквартирные и межквартирные перегородки. Примыкание перегородок к кирпичной стене, столбу 2.130-10.99.1-16 Узел 35, 36. Внутриквартирные и межквартирные перегородки. Примыкание перегородок к плите покрытия 2.130-10.99.1-17 Узел 37, 38. Внутриквартирные и межквартирные перегородки. Примыкание перегородок к шву между плитами перекрытия 2.130-10.99.1-18 Узел 39, 40. Внутриквартирные и межквартирные перегородки. Примыкание перегородок к железобетонному ригелю, прогону 2.130-10.99.1-19 Узел 41, 42, 43. Внутриквартирные и межквартирные перегородки. Угловое и тавровое сопряжение перегородок 2.130-10.99.1-20 Узел 44, 45. Внутриквартирные и межквартирные перегородки. Крестообразное сопряжение перегородок 2.130-10.99.1-21 Изделие монтажное МД-1 2.130-10.99.1-22 Изделие монтажное МД-2, МД-3 2.130-10.99.1-23 Изделие монтажное МД-4 2.130-10.99.1-24 Изделие монтажное МД-5 2.130-10.99.1-25 Сетка С1 2.130-10.99.1-26 Сетка С2 2.130-10.99.1-27 Сетка С3 2.130-10.99.1-25 Сетка С4 2.130-10.99.1-29 Сетка С5 2.130-10.99.1-30 Сетка С6 |
| Разработан: | ГУП ПИ Тверьгражданпроект |
| Утверждён: | 28.12.1999 ГУП ПИ Тверьгражданпроект (57) |































